30 Π»ΡΡΡΠΈΡ ΠΏΡΠΈΠΌΠ΅ΡΠΎΠ² ΠΎΡ Π΄ΠΈΠ·Π°ΠΉΠ½Π΅ΡΠΎΠ² β INMYROOM
Π‘Π΅Π³ΠΎΠ΄Π½Ρ ΡΠ΅Π΄ΠΊΠΈΠΉ ΡΠ΅ΠΌΠΎΠ½Ρ ΠΎΠ±Ρ ΠΎΠ΄ΠΈΡΡΡ Π±Π΅Π· ΠΏΠ΅ΡΠ΅ΠΏΠ»Π°Π½ΠΈΡΠΎΠ²ΠΊΠΈ. Π£ΠΆΠ΅ Π½ΠΈΠΊΠΎΠ³ΠΎ Π½Π΅ ΡΠ΄ΠΈΠ²ΠΈΡΡ ΡΠ°Π·Π½ΠΎΠΎΠ±ΡΠ°Π·ΠΈΠ΅ΠΌ ΠΏΠ»Π°Π½ΠΈΡΠΎΠ²ΠΎΡΠ½ΡΡ ΡΠ΅ΡΠ΅Π½ΠΈΠΉ Π² ΠΏΡΠΎΡΡΠΎΡΠ½ΡΡ ΠΏΠΎΠΌΠ΅ΡΠ΅Π½ΠΈΡΡ , Π³Π΄Π΅ ΠΊΠ°ΠΆΠ΄ΡΠΉ Π΄Π»Ρ ΡΠ΅Π±Ρ ΡΠ΅ΡΠ°Π΅Ρ, Π³Π΄Π΅ Ρ Π½Π΅Π³ΠΎ Π±ΡΠ΄Π΅Ρ ΡΠΏΠ°Π»ΡΠ½Ρ, Π° Π³Π΄Π΅ Π³ΠΎΡΡΠΈΠ½Π°Ρ. ΠΠΎ ΡΡΠΎ ΠΆΠ΅ Π΄Π΅Π»Π°ΡΡ ΡΠ΅ΠΌ, ΠΊΠΎΠΌΡ ΠΆΠΈΠ»ΡΠ΅ Π΄ΠΎΡΡΠ°Π»ΠΎΡΡ Π² ΡΠΈΠΏΠΎΠ²ΠΎΠΌ ΠΏΠ°Π½Π΅Π»ΡΠ½ΠΎΠΌ Π΄ΠΎΠΌΠ΅, Π΄Π° Π΅ΡΠ΅ ΠΈ ΠΎΠ΄Π½ΠΎΠΊΠΎΠΌΠ½Π°ΡΠ½ΠΎΠ΅?
ΠΡΠΎΡΠ΅ΡΡΠΈΠΎΠ½Π°Π»ΡΠ½ΡΠ΅ Π΄ΠΈΠ·Π°ΠΉΠ½Π΅ΡΡ ΠΏΡΠ΅Π΄Π»ΠΎΠΆΠΈΠ»ΠΈ Π½Π΅ΡΠΊΠΎΠ»ΡΠΊΠΎ Π²Π°ΡΠΈΠ°Π½ΡΠΎΠ² ΠΎΠ±ΡΡΡΡΠΎΠΉΡΡΠ²Π° ΠΎΠ΄Π½ΡΡΠΊΠΈ Π² ΡΠ°Π·Π½ΡΡ ΡΠΈΠΏΠ°Ρ Π΄ΠΎΠΌΠ°Ρ β ΠΏΠ°Π½Π΅Π»ΡΠ½ΡΡ , ΠΊΠΈΡΠΏΠΈΡΠ½ΡΡ , Π±Π»ΠΎΡΠ½ΡΡ β ΠΈ Π΄Π»Ρ ΡΠ°Π·Π½ΡΡ ΡΠΈΠΏΠΎΠ² ΠΆΠΈΠ»ΡΡΠΎΠ². ΠΠ΅ Π·Π°Π±ΡΠ²Π°ΠΉΡΠ΅: Π΄Π°Π½Π½ΡΠ΅ ΠΏΠ΅ΡΠ΅ΠΏΠ»Π°Π½ΠΈΡΠΎΠ²ΠΊΠΈ ΡΡΠ΅Π±ΡΡΡ ΠΈΠ½Π΄ΠΈΠ²ΠΈΠ΄ΡΠ°Π»ΡΠ½ΠΎΠ³ΠΎ ΡΠ°ΡΡΠΌΠΎΡΡΠ΅Π½ΠΈΡ ΠΈ ΡΠΎΠ³Π»Π°ΡΠΎΠ²Π°Π½ΠΈΡ.
32 ΠΊΠ²Π°Π΄ΡΠ°ΡΠ° Π² ΠΏΠ°Π½Π΅Π»ΡΠ½ΠΎΠΌ Π΄ΠΎΠΌΠ΅ II-49
Π‘Π΅ΡΠΈΡ ΠΏΠ°Π½Π΅Π»ΡΠ½ΡΡ
Π΄ΠΎΠΌΠΎΠ² II-49 (ΡΠ°ΠΊΠΆΠ΅ ΡΠ°ΡΠΏΡΠΎΡΡΡΠ°Π½Π΅Π½ΠΎ ΠΎΠ±ΠΎΠ·Π½Π°ΡΠ΅Π½ΠΈΠ΅ Π-49) Π±ΡΠ»Π° ΡΠΏΡΠΎΠ΅ΠΊΡΠΈΡΠΎΠ²Π°Π½Π° Π² ΡΠ΅ΡΠ΅Π΄ΠΈΠ½Π΅ 60-Ρ
Π΄Π»Ρ Π·Π°ΠΌΠ΅Π½Ρ Ρ
ΡΡΡΠ΅Π²ΠΎΠΊ Π-7 ΠΈ ΡΡΡΠΎΠΈΠ»Π°ΡΡ Π΄ΠΎ ΡΠ΅ΡΠ΅Π΄ΠΈΠ½Ρ 80-Ρ
Π³ΠΎΠ΄ΠΎΠ². ΠΠ°ΡΡΠΆΠ½ΡΠ΅ ΡΡΠ΅Π½Ρ Π·Π΄Π°Π½ΠΈΡ Π²ΡΠΏΠΎΠ»Π½Π΅Π½Ρ ΠΈΠ· ΠΊΠ΅ΡΠ°ΠΌΠ·ΠΈΡΠΎΠ±Π΅ΡΠΎΠ½Π½ΡΡ
ΠΏΠ°Π½Π΅Π»Π΅ΠΉ ΠΌΠ°ΡΠΊΠΈ Π75 ΡΠΎΠ»ΡΠΈΠ½ΠΎΠΉ 300 ΠΌΠΈΠ»Π»ΠΈΠΌΠ΅ΡΡΠΎΠ², Π²Π½ΡΡΡΠ΅Π½Π½ΠΈΠ΅ ΡΡΠ΅Π½Ρ β ΠΈΠ· ΠΊΡΡΠΏΠ½ΡΡ
ΠΆΠ΅Π»Π΅Π·ΠΎΠ±Π΅ΡΠΎΠ½Π½ΡΡ
ΠΏΠ°Π½Π΅Π»Π΅ΠΉ ΡΠΎΠ»ΡΠΈΠ½ΠΎΠΉ 140 ΠΌΠΈΠ»Π»ΠΈΠΌΠ΅ΡΡΠΎΠ² ΠΈΠ· Π±Π΅ΡΠΎΠ½Π°, ΠΏΠ΅ΡΠ΅Π³ΠΎΡΠΎΠ΄ΠΊΠΈ β Π³ΠΈΠΏΡΠΎΠ±Π΅ΡΠΎΠ½Π½ΡΠ΅ ΠΏΠ°Π½Π΅Π»ΠΈ ΡΠΎΠ»ΡΠΈΠ½ΠΎΠΉ 80 ΠΌΠΈΠ»Π»ΠΈΠΌΠ΅ΡΡΠΎΠ².
ΠΠΎΠΌΠ° ΡΡΠΎΠΉ ΡΠ΅ΡΠΈΠΈ ΠΊΡΠΎΠΌΠ΅ ΠΏΡΠΎΠ΄ΠΎΠ»ΡΠ½ΡΡ
Π½Π΅ΡΡΡΠΈΡ
ΡΡΠ΅Π½ (Π΄Π²Π΅ ΡΠ°ΡΠ°Π΄Π½ΡΠ΅ ΠΈ ΠΎΠ΄Π½Π° Π²Π½ΡΡΡΠ΅Π½Π½ΡΡ) ΠΈΠΌΠ΅ΡΡ Π΅ΡΠ΅ ΠΈ ΠΏΠΎΠΏΠ΅ΡΠ΅ΡΠ½ΡΠ΅ Π½Π΅ΡΡΡΠΈΠ΅ ΡΡΠ΅Π½Ρ.Β
Π ΡΠ»ΡΡΠ°Π΅ Ρ ΠΎΠ΄Π½ΠΎΠΊΠΎΠΌΠ½Π°ΡΠ½ΠΎΠΉ ΠΊΠ²Π°ΡΡΠΈΡΠΎΠΉ, Π½Π΅ΡΡΡΠ΅ΠΉ ΡΠ²Π»ΡΠ΅ΡΡΡ ΡΡΠ΅Π½Π° ΠΌΠ΅ΠΆΠ΄Ρ ΠΊΠΎΠΌΠ½Π°ΡΠΎΠΉ ΠΈ ΠΊΡΡ Π½Π΅ΠΉ. Π’Π°ΠΊΠ°Ρ ΠΎΡΠΎΠ±Π΅Π½Π½ΠΎΡΡΡ ΡΡΠΈΡ Π΄ΠΎΠΌΠΎΠ² Π½Π΅ Π΄Π°Π΅Ρ ΡΠΈΡΠΎΠΊΠΈΡ Π²ΠΎΠ·ΠΌΠΎΠΆΠ½ΠΎΡΡΠ΅ΠΉ ΠΏΠ΅ΡΠ΅ΠΏΠ»Π°Π½ΠΈΡΠΎΠ²ΠΎΠΊ. ΠΠ°ΠΊΡΠΈΠΌΡΠΌ ΡΡΠΎ ΠΌΠΎΠΆΠ½ΠΎ ΡΠ΄Π΅Π»Π°ΡΡ β ΡΡΠΎ ΡΠ²Π΅Π»ΠΈΡΠΈΡΡ ΠΏΠ»ΠΎΡΠ°Π΄Ρ ΡΠ°Π½ΡΠ·Π»Π° Π·Π° ΡΡΠ΅Ρ ΠΊΠΎΡΠΈΠ΄ΠΎΡΠ° ΠΈ ΡΠ΄Π΅Π»Π°ΡΡ ΠΏΡΠΎΠ΅ΠΌ ΡΠΈΡΠΈΠ½ΠΎΠΉ 900 ΠΌΠΈΠ»Π»ΠΈΠΌΠ΅ΡΡΠΎΠ² Π² Π½Π΅ΡΡΡΠ΅ΠΉ ΡΡΠ΅Π½Π΅, Π° ΡΠ°ΠΊΠΆΠ΅ Π²ΠΎΠ·Π²ΠΎΠ΄ΠΈΡΡ Π΄ΠΎΠΏΠΎΠ»Π½ΠΈΡΠ΅Π»ΡΠ½ΡΠ΅ ΠΏΠ΅ΡΠ΅Π³ΠΎΡΠΎΠ΄ΠΊΠΈ. ΠΠΈΠ·Π°ΠΉΠ½Π΅Ρ ΠΠ»ΡΠ³Π° ΠΠΎΠ½Π΄Π°ΡΡ ΠΏΡΠ΅Π΄Π»ΠΎΠΆΠΈΠ»Π° ΡΡΠΈ Π±Π΅ΡΠΏΡΠΎΠΈΠ³ΡΡΡΠ½ΡΡ Π²Π°ΡΠΈΠ°Π½ΡΠ° ΠΏΠ΅ΡΠ΅ΠΏΠ»Π°Π½ΠΈΡΠΎΠ²ΠΊΠΈΒ ΠΎΠ΄Π½ΡΡΠΊΠΈ ΠΏΠ»ΠΎΡΠ°Π΄ΡΡ 32 ΠΊΠ²Π°Π΄ΡΠ°ΡΠ½ΡΡ ΠΌΠ΅ΡΡΠ° Π΄Π»Ρ ΡΠ°Π·Π½ΡΡ ΡΠΈΠΏΠΎΠ² ΠΆΠΈΠ»ΡΡΠΎΠ².
ΠΠ΄Π½ΡΡΠΊΠ° ΠΏΠ»ΠΎΡΠ°Π΄ΡΡ 38 ΠΊΠ²Π°Π΄ΡΠ°ΡΠΎΠ² Π² Π-44
ΠΠ΅ΡΠ²ΡΠ΅ Π΄ΠΎΠΌΠ° ΡΠΈΠΏΠΎΠ²ΠΎΠΉ ΡΠ΅ΡΠΈΠΈ Π-44 Π½Π°ΡΠ°Π»ΠΈ ΡΡΡΠΎΠΈΡΡ Π² 70-Π΅ Π³ΠΎΠ΄Ρ XX Π²Π΅ΠΊΠ°. ΠΡΡ ΠΈΡΠ΅ΠΊΡΡΡΠ½ΡΠΌΠΈ ΡΠ»Π΅ΠΌΠ΅Π½ΡΠ°ΠΌΠΈ ΠΈ ΠΈΠ·Π»ΠΈΡΠ΅ΡΡΠ²Π°ΠΌΠΈ ΠΎΡ ΡΠ²ΠΎΠΈΡ ΠΏΡΠ΅Π΄ΡΠ΅ΡΡΠ²Π΅Π½Π½ΠΈΠΊΠΎΠ² ΠΎΠ½ΠΈ Π½Π΅ ΠΎΡΠ»ΠΈΡΠ°Π»ΠΈΡΡ, Π½ΠΎ ΠΏΠ»Π°Π½ΠΈΡΠΎΠ²ΠΊΠΈ ΠΊΠ²Π°ΡΡΠΈΡ ΠΈ Π½ΠΎΠ²ΡΠ΅ ΡΠ΅Ρ Π½ΠΎΠ»ΠΎΠ³ΠΈΠΈ Π² Π΄ΠΎΠΌΠ°Ρ ΡΡΠΎΠΉ ΡΠ΅ΡΠΈΠΈ Π½Π° ΠΌΠΎΠΌΠ΅Π½Ρ ΡΡΡΠΎΠΈΡΠ΅Π»ΡΡΡΠ²Π° ΡΡΠ°Π»ΠΈ ΠΏΡΠΎΡΡΠΎ ΡΠ΅Π²ΠΎΠ»ΡΡΠΈΠΎΠ½Π½ΡΠΌΠΈ.
ΠΠ· Π½Π΅ΠΊΠΎΡΠΎΡΡΡ
ΠΏΠ»ΡΡΠΎΠ² ΠΌΠΎΠΆΠ½ΠΎ ΠΎΡΠΌΠ΅ΡΠΈΡΡ ΡΠ΄ΠΎΠ±Π½ΡΠ΅ ΠΏΠ»Π°Π½ΠΈΡΠΎΠ²ΠΊΠΈ, ΠΏΡΠΎΡΡΠΎΡΠ½ΡΠ΅ ΠΊΡΡ
Π½ΠΈ, ΠΏΡΠΈΡ
ΠΎΠΆΠΈΠ΅, Π²Π°Π½Π½ΡΠ΅ ΠΊΠΎΠΌΠ½Π°ΡΡ.
Π ΠΈΠ· ΠΌΠΈΠ½ΡΡΠΎΠ² β ΡΠΎΡ ΡΠ°ΠΊΡ, ΡΡΠΎ Π·Π΄Π΅ΡΡ Π²ΡΠ΅ ΠΌΠ΅ΠΆΠΊΠ²Π°ΡΡΠΈΡΠ½ΡΠ΅ ΠΈ ΠΌΠ΅ΠΆΠΊΠΎΠΌΠ½Π°ΡΠ½ΡΠ΅ ΡΡΠ΅Π½Ρ β Π½Π΅ΡΡΡΠΈΠ΅. Π’Π΅ΠΌ Π½Π΅ ΠΌΠ΅Π½Π΅Π΅ Π΄ΠΈΠ·Π°ΠΉΠ½Π΅Ρ ΠΡΠΈΠ½Π° Π€Π΅ΡΠ΅Π»ΠΎΠ²Π°Β Π³ΡΠ°ΠΌΠΎΡΠ½ΠΎ ΠΏΡΠΎΠ΄ΡΠΌΠ°Π»Π° ΡΡΠΈ Π²Π°ΡΠΈΠ°Π½ΡΠ° ΠΏΠ΅ΡΠ΅ΠΏΠ»Π°Π½ΠΈΡΠΎΠ²ΠΊΠΈ ΠΊΠ²Π°ΡΡΠΈΡΡ ΠΏΠ»ΠΎΡΠ°Π΄ΡΡ 38 ΠΊΠ²Π°Π΄ΡΠ°ΡΠ½ΡΡ
ΠΌΠ΅ΡΡΠΎΠ². ΠΠ΄ΠΈΠ½ ΠΈΠ· Π½ΠΈΡ
Π΄ΠΎΡΡΠ°ΡΠΎΡΠ½ΠΎ ΡΠΈΡΠΊΠΎΠ²ΡΠΉ, Π·Π°ΡΠΎ ΠΏΠΎΠ·Π²ΠΎΠ»ΠΈΠ» ΠΏΡΠ΅Π²ΡΠ°ΡΠΈΡΡ ΠΎΠ΄Π½ΡΡΠΊΡ Π² ΠΏΠΎΠ»Π½ΠΎΡΠ΅Π½Π½ΡΡ Π΄Π²ΡΡΠΊΡ.
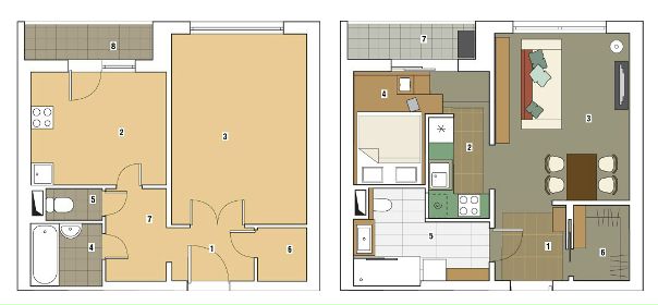
ΠΠ²Π°ΡΡΠΈΡΠ° Π² ΠΏΠ°Π½Π΅Π»ΡΠ½ΠΎΠΌ Π΄ΠΎΠΌΠ΅ ΡΠ΅ΡΠΈΠΈ Π-79-99
Π‘Π΅ΡΠΈΡ Π-79-99 ΡΠ°Π·ΡΠ°Π±ΠΎΡΠ°Π½Π° Π½Π° Π±Π°Π·Π΅ ΡΠ΅ΡΠΈΠΈ ΡΠΈΡΠΎΠΊΠΎΠΊΠΎΡΠΏΡΡΠ½ΡΡ Π΄ΠΎΠΌΠΎΠ², ΡΠΎΠ²Π΅ΡΡΠΈΠ²ΡΠ΅ΠΉ Π½Π΅ΡΠΊΠΎΠ»ΡΠΊΠΎ Π»Π΅Ρ Π½Π°Π·Π°Π΄ Π½Π°ΡΡΠΎΡΡΠΈΠΉ ΠΏΠ΅ΡΠ΅Π²ΠΎΡΠΎΡ Π² ΠΏΠ°Π½Π΅Π»ΡΠ½ΠΎΠΌ Π΄ΠΎΠΌΠΎΡΡΡΠΎΠ΅Π½ΠΈΠΈ.
ΠΠ²Π°ΡΡΠΈΡΡ ΠΎΡΠ»ΠΈΡΠ°ΡΡΡΡ ΡΠ΄ΠΎΠ±Π½ΡΠΌΠΈ ΠΏΠ»Π°Π½ΠΈΡΠΎΠ²ΠΊΠ°ΠΌΠΈ, Π² ΠΊΠ°ΠΆΠ΄ΠΎΠΉ ΠΏΡΠ΅Π΄ΡΡΠΌΠΎΡΡΠ΅Π½ ΡΡΠΊΠ΅Ρ. ΠΠ±ΡΠ°Ρ ΠΏΠ»ΠΎΡΠ°Π΄Ρ ΠΎΠ΄Π½ΠΎΠΊΠΎΠΌΠ½Π°ΡΠ½ΠΎΠΉ ΠΊΠ²Π°ΡΡΠΈΡΡ ΡΠΎΡΡΠ°Π²Π»ΡΠ΅Ρ ΡΡΡΡ Π±ΠΎΠ»ΡΡΠ΅ 43 ΠΊΠ²Π°Π΄ΡΠ°ΡΠ½ΡΡ ΠΌΠ΅ΡΡΠΎΠ². ΠΠ»ΠΎΡΠ°Π΄Ρ ΠΊΠΎΠΌΠ½Π°ΡΡ β 17,94 ΠΊΠ²Π°Π΄ΡΠ°ΡΠ½ΠΎΠ³ΠΎ ΠΌΠ΅ΡΡΠ°, ΠΏΠ»ΠΎΡΠ°Π΄Ρ ΠΊΡΡ Π½ΠΈ β 10,22 ΠΊΠ²Π°Π΄ΡΠ°ΡΠ½ΠΎΠ³ΠΎ ΠΌΠ΅ΡΡΠ°. ΠΠΈΠ·Π°ΠΉΠ½Π΅Ρ ΠΠ°ΠΊΡΠΈΠΌ ΠΠ°Π½ΠΈΠ½ ΡΠ°ΡΡΠΌΠΎΡΡΠ΅Π» ΡΡΠΈ Π²Π°ΡΠΈΠ°Π½ΡΠ° ΠΏΠ΅ΡΠ΅ΠΏΠ»Π°Π½ΠΈΡΠΎΠ²ΠΊΠΈ ΠΏΠΎΠΌΠ΅ΡΠ΅Π½ΠΈΡ β Π΄Π²Π° ΠΈΠ· Π½ΠΈΡ Π±ΡΠ΄ΡΡ ΠΈΠ΄Π΅Π°Π»ΡΠ½Ρ Π΄Π»Ρ Ρ ΠΎΠ»ΠΎΡΡΡΠΊΠ°, Π° ΠΎΠ΄ΠΈΠ½ β Π΄Π»Ρ ΠΌΠΎΠ»ΠΎΠ΄ΠΎΠΉ ΠΏΠ°ΡΡ.
ΠΠ΄Π½ΠΎΠΊΠΎΠΌΠ½Π°ΡΠ½Π°Ρ ΠΊΠ²Π°ΡΡΠΈΡΠ° Π² ΡΠΈΠΏΠΎΠ²ΠΎΠΌ ΠΏΠ°Π½Π΅Π»ΡΠ½ΠΎΠΌ Π΄ΠΎΠΌΠ΅ ΡΠ΅ΡΠΈΠΈ Π-155
ΠΠ΅ΡΠ΅ΠΏΠ»Π°Π½ΠΈΡΠΎΠ²ΠΊΠ° ΠΎΠ΄Π½ΠΎΠΊΠΎΠΌΠ½Π°ΡΠ½ΠΎΠΉ ΠΊΠ²Π°ΡΡΠΈΡΡ ΡΠ°ΡΡΠΎ ΠΏΡΠ΅ΡΠ»Π΅Π΄ΡΠ΅Ρ ΡΠ΅Π»Ρ Π²ΠΈΠ·ΡΠ°Π»ΡΠ½ΠΎ ΡΠ²Π΅Π»ΠΈΡΠΈΡΡ ΠΏΠ»ΠΎΡΠ°Π΄Ρ ΠΈ ΠΎΡΠ³Π°Π½ΠΈΠ·ΠΎΠ²Π°ΡΡ ΡΠ°Π·Π»ΠΈΡΠ½ΡΠ΅ Π·ΠΎΠ½Ρ β ΠΎΠ±ΡΠ΅ΡΡΠ²Π΅Π½Π½ΡΡ, ΡΠ°Π±ΠΎΡΡΡ, ΠΎΡΠ΄ΡΡ
Π°.
ΠΠΈΠ·Π°ΠΉΠ½Π΅ΡΡΒ ΠΠΈΠΊΠΎΠ»Π°Ρ Π’Π²Π΅ΡΠ΄ΠΎΠ²Ρ ΡΡΠΎ ΡΠ΄Π°Π»ΠΎΡΡ: ΠΏΡΠ΅Π΄Π»ΠΎΠΆΠ΅Π½Π½ΡΠ΅ ΠΈΠΌΒ 3 Π²Π°ΡΠΈΠ°Π½ΡΠ° ΠΏΠ»Π°Π½ΠΈΡΠΎΠ²ΠΊΠΈ ΠΎΠ΄Π½ΡΡΠΊΠΈ ΠΏΠ»ΠΎΡΠ°Π΄ΡΡ 40 ΠΊΠ²Π°Π΄ΡΠ°ΡΠ½ΡΡ
ΠΌΠ΅ΡΡΠΎΠ² Π² Π΄ΠΎΠΌΠ΅ ΡΠ΅ΡΠΈΠΈ Π-155 Π±ΡΠ΄ΡΡ Π°ΠΊΡΡΠ°Π»ΡΠ½Ρ Π΄Π»Ρ ΡΠ΅ΠΌΡΠΈ Ρ ΡΠ΅Π±Π΅Π½ΠΊΠΎΠΌ, ΠΌΠΎΠ»ΠΎΠ΄ΠΎΠΉ ΠΏΠ°ΡΡ ΠΈ Ρ
ΠΎΠ»ΠΎΡΡΡΠΊΠ°.
Π‘Π΅ΡΠΈΡ Π΄ΠΎΠΌΠΎΠ² ΡΠΈΠΏΠ° Π-155 Π±ΡΠ»Π° ΡΠ°Π·ΡΠ°Π±ΠΎΡΠ°Π½Π° Π² 2000 Π³ΠΎΠ΄Ρ. ΠΠ»Π°Π²Π½Π°Ρ ΠΎΡΠΎΠ±Π΅Π½Π½ΠΎΡΡΡ Π·Π΄Π°Π½ΠΈΠΉ ΡΠΎΡΡΠΎΠΈΡ Π² ΡΠΎΠΌ, ΡΡΠΎ ΠΏΡΠΈ ΠΎΠ΄Π½ΠΎΠΉ ΠΈ ΡΠΎΠΉ ΠΆΠ΅ ΠΊΠΎΠ½ΡΡΡΡΠΊΡΠΈΠ²Π½ΠΎΠΉ ΡΡ Π΅ΠΌΠ΅ ΠΌΠΎΠΆΠ½ΠΎ ΡΠΎΠ±ΠΈΡΠ°ΡΡ Π΄ΠΎΠΌΠ° ΡΠ°Π·Π½ΡΡ ΠΊΠΎΠ½ΡΠΈΠ³ΡΡΠ°ΡΠΈΠΉ, ΡΠ°Π·Π½ΠΎΠΉ ΡΡΠ°ΠΆΠ½ΠΎΡΡΠΈ ΠΈ Ρ ΡΠ°Π·Π½ΡΠΌΠΈ ΡΠΈΠΏΠ°ΠΌΠΈ ΠΊΠ²Π°ΡΡΠΈΡ. ΠΠΎΠΌΠ° ΠΌΠΎΠ³ΡΡ Π±ΡΡΡ ΠΊΠ°ΠΊ Π±Π°ΡΠ΅Π½Π½ΠΎΠ³ΠΎ ΡΠΈΠΏΠ°, ΡΠ°ΠΊ ΠΈ ΠΌΠ½ΠΎΠ³ΠΎΡΠ΅ΠΊΡΠΈΠΎΠ½Π½ΡΠ΅.
33 ΠΊΠ²Π°Π΄ΡΠ°ΡΠ½ΡΡ ΠΌΠ΅ΡΡΠ° Π² ΠΏΠ°Π½Π΅Π»ΡΠ½ΠΎΠΌ Π΄ΠΎΠΌΠ΅ ΡΠ΅ΡΠΈΠΈ I-507
Π‘ΠΎΠ·Π΄Π°ΡΡ ΠΊΠΎΠΌΡΠΎΡΡΠ½ΠΎΠ΅ ΠΏΡΠΎΡΡΡΠ°Π½ΡΡΠ²ΠΎ Π΄Π»Ρ ΠΆΠΈΠ·Π½ΠΈ Π² ΠΎΠ΄Π½ΡΡΠΊΠ΅ β Π·Π°Π΄Π°ΡΠ°, ΡΡΠ΅Π±ΡΡΡΠ°Ρ ΠΎΡ ΠΏΡΠΎΡΠ΅ΡΡΠΈΠΎΠ½Π°Π»Π° ΠΎΠΏΡΡΠ° ΠΈ ΡΠΌΠ΅Π½ΠΈΡ ΡΠΊΡΠΏΠ΅ΡΠΈΠΌΠ΅Π½ΡΠΈΡΠΎΠ²Π°ΡΡ. ΠΡΠΎΠ±Π΅Π½Π½ΠΎ Π΅ΡΠ»ΠΈ Π² ΠΊΠ²Π°ΡΡΠΈΡΠ΅ ΠΏΡΠΎΠΆΠΈΠ²Π°Π΅Ρ ΡΠ΅ΠΌΡΡ: Π²Π΅Π΄Ρ Π½ΡΠΆΠ½ΠΎ Π½Π΅ ΡΠΎΠ»ΡΠΊΠΎ ΠΏΡΠ΅Π΄ΡΡΠΌΠΎΡΡΠ΅ΡΡ ΠΎΡΠ΄Π΅Π»ΡΠ½ΡΠ΅ ΡΠΏΠ°Π»ΡΠ½ΠΈ Π΄Π»Ρ ΡΠΎΠ΄ΠΈΡΠ΅Π»Π΅ΠΉ ΠΈ ΡΠ΅Π±Π΅Π½ΠΊΠ°, Π½ΠΎ ΠΈ ΠΏΠΎ Π²ΠΎΠ·ΠΌΠΎΠΆΠ½ΠΎΡΡΠΈ ΡΠΏΠ»Π°Π½ΠΈΡΠΎΠ²Π°ΡΡ Π³ΠΎΡΡΠΈΠ½ΡΡ Π·ΠΎΠ½Ρ ΠΈ ΡΡΠ°ΡΠ΅Π»ΡΠ½ΠΎ ΠΏΡΠΎΠ΄ΡΠΌΠ°ΡΡ ΡΠΈΡΡΠ΅ΠΌΡ Ρ
ΡΠ°Π½Π΅Π½ΠΈΡ, Π½Π΅ Π·Π°Π³ΡΠΎΠΌΠΎΠΆΠ΄Π°ΡΡΠΈΠ΅ ΠΈΠ½ΡΠ΅ΡΡΠ΅Ρ. ΠΠΈΠ·Π°ΠΉΠ½Π΅Ρ ΠΡΠ΅Π½ΠΈΡ Π§ΡΠΏΠΈΠ½Π° ΠΏΡΠ΅Π΄Π»ΠΎΠΆΠΈΠ»Π° 3 ΠΈΠ½ΡΠ΅ΡΠ΅ΡΠ½ΡΡ
Π²Π°ΡΠΈΠ°Π½ΡΠ° ΠΏΠ΅ΡΠ΅ΠΏΠ»Π°Π½ΠΈΡΠΎΠ²ΠΊΠΈ ΠΎΠ΄Π½ΠΎΠΊΠΎΠΌΠ½Π°ΡΠ½ΠΎΠΉ ΠΊΠ²Π°ΡΡΠΈΡΡ: Π΄Π»Ρ Ρ
ΠΎΠ»ΠΎΡΡΡΠΊΠ°, ΠΌΠΎΠ»ΠΎΠ΄ΠΎΠΉ ΠΏΠ°ΡΡ ΠΈ ΡΠ΅ΠΌΡΠΈ Ρ ΡΠ΅Π±Π΅Π½ΠΊΠΎΠΌ.
30 ΠΊΠ²Π°Π΄ΡΠ°ΡΠΎΠ² Π² Π±Π»ΠΎΡΠ½ΠΎΠΌ Π΄ΠΎΠΌΠ΅ ΡΠ΅ΡΠΈΠΈ II-68
Π‘Π΅ΡΠΈΡ Π±Π»ΠΎΡΠ½ΡΡ Π΄ΠΎΠΌΠΎΠ² II-68 ΡΡΠ°Π»Π° ΠΎΡΠ½ΠΎΠ²ΠΎΠΉ Π΄Π»Ρ ΡΠΎΠ·Π΄Π°Π½ΠΈΡ ΡΠ΅Π»ΠΎΠ³ΠΎ ΡΡΠ΄Π° ΡΠΈΠΏΠΎΠ²ΡΡ Π·Π΄Π°Π½ΠΈΠΉ: II-68-02, II-68-03. ΠΠ»Π°Π²Π½ΠΎΠ΅ Π΄ΠΎΡΡΠΎΠΈΠ½ΡΡΠ²ΠΎ ΡΡΠΎΠΉ ΡΠ΅ΡΠΈΠΈ Π΄ΠΎΠΌΠΎΠ² β ΠΎΠ±ΡΠΈΡΠ½ΡΠ΅ Π»ΠΎΠ΄ΠΆΠΈΠΈ, ΠΊΠΎΡΠΎΡΡΠ΅ ΠΏΡΠΈ ΠΏΡΠ°Π²ΠΈΠ»ΡΠ½ΠΎΠΌ ΡΡΠ΅ΠΏΠ»Π΅Π½ΠΈΠΈ ΠΌΠΎΠ³ΡΡ Π·Π½Π°ΡΠΈΡΠ΅Π»ΡΠ½ΠΎ ΡΠ²Π΅Π»ΠΈΡΠΈΡΡ ΠΆΠΈΠ»ΡΡ ΠΏΠ»ΠΎΡΠ°Π΄Ρ. Π Π½Π΅ΠΊΠΎΡΠΎΡΡΡ Π΄ΠΎΠΌΠ°Ρ ΠΎΠ΄Π½ΠΎΠΊΠΎΠΌΠ½Π°ΡΠ½ΡΠ΅ ΠΊΠ²Π°ΡΡΠΈΡΡ ΠΈΠΌΠ΅ΡΡ ΠΏΡΠΎΠ΅ΠΌΡ ΠΌΠ΅ΠΆΠ΄Ρ ΠΊΡΡ Π½Π΅ΠΉ ΠΈ ΠΊΠΎΠΌΠ½Π°ΡΠΎΠΉ, ΡΡΠΎ Π·Π½Π°ΡΠΈΡΠ΅Π»ΡΠ½ΠΎ ΡΠΏΡΠΎΡΠ°Π΅Ρ ΠΏΠ΅ΡΠ΅ΠΏΠ»Π°Π½ΠΈΡΠΎΠ²ΠΊΡ ΠΈ ΠΎΡΠΎΠ±Π΅Π½Π½ΠΎ Π°ΠΊΡΡΠ°Π»ΡΠ½ΠΎ ΠΏΡΠΈ ΠΏΠ»ΠΎΡΠ°Π΄ΠΈ ΠΎΠΊΠΎΠ»ΠΎ 30 ΠΊΠ²Π°Π΄ΡΠ°ΡΠ½ΡΡ ΠΌΠ΅ΡΡΠΎΠ². Π£Π΄Π°ΡΠ½ΠΎΠΉ ΠΈΠ½Π½ΠΎΠ²Π°ΡΠΈΠ΅ΠΉ Π΄Π»Ρ Π·Π°ΡΡΡΠΎΠΉΠΊΠΈ ΡΠ΅Ρ Π²ΡΠ΅ΠΌΠ΅Π½ ΡΡΠ°Π»Π° ΠΈ Π³Π°ΡΠ΄Π΅ΡΠΎΠ±Π½Π°Ρ β ΡΠΎΠ³Π΄Π° Π΅Π΅ Π½Π°Π·ΡΠ²Π°Π»ΠΈ ΠΊΠ»Π°Π΄ΠΎΠ²ΠΎΠΉ.
ΠΠΈΠ·Π°ΠΉΠ½Π΅Ρ ΠΠ°ΠΊΡΠΈΠΌ ΠΠ°Π½ΠΈΠ½ ΡΠ°ΡΡΠΌΠΎΡΡΠ΅Π» 3 Π²Π°ΡΠΈΠ°Π½ΡΠ° ΠΏΠ΅ΡΠ΅ΠΏΠ»Π°Π½ΠΈΡΠΎΠ²ΠΊΠΈΒ ΡΠ°ΠΊΠΎΠΉ ΠΊΠ²Π°ΡΡΠΈΡΡ Π΄Π»Ρ ΡΠ°Π·Π½ΡΡ ΡΠΈΠΏΠΎΠ² ΠΆΠΈΠ»ΡΡΠΎΠ² β ΡΠ΅ΠΌΡΠΈ Ρ ΡΠ΅Π±Π΅Π½ΠΊΠΎΠΌ, ΠΌΠΎΠ»ΠΎΠ΄ΠΎΠΉ ΠΏΠ°ΡΡ ΠΈ Ρ ΠΎΠ»ΠΎΡΡΡΠΊΠ°, ΡΠΎΠ·Π΄Π°Π² Π΄Π»Ρ ΠΏΠΎΡΠ»Π΅Π΄Π½Π΅Π³ΠΎ Π³ΡΠ°ΠΌΠΎΡΠ½ΠΎ Π·ΠΎΠ½ΠΈΡΠΎΠ²Π°Π½Π½ΠΎΠ΅ ΠΎΡΠΊΡΡΡΠΎΠ΅ ΠΏΡΠΎΡΡΡΠ°Π½ΡΡΠ²ΠΎ.
ΠΠ΄Π½ΡΡΠΊΠ° Π² Π±Π»ΠΎΡΠ½ΠΎΠΌ Π΄ΠΎΠΌΠ΅ Π-209Π
Π-209Π β Π±Π»ΠΎΡΠ½ΡΠ΅ 14-ΡΡΠ°ΠΆΠ½ΡΠ΅ Π΄ΠΎΠΌΠ° Π±Π°ΡΠ΅Π½Π½ΠΎΠ³ΠΎ ΡΠΈΠΏΠ°, ΠΊΠΎΡΠΎΡΡΠ΅ ΡΠ°Π·Π²ΠΈΠ²Π°ΡΡ ΠΈΠ΄Π΅ΠΈ ΡΠ΅ΡΠΈΠΈ II-18. Π ΠΎΡΠ½ΠΎΠ²Π½ΠΎΠΌ ΡΡΠΈ Π΄ΠΎΠΌΠ° ΡΡΡΠΎΠΈΠ»ΠΈΡΡ Π² 1970β1980 Π³ΠΎΠ΄Π°Ρ
. ΠΠ΄Π½ΠΎΠΊΠΎΠΌΠ½Π°ΡΠ½ΡΠ΅ ΠΊΠ²Π°ΡΡΠΈΡΡ Π² Π΄ΠΎΠΌΠ΅ ΡΡΠΎΠΉ ΡΠ΅ΡΠΈΠΈ ΠΈΠΌΠ΅ΡΡ ΡΠΈΡΠΎΠΊΠΈΠ΅ Π²ΠΎΠ·ΠΌΠΎΠΆΠ½ΠΎΡΡΠΈ ΠΏΠ΅ΡΠ΅ΠΏΠ»Π°Π½ΠΈΡΠΎΠ²ΠΊΠΈ Π² ΡΠ²ΡΠ·ΠΈ Ρ ΡΠ΅ΠΌ, ΡΡΠΎ Π½Π΅ΡΡΡΠΈΠΌΠΈ ΡΠ²Π»ΡΡΡΡΡ Π²Π½Π΅ΡΠ½ΠΈΠ΅ ΡΡΠ΅Π½Ρ ΠΊΠ²Π°ΡΡΠΈΡΡ (ΠΈ ΡΡΠ΅Π½Π° ΠΌΠ΅ΠΆΠ΄Ρ ΠΊΠΎΠΌΠ½Π°ΡΠΎΠΉ/ΠΊΡΡ
Π½Π΅ΠΉ ΠΈ Π±Π°Π»ΠΊΠΎΠ½ΠΎΠΌ).
ΠΡΡΠ°Π»ΡΠ½ΡΠ΅ ΠΏΠ΅ΡΠ΅Π³ΠΎΡΠΎΠ΄ΠΊΠΈ ΠΌΠΎΠΆΠ½ΠΎ Π΄Π΅ΠΌΠΎΠ½ΡΠΈΡΠΎΠ²Π°ΡΡ ΠΈ ΠΏΠ΅ΡΠ΅Π½ΠΎΡΠΈΡΡ. ΠΠΈΠ·Π°ΠΉΠ½Π΅Ρ ΠΠ»ΡΠ³Π° ΠΠΎΠ½Π΄Π°ΡΡ ΠΏΡΠ΅Π΄Π»ΠΎΠΆΠΈΠ»Π°Β ΡΡΠΈ Π²Π°ΡΠΈΠ°Π½ΡΠ° ΠΏΠ»Π°Π½ΠΈΡΠΎΠ²ΠΊΠΈΒ ΠΎΠ΄Π½ΡΡΠΊΠΈ ΠΎΠ±ΡΠ΅ΠΉ ΠΏΠ»ΠΎΡΠ°Π΄ΡΡ 34,8 ΠΊΠ²Π°Π΄ΡΠ°ΡΠ½ΠΎΠ³ΠΎ ΠΌΠ΅ΡΡΠΎΠ² (ΠΆΠΈΠ»ΠΎΠΉ β 19,44 ΠΊΠ²Π°Π΄ΡΠ°ΡΠ½ΠΎΠ³ΠΎ ΠΌΠ΅ΡΡΠ°). ΠΠ΅ Π·Π°Π±ΡΠ²Π°ΠΉΡΠ΅: Π»ΡΠ±ΡΡ ΠΈΠ· ΠΏΡΠ΅Π΄ΡΡΠ°Π²Π»Π΅Π½Π½ΡΡ
ΠΏΠΎ ΡΡΡΠ»ΠΊΠ΅ ΠΏΠ΅ΡΠ΅ΠΏΠ»Π°Π½ΠΈΡΠΎΠ²ΠΎΠΊ Π½Π΅ΠΎΠ±Ρ
ΠΎΠ΄ΠΈΠΌΠΎ ΡΠ·Π°ΠΊΠΎΠ½ΠΈΡΡ.
ΠΠ΄Π½ΠΎΠΊΠΎΠΌΠ½Π°ΡΠ½Π°Ρ ΠΊΠ²Π°ΡΡΠΈΡΠ° Π² Π½ΠΎΠ²ΠΎΡΡΡΠΎΠΉΠΊΠ΅
ΠΠΎΠΌΠ½Π°ΡΠ° ΠΎΠ΄Π½Π° β Π²ΠΎΠ·ΠΌΠΎΠΆΠ½ΠΎΡΡΠ΅ΠΉ ΠΌΠ½ΠΎΠ³ΠΎ. ΠΡΠΎ ΡΡΠ²Π΅ΡΠΆΠ΄Π΅Π½ΠΈΠ΅ ΡΠΏΡΠ°Π²Π΅Π΄Π»ΠΈΠ²ΠΎ Π΄Π»Ρ ΡΠΎΠ²ΡΠ΅ΠΌΠ΅Π½Π½ΡΡ ΠΎΠ΄Π½ΡΡΠ΅ΠΊ Π² Π½ΠΎΠ²ΠΎΡΡΡΠΎΠΉΠΊΠ°Ρ . Π‘ΡΠ΅Π΄ΠΈ ΡΠ²Π½ΡΡ ΠΏΡΠ΅ΠΈΠΌΡΡΠ΅ΡΡΠ² β ΡΠ²Π΅Π»ΠΈΡΠ΅Π½Π½Π°Ρ ΠΏΠ»ΠΎΡΠ°Π΄Ρ. ΠΠ΄Π½ΠΎΠΊΠΎΠΌΠ½Π°ΡΠ½Π°Ρ ΠΊΠ²Π°ΡΡΠΈΡΠ° ΠΏΠ»ΠΎΡΠ°Π΄ΡΡ 52 ΠΊΠ²Π°Π΄ΡΠ°ΡΠ½ΡΡ ΠΌΠ΅ΡΡΠ° Π² Π-111Π ΡΡΠ°Π²Π½ΠΈΠΌΠ° Ρ Π΄Π²ΡΡΠΊΠΎΠΉ, ΠΏΠΎΡΡΡΠΎΠ΅Π½Π½ΠΎΠΉ Π³ΠΎΠ΄Π°ΠΌΠΈ ΡΠ°Π½ΡΡΠ΅.
ΠΡΡΡ Π² ΡΡΠΎΠΉ ΠΊΠ²Π°ΡΡΠΈΡΠ΅ ΠΈ Π³Π°ΡΠ΄Π΅ΡΠΎΠ±Π½Π°Ρ ΠΊΠΎΠΌΠ½Π°ΡΠ°: Π΅Π΅ Π½Π°Π»ΠΈΡΠΈΠ΅ ΠΈ ΡΠ°ΡΠΏΠΎΠ»ΠΎΠΆΠ΅Π½ΠΈΠ΅ ΠΏΡΠΎΠ΄ΡΠΌΡΠ²Π°ΡΡ Π΅ΡΠ΅ Π·Π°ΡΡΡΠΎΠΉΡΠΈΠΊΠΈ, Π° Π±ΡΠ΄ΡΡΠ΅ΠΌΡ Π²Π»Π°Π΄Π΅Π»ΡΡΡ ΠΎΡΡΠ°Π΅ΡΡΡ ΡΠΎΠ»ΡΠΊΠΎ ΡΠ΅ΡΠΈΡΡ: ΠΈΡΠΏΠΎΠ»ΡΠ·ΠΎΠ²Π°ΡΡ Π³Π°ΡΠ΄Π΅ΡΠΎΠ±Π½ΡΡ ΠΏΠΎ Π½Π°Π·Π½Π°ΡΠ΅Π½ΠΈΡ β Ρ ΡΠ°Π½ΠΈΡΡ ΡΠ°ΠΌ ΠΎΠ΄Π΅ΠΆΠ΄Ρ, ΠΈΠ»ΠΈ Π²ΡΠ΅-ΡΠ°ΠΊΠΈ Π·Π°Π΄Π΅ΠΉΡΡΠ²ΠΎΠ²Π°ΡΡ ΡΡΠΈ Π΄ΡΠ°Π³ΠΎΡΠ΅Π½Π½ΡΠ΅ ΠΊΠ²Π°Π΄ΡΠ°ΡΠ½ΡΠ΅ ΠΌΠ΅ΡΡΡ Π΄Π»Ρ Π΄ΡΡΠ³ΠΈΡ ΠΏΠΎΠ»Π΅Π·Π½ΡΡ ΠΏΡΠΎΡΡΡΠ°Π½ΡΡΠ².Β
Π’ΡΠΈ Π²Π°ΡΠΈΠ°Π½ΡΠ° ΠΏΠ΅ΡΠ΅ΠΏΠ»Π°Π½ΠΈΡΠΎΠ²ΠΊΠΈ ΠΎΠ΄Π½ΡΡΠΊΠΈ Π² Π-111Π ΠΏΡΠ΅Π΄Π»ΠΎΠΆΠΈΠ» Π΄ΠΈΠ·Π°ΠΉΠ½Π΅Ρ ΠΠ°ΠΊΡΠΈΠΌ ΠΠ°Π½ΠΈΠ½.
Π£Π³Π»ΠΎΠ²Π°Ρ ΠΎΠ΄Π½ΠΎΠΊΠΎΠΌΠ½Π°ΡΠ½Π°Ρ ΠΊΠ²Π°ΡΡΠΈΡΠ° Π² 1-511
ΠΠΎ ΠΌΠ½Π΅Π½ΠΈΡ ΠΌΠ½ΠΎΠ³ΠΈΡ
ΡΠΏΠ΅ΡΠΈΠ°Π»ΠΈΡΡΠΎΠ², ΡΠ³Π»ΠΎΠ²ΡΠ΅ ΠΎΠ΄Π½ΡΡΠΊΠΈ Π²ΠΎΠ·Π³Π»Π°Π²Π»ΡΡΡ Ρ
ΠΈΡ-ΠΏΠ°ΡΠ°Π΄ Π½Π΅ΠΊΠΎΠΌΡΠΎΡΡΠ½ΡΡ
Π΄Π»Ρ ΠΏΡΠΎΠΆΠΈΠ²Π°Π½ΠΈΡ ΠΊΠ²Π°ΡΡΠΈΡ: 2 ΠΎΠΊΠΎΠ½Π½ΡΡ
ΠΏΡΠΎΠ΅ΠΌΠ° Π² ΠΊΠΎΠΌΠ½Π°ΡΠ΅ Π½Π΅ ΡΠΎΠ»ΡΠΊΠΎ Π½Π΅ ΡΠΏΠΎΡΠΎΠ±ΡΡΠ²ΡΡΡ ΡΠ΅ΠΏΠ»ΠΎΠΈΠ·ΠΎΠ»ΡΡΠΈΠΈ, Π½ΠΎ ΠΈ ΡΠ°ΡΡΠΎ ΡΠΎΠ·Π΄Π°ΡΡ ΠΏΡΠΎΠ±Π»Π΅ΠΌΡ Ρ ΡΠ°ΡΡΡΠ°Π½ΠΎΠ²ΠΊΠΎΠΉ ΠΌΠ΅Π±Π΅Π»ΠΈ.
ΠΠΈΠ·Π°ΠΉΠ½Π΅Ρ ΠΠ»ΡΠ³Π° ΠΠΎΠ½Π΄Π°ΡΡ ΠΏΡΠ΅Π΄Π»ΠΎΠΆΠΈΠ»Π° 3 Π²Π°ΡΠΈΠ°Π½ΡΠ° ΠΏΠ΅ΡΠ΅ΠΏΠ»Π°Π½ΠΈΡΠΎΠ²ΠΊΠΈ ΡΠ³Π»ΠΎΠ²ΠΎΠΉ ΠΎΠ΄Π½ΡΡΠΊΠΈ Π² ΡΠΈΠΏΠΎΠ²ΠΎΠΌ Π΄ΠΎΠΌΠ΅ ΡΠ΅ΡΠΈΠΈ 1β511 ΠΈ ΡΠ°Π·Π²Π΅ΡΠ»Π° ΠΌΠΈΡ ΠΎ Π±Π΅Π·Π²ΡΡ
ΠΎΠ΄Π½ΠΎΠΌ ΠΏΠΎΠ»ΠΎΠΆΠ΅Π½ΠΈΠΈ Π²Π»Π°Π΄Π΅Π»ΡΡΠ΅Π² ΡΠ°ΠΊΠΈΡ
ΠΊΠ²Π°ΡΡΠΈΡ.
ΠΠ΄Π½ΡΡΠΊΠ° Π² ΠΏΠ°Π½Π΅Π»ΡΠ½ΠΎΠΌ Π΄ΠΎΠΌΠ΅ ΡΠ΅ΡΠΈΠΈ Π-43
ΠΠ±ΡΠ°Ρ ΠΏΠ»ΠΎΡΠ°Π΄Ρ ΠΎΠ΄Π½ΠΎΠΊΠΎΠΌΠ½Π°ΡΠ½ΠΎΠΉ ΠΊΠ²Π°ΡΡΠΈΡΡ Π² Π΄ΠΎΠΌΠ΅ ΡΠ΅ΡΠΈΠΈ Π-43 ΡΠΎΡΡΠ°Π²Π»ΡΠ΅Ρ 35β37 ΠΊΠ²Π°Π΄ΡΠ°ΡΠ½ΡΡ ΠΌΠ΅ΡΡΠΎΠ², ΠΆΠΈΠ»Π°Ρ β 18β20 ΠΊΠ²Π°Π΄ΡΠ°ΡΠ½ΡΡ ΠΌΠ΅ΡΡΠΎΠ². Π‘Π°Π½ΡΠ·Π΅Π» Π² ΠΊΠ²Π°ΡΡΠΈΡΠ΅ ΡΠΎΠ²ΠΌΠ΅ΡΠ΅Π½Π½ΡΠΉ, ΡΠΎΠ»ΡΠΈΠ½Π° Π²Π½Π΅ΡΠ½ΠΈΡ ΡΡΠ΅Π½ β 35 ΡΠ°Π½ΡΠΈΠΌΠ΅ΡΡΠΎΠ², Π²Π½ΡΡΡΠ΅Π½Π½ΠΈΡ ΠΆΠ΅Π»Π΅Π·ΠΎΠ±Π΅ΡΠΎΠ½Π½ΡΡ Π½Π΅ΡΡΡΠΈΡ ΠΊΠΎΠ½ΡΡΡΡΠΊΡΠΈΠΉ β 18 ΡΠ°Π½ΡΠΈΠΌΠ΅ΡΡΠΎΠ² ΠΈ ΠΏΠ΅ΡΠ΅Π³ΠΎΡΠΎΠ΄ΠΎΠΊ β 12 ΡΠ°Π½ΡΠΈΠΌΠ΅ΡΡΠΎΠ².
ΠΠΎΠΆΠ°Π»ΡΠΉ, ΡΠ°ΠΌΡΠΉ ΡΡΡΠ΅ΡΡΠ²Π΅Π½Π½ΡΠΉ Π½Π΅Π΄ΠΎΡΡΠ°ΡΠΎΠΊ ΠΏΠ»Π°Π½ΠΈΡΠΎΠ²ΠΊΠΈ ΡΡΠΎΠΉ ΠΊΠ²Π°ΡΡΠΈΡΡ Π·Π°ΠΊΠ»ΡΡΠ°Π΅ΡΡΡ Π² Π½Π΅ΡΡΡΠ΅ΠΉ ΡΡΠ΅Π½Π΅, ΡΠΎΠ΅Π΄ΠΈΠ½ΡΡΡΠ΅ΠΉ ΠΊΡΡ Π½Ρ ΠΈ ΠΆΠΈΠ»ΡΡ ΠΊΠΎΠΌΠ½Π°ΡΡ. Π ΠΎΡΡΠ°Π»ΡΠ½ΠΎΠΌ ΠΏΠ»Π°Π½ΠΈΡΠΎΠ²ΠΊΠ° ΡΠ²ΠΎΠ±ΠΎΠ΄Π½Π°Ρ ΠΈ, ΠΊΠΎΠ½Π΅ΡΠ½ΠΎ, Π±ΠΎΠ»ΡΡΠΎΠΉ ΠΏΠ»ΡΡ β Π½Π°Π»ΠΈΡΠΈΠ΅ Π»ΠΎΠ΄ΠΆΠΈΠΈ. Π§ΡΠΎΠ±Ρ ΡΠ²Π΅Π»ΠΈΡΠΈΡΡ ΠΏΡΠΎΡΡΡΠ°Π½ΡΡΠ²ΠΎ ΡΠ°ΠΊΠΎΠΉ ΠΎΠ΄Π½ΡΡΠΊΠΈ ΠΌΠΎΠΆΠ½ΠΎ ΠΏΡΠΈΡΠΎΠ΅Π΄ΠΈΠ½ΠΈΡΡ Π»ΠΎΠ΄ΠΆΠΈΡ ΠΊ ΠΊΡΡ Π½Π΅, ΡΠ°ΡΡΠΈΡΠΈΡΡ ΠΈΠ»ΠΈ ΠΏΠ΅ΡΠ΅Π½Π΅ΡΡΠΈ ΠΏΡΠΎΠ΅ΠΌ Π² Π½Π΅ΡΡΡΠ΅ΠΉ ΡΡΠ΅Π½Π΅ ΠΈ Π΄Π΅ΠΌΠΎΠ½ΡΠΈΡΠΎΠ²Π°ΡΡ Π²ΡΠ΅ Π½Π΅Π½ΡΠΆΠ½ΡΠ΅ ΠΏΠ΅ΡΠ΅Π³ΠΎΡΠΎΠ΄ΠΊΠΈ. ΠΠ°ΠΊ ΡΡΠΎ ΡΠ΄Π΅Π»Π°ΡΡ, ΠΏΠΎΠΊΠ°Π·Π°Π»Π° Π΄ΠΈΠ·Π°ΠΉΠ½Π΅Ρ ΠΡΠ΅Π½ΠΈΡ Π§ΡΠΏΠΈΠ½Π°.Β
ΠΠ΅ΡΠ΅ΠΏΠ»Π°Π½ΠΈΡΠΎΠ²ΠΊΠ° ΠΎΠ΄Π½ΠΎΠΊΠΎΠΌΠ½Π°ΡΠ½ΠΎΠΉ ΠΊΠ²Π°ΡΡΠΈΡΡ, Π²Π°ΡΠΈΠ°Π½ΡΡ ΠΈ ΡΠΏΠΎΡΠΎΠ±Ρ
ΠΠ΅ΡΠ΅ΠΏΠ»Π°Π½ΠΈΡΠΎΠ²ΠΊΠ° ΠΎΠ΄Π½ΠΎΠΊΠΎΠΌΠ½Π°ΡΠ½ΠΎΠΉ ΠΊΠ²Π°ΡΡΠΈΡΡ Π½Π° ΡΠ΅Π³ΠΎΠ΄Π½Ρ Π½Π΅ ΠΏΡΠΎΡΡΠΎΠΉ Π²ΠΎΠΏΡΠΎΡ.
Π‘ΠΎΠ³Π»Π°ΡΠ½ΠΎ ΡΠ΅ΠΊΡΡΠ΅ΠΌΡ Π·Π°ΠΊΠΎΠ½ΠΎΠ΄Π°ΡΠ΅Π»ΡΡΡΠ²Ρ Π½Π΅ΠΎΠ±Ρ
ΠΎΠ΄ΠΈΠΌΠΎ ΡΠΎΠ±Π»ΡΠ΄Π°ΡΡ ΡΡΠ΄ ΡΡΠ΅Π±ΠΎΠ²Π°Π½ΠΈΠΉ Π‘Π°Π½ΠΠΎΡΠΌ ΠΈ ΠΏΠΎΠ»ΠΎΠΆΠ΅Π½ΠΈΠΉ Π½Π΅ Π΄ΠΎΠΏΡΡΠΊΠ°ΡΡΠΈΡ
ΡΡ
ΡΠ΄ΡΠ΅Π½ΠΈΡ ΡΡΠ»ΠΎΠ²ΠΈΠΉ ΠΏΡΠΎΠΆΠΈΠ²Π°Π½ΠΈΡ, Π° ΠΈΠΌΠ΅Π½Π½ΠΎ:
- ΠΎΠ±ΡΠ΅Π΄ΠΈΠ½ΡΡΡ ΠΊΡΡ Π½Ρ ΠΈ ΠΊΠΎΠΌΠ½Π°ΡΡ Π² ΡΡΡΠ΄ΠΈΡ;
- ΠΏΠ΅ΡΠ΅Π½ΠΎΡΠΈΡΡ ΠΊΡΡ Π½Ρ Π½Π° ΠΆΠΈΠ»ΡΡ ΠΊΠΎΠΌΠ½Π°ΡΡ;
- ΠΏΠ΅ΡΠ΅Π½ΠΎΡΠΈΡΡ ΠΊΠΎΠΌΠ½Π°ΡΡ Π² ΠΊΡΡ Π½Ρ;
- ΡΠ°Π·ΠΌΠ΅ΡΠ°ΡΡ ΠΆΠΈΠ»ΡΡ ΠΊΠΎΠΌΠ½Π°ΡΡ Π½Π° ΠΏΠ»ΠΎΡΠ°Π΄ΠΈ ΡΠ°Π½ΡΠ·Π»ΠΎΠ²;
- ΠΏΠ΅ΡΠ΅Π΄Π²ΠΈΠ³Π°ΡΡ ΠΏΠ΅ΡΠ΅Π³ΠΎΡΠΎΠ΄ΠΊΡ ΠΌΠ΅ΠΆΠ΄Ρ ΠΊΡΡ Π½Π΅ΠΉ ΠΈ ΠΊΠΎΠΌΠ½Π°ΡΠΎΠΉ;
- ΠΎΡΠ³Π°Π½ΠΈΠ·ΠΎΠ²ΡΠ²Π°ΡΡ ΠΆΠΈΠ»ΡΡ ΠΊΠΎΠΌΠ½Π°ΡΡ Π±Π΅Π· Π΅ΡΡΠ΅ΡΡΠ²Π΅Π½Π½ΠΎΠ³ΠΎ ΠΎΡΠ²Π΅ΡΠ΅Π½ΠΈΡ;
- ΡΡΡΡΠ°ΠΈΠ²Π°ΡΡ ΠΆΠΈΠ»ΡΡ ΠΊΠΎΠΌΠ½Π°ΡΡ ΠΌΠ΅Π½ΡΡΠ΅ 9 ΠΊΠ².ΠΌ.;
- ΡΠ²Π΅Π»ΠΈΡΠΈΠ²Π°ΡΡ ΠΊΠΎΠΌΠ½Π°ΡΡ Π·Π° ΡΡΠ΅Ρ Π±Π°Π»ΠΊΠΎΠ½Π° ΠΈΠ»ΠΈ Π»ΠΎΠ΄ΠΆΠΈΠΈ, ΠΏΡΡΠ΅ΠΌ ΠΈΡ ΠΏΡΠΈΡΠΎΠ΅Π΄ΠΈΠ½Π΅Π½ΠΈΡ;
- Π²ΡΠΏΠΎΠ»Π½ΡΡΡ ΡΡΡΡΠΎΠΉΡΡΠ²ΠΎ Π°Π½ΡΡΠ΅ΡΠΎΠ»ΡΠ½ΠΎΠ³ΠΎ ΡΡΠ°ΠΆΠ° Π΄Π»Ρ ΠΎΡΠ³Π°Π½ΠΈΠ·Π°ΡΠΈΠΈ ΡΠΏΠ°Π»ΡΠ½ΠΎΠ³ΠΎ ΠΌΠ΅ΡΡΠ°.
ΠΡΠ΅ΠΈΠΌΡΡΠ΅ΡΡΠ²Π° Π΅ΡΡΡ Ρ ΠΊΠ²Π°ΡΡΠΈΡ ΡΠ°ΡΠΏΠΎΠ»ΠΎΠΆΠ΅Π½Π½ΡΡ Π½Π° ΠΏΠ΅ΡΠ²ΠΎΠΌ ΠΈ ΠΏΠΎΡΠ»Π΅Π΄Π½Π΅ΠΌ ΡΡΠ°ΠΆΠ°Ρ . ΠΠ΅ΡΠ΅ΠΏΠ»Π°Π½ΠΈΡΠΎΠ²ΠΊΠ° Π² Π½ΠΈΡ ΡΠ°ΡΡΠΌΠ°ΡΡΠΈΠ²Π°Π΅ΡΡΡ ΠΈΠ½Π΄ΠΈΠ²ΠΈΠ΄ΡΠ°Π»ΡΠ½ΠΎ Ρ.ΠΊ. ΠΎΡΡΡΡΡΡΠ²ΠΈΠ΅ ΠΊΠ²Π°ΡΡΠΈΡ Π²ΡΡΠ΅ΡΠ°ΡΠΏΠΎΠ»ΠΎΠΆΠ΅Π½Π½ΠΎΠΉ ΠΈ Π½ΠΈΠΆΠ΅ΡΠ°ΡΠΏΠΎΠ»ΠΎΠΆΠ΅Π½Π½ΠΎΠΉ ΠΌΠ½ΠΎΠ³ΠΎΠ΅ ΠΏΠΎΠ·Π²ΠΎΠ»ΡΠ΅Ρ ΡΠ΄Π΅Π»Π°ΡΡ.
ΠΡΡΠ΅ ΠΏΠ΅ΡΠ΅ΡΠΈΡΠ»Π΅Π½Π½ΡΠ΅ ΡΡΠ»ΠΎΠ²ΠΈΡ ΠΎΠΏΡΠ΅Π΄Π΅Π»Π΅Π½Ρ ΡΠ΅ΠΌ, ΡΡΠΎ Π² ΡΠ΅Π·ΡΠ»ΡΡΠ°ΡΠ΅ ΠΏΠ΅ΡΠ΅ΠΏΠ»Π°Π½ΠΈΡΠΎΠ²ΠΊΠΈ ΠΎΠ΄Π½ΠΎΠΊΠΎΠΌΠ½Π°ΡΠ½ΠΎΠΉ ΠΊΠ²Π°ΡΡΠΈΡΡ ΠΆΠΈΠ»Π°Ρ ΠΊΠΎΠΌΠ½Π°ΡΠ° Π΄ΠΎΠ»ΠΆΠ½Π° ΠΎΡΡΠ°Π²Π°ΡΡΡΡ Π±ΠΎΠ»ΡΡΠ΅ 9 ΠΊΠ².
ΠΌ., ΠΈΠΌΠ΅ΡΡ Π΅ΡΡΠ΅ΡΡΠ²Π΅Π½Π½ΠΎΠ΅ ΠΎΡΠ²Π΅ΡΠ΅Π½ΠΈΠ΅ (ΠΎΠΊΠ½ΠΎ) ΠΈ Π±ΡΡΡ ΠΈΠ·ΠΎΠ»ΠΈΡΠΎΠ²Π°Π½Π½ΠΎΠΉ ΠΎΡ ΠΊΡΡ
Π½ΠΈ. ΠΡΠ»ΠΈ ΠΎΠ±ΡΠ΅Π΄ΠΈΠ½ΡΠ΅ΡΡΡ ΠΊΡΡ
Π½Ρ Ρ ΠΊΠΎΠΌΠ½Π°ΡΠΎΠΉ, ΡΠΎΠ³Π΄Π° Π΄Π°Π½Π½ΠΎΠ΅ ΠΏΠΎΠΌΠ΅ΡΠ΅Π½ΠΈΠ΅ ΠΎΠ±ΡΠ°Π·ΡΠ΅Ρ ΠΊΡΡ
Π½Ρ-Π³ΠΎΡΡΠΈΠ½ΡΡ, Π° Π³ΠΎΡΡΠΈΠ½Π°Ρ ΡΠ²Π»ΡΠ΅ΡΡΡ Π½Π΅ΠΆΠΈΠ»ΡΠΌ ΠΏΠΎΠΌΠ΅ΡΠ΅Π½ΠΈΠ΅ΠΌ ΠΈ Π΄Π°Π½Π½Π°Ρ ΠΏΠ΅ΡΠ΅ΠΏΠ»Π°Π½ΠΈΡΠΎΠ²ΠΊΠ° ΠΏΡΠ΅Π²ΡΠ°ΡΠ°Π΅Ρ ΠΊΠ²Π°ΡΡΠΈΡΡ Π² Π½Π΅ΠΆΠΈΠ»ΠΎΠ΅ ΠΏΠΎΠΌΠ΅ΡΠ΅Π½ΠΈΠ΅ ΠΈ Π±ΡΠ΄Π΅Ρ ΠΏΡΠΈΠ·Π½Π°Π½Π° ΠΊ Π½Π΅ΠΏΡΠΈΠ³ΠΎΠ΄Π½ΠΎΡΡΠΈ Π΄Π»Ρ ΠΏΡΠΎΠΆΠΈΠ²Π°Π½ΠΈΡ Π² Π½Π΅ΠΉ. ΠΠ΅ΡΠ΅Π½ΠΎΡΠΈΡΡ ΠΊΠΎΠΌΠ½Π°ΡΡ Π² ΠΊΡΡ
Π½Ρ, Π΄Π»Ρ ΠΎΡΠ³Π°Π½ΠΈΠ·Π°ΡΠΈΠΈ Π² ΠΆΠΈΠ»ΠΎΠΉ ΠΊΠΎΠΌΠ½Π°ΡΠ΅ ΠΊΡΡ
Π½Ρ-Π³ΠΎΡΡΠΈΠ½ΡΡ Π½Π΅Π»ΡΠ·Ρ, Π½Π°ΡΡΡΠ°ΡΡΡΡ ΡΠ°Π½ΠΈΡΠ°ΡΠ½ΡΠ΅ Π½ΠΎΡΠΌΡ, Π΄Π°Π½Π½Π°Ρ ΠΏΠ΅ΡΠ΅ΠΏΠ»Π°Π½ΠΈΡΠΎΠ²ΠΊΠ° Π½Π΅ Π±ΡΠ΄Π΅Ρ ΡΠΎΠ³Π»Π°ΡΠΎΠ²Π°Π½Π°. ΠΡΠ΄Π΅Π»ΡΡΡ ΠΈΠ· Π²ΡΠ΅ΠΉ ΠΊΠ²Π°ΡΡΠΈΡΡ ΡΠ°ΡΡΡ ΠΏΠ»ΠΎΡΠ°Π΄ΠΈ ΠΏΠΎΠ΄ ΠΆΠΈΠ»ΡΡ ΠΊΠΎΠΌΠ½Π°ΡΡ Π½Π΅ ΠΈΠΌΠ΅ΡΡΠ΅ΠΉ Π΅ΡΡΠ΅ΡΡΠ²Π΅Π½Π½ΠΎΠ³ΠΎ ΠΎΡΠ²Π΅ΡΠ΅Π½ΠΈΡ ΡΠ°ΠΊΠΆΠ΅ Π½Π΅Π»ΡΠ·Ρ, ΠΆΠΈΠ»Π°Ρ ΠΊΠΎΠΌΠ½Π°ΡΠ° Π΄ΠΎΠ»ΠΆΠ½Π° ΠΈΠΌΠ΅ΡΡ ΠΎΠΊΠ½ΠΎ. Π§Π°ΡΡΠΎ ΠΏΡΠ΅Π΄Π»Π°Π³Π°Π΅ΡΡΡ ΡΠ΅ΠΌΠ½ΡΡ ΠΊΠΎΠΌΠ½Π°ΡΡ Π²ΡΠΏΠΎΠ»Π½ΠΈΡΡ Ρ ΡΡΡΠ°Π½ΠΎΠ²ΠΊΠΎΠΉ Π² ΠΏΠ΅ΡΠ΅Π³ΠΎΡΠΎΠ΄ΠΊΠ΅ ΡΡΠ΅ΠΊΠ»ΡΠ½Π½ΡΡ
ΡΡΠ°ΠΌΡΠ³, ΡΡΠΎ Π½Π΅ ΡΠ΅ΡΠ°Π΅Ρ ΠΏΡΠΎΠ±Π»Π΅ΠΌΡ ΠΎΡΠ²Π΅ΡΠ΅Π½Π½ΠΎΡΡΠΈ, Ρ.ΠΊ. ΡΠ²Π΅ΡΠ° Π½Π΅ Π΄ΠΎΡΡΠ°ΡΠΎΡΠ½ΠΎ.
ΠΡΡΠ³ΠΎΠ΅ Π΄Π΅Π»ΠΎ, Π΅ΡΠ»ΠΈ ΠΆΠΈΠ»Π°Ρ ΠΊΠΎΠΌΠ½Π°ΡΠ° ΠΈΠΌΠ΅Π΅Ρ Π΄Π²Π° ΠΎΠΊΠ½Π°, ΠΏΠ»ΠΎΡΠ°Π΄Ρ ΠΏΡΠΈΠΌΠ΅ΡΠ½ΠΎ Π½Π΅ ΠΌΠ΅Π½Π΅Π΅ 20ΠΊΠ².ΠΌ, Π² ΡΡΠΎΠΌ ΡΠ»ΡΡΠ°Π΅ Π²ΠΎΠ·ΠΌΠΎΠΆΠ½ΠΎ ΠΎΡΠ³Π°Π½ΠΈΠ·ΠΎΠ²Π°ΡΡ Π΄Π²Π΅ ΠΆΠΈΠ»ΡΠ΅ ΠΊΠΎΠΌΠ½Π°ΡΡ ΠΈΠ»ΠΈ ΡΠΎΠ·Π΄Π°ΡΡ ΠΊΡΡ
Π½Ρ-Π³ΠΎΡΡΠΈΠ½ΡΡ(ΡΠΎΠ»ΡΠΊΠΎ ΠΏΡΠΈ Π½Π°Π»ΠΈΡΠΈΠΈ ΡΠ»Π΅ΠΊΡΡΠΎΠΏΠ»ΠΈΡΡ) ΠΈ ΠΆΠΈΠ»ΡΡ ΠΊΠΎΠΌΠ½Π°ΡΡ. ΠΡΠ΅ ΠΏΠΎΠΌΠ΅ΡΠ΅Π½ΠΈΡ Π±ΡΠ΄ΡΡ ΠΈΠΌΠ΅ΡΡ Π΅ΡΡΠ΅ΡΡΠ²Π΅Π½Π½ΠΎΠ΅ ΠΎΡΠ²Π΅ΡΠ΅Π½ΠΈΠ΅ ΠΈ Π½Π΅ Π½Π°ΡΡΡΠΈΡ Π΄Π΅ΠΉΡΡΠ²ΡΡΡΠΈΡ
Π½ΠΎΡΠΌ.
ΠΡΠ»ΠΈ ΡΡΠ°Π²ΠΈΡΡΡ ΡΠ΅Π»Ρ Π²ΡΠΏΠΎΠ»Π½ΠΈΡΡ ΠΏΠ΅ΡΠ΅ΠΏΠ»Π°Π½ΠΈΡΠΎΠ²ΠΊΡ Π΄Π»Ρ ΠΎΡΠ³Π°Π½ΠΈΠ·Π°ΡΠΈΠΈ ΡΡΡΠ΄ΠΈΠΈ, Π΅ΡΡΡ Π²Π°ΡΠΈΠ°Π½Ρ, ΠΏΡΠΈ ΠΊΠΎΡΠΎΡΠΎΠΌ ΠΎΠ½Π° Π±ΡΠ΄Π΅Ρ ΠΏΡΠΈΠ±Π»ΠΈΠΆΠ΅Π½Π° ΠΊ ΠΆΠ΅Π»Π°Π΅ΠΌΠΎΠΌΡ ΡΠ΅Π·ΡΠ»ΡΡΠ°ΡΡ, ΡΡΠΎ Π΄Π΅ΠΌΠΎΠ½ΡΠ°ΠΆ ΠΌΠ΅ΠΆΠ΄Ρ ΠΊΡΡ Π½Π΅ΠΉ ΠΈ ΠΊΠΎΠΌΠ½Π°ΡΠΎΠΉ Π½Π΅Π½Π΅ΡΡΡΠ΅ΠΉ ΠΏΠ΅ΡΠ΅Π³ΠΎΡΠΎΠ΄ΠΊΠΈ ΠΈ ΡΡΡΡΠΎΠΉΡΡΠ²ΠΎ Π²Π·Π°ΠΌΠ΅Π½ Π΅Π΅ ΡΠ°Π·Π΄Π²ΠΈΠΆΠ½ΡΡ Π΄Π²Π΅ΡΠ΅ΠΉ Π»ΡΠ±ΠΎΠΉ ΡΠΈΡΠΈΠ½Ρ. Π’Π΅ΠΌ ΡΠ°ΠΌΡΠΌ ΠΊΡΡ Π½Ρ ΠΈ ΠΊΠΎΠΌΠ½Π°ΡΠ° Π±ΡΠ΄ΡΡ ΠΈΠ·ΠΎΠ»ΠΈΡΠΎΠ²Π°Π½Ρ Π΄ΡΡΠ³ ΠΎΡ Π΄ΡΡΠ³Π°. Π₯ΠΎΡΠΎΡΠΈΠΌ Π²Π°ΡΠΈΠ°Π½ΡΠΎΠΌ ΠΌΠΎΠΆΠ΅Ρ Π±ΡΡΡ ΡΡΡΠ°Π½ΠΎΠ²ΠΊΠ° Π΄Π²Π΅ΡΠΈ-ΠΏΠ΅Π½Π°Π». ΠΡΠ° ΠΊΠΎΠ½ΡΡΡΡΠΊΡΠΈΡ ΠΏΠΎΠ·Π²ΠΎΠ»ΡΠ΅Ρ ΠΏΡΡΡΠ°ΡΡ ΡΠ°Π·Π΄Π²ΠΈΠΆΠ½ΡΠ΅ Π΄Π²Π΅ΡΠΈ Π² ΠΏΠ΅ΡΠ΅Π³ΠΎΡΠΎΠ΄ΠΊΡ, ΡΠΎΠ·Π΄Π°Π²Π°Ρ Π΅Π΄ΠΈΠ½ΠΎΠ΅ ΠΏΡΠΎΡΡΡΠ°Π½ΡΡΠ²ΠΎ ΠΊΡΡ Π½ΠΈ ΠΈ ΠΊΠΎΠΌΠ½Π°ΡΡ.
ΠΡΠ΅ ΠΏΠ΅ΡΠ΅ΡΠΈΡΠ»Π΅Π½Π½ΠΎΠ΅ Π½Π΅ΠΎΠ±Ρ ΠΎΠ΄ΠΈΠΌΠΎ ΡΡΠΈΡΡΠ²Π°ΡΡ, Π° ΡΠ°ΠΌΠΎΠ²ΠΎΠ»ΡΠ½ΠΎ Π²ΡΠΏΠΎΠ»Π½Π΅Π½Π½Π°Ρ ΠΏΠ΅ΡΠ΅ΠΏΠ»Π°Π½ΠΈΡΠΎΠ²ΠΊΠ°, Ρ Π½Π°ΡΡΡΠ΅Π½ΠΈΡΠΌΠΈ, ΠΌΠΎΠΆΠ΅Ρ ΠΏΡΠΈΠ²Π΅ΡΡΠΈ ΠΊ ΠΏΠΎΠ»ΡΡΠ΅Π½ΠΈΡ ΠΏΡΠ΅Π΄ΠΏΠΈΡΠ°Π½ΠΈΡ ΠΎΡ Π½Π°Π΄Π·ΠΎΡΠ½ΡΡ ΠΎΡΠ³Π°Π½ΠΎΠ² Π²Π΅ΡΠ½ΡΡΡ Π²ΡΠ΅ Π² ΠΈΡΡ ΠΎΠ΄Π½ΠΎΠ΅ ΡΠΎΡΡΠΎΡΠ½ΠΈΠ΅, ΡΠΎΠ³Π»Π°ΡΠ½ΠΎ Π΄ΠΎΠΊΡΠΌΠ΅Π½ΡΠΎΠ² ΠΠ’Π.
ΠΠΎΠ»ΡΡΠΈΡΡ ΠΏΠΎΠ΄ΡΠΎΠ±Π½ΡΡ ΠΊΠΎΠ½ΡΡΠ»ΡΡΠ°ΡΠΈΡ ΠΏΠΎ ΠΌΠΎΠΆΠ½ΠΎ Ρ ΡΠΏΠ΅ΡΠΈΠ°Π»ΠΈΡΡΠΎΠ² Π½Π°ΡΠ΅ΠΉ ΠΊΠΎΠΌΠΏΠ°Π½ΠΈΠΈ.
ΠΠΎΡ ΠΎΠΆΠΈΠ΅ ΡΡΠ°ΡΡΠΈ
ΠΠ°ΠΊ ΡΠ΄Π΅Π»Π°ΡΡ ΠΈΠ· ΠΎΠ΄Π½ΠΎΠΊΠΎΠΌΠ½Π°ΡΠ½ΠΎΠΉ ΠΊΠ²Π°ΡΡΠΈΡΡ Π΄Π²ΡΡ ΠΊΠΎΠΌΠ½Π°ΡΠ½ΡΡ?
Π ΡΠΈΠΏΠΎΠ²ΡΡ ΠΆΠΈΠ»ΡΡ Π΄ΠΎΠΌΠ°Ρ Π΄ΠΎΡΡΠ°ΡΠΎΡΠ½ΠΎ Π±ΠΎΠ»ΡΡΠΎΠ΅ ΠΊΠΎΠ»ΠΈΡΠ΅ΡΡΠ²ΠΎ ΠΎΠ΄Π½ΠΎΠΊΠΎΠΌΠ½Π°ΡΠ½ΡΡ ΠΊΠ²Π°ΡΡΠΈΡ. ΠΠΎΠ½Π΅ΡΠ½ΠΎ, Π΅ΡΠ»ΠΈ Π² ΡΠ°ΠΊΠΎΠΉ ΠΊΠ²Π°ΡΡΠΈΡΠ΅ ΠΏΡΠΎΠΆΠΈΠ²Π°Π΅Ρ ΡΠ΅ΠΌΡΡ ΠΌΠΎΠ»ΠΎΠ΄ΠΎΠΆΠ΅Π½ΠΎΠ² ΠΈΠ»ΠΈ ΠΏΠΎΠΆΠΈΠ»Π°Ρ ΠΏΠ°ΡΠ°, ΡΠΎ ΡΡΠΎΠ»Ρ ΠΎΠ³ΡΠ°Π½ΠΈΡΠ΅Π½Π½ΠΎΠ΅ ΠΊΠΎΠ»ΠΈΡΠ΅ΡΡΠ²ΠΎ ΠΊΠΎΠΌΠ½Π°Ρ Π½Π΅ ΠΏΡΠΈΡΠΈΠ½ΡΠ΅Ρ .
.. ΠΠΎΠ΄ΡΠΎΠ±Π½Π΅Π΅ >>ΠΠΎΠ·ΠΌΠΎΠΆΠ½ΡΠ΅ Π²Π°ΡΠΈΠ°Π½ΡΡ ΠΏΠ΅ΡΠ΅ΠΏΠ»Π°Π½ΠΈΡΠΎΠ²ΠΊΠΈ Π² ΠΎΠ΄Π½ΠΎΠΊΠΎΠΌΠ½Π°ΡΠ½ΠΎΠΉ ΠΊΠ²Π°ΡΡΠΈΡΠ΅
Π’ΠΈΠΏΠΎΠ²ΡΠ΅ ΠΏΡΠΎΠ΅ΠΊΡΡ ΠΊΠ²Π°ΡΡΠΈΡ ΡΠΎΠ·Π΄Π°ΡΡΡΡ Π² ΡΠ°ΡΡΠ΅ΡΠ΅ Π½Π° ΠΏΠΎΡΡΠ΅Π±Π½ΠΎΡΡΠΈ Π°Π±ΡΡΡΠ°ΠΊΡΠ½ΠΎΠΉ Π½Π΅Π±ΠΎΠ»ΡΡΠΎΠΉ ΡΠ΅ΠΌΡΠΈ. ΠΠΎ ΠΏΡΠΎΠΆΠΈΠ²Π°ΡΡ Π² ΡΠ°ΠΊΠΈΡ ΠΊΠ²Π°ΡΡΠΈΡΠ°Ρ ΠΏΡΠΈΡ ΠΎΠ΄ΠΈΡΡΡ ΠΎΡΠ½ΡΠ΄Ρ Π½Π΅ Π°Π±ΡΡΡΠ°ΠΊΡΠ½ΡΠΌ, Π° Π²ΠΏΠΎΠ»Π½Π΅ ΠΊΠΎΠ½ΠΊΡΠ΅ΡΠ½ΡΠΌ Π»ΡΠ΄ΡΠΌ. ΠΠΎΡΡΠΎΠΌΡ, Π² Π±ΠΎΠ»ΡΡΠΈΠ½ΡΡΠ²Π΅ … ΠΠΎΠ΄ΡΠΎΠ±Π½Π΅Π΅ >>ΠΠ΅ΡΠ΅ΠΏΠ»Π°Π½ΠΈΡΠΎΠ²ΠΊΠ° ΡΠΈΠΏΠΎΠ²ΠΎΠΉ ΠΎΠ΄Π½ΠΎΠΊΠΎΠΌΠ½Π°ΡΠ½ΠΎΠΉ ΠΊΠ²Π°ΡΡΠΈΡΡ
ΠΡΠ°ΠΊΡΠΈΡΠ΅ΡΠΊΠΈ Π² ΠΊΠ°ΠΆΠ΄ΠΎΠΌ ΡΠΈΠΏΠΎΠ²ΠΎΠΌ Π΄ΠΎΠΌΠ΅ ΡΠ΅ΡΠ²Π΅ΡΡΠ°Ρ ΡΠ°ΡΡΡ ΠΊΠ²Π°ΡΡΠΈΡ — ΠΎΠ΄Π½ΠΎΠΊΠΎΠΌΠ½Π°ΡΠ½ΡΠ΅. ΠΡΠΈ Π½Π΅Π±ΠΎΠ»ΡΡΠΈΠ΅ ΠΏΠΎ ΠΏΠ»ΠΎΡΠ°Π΄ΠΈ ΠΊΠ²Π°ΡΡΠΈΡΡ ΠΎΡΠ΅Π½Ρ ΡΠ΄ΠΎΠ±Π½Ρ Π΄Π»Ρ ΠΏΡΠΎΠΆΠΈΠ²Π°Π½ΠΈΡ ΠΎΠ΄ΠΈΠ½ΠΎΡΠ΅ΠΊ ΠΈΠ»ΠΈ Π±Π΅Π·Π΄Π΅ΡΠ½ΡΡ ΠΏΠ°Ρ. ΠΠΎ Π² ΡΠ΅Π°Π»ΡΠ½ΠΎΠΉ ΠΆΠΈΠ·Π½ΠΈ ΡΠ°ΡΡΠΎ … ΠΠΎΠ΄ΡΠΎΠ±Π½Π΅Π΅ >>ΠΡΠΈΠΌΠ΅ΡΡ ΠΏΡΠΎΠ²Π΅Π΄Π΅Π½ΠΈΡ ΠΏΠ΅ΡΠ΅ΠΏΠ»Π°Π½ΠΈΡΠΎΠ²ΠΊΠΈ Π² ΠΎΠ΄Π½ΠΎΠΊΠΎΠΌΠ½Π°ΡΠ½ΠΎΠΉ ΠΊΠ²Π°ΡΡΠΈΡΠ΅
ΠΠ΄Π½ΠΎΠΊΠΎΠΌΠ½Π°ΡΠ½Π°Ρ ΠΊΠ²Π°ΡΡΠΈΡΠ° β ΡΡΠΎ, ΠΊΠ°ΠΊ ΠΏΡΠ°Π²ΠΈΠ»ΠΎ, ΠΏΠ΅ΡΠ²ΠΎΠ΅ ΠΆΠΈΠ»ΡΠ΅, ΠΊΠΎΡΠΎΡΠΎΠ΅ ΠΌΠΎΠΆΠ΅Ρ ΠΏΠΎΠ·Π²ΠΎΠ»ΠΈΡΡ ΡΠ΅Π±Π΅ ΠΌΠΎΠ»ΠΎΠ΄Π°Ρ ΡΠ΅ΠΌΡΡ. ΠΠΎΠΊΠ° ΠΌΠΎΠ»ΠΎΠ΄ΡΠ΅ ΡΡΠΏΡΡΠ³ΠΈ ΠΆΠΈΠ²ΡΡ Π²Π΄Π²ΠΎΠ΅ΠΌ, ΡΠΎ ΡΠ°ΠΊΠΎΠΉ Π²Π°ΡΠΈΠ°Π½Ρ ΠΆΠΈΠ»ΠΏΠ»ΠΎΡΠ°Π΄ΠΈ Π²ΠΏΠΎΠ»Π½Π΅ ΠΏΡΠΈΠ΅ΠΌΠ»Π΅ΠΌ. ΠΠΎ ΠΊΠΎΠ³Π΄Π° Π² ΡΠ΅ΠΌΡΠ΅ ΠΏΠΎΡΠ²Π»ΡΠ΅ΡΡΡ ΡΠ΅Π±Π΅Π½ΠΎΠΊ … ΠΠΎΠ΄ΡΠΎΠ±Π½Π΅Π΅ >>Π‘ΠΎΠ²Π΅ΡΡ ΠΏΠΎ ΠΏΡΠΎΠ²Π΅Π΄Π΅Π½ΠΈΡ ΠΏΠ΅ΡΠ΅ΠΏΠ»Π°Π½ΠΈΡΠΎΠ²ΠΊΠΈ Π² ΠΎΠ΄Π½ΠΎΠΊΠΎΠΌΠ½Π°ΡΠ½ΠΎΠΉ ΠΊΠ²Π°ΡΡΠΈΡΠ΅
ΠΠΎΡΡΠ°ΡΠΎΡΠ½ΠΎ ΡΠ°ΡΡΠΎ Π²Π»Π°Π΄Π΅Π»ΡΡΡ ΡΠΈΠΏΠΎΠ²ΡΡ ΠΊΠ²Π°ΡΡΠΈΡ ΠΌΠ΅ΡΡΠ°ΡΡ ΠΎ ΡΠΎΠΌ, ΡΡΠΎΠ±Ρ ΠΊΠΎΠ½ΡΠΈΠ³ΡΡΠ°ΡΠΈΡΡ ΠΏΠΎΠΌΠ΅ΡΠ΅Π½ΠΈΠΉ Π² ΠΈΡ ΠΊΠ²Π°ΡΡΠΈΡΠ΅ ΠΌΠΎΠ³Π»Π° ΠΌΠ΅Π½ΡΡΡΡΡ, Π² Π·Π°Π²ΠΈΡΠΈΠΌΠΎΡΡΠΈ ΠΎΡ ΠΏΠΎΡΡΠ΅Π±Π½ΠΎΡΡΠ΅ΠΉ ΡΠ΅ΠΌΡΠΈ.
ΠΠ΅ΡΠ΅ΠΏΠ»Π°Π½ΠΈΡΠΎΠ²ΠΊΠ° ΠΎΠ΄Π½ΠΎΠΊΠΎΠΌΠ½Π°ΡΠ½ΠΎΠΉ ΠΊΠ²Π°ΡΡΠΈΡΡ Π² ΡΡΡΠ΄ΠΈΡ
ΠΡΠ΅ΠΆΠ΄Π΅ Π²ΡΠ΅Π³ΠΎ, Π½ΡΠΆΠ½ΠΎ ΠΎΠΏΡΠ΅Π΄Π΅Π»ΠΈΡΡΡΡ, ΡΡΠΎ ΡΠ°ΠΊΠΎΠ΅ ΠΊΠ²Π°ΡΡΠΈΡΠ° — ΡΡΡΠ΄ΠΈΡ? ΠΡΡ ΠΈΡΠ΅ΠΊΡΠΎΡΡ ΡΠ°ΠΊ Π½Π°Π·ΡΠ²Π°ΡΡ ΠΆΠΈΠ»ΠΏΠ»ΠΎΡΠ°Π΄Ρ, Π»ΠΈΡΠ΅Π½Π½ΡΡ Π²Π½ΡΡΡΠ΅Π½Π½ΠΈΡ ΠΏΠ΅ΡΠ΅Π³ΠΎΡΠΎΠ΄ΠΎΠΊ. Π’ΠΎ Π΅ΡΡΡ Π² ΡΠ°ΠΊΠΎΠΉ ΠΊΠ²Π°ΡΡΠΈΡΠ΅ Π΅ΡΡΡ ΠΎΠ΄Π½ΠΎ ΠΎΠ±ΡΠ΅Π΅ ΠΏΡΠΎΡΡΡΠ°Π½ΡΡΠ²ΠΎ, ΠΊΠΎΡΠΎΡΠΎΠ΅ ΡΠ°Π·Π΄Π΅Π»Π΅Π½ΠΎ Π½Π° Π·ΠΎΠ½Ρ … ΠΠΎΠ΄ΡΠΎΠ±Π½Π΅Π΅ >>ΠΠ΅ΡΠ΅ΠΏΠ»Π°Π½ΠΈΡΠΎΠ²ΠΊΠ° Π² ΠΌΠ°Π»ΠΎΠ³Π°Π±Π°ΡΠΈΡΠ½ΠΎΠΉ ΠΎΠ΄Π½ΠΎΠΊΠΎΠΌΠ½Π°ΡΠ½ΠΎΠΉ ΠΊΠ²Π°ΡΡΠΈΡΠ΅
ΠΠΈΡΡ Π² ΠΊΠΎΠΌΡΠΎΡΡΠ½ΡΡ ΡΡΠ»ΠΎΠ²ΠΈΡΡ ΠΌΠ΅ΡΡΠ°ΡΡ Π²ΡΠ΅. ΠΠ΄Π½Π°ΠΊΠΎ ΡΠ΅Π½Ρ Π½Π° ΡΡΠ½ΠΊΠ΅ ΠΆΠΈΠ»ΡΡ ΡΠ°ΠΊΠΎΠ²Ρ, ΡΡΠΎ Π΄Π°Π»Π΅ΠΊΠΎ Π½Π΅ ΠΊΠ°ΠΆΠ΄ΡΠΉ ΡΠ΅Π»ΠΎΠ²Π΅ΠΊ ΠΈΠΌΠ΅Π΅Ρ Π²ΠΎΠ·ΠΌΠΎΠΆΠ½ΠΎΡΡΡ ΠΏΡΠΈΠΎΠ±ΡΠ΅ΡΡΠΈ ΠΊΠ²Π°ΡΡΠΈΡΡ, ΠΊΠΎΡΠΎΡΠ°Ρ ΠΌΠΎΠ³Π»Π° Π±Ρ ΡΠ΄ΠΎΠ²Π»Π΅ΡΠ²ΠΎΡΠΈΡΡ Π΅Π³ΠΎ ΠΏΠΎΡΡΠ΅Π±Π½ΠΎΡΡΠΈ. Π’Π°ΠΊ ΡΡΠΎ Π±ΠΎΠ»ΡΡΠΈΠ½ΡΡΠ²Ρ ΠΏΡΠΈΡ ΠΎΠ΄ΠΈΡΡΡ … ΠΠΎΠ΄ΡΠΎΠ±Π½Π΅Π΅ >>ΠΠ΅ΡΠ΅ΠΏΠ»Π°Π½ΠΈΡΠΎΠ²ΠΊΠ° ΠΎΠ΄Π½ΠΎΠΊΠΎΠΌΠ½Π°ΡΠ½ΠΎΠΉ ΠΊΠ²Π°ΡΡΠΈΡΡ
Β ΠΠ΅ΡΠ΅ΠΏΠ»Π°Π½ΠΈΡΠΎΠ²ΠΊΠ° ΠΎΠ΄Π½ΠΎΠΊΠΎΠΌΠ½Π°ΡΠ½ΠΎΠΉ ΠΊΠ²Π°ΡΡΠΈΡΡ Π² Π΄Π²ΡΡ ΠΊΠΎΠΌΠ½Π°ΡΠ½ΡΡ
ΠΡΠ»ΠΈ Π²Ρ Ρ ΠΎΡΠΈΡΠ΅ ΡΡΡΡΠΎΠΈΡΡ Π² ΡΠ²ΠΎΠ΅ΠΉ ΠΎΠ΄Π½ΠΎΠΊΠΎΠΌΠ½Π°ΡΠ½ΠΎΠΉ ΠΊΠ²Π°ΡΡΠΈΡΠ΅ Π΅ΡΡ ΠΎΠ΄Π½ΠΎ ΠΆΠΈΠ»ΠΎΠ΅ ΠΏΠΎΠΌΠ΅ΡΠ΅Π½ΠΈΠ΅, ΡΠ»Π΅Π΄ΡΠ΅Ρ ΠΏΠΎΠΌΠ½ΠΈΡΡ ΠΎ Π½ΠΎΡΠΌΠ°ΡΠΈΠ²Π½ΡΡ ΡΡΠ΅Π±ΠΎΠ²Π°Π½ΠΈΡΡ . Π’Π°ΠΊ, Π² ΠΏ. 9.12 Π‘Π 54.13330.2011 Π³ΠΎΠ²ΠΎΡΠΈΡΡΡ, ΡΡΠΎ Π²ΡΠ΅ ΠΆΠΈΠ»ΡΠ΅ ΠΊΠΎΠΌΠ½Π°ΡΡ (Π° ΡΠ°ΠΊΠΆΠ΅ ΠΊΡΡ Π½ΠΈ), Π΄ΠΎΠ»ΠΆΠ½Ρ ΠΈΠΌΠ΅ΡΡ Π΅ΡΡΠ΅ΡΡΠ²Π΅Π½Π½ΠΎΠ΅ ΡΠ»ΠΈΡΠ½ΠΎΠ΅ ΠΎΡΠ²Π΅ΡΠ΅Π½ΠΈΠ΅, ΠΏΠΎΡΡΡΠΏΠ°ΡΡΠ΅Π΅ ΡΠ΅ΡΠ΅Π· ΠΎΠΊΠ½Π°.
Π’ΠΎ Π΅ΡΡΡ, ΠΊΠΎΠ³Π΄Π° Π²Ρ ΡΠ°Π·Π΄Π΅Π»ΡΠ΅ΡΠ΅ ΠΊΠΎΠΌΠ½Π°ΡΡ ΠΏΠ΅ΡΠ΅Π³ΠΎΡΠΎΠ΄ΠΊΠΎΠΉ, ΠΎΠ½Π° Π΄ΠΎΠ»ΠΆΠ½Π° Π±ΡΡΡ ΡΠ²Π΅ΡΠΎΠΏΡΠΎΠΏΡΡΠΊΠ°ΡΡΠ΅ΠΉ. ΠΡΠ»ΠΈ Π² ΠΊΠΎΠΌΠ½Π°ΡΠ΅ Π΄Π²Π° ΠΎΠΊΠ½Π°, ΠΏΠ΅ΡΠ΅Π³ΠΎΡΠΎΠ΄ΠΊΡ ΠΌΠΎΠΆΠ½ΠΎ ΠΏΠΎΡΡΠ°Π²ΠΈΡΡ ΠΌΠ΅ΠΆΠ΄Ρ Π½ΠΈΠΌΠΈ.Β ΠΡΠΊΠ»ΡΡΠ΅Π½ΠΈΠ΅ Π΄Π΅Π»Π°Π΅ΡΡΡ Π΄Π»Ρ ΠΊΡΡ ΠΎΠ½Ρ-Π½ΠΈΡ, ΠΈΠ½Π°ΡΠ΅ Π³ΠΎΠ²ΠΎΡΡ, Π΄Π»Ρ ΠΏΠΎΠΌΠ΅ΡΠ΅Π½ΠΈΠΉ Ρ ΠΊΡΡ ΠΎΠ½Π½ΡΠΌ ΠΎΠ±ΠΎΡΡΠ΄ΠΎΠ²Π°Π½ΠΈΠ΅ΠΌ, Π½ΠΎ Π±Π΅Π· ΠΎΠ±Π΅Π΄Π΅Π½Π½ΠΎΠΉ Π·ΠΎΠ½Ρ.
Π’Π°ΠΊΠΈΠ΅ ΠΊΡΡ Π½ΠΈ-Π½ΠΈΡΠΈ ΠΏΠ»ΠΎΡΠ°Π΄ΡΡ Π½Π΅ ΠΌΠ΅Π½Π΅Π΅ 5 ΠΊΠ².ΠΌ. ΠΌΠΎΠΆΠ½ΠΎ ΡΡΡΡΠ°ΠΈΠ²Π°ΡΡ Π² ΠΎΠ΄Π½ΠΎΠΊΠΎΠΌΠ½Π°ΡΠ½ΡΡ ΠΊΠ²Π°ΡΡΠΈΡΠ°Ρ Π½Π° ΠΌΠ΅ΡΡΠ΅ ΠΊΠ»Π°Π΄ΠΎΠ²ΠΊΠΈ ΠΈΠ»ΠΈ ΡΠ°ΡΡΠΈ ΠΊΠΎΡΠΈΠ΄ΠΎΡΠ°.
ΠΠ΅ΡΠ΅ΠΏΠ»Π°Π½ΠΈΡΠΎΠ²ΠΊΠ° ΠΎΠ΄Π½ΠΎΠΊΠΎΠΌΠ½Π°ΡΠ½ΠΎΠΉ ΠΊΠ²Π°ΡΡΠΈΡΡ ΡΠ²ΠΎΠ±ΠΎΠ΄Π½ΠΎΠΉ ΠΏΠ»Π°Π½ΠΈΡΠΎΠ²ΠΊΠΈ Π² Π΄Π²ΡΡ ΠΊΠΎΠΌΠ½Π°ΡΠ½ΡΡ
ΠΠ·Π½Π°ΡΠ°Π»ΡΠ½ΠΎ Π² Π΄Π°Π½Π½ΠΎΠΉ ΠΊΠ²Π°ΡΡΠΈΡΠ΅, Π½Π°Ρ
ΠΎΠ΄ΡΡΠ΅ΠΉΡΡ Π² ΠΌΠΎΠ½ΠΎΠ»ΠΈΡΠ½ΠΎΠΉ Π½ΠΎΠ²ΠΎΡΡΡΠΎΠΉΠΊΠ΅,Β ΠΈΠΌΠ΅Π»Π°ΡΡ ΠΎΠ΄Π½Π° ΠΊΠΎΠΌΠ½Π°ΡΠ° ΠΏΠ»ΠΎΡΠ°Π΄ΡΡ 60 ΠΌΠ΅ΡΡΠΎΠ². Π£ΡΡΠ°Π½ΠΎΠ²ΠΈΠ² ΠΏΠ΅ΡΠ΅Π³ΠΎΡΠΎΠ΄ΠΊΡ ΠΈΠ· ΠΠΠ, ΠΆΠΈΠ»ΡΡ ΠΏΠ»ΠΎΡΠ°Π΄Ρ ΡΠ°Π·Π΄Π΅Π»ΠΈΠ»ΠΈ Π½Π° Π΄Π²Π΅ ΠΊΠΎΠΌΠ½Π°ΡΡ (22 ΠΈ 25 ΠΊΠ².
ΠΡΠΎΠΌΠ΅ ΡΠΎΠ³ΠΎ, Π±ΡΠ» ΠΎΡΠ³Π°Π½ΠΈΠ·ΠΎΠ²Π°Π½ ΡΠΎΠ²ΠΌΠ΅ΡΠ΅Π½Π½ΡΠΉ ΡΠ°Π½ΡΠ·Π΅Π», Π° ΠΏΠ΅ΡΠ΅Π³ΠΎΡΠΎΠ΄ΠΊΠ° ΠΌΠ΅ΠΆΠ΄Ρ ΠΊΠΎΠΌΠ½Π°ΡΠΎΠΉ ΠΈ ΠΊΡΡ Π½Π΅ΠΉ Π±ΡΠ»Π° Π΄Π΅ΠΌΠΎΠ½ΡΠΈΡΠΎΠ²Π°Π½Π°. ΠΡΠ°Π½ΠΈΡΡ ΠΆΠΈΠ»ΡΡ ΠΈ Π½Π΅ΠΆΠΈΠ»ΡΡ Π·ΠΎΠ½ ΠΎΡΠΌΠ΅ΡΠ΅Π½ΡΒ Π½Π° ΠΏΠ»Π°Π½Π΅ «ΠΏΠΎΡΠ»Π΅»Β ΠΏΡΠ½ΠΊΡΠΈΡΠΎΠΌ Π² ΠΏΡΠΎΠ΅ΠΊΡΠ΅ ΠΏΠ΅ΡΠ΅ΠΏΠ»Π°Π½ΠΈΡΠΎΠ²ΠΊΠΈ 1 ΠΊΠΎΠΌΠ½Π°ΡΠ½ΠΎΠΉ ΠΊΠ²Π°ΡΡΠΈΡΡ, Π° Π² ΡΠ°ΠΌΠΎΠΉ ΠΊΠ²Π°ΡΡΠΈΡΠ΅ ΠΎΠ½ΠΈ ΡΠ°Π·Π΄Π΅Π»Π΅Π½Ρ ΡΠ°Π·Π½ΡΠΌΠΈ Π½Π°ΠΏΠΎΠ»ΡΠ½ΡΠΌΠΈΒ ΠΏΠΎΠΊΡΡΡΠΈΡΠΌΠΈ.
ΠΠ΅ΡΠ΅ΠΏΠ»Π°Π½ΠΈΡΠΎΠ²ΠΊΠ° ΠΎΠ΄Π½ΠΎΠΊΠΎΠΌΠ½Π°ΡΠ½ΠΎΠΉ ΠΊΠ²Π°ΡΡΠΈΡΡ Π² ΡΡΡΠ΄ΠΈΡ
Π’Π°ΠΊΠΎΠΉ Π²Π°ΡΠΈΠ°Π½Ρ ΠΌΠΎΠΆΠ½ΠΎ ΡΠ΅Π°Π»ΠΈΠ·ΠΎΠ²Π°ΡΡΒ ΡΠΎΠ»ΡΠΊΠΎ Π΅ΡΠ»ΠΈ Π²ΡΠ΅ ΡΡΠ΅Π½Ρ, ΠΊΠΎΡΠΎΡΡΠ΅ ΠΏΡΠΈΠ΄Π΅ΡΡΡ Π΄Π»Ρ ΡΡΠΎΠ³ΠΎ ΡΠ½Π΅ΡΡΠΈ, Π±ΡΠ΄ΡΡ Π½Π΅Π½Π΅ΡΡΡΠΈΠΌΠΈ. ΠΡΠ»ΠΈ ΠΆΠ΅ ΠΊΠΎΠ½ΡΡΡΡΠΊΡΠΈΡ Π²Π°ΡΠ΅Π³ΠΎ Π΄ΠΎΠΌΠ° ΡΠ°ΠΊΠΎΠ²Π°, ΡΡΠΎ Π²Π½ΡΡΡΠΈΠΊΠ²Π°ΡΡΠΈΡΠ½ΡΠ΅ ΡΡΠ΅Π½Ρ ΡΠ²Π»ΡΡΡΡΡ Π½Π΅ΡΡΡΠΈΠΌΠΈ (Π°ΠΊΡΡΠ°Π»ΡΠ½ΠΎ Π΄Π»Ρ Π±ΠΎΠ»ΡΡΠΈΠ½ΡΡΠ²Π° ΡΠΈΠΏΠΎΠ²ΡΡ ΠΏΠ°Π½Π΅Π»ΡΠ½ΡΡ Π΄ΠΎΠΌΠΎΠ² ΠΊΡΠΎΠΌΠ΅ Ρ ΡΡΡΠ΅Π²ΠΎΠΊ), ΡΠΎ ΡΠ½Π΅ΡΡΠΈ ΠΈΡ Π½Π΅ ΠΏΠΎΠ»ΡΡΠΈΡΡΡ.
ΠΠ΅ΠΌΠΎΠ½ΡΠ°ΠΆ Π½Π΅ΡΡΡΠΈΡ ΡΡΠ΅Π½ ΡΡΡΠΎΠ³ΠΎ Π·Π°ΠΏΡΠ΅ΡΠ΅Π½ Π‘ΠΠΈΠΠ°ΠΌΠΈ ΠΈ ΠΆΠΈΠ»ΠΈΡΠ½ΡΠΌ Π·Π°ΠΊΠΎΠ½ΠΎΠ΄Π°ΡΠ΅Π»ΡΡΡΠ²ΠΎΠΌ, ΠΏΠΎΡΠΊΠΎΠ»ΡΠΊΡ ΡΡΠΎ ΡΠ³ΡΠΎΠΆΠ°Π΅ΡΒ Π±Π΅Π·ΠΎΠΏΠ°ΡΠ½ΠΎΡΡΠΈ ΠΏΡΠΎΠΆΠΈΠ²Π°ΡΡΠΈΡ .
ΠΡΠΎΠΌΠ΅ ΡΠΎΠ³ΠΎ, ΡΡΡΠ΄ΠΈΡ ΠΈΠ· 1 ΠΊΠΎΠΌΠ½Π°ΡΠ½ΠΎΠΉ ΠΊΠ²Π°ΡΡΠΈΡΡΒ Π½Π΅ ΡΠ΄Π°ΡΡΡΡ ΡΠ΄Π΅Π»Π°ΡΡ ΠΈ ΠΏΡΠΈ Π½Π°Π»ΠΈΡΠΈΠΈ Π½Π° ΠΊΡΡ Π½Π΅ Π³Π°Π·ΠΎΠ²ΠΎΠΉ ΠΏΠ»ΠΈΡΡ.
ΠΠ΅ΡΠ΅ΠΏΠ»Π°Π½ΠΈΡΠΎΠ²ΠΊΠ° ΠΊΡΡ Π½ΠΈ Π² ΠΎΠ΄Π½ΠΎΠΊΠΎΠΌΠ½Π°ΡΠ½ΠΎΠΉ ΠΊΠ²Π°ΡΡΠΈΡΠ΅
Π ΠΏΡΠΈΠ½ΡΠΈΠΏΠ΅, Π΄Π΅ΠΉΡΡΠ²ΡΡΡ ΡΠ΅ ΠΆΠ΅ ΠΎΠ³ΡΠ°Π½ΠΈΡΠ΅Π½ΠΈΡ, ΡΡΠΎ ΠΈ Π΄Π»Ρ ΠΊΠ²Π°ΡΡΠΈΡ Ρ ΠΈΠ½ΡΠΌ ΠΊΠΎΠ»ΠΈΡΠ΅ΡΡΠ²ΠΎΠΌ ΠΊΠΎΠΌΠ½Π°Ρ.
ΠΠ΅Π»ΡΠ·Ρ ΠΏΠΎΠ»Π½ΠΎΡΡΡΡ ΠΎΠ±ΡΠ΅Π΄ΠΈΠ½ΡΡΡ Π³Π°Π·ΠΈΡΠΈΡΠΈΡΠΎΠ²Π°Π½Π½ΡΡ ΠΊΡΡ
Π½Ρ Ρ ΠΆΠΈΠ»ΠΎΠΉ ΠΊΠΎΠΌΠ½Π°ΡΠΎΠΉ Π±Π΅Π· ΡΠ΄Π²ΠΈΠΆΠ½ΠΎΠΉ ΠΏΠ΅ΡΠ΅Π³ΠΎΡΠΎΠ΄ΠΊΠΈ Π²Π·Π°ΠΌΠ΅Π½ ΡΠ½Π΅ΡΠ΅Π½Π½ΠΎΠΉ ΠΌΠ΅ΠΆΠΊΠΎΠΌΠ½Π°ΡΠ½ΠΎΠΉ, ΠΈΠ»ΠΈ Π±Π΅Π· Π΄Π²Π΅ΡΠΈ Π½Π° Π½ΠΎΠ²ΠΎΠΎΠ±ΡΠ°Π·ΠΎΠ²Π°Π½Π½ΠΎΠΌ ΠΏΡΠΎΠ΅ΠΌΠ΅ Π² Π½Π΅ΡΡΡΠ΅ΠΉ ΡΡΠ΅Π½Π΅.Β
ΠΠΏΡΠΎΡΠ΅ΠΌ, Π΅ΡΠ»ΠΈ Π²Ρ ΡΠΎΠ³Π»Π°ΡΡΠ΅ΡΠ΅ Ρ ΠΠΎΡΠ³Π°Π·ΠΎΠΌ Π·Π°ΠΌΠ΅Π½Ρ Π³Π°Π·ΠΎΠ²ΠΎΠΉ ΠΏΠ»ΠΈΡΡ Π½Π° ΡΠ»Π΅ΠΊΡΡΠΈΡΠ΅ΡΠΊΡΡ, ΡΠΎ ΡΠΌΠΎΠΆΠ΅ΡΠ΅ ΠΎΠ±ΡΠ΅Π΄ΠΈΠ½ΠΈΡΡ ΠΏΠΎΠΌΠ΅ΡΠ΅Π½ΠΈΡ, ΠΏΡΠΈ ΡΡΠ»ΠΎΠ²ΠΈΠΈ, ΡΡΠΎ ΡΡΠ΅Π½Π° ΠΌΠ΅ΠΆΠ΄Ρ Π½ΠΈΠΌΠΈ Π½Π΅ ΠΊΠ°ΠΏΠΈΡΠ°Π»ΡΠ½Π°Ρ.
ΠΠΎ Ρ ΠΎΡΠ΅Π»ΠΎΡΡ Π±Ρ ΠΎΡΠΌΠ΅ΡΠΈΡΡ ΡΠ»Π΅Π΄ΡΡΡΠ΅Π΅. ΠΠΈΠ»ΠΈΡΠ½ΡΠ΅ ΠΈΠ½ΡΠΏΠ΅ΠΊΡΠΈΠΈ ΡΠ°Π·Π½ΡΡ ΠΎΠΊΡΡΠ³ΠΎΠ² ΠΏΠΎ-ΡΠ°Π·Π½ΠΎΠΌΡ ΠΎΡΠ½ΠΎΡΡΡΡΡ ΠΊ ΠΎΠ±ΡΠ΅Π΄ΠΈΠ½Π΅Π½ΠΈΡΒ ΠΊΡΡ Π½ΠΈ Ρ ΠΊΠΎΠΌΠ½Π°ΡΠΎΠΉ Π² 1-ΠΊΠΎΠΌΠ½Π°ΡΠ½ΡΡ ΠΊΠ²Π°ΡΡΠΈΡΠ°Ρ , ΠΏΠΎΡΠΊΠΎΠ»ΡΠΊΡ ΡΠΎΡΠΌΠ°Π»ΡΠ½ΠΎ ΠΊΠΎΠΌΠ½Π°ΡΠ° ΡΠ΅ΡΡΠ΅Ρ ΠΏΡΠΈ ΡΡΠΎΠΌ ΡΡΠ°ΡΡΡ ΠΆΠΈΠ»ΠΎΠ³ΠΎ ΠΏΠΎΠΌΠ΅ΡΠ΅Π½ΠΈΡ, Π° Π΄ΡΡΠ³ΠΎΠ³ΠΎ ΠΆΠΈΠ»ΠΎΠ³ΠΎ ΠΏΠΎΠΌΠ΅ΡΠ΅Π½ΠΈΡ Π½Π΅Ρ.Β
ΠΠ΅ΡΠ΅ΠΏΠ»Π°Π½ΠΈΡΠΎΠ²ΠΊΠ° ΠΊΡΡ Π½ΠΈ, ΡΠΎΡΠΎ:
Π ΠΎΠ΄Π½ΠΈΡ ΠΎΠΊΡΡΠ³Π°Ρ ΠΠΎΡΠΊΠ²Ρ Π΄ΠΎΠΏΡΡΠΊΠ°ΡΡ ΡΠ°Π·Π³ΡΠ°Π½ΠΈΡΠΈΠ²Π°ΡΡ ΠΏΠΎΠΌΠ΅ΡΠ΅Π½ΠΈΡ ΠΏΡΠΈ ΠΏΠΎΠΌΠΎΡΠΈ ΡΠ°Π·Π½ΡΡ ΠΏΠΎΠ»ΠΎΠ²ΡΡ ΠΏΠΎΠΊΡΡΡΠΈΠΉ Π² ΠΊΠΎΠΌΠ½Π°ΡΠ΅ ΠΈ ΠΊΡΡ Π½Π΅. Π Π΄ΡΡΠ³ΠΈΡ — ΡΡΠ΅Π±ΡΡΡ Β«ΠΎΠ±ΠΎΠ·Π½Π°ΡΠΈΡΡΒ» ΡΡΠ΅Π½ΠΊΡ Π² Π²ΠΈΠ΄Π΅ ΠΏΠΎΡΠΎΠΆΠΊΠ°, Π° Π² ΡΡΠ΅ΡΡΠΈΡ ΠΈΠ½ΡΠΏΠ΅ΠΊΡΠΎΡΡ Π½Π°ΡΡΠ°ΠΈΠ²Π°ΡΡ Π½Π° ΡΡΡΠ°Π½ΠΎΠ²ΠΊΠ΅ ΡΠ΄Π²ΠΈΠΆΠ½ΠΎΠΉ ΠΏΠ΅ΡΠ΅Π³ΠΎΡΠΎΠ΄ΠΊΠΈ.Β
ΠΡΠ»ΠΈ ΠΆΠ΅ ΠΊΡΡ
Π½Ρ ΡΠΎΠ΅Π΄ΠΈΠ½ΡΠ΅ΡΡΡ Ρ ΠΊΠΎΠΌΠ½Π°ΡΠΎΠΉ ΡΠ΅ΡΠ΅Π· ΠΏΡΠΎΠ΅ΠΌ Π² Π½Π΅ΡΡΡΠ΅ΠΉ ΡΡΠ΅Π½Π΅, ΡΠΎ ΡΠ°ΠΊΠ°Ρ ΠΏΠ΅ΡΠ΅ΠΏΠ»Π°Π½ΠΈΡΠΎΠ²ΠΊΠ° ΠΎΠ΄Π½ΡΡΠΊΠΈ Π±ΡΠ΄Π΅Ρ ΡΠΎΠ³Π»Π°ΡΠΎΠ²ΡΠ²Π°ΡΡΡΡ ΠΏΠΎ ΠΏΡΠΎΠ΅ΠΊΡΡ Ρ ΡΠ΅Ρ
Π½ΠΈΡΠ΅ΡΠΊΠΈΠΌ Π·Π°ΠΊΠ»ΡΡΠ΅Π½ΠΈΠ΅ΠΌ ΠΎΡ Π°Π²ΡΠΎΡΠ° Π΄ΠΎΠΌΠ°.
ΠΡΠ»ΠΈ ΡΠΏΠ΅ΡΠΈΠ°Π»ΠΈΡΡ ΠΈΠ· ΠΏΡΠΎΠ΅ΠΊΡΠ½ΠΎΠ³ΠΎ ΠΈΠ½ΡΡΠΈΡΡΡΠ° Π½Π΅ ΠΎΠ±Π½Π°ΡΡΠΆΠΈΡ Β«ΠΏΡΠΎΡΠΈΠ²ΠΎΠΏΠΎΠΊΠ°Π·Π°Π½ΠΈΠΉΒ» Π΄Π»Ρ ΡΡΡΡΠΎΠΉΡΡΠ²Π° ΠΏΡΠΎΠ΅ΠΌΠ°, Π²Ρ ΡΠΌΠΎΠΆΠ΅ΡΠ΅ ΠΎΠ±ΡΠ°ΡΠΈΡΡΡΡ ΠΊ ΡΠΏΠ΅ΡΠΈΠ°Π»ΠΈΡΡΠ°ΠΌ, ΠΈΠΌΠ΅ΡΡΠΈΠΌ Π΄ΠΎΠΏΡΡΠΊ Π‘Π Π, Π΄Π»Ρ ΡΠ°Π·ΡΠ°Π±ΠΎΡΠΊΠΈ ΠΏΡΠΎΠ΅ΠΊΡΠ½ΠΎΠΉ Π΄ΠΎΠΊΡΠΌΠ΅Π½ΡΠ°ΡΠΈΠΈ. ΠΡΠΈ ΡΡΠΎΠΌ ΠΆΠ΅Π»Π°ΡΠ΅Π»ΡΠ½ΠΎ, ΡΡΠΎΠ±Ρ ΠΏΡΠΎΠ΅ΠΊΡΠΈΡΠΎΠ²Π°Π½ΠΈΠ΅ΠΌ, ΡΠΎΠ³Π»Π°ΡΠΎΠ²Π°Π½ΠΈΠ΅ΠΌ ΠΈ ΡΠ΄Π°ΡΠ΅ΠΉ ΡΠ°Π·ΡΠ΅ΡΠ΅Π½Π½ΠΎΠΉ ΠΏΠ΅ΡΠ΅ΠΏΠ»Π°Π½ΠΈΡΠΎΠ²ΠΊΠΈ ΠΠΎΡΠΆΠΈΠ»ΠΈΠ½ΡΠΏΠ΅ΠΊΡΠΈΠΈ Π·Π°Π½ΠΈΠΌΠ°Π»Π°ΡΡ ΠΎΠ΄Π½Π° ΠΈ ΡΠ° ΠΆΠ΅ ΠΎΡΠ³Π°Π½ΠΈΠ·Π°ΡΠΈΡ. ΠΠΎΠΌΠΏΠ»Π΅ΠΊΡΠ½ΡΠΉ ΠΏΠΎΠ΄Ρ ΠΎΠ΄ ΠΏΠΎΠΌΠΎΠΆΠ΅Ρ Π²Π°ΠΌ ΡΡΠΊΠΎΠ½ΠΎΠΌΠΈΡΡ Π²ΡΠ΅ΠΌΡ ΠΈ ΠΎΠ±Π΅ΡΠΏΠ΅ΡΠΈΡ ΠΏΠΎΡΠ»Π΅Π΄ΠΎΠ²Π°ΡΠ΅Π»ΡΠ½ΠΎΠ΅ ΡΠΎΠ±Π»ΡΠ΄Π΅Π½ΠΈΠ΅ Π·Π°ΠΊΠΎΠ½ΠΎΠ² ΠΈ Π½ΠΎΡΠΌΠ°ΡΠΈΠ²ΠΎΠ².
ΠΡΠΈ ΠΏΠ΅ΡΠ΅ΠΏΠ»Π°Π½ΠΈΡΠΎΠ²ΠΊΠ΅ ΠΊΡΡ Π½ΠΈ Π² ΠΎΠ΄Π½ΠΎΠΊΠΎΠΌΠ½Π°ΡΠ½ΠΎΠΉ ΠΊΠ²Π°ΡΡΠΈΡΠ΅ Π½Π΅ ΡΡΠΎΠΈΡ Π·Π°Π±ΡΠ²Π°ΡΡ ΠΈ ΠΎ Π·Π°ΠΏΡΠ΅ΡΠ΅ Β«Π·Π°Π»Π΅Π·Π°ΡΡΒ» ΠΊΡΡ Π½Π΅ΠΉ Π½Π° ΠΊΠΎΠΌΠ½Π°ΡΡ. Π Π°ΡΡΠΈΡΠΈΡΡ ΠΊΡΡ Π½Ρ Π΄ΠΎΠΏΡΡΠΊΠ°Π΅ΡΡΡΒ Π·Π° ΡΡΠ΅Ρ ΠΊΠΎΡΠΈΠ΄ΠΎΡΠ°, Π²ΡΡΡΠΎΠ΅Π½Π½ΠΎΠ³ΠΎ ΡΠΊΠ°ΡΠ° ΠΈΠ»ΠΈ ΠΈΠ½ΠΎΠ³ΠΎ Π½Π΅ΠΆΠΈΠ»ΠΎΠ³ΠΎ ΠΏΠΎΠΌΠ΅ΡΠ΅Π½ΠΈΡ.Β ΠΠ°Π½Π½ΡΠΉ Π·Π°ΠΏΡΠ΅Ρ Π²ΠΏΡΠΎΡΠ΅ΠΌ, Π½Π΅ ΠΊΠ°ΡΠ°Π΅ΡΡΡ ΡΠ΅Ρ , ΠΊΡΠΎ ΠΆΠΈΠ²Π΅Ρ Π½Π° ΠΏΠ΅ΡΠ²ΠΎΠΌ ΠΏΠΎ ΡΡΠ΅ΡΡ ΠΆΠΈΠ»ΠΎΠΌ ΡΡΠ°ΠΆΠ΅ — Π² ΡΡΠΎΠΌ ΡΠ»ΡΡΠ°Π΅ ΠΌΠΎΠΆΠ½ΠΎ Π΄Π°ΠΆΠ΅ ΠΏΠ΅ΡΠ΅Π½Π΅ΡΡΠΈ ΠΊΡΡ Π½Ρ (ΠΎΠ΄Π½Π°ΠΊΠΎ ΠΏΠΎΠΌΠ½ΠΈΡΠ΅, ΡΡΠΎ Π΅Π΅ Π·Π°ΠΏΡΠ΅ΡΠ΅Π½ΠΎ ΡΠ°ΡΠΏΠΎΠ»Π°Π³Π°ΡΡ ΠΏΠΎΠ΄ ΡΠ°Π½ΡΠ·Π»Π°ΠΌΠΈ ΠΈ Π²Π°Π½Π½ΡΠΌΠΈ ΡΠΎΡΠ΅Π΄Π΅ΠΉ ΡΠ²Π΅ΡΡ Ρ).
ΠΠ΅ΡΠ΅Π½ΠΎΡ ΠΊΡΡ Π½ΠΈ, ΡΠΎΡΠΎ ΠΏΡΠΎΠ΅ΠΊΡΠ°:
ΠΠ΅ΡΠ΅ΠΏΠ»Π°Π½ΠΈΡΠΎΠ²ΠΊΠ° ΠΎΠ΄Π½ΠΎΠΊΠΎΠΌΠ½Π°ΡΠ½ΠΎΠΉ ΠΊΠ²Π°ΡΡΠΈΡΡ Ρ ΠΎΠ±ΡΠ΅Π΄ΠΈΠ½Π΅Π½ΠΈΠ΅ΠΌ Π²Π°Π½Π½ΠΎΠΉ ΠΈ ΡΠ°Π½ΡΠ·Π»Π°
ΠΡΠΈ ΡΡΠΎΠΌ ΠΏΠΎΠ»Π΅Π·Π½ΡΡ ΠΏΠ»ΠΎΡΠ°Π΄Ρ Π΄Π°Π½Π½ΡΡ
ΠΏΠΎΠΌΠ΅ΡΠ΅Π½ΠΈΠΉ Π½Π΅ΡΠ΅Π΄ΠΊΠΎ ΡΠ°ΡΡΠΈΡΡΡΡ Π·Π° ΡΡΠ΅Ρ ΡΠΌΠ΅ΠΆΠ½ΡΡ
ΠΊΠΎΡΠΈΠ΄ΠΎΡΠ° ΠΈΠ»ΠΈ ΠΊΠ»Π°Π΄ΠΎΠ²ΠΎΠΉ.
Β ΠΠΎΠ΄ΠΎΠ±Π½ΡΠ΅ ΠΌΠ΅ΡΠΎΠΏΡΠΈΡΡΠΈΡ ΡΡΠ΅Π±ΡΡΡ ΠΎΠ±ΡΠ·Π°ΡΠ΅Π»ΡΠ½ΠΎΠΉ ΡΠΊΠ»Π°Π΄ΠΊΠΈ Π³ΠΈΠ΄ΡΠΎΠΈΠ·ΠΎΠ»ΡΡΠΈΠΈ, ΡΡΠΎ Π°Π²ΡΠΎΠΌΠ°ΡΠΈΡΠ΅ΡΠΊΠΈ ΠΎΠ·Π½Π°ΡΠ°Π΅Ρ ΡΠΎΠ³Π»Π°ΡΠΎΠ²Π°Π½ΠΈΠ΅ ΠΏΠΎ ΠΏΡΠΎΠ΅ΠΊΡΡ Π΄Π°ΠΆΠ΅ Π² ΡΠ΅Ρ
ΡΠ»ΡΡΠ°ΡΡ
, ΠΊΠΎΠ³Π΄Π° Π±ΠΎΠ»ΡΡΠ΅ Π½ΠΈΠΊΠ°ΠΊΠΈΡ
ΠΌΠ΅ΡΠΎΠΏΡΠΈΡΡΠΈΠΉ Π½Π΅ ΠΏΡΠ΅Π΄ΡΡΠΌΠ°ΡΡΠΈΠ²Π°Π΅ΡΡΡ.
Π£ΠΊΠ»Π°Π΄ΠΊΠ° Π³ΠΈΠ΄ΡΠΎΠΈΠ·ΠΎΠ»ΡΡΠΈΠΈ, ΡΠ°Π²Π½ΠΎ ΠΊΠ°ΠΊ ΠΈ ΡΡΠΈΠ»Π΅Π½ΠΈΠ΅ ΠΏΡΠΎΠ΅ΠΌΠΎΠ² Π² Π½Π΅ΡΡΡΠΈΡ ΡΡΠ΅Π½Π°Ρ , Π΄ΠΎΠ»ΠΆΠ½Π° ΠΎΡΠΎΡΠΌΠ»ΡΡΡΡΡ Π°ΠΊΡΠ°ΠΌΠΈ ΡΠΊΡΡΡΡΡ ΡΠ°Π±ΠΎΡ ΠΈ ΡΠ΄Π°Π²Π°ΡΡΡΡ Π°Π²ΡΠΎΡΡΠΊΠΎΠΌΡ Π½Π°Π΄Π·ΠΎΡΡ ΠΏΡΠΎΠ΅ΠΊΡΠ½ΠΎΠΉ ΠΎΡΠ³Π°Π½ΠΈΠ·Π°ΡΠΈΠΈ. ΠΠ°Π½Π½ΠΎΠ΅ ΡΡΠ»ΠΎΠ²ΠΈΠ΅ ΡΠ²Π»ΡΠ΅ΡΡΡ ΠΎΠ±ΡΠ·Π°ΡΠ΅Π»ΡΠ½ΡΠΌ ΠΏΡΠΈ ΠΏΡΠΈΠ΅ΠΌΠΊΠ΅ Π³ΠΎΡΠΎΠ²ΠΎΠΉ ΠΏΠ΅ΡΠ΅ΠΏΠ»Π°Π½ΠΈΡΠΎΠ²ΠΊΠΈ ΠΆΠΈΠ»ΠΈΡΠ½ΠΎΠΉ ΠΈΠ½ΡΠΏΠ΅ΠΊΡΠΈΠ΅ΠΉ β Π±Π΅Π· Π½Π°Π΄Π»Π΅ΠΆΠ°ΡΠΈΠΌ ΠΎΠ±ΡΠ°Π·ΠΎΠΌ ΠΎΡΠΎΡΠΌΠ»Π΅Π½Π½ΡΡ ΡΠΊΡΡΡΡΡ ΡΠ°Π±ΠΎΡ ΠΎΠ½ Π½Π΅ ΠΏΠΎΠ΄ΠΏΠΈΡΠ΅Ρ Π°ΠΊΡ ΠΎ Π·Π°Π²Π΅ΡΡΠ΅Π½Π½ΠΎΠΉ ΠΏΠ΅ΡΠ΅ΠΏΠ»Π°Π½ΠΈΡΠΎΠ²ΠΊΠ΅ ΠΈ ΠΌΠΎΠΆΠ΅Ρ ΠΏΠΎΡΡΠ΅Π±ΠΎΠ²Π°ΡΡ Π²ΡΠΊΡΡΡΠΈΡ ΡΠΈΠ½ΠΈΡΠ½ΠΎΠΉ ΠΎΡΠ΄Π΅Π»ΠΊΠΈ.
Π€ΠΎΡΠΎ ΠΏΡΠΎΠ΅ΠΊΡΠΎΠ² ΠΏΠ΅ΡΠ΅ΠΏΠ»Π°Π½ΠΈΡΠΎΠ²ΠΎΠΊ ΠΎΠ΄Π½ΠΎΠΊΠΎΠΌΠ½Π°ΡΠ½ΡΡ ΠΊΠ²Π°ΡΡΠΈΡ:1) ΠΠ΅ΡΠ΅ΠΏΠ»Π°Π½ΠΈΡΠΎΠ²ΠΊΠ° Π² 1-ΠΊΠΎΠΌΠ½Π°ΡΠ½ΠΎΠΉ ΠΊΠ²Π°ΡΡΠΈΡΠ΅ ΠΏΠ°Π½Π΅Π»ΡΠ½ΠΎΠ³ΠΎ Π΄ΠΎΠΌΠ° ΡΠ΅ΡΠΈΠΈ Π-3Π
ΠΡΠΎΠ΅ΠΊΡΠ½ΡΠΌ ΡΠ΅ΡΠ΅Π½ΠΈΠ΅ΠΌ Π²Π°Π½Π½Π°Ρ ΠΊΠΎΠΌΠ½Π°ΡΠ° (Π±Π΅Π· ΠΈΠ·ΠΌΠ΅Π½Π΅Π½ΠΈΡ ΡΠ²ΠΎΠΈΡ
Π³Π°Π±Π°ΡΠΈΡΠΎΠ²) Π±ΡΠ»Π° ΠΏΡΠ΅Π²ΡΠ°ΡΠ΅Π½Π° Π² ΡΠΎΠ²ΠΌΠ΅ΡΠ΅Π½Π½ΡΠΉ ΡΠ°Π½ΡΠ·Π΅Π» ΠΏΡΡΠ΅ΠΌ ΠΏΠ΅ΡΠ΅ΡΡΠ°Π½ΠΎΠ²ΠΊΠΈ ΡΠ°Π½ΡΠ΅Ρ
Π½ΠΈΠΊΠΈ ΠΈ ΡΠ°Π·ΠΌΠ΅ΡΠ΅Π½ΠΈΡ Π² Π½Π΅ΠΉ ΡΠ½ΠΈΡΠ°Π·Π°. ΠΡΠ΄Π΅Π»ΡΠ½ΡΠΉ ΡΡΠ°Π»Π΅Ρ Π±ΡΠ» Π»ΠΈΠΊΠ²ΠΈΠ΄ΠΈΡΠΎΠ²Π°Π½. Π Π½Π΅ΡΡΡΠ΅ΠΉ ΡΡΠ΅Π½Π΅ ΠΌΠ΅ΠΆΠ΄Ρ ΠΊΡΡ
Π½Π΅ΠΉ ΠΈ ΠΊΠΎΠΌΠ½Π°ΡΠΎΠΉ Π±ΡΠ» ΡΠ΄Π΅Π»Π°Π½ ΠΏΡΠΎΠ΅ΠΌ ΡΠΈΡΠΈΠ½ΠΎΠΉ 80 ΡΠΌ.
ΠΡΠΈ ΡΡΠΎΠΌ ΠΊΠΎΡΠΈΠ΄ΠΎΡ ΡΠ»Π΅Π³ΠΊΠ° ΡΠ°ΡΡΠΈΡΠΈΠ»ΠΈ Π½Π° ΠΊΡΡ
Π½Ρ ΡΠ°ΠΊ, ΡΡΠΎΠ±Ρ Π½ΠΎΠ²ΡΠΉ Π²Ρ
ΠΎΠ΄ ΠΈΠ· ΠΊΠΎΠΌΠ½Π°ΡΡ Π²Π΅Π» Π² ΠΊΠΎΡΠΈΠ΄ΠΎΡ. Π‘Π°ΠΌΡ ΠΊΠΎΠΌΠ½Π°ΡΡ ΡΠ²Π΅Π»ΠΈΡΠΈΠ»ΠΈ Π·Π° ΡΡΠ΅Ρ ΠΏΡΠΈΡ
ΠΎΠΆΠ΅ΠΉ.
2) ΠΠ΅ΡΠ΅ΠΏΠ»Π°Π½ΠΈΡΠΎΠ²ΠΊΠ° 1Β ΠΊΠΎΠΌΠ½Π°ΡΠ½ΠΎΠΉ ΠΊΠ²Π°ΡΡΠΈΡΡ Π² ΠΏΠ°Π½Π΅Π»ΡΠ½ΠΎΠΌ Π΄ΠΎΠΌΠ΅ Π-47
Π‘Π°Π½ΡΠ·Π΅Π» ΠΎΠ±ΡΠ΅Π΄ΠΈΠ½Π΅Π½ Ρ Π²Π°Π½Π½ΠΎΠΉ Π±Π΅Π· ΡΠ°ΡΡΠΈΡΠ΅Π½ΠΈΡ Π½Π° ΠΊΠΎΡΠΈΠ΄ΠΎΡ. Π§Π°ΡΡΡ ΠΊΠΎΠΌΠ½Π°ΡΡ ΠΎΡΠ΄Π°Π½Π° ΠΏΠΎΠ΄ Π³Π°ΡΠ΄Π΅ΡΠΎΠ±Π½ΡΡ. ΠΡ ΠΎΠ΄ Π² ΠΊΠΎΠΌΠ½Π°ΡΡ ΡΠ°ΡΡΠΈΡΠ΅Π½, Π° Π΄Π²Π΅ΡΡ ΡΠ±ΡΠ°Π½Π°.Β
3) ΠΠ΅ΡΠ΅ΠΏΠ»Π°Π½ΠΈΡΠΎΠ²ΠΊΠ° ΠΎΠ΄Π½ΠΎΠΊΠΎΠΌΠ½Π°ΡΠ½ΠΎΠΉ ΠΊΠ²Π°ΡΡΠΈΡΡ Π² Π΄ΠΎΠΌΠ΅ ΡΠ΅ΡΠΈΠΈ Π-155:
ΠΠ΅ΡΠ΅ΡΠ΅Π½Ρ ΡΠ°Π±ΠΎΡ ΠΏΠΎ ΠΏΡΠΎΠ΅ΠΊΡΡ ΠΏΠ΅ΡΠ΅ΠΏΠ»Π°Π½ΠΈΡΠΎΠ²ΠΊΠΈ ΠΎΠ΄Π½ΠΎΠΊΠΎΠΌΠ½Π°ΡΠ½ΠΎΠΉ ΠΊΠ²Π°ΡΡΠΈΡΡ Π²ΠΊΠ»ΡΡΠ°Π» Π΄Π΅ΠΌΠΎΠ½ΡΠ°ΠΆ Π±Π°Π»ΠΊΠΎΠ½Π½ΠΎΠ³ΠΎ ΠΎΠΊΠΎΠ½Π½ΠΎ-Π΄Π²Π΅ΡΠ½ΠΎΠ³ΠΎ Π±Π»ΠΎΠΊΠ° Ρ ΡΠΎΡ ΡΠ°Π½Π΅Π½ΠΈΠ΅ΠΌ ΠΏΠΎΠ΄ΠΎΠΊΠΎΠ½Π½ΠΎΠΉ Π·ΠΎΠ½Ρ ΠΈ ΠΏΠΎΡΠ»Π΅Π΄ΡΡΡΠ΅ΠΉ ΡΡΡΠ°Π½ΠΎΠ²ΠΊΠΎΠΉ Π΅Π΄ΠΈΠ½ΠΎΠ³ΠΎ Π±Π»ΠΎΠΊΠ° ΠΈΠ· ΡΡΠ΅ΠΊΠ»ΠΎΠΏΠ°ΠΊΠ΅ΡΠΎΠ². ΠΡΠ»Π° ΡΠ°ΡΡΠΈΡΠ½ΠΎ Π΄Π΅ΠΌΠΎΠ½ΡΠΈΡΠΎΠ²Π°Π½Π° ΠΏΠ΅ΡΠ΅Π³ΠΎΡΠΎΠ΄ΠΊΠ° ΠΌΠ΅ΠΆΠ΄Ρ ΠΊΡΡ Π½Π΅ΠΉ ΠΈ ΠΊΠΎΠΌΠ½Π°ΡΠΎΠΉ — ΡΠ½Π΅ΡΠ΅Π½Π½ΡΡ ΡΠ°ΡΡΡ Π·Π°ΠΌΠ΅Π½ΠΈΠ»ΠΈ ΡΠ΄Π²ΠΈΠΆΠ½ΠΎΠΉ Π΄Π²Π΅ΡΡΡ.
ΠΠ°ΡΠ΄Π΅ΡΠΎΠ± Π² ΠΏΡΠΈΡ ΠΎΠΆΠ΅ΠΉ Π±ΡΠ» ΡΠ°ΡΡΠΈΡΠ½ΠΎ ΡΠ°ΡΡΠΈΡΠ΅Π½ Π·Π° ΡΡΠ΅Ρ ΠΊΠΎΠΌΠ½Π°ΡΡ. ΠΡ ΠΎΠ΄ Π² ΡΠΎΠ²ΠΌΠ΅ΡΠ΅Π½Π½ΡΠΉ ΡΠ°Π½ΡΠ·Π΅Π» ΡΠ΄Π²ΠΈΠ½ΡΠ»ΠΈ Π² ΡΡΠΎΡΠΎΠ½Ρ, Π° ΡΠ°Π½ΡΠ΅Ρ ΠΏΡΠΈΠ±ΠΎΡΡ ΠΏΠ΅ΡΠ΅ΠΌΠ΅ΡΡΠΈΠ»ΠΈ.Β
4) ΠΠ΅ΡΠ΅ΠΏΠ»Π°Π½ΠΈΡΠΎΠ²ΠΊΠ° ΠΎΠ΄Π½ΠΎΠΊΠΎΠΌΠ½Π°ΡΠ½ΠΎΠΉ ΠΊΠ²Π°ΡΡΠΈΡΡ Π² ΠΌΠΎΠ½ΠΎΠ»ΠΈΡΠ½ΠΎΠΉ Π½ΠΎΠ²ΠΎΡΡΡΠΎΠΉΠΊΠ΅:
ΠΡΠ»ΠΈ ΠΏΡΠΎΠ²Π΅Π΄Π΅Π½Ρ ΡΠ°Π±ΠΎΡΡ ΠΏΠΎ ΡΠ°ΡΡΠΈΡΠ΅Π½ΠΈΡ ΡΠ°Π½ΡΠ·Π»Π° Π½Π° ΠΊΠΎΡΠΈΠ΄ΠΎΡ ΠΈ ΡΡΡΠ°Π½ΠΎΠ²Π»Π΅Π½Ρ ΡΠ°Π½ΡΠ΅Ρ
Π½ΠΈΡΠ΅ΡΠΊΠΈΠ΅ ΠΏΡΠΈΠ±ΠΎΡΡ.
ΠΠ° ΠΊΡΡ
Π½Π΅ ΡΡΡΠ°Π½ΠΎΠ²ΠΈΠ»ΠΈ ΡΠ»Π΅ΠΊΡΡΠΎΠΏΠ»ΠΈΡΡ ΠΈ ΠΌΠΎΠΉΠΊΡ. ΠΠ΅ΠΆΠ΄Ρ ΠΊΠΎΠΌΠ½Π°ΡΠΎΠΉ ΠΈ ΠΊΠΎΡΠΈΠ΄ΠΎΡΠΎΠΌ ΠΈΠ·ΠΌΠ΅Π½ΠΈΠ»ΠΎΡΡ ΡΠ°ΡΠΏΠΎΠ»ΠΎΠΆΠ΅Π½ΠΈΠ΅ Π΄Π²Π΅ΡΠ½ΠΎΠ³ΠΎ ΠΏΡΠΎΠ΅ΠΌΠ° — ΡΠ΄Π°Π»ΠΈΠ»ΠΈ Π΄Π²Π΅ΡΠ½ΠΎΠΉ Π±Π»ΠΎΠΊ ΠΈ Π²ΠΎΠ·Π²Π΅Π»ΠΈ Π½ΠΎΠ²ΡΠ΅ Π½Π΅Π½Π΅ΡΡΡΠΈΠ΅ ΠΊΠΎΠ½ΡΡΡΡΠΊΡΠΈΠΈ. ΠΡΠΎΠΌΠ΅ ΡΠΎΠ³ΠΎ, ΡΠ°ΡΡΡ Π½Π΅Π½Π΅ΡΡΡΠ΅ΠΉ ΠΏΠ΅ΡΠ΅Π³ΠΎΡΠΎΠ΄ΠΊΠΈ, ΡΠ°Π·Π΄Π΅Π»ΡΠ²ΡΠ΅ΠΉ ΠΆΠΈΠ»ΠΎΠ΅ ΠΏΠΎΠΌΠ΅ΡΠ΅Π½ΠΈΠ΅ ΠΈ ΠΊΡΡ
Π½Ρ, Π΄Π΅ΠΌΠΎΠ½ΡΠΈΡΠΎΠ²Π°Π»ΠΈ, Π° Π·Π°ΡΠ΅ΠΌ ΠΏΠΎΡΡΠ°Π²ΠΈΠ»ΠΈ ΡΠ°Π·Π΄Π²ΠΈΠΆΠ½ΡΠ΅ Π΄Π²Π΅ΡΠΈ.
Β Β
5) ΠΡΠ΅ ΠΎΠ΄ΠΈΠ½ ΠΏΡΠΈΠΌΠ΅Ρ ΠΏΠ΅ΡΠ΅ΠΏΠ»Π°Π½ΠΈΡΠΎΠ²ΠΊΠΈ ΠΎΠ΄Π½ΠΎΠΊΠΎΠΌΠ½Π°ΡΠ½ΠΎΠΉ ΠΊΠ²Π°ΡΡΠΈΡΡ Π² ΠΌΠΎΠ½ΠΎΠ»ΠΈΡΠ½ΠΎΠΌ Π΄ΠΎΠΌΠ΅:
Π’ΡΠ°Π»Π΅Ρ ΠΈ Π²Π°Π½Π½ΡΡ ΠΎΠ±ΡΠ΅Π΄ΠΈΠ½ΠΈΠ»ΠΈ, ΡΠ°Π·ΠΎΠ±ΡΠ°Π² ΡΠ°Π·Π΄Π΅Π»ΡΠ²ΡΡΡ ΠΈΡ ΠΏΠ΅ΡΠ΅Π³ΠΎΡΠΎΠ΄ΠΊΡ. Π ΡΠΎΠ²ΠΌΠ΅ΡΠ΅Π½Π½ΠΎΠΌ ΡΠ°Π½ΡΠ·Π»Π΅ ΡΡΡΠ°Π½ΠΎΠ²ΠΈΠ»ΠΈ ΡΠ°Π½ΡΠ΅Ρ Π½ΠΈΠΊΡ, Π° Π½Π° ΠΊΡΡ Π½Π΅ ΠΌΠΎΠΉΠΊΡ ΠΈ ΡΠ»Π΅ΠΊΡΡΠΎΠΏΠ»ΠΈΡΡ. ΠΠ΅ΡΠ΅Π½Π΅ΡΠ»ΠΈ ΠΏΡΠΎΠ΅ΠΌ ΠΈΠ· ΠΊΠΎΡΠΈΠ΄ΠΎΡΠ° Π½Π° ΠΊΡΡ Π½Ρ. ΠΠ·ΠΌΠ΅Π½ΠΈΠ»ΠΈ ΠΏΠΎΠ»ΠΎΠΆΠ΅Π½ΠΈΠ΅ Π΄Π²Π΅ΡΠ½ΠΎΠ³ΠΎ ΠΏΡΠΎΠ΅ΠΌΠ° ΠΌΠ΅ΠΆΠ΄Ρ ΠΊΠΎΠΌΠ½Π°ΡΠΎΠΉ ΠΈ ΠΊΠΎΡΠΈΠ΄ΠΎΡΠΎΠΌ.
Β Β
6) ΠΠ΅ΡΠ΅ΠΏΠ»Π°Π½ΠΈΡΠΎΠ²ΠΊΠ° ΠΎΠ΄Π½ΠΎΠΊΠΎΠΌΠ½Π°ΡΠ½ΠΎΠΉ ΠΊΠ²Π°ΡΡΠΈΡΡ Ρ ΠΏΠ΅ΡΠ΅Π½ΠΎΡΠΎΠΌ ΡΠ°Π½ΡΠ·Π»Π°:
ΠΠ° ΠΌΠ΅ΡΡΠΎ Π΄Π²ΡΡ Π²ΡΡΡΠΎΠ΅Π½Π½ΡΡ ΡΠΊΠ°ΡΠΎΠ² ΠΈ ΡΠ°ΡΡΠΈ ΠΏΠ»ΠΎΡΠ°Π΄ΠΈ ΠΊΠΎΡΠΈΠ΄ΠΎΡΠ° ΠΏΠ΅ΡΠ΅Π½Π΅ΡΠ»ΠΈ ΡΠΎΠ²ΠΌΠ΅ΡΠ΅Π½Π½ΡΠΉ ΡΠ°Π½ΡΠ·Π΅Π». ΠΡΠΎΡΡΡΠ°Π½ΡΡΠ²ΠΎ, ΠΊΠΎΡΠΎΡΠΎΠ΅ ΡΠ°Π½ΡΡΠ΅ Π·Π°Π½ΠΈΠΌΠ°Π»ΠΈ ΠΎΠ±ΡΠ΅Π΄ΠΈΠ½Π΅Π½Π½ΡΠ΅ ΡΡΠ°Π»Π΅Ρ ΠΈ Π²Π°Π½Π½Π°Ρ, ΠΈΡΠΏΠΎΠ»ΡΠ·ΠΎΠ²Π°Π»ΠΈ ΠΏΠΎΠ΄ ΡΡΡΡΠΎΠΉΡΡΠ²ΠΎ ΠΊΡΡ Π½ΠΈ-Π½ΠΈΡΠΈ, Π° ΠΆΠΈΠ»ΡΡ ΠΊΠΎΠΌΠ½Π°ΡΡ ΠΎΡΠ³Π°Π½ΠΈΠ·ΠΎΠ²Π°Π»ΠΈ ΡΠ°ΠΌ, Π³Π΄Π΅ Π΄ΠΎ ΡΡΠΎΠ³ΠΎ Π±ΡΠ»Π° ΠΊΡΡ Π½Ρ. ΠΡΠΎΠΌΠ΅ ΡΠΎΠ³ΠΎ, Π² ΡΠ΅Π·ΡΠ»ΡΡΠ°ΡΠ΅ ΠΏΠ΅ΡΠ΅ΠΏΠ»Π°Π½ΠΈΡΠΎΠ²ΠΊΠΈ ΠΏΠΎΠ»ΡΡΠΈΠ»Π°ΡΡ ΠΏΡΠΎΡΡΠΎΡΠ½Π°Ρ ΠΊΠΎΠΌΠ½Π°ΡΠ° Π΄Π»Ρ ΠΏΡΠΈΠ΅ΠΌΠ° Π³ΠΎΡΡΠ΅ΠΉ.
Β Β
ΠΠ°ΡΠΈΠ°Π½ΡΡ ΠΏΠ΅ΡΠ΅ΠΏΠ»Π°Π½ΠΈΡΠΎΠ²ΠΊΠΈ ΠΎΠ΄Π½ΠΎΠΊΠΎΠΌΠ½Π°ΡΠ½ΠΎΠΉ ΠΊΠ²Π°ΡΡΠΈΡΡ Π² Π΄Π²ΡΡ ΠΊΠΎΠΌΠ½Π°ΡΠ½ΡΡ
ΠΠ΅ΡΠ΅Π΄ΠΊΠΎ Π»ΡΠ΄ΠΈ, ΡΡΠ°Π²ΡΠΈΠ΅ ΠΎΠ±Π»Π°Π΄Π°ΡΠ΅Π»ΡΠΌΠΈ ΠΏΡΠΎΡΡΠΎΡΠ½ΠΎΠΉ ΠΎΠ΄Π½ΠΎΠΊΠΎΠΌΠ½Π°ΡΠ½ΠΎΠΉ ΠΊΠ²Π°ΡΡΠΈΡΡ, ΡΠΎ Π²ΡΠ΅ΠΌΠ΅Π½Π΅ΠΌ Π½Π°ΡΠΈΠ½Π°ΡΡ Π·Π°Π΄ΡΠΌΡΠ²Π°ΡΡΡΡ β Π½Π΅Π»ΡΠ·Ρ Π»ΠΈ ΡΠ°Π·Π΄Π΅Π»ΠΈΡΡ ΠΎΠ΄Π½Ρ ΠΏΡΠΎΡΡΠΎΡΠ½ΡΡ ΠΊΠΎΠΌΠ½Π°ΡΡ, ΠΏΠΎΠ»ΡΡΠΈΠ² ΡΠ΅ΠΌ ΡΠ°ΠΌΡΠΌ Π΄Π²Π΅?
ΠΠ° ΡΠ°ΠΌΠΎΠΌ Π΄Π΅Π»Π΅ ΡΡΠΎ Π²ΠΏΠΎΠ»Π½Π΅ Π²ΠΎΠ·ΠΌΠΎΠΆΠ½ΠΎ, Π½ΠΎ ΠΏΠ΅ΡΠ΅ΠΏΠ»Π°Π½ΠΈΡΠΎΠ²ΠΊΠ° ΠΎΠ΄Π½ΠΎΠΊΠΎΠΌΠ½Π°ΡΠ½ΠΎΠΉ ΠΊΠ²Π°ΡΡΠΈΡΡ Π² Π΄Π²ΡΡ
ΠΊΠΎΠΌΠ½Π°ΡΠ½ΡΡ Π΄ΠΎΠ»ΠΆΠ½Π° ΠΏΡΠΎΠ²ΠΎΠ΄ΠΈΡΡΡΡ ΠΎΠΏΡΡΠ½ΡΠΌΠΈ ΡΠΏΠ΅ΡΠΈΠ°Π»ΠΈΡΡΠ°ΠΌΠΈ, ΡΡΠΎΠ±Ρ Π²ΠΏΠΎΡΠ»Π΅Π΄ΡΡΠ²ΠΈΠΈ Π½Π΅ Π±ΡΠ»ΠΎ ΠΏΡΠΈΡΠΈΠ½ Π΄Π»Ρ ΡΠΎΠΆΠ°Π»Π΅Π½ΠΈΡ.
Π’ΠΎΠ³Π΄Π° ΠΏΠΎΡΠ»Π΅ ΠΎΠΊΠΎΠ½ΡΠ°Π½ΠΈΡ ΡΠ΅ΠΌΠΎΠ½ΡΠ½ΡΡ ΡΠ°Π±ΠΎΡ Π²Ρ ΠΏΠΎΠ»ΡΡΠΈΡΠ΅ Π΄Π²Π΅ Π½Π΅ ΡΠ»ΠΈΡΠΊΠΎΠΌ Π±ΠΎΠ»ΡΡΠΈΡ , Π½ΠΎ ΠΎΡΠ΄Π΅Π»ΡΠ½ΡΡ ΠΊΠΎΠΌΠ½Π°ΡΡ. ΠΡΠΎ ΠΌΠΎΠΆΠ΅Ρ Π±ΡΡΡ Π³ΠΎΡΡΠΈΠ½Π°Ρ ΠΈ ΡΠΏΠ°Π»ΡΠ½Ρ, Π³ΠΎΡΡΠΈΠ½Π°Ρ ΠΈ ΠΊΠ°Π±ΠΈΠ½Π΅Ρ ΠΈΠ»ΠΈ ΠΆΠ΅ Π³ΠΎΡΡΠΈΠ½Π°Ρ ΠΈ Π΄Π΅ΡΡΠΊΠ°Ρ ΠΊΠΎΠΌΠ½Π°ΡΠ°.
ΠΡΠΈΠΌΠ΅Ρ ΠΏΠ΅ΡΠ΅ΠΏΠ»Π°Π½ΠΈΡΠΎΠ²ΠΊΠ° ΠΎΠ΄Π½ΠΎΠΊΠΎΠΌΠ½Π°ΡΠ½ΠΎΠΉ ΠΊΠ²Π°ΡΡΠΈΡΡΠΠ° ΡΠ΅Π³ΠΎΠ΄Π½ΡΡΠ½ΠΈΠΉ Π΄Π΅Π½Ρ ΡΡΡΠ΅ΡΡΠ²ΡΠ΅Ρ ΠΎΠ³ΡΠΎΠΌΠ½ΠΎΠ΅ ΠΊΠΎΠ»ΠΈΡΠ΅ΡΡΠ²ΠΎ ΡΠ°ΠΌΡΡ ΡΠ°Π·Π½ΡΡ Π²Π°ΡΠΈΠ°Π½ΡΠΎΠ², ΠΏΠΎΡΡΠΎΠΌΡ Π΄Π»Ρ ΠΊΠ°ΠΆΠ΄ΠΎΠ³ΠΎ ΠΊΠΎΠ½ΠΊΡΠ΅ΡΠ½ΠΎΠ³ΠΎ ΡΠ»ΡΡΠ°Ρ ΠΌΠΎΠΆΠ½ΠΎ ΠΏΠΎΠ΄ΠΎΠ±ΡΠ°ΡΡ ΠΏΠΎΠ΄Ρ ΠΎΠ΄ΡΡΠ΅Π΅ ΡΠ΅ΡΠ΅Π½ΠΈΠ΅. ΠΡΠΈ ΠΏΡΠ°Π²ΠΈΠ»ΡΠ½ΠΎΠΌ ΠΏΠΎΠ΄Ρ ΠΎΠ΄Π΅ ΠΊ ΠΏΠ΅ΡΠ΅ΠΏΠ»Π°Π½ΠΈΡΠΎΠ²ΠΊΠ΅, ΠΌΠΎΠΆΠ½ΠΎ ΠΏΡΠ΅Π²ΡΠ°ΡΠΈΡΡ ΠΎΠ΄Π½ΠΎΠΊΠΎΠΌΠ½Π°ΡΠ½ΡΡ ΠΊΠ²Π°ΡΡΠΈΡΡ Π² ΡΡΡΠ½ΡΡ Π΄Π²ΡΡ ΠΊΠΎΠΌΠ½Π°ΡΠ½ΡΡ, Π½Π΅ ΡΡΠ°ΡΡ Π²ΡΠ΅ΠΌΡ Π½Π° ΡΠΎΠ³Π»Π°ΡΠΎΠ²Π°Π½ΠΈΠ΅ ΠΏΡΠΎΠ²Π΅Π΄Π΅Π½ΠΈΡ ΡΠ°Π±ΠΎΡ Ρ ΡΠ°Π·Π»ΠΈΡΠ½ΡΠΌΠΈ ΠΎΡΠ³Π°Π½ΠΈΠ·Π°ΡΠΈΡΠΌΠΈ.
ΠΡΡ, ΡΡΠΎ Π΄Π»Ρ ΡΡΠΎΠ³ΠΎ ΡΡΠ΅Π±ΡΠ΅ΡΡΡ, β Π½Π΅ Π·Π°ΡΡΠ°Π³ΠΈΠ²Π°ΡΡ ΠΏΡΠΈ ΡΠ°Π±ΠΎΡΠ΅ Π½Π΅ΡΡΡΠΈΠ΅ ΡΡΠ΅Π½Ρ. ΠΡΡΠ°Π»ΡΠ½ΡΠ΅ ΠΆΠ΅ ΠΏΠ΅ΡΠ΅Π΄Π΅Π»ΠΊΠΈ Π² ΠΊΠ²Π°ΡΡΠΈΡΠ΅ ΠΌΠΎΠ³ΡΡ ΠΏΡΠΎΠ²ΠΎΠ΄ΠΈΡΡΡΡ ΠΏΠΎ ΠΆΠ΅Π»Π°Π½ΠΈΡ Π²Π»Π°Π΄Π΅Π»ΡΡΠ°.
ΠΠ΅ΡΠ½ΡΡΡΡΡ ΠΊ ΠΎΠ³Π»Π°Π²Π»Π΅Π½ΠΈΡΠ‘ΠΎΠ΄Π΅ΡΠΆΠ°Π½ΠΈΠ΅ ΠΌΠ°ΡΠ΅ΡΠΈΠ°Π»Π°
ΠΠ°ΠΊ ΠΏΡΠ°Π²ΠΈΠ»ΡΠ½ΠΎ ΠΏΡΠΎΠ²ΠΎΠ΄ΠΈΡΡ ΠΏΠ΅ΡΠ΅ΠΏΠ»Π°Π½ΠΈΡΠΎΠ²ΠΊΡ
ΠΠΎΠ»ΡΡΠΈΠ½ΡΡΠ²ΠΎ ΠΏΠ»Π°Π½ΠΈΡΠΎΠ²ΠΎΠΊ ΡΡΠ°Π½Π΄Π°ΡΡΠ½ΡΡ ΠΎΠ΄Π½ΠΎΠΊΠΎΠΌΠ½Π°ΡΠ½ΡΡ ΠΊΠ²Π°ΡΡΠΈΡ ΠΈΠΌΠ΅Π΅Ρ Π»ΠΈΡΡ ΠΎΠ΄Π½Ρ ΡΡΠ΅Π½Ρ Ρ ΠΎΠΊΠ½ΠΎΠΌ. ΠΠΎΡΡΠΎΠΌΡ ΠΈΠ· Π΄Π²ΡΡ ΠΊΠΎΠΌΠ½Π°Ρ, ΠΊΠΎΡΠΎΡΡΠ΅ ΠΏΠΎΠ»ΡΡΠ°ΡΡΡΡ ΠΏΠΎΡΠ»Π΅ ΠΏΠ΅ΡΠ΅ΠΏΠ»Π°Π½ΠΈΡΠΎΠ²ΠΊΠΈ, ΡΠΎΠ»ΡΠΊΠΎ ΠΎΠ΄Π½Π° Π±ΡΠ΄Π΅Ρ ΠΈΠΌΠ΅ΡΡ Π΅ΡΡΠ΅ΡΡΠ²Π΅Π½Π½ΠΎΠ΅ ΠΎΡΠ²Π΅ΡΠ΅Π½ΠΈΠ΅.
ΠΠ΅ΡΠ΅ΠΏΠ»Π°Π½ΠΈΡΠΎΠ²ΠΊΠ° Ρ ΠΏΡΠΎΡΡΠΎΡΠ½ΡΠΌΠΈ ΠΊΠΎΠΌΠ½Π°ΡΠ°ΠΌΠΈΠΡΠΎ ΡΠ²Π»ΡΠ΅ΡΡΡ ΠΏΡΠΈΠ΅ΠΌΠ»Π΅ΠΌΡΠΌ Π²Π°ΡΠΈΠ°Π½ΡΠΎΠΌ, Π²Π΅Π΄Ρ Π΅ΡΠ»ΠΈ ΡΠ°Π·Π΄Π΅Π»ΡΡΡ ΠΏΠΎΠΌΠ΅ΡΠ΅Π½ΠΈΠ΅ Π½Π΅ ΠΏΠΎΠΏΠ΅ΡΡΠΊ, Π° Π²Π΄ΠΎΠ»Ρ, ΠΌΠΎΠΆΠ½ΠΎ ΠΏΠΎΠ»ΡΡΠΈΡΡ Π΄Π²Π΅ ΠΊΠΎΠΌΠ½Π°ΡΡ, Π² ΠΊΠ°ΠΆΠ΄ΠΎΠΉ ΠΈΠ· ΠΊΠΎΡΠΎΡΡΡ Π±ΡΠ΄Π΅Ρ ΠΏΠΎ ΠΏΠΎΠ»ΠΎΠ²ΠΈΠ½Π΅ ΠΎΠΊΠ½Π°, ΠΎΠ΄Π½Π°ΠΊΠΎ ΠΊΠΎΠΌΠ½Π°ΡΡ Π±ΡΠ΄ΡΡ Π½Π°ΡΡΠΎΠ»ΡΠΊΠΎ ΡΠ·ΠΊΠΈΠΌΠΈ, ΡΡΠΎ Π½Π°Ρ ΠΎΠ΄ΠΈΡΡΡΡ Π² Π½ΠΈΡ Π±ΡΠ΄Π΅Ρ ΡΠΎΠ²Π΅ΡΡΠ΅Π½Π½ΠΎ Π½Π΅ΠΊΠΎΠΌΡΠΎΡΡΠ½ΠΎ, Π° ΡΡΡΠ°Π½ΠΎΠ²ΠΈΡΡ ΠΊΠ°ΠΊΡΡ-Π»ΠΈΠ±ΠΎ ΠΌΠ΅Π±Π΅Π»Ρ β ΠΏΡΠΎΡΡΠΎ Π½Π΅Π²ΠΎΠ·ΠΌΠΎΠΆΠ½ΠΎ.
ΠΡΠΈΠΌΠ΅Ρ ΠΏΠ΅ΡΠ΅ΠΏΠ»Π°Π½ΠΈΡΠΎΠ²ΠΊΠΈ ΠΎΠ΄Π½ΠΎΠΊΠΎΠΌΠ½Π°ΡΠ½ΠΎΠΉ ΠΊΠ²Π°ΡΡΠΈΡΡ Π²Π΄ΠΎΠ»ΡΠΠΏΡΠΎΡΠ΅ΠΌ, ΡΡΠΎ ΠΊΠ°ΡΠ°Π΅ΡΡΡ Π±ΠΎΠ»ΡΡΠΈΠ½ΡΡΠ²Π° ΡΠΈΠΏΠΎΠ²ΡΡ ΠΊΠ²Π°ΡΡΠΈΡ, Π½ΠΎ Π½Π΅ Π²ΡΠ΅Ρ . ΠΠΎΠ»Π΅Π΅ ΠΊΠΎΠ½ΠΊΡΠ΅ΡΠ½ΠΎΠ΅ ΠΌΠ½Π΅Π½ΠΈΠ΅ ΠΎΠΏΡΡΠ½ΡΠΉ Π΄ΠΈΠ·Π°ΠΉΠ½Π΅Ρ ΡΠΌΠΎΠΆΠ΅Ρ ΡΠΎΡΡΠ°Π²ΠΈΡΡ Π»ΠΈΡΡ ΠΏΠΎΡΠ»Π΅ ΠΎΡΠΌΠΎΡΡΠ° ΠΊΠ²Π°ΡΡΠΈΡΡ, Π² ΠΊΠΎΡΠΎΡΠΎΠΉ Π±ΡΠ΄Π΅Ρ ΠΏΡΠΎΠ²ΠΎΠ΄ΠΈΡΡΡΡ ΠΏΠ΅ΡΠ΅ΠΏΠ»Π°Π½ΠΈΡΠΎΠ²ΠΊΠ°.
ΠΠ΅ΡΠ½ΡΡΡΡΡ ΠΊ ΠΎΠ³Π»Π°Π²Π»Π΅Π½ΠΈΡΠ Π°Π·Π΄Π΅Π»ΡΠ΅ΠΌ ΠΊΠΎΠΌΠ½Π°ΡΡ Π³ΠΈΠΏΡΠΎΠΊΠ°ΡΡΠΎΠ½ΠΎΠΌ
ΠΠ΄Π½ΠΈΠΌ ΠΈΠ· ΡΠ°ΠΌΡΡ ΠΏΡΠΎΡΡΡΡ , Π° Π²ΠΌΠ΅ΡΡΠ΅ Ρ ΡΠ΅ΠΌ Π΄Π΅ΡΡΠ²ΡΡ , ΠΈ ΠΏΠΎΡΠΎΠΌΡ Π²Π΅ΡΡΠΌΠ° ΠΏΠΎΠΏΡΠ»ΡΡΠ½ΡΡ Π²Π°ΡΠΈΠ°Π½ΡΠΎΠ² ΠΏΠ΅ΡΠ΅ΠΏΠ»Π°Π½ΠΈΡΠΎΠ²ΠΊΠΈ ΡΠ²Π»ΡΠ΅ΡΡΡ ΡΡΡΠ°Π½ΠΎΠ²ΠΊΠ° ΠΏΠ΅ΡΠ΅Π³ΠΎΡΠΎΠ΄ΠΊΠΈ ΠΈΠ· Π³ΠΈΠΏΡΠΎΠΊΠ°ΡΡΠΎΠ½Π°. ΠΠ½Π° ΡΡΡΠ°Π½Π°Π²Π»ΠΈΠ²Π°Π΅ΡΡΡ ΠΏΠΎΠΏΠ΅ΡΡΠΊ ΠΏΠΎΠΌΠ΅ΡΠ΅Π½ΠΈΡ, ΠΏΠΎΡΠ»Π΅ ΡΠ΅Π³ΠΎ Π² ΠΏΠ΅ΡΠ΅Π³ΠΎΡΠΎΠ΄ΠΊΠ΅ ΠΏΡΠΎΡΡΠ±Π°Π΅ΡΡΡ Π΄Π²Π΅ΡΡ.
Π ΡΠ΅Π·ΡΠ»ΡΡΠ°ΡΠ΅ Π²Π»Π°Π΄Π΅Π»Π΅Ρ ΠΆΠΈΠ»ΡΡ ΠΏΠΎΠ»ΡΡΠΈΡ Π΄Π²Π΅ Π½Π΅Π±ΠΎΠ»ΡΡΠΈΠ΅ ΠΊΠΎΠΌΠ½Π°ΡΡ, ΠΊΠΎΡΠΎΡΡΠ΅ ΠΌΠΎΠΆΠ΅Ρ ΠΎΠ±ΡΡΡΡΠΎΠΈΡΡ ΠΈ ΠΈΡΠΏΠΎΠ»ΡΠ·ΠΎΠ²Π°ΡΡ ΠΏΠΎ ΡΠΎΠ±ΡΡΠ²Π΅Π½Π½ΠΎΠΌΡ ΡΡΠΌΠΎΡΡΠ΅Π½ΠΈΡ. ΠΠ»Ρ ΠΌΠΎΠ½ΡΠ°ΠΆΠ° Π³ΠΈΠΏΡΠΎΠΊΠ°ΡΡΠΎΠ½Π½ΠΎΠΉ ΠΏΠ΅ΡΠ΅Π³ΠΎΡΠΎΠ΄ΠΊΠΈ ΠΈΡΠΏΠΎΠ»ΡΠ·ΡΠ΅ΡΡΡ ΠΌΠ΅ΡΠ°Π»Π»ΠΈΡΠ΅ΡΠΊΠΈΠΉ ΠΏΡΠΎΡΠΈΠ»Ρ, Π²ΡΡΡΡΠΏΠ°ΡΡΠΈΠΉ Π² ΡΠΎΠ»ΠΈ ΠΎΡΠ½ΠΎΠ²Π½ΠΎΠΉ Π½Π΅ΡΡΡΠ΅ΠΉ ΠΊΠΎΠ½ΡΡΡΡΠΊΡΠΈΠΈ. Π ΠΏΡΠΎΡΠΈΠ»Ρ ΠΊΡΠ΅ΠΏΠΈΡΡΡ Π³ΠΈΠΏΡΠΎΠΊΠ°ΡΡΠΎΠ½.
ΠΡΠΈ Π½Π΅ΠΎΠ±Ρ ΠΎΠ΄ΠΈΠΌΠΎΡΡΠΈ ΠΌΠ΅ΠΆΠ΄Ρ Π»ΠΈΡΡΠ°ΠΌΠΈ ΠΌΠΎΠΆΠ½ΠΎ ΡΠ»ΠΎΠΆΠΈΡΡ Π·Π²ΡΠΊΠΎΠΈΠ·ΠΎΠ»ΡΡΠΈΠΎΠ½Π½ΡΠΉ ΠΌΠ°ΡΠ΅ΡΠΈΠ°Π». Π’ΠΎΠ³Π΄Π° ΠΎΠ±ΠΈΡΠ°ΡΠ΅Π»ΠΈ ΠΎΠ±Π΅ΠΈΡ ΠΊΠΎΠΌΠ½Π°Ρ ΡΠΌΠΎΠ³ΡΡ Π½Π΅ ΠΌΠ΅ΡΠ°ΡΡ Π΄ΡΡΠ³ Π΄ΡΡΠ³Ρ ΡΡΠΌΠΎΠΌ, ΠΊΠΎΡΠΎΡΡΠΉ Π»Π΅Π³ΠΊΠΎ ΠΏΡΠΎΠ½ΠΈΠΊΠ°Π΅Ρ ΡΠ΅ΡΠ΅Π· ΠΏΡΡΡΠΎΡΠ΅Π»ΡΠ΅ ΠΏΠ΅ΡΠ΅Π³ΠΎΡΠΎΠ΄ΠΊΠΈ.
ΠΠ»Π°Π²Π½ΡΠΌΠΈ ΠΏΠ»ΡΡΠ°ΠΌΠΈ ΡΡΠΎΠ³ΠΎ Π²Π°ΡΠΈΠ°Π½ΡΠ°, ΠΊΠ°ΠΊ ΡΠΆΠ΅ Π³ΠΎΠ²ΠΎΡΠΈΠ»ΠΎΡΡ Π²ΡΡΠ΅, ΡΠ²Π»ΡΠ΅ΡΡΡ ΠΏΡΠΎΡΡΠΎΡΠ° ΠΈ Π½ΠΈΠ·ΠΊΠ°Ρ ΡΡΠΎΠΈΠΌΠΎΡΡΡ. ΠΠ΄Π½Π°ΠΊΠΎ Π·Π΄Π΅ΡΡ ΠΈΠΌΠ΅ΡΡΡΡ ΠΈ ΠΎΠΏΡΠ΅Π΄Π΅Π»ΡΠ½Π½ΡΠ΅ Π½Π΅Π΄ΠΎΡΡΠ°ΡΠΊΠΈ. ΠΠ°ΠΏΡΠΈΠΌΠ΅Ρ, ΠΏΡΠΈ ΡΡΡΠ°Π½ΠΎΠ²ΠΊΠ΅ Π³ΠΈΠΏΡΠΎΠΊΠ°ΡΡΠΎΠ½Π½ΠΎΠΉ ΠΏΠ΅ΡΠ΅Π³ΠΎΡΠΎΠ΄ΠΊΠΈ, Π΅ΡΡΠ΅ΡΡΠ²Π΅Π½Π½ΠΎΠ΅ ΠΎΡΠ²Π΅ΡΠ΅Π½ΠΈΠ΅ Π±ΡΠ΄Π΅Ρ Π·Π°ΡΡΠ°Π³ΠΈΠ²Π°ΡΡ Π»ΠΈΡΡ ΠΎΠ΄Π½Ρ ΠΈΠ· ΠΊΠΎΠΌΠ½Π°Ρ β ΡΡ, Π² ΠΊΠΎΡΠΎΡΠΎΠΉ ΠΎΡΡΠ°ΡΡΡΡ ΠΎΠΊΠ½ΠΎ. ΠΠΎΡΡΠΎΠΌΡ ΠΏΡΠΈΠ΄ΡΡΡΡ ΡΡΠ°ΡΠ΅Π»ΡΠ½ΠΎ ΠΏΡΠΎΠ΄ΡΠΌΠ°ΡΡ ΡΠΈΡΡΠ΅ΠΌΡ ΠΈΡΠΊΡΡΡΡΠ²Π΅Π½Π½ΠΎΠ³ΠΎ ΠΎΡΠ²Π΅ΡΠ΅Π½ΠΈΡ β ΡΠ°ΡΠΏΠΎΠ»ΠΎΠΆΠΈΡΡ ΡΠ²Π΅ΡΠΈΠ»ΡΠ½ΠΈΠΊΠΈ ΡΠ°ΠΊΠΈΠΌ ΠΎΠ±ΡΠ°Π·ΠΎΠΌ, ΡΡΠΎΠ±Ρ ΠΎΠ½ΠΈ ΠΊΠ°ΡΠ΅ΡΡΠ²Π΅Π½Π½ΠΎ ΠΎΡΠ²Π΅ΡΠ°Π»ΠΈ Π²ΡΡ ΠΏΠΎΠΌΠ΅ΡΠ΅Π½ΠΈΠ΅.
ΠΠΏΡΠΎΡΠ΅ΠΌ, Π΅ΡΠ»ΠΈ Π²Π°ΠΌ Ρ ΠΎΡΠ΅ΡΡΡ, ΡΡΠΎΠ±Ρ Π΅ΡΡΠ΅ΡΡΠ²Π΅Π½Π½ΡΠΉ ΡΠ²Π΅Ρ ΠΏΡΠΎΠ½ΠΈΠΊΠ°Π» Π² ΠΎΠ±Π΅ ΠΊΠΎΠΌΠ½Π°ΡΡ, ΡΡΠΎ ΠΌΠΎΠΆΠ½ΠΎ ΠΏΠΎΡΡΡΠΎΠΈΡΡ. ΠΠΎ ΡΠ»ΠΎΠΆΠ½ΠΎΡΡΡ ΠΊΠΎΠ½ΡΡΡΡΠΊΡΠΈΠΈ ΠΏΠ΅ΡΠ΅Π³ΠΎΡΠΎΠ΄ΠΊΠΈ ΡΡΡΠ΅ΡΡΠ²Π΅Π½Π½ΠΎ Π²ΠΎΠ·ΡΠ°ΡΡΡΡ. Π Π½Π΅ΠΉ ΠΏΡΠΈΠ΄ΡΡΡΡ ΡΠ΄Π΅Π»Π°ΡΡ ΠΎΠΊΠΎΠ½Π½ΡΠΉ ΠΏΡΠΎΡΠΌ. ΠΠ»Ρ ΠΎΠ±Π΅ΡΠΏΠ΅ΡΠ΅Π½ΠΈΡ Ρ ΠΎΡΠΎΡΠ΅ΠΉ Π·Π²ΡΠΊΠΎΠΈΠ·ΠΎΠ»ΡΡΠΈΠΈ Π»ΡΡΡΠ΅ Π²ΡΠ΅Π³ΠΎ ΡΠ½Π°Π±Π΄ΠΈΡΡ ΡΡΠΎΡ ΠΏΡΠΎΡΠΌ ΡΡΠ΅ΠΊΠ»ΠΎΠΏΠ°ΠΊΠ΅ΡΠΎΠΌ. Π‘ΡΠΎΠΈΠΌΠΎΡΡΡ ΠΏΡΠΎΠ²Π΅Π΄Π΅Π½ΠΈΡ ΡΠ°Π±ΠΎΡ Π²ΠΎΠ·ΡΠ°ΡΡΡΡ, Π½ΠΎ ΠΎΠ½ΠΎ ΡΠΎΠ³ΠΎ ΡΡΠΎΠΈΡ β ΡΠ΅ΠΏΠ΅ΡΡ Π² ΠΎΠ±Π° ΠΏΠΎΠΌΠ΅ΡΠ΅Π½ΠΈΡ Π±ΡΠ΄Π΅Ρ ΠΏΡΠΎΠ½ΠΈΠΊΠ°ΡΡ ΡΠΎΠ»Π½Π΅ΡΠ½ΡΠΉ ΡΠ²Π΅Ρ.
ΠΡΠ΅Π½Ρ ΡΠ²Π΅ΡΠ»ΡΠΉ Π΄ΠΈΠ·Π°ΠΉΠ½ ΠΊΠ²Π°ΡΡΠΈΡΡ Ρ Π΅ΡΡΠ΅ΡΡΠ²Π΅Π½Π½ΡΠΌ ΠΎΡΠ²Π΅ΡΠ΅Π½ΠΈΠ΅ΠΌΠΠΎΠ³Π΄Π° Π²Ρ ΡΠΎΠ·Π΄Π°Π΄ΠΈΡΠ΅ ΠΈΠ· ΠΎΠ΄Π½ΠΎΠΊΠΎΠΌΠ½Π°ΡΠ½ΠΎΠΉ Π΄Π²ΡΡ ΠΊΠΎΠΌΠ½Π°ΡΠ½ΡΡ ΠΊΠ²Π°ΡΡΠΈΡΡ, ΠΏΠΎΠΌΠ΅ΡΠ΅Π½ΠΈΡ Π±ΡΠ΄ΡΡ Π½Π΅ ΡΠ»ΠΈΡΠΊΠΎΠΌ ΠΏΡΠΎΡΡΠΎΡΠ½ΡΠΌΠΈ. ΠΡΠΈΠ΄ΡΡΡΡ ΡΠΊΠΎΠ½ΠΎΠΌΠΈΡΡ ΠΊΠ°ΠΆΠ΄ΡΠΉ ΠΊΠ²Π°Π΄ΡΠ°ΡΠ½ΡΠΉ ΠΌΠ΅ΡΡ, Π½Π΅ΠΎΠ±Ρ ΠΎΠ΄ΠΈΠΌΡΠΉ Π½Π΅ ΡΠΎΠ»ΡΠΊΠΎ Π΄Π»Ρ ΡΡΡΠ°Π½ΠΎΠ²ΠΊΠΈ Π½Π΅ΠΎΠ±Ρ ΠΎΠ΄ΠΈΠΌΠΎΠΉ ΠΌΠ΅Π±Π΅Π»ΠΈ, Π½ΠΎ ΠΈ ΠΏΡΠΎΡΡΠΎ Π΄Π»Ρ ΠΊΠΎΠΌΡΠΎΡΡΠ½ΠΎΠ³ΠΎ ΠΏΡΠΎΠΆΠΈΠ²Π°Π½ΠΈΡ. ΠΠΎΡΡΠΎΠΌΡ ΠΎΠΏΡΡΠ½ΡΠ΅ Π΄ΠΈΠ·Π°ΠΉΠ½Π΅ΡΡ ΡΠ΅ΠΊΠΎΠΌΠ΅Π½Π΄ΡΡΡ ΡΡΡΠ°Π½Π°Π²Π»ΠΈΠ²Π°ΡΡ Π½Π΅ΡΡΠ°Π΄ΠΈΡΠΈΠΎΠ½Π½ΡΡ ΡΠ°ΡΠΏΠ°ΡΠ½ΡΡ Π΄Π²Π΅ΡΡ, Π° ΡΠ°Π·Π΄Π²ΠΈΠΆΠ½ΡΡ. Π’Π΅ΠΌ ΡΠ°ΠΌΡΠΌ Π²Ρ ΡΠΌΠΎΠΆΠ΅ΡΠ΅ ΡΡΠΊΠΎΠ½ΠΎΠΌΠΈΡΡ ΠΏΠΎΡΡΠΈ ΠΊΠ²Π°Π΄ΡΠ°ΡΠ½ΡΠΉ ΠΌΠ΅ΡΡ ΠΏΠ»ΠΎΡΠ°Π΄ΠΈ, ΠΊΠΎΡΠΎΡΡΠΉ ΠΌΠΎΠΆΠ½ΠΎ Π±ΡΠ΄Π΅Ρ ΠΈΡΠΏΠΎΠ»ΡΠ·ΠΎΠ²Π°ΡΡ Ρ Π±ΠΎΠ»ΡΡΠ΅ΠΉ ΠΏΠΎΠ»ΡΠ·ΠΎΠΉ.
ΠΠ΅ΡΠ½ΡΡΡΡΡ ΠΊ ΠΎΠ³Π»Π°Π²Π»Π΅Π½ΠΈΡΠ¨ΠΊΠ°Ρ-ΠΊΡΠΏΠ΅ Π²ΠΌΠ΅ΡΡΠΎ ΡΡΠ΅Π½Ρ
ΠΡΡ ΠΎΠ΄Π½ΠΈΠΌ ΡΠ΄Π°ΡΠ½ΡΠΌ ΡΠ΅ΡΠ΅Π½ΠΈΠ΅ΠΌ Π΄Π»Ρ ΠΏΡΠΎΠ²Π΅Π΄Π΅Π½ΠΈΡ ΠΏΠ΅ΡΠ΅ΠΏΠ»Π°Π½ΠΈΡΠΎΠ²ΠΊΠΈ ΠΊΠ²Π°ΡΡΠΈΡΡ ΠΌΠΎΠΆΠ½ΠΎ Π½Π°Π·Π²Π°ΡΡ ΡΠΊΠ°Ρ-ΠΊΡΠΏΠ΅. ΠΠ° ΡΠ΅Π³ΠΎΠ΄Π½ΡΡΠ½ΠΈΠΉ Π΄Π΅Π½Ρ ΠΌΠ½ΠΎΠ³ΠΈΠ΅ ΠΊΠΎΠΌΠΏΠ°Π½ΠΈΠΈ ΠΏΡΠ΅Π΄Π»Π°Π³Π°ΡΡ ΡΠ²ΠΎΠΈ ΡΡΠ»ΡΠ³ΠΈ ΠΏΠΎ ΠΈΠ·Π³ΠΎΡΠΎΠ²Π»Π΅Π½ΠΈΡ ΠΈ ΡΠ±ΠΎΡΠΊΠ΅ ΠΌΠ΅Π±Π΅Π»ΠΈ ΠΏΡΠ°ΠΊΡΠΈΡΠ΅ΡΠΊΠΈ Π»ΡΠ±ΠΎΠΉ ΠΊΠΎΠ½ΡΠΈΠ³ΡΡΠ°ΡΠΈΠΈ. Π Π²Π»Π°Π΄Π΅Π»ΡΡΡ ΠΎΠ΄Π½ΠΎΠΊΠΎΠΌΠ½Π°ΡΠ½ΠΎΠΉ ΠΊΠ²Π°ΡΡΠΈΡΡ ΠΌΠΎΠ³ΡΡ Π²ΠΎΡΠΏΠΎΠ»ΡΠ·ΠΎΠ²Π°ΡΡΡΡ ΡΡΠΈΠΌ Π² ΡΠ²ΠΎΠΈΡ ΡΠ΅Π»ΡΡ . ΠΠ΅Π΄Ρ ΡΠΊΠ°Ρ-ΠΊΡΠΏΠ΅ ΠΌΠΎΠΆΠ΅Ρ ΠΈΠΌΠ΅ΡΡ Π΄Π²ΠΎΠΉΠ½ΠΎΠ΅ Π½Π°Π·Π½Π°ΡΠ΅Π½ΠΈΠ΅ β ΠΊΡΠΎΠΌΠ΅ ΠΏΡΡΠΌΠΎΠ³ΠΎ, ΠΎΠ½ Π±ΡΠ΄Π΅Ρ Π²ΡΠΏΠΎΠ»Π½ΡΡΡ Π΅ΡΡ ΠΈ ΡΡΠ½ΠΊΡΠΈΡ ΠΏΠ΅ΡΠ΅Π³ΠΎΡΠΎΠ΄ΠΊΠΈ ΠΌΠ΅ΠΆΠ΄Ρ Π΄Π²ΡΠΌΡ ΠΊΠΎΠΌΠ½Π°ΡΠ°ΠΌΠΈ.
ΠΡΠΈ ΡΡΠΎΠΌ ΠΏΠΎΠ»ΡΠ·ΠΎΠ²Π°ΡΡΡΡ ΡΠΊΠ°ΡΠΎΠΌ Π΄Π»Ρ Ρ ΡΠ°Π½Π΅Π½ΠΈΡ Π²Π΅ΡΠ΅ΠΉ ΠΌΠΎΠ³ΡΡ ΠΎΠ±ΠΈΡΠ°ΡΠ΅Π»ΠΈ ΠΎΠ±Π΅ΠΈΡ ΠΊΠΎΠΌΠ½Π°Ρ. ΠΠ»Ρ ΡΡΠΎΠ³ΠΎ Π²ΠΌΠ΅ΡΡΠΎ Π·Π°Π΄Π½Π΅ΠΉ ΡΡΠ΅Π½ΠΊΠΈ ΡΡΡΠ°Π½Π°Π²Π»ΠΈΠ²Π°ΡΡΡΡ Π΄ΠΎΠΏΠΎΠ»Π½ΠΈΡΠ΅Π»ΡΠ½ΡΠ΅ Π΄Π²Π΅ΡΡΡ. ΠΡΡΠΌΠΎ Π² ΡΠΊΠ°ΡΡ ΠΏΡΠ΅Π΄ΡΡΠΌΠ°ΡΡΠΈΠ²Π°Π΅ΡΡΡ ΡΡΡΠ°Π½ΠΎΠ²ΠΊΠ° ΠΏΡΠΎΡ ΠΎΠ΄Π½ΠΎΠΉ Π΄Π²Π΅ΡΠΈ. ΠΠ°ΡΡΠ΅ΠΊΠ»ΡΠ½Π½ΡΠΉ ΠΏΡΠΎΡΠΌ, ΡΠ°ΠΊΠΆΠ΅ Π²ΠΊΠ»ΡΡΡΠ½Π½ΡΠΉ Π² ΡΠΎΡΡΠ°Π² ΡΠΊΠ°ΡΠ°-ΠΊΡΠΏΠ΅, ΠΏΠΎΠ·Π²ΠΎΠ»ΠΈΡ Π΅ΡΡΠ΅ΡΡΠ²Π΅Π½Π½ΠΎΠΌΡ ΡΠ²Π΅ΡΡ ΠΏΡΠΎΠ½ΠΈΠΊΠ°ΡΡ Π² Π΄Π°Π»ΡΠ½Π΅Π΅ ΠΎΡ ΠΎΠΊΠ½Π° ΠΏΠΎΠΌΠ΅ΡΠ΅Π½ΠΈΠ΅.
ΠΠΎΠΌΡ-ΡΠΎ ΠΏΠΎΠ΄ΠΎΠ±Π½ΠΎΠ΅ ΡΠ΅ΡΠ΅Π½ΠΈΠ΅ ΠΌΠΎΠΆΠ΅Ρ ΠΏΠΎΠΊΠ°Π·Π°ΡΡΡΡ Π½Π΅ΡΠ΄ΠΎΠ±Π½ΡΠΌ β Π²Π΅Π΄Ρ ΡΠΊΠ°Ρ-ΠΊΡΠΏΠ΅ Π·Π°Π½ΠΈΠΌΠ°Π΅Ρ Π·Π½Π°ΡΠΈΡΠ΅Π»ΡΠ½ΠΎ Π±ΠΎΠ»ΡΡΠ΅ ΠΌΠ΅ΡΡΠ°, ΡΠ΅ΠΌ ΠΏΠ΅ΡΠ΅Π³ΠΎΡΠΎΠ΄ΠΊΠΈ ΠΈΠ· Π³ΠΈΠΏΡΠΎΠΊΠ°ΡΡΠΎΠ½Π°. ΠΠΎ ΠΏΡΠΈ ΡΡΠΎΠΌ Π½Π΅ ΡΡΠΎΠΈΡ Π·Π°Π±ΡΠ²Π°ΡΡ β ΡΠΊΠ°Ρ Π² Π»ΡΠ±ΠΎΠΌ ΡΠ»ΡΡΠ°Π΅ ΠΏΡΠΈΠ΄ΡΡΡΡ ΡΡΡΠ°Π½Π°Π²Π»ΠΈΠ²Π°ΡΡ Π² ΠΊΠ°ΠΆΠ΄ΠΎΠΌ ΠΏΠΎΠΌΠ΅ΡΠ΅Π½ΠΈΠΈ, ΡΡΠΎΠ±Ρ Ρ ΡΠ°Π½ΠΈΡΡ ΠΎΠ΄Π΅ΠΆΠ΄Ρ, Π±Π΅Π»ΡΡ ΠΈ ΡΠΏΠ°Π»ΡΠ½ΡΠ΅ ΠΏΡΠΈΠ½Π°Π΄Π»Π΅ΠΆΠ½ΠΎΡΡΠΈ.
Π Π΄Π²Π° ΡΠΊΠ°ΡΠ° ΡΠΎΡΠ½ΠΎ Π·Π°ΠΉΠΌΡΡ Π·Π½Π°ΡΠΈΡΠ΅Π»ΡΠ½ΠΎ Π±ΠΎΠ»ΡΡΠ΅ ΠΌΠ΅ΡΡΠ°, ΡΠ΅ΠΌ ΠΎΠ΄ΠΈΠ½. ΠΠ΅ΠΌΠ°Π»ΠΎΠ²Π°ΠΆΠ½ΠΎ, ΡΡΠΎ ΡΠΊΠ°Ρ-ΠΊΡΠΏΠ΅, ΠΈΡΠΏΠΎΠ»ΡΠ·ΡΠ΅ΠΌΡΠΉ Π² ΠΊΠ°ΡΠ΅ΡΡΠ²Π΅ ΠΏΠ΅ΡΠ΅Π³ΠΎΡΠΎΠ΄ΠΊΠΈ, ΠΈΠΌΠ΅Π΅Ρ Π²ΡΡΠΎΡΡ Π΄ΠΎ ΡΠ°ΠΌΠΎΠ³ΠΎ ΠΏΠΎΡΠΎΠ»ΠΊΠ°, Π° Π·Π½Π°ΡΠΈΡ, Π² Π½ΡΠΌ ΠΌΠΎΠΆΠ½ΠΎ Π±ΡΠ΄Π΅Ρ Ρ ΡΠ°Π½ΠΈΡΡ ΠΎΠ³ΡΠΎΠΌΠ½ΠΎΠ΅ ΠΊΠΎΠ»ΠΈΡΠ΅ΡΡΠ²ΠΎ ΡΠ°ΠΌΡΡ ΡΠ°Π·Π½ΡΡ Π²Π΅ΡΠ΅ΠΉ, ΠΊΠΎΡΠΎΡΡΠ΅ Π²Ρ Ρ ΠΎΡΠΈΡΠ΅ ΠΈΠΌΠ΅ΡΡ ΠΏΠΎΠ΄ ΡΡΠΊΠΎΠΉ.
Π¨ΠΊΠ°Ρ-ΠΊΡΠΏΠ΅ Π΄ΠΎ ΡΠ°ΠΌΠΎΠ³ΠΎ ΠΏΠΎΡΠΎΠ»ΠΊΠ°ΠΡΠΈ ΡΠ°ΡΠΏΡΠ΅Π΄Π΅Π»Π΅Π½ΠΈΠΈ Π²Π΅ΡΠ΅ΠΉ Π² ΡΠΊΠ°ΡΡ Π΄Π΅ΠΉΡΡΠ²ΠΎΠ²Π°ΡΡ ΡΠ»Π΅Π΄ΡΠ΅Ρ ΠΌΠ°ΠΊΡΠΈΠΌΠ°Π»ΡΠ½ΠΎ Π²Π΄ΡΠΌΡΠΈΠ²ΠΎ. ΠΠ°ΠΏΡΠΈΠΌΠ΅Ρ, Π½Π° Π½ΠΈΠΆΠ½ΠΈΡ ΠΈ ΡΡΠ΅Π΄Π½ΠΈΡ ΠΏΠΎΠ»ΠΊΠ°Ρ Π»ΡΡΡΠ΅ Π²ΡΠ΅Π³ΠΎ Ρ ΡΠ°Π½ΠΈΡΡ Π²Π΅ΡΠΈ, ΠΊΠΎΡΠΎΡΡΠΌΠΈ Π²Ρ ΠΏΠΎΠ»ΡΠ·ΡΠ΅ΡΠ΅ΡΡ Π΅ΠΆΠ΅Π΄Π½Π΅Π²Π½ΠΎ β ΠΎΠ΄Π΅ΠΆΠ΄Ρ, ΠΏΠΎΠ΄ΡΡΠΊΠΈ, ΠΎΠ΄Π΅ΡΠ»Π° ΠΈ Π΄ΡΡΠ³ΠΈΠ΅. Π Π²ΠΎΡ Π²Π΅ΡΡ Π½ΠΈΠ΅ ΠΏΠΎΠ»ΠΊΠΈ Π»ΡΡΡΠ΅ Π²ΡΠ΄Π΅Π»ΠΈΡΡ ΠΏΠΎΠ΄ Ρ ΡΠ°Π½Π΅Π½ΠΈΠ΅ ΠΎΠ΄Π΅ΠΆΠ΄Ρ, Π½Π΅ ΠΏΠΎΠ΄Ρ ΠΎΠ΄ΡΡΠ΅ΠΉ Π΄Π»Ρ ΡΠ΅Π·ΠΎΠ½Π°.
Π’Π°ΠΊ ΠΆΠ΅, ΠΊΠ°ΠΊ Π² ΠΏΡΠ΅Π΄ΡΠ΄ΡΡΠ΅ΠΌ Π²Π°ΡΠΈΠ°Π½ΡΠ΅, Π΅ΡΡΠ΅ΡΡΠ²Π΅Π½Π½ΠΎΠ³ΠΎ ΠΎΡΠ²Π΅ΡΠ΅Π½ΠΈΡ Π±ΡΠ΄Π΅Ρ Π½Π΅Π΄ΠΎΡΡΠ°ΡΠΎΡΠ½ΠΎ. ΠΠΎΡΡΠΎΠΌΡ Π½Π΅ΠΌΠ°Π»ΠΎΠ²Π°ΠΆΠ½ΡΠΌ ΡΠ°Π³ΠΎΠΌ Π±ΡΠ΄Π΅Ρ ΡΡΡΠ°Π½ΠΎΠ²ΠΊΠ° Π΄ΠΎΠΏΠΎΠ»Π½ΠΈΡΠ΅Π»ΡΠ½ΡΡ ΠΈΡΡΠΎΡΠ½ΠΈΠΊΠΎΠ² ΠΎΡΠ²Π΅ΡΠ΅Π½ΠΈΡ β Π»ΡΡΡΡ ΠΈ ΡΠ²Π΅ΡΠΈΠ»ΡΠ½ΠΈΠΊΠΎΠ². Π ΡΠ΅Π·ΡΠ»ΡΡΠ°ΡΠ΅ Π²Ρ ΠΏΠΎΠ»ΡΡΠ°Π΅ΡΠ΅ Π½Π΅Π±ΠΎΠ»ΡΡΠΈΠ΅, Π½ΠΎ ΠΏΠΎΠ»Π½ΠΎΡΠ΅Π½Π½ΡΠ΅ ΠΊΠΎΠΌΠ½Π°ΡΡ.
ΠΡΠ»ΠΈ Π²Ρ ΠΏΠ»Π°Π½ΠΈΡΡΠ΅ΡΠ΅ ΠΈΡΠΏΠΎΠ»ΡΠ·ΠΎΠ²Π°ΡΡ ΠΎΠ΄Π½Ρ ΠΈΠ· Π½ΠΈΡ Π² ΠΊΠ°ΡΠ΅ΡΡΠ²Π΅ Π΄Π΅ΡΡΠΊΠΎΠΉ, ΡΠΎ Π»ΡΡΡΠ΅ Π±ΡΠ΄Π΅Ρ Π²ΡΠ΄Π΅Π»ΠΈΡΡ Π΄Π΅ΡΡΠΌ ΡΡ, ΠΊΠΎΡΠΎΡΠ°Ρ ΠΈΠΌΠ΅Π΅Ρ ΡΠΎΠ±ΡΡΠ²Π΅Π½Π½ΠΎΠ΅ ΠΎΠΊΠ½ΠΎ β Π΄Π΅ΡΡΠΌ ΠΎΡΠ΅Π½Ρ Π²Π°ΠΆΠ½ΠΎ ΠΏΠΎΠ»ΡΡΠ°ΡΡ Π΄ΠΎΡΡΠ°ΡΠΎΡΠ½ΠΎ Π΅ΡΡΠ΅ΡΡΠ²Π΅Π½Π½ΠΎΠ³ΠΎ ΠΎΡΠ²Π΅ΡΠ΅Π½ΠΈΡ. ΠΡΠΎΡΡΡ ΠΊΠΎΠΌΠ½Π°ΡΡ ΠΌΠΎΠΆΠ½ΠΎ ΠΈΡΠΏΠΎΠ»ΡΠ·ΠΎΠ²Π°ΡΡ ΡΡΠ°Π·Ρ ΠΊΠ°ΠΊ Π³ΠΎΡΡΠΈΠ½ΡΡ ΠΈ ΡΠΏΠ°Π»ΡΠ½Ρ Π΄Π»Ρ ΡΠΎΠ΄ΠΈΡΠ΅Π»Π΅ΠΉ.
ΠΠ΅ΡΠ½ΡΡΡΡΡ ΠΊ ΠΎΠ³Π»Π°Π²Π»Π΅Π½ΠΈΡΠ‘ΡΠ΅Π»Π»Π°ΠΆ Π² ΠΊΠ°ΡΠ΅ΡΡΠ²Π΅ ΠΏΠ΅ΡΠ΅Π³ΠΎΡΠΎΠ΄ΠΊΠΈ
ΠΡΠ»ΠΈ Π² ΠΊΠ²Π°ΡΡΠΈΡΠ΅ ΠΏΡΠΎΠΆΠΈΠ²Π°Π΅Ρ Π²ΡΠ΅Π³ΠΎ ΠΎΠ΄ΠΈΠ½ ΠΏΠΎΡΡΠΎΡΠ½Π½ΡΠΉ ΠΎΠ±ΠΈΡΠ°ΡΠ΅Π»Ρ, ΠΆΠ΅Π»Π°ΡΡΠΈΠΉ ΠΈΠ· ΠΎΠ΄Π½ΠΎΠΊΠΎΠΌΠ½Π°ΡΠ½ΠΎΠΉ Ρ ΡΡΡΡΠ²ΠΊΠΈ ΡΠ΄Π΅Π»Π°ΡΡ Π΄Π²ΡΡ ΠΊΠΎΠΌΠ½Π°ΡΠ½ΡΡ, ΡΠ΅ΠΌ ΡΠ°ΠΌΡΠΌ ΠΏΠΎΠ»ΡΡΠΈΠ² ΠΏΠΎΠΌΠ΅ΡΠ΅Π½ΠΈΠ΅ Π΄Π»Ρ ΠΎΡΠ΄Π΅Π»ΡΠ½ΠΎΠΉ ΡΠΏΠ°Π»ΡΠ½ΠΈ ΠΈΠ»ΠΈ ΠΊΠ°Π±ΠΈΠ½Π΅ΡΠ°, ΡΠΎ Π½Π΅Ρ Π½Π΅ΠΎΠ±Ρ ΠΎΠ΄ΠΈΠΌΠΎΡΡΠΈ Π² ΡΡΡΠ°Π½ΠΎΠ²ΠΊΠ΅ Π³Π»ΡΡ ΠΎΠΉ ΠΏΠ΅ΡΠ΅Π³ΠΎΡΠΎΠ΄ΠΊΠΈ.
Π‘ΡΠ΅Π»Π»Π°ΠΆ-ΠΏΠ΅ΡΠ΅Π³ΠΎΡΠΎΠ΄ΠΊΠ°Π’Π°ΠΊΠΆΠ΅ Π½Π΅Π½ΡΠΆΠ½ΠΎΠΉ ΡΡΠ°Π½ΠΎΠ²ΠΈΡΡΡ Π²ΡΡΠΎΠΊΠ°Ρ Π·Π²ΡΠΊΠΎΠΈΠ·ΠΎΠ»ΡΡΠΈΡ ΠΏΠΎΠΌΠ΅ΡΠ΅Π½ΠΈΠΉ Π΄ΡΡΠ³ ΠΎΡ Π΄ΡΡΠ³Π°. Π ΡΠ°ΠΊΠΎΠΌ ΡΠ»ΡΡΠ°Π΅ ΠΌΠΎΠΆΠ½ΠΎ ΡΡΡΠ°Π½ΠΎΠ²ΠΈΡΡ ΠΎΠ±ΡΡΠ½ΡΠΉ ΡΡΠ΅Π»Π»Π°ΠΆ.
ΠΠ½ ΠΌΠΎΠΆΠ΅Ρ Π±ΡΡΡ ΠΎΡΠΊΡΡΡΡΠΌ ΠΈΠ»ΠΈ Π·Π°ΠΊΡΡΡΡΠΌ β ΡΡΠΎ Π·Π°Π²ΠΈΡΠΈΡ ΠΎΡ ΠΏΠΎΠΆΠ΅Π»Π°Π½ΠΈΡ Π²Π»Π°Π΄Π΅Π»ΡΡΠ° ΠΊΠ²Π°ΡΡΠΈΡΡ.
ΠΠΎΠ½Π΅ΡΠ½ΠΎ, ΡΡΠ΅Π»Π»Π°ΠΆ Π·Π΄Π΅ΡΡ ΡΠ²Π»ΡΠ΅ΡΡΡ Π½Π΅ ΡΠΎΠ»ΡΠΊΠΎ ΡΠ°Π·Π΄Π΅Π»ΠΈΡΠ΅Π»Π΅ΠΌ ΠΊΠΎΠΌΠ½Π°ΡΡ, Π½ΠΎ ΠΈ ΠΏΡΠ΅Π΄ΠΌΠ΅ΡΠΎΠΌ ΡΡΠ½ΠΊΡΠΈΠΎΠ½Π°Π»Π°, Π° ΡΠ°ΠΊΠΆΠ΅ ΡΠΊΡΠ°ΡΠ΅Π½ΠΈΠ΅ΠΌ ΠΏΠΎΠΌΠ΅ΡΠ΅Π½ΠΈΡ.
ΠΠΎΡΡΠΎΠΌΡ ΠΏΠΎΠ»ΠΊΠΈ ΠΌΠΎΠΆΠ½ΠΎ ΠΎΡΠΎΡΠΌΠΈΡΡ ΠΈΠ·ΡΡΠ½ΡΠΌΠΈ Π΄Π²Π΅ΡΡΠ°ΠΌΠΈ ΡΠΎ ΡΡΡΠΊΠ»Π°ΠΌΠΈ, Π·Π΅ΡΠΊΠ°Π»Π°ΠΌΠΈ ΠΈΠ»ΠΈ Π²ΠΈΡΡΠ°ΠΆΠΎΠΌ. Π£ΡΡΠ°Π½ΠΎΠ²ΠΈΠ² Π½Π° ΠΏΠΎΠ»ΠΊΠΈ ΡΠ²Π΅ΡΡ ΠΈΠ»ΠΈ ΡΠ°Π·Π»ΠΈΡΠ½ΡΠ΅ Π±Π΅Π·Π΄Π΅Π»ΡΡΠΊΠΈ ΠΈ ΡΡΠ²Π΅Π½ΠΈΡΡ, Π²Ρ ΡΠΌΠΎΠΆΠ΅ΡΠ΅ Π»Π΅Π³ΠΊΠΎ ΠΏΡΠ΅Π²ΡΠ°ΡΠΈΡΡ ΠΎΠ΄Π½Ρ ΠΈΠ· ΠΊΠΎΠΌΠ½Π°Ρ Π² ΠΏΡΠ΅ΠΊΡΠ°ΡΠ½ΠΎΠ΅ ΠΌΠ΅ΡΡΠΎ Π΄Π»Ρ ΠΎΡΠ΄ΡΡ Π°. Π‘Π°ΠΌ ΡΡΠ΅Π»Π»Π°ΠΆ ΠΌΠΎΠΆΠ΅Ρ ΠΈΠΌΠ΅ΡΡ Π»ΡΠ±ΠΎΠΉ Π²ΠΈΠ΄. ΠΠ½ ΠΌΠΎΠΆΠ΅Ρ ΠΈΠΌΠ΅ΡΡ ΠΌΠ½ΠΎΠΆΠ΅ΡΡΠ²ΠΎ ΠΏΠΎΠ»ΠΎΠΊ Π΄Π»Ρ ΠΊΠ½ΠΈΠ³ ΠΈ Π΄ΠΈΡΠΊΠΎΠ² ΠΈΠ»ΠΈ ΠΆΠ΅ ΠΈΡΠΏΠΎΠ»ΡΠ·ΠΎΠ²Π°ΡΡΡΡ Π΄Π»Ρ Ρ ΡΠ°Π½Π΅Π½ΠΈΡ ΠΏΠΎΡΡΠ΄Ρ ΠΈ ΠΏΡΠ°Π·Π΄Π½ΠΈΡΠ½ΡΡ ΡΠ΅ΡΠ²ΠΈΠ·ΠΎΠ² β Π·Π΄Π΅ΡΡ Π²ΡΡ Π·Π°Π²ΠΈΡΠΈΡ ΠΎΡ Π²Π°ΡΠ΅ΠΉ ΡΠ°Π½ΡΠ°Π·ΠΈΠΈ ΠΈ ΠΏΡΠΈΡΡΡΠ°ΡΡΠΈΠΉ.
ΠΠ½ΡΠ΅ΡΠ΅ΡΠ½ΡΠΉ ΡΠ°Π΄ΠΈΠΎΡΡΠΈΡ ΠΎ ΠΏΠ΅ΡΠ΅ΠΏΠ»Π°Π½ΠΈΡΠΎΠ²ΠΊΠ΅ ΠΊΠ²Π°ΡΡΠΈΡ Π² ΠΠΎΡΠΊΠ²Π΅
ΠΠ΅ΡΠ½ΡΡΡΡΡ ΠΊ ΠΎΠ³Π»Π°Π²Π»Π΅Π½ΠΈΡΠΠ°ΠΊ Π±ΡΡΡ Ρ ΠΊΡΡ Π½Π΅ΠΉ
ΠΠ΄ΠΈΠ½ ΠΈΠ· ΡΠ°ΠΌΡΡ ΡΠ°ΡΡΠΎ Π·Π°Π΄Π°Π²Π°Π΅ΠΌΡΡ Π²ΠΎΠΏΡΠΎΡΠΎΠ², ΡΠ²ΡΠ·Π°Π½Π½ΡΡ Ρ ΠΏΠ΅ΡΠ΅ΠΏΠ»Π°Π½ΠΈΡΠΎΠ²ΠΊΠΎΠΉ, ΡΠ°ΠΊ ΠΈΠ»ΠΈ ΠΈΠ½Π°ΡΠ΅ ΡΠ²ΡΠ·Π°Π½ Ρ ΠΊΡΡ Π½Π΅ΠΉ. ΠΡΠ»ΠΈ Π²Π»Π°Π΄Π΅Π»ΡΡΡ ΡΠ΅ΡΠΈΠ»ΠΈ ΠΏΠ΅ΡΠ΅Π΄Π΅Π»Π°ΡΡ Π²ΡΡ ΠΊΠ²Π°ΡΡΠΈΡΡ, ΡΠΎ ΠΏΠΎΠ΄ΠΎΠ±Π½Π°Ρ ΠΏΠ΅ΡΠ΅Π΄Π΅Π»ΠΊΠ°, Π½Π°Π²Π΅ΡΠ½ΡΠΊΠ°, Π·Π°ΡΡΠΎΠ½Π΅Ρ ΠΈ Π΅Ρ. Π Π·Π΄Π΅ΡΡ ΠΌΠΎΠΆΠ΅Ρ Π±ΡΡΡ Π½Π΅ΡΠΊΠΎΠ»ΡΠΊΠΎ Π²Π°ΡΠΈΠ°Π½ΡΠΎΠ², ΠΎ ΠΊΠΎΡΠΎΡΡΡ Π±ΡΠ΄Π΅Ρ ΠΏΠΎΠ»Π΅Π·Π½ΠΎ ΡΠ·Π½Π°ΡΡ, ΠΏΡΠ΅ΠΆΠ΄Π΅ ΡΠ΅ΠΌ ΠΏΡΠΈΠ½ΡΡΡ ΠΎΠΊΠΎΠ½ΡΠ°ΡΠ΅Π»ΡΠ½ΠΎΠ΅ ΡΠ΅ΡΠ΅Π½ΠΈΠ΅ ΠΏΠΎ ΠΏΠ΅ΡΠ΅ΠΏΠ»Π°Π½ΠΈΡΠΎΠ²ΠΊΠ΅.
ΠΡΠ»ΠΈ Π²Ρ Ρ ΠΎΡΠΈΡΠ΅ ΠΏΠΎΠ»ΡΡΠΈΡΡ Π±ΠΎΠ»Π΅Π΅ ΠΏΡΠΎΡΡΠΎΡΠ½ΡΠ΅ ΠΊΠΎΠΌΠ½Π°ΡΡ, ΠΊΡΡ Π½Π΅ΠΉ ΠΏΡΠΈΠ΄ΡΡΡΡ ΠΏΠΎΠΆΠ΅ΡΡΠ²ΠΎΠ²Π°ΡΡ. Π§ΡΠΎ ΠΆ, ΡΡΠΎΠ±Ρ ΠΏΠΎΠ»ΡΡΠΈΡΡ ΡΡΠΎ-ΡΠΎ, Π½ΡΠΆΠ½ΠΎ ΡΡΠΎ-ΡΠΎ ΠΎΡΠ΄Π°ΡΡ. Π’Π΅ΠΌ Π±ΠΎΠ»Π΅Π΅ ΡΡΠΎ Π²ΠΎ ΠΌΠ½ΠΎΠ³ΠΈΡ Π΅Π²ΡΠΎΠΏΠ΅ΠΉΡΠΊΠΈΡ ΠΊΠ²Π°ΡΡΠΈΡΠ°Ρ ΠΊΡΡ Π½Ρ, ΡΠΎΠ²ΠΌΠ΅ΡΡΠ½Π½Π°Ρ Ρ Π³ΠΎΡΡΠΈΠ½ΠΎΠΉ, Π΄Π°Π²Π½ΠΎ ΡΠΆΠ΅ ΡΡΠ°Π»Π° ΠΏΡΠΈΠ²ΡΡΠ½ΠΎΠΉ Π½ΠΎΡΠΌΠΎΠΉ.
ΠΠ»Ρ ΡΡΠΎΠ³ΠΎ ΡΡΠ΅Π½ΠΊΠ°, ΡΠ°Π·Π΄Π΅Π»ΡΡΡΠ°Ρ ΠΊΡΡ Π½Ρ ΠΈ ΠΊΠΎΠΌΠ½Π°ΡΡ, ΡΠ½ΠΎΡΠΈΡΡΡ (Π΅ΡΠ»ΠΈ ΠΎΠ½Π° ΡΠ²Π»ΡΠ΅ΡΡΡ Π½Π΅ΡΡΡΠ΅ΠΉ, Π½Π΅ΠΎΠ±Ρ ΠΎΠ΄ΠΈΠΌΠΎ Π½Π΅ ΡΠΎΠ»ΡΠΊΠΎ ΠΏΠΎΠ»ΡΡΠΈΡΡ ΡΠΎΠΎΡΠ²Π΅ΡΡΡΠ²ΡΡΡΠ΅Π΅ ΡΠ°Π·ΡΠ΅ΡΠ΅Π½ΠΈΠ΅, Π½ΠΎ ΠΈ ΡΠΊΡΠ΅ΠΏΠΈΡΡ ΡΡΠ΅Π½Ρ Π½Π΅ΡΡΡΠΈΠΌΠΈ Π±Π°Π»ΠΊΠ°ΠΌΠΈ), ΠΏΠΎΡΠ»Π΅ ΡΠ΅Π³ΠΎ ΠΏΠΎΠ»ΡΡΠΈΠ²ΡΠ΅Π΅ΡΡ ΠΏΠΎΠΌΠ΅ΡΠ΅Π½ΠΈΠ΅ ΡΠ°Π·Π΄Π΅Π»ΡΠ΅ΡΡΡ Π½Π° Π΄Π²Π΅ ΡΠ°ΡΡΠΈ β ΡΠΏΠ°Π»ΡΠ½Ρ ΠΈ Π³ΠΎΡΡΠΈΠ½Π°Ρ, ΡΠΎΠ²ΠΌΠ΅ΡΡΠ½Π½Π°Ρ Ρ ΠΊΡΡ Π½Π΅ΠΉ.
ΠΠΎΡΡΠΈΠ½Π°Ρ, ΡΠΎΠ²ΠΌΠ΅ΡΡΠ½Π½Π°Ρ Ρ ΠΊΡΡ Π½Π΅ΠΉΠΡΠΎ Π΄ΠΎΠ²ΠΎΠ»ΡΠ½ΠΎ ΡΠ΄ΠΎΠ±Π½ΠΎ. ΠΠΎ Π½Π΅ΠΎΠ±Ρ ΠΎΠ΄ΠΈΠΌΠΎ Π²ΡΠ΅ΡΡΡΠ· ΠΎΠ·Π°Π±ΠΎΡΠΈΡΡΡΡ ΡΡΡΠ°Π½ΠΎΠ²ΠΊΠΎΠΉ ΠΌΠΎΡΠ½ΠΎΠΉ Π²ΡΡΡΠΆΠΊΠΈ, Π΅ΡΠ»ΠΈ Π²Ρ Π½Π΅ Ρ ΠΎΡΠΈΡΠ΅, ΡΡΠΎΠ±Ρ Π·Π°ΠΏΠ°Ρ ΠΈ, Π²ΠΎΠ·Π½ΠΈΠΊΠ°ΡΡΠΈΠ΅ ΠΏΡΠΈ Π³ΠΎΡΠΎΠ²ΠΊΠ΅, ΡΠ°Π·Π½ΠΎΡΠΈΠ»ΠΈΡΡ ΠΏΠΎ Π²ΡΠ΅ΠΉ ΠΊΠΎΠΌΠ½Π°ΡΠ΅, Π²ΠΏΠΈΡΡΠ²Π°ΡΡΡ Π² ΠΌΠ΅Π±Π΅Π»Ρ. ΠΡΡ ΠΎΠ΄ΠΈΠ½ ΠΏΠ»ΡΡ ΡΡΠΎΠ³ΠΎ ΡΠ΅ΡΠ΅Π½ΠΈΡ β ΠΈΡΠΏΠΎΠ»ΡΠ·ΠΎΠ²Π°Π½ΠΈΠ΅ Π»ΠΎΠ΄ΠΆΠΈΠΈ, Π½Π°Ρ ΠΎΠ΄ΡΡΠ΅ΠΉΡΡ Π½Π° ΠΊΡΡ Π½Π΅.
ΠΡΠΏΠΎΠ»ΡΠ·ΠΎΠ²Π°Π½ΠΈΠ΅ ΡΡΠ΅ΠΊΠ»ΠΎΠΏΠ°ΠΊΠ΅ΡΠΎΠ², ΠΊΠ°ΡΠ΅ΡΡΠ²Π΅Π½Π½ΠΎΠΉ ΡΠ΅ΠΏΠ»ΠΎ- ΠΈ Π·Π²ΡΠΊΠΎΠΈΠ·ΠΎΠ»ΡΡΠΈΠΈ, Π° ΡΠ°ΠΊΠΆΠ΅ ΡΡΠΏΠ»ΡΡ ΠΏΠΎΠ»ΠΎΠ², ΠΏΠΎΠ·Π²ΠΎΠ»ΡΠ΅Ρ ΠΏΡΠΈΡΠΎΠ΅Π΄ΠΈΠ½ΠΈΡΡ Π»ΠΎΠ΄ΠΆΠΈΡ ΠΊ ΠΆΠΈΠ»ΠΎΠΌΡ ΠΏΠΎΠΌΠ΅ΡΠ΅Π½ΠΈΡ, ΡΠ΅ΠΌ ΡΠ°ΠΌΡΠΌ ΡΠ²Π΅Π»ΠΈΡΠΈΠ²Π°Ρ Π΅Π³ΠΎ ΠΏΠ»ΠΎΡΠ°Π΄Ρ.
ΠΠΏΡΠΎΡΠ΅ΠΌ, Π΅ΡΠ»ΠΈ Π²Ρ Π½Π΅ Π³ΠΎΡΠΎΠ²Ρ ΠΊ ΡΡΠΎΠ»Ρ ΡΠ°Π΄ΠΈΠΊΠ°Π»ΡΠ½ΡΠΌ ΠΏΠ΅ΡΠ΅ΠΌΠ΅Π½Π°ΠΌ, ΠΌΠΎΠΆΠ½ΠΎ ΠΏΡΠΎΡΡΠΎ ΠΏΠ΅ΡΠ΅Π½Π΅ΡΡΠΈ ΡΡΠ΅Π½Ρ ΠΌΠ΅ΠΆΠ΄Ρ ΠΊΡΡ Π½Π΅ΠΉ ΠΈ ΠΊΠΎΠΌΠ½Π°ΡΠΎΠΉ. ΠΠ΅Π±ΠΎΠ»ΡΡΠ°Ρ ΠΊΡΡ Π½Ρ Π² ΡΡΠΎΠΌ ΡΠ»ΡΡΠ°Π΅ ΡΡΠ°Π½Π΅Ρ ΡΠΎΠ²ΡΠ΅ΠΌ ΠΌΠ°Π»Π΅Π½ΡΠΊΠΎΠΉ, Π·Π°ΡΠΎ Π²Ρ Π²ΡΠΈΠ³ΡΠ°Π΅ΡΠ΅ ΠΏΠ°ΡΡ ΠΊΠ²Π°Π΄ΡΠ°ΡΠ½ΡΡ ΠΌΠ΅ΡΡΠΎΠ², ΡΠ΄Π΅Π»Π°Π² ΡΠ²ΠΎΡ Π³ΠΎΡΡΠΈΠ½ΡΡ Π±ΠΎΠ»Π΅Π΅ ΠΏΡΠΎΡΡΠΎΡΠ½ΠΎΠΉ. ΠΠΎΠ·ΠΌΠΎΠΆΠ½ΠΎ, ΡΠ°ΡΡΡ Π±ΡΡΠΎΠ²ΠΎΠΉ ΡΠ΅Ρ Π½ΠΈΠΊΠΈ (Ρ ΠΎΠ»ΠΎΠ΄ΠΈΠ»ΡΠ½ΠΈΠΊ ΠΈΠ»ΠΈ ΡΡΠΈΡΠ°Π»ΡΠ½ΡΡ ΠΌΠ°ΡΠΈΠ½Ρ) ΠΏΡΠΈΠ΄ΡΡΡΡ ΠΏΠ΅ΡΠ΅ΠΌΠ΅ΡΡΠΈΡΡ Π² Π΄ΡΡΠ³ΠΈΠ΅ ΠΏΠΎΠΌΠ΅ΡΠ΅Π½ΠΈΡ (ΠΏΡΠΈΡ ΠΎΠΆΠ°Ρ ΠΈ ΡΠ°Π½ΡΠ·Π΅Π» ΡΠΎΠΎΡΠ²Π΅ΡΡΡΠ²Π΅Π½Π½ΠΎ), ΡΡΠΎΠ±Ρ Π²ΡΠΈΠ³ΡΠ°ΡΡ Π»ΠΈΡΠ½ΠΈΠΉ ΠΊΠ²Π°Π΄ΡΠ°ΡΠ½ΡΠΉ ΠΌΠ΅ΡΡ Π΄Π»Ρ ΠΊΡΡ Π½ΠΈ. ΠΠΏΠΈΡΠ°Π½Π½Π°Ρ Π²ΡΡΠ΅ ΠΈΠ΄Π΅Ρ Ρ Π»ΠΎΠ΄ΠΆΠΈΠ΅ΠΉ ΠΌΠΎΠΆΠ΅Ρ ΠΎΡΡΠ°ΡΡΡΡ Π°ΠΊΡΡΠ°Π»ΡΠ½ΠΎΠΉ ΠΈ Π² ΡΡΠΎΠΌ ΡΠ»ΡΡΠ°Π΅.
ΠΡΠΎΠ΅ΠΊΡ ΠΎΠ±ΡΠ΅Π΄ΠΈΠ½Π΅Π½ΠΈΡ ΠΊΡΡ Π½ΠΈ Ρ Π»ΠΎΠ΄ΠΆΠΈΠ΅ΠΉΠΠΎΠ½Π΅ΡΠ½ΠΎ, ΡΡΠΎΠ±Ρ Π΄ΠΈΠ·Π°ΠΉΠ½ ΠΏΠΎΠ»ΡΡΠΈΠ²ΡΠΈΡ ΡΡ ΠΏΠΎΠΌΠ΅ΡΠ΅Π½ΠΈΠΉ ΠΏΠΎΠ»Π½ΠΎΡΡΡΡ ΠΎΡΠ²Π΅ΡΠ°Π» Π²Π°ΡΠΈΠΌ ΠΎΠΆΠΈΠ΄Π°Π½ΠΈΡΠΌ, Π΅Π³ΠΎ ΡΠ°Π·ΡΠ°Π±ΠΎΡΠΊΡ ΡΡΠΎΠΈΡ Π΄ΠΎΠ²Π΅ΡΠΈΡΡ ΠΎΠΏΡΡΠ½ΡΠΌ ΡΠΏΠ΅ΡΠΈΠ°Π»ΠΈΡΡΠ°ΠΌ. ΠΠ°, ΠΏΡΠΈΠ΄ΡΡΡΡ ΠΏΠΎΡΡΠ°ΡΠΈΡΡ ΠΎΠΏΡΠ΅Π΄Π΅Π»ΡΠ½Π½ΡΡ ΡΡΠΌΠΌΡ. ΠΠ°ΡΠΎ Π²Ρ ΡΠΎΡΠ½ΠΎ Π½Π΅ Π±ΡΠ΄Π΅ΡΠ΅ ΡΠ°Π·ΠΎΡΠ°ΡΠΎΠ²Π°Π½Ρ ΠΏΠΎΠ»ΡΡΠΈΠ²ΡΠΈΠΌΡΡ ΡΠ΅Π·ΡΠ»ΡΡΠ°ΡΠΎΠΌ.
ΠΠ°ΡΠΈΠ°Π½Ρ ΠΏΠ΅ΡΠ΅ΠΏΠ»Π°Π½ΠΈΡΠΎΠ²ΠΊΠΈ ΠΎΠ΄Π½ΠΎΠΊΠΎΠΌΠ½Π°ΡΠ½ΠΎΠΉ ΠΊΠ²Π°ΡΡΠΈΡΡ ΠΏΠ»ΠΎΡΠ°Π΄ΡΡ 30 ΠΊΠ². ΠΌ Π² Π΄Π²ΡΡ ΠΊΠΎΠΌΠ½Π°ΡΠ½ΡΡΠΠ΅ΡΠ½ΡΡΡΡΡ ΠΊ ΠΎΠ³Π»Π°Π²Π»Π΅Π½ΠΈΡΠΡΠΎΡΠΎΠΉ ΡΡΠ°ΠΆ Π² ΠΊΠ²Π°ΡΡΠΈΡΠ΅
Π ΡΡΠ°ΡΡΡ ΡΠ°ΡΡΡΡ ΠΌΠ½ΠΎΠ³ΠΈΡ ΠΊΡΡΠΏΠ½ΡΡ Π³ΠΎΡΠΎΠ΄ΠΎΠ² Π½Π΅ΡΠ΅Π΄ΠΊΠΎ ΠΌΠΎΠΆΠ½ΠΎ ΡΠ²ΠΈΠ΄Π΅ΡΡ ΠΊΠ²Π°ΡΡΠΈΡΡ Ρ ΡΠ΄ΠΈΠ²ΠΈΡΠ΅Π»ΡΠ½ΠΎ Π²ΡΡΠΎΠΊΠΈΠΌΠΈ ΠΏΠΎΡΠΎΠ»ΠΊΠ°ΠΌΠΈ, Π½Π°ΠΏΡΠΈΠΌΠ΅Ρ, ΠΎΠ΄Π½ΠΎΠΊΠΎΠΌΠ½Π°ΡΠ½ΡΠ΅ ΡΡΠ°Π»ΠΈΠ½ΠΊΠΈ. ΠΠ°, ΠΊΠΎΠ³Π΄Π°-ΡΠΎ Π±ΡΠ»ΠΈ Π²ΡΠ΅ΠΌΠ΅Π½Π°, ΠΊΠΎΠ³Π΄Π° ΡΡΡΠΎΠΈΡΠ΅Π»ΠΈ Π½Π΅ ΡΡΠ°ΡΠ°Π»ΠΈΡΡ ΡΡΠΊΠΎΠ½ΠΎΠΌΠΈΡΡ Π½Π° Π²ΡΡΠΎΡΠ΅ ΠΏΠΎΠΌΠ΅ΡΠ΅Π½ΠΈΠΉ.
Π₯ΠΎΡΡ ΠΈ ΡΠ΅Π΄ΠΊΠΎ, Π½ΠΎ Π²ΡΡΡΠ΅ΡΠ°ΡΡΡΡ ΠΏΠΎΠΌΠ΅ΡΠ΅Π½ΠΈΡ, Π²ΡΡΠΎΡΠ° ΠΏΠΎΡΠΎΠ»ΠΊΠΎΠ² Π² ΠΊΠΎΡΠΎΡΡΡ Π΄ΠΎΡΡΠΈΠ³Π°Π΅Ρ 3,5-4 ΠΌΠ΅ΡΡΠΎΠ²!
ΠΡΠ»ΠΈ ΡΡΠΎ ΠΊΠ°ΡΠ°Π΅ΡΡΡ Π²Π°ΡΠ΅ΠΉ ΠΊΠ²Π°ΡΡΠΈΡΡ, ΠΌΠΎΠΆΠ΅ΡΠ΅ ΡΡΠΈΡΠ°ΡΡ, ΡΡΠΎ Π²Π°ΠΌ ΠΊΡΡΠΏΠ½ΠΎ ΠΏΠΎΠ²Π΅Π·Π»ΠΎ. ΠΡ ΡΠΌΠΎΠΆΠ΅ΡΠ΅ ΠΏΡΠ΅ΠΎΠ±ΡΠ°Π·ΠΎΠ²Π°ΡΡ ΡΠ²ΠΎΡ ΠΎΠ΄Π½ΠΎΠΊΠΎΠΌΠ½Π°ΡΠ½ΡΡ ΠΊΠ²Π°ΡΡΠΈΡΡ Π½Π΅ΠΏΡΠΎΡΡΠΎ Π² Π΄Π²ΡΡ ΠΊΠΎΠΌΠ½Π°ΡΠ½ΡΡ, Π½ΠΎ ΠΈ Π² Π΄Π²ΡΡ ΡΡΠ°ΠΆΠ½ΡΡ!
ΠΠΎΠ½Π΅ΡΠ½ΠΎ, ΠΏΠ΅ΡΠ΅Π΄ ΠΏΡΠΎΠ²Π΅Π΄Π΅Π½ΠΈΠ΅ΠΌ ΡΠ°Π±ΠΎΡ Π½Π΅ΠΎΠ±Ρ ΠΎΠ΄ΠΈΠΌΠΎ ΠΏΡΠΎΠ²Π΅ΡΡΠΈ ΡΠ»ΠΎΠΆΠ½ΡΠ΅ ΡΠ°ΡΡΡΡΡ, ΠΏΠΎΠ·Π²ΠΎΠ»ΡΡΡΠΈΠ΅ Π²ΡΠΎΡΠΎΠΌΡ ΡΡΠ°ΠΆΡ Π²ΡΠ΄Π΅ΡΠΆΠ°ΡΡ ΠΊΠ°ΠΊ ΠΏΠΎΡΡΠΎΡΠ½Π½ΡΠ΅ Π½Π°Π³ΡΡΠ·ΠΊΠΈ (ΠΌΠ΅Π±Π΅Π»Ρ), ΡΠ°ΠΊ ΠΈ Π²ΡΠ΅ΠΌΠ΅Π½Π½ΡΠ΅ (ΠΎΠ±ΠΈΡΠ°ΡΠ΅Π»ΠΈ ΠΊΠΎΠΌΠ½Π°ΡΡ).
ΠΠ±ΡΡΠ½ΠΎ Π² ΠΊΠ°ΡΠ΅ΡΡΠ²Π΅ Π½Π΅ΡΡΡΠ΅ΠΉ ΠΊΠΎΠ½ΡΡΡΡΠΊΡΠΈΠΈ Π²ΡΡΡΡΠΏΠ°Π΅Ρ ΠΌΠ΅ΡΠ°Π»Π»ΠΎΠΏΡΠΎΡΠΈΠ»Ρ (ΡΠ³ΠΎΠ»ΠΎΠΊ), ΠΏΡΠΈΠΊΡΠ΅ΠΏΠ»ΡΠ΅ΠΌΡΠΉ ΠΊ ΡΡΠ΅Π½Π°ΠΌ ΠΏΠΎΠΌΠ΅ΡΠ΅Π½ΠΈΡ, Π° ΡΠ°ΠΊΠΆΠ΅ Π΄ΠΎΡΠΊΠΈ, ΡΠ»ΡΠΆΠ°ΡΠΈΠ΅ ΠΏΠΎΠ»ΠΎΠΌ Π΄Π»Ρ Π²ΡΠΎΡΠΎΠ³ΠΎ ΡΡΠ°ΠΆΠ°. ΠΠ° Π²ΡΠΎΡΠΎΠΌ ΡΡΠ°ΠΆΠ΅ ΡΠ°ΡΠ΅ Π²ΡΠ΅Π³ΠΎ ΡΠ°ΡΠΏΠΎΠ»Π°Π³Π°ΡΡ Π»ΠΈΠ±ΠΎ Π΄Π΅ΡΡΠΊΡΡ ΠΊΠΎΠΌΠ½Π°ΡΡ, Π»ΠΈΠ±ΠΎ ΡΠΏΠ°Π»ΡΠ½Ρ ΡΠΎΠ΄ΠΈΡΠ΅Π»Π΅ΠΉ. ΠΠ΅ΡΠ²ΡΠΉ ΡΡΠ°ΠΆ ΠΌΠΎΠΆΠ΅Ρ ΠΎΡΡΠ°Π²Π°ΡΡΡΡ Π³ΠΎΡΡΠΈΠ½ΠΎΠΉ ΠΊΠΎΠΌΠ½Π°ΡΠΎΠΉ ΠΈΠ»ΠΈ ΠΆΠ΅ ΠΊΠ°Π±ΠΈΠ½Π΅ΡΠΎΠΌ. ΠΠΎ ΠΏΡΠΈ ΠΏΠΎΠ΄ΠΎΠ±Π½ΠΎΠΉ ΠΏΠ΅ΡΠ΅ΠΏΠ»Π°Π½ΠΈΡΠΎΠ²ΠΊΠ΅ Π½Π΅ΠΎΠ±Ρ ΠΎΠ΄ΠΈΠΌΠΎ Π²ΡΠ΅ΡΡΡΠ· Π·Π°Π΄ΡΠΌΠ°ΡΡΡΡ β Π΄ΠΎΡΡΠ°ΡΠΎΡΠ½ΠΎ Π»ΠΈ Ρ ΠΎΡΠΎΡΠ° Π²Π΅Π½ΡΠΈΠ»ΡΡΠΈΡ Π² ΠΏΠΎΠΌΠ΅ΡΠ΅Π½ΠΈΠΈ?
ΠΡΠ»ΠΈ Π²Π΅Π½ΡΠΈΠ»ΡΡΠΈΡ Π½Π΅Π΄ΠΎΡΡΠ°ΡΠΎΡΠ½Π°, ΡΠΎ Π½Π°Ρ
ΠΎΠ΄ΠΈΡΡΡΡ Π½Π° Π²ΡΠΎΡΠΎΠΌ ΡΡΠ°ΠΆΠ΅ Π±ΡΠ΄Π΅Ρ ΠΏΡΠΎΡΡΠΎ Π½Π΅ΠΊΠΎΠΌΡΠΎΡΡΠ½ΠΎ β ΡΠ»ΠΈΡΠΊΠΎΠΌ Π΄ΡΡΠ½ΠΎ.
ΠΡΠΈ Π½Π΅ΠΎΠ±Ρ
ΠΎΠ΄ΠΈΠΌΠΎΡΡΠΈ ΠΌΠΎΠΆΠ΅Ρ Π±ΡΡΡ ΡΡΡΠ°Π½ΠΎΠ²Π»Π΅Π½Π° Π²ΡΡΡΠΆΠΊΠ° ΠΈΠ»ΠΈ ΠΈΡΠΏΠΎΠ»ΡΠ·ΠΎΠ²Π°Π½Ρ Π΄ΡΡΠ³ΠΈΠ΅ ΡΠΏΠΎΡΠΎΠ±Ρ ΡΡΠΈΠ»Π΅Π½ΠΈΡ Π²Π΅Π½ΡΠΈΠ»ΡΡΠΈΠΈ ΠΏΠΎΠΌΠ΅ΡΠ΅Π½ΠΈΡ. ΠΡΠ΅ΠΎΠ±ΡΠ°Π·ΠΎΠ²Π°Π½ΠΈΠ΅ ΠΎΠ±ΡΡΠ½ΠΎΠΉ ΠΊΠΎΠΌΠ½Π°ΡΡ Π² Π΄Π²ΡΡ
ΡΡΠ°ΠΆΠ½ΡΡ ΠΌΠΎΠΆΠ΅Ρ ΡΠ΄ΠΈΠ²ΠΈΡΡ ΠΌΠ½ΠΎΠ³ΠΈΡ
Π»ΡΠ΄Π΅ΠΉ.
ΠΠΎ Π²ΡΡ-ΡΠ°ΠΊΠΈ Π² ΡΠ΅Π·ΡΠ»ΡΡΠ°ΡΠ΅ Π²Ρ ΠΏΠΎΠ»ΡΡΠ°Π΅ΡΠ΅ ΠΏΠΎΠ»Π½ΠΎΡΠ΅Π½Π½ΠΎΠ΅, ΠΏΡΠΎΡΡΠΎΡΠ½ΠΎΠ΅ ΠΏΠΎΠΌΠ΅ΡΠ΅Π½ΠΈΠ΅, Π² ΠΊΠΎΡΠΎΡΠΎΠΌ Ρ ΠΊΠΎΠΌΡΠΎΡΡΠΎΠΌ ΡΠΌΠΎΠΆΠ΅Ρ ΠΆΠΈΡΡ 3-4 ΡΠ΅Π»ΠΎΠ²Π΅ΠΊΠ°. ΠΠΎΡΡΠΎΠΌΡ ΠΈΠ³ΡΠ°, Π½Π΅ΡΠΎΠΌΠ½Π΅Π½Π½ΠΎ, ΡΡΠΎΠΈΡ ΡΠ²Π΅Ρ. Π€ΠΈΠ½Π°Π½ΡΠΎΠ²ΡΠ΅ Π·Π°ΡΡΠ°ΡΡ Π½Π° ΠΏΠΎΠ΄ΠΎΠ±Π½ΡΡ ΠΏΠ΅ΡΠ΅ΠΏΠ»Π°Π½ΠΈΡΠΎΠ²ΠΊΡ Π±ΡΠ΄ΡΡ ΡΡΠ°Π²Π½ΠΈΡΠ΅Π»ΡΠ½ΠΎ Π½Π΅Π±ΠΎΠ»ΡΡΠΈΠΌΠΈ, Π° ΠΏΠΎΠ»ΡΡΠΈΠ²ΡΠΈΠΉΡΡ ΡΠ΅Π·ΡΠ»ΡΡΠ°Ρ ΡΠ΄ΠΎΠ²Π»Π΅ΡΠ²ΠΎΡΠΈΡ Π΄Π°ΠΆΠ΅ ΡΠ°ΠΌΠΎΠ³ΠΎ ΠΏΡΠΈΠ΄ΠΈΡΡΠΈΠ²ΠΎΠ³ΠΎ Π²Π»Π°Π΄Π΅Π»ΡΡΠ° ΠΈ ΠΎΠ±ΠΈΡΠ°ΡΠ΅Π»Ρ ΠΊΠ²Π°ΡΡΠΈΡΡ.
ΠΠ΅ΡΠ½ΡΡΡΡΡ ΠΊ ΠΎΠ³Π»Π°Π²Π»Π΅Π½ΠΈΡΠΠ±ΡΠΈΠ΅ ΠΌΠΎΠΌΠ΅Π½ΡΡ
ΠΠ·-Π·Π° ΡΠ»ΠΎΠΆΠ½ΠΎΠ³ΠΎ ΠΆΠΈΠ»ΠΈΡΠ½ΠΎΠ³ΠΎ Π²ΠΎΠΏΡΠΎΡΠ° ΠΌΠΈΠ»Π»ΠΈΠΎΠ½Ρ Π»ΡΠ΄Π΅ΠΉ Π² Π½Π°ΡΠ΅ΠΉ ΡΡΡΠ°Π½Π΅ ΠΈΠ΄ΡΡ Π½Π° Ρ ΠΈΡΡΠΎΡΡΡ, ΡΡΠ°ΡΠ°ΡΡΡ Π²ΡΠ³Π°Π΄Π°ΡΡ ΠΈ ΡΡΠΊΠΎΠ½ΠΎΠΌΠΈΡΡ ΠΊΠ°ΠΆΠ΄ΡΠΉ ΡΠ²ΠΎΠ±ΠΎΠ΄Π½ΡΠΉ ΠΊΠ²Π°Π΄ΡΠ°ΡΠ½ΡΠΉ ΠΌΠ΅ΡΡ. Π Π²ΠΎ ΠΌΠ½ΠΎΠ³ΠΈΡ ΡΠ»ΡΡΠ°ΡΡ , ΡΠ·Π½Π°Π², ΠΊΠ°ΠΊ ΠΈΠ· ΠΎΠ΄Π½ΠΎΠΊΠΎΠΌΠ½Π°ΡΠ½ΠΎΠΉ ΡΠ΄Π΅Π»Π°ΡΡ Π΄Π²ΡΡ ΠΊΠΎΠΌΠ½Π°ΡΠ½ΡΡ ΠΊΠ²Π°ΡΡΠΈΡΡ, ΠΎΠ½ΠΈ ΠΏΠΎΠ½ΠΈΠΌΠ°ΡΡ, ΡΡΠΎ ΠΏΠΎΠ΄ΠΎΠ±Π½ΠΎΠ΅ ΡΠ΅ΡΠ΅Π½ΠΈΠ΅ Π²ΠΎΠΏΡΠΎΡΠ° Π±ΡΠ΄Π΅Ρ ΠΎΠΏΡΠΈΠΌΠ°Π»ΡΠ½ΡΠΌ. ΠΡΠΈ ΠΌΠΈΠ½ΠΈΠΌΠ°Π»ΡΠ½ΡΡ Π·Π°ΡΡΠ°ΡΠ°Ρ ΠΎΠ½ΠΈ ΠΏΠΎΠ»ΡΡΠ°ΡΡ Π΄Π²Π΅ ΠΏΡΡΡΡ Π½Π΅ ΡΠ»ΠΈΡΠΊΠΎΠΌ ΠΏΡΠΎΡΡΠΎΡΠ½ΡΡ , Π½ΠΎ Π²ΠΏΠΎΠ»Π½Π΅ ΡΡΡΠ½ΡΡ ΠΊΠΎΠΌΠ½Π°Ρ, Π² ΠΊΠΎΡΠΎΡΡΡ ΠΌΠΎΠΆΠ΅Ρ ΡΠ²ΠΎΠ±ΠΎΠ΄Π½ΠΎ ΠΏΡΠΎΠΆΠΈΠ²Π°ΡΡ 2-4 ΡΠ΅Π»ΠΎΠ²Π΅ΠΊΠ°.
Π ΡΡΠΎΠΌ Π²ΠΈΠ΄Π΅ΠΎ ΡΠ°ΡΡΠΊΠ°Π·ΡΠ²Π°Π΅ΡΡΡ ΠΎ Π΄ΡΡΠ³ΠΈΡ Π²Π°ΡΠΈΠ°Π½ΡΠ°Ρ ΠΏΠ΅ΡΠ΅ΠΏΠ»Π°Π½ΠΈΡΠΎΠ²ΠΊΠΈ ΠΎΠ΄Π½ΠΎΠΊΠΎΠΌΠ½Π°ΡΠ½ΡΡ ΠΊΠ²Π°ΡΡΠΈΡ
Π ΠΎΠ±ΡΡΠ½ΠΎΠΉ ΠΎΠ΄Π½ΠΎΠΊΠΎΠΌΠ½Π°ΡΠ½ΠΎΠΉ ΠΊΠ²Π°ΡΡΠΈΡΠ΅ ΡΠ°ΠΊΠΎΠΌΡ ΠΊΠΎΠ»ΠΈΡΠ΅ΡΡΠ²Ρ Π»ΡΠ΄Π΅ΠΉ ΡΠΌΠ΅ΡΡΠΈΡΡΡΡ Π±ΡΠ΄Π΅Ρ Π΄ΠΎΠ²ΠΎΠ»ΡΠ½ΠΎ ΡΡΠΆΠ΅Π»ΠΎ. ΠΠ°ΡΠΊΠΎΠ»ΡΠΊΠΎ ΡΠ΄Π°ΡΠ½ΠΎ Π±ΡΠ΄Π΅Ρ ΠΎΡΡΡΠ΅ΡΡΠ²Π»ΡΠ½ Π·Π°ΠΌΡΡΠ΅Π», Π·Π°Π²ΠΈΡΠΈΡ ΠΎΡ ΠΌΠ½ΠΎΠ³ΠΈΡ ΡΠ°ΠΊΡΠΎΡΠΎΠ², Π²ΠΊΠ»ΡΡΠ°Ρ ΠΏΡΠ°Π²ΠΈΠ»ΡΠ½ΠΎΡΡΡ ΠΏΠ΅ΡΠ΅ΠΏΠ»Π°Π½ΠΈΡΠΎΠ²ΠΊΠΈ ΠΈ ΠΊΠ°ΡΠ΅ΡΡΠ²ΠΎ ΠΏΡΠΎΠ²Π΅Π΄Π΅Π½ΠΈΡ ΡΠ°Π±ΠΎΡ. ΠΡΡ ΠΎΠ΄ΠΈΠ½ Π²Π°ΡΠΈΠ°Π½Ρ ΠΏΠ΅ΡΠ΅ΠΏΠ»Π°Π½ΠΈΡΠΎΠ²ΠΊΠΈ Π΄Π»Ρ ΡΠ΅ΠΌΡΠΈ Ρ Π΄Π΅ΡΡΠΌΠΈΠ’Π°ΠΊ ΡΡΠΎ, Π² Π±ΠΎΠ»ΡΡΠΈΠ½ΡΡΠ²Π΅ ΡΠ»ΡΡΠ°Π΅Π² Π»ΡΡΡΠ΅ Π΄ΠΎΠ²Π΅ΡΠΈΡΡ ΡΡΡ Π½Π΅ΠΏΡΠΎΡΡΡΡ ΡΠ°Π±ΠΎΡΡ ΡΠΏΠ΅ΡΠΈΠ°Π»ΠΈΡΡΠ°ΠΌ. ΠΠΏΠ»Π°ΡΠΈΠ² ΠΈΡ ΡΡΠ»ΡΠ³ΠΈ, Π²Ρ ΠΏΠΎΠ»ΡΡΠΈΡΠ΅ Π²Π΅Π»ΠΈΠΊΠΎΠ»Π΅ΠΏΠ½ΡΠΉ ΡΠ΅Π·ΡΠ»ΡΡΠ°Ρ β Π±ΠΎΠ»ΡΡΠΎΠΉ ΠΎΠΏΡΡ ΠΈ Π½Π°Π»ΠΈΡΠΈΠ΅ ΡΠΏΠ΅ΡΠΈΠ°Π»ΠΈΠ·ΠΈΡΠΎΠ²Π°Π½Π½ΡΡ Π½Π°Π²ΡΠΊΠΎΠ² ΠΈ Π·Π½Π°Π½ΠΈΠΉ ΠΏΠΎΠ·Π²ΠΎΠ»ΡΡ ΠΈΠΌ Π²ΡΠΏΠΎΠ»Π½ΠΈΡΡ Π·Π°Π΄Π°ΡΡ Π΄Π΅ΠΉΡΡΠ²ΠΈΡΠ΅Π»ΡΠ½ΠΎ ΠΊΠ°ΡΠ΅ΡΡΠ²Π΅Π½Π½ΠΎ.
ΠΠ΅ΡΠ΅ΠΏΠ»Π°Π½ΠΈΡΠΎΠ²ΠΊΠ° ΠΎΠ΄Π½ΠΎΠΊΠΎΠΌΠ½Π°ΡΠ½ΠΎΠΉ ΠΊΠ²Π°ΡΡΠΈΡΡ: Π²Π°ΡΠΈΠ°Π½ΡΡ, ΠΈΠ΄Π΅ΠΈ ΠΈ ΡΠΎΡΠΎ
ΠΠ²Π°ΡΡΠΈΡΠ½ΡΠΉ Π²ΠΎΠΏΡΠΎΡ Π½Π° ΡΠ΅Π³ΠΎΠ΄Π½ΡΡΠ½ΠΈΠΉ Π΄Π΅Π½Ρ ΡΡΠΎΠΈΡ, ΠΏΠΎΠΆΠ°Π»ΡΠΉ, ΠΎΡΡΡΠ΅Π΅, ΡΠ΅ΠΌ ΠΊΠΎΠ³Π΄Π°-Π»ΠΈΠ±ΠΎ. ΠΡΠΈΠΎΠ±ΡΠ΅ΡΡΠΈ ΠΊΠ²Π°ΡΡΠΈΡΡ Π² ΠΊΡΡΠΏΠ½ΠΎΠΌ Π³ΠΎΡΠΎΠ΄Π΅ ΠΌΠΎΠ³ΡΡ Π»ΠΈΡΡ Π²Π΅ΡΡΠΌΠ° ΡΠΎΡΡΠΎΡΡΠ΅Π»ΡΠ½ΡΠ΅ Π»ΡΠ΄ΠΈ. Π Π΅ΡΡ ΠΎ ΡΠΎΠΌ, ΡΡΠΎΠ±Ρ ΡΠΌΠ΅Π½ΠΈΡΡ ΠΊΠ²Π°ΡΡΠΈΡΡ Π½Π° Π±ΠΎΠ»Π΅Π΅ ΠΏΡΠΎΡΡΠΎΡΠ½ΡΡ Π²ΠΎΠΎΠ±ΡΠ΅ Π²Π΅Π΄Π΅ΡΡΡ Π΄ΠΎΠ²ΠΎΠ»ΡΠ½ΠΎ ΡΠ΅Π΄ΠΊΠΎ. ΠΠΎ ΠΊΠ°ΠΊ ΠΆΠ΅ Π±ΡΡΡ, Π΅ΡΠ»ΠΈ Π²Ρ ΡΠ°ΡΠΏΠΎΠ»Π°Π³Π°Π΅ΡΠ΅ ΡΠΎΠ»ΡΠΊΠΎ ΠΎΠ΄Π½ΠΎΠΊΠΎΠΌΠ½Π°ΡΠ½ΠΎΠΉ ΠΊΠ²Π°ΡΡΠΈΡΠΎΠΉ ΠΈ Π½Π΅ ΠΈΠΌΠ΅Π΅ΡΠ΅ Π΄Π΅Π½Π΅Π³ Π½Π° ΡΠΎ, ΡΡΠΎΠ±Ρ ΡΠΌΠ΅Π½ΠΈΡΡ Π΅Ρ Π½Π° Π΄Π²ΡΡ ΠΊΠΎΠΌΠ½Π°ΡΠ½ΡΡ?
ΠΠ½ΠΎΠ³ΠΈΠ΅ Π»ΡΠ΄ΠΈ Π² ΡΠ°ΠΊΠΎΠΉ ΡΠΈΡΡΠ°ΡΠΈΠΈ ΡΠ΅ΡΠ°ΡΡ, ΡΡΠΎ Π»ΡΡΡΠΈΠΌ ΡΠ΅ΡΠ΅Π½ΠΈΠ΅ΠΌ Π±ΡΠ΄Π΅Ρ ΠΏΠ΅ΡΠ΅ΠΏΠ»Π°Π½ΠΈΡΠΎΠ²ΠΊΠ° ΠΎΠ΄Π½ΠΎΠΊΠΎΠΌΠ½Π°ΡΠ½ΠΎΠΉ ΠΊΠ²Π°ΡΡΠΈΡΡ. Π Π΄Π΅ΠΉΡΡΠ²ΠΈΡΠ΅Π»ΡΠ½ΠΎ, ΡΠ°ΠΊΠΎΠ΅ ΡΠ΅ΡΠ΅Π½ΠΈΠ΅ Π½Π΅ΡΠ΅Π΄ΠΊΠΎ ΠΏΠΎΠ·Π²ΠΎΠ»ΡΠ΅Ρ ΠΈΠ·Π±Π°Π²ΠΈΡΡΡΡ ΠΎΡ ΠΏΡΠΎΠ±Π»Π΅ΠΌΡ Ρ ΠΌΠΈΠ½ΠΈΠΌΠ°Π»ΡΠ½ΡΠΌΠΈ ΡΠΈΠ½Π°Π½ΡΠΎΠ²ΡΠΌΠΈ Π·Π°ΡΡΠ°ΡΠ°ΠΌΠΈ. ΠΠΎΠ½Π΅ΡΠ½ΠΎ, ΠΏΡΠΈΠ½ΠΈΠΌΠ°ΡΡ ΠΎΠΊΠΎΠ½ΡΠ°ΡΠ΅Π»ΡΠ½ΠΎΠ΅ ΡΠ΅ΡΠ΅Π½ΠΈΠ΅ ΡΠ»Π΅Π΄ΡΠ΅Ρ ΡΠΎΠ»ΡΠΊΠΎ ΡΠΎΠ³Π΄Π°, ΠΊΠΎΠ³Π΄Π° Π²Ρ ΡΡΠ°ΡΠ΅Π»ΡΠ½ΠΎ ΠΏΡΠΎΠ΄ΡΠΌΠ°Π»ΠΈ Π²ΡΡ, Π²Π·Π²Π΅ΡΠΈΠ»ΠΈ Π²ΡΠ΅ Β«Π·Π°Β» ΠΈ Β«ΠΏΡΠΎΡΠΈΠ²Β». Π ΡΠΎΠΌΡ ΠΆΠ΅, Π²Π°ΡΠΈΠ°Π½ΡΡ ΠΏΠ΅ΡΠ΅ΠΏΠ»Π°Π½ΠΈΡΠΎΠ²ΠΊΠΈ ΠΌΠΎΠ³ΡΡ Π±ΡΡΡ Π΄ΠΎΠ²ΠΎΠ»ΡΠ½ΠΎ ΡΠ°Π·Π½ΡΠΌΠΈ. Π‘ΡΠΎΠΈΡ ΠΈΠ·ΡΡΠΈΡΡ ΠΈΡ , ΠΏΡΠ΅ΠΆΠ΄Π΅ ΡΠ΅ΠΌ ΠΏΠ΅ΡΠ΅Ρ ΠΎΠ΄ΠΈΡΡ ΠΊ Π°ΠΊΡΠΈΠ²Π½ΠΎΠΉ ΡΠ°Π·Π΅ ΡΡΡΠΎΠΈΡΠ΅Π»ΡΡΡΠ²Π°. Π Π΄Π»Ρ Π½Π°ΡΠ°Π»Π° Π±ΡΠ΄Π΅Ρ ΠΏΠΎΠ»Π΅Π·Π½ΠΎ ΡΠ·Π½Π°ΡΡ ΠΊΠ°ΠΊΠΈΠ΅ Π²ΠΎΠΎΠ±ΡΠ΅ Π²Π°ΡΠΈΠ°Π½ΡΡ ΡΡΡΠ΅ΡΡΠ²ΡΡΡ Π² ΡΠ°ΠΊΠΎΠΉ ΡΠΈΡΡΠ°ΡΠΈΠΈ.
ΠΠ΅ΡΠ½ΡΡΡΡΡ ΠΊ ΠΎΠ³Π»Π°Π²Π»Π΅Π½ΠΈΡΠ‘ΠΎΠ΄Π΅ΡΠΆΠ°Π½ΠΈΠ΅ ΠΌΠ°ΡΠ΅ΡΠΈΠ°Π»Π°
ΠΠΎΠ»ΡΡΠ°Π΅ΠΌ Π΄Π²Π΅ ΠΊΠΎΠΌΠ½Π°ΡΡ ΠΈΠ· ΠΎΠ΄Π½ΠΎΠΉ
Π Π°Π·ΡΠΌΠ΅Π΅ΡΡΡ, ΡΠ°ΠΌΡΠΌ ΠΆΠ΅Π»Π°Π½Π½ΡΠΌ Π΄Π»Ρ Π±ΠΎΠ»ΡΡΠΈΠ½ΡΡΠ²Π° Π»ΡΠ΄Π΅ΠΉ Π²Π°ΡΠΈΠ°Π½ΡΠΎΠΌ ΡΠ²Π»ΡΠ΅ΡΡΡ ΠΏΡΠ΅Π²ΡΠ°ΡΠ΅Π½ΠΈΠ΅ ΠΎΠ΄Π½ΠΎΠΊΠΎΠΌΠ½Π°ΡΠ½ΠΎΠΉ ΠΊΠ²Π°ΡΡΠΈΡΡ Π² Π΄Π²ΡΡ ΠΊΠΎΠΌΠ½Π°ΡΠ½ΡΡ. Π’Π°ΠΊΠΎΠΉ Π²Π°ΡΠΈΠ°Π½Ρ ΠΏΠΎΠ΄ΠΎΠΉΠ΄Π΅Ρ Π΄Π»Ρ Π»ΡΠ±ΠΎΠ³ΠΎ ΡΠ»ΡΡΠ°Ρ. ΠΠ°ΠΏΡΠΈΠΌΠ΅Ρ, Π΅ΡΠ»ΠΈ Π² ΠΌΠΎΠ»ΠΎΠ΄ΠΎΠΉ ΡΠ΅ΠΌΡΠ΅ ΠΏΠΎΡΠ²Π»ΡΠ΅ΡΡΡ ΡΠ΅Π±ΡΠ½ΠΎΠΊ, ΠΈ ΡΠΎΠ΄ΠΈΡΠ΅Π»ΠΈ ΡΠ΅ΡΠ°ΡΡ Π²ΡΠ΄Π΅Π»ΠΈΡΡ Π΅ΠΌΡ ΠΏΡΡΡΡ ΠΈ Π½Π΅Π±ΠΎΠ»ΡΡΡΡ, Π½ΠΎ ΠΎΡΠ΄Π΅Π»ΡΠ½ΡΡ ΠΊΠΎΠΌΠ½Π°ΡΡ.
ΠΠ»ΠΈ ΠΆΠ΅, Π΅ΡΠ»ΠΈ Π² ΠΊΠ²Π°ΡΡΠΈΡΠ΅ ΠΆΠΈΠ²Π΅Ρ ΠΎΠ΄ΠΈΠ½ ΡΠ΅Π»ΠΎΠ²Π΅ΠΊ, ΠΊΠΎΡΠΎΡΡΠΉ ΠΏΡΠΈΠ½ΠΈΠΌΠ°Π΅Ρ ΡΠ΅ΡΠ΅Π½ΠΈΠ΅ ΡΠ°Π·Π±ΠΈΡΡ Π΅Π΄ΠΈΠ½ΡΡΠ²Π΅Π½Π½ΡΡ ΠΊΠΎΠΌΠ½Π°ΡΡ Π½Π° ΡΠΏΠ°Π»ΡΠ½ΡΡ (ΠΎΠ½Π° ΠΆΠ΅ Π±ΡΠ΄Π΅Ρ Π²ΡΡΡΡΠΏΠ°ΡΡ Π² ΡΠΎΠ»ΠΈ Π³ΠΎΡΡΠΈΠ½ΠΎΠΉ) ΠΈ ΠΊΠ°Π±ΠΈΠ½Π΅Ρ, Π³Π΄Π΅ ΠΎΠ½ Π±ΡΠ΄Π΅Ρ ΡΠ°Π±ΠΎΡΠ°ΡΡ. Π£Π²Ρ, ΡΡΠΎΡ Π²Π°ΡΠΈΠ°Π½Ρ ΠΎΡΡΡΠ΅ΡΡΠ²ΠΈΠΌ Π΄Π°Π»Π΅ΠΊΠΎ Π½Π΅ Π²ΡΠ΅Π³Π΄Π°. ΠΠΎΡΠΎΠΌΡ ΡΡΠΎ Π΄Π»Ρ ΡΠ°Π·Π±ΠΈΠ²ΠΊΠΈ ΠΎΠ΄Π½ΠΎΠΉ ΠΊΠΎΠΌΠ½Π°ΡΡ Π½Π° Π΄Π²Π΅, ΠΆΠ΅Π»Π°ΡΠ΅Π»ΡΠ½ΠΎ ΡΡΠΎΠ±Ρ ΠΈΠ·Π½Π°ΡΠ°Π»ΡΠ½ΠΎ Π΅Ρ ΠΏΠ»ΠΎΡΠ°Π΄Ρ ΡΠΎΡΡΠ°Π²Π»ΡΠ»Π° Π½Π΅ ΠΌΠ΅Π½Π΅Π΅ 18 ΠΊΠ²Π°Π΄ΡΠ°ΡΠ½ΡΡ ΠΌΠ΅ΡΡΠΎΠ². Π ΠΏΡΠΎΡΠΈΠ²Π½ΠΎΠΌ ΡΠ»ΡΡΠ°Π΅ Π²ΠΌΠ΅ΡΡΠΎ Π΄Π²ΡΡ ΠΊΠΎΠΌΠ½Π°Ρ ΠΏΠΎΠ»ΡΡΠΈΡΡΡ Π΄Π²Π΅ ΠΊΡΠΎΡ ΠΎΡΠ½ΡΠ΅ ΠΊΠ°ΠΌΠΎΡΠΊΠΈ, Π² ΠΊΠΎΡΠΎΡΡΡ ΠΏΡΠΎΡΡΠΎ Π½Π΅ΠΊΠΎΠΌΡΠΎΡΡΠ½ΠΎ Π½Π°Ρ ΠΎΠ΄ΠΈΡΡΡΡ.
Π§Π°ΡΠ΅ Π²ΡΠ΅Π³ΠΎ ΠΏΠ΅ΡΠ΅ΠΏΠ»Π°Π½ΠΈΡΠΎΠ²ΠΊΠ° ΠΎΠ΄Π½ΠΎΠΊΠΎΠΌΠ½Π°ΡΠ½ΠΎΠΉ Π² Π΄Π²ΡΡ ΠΊΠΎΠΌΠ½Π°ΡΠ½ΡΡ ΠΊΠ²Π°ΡΡΠΈΡΡ ΠΏΡΠΎΠ²ΠΎΠ΄ΠΈΡΡΡ Π² Π΄ΠΎΠΌΠ°Ρ ΡΠ΅ΡΠΈΠΈ Π-44. ΠΠ΄Π½ΠΎΠΊΠΎΠΌΠ½Π°ΡΠ½ΡΠ΅ ΠΊΠ²Π°ΡΡΠΈΡΡ Π² Π½ΠΈΡ ΠΈΠΌΠ΅ΡΡ ΠΏΠ»ΠΎΡΠ°Π΄Ρ ΠΎΡ 36 ΠΊΠ². ΠΌ. Π΄ΠΎ 40 ΠΊΠ². ΠΌ., Π° ΠΏΠ»ΠΎΡΠ°Π΄Ρ ΠΆΠΈΠ»ΠΎΠΉ ΠΊΠΎΠΌΠ½Π°ΡΡ β Π½Π΅ ΠΌΠ΅Π½Π΅Π΅ 19 ΠΊΠ²Π°Π΄ΡΠ°ΡΠ½ΡΡ ΠΌΠ΅ΡΡΠΎΠ². ΠΡΠΈ ΡΠ°Π·Π΄Π΅Π»Π΅Π½ΠΈΠΈ ΡΡΠΎΠ»Ρ ΠΏΡΠΎΡΡΠΎΡΠ½ΠΎΠΉ ΠΊΠΎΠΌΠ½Π°ΡΡ Π½Π° Π΄Π²Π΅, ΠΌΠΎΠΆΠ½ΠΎ ΠΏΠΎΠ»ΡΡΠΈΡΡ Π½Π΅Π±ΠΎΠ»ΡΡΠΈΠ΅, Π½ΠΎ ΡΡΡΠ½ΡΠ΅ ΠΈ ΠΊΠΎΠΌΡΠΎΡΡΠ½ΡΠ΅ ΠΆΠΈΠ»ΡΠ΅ ΠΏΠΎΠΌΠ΅ΡΠ΅Π½ΠΈΡ.
ΠΡΠΈΠΌΠ΅Ρ ΠΈΠ½ΡΠ΅ΡΡΠ΅ΡΠ° ΠΎΠ΄Π½ΠΎΠΊΠΎΠΌΠ½Π°ΡΠ½ΠΎΠΉ ΠΊΠ²Π°ΡΡΠΈΡΡΠΠ΅ΡΠ½ΡΡΡΡΡ ΠΊ ΠΎΠ³Π»Π°Π²Π»Π΅Π½ΠΈΡΠΡΠ΅Π²ΡΠ°ΡΠ°Π΅ΠΌ ΠΊΠ²Π°ΡΡΠΈΡΡ Π² ΡΡΡΠ΄ΠΈΡ
ΠΡΡΠ³ΠΎΠΉ Π΄ΠΎΠ²ΠΎΠ»ΡΠ½ΠΎ ΠΏΠΎΠΏΡΠ»ΡΡΠ½ΡΠΉ Π²Π°ΡΠΈΠ°Π½Ρ β ΠΏΠ΅ΡΠ΅ΠΏΠ»Π°Π½ΠΈΡΠΎΠ²ΠΊΠ° ΠΎΠ±ΡΡΠ½ΠΎΠΉ ΠΎΠ΄Π½ΠΎΠΊΠΎΠΌΠ½Π°ΡΠ½ΠΎΠΉ ΠΊΠ²Π°ΡΡΠΈΡΡ Π² ΡΡΡΠ΄ΠΈΡ. ΠΠ°, ΠΏΠΎΠ»ΡΡΠΈΡΡ Π΄Π²Π΅ ΠΊΠΎΠΌΠ½Π°ΡΡ Π²ΠΌΠ΅ΡΡΠΎ ΠΎΠ΄Π½ΠΎΠΉ Π² ΡΠ°ΠΊΠΎΠΌ ΡΠ»ΡΡΠ°Π΅ Π½Π΅ ΠΏΠΎΠ»ΡΡΠΈΡΡΡ. Π Π²ΠΎΡ Π²ΡΠΈΠ³ΡΠ°ΡΡ Π½Π΅ΡΠΊΠΎΠ»ΡΠΊΠΎ ΠΊΠ²Π°Π΄ΡΠ°ΡΠ½ΡΡ ΠΌΠ΅ΡΡΠΎΠ² (ΡΡΠΎ ΠΏΡΠΈ ΠΏΠ»ΠΎΡΠ°Π΄ΠΈ ΠΊΠ²Π°ΡΡΠΈΡΡ Π² 30-33 ΠΊΠ². ΠΌ. Π΄ΠΎΠ²ΠΎΠ»ΡΠ½ΠΎ Π½Π΅ΠΏΠ»ΠΎΡ ΠΎ) Π²ΠΏΠΎΠ»Π½Π΅ Π²ΠΎΠ·ΠΌΠΎΠΆΠ½ΠΎ. ΠΠΎ Π΄Π»Ρ Π½Π°ΡΠ°Π»Π° ΡΠ°Π·Π±Π΅ΡΠ΅ΠΌΡΡ Π² ΡΠΎΠΌ, ΡΡΠΎ ΠΆΠ΅ ΠΏΡΠ΅Π΄ΡΡΠ°Π²Π»ΡΠ΅Ρ ΡΠΎΠ±ΠΎΠΉ ΡΡΡΠ΄ΠΈΡ.
Π§Π°ΡΠ΅ Π²ΡΠ΅Π³ΠΎ ΡΡΠΈΠΌ ΡΠ΅ΡΠΌΠΈΠ½ΠΎΠΌ Π½Π°Π·ΡΠ²Π°ΡΡ ΠΏΠΎΠΌΠ΅ΡΠ΅Π½ΠΈΠ΅, ΠΏΠΎΠ»ΡΡΠ°Π΅ΠΌΠΎΠ΅ Π² ΡΠ΅Π·ΡΠ»ΡΡΠ°ΡΠ΅ ΡΠ½ΠΎΡΠ° ΡΡΠ΅Π½Ρ ΠΌΠ΅ΠΆΠ΄Ρ ΠΆΠΈΠ»ΠΎΠΉ ΠΊΠΎΠΌΠ½Π°ΡΠΎΠΉ ΠΈ ΠΊΡΡ Π½Π΅ΠΉ.
Π ΡΠ΅Π·ΡΠ»ΡΡΠ°ΡΠ΅ ΠΏΠΎΠ»ΡΡΠ°Π΅ΡΡΡ ΠΎΠ΄Π½ΠΎ Π΄ΠΎΠ²ΠΎΠ»ΡΠ½ΠΎ ΠΏΡΠΎΡΡΠΎΡΠ½ΠΎΠ΅ ΠΏΠΎΠΌΠ΅ΡΠ΅Π½ΠΈΠ΅. ΠΠ½ΠΎ Π² ΡΠ²ΠΎΡ ΠΎΡΠ΅ΡΠ΅Π΄Ρ Π·ΠΎΠ½ΠΈΡΡΠ΅ΡΡΡ (ΠΎΠ±ΡΡΠ½ΠΎ ΡΠ²Π΅ΡΠ°ΠΌΠΈ ΠΈΠ»ΠΈ ΡΠ°Π·Π»ΠΈΡΠ½ΡΠΌΠΈ ΠΌΠ°ΡΠ΅ΡΠΈΠ°Π»Π°ΠΌΠΈ), ΠΏΠΎΡΠ»Π΅ ΡΠ΅Π³ΠΎ ΠΈΡΠΏΠΎΠ»ΡΠ·ΡΠ΅ΡΡΡ ΠΈ Π² ΠΊΠ°ΡΠ΅ΡΡΠ²Π΅ ΠΊΡΡ Π½ΠΈ, ΠΈ Π² ΠΊΠ°ΡΠ΅ΡΡΠ²Π΅ Π³ΠΎΡΡΠΈΠ½ΠΎΠΉ, ΠΈ Π² ΠΊΠ°ΡΠ΅ΡΡΠ²Π΅ ΡΠΏΠ°Π»ΡΠ½ΠΈ.
ΠΏΡΠΈΠΌΠ΅Ρ ΠΏΠ΅ΡΠ΅ΠΏΠ»Π°Π½ΠΈΡΠΎΠ²ΠΊΠΈ ΠΎΠ΄Π½ΠΎΠΊΠΎΠΌΠ½Π°ΡΠ½ΠΎΠΉ ΠΊΠ²Π°ΡΡΠΈΡΡ Π² ΠΊΠ²Π°ΡΡΠΈΡΡ-ΡΡΡΠ΄ΠΈΡΠ‘ΡΡΠ΄ΠΈΡ β ΠΏΡΠ΅ΠΊΡΠ°ΡΠ½ΠΎΠ΅ ΡΠ΅ΡΠ΅Π½ΠΈΠ΅ Π΄Π»Ρ ΠΎΠ΄Π½ΠΎΠ³ΠΎ ΠΆΠΈΠ»ΡΡΠ° ΠΈΠ»ΠΈ ΠΌΠΎΠ»ΠΎΠ΄ΠΎΠΉ ΡΠ΅ΠΌΡΠΈ, ΠΊΠΎΡΠΎΡΡΠ΅ Π»ΡΠ±ΡΡ ΠΏΡΠΈΠ³Π»Π°ΡΠ°ΡΡ ΠΊ ΡΠ΅Π±Π΅ Π±ΠΎΠ»ΡΡΠΎΠ΅ ΠΊΠΎΠ»ΠΈΡΠ΅ΡΡΠ²ΠΎ Π³ΠΎΡΡΠ΅ΠΉ, ΠΈ ΠΏΠΎΡΡΠΎΡΠ½Π½ΠΎ ΠΌΡΡΠ°ΡΡΡΡ ΠΎΡ ΡΠ»ΠΈΡΠΊΠΎΠΌ ΠΌΠ°Π»Π΅Π½ΡΠΊΠΎΠΉ ΠΏΠ»ΠΎΡΠ°Π΄ΠΈ ΠΊΠ²Π°ΡΡΠΈΡΡ.
ΠΠΊΡΠΊΠ»ΡΠ·ΠΈΠ²Π½ΡΠΉ Π΄ΠΈΠ·Π°ΠΉΠ½ Π΄Π²ΡΡ ΡΡΠ°ΠΆΠ½ΠΎΠΉ ΠΊΠ²Π°ΡΡΠΈΡΡ ΡΡΡΠ΄ΠΈΠΈ, Π΅ΡΠ»ΠΈ Π²ΡΡΠΎΡΠ° ΠΏΠΎΡΠΎΠ»ΠΊΠ° ΠΏΠΎΠ·Π²ΠΎΠ»ΠΈΡ ΡΡΠΎ ΡΠ΄Π΅Π»Π°ΡΡ.Π’Π°ΠΊ ΡΡΠΎ, ΠΏΡΠ΅ΠΎΠ±ΡΠ°Π·ΠΎΠ²Π°Π½ΠΈΠ΅ ΠΊΠ²Π°ΡΡΠΈΡΡ Π² ΡΡΡΠ΄ΠΈΡ ΠΏΡΠ΅ΠΊΡΠ°ΡΠ½ΡΠΉ Π²Π°ΡΠΈΠ°Π½Ρ, Π΅ΡΠ»ΠΈ ΠΈΠ·-Π·Π° ΠΌΠ°Π»ΡΡ ΡΠ°Π·ΠΌΠ΅ΡΠΎΠ² ΠΈΠ»ΠΈ Π»ΠΈΡΠ½ΡΡ ΠΏΡΠ΅Π΄ΠΏΠΎΡΡΠ΅Π½ΠΈΠΉ Π½Π΅ ΠΏΡΠΎΠ²ΠΎΠ΄ΠΈΡΡΡ ΠΏΠ΅ΡΠ΅ΠΏΠ»Π°Π½ΠΈΡΠΎΠ²ΠΊΠ° Π² Π΄Π²ΡΡ ΠΊΠΎΠΌΠ½Π°ΡΠ½ΡΡ ΠΊΠ²Π°ΡΡΠΈΡΡ. Π£Π²Ρ, Π² Π΄ΠΎΠΌΠ°Ρ ΡΠ΅ΡΠΈΠΈ II-68 Π·Π°ΡΠ°ΡΡΡΡ Π½Π΅Π²ΠΎΠ·ΠΌΠΎΠΆΠ½ΠΎ ΠΏΡΠΈΠ½ΡΡΡ ΠΈΠ½ΠΎΠ΅ ΡΠ΅ΡΠ΅Π½ΠΈΠ΅ β ΠΎΠ±ΡΠ°Ρ ΠΏΠ»ΠΎΡΠ°Π΄Ρ ΠΊΠ²Π°ΡΡΠΈΡ ΠΊΠΎΠ»Π΅Π±Π»Π΅ΡΡΡ ΠΎΡ 30,5 Π΄ΠΎ 34,5 ΠΊΠ²Π°Π΄ΡΠ°ΡΠ½ΡΡ ΠΌΠ΅ΡΡΠΎΠ², Π° ΠΆΠΈΠ»Π°Ρ ΠΏΠ»ΠΎΡΠ°Π΄Ρ ΠΎΠ±ΡΡΠ½ΠΎ ΡΠΎΡΡΠ°Π²Π»ΡΠ΅Ρ ΠΎΠΊΠΎΠ»ΠΎ 14,7 ΠΊΠ²Π°Π΄ΡΠ°ΡΠ½ΡΡ ΠΌΠ΅ΡΡΠΎΠ². ΠΠ±ΡΡΠ½ΠΎ ΠΏΠΎΠ΄ ΡΡΡ ΡΠ΅ΡΠΈΡ ΠΏΠΎΠΏΠ°Π΄Π°ΡΡ ΠΏΠΎΡΡΠΈ Π²ΡΠ΅ Β«Π±ΡΠ΅ΠΆΠ½Π΅Π²ΠΊΠΈΒ».
ΠΠ΅ΡΠ½ΡΡΡΡΡ ΠΊ ΠΎΠ³Π»Π°Π²Π»Π΅Π½ΠΈΡΠΡΠ½ΠΎΠ²Π½ΡΠ΅ ΠΏΡΠΎΠ±Π»Π΅ΠΌΡ, Π²ΠΎΠ·Π½ΠΈΠΊΠ°ΡΡΠΈΠ΅ ΠΏΡΠΈ ΠΏΠ΅ΡΠ΅ΠΏΠ»Π°Π½ΠΈΡΠΎΠ²ΠΊΠ΅ ΠΊΠ²Π°ΡΡΠΈΡΡ Π² ΡΡΡΠ΄ΠΈΡ
ΠΡΠ°ΠΊ, Π²Ρ ΡΠ΅ΡΠΈΠ»ΠΈ ΠΏΡΠ΅ΠΎΠ±ΡΠ°Π·ΠΎΠ²Π°ΡΡ ΡΠ²ΠΎΡ ΠΎΠ΄Π½ΠΎΠΊΠΎΠΌΠ½Π°ΡΠ½ΡΡ ΠΊΠ²Π°ΡΡΠΈΡΡ Π² ΠΏΠ°Π½Π΅Π»ΡΠ½ΠΎΠΌ Π΄ΠΎΠΌΠ΅ Π² ΠΏΡΠΎΡΡΠΎΡΠ½ΡΡ ΠΈ ΡΠ²Π΅ΡΠ»ΡΡ ΡΡΡΠ΄ΠΈΡ. Π‘ ΡΠ΅ΠΌ ΠΆΠ΅ Π²Π°ΠΌ ΠΏΡΠΈΠ΄Π΅ΡΡΡ ΡΡΠΎΠ»ΠΊΠ½ΡΡΡΡΡ?
ΡΠ΄Π°ΡΠ½ΡΠΉ Π΄ΠΈΠ·Π°ΠΉΠ½-ΠΏΡΠΎΠ΅ΠΊΡ ΠΏΠΎΠ»ΡΡΠΈΠ²ΡΠ΅ΠΉΡΡ ΠΊΠ²Π°ΡΡΠΈΡΡ-ΡΡΡΠ΄ΠΈΠΈΠ Π½Π΅ΠΊΠΎΡΠΎΡΡΡ ΡΠ»ΡΡΠ°ΡΡ ΠΏΡΠ°ΠΊΡΠΈΡΠ΅ΡΠΊΠΈ Π²ΡΡ ΡΠ°Π±ΠΎΡΡ ΠΌΠΎΠΆΠ½ΠΎ ΡΠ΄Π΅Π»Π°ΡΡ ΡΠ²ΠΎΠΈΠΌΠΈ ΡΡΠΊΠ°ΠΌΠΈ. ΠΠ΄ΠΈΠ½ΡΡΠ²Π΅Π½Π½ΠΎΠ΅ Π΄Π΅Π»ΠΎ, ΠΊΠΎΡΠΎΡΠΎΠ΅ ΡΡΠΎΠΈΡ Π΄ΠΎΠ²Π΅ΡΠΈΡΡ ΠΏΡΠΎΡΠ΅ΡΡΠΈΠΎΠ½Π°Π»Ρ, ΡΡΠΎ ΡΠ°Π·ΡΠ°Π±ΠΎΡΠΊΠ° Π΄ΠΈΠ·Π°ΠΉΠ½Π°. ΠΠ½ΠΎΠ³ΠΈΠ΅ Π»ΡΠ΄ΠΈ, ΠΆΠΈΠ²ΡΡΠΈΠ΅ Π² ΡΠ°ΠΌΠΎΠ΄Π΅Π»ΡΠ½ΠΎΠΉ ΡΡΡΠ΄ΠΈΠΈ, ΠΎΡΠΌΠ΅ΡΠ°ΡΡ, ΡΡΠΎ Π²ΠΎΠ·Π½ΠΈΠΊΠ°Π΅Ρ Π»Π΅Π³ΠΊΠΎΠ΅ ΡΡΠ²ΡΡΠ²ΠΎ Π΄ΠΈΡΠΊΠΎΠΌΡΠΎΡΡΠ° ΠΈΠ·-Π·Π° ΡΠΎΠ³ΠΎ, ΡΡΠΎ ΠΈ ΠΆΠΈΡΡ, ΠΈ ΠΏΠΈΡΠ°ΡΡΡΡ ΠΏΡΠΈΡ ΠΎΠ΄ΠΈΡΡΡ Π² ΠΎΠ΄Π½ΠΎΠΉ ΠΊΠΎΠΌΠ½Π°ΡΠ΅. ΠΠ΄Π½Π°ΠΊΠΎ, Π΅ΡΠ»ΠΈ ΠΏΡΠ°Π²ΠΈΠ»ΡΠ½ΠΎ Π·ΠΎΠ½ΠΈΡΠΎΠ²Π°ΡΡ ΠΏΠΎΠΌΠ΅ΡΠ΅Π½ΠΈΠ΅, ΡΡΠ²ΡΡΠ²ΠΎ Π΄ΠΈΡΠΊΠΎΠΌΡΠΎΡΡΠ° ΠΈΡΡΠ΅Π·Π°Π΅Ρ. ΠΠΌΠ΅Π½Π½ΠΎ ΡΠ°Π±ΠΎΡΡ ΠΏΠΎ ΡΠ°Π·ΡΠ°Π±ΠΎΡΠΊΠ΅ Π·ΠΎΠ½ΠΈΡΠΎΠ²Π°Π½ΠΈΡ ΠΈ ΠΏΡΠΎΡΡΠΎ Π²Π½Π΅ΡΠ½Π΅Π³ΠΎ Π²ΠΈΠ΄Π° ΠΏΠΎΠΌΠ΅ΡΠ΅Π½ΠΈΡ ΡΡΠΎΠΈΡ Π΄ΠΎΠ²Π΅ΡΠΈΡΡ ΡΠΏΠ΅ΡΠΈΠ°Π»ΠΈΡΡΠ°ΠΌ.
ΠΡΠΈΠΌΠ΅Ρ ΡΠ΅ΠΌΠΎΠ½ΡΠ° Ρ ΠΏΠ΅ΡΠ΅ΠΏΠ»Π°Π½ΠΈΡΠΎΠ²ΠΊΠΎΠΉ Π² ΠΎΠ΄Π½ΠΎΠΊΠΎΠΌΠ½Π°ΡΠ½ΠΎΠΉ ΠΊΠ²Π°ΡΡΠΈΡΠ΅.
ΠΠΎΠΆΠ΅ΡΠ΅ Π±ΡΡΡ ΡΠ²Π΅ΡΠ΅Π½Ρ, ΡΡΠΎ ΠΎΠ½ΠΈ Π²ΡΠΏΠΎΠ»Π½ΡΡ Π²ΡΠ΅ Π½Π΅ ΡΠΎΠ»ΡΠΊΠΎ Π±ΡΡΡΡΠΎ, Π½ΠΎ ΠΈ ΠΊΠ°ΡΠ΅ΡΡΠ²Π΅Π½Π½ΠΎ. ΠΠ½ΠΎΠ³Π΄Π° ΡΡΠΎ Π΅ΡΡ ΠΈ ΠΌΠΎΠΆΠ΅Ρ ΡΡΠΎΠΈΡΡ ΡΡΠ°Π²Π½ΠΈΡΠ΅Π»ΡΠ½ΠΎ Π½Π΅Π΄ΠΎΡΠΎΠ³ΠΎ: Π² ΠΏΠΎΡΠ»Π΅Π΄Π½ΠΈΠ΅ Π³ΠΎΠ΄Ρ ΠΊ Π΄ΠΈΠ·Π°ΠΉΠ½Π΅ΡΠ°ΠΌ Π²ΡΡ ΡΠ°ΡΠ΅ ΠΎΠ±ΡΠ°ΡΠ°ΡΡΡΡ Π·Π° ΡΠ°ΠΊΠΎΠΉ ΠΏΠΎΠΌΠΎΡΡΡ. ΠΠΎΡΡΠΎΠΌΡ, Π΅ΡΠ»ΠΈ Π²Π°ΠΌ Π½Π΅ ΠΎΠ±ΡΠ·Π°ΡΠ΅Π»ΡΠ½ΠΎ ΠΈΠΌΠ΅ΡΡ ΡΠ½ΠΈΠΊΠ°Π»ΡΠ½ΡΠΉ Π΄ΠΈΠ·Π°ΠΉΠ½ ΠΈ Π²Ρ ΡΠΎΠ³Π»Π°ΡΠ½Ρ Π½Π° ΡΡΠ°Π½Π΄Π°ΡΡΠ½ΡΠΉ, ΡΠΎ ΡΠΌΠΎΠΆΠ΅ΡΠ΅ ΡΡΠΊΠΎΠ½ΠΎΠΌΠΈΡΡ ΡΠ°ΠΊΠΈΠΌ ΠΎΠ±ΡΠ°Π·ΠΎΠΌ Π½Π΅ΠΌΠ°Π»ΠΎ Π²ΡΠ΅ΠΌΠ΅Π½ΠΈ ΠΈ ΡΡΠ΅Π΄ΡΡΠ².ΠΠ΅ΡΠ΅Π³ΠΎΡΠΎΠ΄ΠΊΠ° ΠΌΠ΅ΠΆΠ΄Ρ ΠΊΡΡ Π½Π΅ΠΉ ΠΈ ΠΊΠΎΠΌΠ½Π°ΡΠΎΠΉ ΠΏΡΠΎΡΡΠΎ ΡΠ½ΠΎΡΠΈΡΡΡ, Π² ΡΠ΅Π·ΡΠ»ΡΡΠ°ΡΠ΅ ΡΠ΅Π³ΠΎ Π²Ρ ΠΏΠΎΠ»ΡΡΠ°Π΅ΡΠ΅ Π΄ΠΎΠ²ΠΎΠ»ΡΠ½ΠΎ Π±ΠΎΠ»ΡΡΠΎΠ΅ ΠΏΠΎΠΌΠ΅ΡΠ΅Π½ΠΈΠ΅, ΠΎΠ΄ΠΈΠ½ ΠΈΠ· ΡΠ³Π»ΠΎΠ² Π² ΠΊΠΎΡΠΎΡΠΎΠΌ ΠΎΡΠ²ΠΎΠ΄ΠΈΡΡΡ ΠΏΠΎΠ΄ ΠΊΡΡ Π½Ρ.
ΠΡΡΠ³ΠΈΠΌΠΈ ΡΠ»ΠΎΠ²Π°ΠΌΠΈ, ΡΠ΅ΠΏΠ΅ΡΡ Π²ΡΡ ΠΊΠ²Π°ΡΡΠΈΡΠ° ΡΠΎΡΡΠΎΠΈΡ ΠΈΠ· ΡΠ°Π½ΡΠ·Π»Π°, ΠΊΠΎΡΠΈΠ΄ΠΎΡΠ° ΠΈ ΡΠ½ΠΈΠ²Π΅ΡΡΠ°Π»ΡΠ½ΠΎΠΉ ΡΡΡΠ΄ΠΈΠΈ. ΠΠΎΠ½ΠΈΡΠΎΠ²Π°ΡΡ ΠΏΠΎΠΌΠ΅ΡΠ΅Π½ΠΈΠ΅, ΠΎΡΠ΄Π΅Π»ΡΡ ΠΆΠΈΠ»ΡΡ ΠΏΠ»ΠΎΡΠ°Π΄Ρ ΠΎΡ ΠΊΡΡ Π½ΠΈ, Π»ΡΡΡΠ΅ Π²ΡΠ΅Π³ΠΎ Ρ ΠΈΡΠΏΠΎΠ»ΡΠ·ΠΎΠ²Π°Π½ΠΈΠ΅ΠΌ ΠΎΡΠ΄Π΅Π»ΠΎΡΠ½ΡΡ ΠΌΠ°ΡΠ΅ΡΠΈΠ°Π»ΠΎΠ² ΡΠ°Π·Π»ΠΈΡΠ½ΠΎΠ³ΠΎ ΡΠ²Π΅ΡΠ°. ΠΠ°ΠΊ Π²Π°ΡΠΈΠ°Π½Ρ, ΠΌΠΎΠΆΠ½ΠΎ ΠΈΡΠΏΠΎΠ»ΡΠ·ΠΎΠ²Π°ΡΡ ΡΠ°Π·Π½ΡΠ΅ Π²ΠΈΠ΄Ρ Π½Π°ΠΏΠΎΠ»ΡΠ½ΡΡ ΠΏΠΎΠΊΡΡΡΠΈΠΉ. ΠΡΠ»ΠΈ Π΅ΡΡΡ Π²ΠΎΠ·ΠΌΠΎΠΆΠ½ΠΎΡΡΡ ΠΏΠΎΡΡΠ°ΡΠΈΡΡ Π»ΠΈΡΠ½ΠΈΠ΅ Π΄Π΅Π½ΡΠ³ΠΈ, ΡΠΎ ΠΌΠΎΠΆΠ½ΠΎ ΡΡΡΡ ΠΏΡΠΈΠΏΠΎΠ΄Π½ΡΡΡ Π·ΠΎΠ½Ρ ΠΊΡΡ Π½ΠΈ, ΡΠΎΠ·Π΄Π°Π² ΠΏΡΠΈ ΡΡΠΎΠΌ Π½Π΅Π±ΠΎΠ»ΡΡΠΎΠΉ ΠΏΠΎΠ΄ΠΈΡΠΌ. ΠΡ ΠΏΠΎΡΠ΅ΡΡΠ΅ΡΠ΅ Π²ΡΠ΅Π³ΠΎ 5-7 ΡΠ°Π½ΡΠΈΠΌΠ΅ΡΡΠΎΠ² ΠΎΡ Π²ΡΡΠΎΡΡ ΠΏΠΎΠΌΠ΅ΡΠ΅Π½ΠΈΡ, Π·Π°ΡΠΎ ΡΡΡΠ΅ΠΊΡΠΈΠ²Π½ΠΎ ΡΠ°Π·Π΄Π΅Π»ΠΈΡΠ΅ ΠΏΠΎΠΌΠ΅ΡΠ΅Π½ΠΈΠ΅ ΠΏΠΎ Π·ΠΎΠ½Π°ΠΌ ΠΈΡΠΏΠΎΠ»ΡΠ·ΠΎΠ²Π°Π½ΠΈΡ.
Π£Π΄Π°ΡΠ½ΡΠΌ ΡΠ΅ΡΠ΅Π½ΠΈΠ΅ΠΌ ΠΌΠΎΠΆΠ½ΠΎ Π½Π°Π·Π²Π°ΡΡ ΠΈ ΡΡΠ³ΠΎΠ½ΠΎΠΌΠΈΡΠ½ΠΎΠ΅ ΡΠ°Π·ΠΌΠ΅ΡΠ΅Π½ΠΈΠ΅ ΠΌΠ΅Π±Π΅Π»ΠΈ. ΠΠΎ Π·Π΄Π΅ΡΡ ΡΠ»Π΅Π΄ΡΠ΅Ρ Π±ΡΡΡ ΡΠΌΠ΅ΡΠ΅Π½Π½ΡΠΌ, Π²Π΅Π΄Ρ Ρ ΠΎΡΡ ΠΏΠΎΠΌΠ΅ΡΠ΅Π½ΠΈΠ΅ ΠΈ ΡΠ²Π΅Π»ΠΈΡΠΈΠ»ΠΎΡΡ ΠΏΠΎ ΠΏΠ»ΠΎΡΠ°Π΄ΠΈ, Π½ΠΎ Π²ΡΠ΅ ΡΠ°Π²Π½ΠΎ ΠΎΠ½ΠΎ Π½Π΅ ΡΠΎΡΡΠ°Π²Π»ΡΠ΅Ρ 45-50 ΠΊΠ². ΠΌ. ΠΠΎΡΡΠΎΠΌΡ ΠΌΠ΅Π±Π΅Π»Ρ Π΄ΠΎΠ»ΠΆΠ½Π° Π±ΡΡΡ Π½Π΅ ΡΠΎΠ»ΡΠΊΠΎ ΠΊΠΎΠΌΠΏΠ°ΠΊΡΠ½ΠΎΠΉ, Π½ΠΎ ΠΈ ΡΡΠ½ΠΊΡΠΈΠΎΠ½Π°Π»ΡΠ½ΠΎΠΉ. Π£Π΄Π°ΡΠ½ΡΠΌ Π²ΡΠ±ΠΎΡΠΎΠΌ ΡΡΠ°Π½Π΅Ρ ΡΡΠΎΠ»-ΡΡΠ°Π½ΡΡΠΎΡΠΌΠ΅Ρ ΠΈ Π΄ΡΡΠ³ΠΈΠ΅ Π΄ΠΈΠ·Π°ΠΉΠ½Π΅ΡΡΠΊΠΈΠ΅ ΡΠ΅ΡΠ΅Π½ΠΈΡ, ΠΏΠΎΠ·Π²ΠΎΠ»ΡΡΡΠΈΠ΅ ΡΠΊΠΎΠ½ΠΎΠΌΠΈΡΡ ΠΌΠ΅ΡΡΠΎ ΠΈ ΠΆΠΈΡΡ Ρ ΠΌΠ°ΠΊΡΠΈΠΌΠ°Π»ΡΠ½ΡΠΌ ΠΊΠΎΠΌΡΠΎΡΡΠΎΠΌ.
ΠΠ΄Π½Π°ΠΊΠΎ, Π²ΡΡΠ΅ ΠΎΠΏΠΈΡΠ°Π½ ΡΠΎΠ»ΡΠΊΠΎ ΡΠ°ΠΌΡΠΉ Π±Π»Π°Π³ΠΎΠΏΠΎΠ»ΡΡΠ½ΡΠΉ Π²Π°ΡΠΈΠ°Π½Ρ ΠΏΠ΅ΡΠ΅ΠΏΠ»Π°Π½ΠΈΡΠΎΠ²ΠΊΠΈ ΠΊΠ²Π°ΡΡΠΈΡΡ Π² ΡΡΡΠ΄ΠΈΡ. ΠΠΎΡΠ°Π·Π΄ΠΎ Ρ ΡΠΆΠ΅, Π΅ΡΠ»ΠΈ ΠΆΠΈΠ»ΡΡ ΠΊΠΎΠΌΠ½Π°ΡΡ ΠΈ ΠΊΡΡ Π½Ρ ΡΠ°Π·Π΄Π΅Π»ΡΠ΅Ρ Π½Π΅ΡΡΡΠ°Ρ ΡΡΠ΅Π½Π°. Π ΠΌΠ½ΠΎΠ³ΠΈΠ΅ Ρ ΡΡΡΠ΅Π²ΠΊΠΈ ΠΈΠΌΠ΅ΡΡ ΠΈΠΌΠ΅Π½Π½ΠΎ ΡΠ°ΠΊΠΎΠ΅ ΡΡΡΠΎΠΈΡΠ΅Π»ΡΠ½ΠΎΠ΅ ΡΠ΅ΡΠ΅Π½ΠΈΠ΅. Π£ΠΊΠΎΡΠ°ΡΠΈΠ²Π°Π½ΠΈΠ΅, Π° ΡΠ΅ΠΌ Π±ΠΎΠ»Π΅Π΅ ΡΠ½ΠΎΡ Π½Π΅ΡΡΡΠ΅ΠΉ ΡΡΠ΅Π½Ρ Π½Π΅ΡΠ΅Π΄ΠΊΠΎ ΠΏΡΠΈΠ²ΠΎΠ΄ΠΈΡ ΠΊ ΡΠΎΠΌΡ, ΡΡΠΎ Π·Π΄Π°Π½ΠΈΠ΅ ΠΏΡΠΎΡΡΠΎ ΡΠ°Π·Π²Π°Π»ΠΈΠ²Π°Π΅ΡΡΡ Π½Π° ΡΠ°ΡΡΠΈ.
ΠΠΎΡΡΠΎΠΌΡ, ΠΏΡΠ΅ΠΆΠ΄Π΅ ΡΠ΅ΠΌ ΠΏΡΠΈΡΡΡΠΏΠΈΡΡ ΠΊ ΡΠ°Π±ΠΎΡΠ΅, Π½Π΅ΠΎΠ±Ρ ΠΎΠ΄ΠΈΠΌΠΎ ΠΏΠΎΠ»ΡΡΠΈΡΡ ΡΠ°Π·ΡΠ΅ΡΠ΅Π½ΠΈΠ΅ ΠΈΠ· ΠΠ’Π Π½Π° ΠΏΠ΅ΡΠ΅Π½ΠΎΡ, ΡΠ½ΠΎΡ ΠΈ Π»ΡΠ±ΡΠ΅ Π΄ΡΡΠ³ΠΈΠ΅ Π΄Π΅ΠΉΡΡΠ²ΠΈΡ Ρ Π½Π΅ΡΡΡΠΈΠΌΠΈ ΡΡΠ΅Π½Π°ΠΌΠΈ. ΠΠΎΠ½Π΅ΡΠ½ΠΎ, Π΅ΡΠ»ΠΈ Π²Ρ ΡΠ½ΠΎΡΠΈΡΠ΅ Π½Π΅ΡΡΡΡΡ ΡΡΠ΅Π½Ρ ΠΌΠ΅ΠΆΠ΄Ρ ΠΊΠΎΠΌΠ½Π°ΡΠΎΠΉ ΠΈ ΠΊΡΡ Π½Π΅ΠΉ, ΠΏΡΠΈΠ΄Π΅ΡΡΡ ΡΡΠΈΠ»ΠΈΡΡ ΠΏΡΠΎΡΠΌ ΠΌΠ΅ΡΠ°Π»Π»ΠΎΠΏΡΠΎΡΠΈΠ»Π΅ΠΌ (ΡΠ°ΡΠ΅ Π²ΡΠ΅Π³ΠΎ ΡΠ²Π΅Π»Π»Π΅ΡΠΎΠΌ ΠΈΠ»ΠΈ Π±Π°Π»ΠΊΠΎΠΉ), ΠΊΠΎΡΠΎΡΡΠ΅ ΠΏΡΠΈΠΌΡΡ Π½Π° ΡΠ΅Π±Ρ Π²ΡΡ Π½Π°Π³ΡΡΠ·ΠΊΡ.
ΠΠ±ΡΡΠ½ΠΎ, ΡΠ΅ΠΌ Π²ΡΡΠ΅ Π½Π°Ρ ΠΎΠ΄ΠΈΡΡΡ ΠΊΠ²Π°ΡΡΠΈΡΠ° Π² Π΄ΠΎΠΌΠ΅, ΡΠ΅ΠΌ Π»Π΅Π³ΡΠ΅ Π±ΡΠ²Π°Π΅Ρ ΠΏΠΎΠ»ΡΡΠΈΡΡ ΡΠΎΠΎΡΠ²Π΅ΡΡΡΠ²ΡΡΡΠ΅Π΅ ΡΠ°Π·ΡΠ΅ΡΠ΅Π½ΠΈΠ΅ β Π½Π°Π³ΡΡΠ·ΠΊΠ° Π½Π° ΠΊΠΎΠ½ΡΡΡΡΠΊΡΠΈΡ ΡΠ½ΠΈΠΆΠ°Π΅ΡΡΡ Ρ ΠΊΠ°ΠΆΠ΄ΡΠΌ ΡΡΠ°ΠΆΠΎΠΌ.
Π’Π°ΠΊ ΡΡΠΎ, ΡΠΎΡΡΠ°Π²Π»ΡΠΉΡΠ΅ ΠΏΠ»Π°Π½ ΡΠ²ΠΎΠ΅ΠΉ Π½ΠΎΠ²ΠΎΠΉ ΠΊΠ²Π°ΡΡΠΈΡΡ-ΡΡΡΠ΄ΠΈΠΈ, ΡΠ°Π·ΡΠ°Π±ΠΎΡΠ°ΠΉΡΠ΅ Π΄ΠΈΠ·Π°ΠΉΠ½ (ΡΠ°ΠΌΠΎΡΡΠΎΡΡΠ΅Π»ΡΠ½ΠΎ ΠΈΠ»ΠΈ ΠΏΡΠΈ ΠΏΠΎΠΌΠΎΡΠΈ ΡΠΏΠ΅ΡΠΈΠ°Π»ΠΈΡΡΠ°) ΠΈ ΠΏΡΠΈΠ³ΠΎΡΠΎΠ²ΡΡΠ΅ΡΡ ΠΊ ΡΠΎΠΌΡ, ΡΡΠΎ Π²Π°ΡΠ° ΠΆΠΈΠ·Π½Ρ ΡΡΡΠ΅ΠΌΠΈΡΠ΅Π»ΡΠ½ΠΎ ΠΈΠ·ΠΌΠ΅Π½ΠΈΡΡΡ.
ΠΠ΅ΡΠ½ΡΡΡΡΡ ΠΊ ΠΎΠ³Π»Π°Π²Π»Π΅Π½ΠΈΡΠΠ°ΠΊ ΠΏΠΎΠ»ΡΡΠΈΡΡ ΠΈΠ· ΠΎΠ΄Π½ΠΎΠΉ ΠΊΠΎΠΌΠ½Π°ΡΡ Π΄Π²Π΅
Π‘ ΠΎΠ΄Π½ΠΎΠΉ ΡΡΠΎΡΠΎΠ½Ρ, ΡΠ°Π·Π±ΠΈΠ²ΠΊΠ° ΠΎΠ΄Π½ΠΎΠΉ ΠΊΠΎΠΌΠ½Π°ΡΡ Π½Π° Π΄Π²Π΅ Π΄ΠΎΡΡΠ°Π²Π»ΡΠ΅Ρ Π·Π½Π°ΡΠΈΡΠ΅Π»ΡΠ½ΠΎ ΠΌΠ΅Π½ΡΡΠ΅ Ρ Π»ΠΎΠΏΠΎΡ, ΡΠ΅ΠΌ ΠΏΡΠ΅Π²ΡΠ°ΡΠ΅Π½ΠΈΠ΅ ΠΊΠ²Π°ΡΡΠΈΡΡ Π² ΡΡΡΠ΄ΠΈΡ, Π²Π΅Π΄Ρ Π·Π΄Π΅ΡΡ Π½Π΅ ΠΏΡΠΈΠ΄Π΅ΡΡΡ ΠΏΡΠΎΠ²ΠΎΠ΄ΠΈΡΡ Π½ΠΈΠΊΠ°ΠΊΠΈΡ ΡΠ΅ΡΡΠ΅Π·Π½ΡΡ ΡΠ΅ΠΌΠΎΠ½ΡΠ½ΡΡ ΡΠ°Π±ΠΎΡ ΠΏΠΎ ΡΠ½ΠΎΡΡ ΡΡΠ΅Π½, Π° Π·Π½Π°ΡΠΈΡ, Π½Π΅ Π½ΡΠΆΠ½ΠΎ Π±ΡΠ΄Π΅Ρ ΠΏΠΎΠ»ΡΡΠ°ΡΡ ΡΠ°Π·ΡΠ΅ΡΠ΅Π½ΠΈΠ΅ ΡΠΏΠ΅ΡΠΈΠ°Π»ΠΈΠ·ΠΈΡΠΎΠ²Π°Π½Π½ΡΡ ΠΎΡΠ³Π°Π½ΠΈΠ·Π°ΡΠΈΠΉ. ΠΠΎ Ρ Π΄ΡΡΠ³ΠΎΠΉ ΡΡΠΎΡΠΎΠ½Ρ, ΠΎΡΠ΅Π½Ρ ΡΠ»ΠΎΠΆΠ½ΠΎ ΠΏΡΠ΅Π²ΡΠ°ΡΠΈΡΡ ΠΎΠ΄Π½Ρ ΠΊΠΎΠΌΠ½Π°ΡΡ Π² Π΄Π²Π΅ ΡΠ°ΠΊΠΈΠΌ ΠΎΠ±ΡΠ°Π·ΠΎΠΌ, ΡΡΠΎΠ±Ρ ΠΎΠ½ΠΈ Π±ΡΠ»ΠΈ ΡΡΡΠ½ΡΠΌΠΈ, ΠΈ Π½Π°Ρ ΠΎΠ΄ΠΈΡΡΡΡ Π² Π½ΠΈΡ Π±ΡΠ»ΠΎ Π±Ρ ΠΊΠΎΠΌΡΠΎΡΡΠ½ΠΎ.
ΠΠΎΠ½Π΅ΡΠ½ΠΎ, Π·Π΄Π΅ΡΡ ΡΠ°ΠΊΠΆΠ΅ ΠΆΠ΅Π»Π°ΡΠ΅Π»ΡΠ½ΠΎ ΡΠΎΡΡΠ°Π²ΠΈΡΡ ΠΏΠΎΠ΄Ρ ΠΎΠ΄ΡΡΠΈΠ΅ ΡΡ Π΅ΠΌΡ, Π½Π° ΠΊΠΎΡΠΎΡΡΠ΅ Π²Ρ Π±ΡΠ΄Π΅ΡΠ΅ ΠΎΠΏΠΈΡΠ°ΡΡΡΡ ΠΏΡΠΈ ΠΏΡΠΎΠ²Π΅Π΄Π΅Π½ΠΈΠΈ Π²ΡΠ΅Π³ΠΎ ΠΊΠΎΠΌΠΏΠ»Π΅ΠΊΡΠ° ΡΠ°Π±ΠΎΡ.
Π‘ΡΠΎΠΈΡ ΡΡΠ΅ΡΡΡ, ΡΡΠΎ ΠΏΠΎΡΠ»Π΅ ΡΠΎΠ³ΠΎ, ΠΊΠ°ΠΊ Π²Ρ ΡΠ°Π·ΠΎΠ±ΡΠ΅ΡΠ΅ ΠΊΠΎΠΌΠ½Π°ΡΡ Π½Π° Π΄Π²Π΅, Π΅ΡΡΠ΅ΡΡΠ²Π΅Π½Π½ΠΎΠ΅ ΠΎΡΠ²Π΅ΡΠ΅Π½ΠΈΠ΅ ΠΎΡΡΠ°Π½Π΅ΡΡΡ ΡΠΎΠ»ΡΠΊΠΎ Π² ΠΎΠ΄Π½ΠΎΠΉ ΠΈΠ· Π½ΠΈΡ . Π Π·Π½Π°ΡΠΈΡ, Π²ΠΎ Π²ΡΠΎΡΠΎΠΉ Π΄ΠΎΠ»ΠΆΠ½ΠΎ Π±ΡΡΡ Π΄ΠΎΡΡΠ°ΡΠΎΡΠ½ΠΎ ΠΌΠΎΡΠ½ΠΎΠ΅ ΠΈΡΠΊΡΡΡΡΠ²Π΅Π½Π½ΠΎΠ΅ ΠΎΡΠ²Π΅ΡΠ΅Π½ΠΈΠ΅, ΡΠΏΠΎΡΠΎΠ±Π½ΠΎΠ΅ ΠΊΠΎΠΌΠΏΠ΅Π½ΡΠΈΡΠΎΠ²Π°ΡΡ Π½Π΅Π΄ΠΎΡΡΠ°ΡΠΎΠΊ ΡΠΎΠ»Π½Π΅ΡΠ½ΠΎΠ³ΠΎ ΡΠ²Π΅ΡΠ°. Π Π°Π·ΡΠΌΠ΅Π΅ΡΡΡ, Π½Π΅ ΠΌΠΎΠΆΠ΅Ρ Π±ΡΡΡ ΠΈ ΡΠ΅ΡΠΈ ΠΎ ΡΠ°Π·Π±ΠΈΠ²ΠΊΠ΅ ΠΊΠΎΠΌΠ½Π°ΡΡ Π²Π΄ΠΎΠ»Ρ, ΡΡΠΎΠ±Ρ Π² ΠΊΠ°ΠΆΠ΄ΠΎΠΉ ΠΈΠ· Π΄Π²ΡΡ ΠΏΠΎΠ»ΡΡΠΈΠ²ΡΠΈΡ ΡΡ ΠΊΠΎΠΌΠ½Π°Ρ Π±ΡΠ»Π° Ρ ΠΎΡΡ Π±Ρ ΠΏΠΎΠ»ΠΎΠ²ΠΈΠ½Π° ΠΎΠΊΠ½Π°.
ΠΠ΅Π΄Ρ Π² ΡΠ΅Π·ΡΠ»ΡΡΠ°ΡΠ΅ Π²Ρ ΠΏΠΎΠ»ΡΡΠΈΡΠ΅ Π΄Π²Π° ΠΎΡΠ΅Π½Ρ Π΄Π»ΠΈΠ½Π½ΡΡ ΠΈ ΠΎΡΠ΅Π½Ρ ΡΠ·ΠΊΠΈΡ ΠΏΠΎΠΌΠ΅ΡΠ΅Π½ΠΈΡ, ΠΆΠΈΡΡ Π² ΠΊΠΎΡΠΎΡΡΡ Π±ΡΠ΄Π΅Ρ ΠΏΡΠΎΡΡΠΎ Π½Π΅Π²ΠΎΠ·ΠΌΠΎΠΆΠ½ΠΎ.
ΠΠΎΡΡΠΎΠΌΡ, ΠΏΡΠΈΠ΄Π΅ΡΡΡ ΠΌΠΈΡΠΈΡΡΡΡ Ρ ΡΠ΅ΠΌ, ΡΡΠΎ ΠΎΠ΄Π½Π° ΠΈΠ· ΠΊΠΎΠΌΠ½Π°Ρ Π½Π΅ Π±ΡΠ΄Π΅Ρ ΠΈΠΌΠ΅ΡΡ ΠΎΠΊΠ½Π°. ΠΡΡΠ°ΡΠΈ, Π΅ΡΠ»ΠΈ Π²Ρ ΡΠ°Π·Π΄Π΅Π»ΡΠ΅ΡΠ΅ ΠΊΠΎΠΌΠ½Π°ΡΡ Π½Π° Π΄Π²Π΅, ΡΡΠΎΠ±Ρ Π²ΡΠ΄Π΅Π»ΠΈΡΡ Π»ΠΈΡΠ½ΠΎΠ΅ ΠΏΡΠΎΡΡΡΠ°Π½ΡΡΠ²ΠΎ ΡΠ΅Π±ΡΠ½ΠΊΡ, ΡΠΎ ΡΡΠΎΠΈΡ ΠΎΡΠ΄Π°ΡΡ Π² Π΅Π³ΠΎ ΠΏΠΎΠ»ΡΠ·ΠΎΠ²Π°Π½ΠΈΠ΅ ΡΡ ΠΊΠΎΠΌΠ½Π°ΡΡ, ΠΊΠΎΡΠΎΡΠ°Ρ ΠΈΠΌΠ΅Π΅Ρ ΠΎΠΊΠ½ΠΎ. ΠΠ»Ρ Π΄Π΅ΡΠ΅ΠΉ Π½Π°Π»ΠΈΡΠΈΠ΅ ΡΠΎΠ»Π½Π΅ΡΠ½ΠΎΠ³ΠΎ ΡΠ²Π΅ΡΠ° ΡΠ²Π»ΡΠ΅ΡΡΡ Π²Π°ΠΆΠ½ΡΠΌ ΡΠ°ΠΊΡΠΎΡΠΎΠΌ: ΠΊΠ°ΠΊ Π΄Π»Ρ ΡΠΈΠ·ΠΈΡΠ΅ΡΠΊΠΎΠ³ΠΎ Π·Π΄ΠΎΡΠΎΠ²ΡΡ, ΡΠ°ΠΊ ΠΈ Π΄Π»Ρ Ρ ΠΎΡΠΎΡΠ΅Π³ΠΎ ΡΠ°ΠΌΠΎΡΡΠ²ΡΡΠ²ΠΈΡ.
ΠΡΠ΅Π½Ρ ΡΠ΅ΡΡΠ΅Π·Π½ΡΠΉ Π²ΠΎΠΏΡΠΎΡ, ΠΊΠΎΡΠΎΡΡΠΉ Π²ΠΎΠ·Π½ΠΈΠΊΠ°Π΅Ρ, ΠΊΠΎΠ³Π΄Π° Π²Ρ ΡΠΎΡΡΠ°Π²Π»ΡΠ΅ΡΠ΅ ΡΠ΅ΡΡΠ΅ΠΆΠΈ Π±ΡΠ΄ΡΡΠ΅ΠΉ ΠΊΠ²Π°ΡΡΠΈΡΡ, ΡΡΠΎ: Β«ΠΠ°ΠΊ ΠΆΠ΅ ΡΠ°Π·Π΄Π΅Π»ΠΈΡΡ ΠΊΠΎΠΌΠ½Π°ΡΡ Π½Π° Π΄Π²Π΅?Β» ΠΠ»Ρ ΡΡΠΎΠ³ΠΎ ΡΡΡΠ΅ΡΡΠ²ΡΠ΅Ρ Π½Π΅ΡΠΊΠΎΠ»ΡΠΊΠΎ Π²Π°ΡΠΈΠ°Π½ΡΠΎΠ². Π Π²ΡΠ΅ ΠΎΠ½ΠΈ Π΄ΠΎΡΡΠΎΠΉΠ½Ρ ΡΠΎΠ³ΠΎ, ΡΡΠΎΠ±Ρ ΠΈΡ Π²Π½ΠΈΠΌΠ°ΡΠ΅Π»ΡΠ½ΠΎ ΠΈΠ·ΡΡΠΈΠ»ΠΈ.
ΠΡΠΈΠΌΠ΅Ρ ΠΏΠ΅ΡΠ΅ΠΏΠ»Π°Π½ΠΈΡΠΎΠ²ΠΊΠΈ ΠΎΠ΄Π½ΠΎΠΊΠΎΠΌΠ½Π°ΡΠ½ΠΎΠΉ ΠΊΠ²Π°ΡΡΠΈΡΡ Π² Π΄Π²ΡΡ ΠΊΠΎΠΌΠ½Π°ΡΠ½ΡΡΠΠ΅ΡΠ½ΡΡΡΡΡ ΠΊ ΠΎΠ³Π»Π°Π²Π»Π΅Π½ΠΈΡΠ Π°Π·Π΄Π΅Π»ΡΠ΅ΠΌ ΠΊΠΎΠΌΠ½Π°ΡΡ Ρ ΠΏΠΎΠΌΠΎΡΡΡ Π³ΠΈΠΏΡΠΎΠΊΠ°ΡΡΠΎΠ½Π°
ΠΠ΄Π½ΠΈΠΌ ΠΈΠ· ΡΠ°ΠΌΡΡ ΠΏΡΠΎΡΡΡΡ ΠΈ Π΄Π΅ΡΠ΅Π²ΡΡ , Π½ΠΎ Π² ΡΠΎ ΠΆΠ΅ Π²ΡΠ΅ΠΌΡ Π½Π΅ ΡΠ°ΠΌΡΡ ΠΏΠΎΠΏΡΠ»ΡΡΠ½ΡΡ Π²Π°ΡΠΈΠ°Π½ΡΠΎΠ² ΡΠ²Π»ΡΠ΅ΡΡΡ ΠΏΠ΅ΡΠ΅ΠΏΠ»Π°Π½ΠΈΡΠΎΠ²ΠΊΠ° ΠΏΠΎΠΌΠ΅ΡΠ΅Π½ΠΈΡ ΠΏΡΠΈ ΠΏΠΎΠΌΠΎΡΠΈ ΡΡΡΠ°Π½ΠΎΠ²ΠΊΠΈ ΠΏΠ΅ΡΠ΅Π³ΠΎΡΠΎΠ΄ΠΊΠΈ ΠΈΠ· Π³ΠΈΠΏΡΠΎΠΊΠ°ΡΡΠΎΠ½Π°. ΠΠ»Π°Π΄Π΅Π»Π΅Ρ ΠΆΠΈΠ»ΡΡ ΡΡΡΠ°Π½Π°Π²Π»ΠΈΠ²Π°Π΅Ρ ΠΏΠ΅ΡΠ΅Π³ΠΎΡΠΎΠ΄ΠΊΡ, ΠΏΡΠΎΡΡΠ±Π°Π΅Ρ Π² Π½Π΅ΠΉ Π΄Π²Π΅ΡΡ ΠΈ ΠΏΠΎΠ»ΡΡΠ°Π΅Ρ Π΄Π²Π΅ Π½Π΅Π±ΠΎΠ»ΡΡΠΈΠ΅ ΠΊΠΎΠΌΠ½Π°ΡΡ.
ΠΠΎΠ½ΡΠ°ΠΆ Π³ΠΈΠΏΡΠΎΠΊΠ°ΡΡΠΎΠ½Π° ΠΏΡΠΎΠ²ΠΎΠ΄ΠΈΡΡΡ ΠΏΡΠΈ ΠΏΠΎΠΌΠΎΡΠΈ ΠΌΠ΅ΡΠ°Π»Π»ΠΈΡΠ΅ΡΠΊΠΎΠ³ΠΎ ΠΏΡΠΎΡΠΈΠ»Ρ, ΠΊ ΠΊΠΎΡΠΎΡΠΎΠΌΡ ΠΈ ΠΊΡΠ΅ΠΏΡΡΡΡ Π»ΠΈΡΡΡ. ΠΡΠ»ΠΈ Π²Ρ Ρ ΠΎΡΠΈΡΠ΅ ΡΠ²Π΅ΡΡΠΈ ΠΊ ΠΌΠΈΠ½ΠΈΠΌΡΠΌΡ ΡΡΠΌ, ΠΏΡΠΎΠ½ΠΈΠΊΠ°ΡΡΠΈΠΉ ΡΠ΅ΡΠ΅Π· ΠΏΠ΅ΡΠ΅Π³ΠΎΡΠΎΠ΄ΠΊΡ, ΡΡΠΎΠΈΡ ΡΡΡΠ°Π½ΠΎΠ²ΠΈΡΡ ΠΌΠ΅ΠΆΠ΄Ρ Π»ΠΈΡΡΠ°ΠΌΠΈ Π·Π²ΡΠΊΠΎΠΈΠ·ΠΎΠ»ΡΡΠΈΠΎΠ½Π½ΡΠΉ ΠΌΠ°ΡΠ΅ΡΠΈΠ°Π» β ΡΡΠΎΠ²Π΅Π½Ρ ΡΡΠΌΠ° ΡΠ΅Π·ΠΊΠΎ ΡΠ½ΠΈΠ·ΠΈΡΡΡ.
Π£Π²Ρ, Π΄Π°Π½Π½ΡΠΉ Π²Π°ΡΠΈΠ°Π½Ρ ΠΈΠΌΠ΅Π΅Ρ ΡΠ΅ΡΡΠ΅Π·Π½ΡΠΉ ΠΌΠΈΠ½ΡΡ β ΠΏΠΎΡΠ»Π΅ ΡΡΡΠ°Π½ΠΎΠ²ΠΊΠΈ Π³Π»ΡΡ ΠΎΠΉ ΠΏΠ΅ΡΠ΅Π³ΠΎΡΠΎΠ΄ΠΊΠΈ Π²ΠΎ Π²ΡΠΎΡΠΎΠΉ ΠΊΠΎΠΌΠ½Π°ΡΠ΅ Π±ΡΠ΄Π΅Ρ ΠΏΠΎΠ»Π½ΠΎΡΡΡΡ ΠΎΡΡΡΡΡΡΠ²ΠΎΠ²Π°ΡΡ Π΅ΡΡΠ΅ΡΡΠ²Π΅Π½Π½ΠΎΠ΅ ΠΎΡΠ²Π΅ΡΠ΅Π½ΠΈΠ΅. ΠΠ΄ΠΈΠ½ΡΡΠ²Π΅Π½Π½ΡΠΉ ΡΠΏΠΎΡΠΎΠ± ΠΈΡΠΏΡΠ°Π²ΠΈΡΡ ΡΡΠΎ β ΠΏΡΠΎΠ΄Π΅Π»Π°ΡΡ Π² Π³ΠΈΠΏΡΠΎΠΊΠ°ΡΡΠΎΠ½Π΅ Π½Π΅Π±ΠΎΠ»ΡΡΠΎΠΉ ΠΎΠΊΠΎΠ½Π½ΡΠΉ ΠΏΡΠΎΠ΅ΠΌ. ΠΠ³ΠΎ ΠΌΠΎΠΆΠ½ΠΎ ΠΎΠ±ΠΎΡΡΠ΄ΠΎΠ²Π°ΡΡ ΡΡΠ΅ΠΊΠ»ΠΎΠΏΠ°ΠΊΠ΅ΡΠΎΠΌ, ΡΡΠΎΠ±Ρ ΠΏΠΎΠ»ΡΡΠΈΡΡ Π΅ΡΡΠ΅ΡΡΠ²Π΅Π½Π½ΠΎΠ΅ ΠΎΡΠ²Π΅ΡΠ΅Π½ΠΈΠ΅ ΠΈ Π² ΡΠΎ ΠΆΠ΅ Π²ΡΠ΅ΠΌΡ Π·Π°ΡΠΈΡΠΈΡΡ ΡΠ΅Π±Ρ ΠΎΡ ΡΡΠΌΠ°.
ΠΡΠ΅Π½Ρ ΡΠ΅ΡΡΠ΅Π·Π½ΠΎ ΡΡΠΎΠΈΡ ΠΏΠΎΠ΄Ρ ΠΎΠ΄ΠΈΡΡ ΠΈ ΠΊ ΡΡΡΠ°Π½ΠΎΠ²ΠΊΠ΅ Π΄Π²Π΅ΡΠ΅ΠΉ. Π ΡΠ°ΠΊΠΎΠΉ ΡΠΈΡΡΠ°ΡΠΈΠΈ ΠΏΡΠΈΡ ΠΎΠ΄ΠΈΡΡΡ ΡΠΊΠΎΠ½ΠΎΠΌΠΈΡΡ ΠΊΠ°ΠΆΠ΄ΡΠΉ ΡΠ²ΠΎΠ±ΠΎΠ΄Π½ΡΠΉ ΠΊΠ²Π°Π΄ΡΠ°ΡΠ½ΡΠΉ ΠΌΠ΅ΡΡ, ΠΏΠΎΡΡΠΎΠΌΡ Π»ΡΡΡΠΈΠΌ ΡΠ΅ΡΠ΅Π½ΠΈΠ΅ΠΌ Π±ΡΠ΄Π΅Ρ ΠΎΡΠΊΠ°Π· ΠΎΡ ΠΊΠ»Π°ΡΡΠΈΡΠ΅ΡΠΊΠΎΠΉ ΡΠ°ΡΠΏΠ°ΡΠ½ΠΎΠΉ Π΄Π²Π΅ΡΠΈ Π² ΠΏΠΎΠ»ΡΠ·Ρ ΡΠ°Π·Π΄Π²ΠΈΠΆΠ½ΠΎΠΉ. Π’Π°ΠΊ Π²Ρ ΠΏΠΎΠ»ΡΡΠΈΡΠ΅ ΠΏΠΎΡΡΠΈ ΡΠ΅Π»ΡΠΉ ΠΊΠ²Π°Π΄ΡΠ°ΡΠ½ΡΠΉ ΠΌΠ΅ΡΡ ΠΏΠΎΠ»Π΅Π·Π½ΠΎΠΉ ΠΏΠ»ΠΎΡΠ°Π΄ΠΈ, ΠΊΠΎΡΠΎΡΡΠΉ ΡΠΌΠΎΠΆΠ΅ΡΠ΅ ΠΈΡΠΏΠΎΠ»ΡΠ·ΠΎΠ²Π°ΡΡ ΠΏΠΎ ΡΠ²ΠΎΠ΅ΠΌΡ ΡΡΠΌΠΎΡΡΠ΅Π½ΠΈΡ.
ΠΠ΅ΡΠ½ΡΡΡΡΡ ΠΊ ΠΎΠ³Π»Π°Π²Π»Π΅Π½ΠΈΡΠ£ΡΡΠ°Π½Π°Π²Π»ΠΈΠ²Π°Π΅ΠΌ ΡΠΊΠ°Ρ-ΠΊΡΠΏΠ΅
ΠΡΡ ΠΎΠ΄ΠΈΠ½ ΠΏΠΎΠΏΡΠ»ΡΡΠ½ΡΠΉ ΡΠΏΠΎΡΠΎΠ±, ΠΏΠΎΠ·Π²ΠΎΠ»ΡΡΡΠΈΠΉ Π»Π΅Π³ΠΊΠΎ ΠΈ ΠΈΠ·ΡΡΠ½ΠΎ ΡΠ°Π·Π΄Π΅Π»ΠΈΡΡ ΠΎΠ΄Π½ΠΎ ΠΏΠΎΠΌΠ΅ΡΠ΅Π½ΠΈΠ΅ Π½Π° Π΄Π²Π°, ΡΡΠΎ ΡΡΡΠ°Π½ΠΎΠ²ΠΊΠ° ΠΏΠΎΠ΄Ρ ΠΎΠ΄ΡΡΠ΅Π³ΠΎ ΡΠΊΠ°ΡΠ°-ΠΊΡΠΏΠ΅. ΠΠ° ΡΠ΅Π³ΠΎΠ΄Π½ΡΡΠ½ΠΈΠΉ Π΄Π΅Π½Ρ Π² Π»ΡΠ±ΠΎΠΌ ΠΊΡΡΠΏΠ½ΠΎΠΌ Π³ΠΎΡΠΎΠ΄Π΅ ΠΌΠΎΠΆΠ½ΠΎ Π½Π°ΠΉΡΠΈ Π΄Π΅ΡΡΡΠΊΠΈ, Π° ΡΠΎ ΠΈ ΡΠΎΡΠ½ΠΈ ΠΊΠΎΠΌΠΏΠ°Π½ΠΈΠΉ, Π·Π°Π½ΠΈΠΌΠ°ΡΡΠΈΡ ΡΡ ΠΈΠ·Π³ΠΎΡΠΎΠ²Π»Π΅Π½ΠΈΠ΅ΠΌ ΠΊΠΎΡΠΏΡΡΠ½ΠΎΠΉ ΠΌΠ΅Π±Π΅Π»ΠΈ. ΠΠΎΡΡΠΎΠΌΡ ΠΌΠΎΠΆΠ½ΠΎ Π±Π΅Π· ΡΡΡΠ΄Π° Π½Π°ΠΉΡΠΈ ΡΠΏΠ΅ΡΠΈΠ°Π»ΠΈΡΡΠΎΠ², ΠΊΠΎΡΠΎΡΡΠ΅ ΠΈΠ·Π³ΠΎΡΠΎΠ²ΡΡ ΡΠΊΠ°Ρ-ΠΊΡΠΏΠ΅, ΠΈΠΌΠ΅ΡΡΠΈΠΉ Π½Π΅Π·Π½Π°ΡΠΈΡΠ΅Π»ΡΠ½ΡΠ΅ ΠΎΡΠ»ΠΈΡΠΈΡ ΠΎΡ ΡΡΠ°Π½Π΄Π°ΡΡΠ½ΠΎΠ³ΠΎ.
ΠΠΎΠ½Π΅ΡΠ½ΠΎ, ΠΈΠ·Π³ΠΎΡΠΎΠ²Π»Π΅Π½ΠΈΠ΅ ΡΠΊΠ°ΡΠ°-ΠΊΡΠΏΠ΅ ΠΎΠ±ΠΎΠΉΠ΄Π΅ΡΡΡ Π·Π½Π°ΡΠΈΡΠ΅Π»ΡΠ½ΠΎ Π΄ΠΎΡΠΎΠΆΠ΅, ΡΠ΅ΠΌ Π·Π°ΠΊΡΠΏΠΊΠ° ΠΈ ΡΡΡΠ°Π½ΠΎΠ²ΠΊΠ° Π½Π΅ΡΠΊΠΎΠ»ΡΠΊΠΈΡ Π»ΠΈΡΡΠΎΠ² Π³ΠΈΠΏΡΠΎΠΊΠ°ΡΡΠΎΠ½Π°. ΠΠ°ΡΠΎ Π²Ρ ΡΠΌΠΎΠΆΠ΅ΡΠ΅ Π²ΡΠΈΠ³ΡΠ°ΡΡ Π½Π΅ΡΠΊΠΎΠ»ΡΠΊΠΎ Π΄ΠΎΠΏΠΎΠ»Π½ΠΈΡΠ΅Π»ΡΠ½ΡΡ ΠΊΠ²Π°Π΄ΡΠ°ΡΠ½ΡΡ ΠΌΠ΅ΡΡΠΎΠ² ΠΏΠΎΠ»Π΅Π·Π½ΠΎΠ³ΠΎ ΠΏΡΠΎΡΡΡΠ°Π½ΡΡΠ²Π° Π΄Π»Ρ ΠΊΠ°ΠΆΠ΄ΠΎΠΉ ΠΊΠΎΠΌΠ½Π°ΡΡ.
ΠΠ»Ρ ΡΡΠΎΠ³ΠΎ ΡΠΊΠ°Ρ-ΠΊΡΠΏΠ΅ Π΄ΠΎΠ»ΠΆΠ΅Π½ ΠΎΡΠΊΡΡΠ²Π°ΡΡΡΡ ΠΊΠ°ΠΊ Ρ ΠΎΠ΄Π½ΠΎΠΉ ΠΊΠΎΠΌΠ½Π°ΡΡ, ΡΠ°ΠΊ ΠΈ Ρ Π΄ΡΡΠ³ΠΎΠΉ. ΠΠΎΡΠ»Π΅ ΡΡΠΎΠ³ΠΎ Π΄ΠΎΡΡΠ°ΡΠΎΡΠ½ΠΎ ΡΠ΅ΡΠΈΡΡ, ΠΊΠ°ΠΊΠΈΠ΅ ΠΏΠΎΠ»ΠΊΠΈ Π·Π°Π½ΠΈΠΌΠ°ΡΡ ΠΎΠ±ΠΈΡΠ°ΡΠ΅Π»ΠΈ ΠΎΠ΄Π½ΠΎΠΉ ΠΊΠΎΠΌΠ½Π°ΡΡ, Π° ΠΊΠ°ΠΊΠΈΠ΅ Π΄ΠΎΡΡΠ°Π½ΡΡΡΡ ΠΎΠ±ΠΈΡΠ°ΡΠ΅Π»ΡΠΌ Π΄ΡΡΠ³ΠΎΠΉ. Π Π½Π΅ Π½ΡΠΆΠ½ΠΎ Π±ΡΠ΄Π΅Ρ ΡΡΠ°Π²ΠΈΡΡ ΠΏΠΎ ΡΠΊΠ°ΡΡ Π² ΠΊΠ°ΠΆΠ΄ΠΎΠΉ ΠΈΠ· ΠΊΠΎΠΌΠ½Π°Ρ β ΠΎΠ΄Π½ΠΎΠ³ΠΎ Π±ΡΠ΄Π΅Ρ Π²ΠΏΠΎΠ»Π½Π΅ Π΄ΠΎΡΡΠ°ΡΠΎΡΠ½ΠΎ.
Π’Π°ΠΊΠΆΠ΅ ΡΠΊΠ°Ρ-ΠΊΡΠΏΠ΅ Π΄ΠΎΠ»ΠΆΠ΅Π½ ΠΈΠΌΠ΅ΡΡ ΡΠΊΠ²ΠΎΠ·Π½ΡΡ Π΄Π²Π΅ΡΡ (ΠΆΠ΅Π»Π°ΡΠ΅Π»ΡΠ½ΠΎ ΡΠ°Π·Π΄Π²ΠΈΠΆΠ½ΡΡ), ΠΏΠΎΠ·Π²ΠΎΠ»ΡΡΡΡΡ ΡΠ²ΠΎΠ±ΠΎΠ΄Π½ΠΎ Π·Π°Ρ ΠΎΠ΄ΠΈΡΡ ΠΈ Π²ΡΡ ΠΎΠ΄ΠΈΡΡ. ΠΡΠ»ΠΈ Π²Ρ ΠΏΡΠ΅Π΄ΡΡΠΌΠΎΡΡΠΈΡΠ΅ Π΅ΡΡ ΠΈ Π·Π°ΡΡΠ΅ΠΊΠ»Π΅Π½Π½ΡΠΉ ΠΏΡΠΎΠ΅ΠΌ, ΡΠΎ Π΅ΡΡΠ΅ΡΡΠ²Π΅Π½Π½ΡΠΉ ΡΠ²Π΅Ρ ΡΠΌΠΎΠΆΠ΅Ρ ΠΎΡΠ²Π΅ΡΠ°ΡΡ ΠΎΠ±Π΅ ΠΊΠΎΠΌΠ½Π°ΡΡ, ΡΡΠΎ Π±ΡΠ΄Π΅Ρ Π²Π΅ΡΡΠΌΠ° ΠΏΡΠΈΡΡΠ½ΠΎ.
ΠΠ΅ΡΠ½ΡΡΡΡΡ ΠΊ ΠΎΠ³Π»Π°Π²Π»Π΅Π½ΠΈΡΠ‘ΡΠ΅Π»Π»Π°ΠΆ ΡΠ΅ΡΠΈΡ ΠΏΡΠΎΠ±Π»Π΅ΠΌΡ
Π Π²ΠΎΡ Π΅ΡΠ»ΠΈ Π² ΠΎΠ΄Π½ΠΎΠΊΠΎΠΌΠ½Π°ΡΠ½ΠΎΠΉ ΠΊΠ²Π°ΡΡΠΈΡΠ΅ ΠΆΠΈΠ²Π΅Ρ Π²ΡΠ΅Π³ΠΎ ΠΎΠ΄ΠΈΠ½ ΡΠ΅Π»ΠΎΠ²Π΅ΠΊ, ΠΊΠΎΡΠΎΡΡΠΉ Ρ ΠΎΡΠ΅Ρ ΡΠ°Π·Π΄Π΅Π»ΠΈΡΡ ΠΊΠΎΠΌΠ½Π°ΡΡ Π½Π° Π΄Π²Π° ΠΏΠΎΠΌΠ΅ΡΠ΅Π½ΠΈΡ, Π½Π°ΠΏΡΠΈΠΌΠ΅Ρ, Π½Π° ΠΊΠ°Π±ΠΈΠ½Π΅Ρ ΠΈ ΡΠΏΠ°Π»ΡΠ½Ρ, ΡΠΎ Π½Π΅ ΡΡΠΎΠΈΡ Π»ΠΎΠΌΠ°ΡΡ Π³ΠΎΠ»ΠΎΠ²Ρ Π½Π°Π΄ ΡΡΡΠ°Π½ΠΎΠ²ΠΊΠΎΠΉ Π³ΠΈΠΏΡΠΎΠΊΠ°ΡΡΠΎΠ½Π½ΠΎΠΉ ΠΏΠ΅ΡΠ΅Π³ΠΎΡΠΎΠ΄ΠΊΠΈ ΠΈΠ»ΠΈ Π΄ΠΎΡΠΎΠ³ΠΎΠ³ΠΎ ΠΈ Π³ΡΠΎΠΌΠΎΠ·Π΄ΠΊΠΎΠ³ΠΎ ΡΠΊΠ°ΡΠ°-ΠΊΡΠΏΠ΅. ΠΠΎΡΠ°Π·Π΄ΠΎ Π»ΡΡΡΠ΅ Π±ΡΠ΄Π΅Ρ ΠΏΡΠΎΡΡΠΎ ΡΡΡΠ°Π½ΠΎΠ²ΠΈΡΡ ΡΡΠ΅Π»Π»Π°ΠΆ. ΠΠ΅Π»Π°ΡΠ΅Π»ΡΠ½ΠΎ Π²ΡΠ±ΡΠ°ΡΡ ΡΡΠ΅Π»Π»Π°ΠΆ Ρ ΠΎΡΠΊΡΡΡΠΎΠΉ ΠΊΠΎΠ½ΡΡΡΡΠΊΡΠΈΠ΅ΠΉ, Π²Π΅Π΄Ρ ΡΠ°ΠΊΠΎΠ΅ ΡΠ΅ΡΠ΅Π½ΠΈΠ΅ ΠΈΠΌΠ΅Π΅Ρ ΠΌΠ½ΠΎΠΆΠ΅ΡΡΠ²ΠΎ ΠΏΠ»ΡΡΠΎΠ².
Π‘ ΠΎΠ΄Π½ΠΎΠΉ ΡΡΠΎΡΠΎΠ½Ρ, β ΡΡΠ΅Π»Π»Π°ΠΆ ΠΏΡΠ΅ΠΊΡΠ°ΡΠ½ΠΎ ΡΠ°Π·Π΄Π΅Π»ΡΠ΅Ρ Π΄Π²Π° ΠΏΠΎΠΌΠ΅ΡΠ΅Π½ΠΈΡ, Π½Π΅ ΡΠΎΠ·Π΄Π°Π²Π°Ρ ΠΏΡΠΈ ΡΡΠΎΠΌ ΡΡΠ²ΡΡΠ²Π° Π³ΡΠΎΠΌΠΎΠ·Π΄ΠΊΠΎΡΡΠΈ ΠΈ ΠΈΠ·Π»ΠΈΡΠ΅ΡΡΠ²Π°. Π‘ Π΄ΡΡΠ³ΠΎΠΉ, β ΠΎΡΠΊΡΡΡΡΠΉ ΡΡΠ΅Π»Π»Π°ΠΆ ΠΏΡΠ΅ΠΊΡΠ°ΡΠ½ΠΎ ΠΏΡΠΎΠΏΡΡΠΊΠ°Π΅Ρ ΡΠΎΠ»Π½Π΅ΡΠ½ΡΠΉ ΡΠ²Π΅Ρ, ΡΡΠΎ Π½Π°Π²Π΅ΡΠ½ΡΠΊΠ° ΠΏΠΎΠ½ΡΠ°Π²ΠΈΡΡΡ ΠΎΠ±ΠΈΡΠ°ΡΠ΅Π»Ρ ΠΊΠ²Π°ΡΡΠΈΡΡ. Π, Π½Π°ΠΊΠΎΠ½Π΅Ρ, ΡΡΠ΅Π»Π»Π°ΠΆ Π²ΡΠΏΠΎΠ»Π½ΡΠ΅Ρ Π΅ΡΡ ΠΈ ΡΡΠ½ΠΊΡΠΈΠΎΠ½Π°Π»ΡΠ½ΡΡ ΠΎΠ±ΡΠ·Π°Π½Π½ΠΎΡΡΡ: ΠΏΠΎΠ·Π²ΠΎΠ»ΡΠ΅Ρ Ρ ΡΠ°Π½ΠΈΡΡ Π±ΠΎΠ»ΡΡΠΎΠ΅ ΠΊΠΎΠ»ΠΈΡΠ΅ΡΡΠ²ΠΎ ΠΊΠ½ΠΈΠ³ ΠΈΠ»ΠΈ Π΄ΡΡΠ³ΠΈΡ ΠΏΡΠ΅Π΄ΠΌΠ΅ΡΠΎΠ², ΠΊΠΎΡΠΎΡΡΠ΅ Π²ΡΠ΅Π³Π΄Π° Ρ ΠΎΡΠ΅Π»ΠΎΡΡ Π±Ρ ΠΈΠΌΠ΅ΡΡ ΠΏΠΎΠ΄ ΡΡΠΊΠΎΠΉ.ΠΠΎΠΏΠΎΠ»Π½ΠΈΠ² ΡΡΠ΅Π»Π»Π°ΠΆ Π΄Π²Π΅ΡΡΠ°ΠΌΠΈ ΠΈΠ· Π²ΠΈΡΡΠ°ΠΆΠ½ΠΎΠ³ΠΎ ΡΡΠ΅ΠΊΠ»Π°, Π²Ρ ΡΠ΄Π΅Π»Π°Π΅ΡΠ΅ ΡΠ²ΠΎΠ΅ ΠΆΠΈΠ»ΡΡ ΠΊΡΠ΄Π° Π±ΠΎΠ»Π΅Π΅ ΠΈΠ·ΡΡΠΊΠ°Π½Π½ΡΠΌ ΠΈ ΠΈΠ·ΡΡΠ½ΡΠΌ. ΠΡ Π° Π½Π΅ΡΠΊΠΎΠ»ΡΠΊΠΎ Π³ΠΎΡΡΠΊΠΎΠ² Ρ ΡΠ²Π΅ΡΠ°ΠΌΠΈ, ΡΡΡΠ°Π½ΠΎΠ²Π»Π΅Π½Π½ΡΠ΅ Π½Π° ΠΏΠΎΠ»ΠΊΠ°Ρ ΡΡΠ΅Π»Π»Π°ΠΆΠ°, ΠΏΡΠΈΠ΄Π°Π΄ΡΡ ΠΏΠΎΠΌΠ΅ΡΠ΅Π½ΠΈΡ ΡΡΡ ΠΈ ΠΏΡΠ΅Π²ΡΠ°ΡΡΡ Π΅Π³ΠΎ Π² Π²Π΅Π»ΠΈΠΊΠΎΠ»Π΅ΠΏΠ½ΠΎΠ΅ ΠΌΠ΅ΡΡΠΎ Π΄Π»Ρ ΡΠ°Π±ΠΎΡΡ ΠΈ ΠΎΡΠ΄ΡΡ Π°.
ΠΠΠ ΠΠΠΠΠΠΠ ΠΠΠΠ ΠΠΠΠΠΠΠΠΠΠ’ΠΠΠ ΠΠΠΠ Π’ΠΠ Π«
Β Β ΠΠ°Π·Π°Π»ΠΎΡΡ Π±Ρ, ΡΡΠΎ ΠΌΠΎΠΆΠ½ΠΎ ΡΠ»ΡΡΡΠΈΡΡ Π² ΠΏΠ»Π°Π½ΠΈΡΠΎΠ²ΠΊΠ΅ ΠΎΠ΄Π½ΠΎΠΊΠΎΠΌΠ½Π°ΡΠ½ΠΎΠΉ ΠΊΠ²Π°ΡΡΠΈΡΠ΅? ΠΡΠΎΠ±Π΅Π½Π½ΠΎ ΠΌΠ°Π»ΠΎΠ³Π°Π±Π°ΡΠΈΡΠ½ΠΎΠΉ! Π ΡΠΊΠ°Ρ ΠΏΠΎΡΡΠ°Π²ΠΈΡΡ Π½Π΅Π³Π΄Π΅ ΠΈ ΡΡΠΈΡΠ°Π»ΡΠ½ΡΡ ΠΌΠ°ΡΠΈΠ½Ρ Π½Π΅ Π²ΠΏΠΈΡ Π½ΡΡΡ! ΠΠ΄Π½Π°ΠΊΠΎ ΡΠΏΠ΅ΡΠΈΠ°Π»ΠΈΡΡΡ Π±ΡΡΠΎ Π ΠΠ‘ΠΠΠ ΠΠΠΠΠΠΠ ΠΠΠΠ ΡΠ°Π·ΡΡΡΠ°ΡΡ ΡΡΠ΅ΡΠ΅ΠΎΡΠΈΠΏΡ. ΠΠ΅ΡΠ΅ΠΏΠ»Π°Π½ΠΈΡΠΎΠ²ΠΊΠ° ΠΎΠ΄Π½ΠΎΠΊΠΎΠΌΠ½Π°ΡΠ½ΠΎΠΉ ΠΊΠ²Π°ΡΡΠΈΡΡ ΠΏΠΎΠ·Π²ΠΎΠ»ΠΈΡ ΡΠΎΠ·Π΄Π°ΡΡ ΠΊΠΎΠΌΡΠΎΡΡΠ°Π±Π΅Π»ΡΠ½ΠΎΠ΅ ΠΏΠΎΠΌΠ΅ΡΠ΅Π½ΠΈΠ΅ Π΄Π»Ρ ΠΠ°ΡΠ΅ΠΉ ΠΆΠΈΠ·Π½ΠΈ, Π²ΠΊΠ»ΡΡΠ°ΡΡΠ΅Π΅ ΠΈ Π³ΠΎΡΡΠ΅Π²ΡΡ, ΠΈ ΠΏΡΠΈΠ²Π°ΡΠ½ΡΡ, ΠΈ ΡΠ°Π±ΠΎΡΡΡ Π·ΠΎΠ½Ρ. Π‘Π΅ΠΉΡΠ°Ρ Π½Π° ΡΡΠ½ΠΊΠ΅ Π΄ΠΎΡΡΠ°ΡΠΎΡΠ½ΠΎΠ΅ ΠΊΠΎΠ»ΠΈΡΠ΅ΡΡΠ²ΠΎ ΠΌΠ°Π»ΠΎΠ³Π°Π±Π°ΡΠΈΡΠ½ΠΎΠΉ ΠΌΠ΅Π±Π΅Π»ΠΈ, ΠΊΠΎΠΌΠΏΠ°ΠΊΡΠ½ΠΎΠΉ Π±ΡΡΠΎΠ²ΠΎΠΉ ΡΠ΅Ρ Π½ΠΈΠΊΠΈ ΠΈ ΡΠ°Π½ΠΈΡΠ°ΡΠ½ΠΎΠ³ΠΎ ΠΎΠ±ΠΎΡΡΠ΄ΠΎΠ²Π°Π½ΠΈΡ β Π΄ΡΡΠ΅Π²ΡΡ ΠΊΠ°Π±ΠΈΠ½ΠΎΠΊ, Π²Π°Π½Π½, Π±ΠΈΠ΄Π΅ ΠΈ ΡΠ½ΠΈΡΠ°Π·ΠΎΠ², ΡΠΈΡΠΎΡΠ°ΠΉΡΠΈΠΉ Π²ΡΠ±ΠΎΡ ΠΎΡΠ΄Π΅Π»ΠΎΡΠ½ΡΡ ΠΈ ΠΈΠ½ΡΠ΅ΡΡΠ΅ΡΠ½ΡΡ ΠΌΠ°ΡΠ΅ΡΠΈΠ°Π»ΠΎΠ², Π°ΠΊΡΠ΅ΡΡΡΠ°ΡΠΎΠ², ΡΠ²Π΅ΡΠΈΠ»ΡΠ½ΠΈΠΊΠΎΠ², Π·Π΅ΡΠΊΠ°Π» ΠΈ Ρ.Π΄., ΡΠΏΠΎΡΠΎΠ±Π½ΡΡ Π·ΡΠΈΡΠ΅Π»ΡΠ½ΠΎ ΡΠ°Π·Π΄Π²ΠΈΠ½ΡΡΡ Π½Π΅Π±ΠΎΠ»ΡΡΠΎΠ΅ ΠΏΡΠΎΡΡΡΠ°Π½ΡΡΠ²ΠΎ.
ΠΡΠ΄Π΅Π»ΡΠ½Π°Ρ ΡΠ΅ΠΌΠ° — ΠΏΠ΅ΡΠ΅ΠΏΠ»Π°Π½ΠΈΡΠΎΠ²ΠΊΠ° ΠΏΠ°Π½Π΅Π»ΡΠ½ΠΎΠΉΒ ΠΊΠ²Π°ΡΡΠΈΡΡ. ΠΠ΅Π»ΠΎ Π² ΡΠΎΠΌ, ΡΡΠΎ ΠΏΠ΅ΡΠ΅ΠΏΠ»Π°Π½ΠΈΡΠΎΠ²ΠΊΠ° ΠΎΠ΄Π½ΠΎΠΊΠΎΠΌΠ½Π°ΡΠ½ΠΎΠΉ ΠΊΠ²Π°ΡΡΠΈΡΡ Π² ΠΏΠ°Π½Π΅Π»ΡΠ½ΠΎΠΌ Π΄ΠΎΠΌΠ΅Β ΠΎΠ±ΡΠ·Π°ΡΠ΅Π»ΡΠ½ΠΎ ΡΡΠ΅Π±ΡΠ΅Ρ Π’Π΅Ρ Π½ΠΈΡΠ΅ΡΠΊΠΎΠ³ΠΎ Π·Π°ΠΊΠ»ΡΡΠ΅Π½ΠΈΡΒ (Π’Π) ΠΈ ΠΎΠ±ΡΡΠ½ΠΎ ΠΎΡΠ»ΠΎΠΆΠ½ΡΠ΅ΡΡΡ ΠΎΠ±ΡΠ·Π°ΡΠ΅Π»ΡΠ½ΡΠΌ Π½Π°Π»ΠΈΡΠΈΠ΅ΠΌ ΠΊΠΎΠ½ΡΡΡΡΠΊΡΠΈΠ²Π½ΠΎΠ³ΠΎ ΡΠ°Π·Π΄Π΅Π»Π° (ΠΠ ) ΠΏΡΠΎΠ΅ΠΊΡΠ° ΠΏΠ΅ΡΠ΅ΠΏΠ»Π°Π½ΠΈΡΠΎΠ²ΠΊΠΈ, ΡΠ°ΠΊ ΠΊΠ°ΠΊ ΠΏΡΠΈ ΠΏΠ΅ΡΠ΅ΠΏΠ»Π°Π½ΠΈΡΠΎΠ²ΠΊΠ΅ Π² ΠΏΠ°Π½Π΅Π»ΡΠ½ΠΎΠΌ Π΄ΠΎΠΌΠ΅ ΠΎΠ±ΡΡΠ½ΠΎ ΠΏΡΠΈΡ ΠΎΠ΄ΠΈΡΡΡ Π΄Π΅ΠΌΠΎΠ½ΡΠΈΡΠΎΠ²Π°ΡΡ Π½Π΅ΡΡΡΠΈΠ΅ ΡΡΠ΅Π½Ρ ΠΈ ΡΠΎΠΎΡΠ²Π΅ΡΡΡΠ²ΡΡΡΠΈΠΌ ΠΎΠ±ΡΠ°Π·ΠΎΠΌ ΠΏΠ΅ΡΠ΅ΡΠ°ΡΠΏΡΠ΅Π΄Π΅Π»ΡΡΡ Π½Π°Π³ΡΡΠ·ΠΊΠΈ.
ΠΡΠΎΠ±ΡΠΉ ΡΠ»ΡΡΠ°ΠΉ ΡΡΠΎ —Β ΠΏΠ΅ΡΠ΅ΠΏΠ»Π°Π½ΠΈΡΠΎΠ²ΠΊΠ° ΠΎΠ΄Π½ΠΎΠΊΠΎΠΌΠ½Π°ΡΠ½ΠΎΠΉ ΠΊΠ²Π°ΡΡΠΈΡΡ Π² Π΄Π²ΡΡ ΠΊΠΎΠΌΠ½Π°ΡΠ½ΡΡ. ΠΠΎ Π΅ΡΠ»ΠΈ ΠΏΠ»ΠΎΡΠ°Π΄Ρ ΠΈ ΠΊΠΎΠ»ΠΈΡΠ΅ΡΡΠ²ΠΎ ΠΎΠΊΠΎΠ½ ΠΏΠΎΠ·Π²ΠΎΠ»ΡΠ΅Ρ, Π° ΡΠ΅ΠΉΡΠ°Ρ ΡΡΠΎ Π½Π΅ ΡΠ΅Π΄ΠΊΠΎΡΡΡ, ΡΠ°ΠΊ ΠΊΠ°ΠΊ ΡΡΡΠ΅ΡΡΠ²ΡΠ΅Ρ Π±ΠΎΠ»ΡΡΠΎΠ΅ ΠΊΠΎΠ»ΠΈΡΠ΅ΡΡΠ²ΠΎ ΠΎΠ΄Π½ΠΎΠΊΠΎΠΌΠ½Π°ΡΠ½ΡΡ ΠΊΠ²Π°ΡΡΠΈΡ ΠΏΠ»ΠΎΡΠ°Π΄ΡΡ Π±ΠΎΠ»Π΅Π΅ 40 ΠΌ2, ΡΡΠΎ Π²ΠΏΠΎΠ»Π½Π΅ Π²ΠΎΠ·ΠΌΠΎΠΆΠ½ΠΎΠ΅ ΡΠ΅ΡΠ΅Π½ΠΈΠ΅. ΠΠ½ΠΎΠ³Π΄Π° Π²ΡΡΡΠ΅ΡΠ°Π΅ΡΡΡ ΠΏΠ΅ΡΠ΅ΠΏΠ»Π°Π½ΠΈΡΠΎΠ²ΠΊΠ° Π΄Π²ΡΡ ΠΊΠΎΠΌΠ½Π°ΡΠ½ΠΎΠΉ ΠΊΠ²Π°ΡΡΠΈΡΡΒ Π² ΠΎΠ΄Π½ΠΎΠΊΠΎΠΌΠ½Π°ΡΠ½ΡΡ.
Π‘Π»ΡΡΠ°ΡΡΡΡ ΡΠ°ΠΊΠΆΠ΅ Π²Π°ΡΠΈΠ°Π½ΡΡ, ΠΊΠΎΠ³Π΄Π° ΠΏΡΠΈ ΠΏΠ΅ΡΠ΅ΠΏΠ»Π°Π½ΠΈΡΠΎΠ²ΠΊΠ΅ ΠΏΡΠΎΠΈΡΡ ΠΎΠ΄ΠΈΡ ΡΠ΅Π·Π΄Π΅Π»Π΅Π½ΠΈΠ΅ ΠΊΠ²Π°ΡΡΠΈΡΡ. ΠΡΠ»Π° ΠΊΠΎΠΌΠΌΡΠ½Π°Π»ΡΠ½Π°Ρ ΠΊΠ²Π°ΡΡΠΈΡΠ°, Π° ΡΡΠ°Π»ΠΈ Π΄Π²Π΅ ΠΎΡΠ΄Π΅Π»ΡΠ½ΡΠ΅ β ΠΎΠ΄Π½ΠΎΠΊΠΎΠΌΠ½Π°ΡΠ½ΡΠ΅. ΠΠΎ Π²ΠΎΠ·ΠΌΠΎΠΆΠ½ΠΎ ΡΡΠΎ ΡΠΎΠ»ΡΠΊΠΎ Π² Π΄ΠΎΠΌΠ°Ρ , Π³Π΄Π΅ Π΅ΡΡΡ ΡΠΈΠ·ΠΈΡΠ΅ΡΠΊΠ°Ρ Π²ΠΎΠ·ΠΌΠΎΠΆΠ½ΠΎΡΡΡ ΡΠ°ΡΠΊΡΡΡΠΈΡ Π΄ΠΎΠΏΠΎΠ»Π½ΠΈΡΠ΅Π»ΡΠ½ΠΎΠ³ΠΎ Π²Ρ ΠΎΠ΄Π° Π² ΠΊΠ²Π°ΡΡΠΈΡΡ. Π Π‘Π°Π½ΠΊΡ-ΠΠ΅ΡΠ΅ΡΠ±ΡΡΠ³Π΅ Π² ΡΡΠ°ΡΠΎΠΌ ΡΠΎΠ½Π΄Π΅ Π±ΠΎΠ»ΡΡΠΎΠ΅ ΠΊΠΎΠ»ΠΈΡΠ΅ΡΡΠ²ΠΎ ΠΊΠ²Π°ΡΡΠΈΡ ΠΈΠ·Π½Π°ΡΠ°Π»ΡΠ½ΠΎ ΠΏΠΎΡΡΡΠΎΠ΅Π½Π½ΡΡ Ρ 2-ΠΌΡ Π²Ρ ΠΎΠ΄Π°ΠΌΠΈ β ΠΏΠ°ΡΠ°Π΄Π½ΡΠΌ β Ρ ΡΠ»ΠΈΡΡ ΠΈ Β«ΡΡΡΠ½ΡΠΌΒ» — ΡΠΎ Π΄Π²ΠΎΡΠ°. ΠΠ°ΠΊ ΠΏΡΠ°Π²ΠΈΠ»ΠΎ ΡΡΠΈ ΠΊΠ²Π°ΡΡΠΈΡΡ Π½Π΅ΡΠ»ΠΎΠΆΠ½ΠΎ ΡΠ°Π·Π΄Π΅Π»ΠΈΡΡ Π½Π° 2.
ΠΠΊΠ·ΠΎΡΠΈΡΠ΅ΡΠΊΠΈΠΌΠΈ Π²Π°ΡΠΈΠ°Π½ΡΠ°ΠΌΠΈ ΡΡΠΈΡΠ°ΡΡΡΡ ΠΏΡΠΎΠ΅ΠΊΡΡ ΠΏΠ΅ΡΠ΅ΠΏΠ»Π°Π½ΠΈΡΠΎΠ²ΠΊΠΈ ΠΎΠ±ΡΠ΅Π΄ΠΈΠ½Π΅Π½ΠΈΡΒ ΠΎΠ΄Π½ΠΎΠΊΠΎΠΌΠ½Π°ΡΠ½ΡΡ ΠΊΠ²Π°ΡΡΠΈΡ. ΠΠ»Π°Π³ΠΎΠ΄Π°ΡΡ Π³ΡΠ°ΠΌΠΎΡΠ½ΠΎΠΌΡ ΠΏΡΠΎΠ΅ΠΊΡΠΈΡΠΎΠ²Π°Π½ΠΈΡ ΠΏΠ΅ΡΠ΅ΠΏΠ»Π°Π½ΠΈΡΠΎΠ²ΠΊΠΈ ΠΊΠ²Π°ΡΡΠΈΡΡ ΠΎΠ±ΡΠ΅Π΄ΠΈΠ½ΡΡΡΡΡ ΠΈ ΠΏΠΎ Π³ΠΎΡΠΈΠ·ΠΎΠ½ΡΠ°Π»ΠΈ ΠΈ ΠΏΠΎ Π²Π΅ΡΡΠΈΠΊΠ°Π»ΠΈ. ΠΠ±ΡΠ΅Π΄ΠΈΠ½ΡΡΡΡΡ Π² ΠΎΠ΄Π½Ρ ΠΈ 2 ΠΎΠ΄Π½ΠΎΠΊΠΎΠΌΠ½Π°ΡΠ½ΡΠ΅ ΠΊΠ²Π°ΡΡΠΈΡΡ, ΠΈ Π΄Π°ΠΆΠ΅ 3 ΠΎΠ΄Π½ΠΎΠΊΠΎΠΌΠ½Π°ΡΠ½ΡΠ΅ ΠΊΠ²Π°ΡΡΠΈΡΡ. Π ΠΏΡΠ°ΠΊΡΠΈΠΊΠ΅ Π±ΡΡΠΎ Π ΠΠ‘ΠΠΠ ΠΠΠΠΠΠΠ ΠΠΠΠ Π±ΡΠ» ΡΠ»ΡΡΠ°ΠΉ ΠΎΠ±ΡΠ΅Π΄ΠΈΠ½Π΅Π½ΠΈΡ Π΄Π°ΠΆΠ΅ 4-Ρ ΠΎΠ΄Π½ΠΎΠΊΠΎΠΌΠ½Π°ΡΠ½ΡΡ ΠΊΠ²Π°ΡΡΠΈΡ Π² Π½ΠΎΠ²ΠΎΠΌ Π΄ΠΎΠΌΠ΅ Π² Π¦Π΅Π½ΡΡΠ°Π»ΡΠ½ΠΎΠΌ ΡΠ°ΠΉΠΎΠ½Π΅ Π‘Π°Π½ΠΊΡ-ΠΠ΅ΡΠ΅ΡΠ±ΡΡΠ³Π°, Π³Π΄Π΅ 3 ΠΎΠ΄Π½ΠΎΠΊΠΎΠΌΠ½Π°ΡΠ½ΡΠ΅ ΠΊΠ²Π°ΡΡΠΈΡΡ Π±ΡΠ»ΠΈ ΡΠ°ΡΠΏΠΎΠ»ΠΎΠΆΠ΅Π½Ρ Π½Π° ΠΎΠ΄Π½ΠΎΠΌ ΡΡΠ°ΠΆΠ΅, Π° ΡΠ΅ΡΠ²ΡΡΡΠ°Ρ β ΡΡΠ°ΠΆΠΎΠΌ Π²ΡΡΠ΅!
ΠΠΎΠ²ΠΎΡΡ Β«ΠΏΠ΅ΡΠ΅ΠΏΠ»Π°Π½ΠΈΡΠΎΠ²ΠΊΠ° ΠΎΠ΄Π½ΠΎΠΊΠΎΠΌΠ½Π°ΡΠ½ΠΎΠΉ ΠΊΠ²Π°ΡΡΠΈΡΡ Π² Π‘ΠΠ±Β» Π±ΠΎΠ»ΡΡΠΈΠ½ΡΡΠ²ΠΎ ΡΠΎΠΎΡΠ΅ΡΠ΅ΡΡΠ²Π΅Π½Π½ΠΈΠΊΠΎΠ² ΠΏΡΠ΅Π΄ΠΏΠΎΠ»Π°Π³Π°Π΅Ρ Π²ΡΡ-ΠΆΠ΅ ΠΌΠ°Π»Π΅Π½ΡΠΊΡΡ ΠΊΠ²Π°ΡΡΠΈΡΠΊΡ Π² Π±ΡΠ΅ΠΆΠ½Π΅Π²ΠΊΠ΅ ΠΈΠ»ΠΈ Π² Ρ ΡΡΡΡΠ²ΠΊΠ΅Β 25-35 ΠΌΠ΅ΡΡΠΎΠ². ΠΠΎ ΡΠ΅Π³ΠΎΠ΄Π½Ρ Π·Π°ΡΠ°ΡΡΡΡ ΡΡΠΎ Π½Π΅ ΡΠΎΠ»ΡΠΊΠΎ ΡΠ°ΠΊ. Π‘Π΅ΠΉΡΠ°Ρ ΠΎΡΠ΅Π½Ρ Π²ΠΎΡΡΡΠ΅Π±ΠΎΠ²Π°Π½Ρ ΡΠ²ΠΎΠ±ΠΎΠ΄Π½ΡΠ΅ ΠΏΠ»Π°Π½ΠΈΡΠΎΠ²ΠΎΡΠ½ΡΠ΅ ΡΠ΅ΡΠ΅Π½ΠΈΡ Π±Π΅Π· ΡΡΡΠΊΠΎΠ³ΠΎ Π·ΠΎΠ½ΠΈΡΠΎΠ²Π°Π½ΠΈΡ Ρ ΠΏΠΎΠΌΠΎΡΡΡ ΡΡΠ΅Π½ ΠΈ Π² Π±ΠΎΠ»ΡΡΠΈΡ ΠΈ ΠΎΡΠ΅Π½Ρ Π±ΠΎΠ»ΡΡΠΈΡ ΠΊΠ²Π°ΡΡΠΈΡΠ°Ρ β ΠΈ Π² 100ΠΌ2 ΠΈ Π±ΠΎΠ»Π΅Π΅ 200ΠΌ2. Π’Π°ΠΊΠΈΠΌ ΠΎΠ±ΡΠ°Π·ΠΎΠΌ, Π½Π΅ΡΠ΅Π΄ΠΊΠΎ Π²ΡΡΡΠ΅ΡΠ°Π΅ΡΡΡ ΠΏΠ΅ΡΠ΅ΠΏΠ»Π°Π½ΠΈΡΠΎΠ²ΠΊΠ° 1 ΠΊΠΎΠΌΠ½Π°ΡΠ½ΠΎΠΉ ΠΊΠ²Π°ΡΡΠΈΡΡ ΠΎΠ³ΡΠΎΠΌΠ½ΠΎΠΉ ΠΏΠ»ΠΎΡΠ°Π΄ΠΈ ΠΈΠ»ΠΈ Π΄Π°ΠΆΠ΅ ΠΏΠ΅Π½ΡΡ Π°ΡΡΠ°. Π’Π°ΠΊΠΈΠ΅ ΠΏΠ΅ΡΠ΅ΠΏΠ»Π°Π½ΠΈΡΠΎΠ²ΠΊΠΈ ΠΊΠ²Π°ΡΡΠΈΡΡ Π²ΠΎΡΡΡΠ΅Π±ΠΎΠ²Π°Π½Ρ ΠΎΠ±ΡΡΠ½ΠΎ ΠΌΠΎΠ»ΠΎΠ΄ΡΠΌΠΈ Π»ΡΠ΄ΡΠΌΠΈ ΠΈ ΡΠ΅ΠΌΡΡΠΌΠΈ Π±Π΅Π· Π΄Π΅ΡΠ΅ΠΉ, Π»ΠΈΠ±ΠΎ Π½Π°ΠΎΠ±ΠΎΡΠΎΡ, ΡΠ΅ΠΌΡΡΠΌΠΈ ΡΠΆΠ΅ Π²ΡΡΠ°ΡΡΠΈΠ²ΡΠΈΠΌΠΈ Π΄Π΅ΡΠ΅ΠΉ, Π½ΠΎ Π»ΡΠ±ΡΡΠΈΠ΅ ΠΏΡΠΎΡΡΠΎΡΠ½ΡΠ΅ ΠΏΠΎΠΌΠ΅ΡΠ΅Π½ΠΈΡ.
Π§Π°ΡΡΠΎ Π²ΡΡΡΠ΅ΡΠ°Π΅ΡΡΡ ΠΏΠ΅ΡΠ΅ΠΏΠ»Π°Π½ΠΈΡΠΎΠ²ΠΊΠ° ΠΊΠ²Π°ΡΡΠΈΡ Π² Π΄ΠΎΠΌΠ΅ ΡΠ΅ΡΠΈΠΈ 121, 131, 137, 305, 405, 415, 502, 504, 505, 506, 507, 528, 600 Β«ΠΠΎΡΠ°Π±Π»ΠΈΒ», 602, 606, 607, ΠΈ ΠΏΡΠΎΡΠΈΡ ΡΠΈΠΏΠΎΠ²ΡΡ ΡΠ΅ΡΠΈΠΉ. ΠΠ°Π΄ΠΎ ΠΏΠΎΠ½ΠΈΠΌΠ°ΡΡ, ΡΡΠΎ Π² Π‘Π‘Π‘Π Π² ΠΎΡΠ½ΠΎΠ²Π½ΠΎΠΌ ΠΎΠ± ΠΈΠ½Π΄ΠΈΠ²ΠΈΠ΄ΡΠ°Π»ΡΠ½ΠΎΠΌ ΠΏΡΠΎΠ΅ΠΊΡΠΈΡΠΎΠ²Π°Π½ΠΈΠΈ ΠΆΠΈΠ»ΡΡ Π΄ΠΎΠΌΠΎΠ² Π½Π΅ Π±ΡΠ»ΠΎ ΠΈ ΡΠ΅ΡΠΈ, ΠΈ ΠΏΠ΅ΡΠ΅Π΄ ΠΏΡΠΎΠ΅ΠΊΡΠ½ΡΠΌΠΈ ΠΈΠ½ΡΡΠΈΡΡΡΠ°ΠΌΠΈ ΡΡΠ°Π²ΠΈΠ»Π°ΡΡ Π·Π°Π΄Π°ΡΠ° ΡΠ°Π·ΡΠ°Π±ΠΎΡΠΊΠΈ ΡΠ΅ΡΠΈΠΉΠ½ΡΡ ΠΆΠΈΠ»ΡΡ Π΄ΠΎΠΌΠΎΠ².
Β Β Β Β Β Β Β Β Β Β Β Β
Π‘ ΡΠ΅Π³ΠΎ Π½Π°ΡΠ°ΡΡ? Π Π»ΡΠ±ΠΎΠΌ ΡΠ»ΡΡΠ°Π΅ ΠΏΠ΅ΡΠ²ΡΠΌ ΡΠ°Π³ΠΎΠΌ Π² ΠΌΠΈΡ ΠΊΠΎΠΌΡΠΎΡΡΠ° ΠΈ ΠΊΡΠ°ΡΠΎΡΡ ΡΠ²Π»ΡΠ΅ΡΡΡ Β ΠΏΡΠΎΠ΅ΠΊΡ ΠΏΠ΅ΡΠ΅ΠΏΠ»Π°Π½ΠΈΡΠΎΠ²ΠΊΠΈ 1 ΠΊΠ²Π°ΡΡΠΈΡΡ, Π²ΡΠΏΠΎΠ»Π½Π΅Π½Π½ΡΠΉ ΠΎΠΏΡΡΠ½Π΅ΠΉΡΠΈΠΌΠΈ Π°ΡΡ ΠΈΡΠ΅ΠΊΡΠΎΡΠ°ΠΌΠΈ, ΠΈΠ½ΠΆΠ΅Π½Π΅ΡΠ°ΠΌΠΈ ΠΈ Π΄ΠΈΠ·Π°ΠΉΠ½Π΅ΡΠ°ΠΌΠΈ Π±ΡΡΠΎ Β«Π ΠΠ‘ΠΠΠ ΠΠΠΠΠΠΠ ΠΠΠΠΒ». ΠΡΠ°Π²ΠΈΠ»ΡΠ½Π΅Π΅ ΠΈ Π²ΡΠ³ΠΎΠ΄Π½Π΅Π΅ ΡΠ°ΠΊΠΆΠ΅ Π²ΠΌΠ΅ΡΡΠ΅ ΡΠΎ ΡΡΠ°Π½Π΄Π°ΡΡΠ½ΡΠΌ ΠΏΡΠΎΠ΅ΠΊΡΠΎΠΌ ΠΏΠ΅ΡΠ΅ΠΏΠ»Π°Π½ΠΈΡΠΎΠ²ΠΊΠΈ ΠΎΠ΄Π½ΠΎΠΊΠΎΠΌΠ½Π°ΡΠ½ΠΎΠΉ ΠΊΠ²Π°ΡΡΠΈΡΡ Π·Π°ΠΊΠ°Π·Π°ΡΡ ΠΈΒ ΡΠ°Π·Π΄Π΅Π» ΠΏΡΠΎΠ΅ΠΊΡΠ° Π½Π° ΡΡΠ°Π΄ΠΈΠΈ ΠΠ (ΠΈΠ½ΡΠ΅ΡΡΠ΅ΡΡ ΠΈ ΠΎΠ±ΠΎΡΡΠ΄ΠΎΠ²Π°Π½ΠΈΠ΅), ΠΈΠ»ΠΈ ΠΊΠ°ΠΊ ΡΠ°ΡΠ΅ Π΅Π³ΠΎ Π½Π°Π·ΡΠ²Π°ΡΡ Π΄ΠΈΠ·Π°ΠΉΠ½-ΠΏΡΠΎΠ΅ΠΊΡΒ ΠΌΠ°Π»ΠΎΠ³Π°Π±Π°ΡΠΈΡΠ½ΠΎΠΉ ΠΊΠ²Π°ΡΡΠΈΡΡ.
ΠΡΠ»ΠΈ ΠΡ Ρ ΠΎΡΠΈΡΠ΅ ΡΠ·Π½Π°ΡΡ ΡΠΊΠΎΠ»ΡΠΊΠΎ ΡΡΠΎΠΈΡ ΠΏΠ΅ΡΠ΅ΠΏΠ»Π°Π½ΠΈΡΠΎΠ²ΠΊΠ°Β ΠΊΠ²Π°ΡΡΠΈΡΡ, ΠΎΠ±ΡΠ°ΡΠ°ΠΉΡΠ΅ΡΡ Π² Π±ΡΡΠΎ Π ΠΠ‘ΠΠΠ ΠΠΠΠΠΠΠ ΠΠΠΠ, ΠΌΡ ΠΠ°Ρ Ρ ΡΠ°Π΄ΠΎΡΡΡΡ ΠΏΡΠΎΠΊΠΎΠ½ΡΡΠ»ΡΡΠΈΡΡΠ΅ΠΌ!
ΠΠ±ΡΠ°ΡΠ½ΠΎ
Β
Β Β Β Β Β Β Β Β Β ΒΒ Β Β Β Β Β Β
Β Β Β Β Β Β Β
ΠΠ· Β«ΠΎΠ΄Π½ΡΡΠ΅ΠΊΒ» β Π² Β«Π΄Π²ΡΡΠΊΠΈΒ»: 7 Π²Π°ΡΠΈΠ°Π½ΡΠΎΠ² ΠΏΠ΅ΡΠ΅ΠΏΠ»Π°Π½ΠΈΡΠΎΠ²ΠΊΠΈ
Π Π°Π±ΠΎΡΠ°ΡΡ Ρ ΠΎΠ³ΡΠ°Π½ΠΈΡΠ΅Π½Π½ΡΠΌ ΠΏΡΠΎΡΡΡΠ°Π½ΡΡΠ²ΠΎΠΌ Π΄ΠΈΠ·Π°ΠΉΠ½Π΅ΡΠ°ΠΌ ΠΈΠ½ΡΠ΅ΡΡΠ΅ΡΠΎΠ² ΡΡΠΆΠ΅Π»Π΅Π΅ Π²ΡΠ΅Π³ΠΎ. Π§Π΅ΠΌ ΠΌΠ΅Π½ΡΡΠ΅ ΠΏΠΎΠΌΠ΅ΡΠ΅Π½ΠΈΠ΅, ΡΠ΅ΠΌ Π²Π°ΠΆΠ½Π΅Π΅ ΡΠΎΠ±Π»ΡΠ΄Π°ΡΡ ΠΏΡΠ°Π²ΠΈΠ»Π° ΡΡΠ³ΠΎΠ½ΠΎΠΌΠΈΠΊΠΈ, ΡΡΠΎΠ±Ρ ΠΆΠΈΠ»ΡΡΡ Π½Π΅ Π½Π°ΡΡΠΊΠ°Π»ΠΈΡΡ Π½Π° ΠΌΠ΅Π±Π΅Π»Ρ ΠΈ ΡΡΠ²ΡΡΠ²ΠΎΠ²Π°Π»ΠΈ ΡΠ΅Π±Ρ ΠΊΠΎΠΌΡΠΎΡΡΠ½ΠΎ. ΠΠ°ΠΆΠ΅ΡΡΡ, ΡΡΠΎ Π² Β«ΠΎΠ΄Π½ΡΡΠΊΠ΅Β» ΠΏΠΎΠΌΠ΅ΡΡΠΈΡΡΡ ΡΠΎΠ»ΡΠΊΠΎ ΠΊΡΡ Π½Ρ-Π³ΠΎΡΡΠΈΠ½Π°Ρ ΠΈ ΡΠΏΠ°Π»ΡΠ½Ρ β Π΄Π»Ρ Π±ΠΎΠ»ΡΡΠ΅Π³ΠΎ ΡΡΠ½ΠΊΡΠΈΠΎΠ½Π°Π»Π° ΠΏΡΠΎΡΡΠΎ Π½Π΅Ρ ΠΌΠ΅ΡΡΠ°.
ΠΠΈΠ·Π°ΠΉΠ½Π΅Ρ ΠΠΈΠΊΠΈΡΠ° ΠΡΠ±, ΠΊΠΎΡΠΎΡΡΠΉ ΡΠΏΠ΅ΡΠΈΠ°Π»ΠΈΠ·ΠΈΡΡΠ΅ΡΡΡ Π½Π° ΠΏΠ΅ΡΠ΅ΠΏΠ»Π°Π½ΠΈΡΠΎΠ²ΠΊΠ΅ ΠΌΠ°Π»Π΅Π½ΡΠΊΠΈΡ ΠΊΠ²Π°ΡΡΠΈΡ, ΡΠ°Π·Π²Π΅ΠΈΠ²Π°Π΅Ρ ΡΡΠΎ Π·Π°Π±Π»ΡΠΆΠ΄Π΅Π½ΠΈΠ΅.
Π£ΠΌΠ΅ΡΡΠΈΡΡ ΠΊΡΡ Π½Ρ ΠΈ ΡΠΏΠ°Π»ΡΠ½Ρ Π² Π½ΠΈΡΠΈ
ΠΠ»Π°Π΄Π΅Π»ΡΡΡ ΠΎΠ΄Π½ΠΎΠΊΠΎΠΌΠ½Π°ΡΠ½ΠΎΠΉ ΠΊΠ²Π°ΡΡΠΈΡΡ ΠΏΠ»ΠΎΡΠ°Π΄ΡΡ 35 ΠΊΠ². ΠΌ ΠΏΠΎΡΡΠ°Π²ΠΈΠ»ΠΈ ΠΏΠ΅ΡΠ΅Π΄ Π΄ΠΈΠ·Π°ΠΉΠ½Π΅ΡΠΎΠΌ Π½Π΅ΠΏΡΠΎΡΡΡΡ Π·Π°Π΄Π°ΡΡ: Π½ΡΠΆΠ½ΠΎ Π±ΡΠ»ΠΎ Π½Π΅ΠΏΡΠ΅ΠΌΠ΅Π½Π½ΠΎ ΠΎΠ±ΡΡΡΡΠΎΠΈΡΡ ΠΈΠ·ΠΎΠ»ΠΈΡΠΎΠ²Π°Π½Π½ΡΡ ΡΠΏΠ°Π»ΡΠ½Ρ, Π° Π³ΠΎΡΡΠΈΠ½Π°Ρ Π΄ΠΎΠ»ΠΆΠ½Π° ΠΎΡΡΠ°ΡΡΡΡ ΠΌΠ°ΠΊΡΠΈΠΌΠ°Π»ΡΠ½ΠΎ ΠΏΡΠΎΡΡΠΎΡΠ½ΠΎΠΉ. Π ΡΠΎΠΌΡ ΠΆΠ΅ Π±ΡΠ»ΠΎ Π²Π°ΠΆΠ½ΠΎ ΠΏΡΠ΅Π΄ΡΡΠΌΠΎΡΡΠ΅ΡΡ Π²ΠΌΠ΅ΡΡΠΈΡΠ΅Π»ΡΠ½ΡΡ ΡΠΈΡΡΠ΅ΠΌΡ Ρ ΡΠ°Π½Π΅Π½ΠΈΡ, ΠΏΠΎΡΡΠΎΠΌΡ ΡΠ΅Π»ΡΡ ΡΡΠ΅Π½Ρ ΠΏΠΎΠ»Π½ΠΎΡΡΡΡ ΠΎΡΠ²Π΅Π»ΠΈ ΠΏΠΎΠ΄ ΡΠ·ΠΊΠΈΠ΅ Π²ΡΡΡΠΎΠ΅Π½Π½ΡΠ΅ ΡΠΊΠ°ΡΡ.
ΠΡΠ²ΡΡΡ ΠΊΡΡ Π½Ρ ΡΠ°Π·Π΄Π΅Π»ΠΈΠ»ΠΈ Π½Π° Π΄Π²Π° ΠΏΠΎΠΌΠ΅ΡΠ΅Π½ΠΈΡ ΡΡΠ΅ΠΊΠ»ΡΠ½Π½ΠΎΠΉ ΠΏΠ΅ΡΠ΅Π³ΠΎΡΠΎΠ΄ΠΊΠΎΠΉ β ΠΎΠ±ΡΠ°Π·ΠΎΠ²Π°Π»ΠΎΡΡ Π΄Π²Π΅ Π½ΠΈΡΠΈ, Π² ΠΊΠ°ΠΆΠ΄ΠΎΠΉ ΠΈΠ· ΠΊΠΎΡΠΎΡΡΡ Π΄ΠΎΡΡΠ°ΡΠΎΡΠ½ΠΎ ΡΠ²Π΅ΡΠ°. Π Π·Π°Π²ΠΈΡΠΈΠΌΠΎΡΡΠΈ ΠΎΡ ΡΠ°Π·ΠΌΠ΅ΡΠΎΠ² ΠΏΠΎΠ»ΡΡΠΈΡΡΡ ΠΎΠ±ΡΡΡΡΠΎΠΈΡΡ ΠΏΠΎΡΡΠΈ ΠΏΠΎΠ»Π½ΠΎΡΠ΅Π½Π½ΡΡ ΡΠΏΠ°Π»ΡΠ½Ρ Ρ ΠΏΠ°ΡΠΎΠΉ ΠΏΡΠΈΠΊΡΠΎΠ²Π°ΡΠ½ΡΡ ΡΡΠΌΠ±ΠΎΡΠ΅ΠΊ ΠΈΠ»ΠΈ ΠΊΡΡ Π½Ρ Ρ Π±Π°ΡΠ½ΠΎΠΉ ΡΡΠΎΠΉΠΊΠΎΠΉ.
ΠΠ°ΠΌΠ΅Π½ΠΈΡΡ Π±Π°Π»ΠΊΠΎΠ½Π½ΡΡ Π΄Π²Π΅ΡΡ Π½Π° Π΄Π²Π΅
ΠΠ΄Π½ΠΎΠΊΠΎΠΌΠ½Π°ΡΠ½Π°Ρ ΠΊΠ²Π°ΡΡΠΈΡΠ° Π² ΡΡΠ°ΡΠΎΠΌ ΡΠΎΠ½Π΄Π΅ Π΄ΠΎΠ²ΠΎΠ»ΡΠ½ΠΎ ΠΏΡΠΎΡΡΠΎΡΠ½Π°Ρ β 53 ΠΊΠ². ΠΌ. ΠΠΎ Π² ΡΡΠ΅Π½Π°Ρ β ΠΌΠ½ΠΎΠΆΠ΅ΡΡΠ²ΠΎ Π½ΠΈΡ ΠΈ Π²ΡΡΡΡΠΏΠΎΠ², Ρ ΠΎΠ»Π» Π·Π°Π½ΠΈΠΌΠ°Π΅Ρ ΠΏΠΎΡΡΠΈ ΡΡΠ΅ΡΡ ΠΏΠ»ΠΎΡΠ°Π΄ΠΈ, Π° Π½Π° ΠΊΡΡ Π½Π΅ ΡΡΡΠ°Π½ΠΎΠ²Π»Π΅Π½Π° Π³Π°Π·ΠΎΠ²Π°Ρ ΠΏΠ»ΠΈΡΠ°, ΠΊΠΎΡΠΎΡΡΡ Π½Π΅Π»ΡΠ·Ρ ΠΏΠ΅ΡΠ΅Π½Π΅ΡΡΠΈ. ΠΠ°ΠΊΠ°Π·ΡΠΈΠΊΠΈ ΠΏΠ»Π°Π½ΠΈΡΠΎΠ²Π°Π»ΠΈ ΠΏΠΎΠΏΠΎΠ»Π½Π΅Π½ΠΈΠ΅ Π² ΡΠ΅ΠΌΡΠ΅, ΠΏΠΎΡΡΠΎΠΌΡ Ρ ΠΎΡΠ΅Π»ΠΈ Π½Π΅ ΡΠΎΠ»ΡΠΊΠΎ ΠΎΡΠ΄Π΅Π»ΡΠ½ΡΡ ΡΠΏΠ°Π»ΡΠ½Ρ, Π½ΠΎ ΠΈ Π΄Π΅ΡΡΠΊΡΡ. ΠΠ°Π·Π°Π»ΠΎΡΡ Π±Ρ, Π² ΠΊΠ²Π°ΡΡΠΈΡΠ΅ Ρ Π΄Π²ΡΠΌΡ ΠΎΠΊΠ½Π°ΠΌΠΈ ΠΈ Π³Π°Π·ΠΎΠ²ΠΎΠΉ ΠΏΠ»ΠΈΡΠΎΠΉ Π½Π° ΠΊΡΡ Π½Π΅ ΡΡΠΎ Π½Π΅Π²ΡΠΏΠΎΠ»Π½ΠΈΠΌΠ°Ρ Π·Π°Π΄Π°ΡΠ°.
Π ΠΈΡΠΎΠ³Π΅ Π² Ρ ΠΎΠ»Π»Π΅ ΠΎΠ±ΡΡΡΡΠΎΠΈΠ»ΠΈ Π³Π°ΡΠ΄Π΅ΡΠΎΠ±Π½ΡΡ, ΠΊΠΎΡΠΎΡΠ°Ρ ΡΠΎΠΆΠ΅ Π±ΡΠ»Π° Π² ΡΠΏΠΈΡΠΊΠ΅ ΠΎΠ±ΡΠ·Π°ΡΠ΅Π»ΡΠ½ΡΡ ΡΡΠ΅Π±ΠΎΠ²Π°Π½ΠΈΠΉ ΠΏΠ°ΡΡ. ΠΡΡ Π½Ρ Ρ Π³Π°Π·ΠΎΠ²ΠΎΠΉ ΠΏΠ»ΠΈΡΠΎΠΉ ΠΈ ΠΊΠΎΡΠ»ΠΎΠΌ ΠΎΡΡΠ°Π²ΠΈΠ»ΠΈ ΠΏΡΠ°ΠΊΡΠΈΡΠ΅ΡΠΊΠΈ Π½Π΅ΡΡΠΎΠ½ΡΡΠΎΠΉ. Π ΠΆΠΈΠ»ΡΡ ΠΊΠΎΠΌΠ½Π°ΡΡ ΡΠ°Π·Π΄Π΅Π»ΠΈΠ»ΠΈ Π½Π° Π΄Π²Π΅ ΡΠ°ΡΡΠΈ: ΡΠΏΠ°Π»ΡΠ½Ρ ΠΈ Π΄Π΅ΡΡΠΊΡΡ.
ΠΡΠΎΠ±Π»Π΅ΠΌΡ Ρ ΠΎΠΊΠ½ΠΎΠΌ Π±ΡΠ»Π° ΡΠ΅ΡΠ΅Π½Π° Π΄ΠΎΠ²ΠΎΠ»ΡΠ½ΠΎ ΠΊΡΠ΅Π°ΡΠΈΠ²Π½ΠΎ β Π±Π°Π»ΠΊΠΎΠ½Π½ΡΠΉ Π±Π»ΠΎΠΊ Π·Π°ΠΌΠ΅Π½ΠΈΠ»ΠΈ Π½Π° Π΄Π²Π° ΠΎΠ΄ΠΈΠ½Π°ΠΊΠΎΠ²ΡΡ . ΠΠΎΠ»ΡΡΠΈΠ»ΠΈΡΡ Π΄Π²Π΅ ΠΊΠΎΠΌΠ½Π°ΡΡ, Π² ΠΊΠ°ΠΆΠ΄ΠΎΠΉ ΠΈΠ· ΠΊΠΎΡΠΎΡΠΎΠΉ Π΅ΡΡΡ Π²ΡΡ ΠΎΠ΄ Π½Π° ΠΎΠ΄ΠΈΠ½ Π±Π°Π»ΠΊΠΎΠ½. ΠΠ²Π΅ΡΠΈ ΡΡΠ΅ΠΊΠ»ΡΠ½Π½ΡΠ΅, ΠΏΠΎΡΡΠΎΠΌΡ ΠΏΡΠΎΠ±Π»Π΅ΠΌ Ρ ΠΎΡΠ²Π΅ΡΠ΅Π½Π½ΠΎΡΡΡΡ Π² ΠΊΠΎΠΌΠ½Π°ΡΠ°Ρ Π½Π΅ Π±ΡΠ΄Π΅Ρ.
ΠΠ·Π±Π°Π²ΠΈΡΡΡΡ ΠΎΡ ΠΊΠΎΡΠΈΠ΄ΠΎΡΠΎΠ²
ΠΡΠ΅ ΠΎΠ΄Π½Π° ΠΎΠ΄Π½ΠΎΠΊΠΎΠΌΠ½Π°ΡΠ½Π°Ρ ΠΊΠ²Π°ΡΡΠΈΡΠ° β Π½Π° ΡΡΠΎΡ ΡΠ°Π· 58 ΠΊΠ². ΠΌ, ΠΈΠ·Π½Π°ΡΠ°Π»ΡΠ½ΠΎ Π² Π½Π΅ΠΉ Π±ΡΠ»ΠΎ Π΄Π°ΠΆΠ΅ Π΄Π²Π° ΡΠ°Π½ΡΠ·Π»Π°! ΠΠΎ ΠΏΠΎΠ»Π΅Π·Π½ΡΡ ΠΏΠ»ΠΎΡΠ°Π΄Ρ ΡΡΠ΅Π΄Π°Π»ΠΈ ΠΊΠΎΡΠΈΠ΄ΠΎΡΡ. ΠΠ΄ΠΈΠ½ ΠΈΠ· Π½ΠΈΡ ΠΏΠ΅ΡΠ΅Π΄Π΅Π»Π°Π»ΠΈ ΠΏΠΎΠ΄ Π³Π°ΡΠ΄Π΅ΡΠΎΠ±Π½ΡΡ, ΠΎ ΠΊΠΎΡΠΎΡΠΎΠΉ ΠΌΠ΅ΡΡΠ°Π»Π° ΠΌΠΎΠ»ΠΎΠ΄Π°Ρ Π΄Π΅Π²ΡΡΠΊΠ° β Ρ ΠΎΠ·ΡΠΉΠΊΠ° ΠΊΠ²Π°ΡΡΠΈΡΡ.
Π§ΡΠΎΠ±Ρ Π²ΡΠ΄Π΅Π»ΠΈΡΡ ΡΠΏΠ°Π»ΡΠ½Ρ ΠΈ Π³ΠΎΡΡΠΈΠ½ΡΡ, Π½Π΅ Π½Π΅ΡΡΡΡΡ ΡΠ°ΡΡΡ ΡΡΠ΅Π½Ρ Π² ΠΊΠΎΡΠΈΠ΄ΠΎΡΠ΅ Π΄Π΅ΠΌΠΎΠ½ΡΠΈΡΠΎΠ²Π°Π»ΠΈ. Π ΡΠΎΠΉ ΡΠ°ΡΡΠΈ ΠΊΠΎΡΠΈΠ΄ΠΎΡΠ°, ΠΊΠΎΡΠΎΡΡΡ ΠΏΡΠΈΡΠ»ΠΎΡΡ ΡΠΎΡ ΡΠ°Π½ΠΈΡΡ, ΠΎΠ±ΡΡΡΡΠΎΠΈΠ»ΠΈ ΠΏΡΠΎΡ ΠΎΠ΄Π½ΠΎΠΉ ΠΌΠΈΠ½ΠΈ-ΠΊΠ°Π±ΠΈΠ½Π΅Ρ Π·Π° ΡΡΠ΅ΠΊΠ»ΡΠ½Π½ΠΎΠΉ ΠΏΠ΅ΡΠ΅Π³ΠΎΡΠΎΠ΄ΠΊΠΎΠΉ. ΠΡΠ΅ ΠΎΠ΄Π½Π° ΡΡΠ΅ΠΊΠ»ΡΠ½Π½Π°Ρ ΠΏΠ΅ΡΠ΅Π³ΠΎΡΠΎΠ΄ΠΊΠ° ΠΎΡΠ΄Π΅Π»ΡΠ΅Ρ Π³ΠΎΡΡΠΈΠ½ΡΡ ΠΎΡ ΠΊΡΡ Π½ΠΈ, ΠΊΠΎΡΠΎΡΠΎΠΉ ΠΏΠ΅ΡΠ΅ΠΏΠ»Π°Π½ΠΈΡΠΎΠ²ΠΊΠ° ΠΏΠΎΡΡΠΈ Π½Π΅ ΠΊΠΎΡΠ½ΡΠ»Π°ΡΡ. Π Π΄ΠΎΠΏΠΎΠ»Π½ΠΈΡΠ΅Π»ΡΠ½ΡΠΉ Π΅ΡΡΠ΅ΡΡΠ²Π΅Π½Π½ΡΠΉ ΡΠ²Π΅Ρ Π² Π³ΠΎΡΡΠΈΠ½ΡΡ ΠΏΠΎΡΡΡΠΏΠ°Π΅Ρ Π΅ΡΠ΅ ΠΈ ΡΠΊΠ²ΠΎΠ·Ρ Π±Π°Π»ΠΊΠΎΠ½Π½ΡΡ Π΄Π²Π΅ΡΡ.
ΠΠ΅ΡΠ΅Π½Π΅ΡΡΠΈ ΠΊΡΡ Π½Ρ Π² ΠΊΠΎΡΠΈΠ΄ΠΎΡ
ΠΠ»Π°Π½ΠΈΡΠΎΠ²ΠΊΠ° ΠΈ ΠΏΠ»ΠΎΡΠ°Π΄Ρ Β«Π΅Π²ΡΠΎΠΎΠ΄Π½ΡΡΠΊΠΈΒ» ΠΈΠ·Π½Π°ΡΠ°Π»ΡΠ½ΠΎ Π±ΡΠ»ΠΈ Π½Π΅ΠΏΠ»ΠΎΡ ΠΈΠΌΠΈ: 59 Β«ΠΊΠ²Π°Π΄ΡΠ°ΡΠΎΠ²Β» ΠΏΠΎΡΡΠΈΠ» Π»ΠΈΡΡ Π΄Π»ΠΈΠ½Π½ΡΠΉ ΡΠ΅ΠΌΠ½ΡΠΉ ΠΊΠΎΡΠΈΠ΄ΠΎΡ. ΠΠΎΡ ΡΠΎΠ»ΡΠΊΠΎ ΡΠ΅ΠΌΠ΅ΠΉΠ½ΠΎΠΉ ΠΏΠ°ΡΠ΅ Ρ Π΄Π²ΡΠΌΡ ΡΡΠ½ΠΎΠ²ΡΡΠΌΠΈ Π±ΡΠ»ΠΎ Π½Π΅ΠΎΠ±Ρ ΠΎΠ΄ΠΈΠΌΠΎ ΠΏΠ΅ΡΠ΅Π΄Π΅Π»Π°ΡΡ ΠΏΡΠΎΡΡΡΠ°Π½ΡΡΠ²ΠΎ Π² ΠΏΠΎΠ»Π½ΠΎΡΠ΅Π½Π½ΡΡ ΡΡΠ΅Ρ ΠΊΠΎΠΌΠ½Π°ΡΠ½ΡΡ ΠΊΠ²Π°ΡΡΠΈΡΡ. ΠΠΎΡΡΠΎΠΌΡ ΠΏΡΠΈΡΠ»ΠΎΡΡ ΡΠΌΠ΅Π½ΡΡΠΈΡΡ ΠΏΠ»ΠΎΡΠ°Π΄Ρ ΠΏΡΠΈΡ ΠΎΠΆΠ΅ΠΉ, ΠΏΠ΅ΡΠ΅Π½Π΅ΡΡΠΈ ΠΊΡΡ Π½Ρ Π² ΠΊΠΎΡΠΈΠ΄ΠΎΡ, Π° Π½Π° Π΅Π΅ ΠΌΠ΅ΡΡΠ΅ ΡΠ΄Π΅Π»Π°ΡΡ Π΄Π΅ΡΡΠΊΡΡ Ρ Π΄Π²ΡΡ ΡΡΡΡΡΠ½ΠΎΠΉ ΠΊΡΠΎΠ²Π°ΡΡΡ.
Π‘ΠΏΠ°Π»ΡΠ½ΠΈ ΠΈ ΡΠ°Π½ΡΠ·Π»Π° ΠΏΠ΅ΡΠ΅Π΄Π΅Π»ΠΊΠ° ΠΏΠΎΡΡΠΈ Π½Π΅ ΠΊΠΎΡΠ½ΡΠ»Π°ΡΡ β Π² Π½ΠΈΡ ΡΠΎΠ»ΡΠΊΠΎ ΠΏΠ΅ΡΠ΅Π½Π΅ΡΠ»ΠΈ Π΄Π²Π΅ΡΠ½ΡΠ΅ ΠΏΡΠΎΠ΅ΠΌΡ. Π Π²ΠΎΡ ΡΠ΅Π½ΡΡΠ°Π»ΡΠ½ΡΡ ΡΠ°ΡΡΡ ΠΊΠ²Π°ΡΡΠΈΡΡ ΠΎΠ±ΡΠ΅Π΄ΠΈΠ½ΠΈΠ»ΠΈ Ρ ΠΊΠΎΡΠΈΠ΄ΠΎΡΠΎΠΌ. ΠΠ΅ΡΠ΅Π½ΠΎΡ ΠΊΡΡ Π½ΠΈ ΠΈΠ· ΠΎΠ΄Π½ΠΎΠΉ Π½Π΅ΠΆΠΈΠ»ΠΎΠΉ Π·ΠΎΠ½Ρ Π² Π΄ΡΡΠ³ΡΡ β Π²ΠΏΠΎΠ»Π½Π΅ Π·Π°ΠΊΠΎΠ½Π½Π°Ρ ΠΏΠ΅ΡΠ΅ΠΏΠ»Π°Π½ΠΈΡΠΎΠ²ΠΊΠ°.
ΠΠΎ ΠΎΠ½Π° Π²Π»Π΅ΡΠ΅Ρ ΡΡΠ΄ ΡΠ»ΠΎΠΆΠ½ΠΎΡΡΠ΅ΠΉ. ΠΠΎΠΌΠΌΡΠ½ΠΈΠΊΠ°ΡΠΈΠΈ ΡΠ΄Π°ΡΡΡΡ ΠΏΠΎΠ΄Π²Π΅ΡΡΠΈ ΠΈΠ· ΡΠ°ΡΠΏΠΎΠ»ΠΎΠΆΠ΅Π½Π½ΠΎΠ³ΠΎ ΡΠ΅ΡΠ΅Π· ΡΡΠ΅Π½ΠΊΡ ΡΠ°Π½ΡΠ·Π»Π°, Π° Π²ΠΎΡ Π²Π΅Π½ΡΠΈΠ»ΡΡΠΈΡ ΠΏΡΠΈΠ΄Π΅ΡΡΡ ΡΡΠ½ΡΡΡ ΠΊ ΡΡΡΠ΅ΡΡΠ²ΡΡΡΠ΅ΠΌΡ ΠΊΠ°Π½Π°Π»Ρ, ΠΊΠΎΡΠΎΡΡΠΉ ΡΠ΅ΠΏΠ΅ΡΡ ΠΎΠΊΠ°ΠΆΠ΅ΡΡΡ Π² Π΄Π΅ΡΡΠΊΠΎΠΉ. ΠΡΡ ΠΊΠΎΠ½ΡΡΡΡΠΊΡΠΈΡ ΡΠΏΡΡΡΠ°Π»ΠΈ Π·Π° ΠΏΠΎΠ΄ΡΠΈΠ²Π½ΡΠΌ ΠΏΠΎΡΠΎΠ»ΠΊΠΎΠΌ β Π²ΡΡΠΎΡΠ° 2,9 ΠΌ ΠΏΠΎΠ·Π²ΠΎΠ»ΡΠ»Π° Π½Π΅ΠΌΠ½ΠΎΠ³ΠΎ Π΅Π³ΠΎ Π·Π°Π½ΠΈΠ·ΠΈΡΡ.
ΠΡΠΏΠΎΠ»ΡΠ·ΠΎΠ²Π°ΡΡ ΡΡΠ΅ΠΊΠ»ΡΠ½Π½ΡΠ΅ ΠΏΠ΅ΡΠ΅Π³ΠΎΡΠΎΠ΄ΠΊΠΈ
ΠΠ»ΠΎΡΠ°Π΄Ρ Β«ΠΎΠ΄Π½ΡΡΠΊΠΈΒ» β Π²ΡΠ΅Π³ΠΎ 37,5 ΠΊΠ². ΠΌ. Π ΡΠΌΠ΅ΡΡΠΈΡΡ Ρ ΠΎΡΠ΅Π»ΠΎΡΡ ΡΠΏΠ°Π»ΡΠ½Ρ, Π΄Π΅ΡΡΠΊΡΡ, ΠΊΡΡ Π½Ρ ΠΈ Π³ΠΎΡΡΠΈΠ½ΡΡ Ρ Π΄ΠΎΠΏΠΎΠ»Π½ΠΈΡΠ΅Π»ΡΠ½ΡΠΌ ΡΠΏΠ°Π»ΡΠ½ΡΠΌ ΠΌΠ΅ΡΡΠΎΠΌ Π΄Π»Ρ ΡΠΎΠ΄ΡΡΠ²Π΅Π½Π½ΠΈΠΊΠΎΠ², ΠΊΠΎΡΠΎΡΡΠ΅ ΠΏΠ΅ΡΠΈΠΎΠ΄ΠΈΡΠ΅ΡΠΊΠΈ ΠΏΡΠΈΠ΅Π·ΠΆΠ°ΡΡ ΠΏΠΎΠ³ΠΎΡΡΠΈΡΡ. ΠΡΡΡΡΠΈΠ»ΠΎ ΡΠΎ, ΡΡΠΎ ΠΏΠ»ΠΈΡΠ° Π½Π° ΠΊΡΡ Π½Π΅ ΡΠ»Π΅ΠΊΡΡΠΈΡΠ΅ΡΠΊΠ°Ρ, Π° Π² ΠΏΡΠΈΡ ΠΎΠΆΠ΅ΠΉ Π±ΡΠ»Π° Π½ΠΈΡΠ°. ΠΠ° ΡΡΡ Π½Π΅ΠΆΠΈΠ»ΡΡ ΠΏΠ»ΠΎΡΠ°Π΄Ρ ΠΈ Π±ΡΠ»Π° ΠΏΠ΅ΡΠ΅ΠΌΠ΅ΡΠ΅Π½Π° Π·ΠΎΠ½Π° Π³ΠΎΡΠΎΠ²ΠΊΠΈ, ΠΏΡΠΈΡΠ΅ΠΌ Π²ΠΏΠΎΠ»Π½Π΅ Π·Π°ΠΊΠΎΠ½Π½ΠΎ.
ΠΡΡ Π½Ρ Π² Π½ΠΈΡΠ΅ ΠΏΠΎΠ»ΡΡΠΈΠ»Π°ΡΡ Ρ ΠΎΡΡ ΠΈ Π½Π΅Π±ΠΎΠ»ΡΡΠΎΠΉ (Π²ΡΠ΅Π³ΠΎ 5,5 Β«ΠΊΠ²Π°Π΄ΡΠ°ΡΠΎΠ²Β»), Π½ΠΎ ΡΡΠ½ΠΊΡΠΈΠΎΠ½Π°Π»ΡΠ½ΠΎΠΉ. ΠΡΠΎ ΠΏΡΠΎΡΡΡΠ°Π½ΡΡΠ²ΠΎ ΠΏΠ»Π°Π²Π½ΠΎ ΠΏΠ΅ΡΠ΅ΡΠ΅ΠΊΠ°Π΅Ρ Π² Π³ΠΎΡΡΠΈΠ½ΡΡ, ΠΏΠΎΡΡΠΎΠΌΡ Ρ ΠΆΠΈΠ»ΡΡΠΎΠ² Π½Π΅ ΡΠΎΠ·Π΄Π°Π΅ΡΡΡ ΠΎΡΡΡΠ΅Π½ΠΈΡ Π΄Π°Π²ΡΡΠ΅ΠΉ ΡΠ΅ΡΠ½ΠΎΡΡ. Π£ ΠΎΠΊΠΎΠ½ ΡΠ°ΡΠΏΠΎΠ»ΠΎΠΆΠΈΠ»ΠΈΡΡ ΡΠΏΠ°Π»ΡΠ½Ρ ΠΈ Π΄Π΅ΡΡΠΊΠ°Ρ. ΠΠ½ΠΈ ΠΎΡΠ΄Π΅Π»Π΅Π½Ρ ΡΡΠ΅ΠΊΠ»ΡΠ½Π½ΡΠΌΠΈ ΠΏΠ΅ΡΠ΅Π³ΠΎΡΠΎΠ΄ΠΊΠ°ΠΌΠΈ, ΡΡΠΎΠ±Ρ Π΅ΡΡΠ΅ΡΡΠ²Π΅Π½Π½ΡΠΉ ΡΠ²Π΅Ρ ΠΏΠΎΠΏΠ°Π΄Π°Π» Π² Π³ΠΎΡΡΠΈΠ½ΡΡ ΠΈ Π½Π° ΠΊΡΡ Π½Ρ.
Π£ΡΡΠ°Π½ΠΎΠ²ΠΈΡΡ Π½Π° ΠΊΡΡ Π½Π΅ Π½Π°ΡΠΎΡ
Π Β«ΠΎΠ΄Π½ΡΡΠΊΠ΅Β» ΠΏΠ»ΠΎΡΠ°Π΄ΡΡ 38 ΠΊΠ². ΠΌ ΡΠΎΠΆΠ΅ ΡΡΠ΅Π±ΡΠ΅ΡΡΡ ΠΈΠ·ΠΎΠ»ΠΈΡΠΎΠ²Π°Π½Π½Π°Ρ ΡΠΏΠ°Π»ΡΠ½Ρ. Π Π΅Π΅ ΡΠΎΠΆΠ΅ Π»Π΅Π³ΠΊΠΎ ΠΎΠ±ΡΡΡΡΠΎΠΈΡΡ Π½Π° ΠΌΠ΅ΡΡΠ΅ ΠΊΡΡ Π½ΠΈ. ΠΡΠ°Π²Π΄Π°, ΠΏΠ΅ΡΠ΅Π½ΠΎΡΠΈΡΡ Π·ΠΎΠ½Ρ Π³ΠΎΡΠΎΠ²ΠΊΠΈ Π΄ΠΎΠΏΡΡΡΠΈΠΌΠΎ ΡΠΎΠ»ΡΠΊΠΎ Π½Π° Π½Π΅ΠΆΠΈΠ»ΡΡ ΠΏΠ»ΠΎΡΠ°Π΄Ρ, ΡΠΎ Π΅ΡΡΡ Π² Π½ΠΈΡΡ ΠΏΡΠΈ Π²Ρ ΠΎΠ΄Π΅. Π Π³Π»Π°Π²Π½Π°Ρ ΠΏΡΠΎΠ±Π»Π΅ΠΌΠ° Π·Π°ΠΊΠ»ΡΡΠ°Π΅ΡΡΡ Π² ΡΠΎΠΌ, ΡΡΠΎ Π·Π°ΡΡΡΠΎΠΉΡΠΈΠΊ Π½Π΅ ΠΏΡΠ΅Π΄ΡΡΠΌΠΎΡΡΠ΅Π» ΠΊΠΎΠΌΠΌΡΠ½ΠΈΠΊΠ°ΡΠΈΠΉ Π² ΠΏΡΠ°Π²ΠΎΠΉ ΠΏΠΎΠ»ΠΎΠ²ΠΈΠ½Π΅ ΠΊΠ²Π°ΡΡΠΈΡΡ. ΠΠΎΡΡΠΎΠΌΡ ΠΌΠ°Π»ΠΎ ΠΊΡΠΎ ΡΠ°ΡΡΠΌΠ°ΡΡΠΈΠ²Π°Π» ΡΠ°ΠΊΡΡ ΡΡ Π΅ΠΌΡ ΠΏΠ΅ΡΠ΅ΠΏΠ»Π°Π½ΠΈΡΠΎΠ²ΠΊΠΈ. Π Π½Π°ΠΏΡΠ°ΡΠ½ΠΎ.
ΠΠ΅ΡΠ΅Π½ΠΎΡ ΠΊΡΡ Π½ΠΈ Π² Π½ΠΈΡΡ ΠΏΠΎΠ·Π²ΠΎΠ»ΠΈΡ ΠΎΠ±ΡΡΡΡΠΎΠΈΡΡ ΠΈ Π΄ΠΎΠ²ΠΎΠ»ΡΠ½ΠΎ ΠΏΡΠΎΡΡΠΎΡΠ½ΡΡ ΡΠΏΠ°Π»ΡΠ½Ρ Ρ ΠΎΠΊΠ½ΠΎΠΌ, ΠΈ Π³ΠΎΡΡΠΈΠ½ΡΡ Ρ Π±ΠΎΠ»ΡΡΠΈΠΌ ΠΎΠ±Π΅Π΄Π΅Π½Π½ΡΠΌ ΡΡΠΎΠ»ΠΎΠΌ ΠΈ Π²ΠΈΡΡΠΈΠ½Π°ΠΌΠΈ Π΄Π»Ρ ΡΠ΅ΡΠ²ΠΈΡΠΎΠ²ΠΎΡΠ½ΠΎΠΉ ΠΏΠΎΡΡΠ΄Ρ. Π ΠΏΡΡΠΈΠΌΠ΅ΡΡΠΎΠ²Π°Ρ ΠΊΡΡ Π½Ρ Ρ Π-ΠΎΠ±ΡΠ°Π·Π½ΡΠΌ Π³Π°ΡΠ½ΠΈΡΡΡΠΎΠΌ Π²ΠΌΠ΅ΡΡΠΈΡ Π²ΡΡ Π½Π΅ΠΎΠ±Ρ ΠΎΠ΄ΠΈΠΌΡΡ Π±ΡΡΠΎΠ²ΡΡ ΡΠ΅Ρ Π½ΠΈΠΊΡ.
ΠΠΎ Π΄Π»Ρ ΡΠ΅Π°Π»ΠΈΠ·Π°ΡΠΈΠΈ ΠΏΠ»Π°Π½Π° ΠΏΡΠΈΠ΄Π΅ΡΡΡ ΠΏΡΡΡΠΈΡΡ ΠΊΠΎΠΌΠΌΡΠ½ΠΈΠΊΠ°ΡΠΈΠΈ ΠΏΠΎΠ΄ ΠΏΠΎΡΠΎΠ»ΠΊΠΎΠΌ ΠΈ ΡΡΡΠ°Π½ΠΎΠ²ΠΈΡΡ Π½Π°ΡΠΎΡ. ΠΡΠΎ ΡΠ²Π΅Π»ΠΈΡΠΈΡ ΡΡΠΎΠΈΠΌΠΎΡΡΡ ΡΠ΅ΠΌΠΎΠ½ΡΠ°, Π½ΠΎ ΡΠΎΠ³Π»Π°ΡΠΎΠ²Π°ΡΡ ΡΠ°ΠΊΡΡ ΠΏΠ΅ΡΠ΅ΠΏΠ»Π°Π½ΠΈΡΠΎΠ²ΠΊΡ Π²ΠΏΠΎΠ»Π½Π΅ ΡΠ΅Π°Π»ΡΠ½ΠΎ.
ΠΠ°Π΄Π΅ΠΉΡΡΠ²ΠΎΠ²Π°ΡΡ Π»ΠΎΠ΄ΠΆΠΈΡ
ΠΡΡΠΌΠΎΡΠ³ΠΎΠ»ΡΠ½Π°Ρ ΠΊΠ²Π°ΡΡΠΈΡΠ°-ΠΏΠ΅Π½Π°Π» Ρ Π΄Π²ΡΠΌΡ ΠΎΠΊΠ½Π°ΠΌΠΈ Π² ΡΠΎΡΡΠ΅ β Π½Π΅ ΡΠ°ΠΌΡΠΉ ΡΠ΄Π°ΡΠ½ΡΠΉ Π²Π°ΡΠΈΠ°Π½Ρ. ΠΠΎ Π²Π»Π°Π΄Π΅Π»ΡΡΠ°ΠΌ ΡΡΠΎΠΉ 41-ΠΌΠ΅ΡΡΠΎΠ²ΠΎΠΉ Β«ΠΎΠ΄Π½ΡΡΠΊΠΈΒ» ΠΏΠΎΠ²Π΅Π·Π»ΠΎ β ΠΎΠ½ΠΈ ΡΠΎΠ±ΠΈΡΠ°Π»ΠΈΡΡ ΡΡΠ΅ΠΏΠ»ΠΈΡΡ 13-ΠΌΠ΅ΡΡΠΎΠ²ΡΡ Π»ΠΎΠ΄ΠΆΠΈΡ ΠΈ ΡΡΡΠ°Π½ΠΎΠ²ΠΈΡΡ ΡΠ»Π΅ΠΊΡΡΠΈΡΠ΅ΡΠΊΠΈΠ΅ ΠΎΠ±ΠΎΠ³ΡΠ΅Π²Π°ΡΠ΅Π»ΠΈ, ΡΡΠΎΠ±Ρ ΠΏΠΎΠ»Π½ΠΎΡΠ΅Π½Π½ΠΎ Π΅Π΅ ΠΈΡΠΏΠΎΠ»ΡΠ·ΠΎΠ²Π°ΡΡ.
ΠΡΠ°Π²Π΄Π°, ΠΈ Π·Π°Π΄Π°ΡΠΈ ΠΏΠΎ ΡΡΠ½ΠΊΡΠΈΠΎΠ½Π°Π»Ρ Π±ΡΠ»ΠΈ ΠΎΠ³ΡΠΎΠΌΠ½Ρ. ΠΠΎΠΌΠΈΠΌΠΎ ΠΊΡΡ Π½ΠΈ ΠΈ Π³ΠΎΡΡΠΈΠ½ΠΎΠΉ Π² ΠΊΠ²Π°ΡΡΠΈΡΠ΅ Π΄ΠΎΠ»ΠΆΠ½Ρ Π±ΡΠ»ΠΈ ΠΏΠΎΡΠ²ΠΈΡΡΡΡ ΠΎΡΠ΄Π΅Π»ΡΠ½Π°Ρ ΡΠΏΠ°Π»ΡΠ½Ρ ΠΈ Π΄Π΅ΡΡΠΊΠ°Ρ, Π° ΡΠ°ΠΊΠΆΠ΅ Π΄Π²Π° ΡΠ°Π±ΠΎΡΠΈΡ ΠΌΠ΅ΡΡΠ° β Π΄Π΅ΡΡΠΊΠΎΠ΅ ΠΈ Π²Π·ΡΠΎΡΠ»ΠΎΠ΅. Π’ΠΎ Π΅ΡΡΡ ΠΎΠ΄Π½ΠΎΠΊΠΎΠΌΠ½Π°ΡΠ½Π°Ρ ΠΊΠ²Π°ΡΡΠΈΡΠ° Π΄ΠΎΠ»ΠΆΠ½Π° Π±ΡΠ»Π° Π²ΡΠΏΠΎΠ»Π½ΡΡΡ ΡΡΠ½ΠΊΡΠΈΠΈ ΡΠ΅ΡΡΡΠ΅Ρ ΠΊΠΎΠΌΠ½Π°ΡΠ½ΠΎΠΉ.
ΠΠΎΡΠΊΠΎΠ»ΡΠΊΡ Π»ΠΎΠ΄ΠΆΠΈΡ ΠΏΠ»Π°Π½ΠΈΡΡΠ΅ΡΡΡ ΠΏΠΎΠ»Π½ΠΎΡΠ΅Π½Π½ΠΎ ΠΈΡΠΏΠΎΠ»ΡΠ·ΠΎΠ²Π°ΡΡ, ΡΡΠ°Π·Ρ ΠΏΡΠ΅Π΄ΡΡΠΌΠΎΡΡΠΈΠΌ ΡΠ°ΠΌ Π΄Π²Π΅ ΠΊΠΎΠΌΠ½Π°ΡΡ β Π½Π°ΠΏΡΠΈΠΌΠ΅Ρ Π΄Π΅ΡΡΠΊΡΡ ΠΈ ΠΊΠ°Π±ΠΈΠ½Π΅Ρ. ΠΠΎΠ½Π΅ΡΠ½ΠΎ, ΠΌΠ΅ΡΡΠ° Π² ΡΡΠΈΡ ΠΏΠΎΠΌΠ΅ΡΠ΅Π½ΠΈΡΡ ΠΎΡΠ΅Π½Ρ ΠΌΠ°Π»ΠΎ β ΡΠΌΠ΅ΡΡΡΡΡΡ Π±ΡΠΊΠ²Π°Π»ΡΠ½ΠΎ ΠΊΡΠΎΠ²Π°ΡΡ ΠΈ ΠΏΠΈΡΡΠΌΠ΅Π½Π½ΡΠΉ ΡΡΠΎΠ», Π·Π°ΡΠΎ ΠΎΠ½ΠΈ Π±ΡΠ΄ΡΡ ΠΈΠ·ΠΎΠ»ΠΈΡΠΎΠ²Π°Π½Π½ΡΠΌΠΈ. ΠΡΡ Π½Ρ ΠΎΡΡΠ°Π½Π΅ΡΡΡ Π² ΠΏΡΠ΅ΠΆΠ½ΠΈΡ Π³ΡΠ°Π½ΠΈΡΠ°Ρ , Π° ΡΠΏΠ°Π»ΡΠ½Ρ ΡΠΎΠ΄ΠΈΡΠ΅Π»Π΅ΠΉ ΠΎΡΠ΄Π΅Π»ΠΈΠΌ ΠΎΡ Π³ΠΎΡΡΠΈΠ½ΠΎΠΉ ΡΡΠ΅ΠΊΠ»ΡΠ½Π½ΠΎΠΉ ΠΏΠ΅ΡΠ΅Π³ΠΎΡΠΎΠ΄ΠΊΠΎΠΉ.
ΠΠΏΡΠΎΡΠ΅ΠΌ, Π³ΠΎΡΡΠΈΠ½ΠΎΠΉ Π½Π΅ ΠΏΡΠΈΠ΄Π΅ΡΡΡ ΠΆΠ΅ΡΡΠ²ΠΎΠ²Π°ΡΡ, Π΅ΡΠ»ΠΈ ΠΎΡΡΠ°Π²ΠΈΡΡ Π΅Π΅ Π² ΠΏΡΠ΅ΠΆΠ½ΠΈΡ Π³ΡΠ°Π½ΠΈΡΠ°Ρ ΠΈ ΡΠ°ΡΠΏΠΎΠ»ΠΎΠΆΠΈΡΡ Π² Π½Π΅ΠΉ ΡΠ°Π±ΠΎΡΠ΅Π΅ ΠΌΠ΅ΡΡΠΎ ΠΈ ΠΎΠ±Π΅Π΄Π΅Π½Π½ΡΠΉ ΡΡΠΎΠ». ΠΡΠΈ ΡΡΠΎΠΌ ΡΠ°ΡΡΡ ΠΊΡΡ Π½ΠΈ ΠΏΡΠΈΠ΄Π΅ΡΡΡ ΠΎΡΠ΄Π°ΡΡ ΠΏΠΎΠ΄ Π΄Π΅ΡΡΠΊΡΡ, Π° Π·ΠΎΠ½Ρ Π³ΠΎΡΠΎΠ²ΠΊΠΈ ΡΠΌΠ΅ΡΡΠΈΡΡ Π² ΡΠ·ΠΊΡΡ Π½ΠΈΡΡ. ΠΠΎ ΠΎΠ΄Π½ΠΎΠΉ Ρ ΠΎΠ·ΡΠΉΠΊΠ΅ Π³ΠΎΡΠΎΠ²ΠΈΡΡ Π½Π° ΡΠ°ΠΊΠΎΠΉ ΠΏΠ»ΠΎΡΠ°Π΄ΠΈ Π±ΡΠ΄Π΅Ρ Π²ΠΏΠΎΠ»Π½Π΅ ΡΠ΄ΠΎΠ±Π½ΠΎ. ΠΠΎΠ΄ΠΆΠΈΡ ΡΠΎΠΆΠ΅ ΡΠ°Π·Π΄Π΅Π»ΠΈΠΌ Π½Π° Π΄Π²Π΅ ΡΠ°ΡΡΠΈ, Π½ΠΎ Π² ΡΡΠΎΡ ΡΠ°Π· ΡΡΠΎ Π±ΡΠ΄ΡΡ ΡΠΏΠ°Π»ΡΠ½Ρ ΡΠΎΠ΄ΠΈΡΠ΅Π»Π΅ΠΉ ΠΈ Π΄Π΅ΡΡΠΊΠΈΠΉ ΠΌΠΈΠ½ΠΈ-ΠΊΠ°Π±ΠΈΠ½Π΅Ρ.
Π§ΡΠΎΠ±Ρ Π½ΠΈΠΊΡΠΎ Π½Π΅ ΡΠΏΠ°Π» Π½Π° Π»ΠΎΠ΄ΠΆΠΈΠΈ, ΠΌΠΎΠΆΠ½ΠΎ ΠΎΠ±ΡΡΡΡΠΎΠΈΡΡ ΡΠ°ΠΌ Π΄Π²Π° ΠΊΠ°Π±ΠΈΠ½Π΅ΡΠ° β Π΄Π΅ΡΡΠΊΠΈΠΉ ΠΈ Π²Π·ΡΠΎΡΠ»ΡΠΉ. Π‘ΠΏΠ°Π»ΡΠ½Ρ ΠΈ Π΄Π΅ΡΡΠΊΡΡ ΡΠ°ΡΠΏΠΎΠ»ΠΎΠΆΠΈΡΡ Ρ ΠΎΠΊΠΎΠ½ ΠΈ ΠΎΡΠ΄Π΅Π»ΠΈΡΡ ΡΡΠ΅ΠΊΠ»ΡΠ½Π½ΡΠΌΠΈ ΠΏΠ΅ΡΠ΅Π³ΠΎΡΠΎΠ΄ΠΊΠ°ΠΌΠΈ. ΠΡΠ°Π²Π΄Π°, ΠΊΡΡ Π½Ρ ΠΈ Π³ΠΎΡΡΠΈΠ½Π°Ρ ΡΠΈΠ»ΡΠ½ΠΎ ΡΠΌΠ΅Π½ΡΡΠ°ΡΡΡ Π² ΡΠ°Π·ΠΌΠ΅ΡΠ°Ρ .
ΠΠ°ΠΊΠΎΠ½Π΅Ρ, ΡΠ°ΠΌΠ°Ρ ΠΈΠ½ΡΠ΅ΡΠ΅ΡΠ½Π°Ρ, Π½ΠΎ ΠΈ ΡΠ°ΠΌΠ°Ρ ΡΠ»ΠΎΠΆΠ½Π°Ρ Π² ΡΠ΅Π°Π»ΠΈΠ·Π°ΡΠΈΠΈ ΠΏΠ΅ΡΠ΅ΠΏΠ»Π°Π½ΠΈΡΠΎΠ²ΠΊΠ° β ΠΏΠ΅ΡΠ΅Π½ΠΎΡ ΠΊΡΡ Π½ΠΈ Π² ΠΊΠΎΡΠΈΠ΄ΠΎΡ ΠΈ ΠΏΡΠΈΡΠΎΠ΅Π΄ΠΈΠ½Π΅Π½ΠΈΠ΅ ΠΊ Π³ΠΎΡΡΠΈΠ½ΠΎΠΉ. ΠΡΠΈ ΡΠΎΠ³Π»Π°ΡΠΎΠ²Π°Π½ΠΈΠΈ Π·ΠΎΠ½Π° Π³ΠΎΡΠΎΠ²ΠΊΠΈ Π±ΡΠ΄Π΅Ρ Π½Π°Π·ΡΠ²Π°ΡΡΡΡ Π²ΡΡΡΠΎΠ΅Π½Π½ΡΠΌ ΡΠΊΠ°ΡΠΎΠΌ, Π° ΡΠΏΠ°Π»ΡΠ½Ρ ΡΠΎΠ΄ΠΈΡΠ΅Π»Π΅ΠΉ Π²ΡΡ ΡΠ°ΠΊ ΠΆΠ΅ Π±ΡΠ΄Π΅Ρ ΡΡΠΈΡΠ°ΡΡΡΡ ΠΊΡΡ Π½Π΅ΠΉ. ΠΠ°ΡΠΎ Π²ΡΠ΅ ΠΏΠΎΠΌΠ΅ΡΠ΅Π½ΠΈΡ ΠΎΠΊΠ°ΠΆΡΡΡΡ ΠΌΠ°ΠΊΡΠΈΠΌΠ°Π»ΡΠ½ΠΎ ΠΏΡΠΎΡΡΠΎΡΠ½ΡΠΌΠΈ.
ΠΠΎΠ½Π΅ΡΠ½ΠΎ, Π΄Π°Π»Π΅ΠΊΠΎ Π½Π΅ ΠΊΠ°ΠΆΠ΄ΡΠΉ Π²Π»Π°Π΄Π΅Π»Π΅Ρ ΠΊΠ²Π°ΡΡΠΈΡΡ Π³ΠΎΡΠΎΠ² ΠΏΠΎΠ»ΡΡΠΈΡΡ ΡΠΏΠ°Π»ΡΠ½Ρ ΠΈΠ»ΠΈ Π΄Π΅ΡΡΠΊΡΡ ΠΏΠ»ΠΎΡΠ°Π΄ΡΡ 8β9 ΠΊΠ². ΠΌ. ΠΠΎ Π΅ΡΠ»ΠΈ ΠΈΠ½Π°ΡΠ΅ ΡΠ»ΡΡΡΠΈΡΡ ΠΆΠΈΠ»ΠΈΡΠ½ΡΠ΅ ΡΡΠ»ΠΎΠ²ΠΈΡ Π½Π΅ Π²ΡΡ ΠΎΠ΄ΠΈΡ, Π²ΠΏΠΎΠ»Π½Π΅ ΡΠ΅Π°Π»ΡΠ½ΠΎ ΠΎΠ±ΡΡΡΡΠΎΠΈΡΡ ΠΊΠ°ΠΆΠ΄ΠΎΠΌΡ ΡΠ»Π΅Π½Ρ ΡΠ΅ΠΌΡΠΈ Π»ΠΈΡΠ½ΠΎΠ΅ ΠΏΡΠΎΡΡΡΠ°Π½ΡΡΠ²ΠΎ Π² ΠΎΠ΄Π½ΠΎΠΊΠΎΠΌΠ½Π°ΡΠ½ΠΎΠΉ ΠΊΠ²Π°ΡΡΠΈΡΠ΅.
Π Π»ΡΠ±ΠΎΠΌ ΡΠ»ΡΡΠ°Π΅ Ρ ΠΊΠ°ΠΆΠ΄ΠΎΠ³ΠΎ Π΅ΡΡΡ Π²ΡΠ±ΠΎΡ, ΡΠ΅ΠΌ ΠΆΠ΅ΡΡΠ²ΠΎΠ²Π°ΡΡ: ΠΏΡΠΎΡΡΡΠ°Π½ΡΡΠ²ΠΎΠΌ ΠΈΠ»ΠΈ ΠΏΡΠΈΠ²Π°ΡΠ½ΠΎΡΡΡΡ.
Π€ΠΎΡΠΎ ΠΈ ΠΏΠ»Π°Π½ΠΈΡΠΎΠ²ΠΊΠΈ:Β ΠΠΈΠΊΠΈΡΠ° ΠΡΠ±
ΠΠ΅ΡΠ΅ΠΏΠ»Π°Π½ΠΈΡΠΎΠ²ΠΊΠ° ΠΎΠ΄Π½ΠΎΠΊΠΎΠΌΠ½Π°ΡΠ½ΠΎΠΉ ΠΊΠ²Π°ΡΡΠΈΡΡ
ΠΡΠ»ΠΈ Π²Ρ Π²Π»Π°Π΄Π΅Π»Π΅Ρ ΠΈΠ»ΠΈ Π²Π»Π°Π΄Π΅Π»Π΅Ρ Π±ΠΎΠ»ΡΡΠΎΠΉ ΠΊΠ²Π°ΡΡΠΈΡΡ-ΡΡΡΠ΄ΠΈΠΈ, ΠΏΠΎΡΠ΅ΠΌΡ Π±Ρ Π½Π΅ ΠΏΡΠ΅Π²ΡΠ°ΡΠΈΡΡ Π΅Π΅ Π² ΠΎΠ΄Π½ΠΎΠΊΠΎΠΌΠ½Π°ΡΠ½ΡΡ? ΠΡΠΈΡΠ΅ΠΌ ΡΠ°ΠΊΠΈΠ΅ ΠΏΠ΅ΡΠ΅Π΄Π΅Π»ΠΊΠΈ ΠΌΠΎΠΆΠ½ΠΎ Π΄Π΅Π»Π°ΡΡ Ρ ΠΏΠΎΠΌΠΎΡΡΡ Π½Π΅Π±ΠΎΠ»ΡΡΠΎΠ³ΠΎ ΡΡΠ΅ΡΡΠΈΠΊΠ°, Π΅ΡΠ»ΠΈ ΠΏΠΎΠ΄ΠΎΠΉΡΠΈ ΠΊ Π΄Π΅Π»Ρ Ρ ΡΠΌΠΎΠΌ.
Π‘ΠΎΠ²ΡΠ΅ΠΌΠ΅Π½Π½ΡΠ΅ ΠΌΠ°ΡΠ΅ΡΠΈΠ°Π»Ρ ΠΏΠΎΠ·Π²ΠΎΠ»ΡΡΡ ΠΌΠ°ΠΊΡΠΈΠΌΠ°Π»ΡΠ½ΠΎ ΠΈΡΠΏΠΎΠ»ΡΠ·ΠΎΠ²Π°ΡΡ ΠΏΡΠΎΠΈΠ·Π²ΠΎΠ»ΡΠ½ΡΠ΅ ΠΏΠ°ΡΠ°ΠΌΠ΅ΡΡΡ, Π½Π°ΠΏΡΠΈΠΌΠ΅Ρ, Π² ΠΊΠ°ΡΠ΅ΡΡΠ²Π΅ ΠΏΠ΅ΡΠ΅Π³ΠΎΡΠΎΠ΄ΠΊΠΈ ΠΌΠ΅ΠΆΠ΄Ρ ΠΈΠ΄Π΅Π°Π»ΡΠ½ΡΠΌ Π³ΠΈΠΏΡΠΎΠΊΠ°ΡΡΠΎΠ½ΠΎΠΌ. ΠΠ° Π²ΠΎΠ·Π²Π΅Π΄Π΅Π½ΠΈΠ΅ ΡΡΠ΅Π½Ρ ΡΠΉΠ΄Π΅Ρ ΠΌΠ°ΠΊΡΠΈΠΌΡΠΌ ΠΎΠ΄ΠΈΠ½ Π΄Π΅Π½Ρ. ΠΠΎΠΊΠ° Π΅Π³ΠΎ ΠΊΠΎΠ½ΡΡΡΡΠΊΡΠΈΡ Π½Π΅ ΡΠΈΠ»ΡΠ½ΠΎ ΠΏΠΎΠ²Π»ΠΈΡΠ»Π° Π½Π° ΠΎΠ±ΡΡΡ ΡΠΌΠ΅ΡΡ.
ΠΠ° ΡΠ°ΠΌΠΎΠΌ Π΄Π΅Π»Π΅ ΠΌΠΎΠΆΠ½ΠΎ ΠΏΡΠΈΠ΄ΡΠΌΠ°ΡΡ ΠΌΠ½ΠΎΠΆΠ΅ΡΡΠ²ΠΎ ΠΊΡΠ΅Π°ΡΠΈΠ²Π½ΡΡ Π²Π°ΡΠΈΠ°Π½ΡΠΎΠ², ΠΊΠΎΡΠΎΡΡΠ΅ Π΄Π°ΡΡ Π²ΠΎΠ·ΠΌΠΎΠΆΠ½ΠΎΡΡΡ ΡΠ΄Π΅Π»Π°ΡΡ ΠΏΠ΅ΡΠ΅ΠΏΠ»Π°Π½ΠΈΡΠΎΠ²ΠΊΡ ΠΎΠ΄Π½ΠΎΠΊΠΎΠΌΠ½Π°ΡΠ½ΠΎΠΉ ΠΊΠ²Π°ΡΡΠΈΡΡ Π½Π° Π΄Π²ΡΡ ΠΊΠΎΠΌΠ½Π°ΡΠ½ΡΡ — ΠΏΡΠ°ΠΊΡΠΈΡΠ΅ΡΠΊΠΈ Π±Π΅ΡΠΏΠ»Π°ΡΠ½ΠΎ. ΠΠ°ΠΏΡΠΈΠΌΠ΅Ρ, Π²Ρ ΠΌΠΎΠΆΠ΅ΡΠ΅ ΠΈΡΠΏΠΎΠ»ΡΠ·ΠΎΠ²Π°ΡΡ ΡΠΊΡΠ°Π½. ΠΠ΅Π±ΠΎΠ»ΡΡΠ°Ρ Π·Π°Π½Π°Π²Π΅ΡΠΊΠ° ΡΠ°Π·Π΄Π΅Π»ΠΈΡ Π΄Π²Π΅ ΠΊΠΎΠΌΠ½Π°ΡΡ ΠΈ Π΄Π°ΡΡ Π²Π°ΠΌ Π½Π΅ΠΌΠ½ΠΎΠ³ΠΎ Π±ΠΎΠ»ΡΡΠ΅ ΡΠ΅Π΄ΠΈΠ½Π΅Π½ΠΈΡ. Π ΡΠ°ΠΌΠΎΠ΅ Π³Π»Π°Π²Π½ΠΎΠ΅, ΡΡΠΎ ΡΠ°Π·Π΄Π΅Π»Π΅Π½ΠΈΠ΅ ΠΏΡΠ°ΠΊΡΠΈΡΠ΅ΡΠΊΠΈ Π½ΠΈΡΠ΅Π³ΠΎ Π½Π΅ Π±ΡΠ΄Π΅Ρ ΡΡΠΎΠΈΡΡ.
Π§ΡΠΎΠ±Ρ ΠΏΠ΅ΡΠ΅ΠΏΠ»Π°Π½ΠΈΡΠΎΠ²ΠΊΠ° ΠΎΠ΄Π½ΠΎΠΊΠΎΠΌΠ½Π°ΡΠ½ΠΎΠΉ ΠΊΠ²Π°ΡΡΠΈΡΡ Π² ΡΡΠ΅Ρ ΠΊΠΎΠΌΠ½Π°ΡΠ½ΡΡ ΠΏΡΠΎΡΠ»Π° ΡΡΠΏΠ΅ΡΠ½ΠΎ, Π½Π΅ΠΎΠ±Ρ ΠΎΠ΄ΠΈΠΌΠΎ ΡΠΎΠ±Π»ΡΠ΄Π°ΡΡ ΠΎΠΏΡΠ΅Π΄Π΅Π»Π΅Π½Π½ΡΠ΅ ΠΏΡΠ°Π²ΠΈΠ»Π°, ΠΊΠΎΡΠΎΡΡΠ΅ Π±ΡΠ»ΠΈ Π²ΡΡΠ°Π±ΠΎΡΠ°Π½Ρ Π΄ΠΈΠ·Π°ΠΉΠ½Π΅ΡΠ°ΠΌΠΈ Π·Π° Π΄ΠΎΠ»Π³ΠΈΠ΅ Π³ΠΎΠ΄Ρ ΠΏΡΠ°ΠΊΡΠΈΠΊΠΈ.
Π‘Π°ΠΌΠΎΠ΅ Π³Π»Π°Π²Π½ΠΎΠ΅ — ΡΡΠΎ ΡΠ΅ΡΠΊΠΎΡΡΡ ΠΈ ΡΠ΅ΡΠΊΠΎΡΡΡ ΠΏΠ΅ΡΠ΅ΠΏΠ»Π°Π½ΠΈΡΠΎΠ²ΠΊΠΈ ΠΎΠ΄Π½ΠΎΠΊΠΎΠΌΠ½Π°ΡΠ½ΠΎΠ³ΠΎ ΠΆΠΈΠ»ΡΡ. ΠΠ΅ΡΠ΅Π΄ ΡΠ΅ΠΌ, ΠΊΠ°ΠΊ Π½Π°ΡΠ°ΡΡ Π±ΠΈΡΡ ΡΡΠ΅Π½Ρ, Π½ΡΠΆΠ½ΠΎ ΡΠ΄Π΅Π»Π°ΡΡ ΠΏΡΠΎΠ΅ΠΊΡ. Π ΠΏΡΠΎΡΠΈΠ²Π½ΠΎΠΌ ΡΠ»ΡΡΠ°Π΅ Π²Ρ ΡΠΈΠ»ΡΠ½ΠΎ ΡΠΈΡΠΊΡΠ΅ΡΠ΅. ΠΠΎ ΠΎΠ΄Π½ΠΎΠ³ΠΎ ΠΏΠ»Π°Π½Π° ΠΌΠ°Π»ΠΎ, Π΅Π³ΠΎ Π΅ΡΠ΅ Π½ΡΠΆΠ½ΠΎ ΡΠ΅Π°Π»ΠΈΠ·ΠΎΠ²Π°ΡΡ. ΠΠΎΡΡΠΎΠΌΡ ΠΏΠ΅ΡΠ΅Π΄ ΡΠ΅ΠΌ, ΠΊΠ°ΠΊ ΠΏΡΠΈΡΡΡΠΏΠΈΡΡ ΠΊ ΡΠ°Π±ΠΎΡΠ΅, ΡΡΠ΅Π·Π²ΠΎ ΠΎΡΠ΅Π½ΠΈΡΠ΅ ΡΠ²ΠΎΠΈ Π²ΠΎΠ·ΠΌΠΎΠΆΠ½ΠΎΡΡΠΈ ΠΈ, ΠΏΡΠΈ Π½Π΅ΠΎΠ±Ρ ΠΎΠ΄ΠΈΠΌΠΎΡΡΠΈ, Π½Π°ΠΉΠΌΠΈΡΠ΅ ΠΏΡΠΎΡΠ΅ΡΡΠΈΠΎΠ½Π°Π»ΡΠ½ΠΎΠ³ΠΎ ΡΠ°Π±ΠΎΡΠ΅Π³ΠΎ.
ΠΠΎΡ ΠΏΠΎΠ΄ΡΠΎΠ±Π½ΡΠΉ ΡΠ²ΠΎΠ΄ ΠΏΡΠ°Π²ΠΈΠ», ΠΊΠΎΡΠΎΡΡΠΉ ΠΏΠΎΠΌΠΎΠΆΠ΅Ρ Π²Π°ΠΌ ΠΈΠ·Π±Π΅ΠΆΠ°ΡΡ ΠΏΠΎΠ΄Π²ΠΎΠ΄Π½ΡΡ ΠΊΠ°ΠΌΠ½Π΅ΠΉ ΠΈ ΠΏΡΠΎΠΈΠ·Π²Π΅ΡΡΠΈ ΠΏΠ΅ΡΠ΅Π΄Π΅Π»ΠΊΡ ΠΎΠ΄Π½ΠΎΠΊΠΎΠΌΠ½Π°ΡΠ½ΡΡ ΠΊΠ²Π°ΡΡΠΈΡ Π² ΠΎΠ΄Π½ΠΎΠΊΠΎΠΌΠ½Π°ΡΠ½ΡΡ :
- ΠΠ΅ΡΠ΅Π΄ Π½Π°ΡΠ°Π»ΠΎΠΌ ΡΠ°Π±ΠΎΡ Π½Π΅ΠΎΠ±Ρ ΠΎΠ΄ΠΈΠΌΠΎ ΡΠΎΠ±ΡΠ°ΡΡ ΠΊΠ°ΠΊ ΠΌΠΎΠΆΠ½ΠΎ Π±ΠΎΠ»ΡΡΠ΅ ΠΈΠ½ΡΠΎΡΠΌΠ°ΡΠΈΠΈ ΠΎ ΡΠ΅Ρ Π½ΠΈΡΠ΅ΡΠΊΠΎΠΌ ΡΠΎΡΡΠΎΡΠ½ΠΈΠΈ Π·Π΄Π°Π½ΠΈΡ.ΠΠ΅ΠΎΠ±Ρ ΠΎΠ΄ΠΈΠΌΠΎ, ΡΡΠΎΠ±Ρ ΠΏΠ΅ΡΠ΅ΠΏΠ»Π°Π½ΠΈΡΠΎΠ²ΠΊΠ° Π½Π΅ Π½Π°ΡΡΡΠ°Π»Π° ΠΎΠ±ΡΡΡ ΡΠ΅Π»ΠΎΡΡΠ½ΠΎΡΡΡ.
- ΠΡΠ΅Π½Ρ Π²Π°ΠΆΠ½ΠΎ ΠΏΠ΅ΡΠ΅Π΄ ΠΏΠ΅ΡΠ΅ΠΏΠ»Π°Π½ΠΈΡΠΎΠ²ΠΊΠΎΠΉ ΠΎΠ΄Π½ΠΎΠΊΠΎΠΌΠ½Π°ΡΠ½ΠΎΠΉ ΠΊΠ²Π°ΡΡΠΈΡΡ Π½Π° Π΄Π²ΡΡ ΠΊΠΎΠΌΠ½Π°ΡΠ½ΡΡ ΠΎΠ·Π½Π°ΠΊΠΎΠΌΠΈΡΡΡΡ ΡΠΎ ΡΡΡΠΎΠΈΡΠ΅Π»ΡΠ½ΡΠΌΠΈ Π½ΠΎΡΠΌΠ°ΠΌΠΈ. ΠΠ°ΡΠΈ ΠΈΠ·ΠΌΠ΅Π½Π΅Π½ΠΈΡ Π΄ΠΎΠ»ΠΆΠ½Ρ ΡΠΎΠΎΡΠ²Π΅ΡΡΡΠ²ΠΎΠ²Π°ΡΡ ΡΠ΅ΠΊΡΡΠΈΠΌ ΡΡΠ°Π½Π΄Π°ΡΡΠ°ΠΌ. Π ΠΏΡΠΎΡΠΈΠ²Π½ΠΎΠΌ ΡΠ»ΡΡΠ°Π΅ ΡΠ·Π°ΠΊΠΎΠ½ΠΈΡΡ ΠΏΡΠΎΠ΅ΠΊΡ Π½Π΅ ΠΏΠΎΠ»ΡΡΠΈΡΡΡ.
- ΠΡΠ΅ΠΆΠ΄Π΅ ΡΠ΅ΠΌ Π²ΠΎΠΏΠ»ΠΎΡΠΈΡΡ ΡΡΠΎΡ ΠΏΡΠΎΠ΅ΠΊΡ Π² ΠΆΠΈΠ·Π½Ρ, Π½Π΅ΠΎΠ±Ρ ΠΎΠ΄ΠΈΠΌΠΎ ΠΏΠΎΠ»ΡΡΠΈΡΡ ΡΠΎΠΎΡΠ²Π΅ΡΡΡΠ²ΡΡΡΠΈΠ΅ ΡΠ°Π·ΡΠ΅ΡΠ΅Π½ΠΈΡ. Π ΠΏΡΠΎΡΠΈΠ²Π½ΠΎΠΌ ΡΠ»ΡΡΠ°Π΅ Π²Π°Ρ ΠΌΠΎΠ³ΡΡ ΠΎΡΡΡΠ°ΡΠΎΠ²Π°ΡΡ ΠΈΠ»ΠΈ ΠΏΡΠΈΠ½ΡΠ΄ΠΈΡΡ Π²Π΅ΡΠ½ΡΡΡ ΠΊΠ²Π°ΡΡΠΈΡΡ Π² ΠΏΠ΅ΡΠ²ΠΎΠ½Π°ΡΠ°Π»ΡΠ½ΠΎΠ΅ ΡΠΎΡΡΠΎΡΠ½ΠΈΠ΅.
- ΠΡΠΈ ΡΠ΅Π°Π»ΠΈΠ·Π°ΡΠΈΠΈ ΠΏΡΠΎΠ΅ΠΊΡΠ° Π½Π΅ ΡΡΠΎΠΈΡ Π΄Π΅Π»Π°ΡΡ ΡΠ»ΠΈΡΠΊΠΎΠΌ ΠΆΠ΅ΡΡΠΊΠΈΡ Π³ΡΠ°ΡΠΈΠΊΠΎΠ².ΠΠ΅Π»ΠΎ Π² ΡΠΎΠΌ, ΡΡΠΎ ΠΏΠΎΡΡΡΠΎΠ΅Π½ΠΈΠ΅ ΡΠΎΡΡ-ΠΌΠ°ΠΆΠΎΡΠ½ΡΡ ΠΎΠ±ΡΡΠΎΡΡΠ΅Π»ΡΡΡΠ² — Π΄ΠΎΠ²ΠΎΠ»ΡΠ½ΠΎ ΠΎΠ±ΡΡΠ½ΠΎΠ΅ Π΄Π΅Π»ΠΎ. Π‘Π»Π΅Π΄ΠΎΠ²Π°ΡΠ΅Π»ΡΠ½ΠΎ, Ρ Π²Π°Ρ Π΄ΠΎΠ»ΠΆΠ΅Π½ Π±ΡΡΡ ΡΠ°Π·ΡΡΠ² Π²ΠΎ Π²ΡΠ΅ΠΌΠ΅Π½ΠΈ.
- ΠΡΠ»ΠΈ Π²Ρ ΡΠ΅ΡΠΈΠ»ΠΈ ΠΏΡΠΈΠ²Π»Π΅ΡΡ ΡΡΡΠΎΠΈΡΠ΅Π»Π΅ΠΉ ΠΏΡΠΈ ΠΏΠ΅ΡΠ΅ΠΏΠ»Π°Π½ΠΈΡΠΎΠ²ΠΊΠ΅ ΠΎΠ΄Π½ΠΎΠΊΠΎΠΌΠ½Π°ΡΠ½ΠΎΠΉ ΠΊΠ²Π°ΡΡΠΈΡΡ Π² ΠΎΠ΄Π½ΠΎΠΊΠΎΠΌΠ½Π°ΡΠ½ΡΡ, ΠΎΠ±ΡΠ·Π°ΡΠ΅Π»ΡΠ½ΠΎ ΡΠ±Π΅Π΄ΠΈΡΠ΅ΡΡ, ΡΡΠΎ Ρ Π½ΠΈΡ Π΅ΡΡΡ ΡΠΎΠΎΡΠ²Π΅ΡΡΡΠ²ΡΡΡΠ°Ρ Π΄ΠΎΠΊΡΠΌΠ΅Π½ΡΠ°ΡΠΈΡ Π΄Π»Ρ Π²Π΅Π΄Π΅Π½ΠΈΡ ΡΡΡΠΎΠΈΡΠ΅Π»ΡΠ½ΡΡ ΡΠ°Π±ΠΎΡ.
- Π Π½Π΅ΠΊΠΎΡΠΎΡΡΡ ΡΠ»ΡΡΠ°ΡΡ Π±ΠΎΠ»Π΅Π΅ ΡΠ°Π·ΡΠΌΠ½ΡΠΌ ΡΠ΅ΡΠ΅Π½ΠΈΠ΅ΠΌ Π±ΡΠ΄Π΅Ρ ΠΎΠ±ΡΠ°ΡΠΈΡΡΡΡ Π² ΡΠΏΠ΅ΡΠΈΠ°Π»ΠΈΠ·ΠΈΡΠΎΠ²Π°Π½Π½ΠΎΠ΅ Π°ΡΡ ΠΈΡΠ΅ΠΊΡΡΡΠ½ΠΎΠ΅ Π±ΡΡΠΎ, Π³Π΄Π΅ ΡΠΎΠ³Π»Π°ΡΠ½ΠΎ Π²Π°ΡΠΈΠΌ ΠΏΠΎΠΆΠ΅Π»Π°Π½ΠΈΡΠΌ Π²ΠΎΠΏΠ»ΠΎΡΡΡ ΠΏΡΠΎΠ΅ΠΊΡ Π² ΠΆΠΈΠ·Π½Ρ. ΠΡΠΎ ΠΏΠΎΠ·Π²ΠΎΠ»ΠΈΡ Π²Π°ΠΌ ΡΡΠΊΠΎΠ½ΠΎΠΌΠΈΡΡ Π²ΡΠ΅ΠΌΡ.ΠΡΠΎΠΌΠ΅ ΡΠΎΠ³ΠΎ, ΠΏΡΠΎΡΠ΅ΡΡΠΈΠΎΠ½Π°Π»ΡΠ½ΡΠ΅ ΠΈΠ½ΠΆΠ΅Π½Π΅ΡΡ, Π΄ΠΈΠ·Π°ΠΉΠ½Π΅ΡΡ ΠΈ Π°ΡΡ ΠΈΡΠ΅ΠΊΡΠΎΡΡ ΡΡΡΡΡ Π²ΡΠ΅ Π½ΡΠ°Π½ΡΡ ΠΎΠ΄Π½ΠΎΠΊΠΎΠΌΠ½Π°ΡΠ½ΠΎΠΉ ΠΊΠ²Π°ΡΡΠΈΡΡ ΠΈ ΡΠ΄Π΅Π»Π°ΡΡ Π΅Π΅ ΠΎΠ΄Π½ΠΎΠΊΠΎΠΌΠ½Π°ΡΠ½ΠΎΠΉ.
ΠΠ°ΠΊ Π²ΠΈΠ΄ΠΈΡΠ΅, ΡΡΠΎΠ±Ρ ΠΏΡΠ΅Π²ΡΠ°ΡΠΈΡΡ ΠΎΠ΄Π½ΠΎΠΊΠΎΠΌΠ½Π°ΡΠ½ΡΡ ΠΊΠ²Π°ΡΡΠΈΡΡ Π² ΠΎΠ΄Π½ΠΎΠΊΠΎΠΌΠ½Π°ΡΠ½ΡΡ, Ρ Π²Π°Ρ Π΄ΠΎΠ»ΠΆΠ΅Π½ Π±ΡΡΡ ΡΠ΅ΡΠΊΠΈΠΉ ΠΏΠ»Π°Π½, ΠΊΠΎΡΠΎΡΡΠΉ ΠΏΠΎΠ·Π²ΠΎΠ»ΠΈΡ Π²Π°ΠΌ ΡΠ΅Π°Π»ΠΈΠ·ΠΎΠ²Π°ΡΡ Π·Π°Π΄ΡΠΌΠ°Π½Π½ΠΎΠ΅. ΠΠΎ ΡΡΠΈΠΌ Π½Π΅ ΠΎΠ³ΡΠ°Π½ΠΈΡΠΈΠ²Π°Π΅ΡΡΡ. Π Π΅Π°Π»ΠΈΠ·Π°ΡΠΈΡ — ΡΠΎΠΆΠ΅ Π½Π΅ΠΏΡΠΎΡΡΠ°Ρ Π·Π°Π΄Π°ΡΠ°.
ΠΠ°ΡΠ°ΡΡ ΡΠ»Π΅Π΄ΡΠ΅Ρ Ρ ΠΎΡΠΌΠΎΡΡΠ° ΡΡΡΠ΅ΡΡΠ²ΡΡΡΠ΅Π³ΠΎ ΠΏΠΎΠΌΠ΅ΡΠ΅Π½ΠΈΡ. Π Π·Π°Π²ΠΈΡΠΈΠΌΠΎΡΡΠΈ ΠΎΡ Π΅Π³ΠΎ Ρ Π°ΡΠ°ΠΊΡΠ΅ΡΠΈΡΡΠΈΠΊ Π»ΡΡΡΠΈΠΌ Π±ΡΠ΄Π΅Ρ ΡΠΎΡ ΠΈΠ»ΠΈ ΠΈΠ½ΠΎΠΉ Π²Π°ΡΠΈΠ°Π½Ρ.ΠΠ°ΠΏΡΠΈΠΌΠ΅Ρ, Π΅ΡΠ»ΠΈ Ρ Π²Π°Ρ Π΅ΡΡΡ ΡΠ²ΠΎΠ±ΠΎΠ΄Π½ΡΠ΅ ΠΌΠ΅ΡΡΠ° Π΄Π»Ρ Ρ ΡΠ°Π½Π΅Π½ΠΈΡ Π²Π΅ΡΠ΅ΠΉ, ΠΌΠΎΠΆΠ½ΠΎ ΠΏΠ΅ΡΠ΅Π½Π΅ΡΡΠΈ ΠΊΡΡ Π½Ρ. Π ΡΠ΅Π·ΡΠ»ΡΡΠ°ΡΠ΅ Π²Ρ ΠΎΡΠ²ΠΎΠ±ΠΎΠ΄ΠΈΡΠ΅ ΡΠ²ΠΎΠ±ΠΎΠ΄Π½ΠΎΠ΅ ΠΏΡΠΎΡΡΡΠ°Π½ΡΡΠ²ΠΎ, ΠΈ Π²Ρ ΡΠΌΠΎΠΆΠ΅ΡΠ΅ ΡΠ΄Π΅Π»Π°ΡΡ ΡΠΏΠ°Π»ΡΠ½Ρ, Π° Π²ΡΠΎΡΡΡ ΠΊΠΎΠΌΠ½Π°ΡΡ, ΠΎΡΠ΄Π΅Π»Π΅Π½Π½ΡΡ ΠΏΠ΅ΡΠ΅Π³ΠΎΡΠΎΠ΄ΠΊΠΎΠΉ, ΡΠ΄Π΅Π»Π°ΡΡ Π³ΠΎΡΡΠΈΠ½ΠΎΠΉ.
ΠΠ»Ρ ΡΠ²Π΅Π»ΠΈΡΠ΅Π½ΠΈΡ ΠΎΠ±ΡΠ΅ΠΉ ΠΏΠ»ΠΎΡΠ°Π΄ΠΈ ΠΊΠ°ΠΆΠ΄ΠΎΠΉ ΠΊΠΎΠΌΠ½Π°ΡΡ ΠΌΠΎΠΆΠ½ΠΎ ΡΠ½Π΅ΡΡΠΈ ΡΡΠ΅Π½Ρ ΠΊΠΎΡΠΈΠ΄ΠΎΡΠ° ΠΈ ΡΠΎΠ΅Π΄ΠΈΠ½ΠΈΡΡ Π΅Π³ΠΎ Ρ Π±Π°Π»ΠΊΠΎΠ½ΠΎΠΌ. ΠΡΡΠ°ΡΠΈ, ΡΡΠΎΠ±Ρ ΡΠ΄Π΅Π»Π°ΡΡ Π΄Π²Π΅ ΠΏΠΎΠ»Π½ΠΎΡΠ΅Π½Π½ΡΠ΅ ΠΊΠΎΠΌΠ½Π°ΡΡ, Π½Π΅ ΠΎΠ±ΡΠ·Π°ΡΠ΅Π»ΡΠ½ΠΎ Π²ΠΎΠ·Π²ΠΎΠ΄ΠΈΡΡ ΡΡΠ°Π½Π΄Π°ΡΡΠ½ΡΡ ΡΡΠ΅Π½Ρ. ΠΠΎΠΆΠ½ΠΎ ΠΏΡΠΈΠ±Π΅Π³Π½ΡΡΡ ΠΊ Π·ΠΎΠ½ΠΈΡΠΎΠ²Π°Π½ΠΈΡ. ΠΡΠ°ΠΊ, ΠΊΡΡ Π½Ρ ΠΎΡ ΡΠΏΠ°Π»ΡΠ½ΠΈ Π»Π΅Π³ΠΊΠΎ ΠΎΡΠ΄Π΅Π»ΠΈΡΡ Π±Π°ΡΠ½ΠΎΠΉ ΡΡΠΎΠΉΠΊΠΎΠΉ ΠΈΠ»ΠΈ ΠΏΠΎΠ»ΠΊΠΎΠΉ Π΄Π»Ρ ΠΊΠ½ΠΈΠ³.ΠΠ° ΡΠ°ΠΌΠΎΠΌ Π΄Π΅Π»Π΅ Π²Π°ΡΠΈΠ°Π½ΡΠΎΠ² Π±ΠΎΠ»Π΅Π΅ ΡΠ΅ΠΌ Π΄ΠΎΡΡΠ°ΡΠΎΡΠ½ΠΎ.
Π’Π°ΠΊΠΆΠ΅, ΡΠΎΠ·Π΄Π°Π²Π°Ρ ΠΎΠ΄Π½ΠΎΠΊΠΎΠΌΠ½Π°ΡΠ½ΡΡ ΠΊΠ²Π°ΡΡΠΈΡΡ ΠΈΠ· ΠΎΠ΄Π½ΠΎΠΊΠΎΠΌΠ½Π°ΡΠ½ΠΎΠΉ, Π½Π΅ Π·Π°Π±ΡΠ²Π°ΠΉΡΠ΅ ΠΎ Π²Π°Π½Π½ΠΎΠΉ ΠΊΠΎΠΌΠ½Π°ΡΠ΅. ΠΠ΅Π΄Ρ ΡΡΠΎ ΡΠ²ΠΎΠ±ΠΎΠ΄Π½ΠΎΠ΅ ΠΌΠ΅ΡΡΠΎ, ΠΊΠΎΡΠΎΡΠΎΠ΅ ΡΠ΅Π°Π»ΡΠ½ΠΎ ΠΌΠΎΠΆΠ½ΠΎ ΠΈΡΠΏΠΎΠ»ΡΠ·ΠΎΠ²Π°ΡΡ ΠΏΠΎ ΠΌΠ°ΠΊΡΠΈΠΌΡΠΌΡ.
ΠΠ°ΠΏΡΠΈΠΌΠ΅Ρ, Π΅ΡΠ»ΠΈ Π²Π°ΡΠ° Π²Π°Π½Π½Π°Ρ ΠΊΠΎΠΌΠ½Π°ΡΠ° ΡΠ°Π·Π΄Π΅Π»Π΅Π½Π°, Π΅Π΅ ΠΌΠΎΠΆΠ½ΠΎ ΠΎΠ±ΡΠ΅Π΄ΠΈΠ½ΠΈΡΡ. ΠΡΠΎ ΠΏΠΎΠΌΠΎΠΆΠ΅Ρ Π·Π½Π°ΡΠΈΡΠ΅Π»ΡΠ½ΠΎ ΡΡΠΊΠΎΠ½ΠΎΠΌΠΈΡΡ ΠΌΠ΅ΡΡΠΎ, ΠΏΡΠ΅Π²ΡΠ°ΡΠΈΡΡ Π΄Π²ΡΡ ΠΊΠΎΠΌΠ½Π°ΡΠ½ΡΡ ΠΊΠ²Π°ΡΡΠΈΡΡ ΠΈΠ· ΡΡΡΠ΄ΠΈΠΈ.
Π§ΡΠΎΠ±Ρ Π΄ΠΎΠ±ΠΈΡΡΡΡ Π·ΡΠΈΡΠ΅Π»ΡΠ½ΠΎ ΡΠ°ΡΡΠΈΡΠΈΡΡ ΠΏΡΠΎΡΡΡΠ°Π½ΡΡΠ²ΠΎ Π² Π²Π°ΡΠ΅ΠΉ ΠΎΠ΄Π½ΠΎΠΊΠΎΠΌΠ½Π°ΡΠ½ΠΎΠΉ ΠΊΠ²Π°ΡΡΠΈΡΠ΅, ΠΏΠ΅ΡΠ΅Π΄Π΅Π»Π°Π½Π½ΠΎΠΉ ΠΈΠ· ΡΡΡΠ΄ΠΈΠΈ, ΠΌΠΎΠΆΠ½ΠΎ ΠΈΡΠΏΠΎΠ»ΡΠ·ΠΎΠ²Π°ΡΡ ΠΎΡΠ²Π΅ΡΠ΅Π½ΠΈΠ΅.ΠΡΠ°Π²ΠΈΠ»ΡΠ½ΠΎ ΡΠ°ΡΠΏΠΎΠ»ΠΎΠΆΠ΅Π½Π½ΡΠ΅ ΡΠ²Π΅ΡΠΎΠ΄ΠΈΠΎΠ΄Π½ΡΠ΅ ΡΠ»Π΅ΠΌΠ΅Π½ΡΡ ΠΏΠΎΠΌΠΎΠ³ΡΡ ΡΠ±ΡΠ°ΡΡ ΡΠ΅ΠΌΠ½ΡΠ΅ ΡΠ³Π»Ρ, Β«ΠΏΠΎΠΆΠΈΡΠ°ΡΡΠΈΠ΅Β» ΡΠ²ΠΎΠ±ΠΎΠ΄Π½ΠΎΠ΅ ΠΏΡΠΎΡΡΡΠ°Π½ΡΡΠ²ΠΎ.
ΠΠ° ΡΠ°ΠΌΠΎΠΌ Π΄Π΅Π»Π΅ ΡΡΡΠ΅ΡΡΠ²ΡΠ΅Ρ ΠΌΠ½ΠΎΠΆΠ΅ΡΡΠ²ΠΎ ΠΏΡΠΎΠ²Π΅ΡΠ΅Π½Π½ΡΡ ΠΏΡΠΈΠ΅ΠΌΠΎΠ², ΠΏΠΎΠ·Π²ΠΎΠ»ΡΡΡΠΈΡ Π²ΠΈΠ·ΡΠ°Π»ΡΠ½ΠΎ ΡΠ²Π΅Π»ΠΈΡΠΈΡΡ ΠΏΠ»ΠΎΡΠ°Π΄Ρ ΠΊΠ²Π°ΡΡΠΈΡΡ-ΡΡΡΠ΄ΠΈΠΈ, ΠΏΡΠ΅Π²ΡΠ°ΡΠ΅Π½Π½ΠΎΠΉ Π² ΠΎΠ΄Π½ΠΎΠΊΠΎΠΌΠ½Π°ΡΠ½ΡΡ, ΠΊ Π½ΠΈΠΌ ΠΎΡΠ½ΠΎΡΡΡΡΡ:
- ΡΡΠΊΠΈΠ΅ ΡΠ²Π΅ΡΠ° Π² ΠΈΠ½ΡΠ΅ΡΡΠ΅ΡΠ΅;
- ΡΡΡΠ°Π½ΠΎΠ²ΠΊΠ° Π·Π΅ΡΠΊΠ°Π»;
- ΠΈΠ·Π±Π΅Π³Π°Π½ΠΈΠ΅ ΠΎΡΡΡΡΡ ΡΠ³Π»ΠΎΠ².
ΠΠ΅ΠΎΠ±Ρ ΠΎΠ΄ΠΈΠΌΠΎ ΡΠ΄Π΅Π»Π°ΡΡ ΠΎΠ΄Π½ΠΎ Π²Π°ΠΆΠ½ΠΎΠ΅ Π·Π°ΠΌΠ΅ΡΠ°Π½ΠΈΠ΅ ΠΏΠΎ ΠΏΠΎΠ²ΠΎΠ΄Ρ ΠΏΠ΅ΡΠ΅ΠΏΠ»Π°Π½ΠΈΡΠΎΠ²ΠΊΠΈ ΠΎΠ΄Π½ΠΎΠΊΠΎΠΌΠ½Π°ΡΠ½ΠΎΠΉ ΠΊΠ²Π°ΡΡΠΈΡΡ Ρ Π³Π°Π·ΠΎΠ²ΠΎΠΉ ΠΏΠ»ΠΈΡΠΎΠΉ.ΠΠ΅Π»ΠΎ Π² ΡΠΎΠΌ, ΡΡΠΎ ΠΏΠ΅ΡΠ΅Π½Π΅ΡΡΠΈ ΠΊΡΡ Π½Ρ Π² ΠΊΠ»Π°Π΄ΠΎΠ²ΡΡ ΠΌΠΎΠΆΠ½ΠΎ ΡΠΎΠ»ΡΠΊΠΎ ΠΏΡΠΈ Π½Π°Π»ΠΈΡΠΈΠΈ ΡΠ»Π΅ΠΊΡΡΠΈΡΠ΅ΡΠΊΠΎΠ³ΠΎ Π°Π³ΡΠ΅Π³Π°ΡΠ°.
ΠΠ°ΡΠΈΠ°Π½Ρ β1 — ΠΈΠ· ΠΊΡΡ Π½ΠΈ Π² ΠΊΠΎΠΌΠ½Π°ΡΡ β
ΠΠΎΠ³Π΄Π° Π²Ρ Π²Π»Π°Π΄Π΅Π΅ΡΠ΅ ΠΎΠ΄Π½ΠΎΠΊΠΎΠΌΠ½Π°ΡΠ½ΠΎΠΉ ΠΊΠ²Π°ΡΡΠΈΡΠΎΠΉ ΠΈ ΡΠ΅ΡΠΈΠ»ΠΈ ΡΠ΄Π΅Π»Π°ΡΡ ΠΏΠ΅ΡΠ΅ΠΏΠ»Π°Π½ΠΈΡΠΎΠ²ΠΊΡ Π² ΠΎΠ΄Π½ΠΎΠΊΠΎΠΌΠ½Π°ΡΠ½ΡΡ, ΡΠ΄ΠΎΠ±Π½Π΅Π΅ Π²ΡΠ΅Π³ΠΎ Π±ΡΠ΄Π΅Ρ ΠΈΡΠΏΠΎΠ»ΡΠ·ΠΎΠ²Π°ΡΡ ΡΠ²ΠΎΠ±ΠΎΠ΄Π½ΡΠ΅ ΠΏΠ°ΡΠ°ΠΌΠ΅ΡΡΡ, ΡΠΎ Π΅ΡΡΡ ΠΊΡΡ Π½Ρ.
ΠΠ°ΠΆΠ½ΠΎ! Π Π±ΠΎΠ»ΡΡΠΈΠ½ΡΡΠ²Π΅ ΡΠ»ΡΡΠ°Π΅Π² ΡΡΠ΅Π½Π°, ΡΠ°Π·Π΄Π΅Π»ΡΡΡΠ°Ρ ΠΊΡΡ Π½Ρ ΠΈ Π²Π°Π½Π½ΡΡ ΠΊΠΎΠΌΠ½Π°ΡΡ, ΡΠ²Π»ΡΠ΅ΡΡΡ ΠΌΠ°ΠΆΠΎΡΠ½ΠΎΠΉ. ΠΠΎΡΡΠΎΠΌΡ ΠΎΡΠ½Π΅ΡΡΠΈ Π΅Π³ΠΎ Π½Π΅ ΡΠΎΡΡΠ°Π²ΠΈΡ ΡΡΡΠ΄Π°.
ΠΠ°ΡΠΈΠ°Π½Ρ ΠΏΠ΅ΡΠ΅ΠΏΠ»Π°Π½ΠΈΡΠΎΠ²ΠΊΠΈ Π² ΡΡΠ΅Ρ ΠΊΠΎΠΌΠ½Π°ΡΠ½ΠΎΠΌ Π΄ΠΎΠΌΠ΅ Π΄ΠΎΡΡΠ°ΡΠΎΡΠ½ΠΎ ΠΏΡΠΎΡΡ.ΠΡΠΎΡΡΠΎ ΠΈΠ· ΠΊΡΡ Π½ΠΈ Π²Ρ Π΄Π΅Π»Π°Π΅ΡΠ΅ Π²ΡΠΎΡΡΡ ΠΊΠΎΠΌΠ½Π°ΡΡ. ΠΠ΅ Π·Π°Π±ΡΠ²Π°Π΅ΠΌ ΠΏΡΠΎ ΠΊΠ°ΠΏΡΡΠΎΠ½. Π ΠΏΡΠΎΡΠΈΠ²Π½ΠΎΠΌ ΡΠ»ΡΡΠ°Π΅ Π·Π°ΠΏΠ°Ρ ΠΈ Π³ΠΎΡΠΎΠ²ΡΡΠ΅ΠΉΡΡ Π΅Π΄Ρ Π½Π΅ Π΄Π°Π΄ΡΡ Π²Π°ΠΌ ΡΠ°ΡΡΠ»Π°Π±ΠΈΡΡΡΡ.
ΠΡΠ»ΠΈ Π΅ΡΡΡ Π±Π°Π»ΠΊΠΎΠ½, ΡΠΎ Π·Π° ΡΡΠ΅Ρ Π΅Π³ΠΎ ΠΏΠ»ΠΎΡΠ°Π΄ΠΈ Π²ΠΎΠ·ΠΌΠΎΠΆΠ½ΠΎ Π΄Π°Π»ΡΠ½Π΅ΠΉΡΠ΅Π΅ ΡΠ²Π΅Π»ΠΈΡΠ΅Π½ΠΈΠ΅ ΠΆΠΈΠ»ΠΎΠΉ ΠΏΠ»ΠΎΡΠ°Π΄ΠΈ. Π’Π°ΠΊΠΈΠΌ ΠΎΠ±ΡΠ°Π·ΠΎΠΌ, ΠΌΠ΅ΡΡΠ° Π±ΡΠ»ΠΎ Π±Ρ Π½Π°ΠΌΠ½ΠΎΠ³ΠΎ Π±ΠΎΠ»ΡΡΠ΅. Π ΡΠ°ΠΊΠΈΡ ΡΡΠ»ΠΎΠ²ΠΈΡΡ ΡΡΠΎ Π±ΠΎΠ»Π΅Π΅ ΡΠ΅ΠΌ Π»ΡΡΡΠ΅Π΅ ΡΠ΅ΡΠ΅Π½ΠΈΠ΅.
ΠΠ°ΡΠΈΠ°Π½Ρ β2 — ΡΠ΄Π΅Π»Π°ΡΡ ΠΊΡΡ Π½Ρ ΠΌΠ΅Π½ΡΡΠ΅ β
Π‘ΠΎΠ²ΡΠ΅ΠΌΠ΅Π½Π½ΡΠ΅ ΠΎΠ΄Π½ΠΎΠΊΠΎΠΌΠ½Π°ΡΠ½ΡΠ΅ Π°ΠΏΠ°ΡΡΠ°ΠΌΠ΅Π½ΡΡ ΠΈΠΌΠ΅ΡΡ Π΄ΠΎΠ²ΠΎΠ»ΡΠ½ΠΎ Π±ΠΎΠ»ΡΡΡΡ ΠΊΡΡ Π½Ρ. ΠΠΎ Π΅ΡΠ»ΠΈ Π²Ρ Ρ ΠΎΡΠΈΡΠ΅ ΠΏΠΎΠ»ΡΡΠΈΡΡ Π΄Π²ΡΡ ΠΊΠΎΠΌΠ½Π°ΡΠ½ΡΡ ΠΊΠ²Π°ΡΡΠΈΡΡ, ΡΠΎ ΡΡΡ ΡΠΎΡΠΊΠΎΡΡ ΠΏΡΠΈΠ΄Π΅ΡΡΡ ΠΎΡΠ΄Π°ΡΡ.ΠΡΡ Π½Ρ ΠΌΠΎΠΆΠ½ΠΎ Π½Π΅ΠΌΠ½ΠΎΠ³ΠΎ ΠΎΠ±ΡΠ΅Π·Π°ΡΡ, Π½ΠΎ Π½Π΅ΠΎΠ±Ρ ΠΎΠ΄ΠΈΠΌΠΎ ΡΠ°ΡΡΠΈΡΠΈΡΡ Π±Π°Π»ΠΊΠΎΠ½. ΠΠ΄Π΅ΡΡ Ρ Π²Π°Ρ Π±ΡΠ΄Π΅Ρ ΡΠΏΠ°Π»ΡΠ½Ρ.
Π ΠΏΡΠΎΡΠ΅ΡΡΠ΅ ΡΠ°ΠΊΠΈΡ ΠΏΠ΅ΡΠ΅Π΄Π΅Π»ΠΎΠΊ ΡΠ°ΡΡΠΈΡΠ½ΠΎ ΡΠ½Π΅ΡΠ΅Π½Ρ ΡΡΠ΅Π½Ρ. ΠΠ»Π°Π³ΠΎΠ΄Π°ΡΡ ΡΡΠΎΠΌΡ Ρ Π²Π°Ρ Π΅ΡΡΡ ΡΠΎΡΠΌΠ°Π»ΡΠ½ΠΎΠ΅ ΡΠ°Π·Π΄Π΅Π»Π΅Π½ΠΈΠ΅ ΠΌΠ΅ΠΆΠ΄Ρ Π³ΠΎΡΡΠΈΠ½ΠΎΠΉ ΠΈ ΠΊΡΡ Π½Π΅ΠΉ. ΠΡΠΎΠ±ΠΎΠ΅ Π²Π½ΠΈΠΌΠ°Π½ΠΈΠ΅ Π² ΡΡΠΎΠΌ ΠΏΡΠΎΠ΅ΠΊΡΠ΅ ΡΡΠΎΠΈΡ ΡΠ΄Π΅Π»ΠΈΡΡ ΠΎΠ±ΠΎΡΡΠ΄ΠΎΠ²Π°Π½ΠΈΡ Π±Π°Π»ΠΊΠΎΠ½Π°.
ΠΠ»Ρ ΡΠΎΠ·Π΄Π°Π½ΠΈΡ Π΄ΠΎΡΡΠΎΠΉΠ½ΠΎΠΉ ΡΠΏΠ°Π»ΡΠ½ΠΈ Π² Π²Π°ΡΠ΅ΠΉ Π½ΠΎΠ²ΠΎΠΉ Π΄Π²ΡΡ ΠΊΠΎΠΌΠ½Π°ΡΠ½ΠΎΠΉ ΠΊΠ²Π°ΡΡΠΈΡΠ΅ Π½Π° Π±Π°Π»ΠΊΠΎΠ½Π΅ ΠΏΠΎΡΡΠ΅Π±ΡΠ΅ΡΡΡ ΡΠ΄Π΅Π»Π°ΡΡ ΠΏΠΎΠ΄ΠΈΡΠΌ. ΠΠΎΠ½Π΅ΡΠ½ΠΎ, Π±Π΅Π· ΠΎΡΡΠ΅ΠΊΠ»Π΅Π½ΠΈΡ Π½Π΅ ΠΏΠΎΠ»ΡΡΠΈΡΡΡ.ΠΡΠΈΡΠ΅ΠΌ ΡΡΠ΅Π½Ρ Π½ΡΠΆΠ½ΠΎ ΡΡΠ΅ΠΏΠ»ΠΈΡΡ. Π ΠΈΠ΄Π΅Π°Π»Π΅ ΠΏΠΎΠ»Ρ Π΄ΠΎΠ»ΠΆΠ½Ρ Π±ΡΡΡ ΠΎΠ±ΠΎΡΡΠ΄ΠΎΠ²Π°Π½Ρ ΠΏΠΎΠ΄ΠΎΠ³ΡΠ΅Π²ΠΎΠΌ. Π’ΠΎΠ»ΡΠΊΠΎ ΠΏΡΠΈ ΡΠΎΠ±Π»ΡΠ΄Π΅Π½ΠΈΠΈ ΡΡΠΈΡ ΡΡΠ»ΠΎΠ²ΠΈΠΉ ΠΏΠ΅ΡΠ΅ΠΏΠ»Π°Π½ΠΈΡΠΎΠ²ΠΊΠ° Π±ΡΠ΄Π΅Ρ ΡΡΠΏΠ΅ΡΠ½ΠΎΠΉ.
ΠΠ°ΡΠΈΠ°Π½Ρ β3 — ΡΠ½ΠΎΠ²Π° ΡΠΏΠ°ΡΡ Π½Π° Π±Π°Π»ΠΊΠΎΠ½Π΅ β
ΠΡΠ° ΠΏΠ΅ΡΠ΅ΠΏΠ»Π°Π½ΠΈΡΠΎΠ²ΠΊΠ° Π΄Π²ΡΡ ΠΊΠΎΠΌΠ½Π°ΡΠ½ΠΎΠΉ ΠΊΠ²Π°ΡΡΠΈΡΡ Π² Π΄Π²ΡΡ ΠΊΠΎΠΌΠ½Π°ΡΠ½ΡΡ ΠΎΡΠ΅Π½Ρ ΠΏΠΎΡ ΠΎΠΆΠ° Π½Π° ΠΏΠ΅ΡΠ²ΡΡ. ΠΠ° ΠΎΠ΄Π½ΠΈΠΌ ΠΈΡΠΊΠ»ΡΡΠ΅Π½ΠΈΠ΅ΠΌ. ΠΠ΄Π΅ΡΡ ΡΠΏΠ°Π»ΡΠ½Ρ ΠΈ Π²ΡΠΎΡΠ°Ρ ΠΊΠΎΠΌΠ½Π°ΡΠ° Π±ΡΠ΄ΡΡ ΠΏΠΎΠ»Π½ΠΎΡΡΡΡ ΡΠ°Π·Π΄Π΅Π»Π΅Π½Ρ ΠΏΠ΅ΡΠ΅Π³ΠΎΡΠΎΠ΄ΠΊΠΎΠΉ.
Π ΡΡΠΎΠΉ Π²ΡΠΎΡΠΎΠΉ ΠΊΠΎΠΌΠ½Π°ΡΠ΅ ΠΌΠΎΠΆΠ½ΠΎ Π±ΡΠ΄Π΅Ρ ΠΎΠ±ΡΠ΅Π΄ΠΈΠ½ΠΈΡΡ Π³ΠΎΡΡΠΈΠ½ΡΡ ΠΈ ΠΊΡΡ Π½Ρ.ΠΠΎΠ΄ΠΈΡΠΌ Π½ΡΠΆΠ½ΠΎ Π±ΡΠ΄Π΅Ρ Π·Π°ΠΊΡΡΡΡ Π½Π΅ΠΏΡΠΎΠ·ΡΠ°ΡΠ½ΡΠΌ ΡΡΠ΅ΠΊΠ»ΠΎΠΌ. ΠΠΎ ΠΌΠΎΠΆΠ½ΠΎ ΠΈΡΠΏΠΎΠ»ΡΠ·ΠΎΠ²Π°ΡΡ ΠΏΠ΅ΡΠ΅Π³ΠΎΡΠΎΠ΄ΠΊΡ. ΠΡΠΎΡ Π²Π°ΡΠΈΠ°Π½Ρ ΠΏΠ΅ΡΠ΅ΠΏΠ»Π°Π½ΠΈΡΠΎΠ²ΠΊΠΈ ΠΏΠΎΠ½ΡΠ°Π²ΠΈΡΡΡ ΡΠ΅ΠΌ, ΠΊΡΠΎ Ρ ΠΎΡΠ΅Π» ΡΡΠ½ΡΡΡ, Π³Π»ΡΠ΄Ρ Π½Π° Π½ΠΎΡΠ½ΠΎΠΉ Π³ΠΎΡΠΎΠ΄.
Π‘ΠΎΠ²Π΅Ρ! ΠΠΌΠ΅ΡΡΠΎ ΡΠΏΠ°Π»ΡΠ½ΠΈ Π½Π° Π±Π°Π»ΠΊΠΎΠ½Π΅ ΠΌΠΎΠΆΠ½ΠΎ Π·Π°Π½ΡΡΡΡΡ ΠΊΠ°Π±ΠΈΠ½Π΅ΡΠΎΠΌ. Π ΡΠ²ΠΎΡ ΠΎΡΠ΅ΡΠ΅Π΄Ρ, ΡΠΏΠ°Π»ΡΠ½Ρ ΡΠΎΠ²ΠΌΠ΅ΡΠ΅Π½Π° Ρ ΠΊΡΡ Π½Π΅ΠΉ.
ΠΠ»Π°Π²Π½ΠΎΠ΅ ΠΏΡΠ΅ΠΈΠΌΡΡΠ΅ΡΡΠ²ΠΎ ΡΠ°ΠΊΠΎΠ³ΠΎ Π²Π°ΡΠΈΠ°Π½ΡΠ° ΠΏΠ΅ΡΠ΅ΠΏΠ»Π°Π½ΠΈΡΠΎΠ²ΠΊΠΈ ΠΎΠ΄Π½ΠΎΠΊΠΎΠΌΠ½Π°ΡΠ½ΠΎΠΉ ΠΊΠ²Π°ΡΡΠΈΡΡ Π² ΠΎΠ΄Π½ΠΎΠΊΠΎΠΌΠ½Π°ΡΠ½ΡΡ — Π΄Π΅ΡΠ΅Π²ΠΈΠ·Π½Π°. Π’Π°ΠΊΠΎΠ΅ ΠΆΠΈΠ»ΠΎΠ΅ ΠΏΡΠΎΡΡΡΠ°Π½ΡΡΠ²ΠΎ ΠΏΠΎ ΠΊΠ°ΡΠΌΠ°Π½Ρ ΠΌΠΎΠ»ΠΎΠ΄ΠΎΠΉ ΠΏΠ°ΡΠ΅.
ΠΠ΅ΡΠ΅ΠΏΠ»Π°Π½ΠΈΡΠΎΠ²ΠΊΠ° ΠΈΠ· ΠΎΠ΄Π½ΠΎΠΊΠΎΠΌΠ½Π°ΡΠ½ΠΎΠΉ ΠΊΠ²Π°ΡΡΠΈΡΡ Π½Π° Π΄Π²Π΅ — Π±ΠΎΠ»Π΅Π΅ ΡΠ΅ΠΌ ΡΠ΅Π°Π»ΡΠ½ΡΠΉ Π²ΡΠ·ΠΎΠ².Π‘ΠΎΠ²ΡΠ΅ΠΌΠ΅Π½Π½ΡΠ΅ ΠΌΠ°ΡΠ΅ΡΠΈΠ°Π»Ρ ΠΈ ΠΏΡΠ°Π²ΠΈΠ»ΡΠ½ΡΠΉ Π΄ΠΈΠ·Π°ΠΉΠ½ ΠΏΠΎΠ·Π²ΠΎΠ»ΡΡΡ Ρ ΠΌΠ°ΠΊΡΠΈΠΌΠ°Π»ΡΠ½ΡΠΌ ΠΊΠΎΠΌΡΠΎΡΡΠΎΠΌ ΠΎΡΠ³Π°Π½ΠΈΠ·ΠΎΠ²Π°ΡΡ ΠΆΠΈΠ»ΠΎΠ΅ ΠΏΡΠΎΡΡΡΠ°Π½ΡΡΠ²ΠΎ Ρ ΠΌΠΈΠ½ΠΈΠΌΠ°Π»ΡΠ½ΡΠΌΠΈ Π·Π°ΡΡΠ°ΡΠ°ΠΌΠΈ.
Π‘Π²ΡΠ·Π°Π½Π½ΡΠ΅ Ρ ΠΊΠΎΠ½ΡΠ΅Π½ΡΠΎΠΌ
ΠΠ΅ΡΠ΅ΠΏΠ»Π°Π½ΠΈΡΠΎΠ²ΠΊΠ° Π΄Π²ΡΡ ΠΊΠΎΠΌΠ½Π°ΡΠ½ΠΎΠΉ ΠΊΠ²Π°ΡΡΠΈΡΡ Π΄Π²ΡΡ ΠΊΠΎΠΌΠ½Π°ΡΠ½Π°Ρ ΠΊΠ²Π°ΡΡΠΈΡΠ°, Π² Π‘ΡΡΠ΄ΠΈΠΈ: ΡΠΎΡΠΎ, ΠΏΡΠΎΠ΅ΠΊΡΡ
Π§Π°ΡΡΠΎ, ΡΡΠ°Π½ΠΎΠ²ΡΡΡ ΠΎΠ±Π»Π°Π΄Π°ΡΠ΅Π»ΡΠΌΠΈ ΠΎΠ΄Π½ΠΎΠΊΠΎΠΌΠ½Π°ΡΠ½ΠΎΠΉ ΠΊΠ²Π°ΡΡΠΈΡΡ Π±ΠΎΠ»ΡΡΠΎΠΉ ΠΌΠ΅ΡΡΠ°ΠΆΠ°, Π»ΡΠ΄ΠΈ ΡΡΡΠ΅ΠΌΡΡΡΡ ΡΠ°Π·Π΄Π΅Π»ΠΈΡΡ ΠΎΠ΄Π½Ρ Π±ΠΎΠ»ΡΡΡΡ ΠΊΠΎΠΌΠ½Π°ΡΡ, ΠΏΠΎΠ»ΡΡΠΈΠ² ΠΎΡ Π½Π΅Π΅ Π΄Π²Π΅ ΠΌΠ΅Π½ΡΡΠΈΠ΅.
ΠΡΠΎ Π½Π΅ ΡΠ°ΠΊ ΡΠ»ΠΎΠΆΠ½ΠΎ, ΠΊΠ°ΠΊ ΠΊΠ°ΠΆΠ΅ΡΡΡ Π½Π° ΠΏΠ΅ΡΠ²ΡΠΉ Π²Π·Π³Π»ΡΠ΄. ΠΠ΄ΠΈΠ½ΡΡΠ²Π΅Π½Π½ΠΎΠ΅ ΡΡΠ΅Π±ΠΎΠ²Π°Π½ΠΈΠ΅ — ΠΎΠΏΡΡ ΡΠΏΠ΅ΡΠΈΠ°Π»ΠΈΡΡΠΎΠ², Π²ΡΠΏΠΎΠ»Π½ΡΡΡΠΈΡ
ΡΠ΅ΠΌΠΎΠ½Ρ.ΠΠ΅ΠΉΡΡΠ²ΠΈΡΠ΅Π»ΡΠ½ΠΎ, ΠΈΠ½ΠΎΠ³Π΄Π° ΡΠ΅Π·ΡΠ»ΡΡΠ°Ρ Π±ΡΠ²Π°Π΅Ρ Π½Π΅ΡΠ΄ΠΎΠ²Π»Π΅ΡΠ²ΠΎΡΠΈΡΠ΅Π»ΡΠ½ΡΠΌ.
ΠΠΎΡΠ»Π΅ ΠΏΠ΅ΡΠ΅ΠΏΠ»Π°Π½ΠΈΡΠΎΠ²ΠΊΠΈ ΠΏΠΎ ΠΎΠΊΠΎΠ½ΡΠ°Π½ΠΈΠΈ Π²ΡΠ΅Ρ ΡΠ°Π±ΠΎΡ Π²Ρ ΡΡΠ°Π½Π΅ΡΠ΅ ΡΡΠ°ΡΡΠ»ΠΈΠ²ΡΠΌ ΠΎΠ±Π»Π°Π΄Π°ΡΠ΅Π»Π΅ΠΌ Π΄Π²ΡΡ Π½Π΅Π±ΠΎΠ»ΡΡΠΈΡ , Π½ΠΎ ΠΎΡΠ΄Π΅Π»ΡΠ½ΡΡ ΠΊΠΎΠΌΠ½Π°Ρ. ΠΡΠΈΠΌΠ΅Π½Π΅Π½ΠΈΠ΅ ΡΡΠΎΠ³ΠΎ ΡΠ°Π·Π΄Π΅Π»Π° ΠΌΠ½ΠΎΠΆΠ΅ΡΡΠ²ΠΎ: Π³ΠΎΡΡΠΈΠ½Π°Ρ ΠΈ Π΄Π΅ΡΡΠΊΠ°Ρ, Π³ΠΎΡΡΠΈΠ½Π°Ρ ΠΈ ΡΠΏΠ°Π»ΡΠ½Ρ, Π³ΠΎΡΡΠΈΠ½Π°Ρ ΠΈ ΠΎΡΠΈΡ.
ΠΠ° ΡΠ΅Π³ΠΎΠ΄Π½ΡΡΠ½ΠΈΠΉ Π΄Π΅Π½Ρ ΡΡΡΠ΅ΡΡΠ²ΡΠ΅Ρ ΠΌΠ½ΠΎΠΆΠ΅ΡΡΠ²ΠΎ ΡΠ°Π·Π»ΠΈΡΠ½ΡΡ Π²Π°ΡΠΈΠ°Π½ΡΠΎΠ² ΠΏΠ»Π°Π½ΠΈΡΠΎΠ²ΠΎΡΠ½ΡΡ ΡΠ΅ΡΠ΅Π½ΠΈΠΉ. ΠΡΠΈ ΠΏΡΠ°Π²ΠΈΠ»ΡΠ½ΠΎΠΌ ΠΏΠΎΠ΄Ρ ΠΎΠ΄Π΅ ΠΊ ΠΏΠ΅ΡΠ΅ΠΏΠ»Π°Π½ΠΈΡΠΎΠ²ΠΊΠ΅ ΠΌΠΎΠΆΠ½ΠΎ ΠΏΡΠΎΠ²Π΅ΡΡΠΈ ΠΏΠ΅ΡΠ΅ΠΎΠ±ΠΎΡΡΠ΄ΠΎΠ²Π°Π½ΠΈΠ΅ Π³ΡΠΎΠΌΠΎΠ·Π΄ΠΊΠΈΡ ΠΎΠ΄Π½ΠΎΠΊΠΎΠΌΠ½Π°ΡΠ½ΡΡ ΠΊΠ²Π°ΡΡΠΈΡ Π² ΡΠ΄ΠΎΠ±Π½ΠΎΠΌ ΠΌΠ΅ΡΡΠ΅ Π±Π΅Π· ΡΠΎΠ³Π»Π°ΡΠΎΠ²Π°Π½ΠΈΡ ΡΠ²ΠΎΠ΅ΠΉ ΡΠ°Π±ΠΎΡΡ Ρ ΠΌΠ½ΠΎΠΆΠ΅ΡΡΠ²ΠΎΠΌ ΠΎΡΠ³Π°Π½ΠΈΠ·Π°ΡΠΈΠΉ.
ΠΠ»Π°Π²Π½ΠΎΠ΅, ΡΡΠΎ ΡΡΠ΅Π±ΡΠ΅ΡΡΡ ΠΈΠ·Π±Π΅Π³Π°ΡΡ ΠΊΠΎΠ½ΡΠ°ΠΊΡΠ° Ρ ΠΊΠΎΠ½ΡΡΠΎΠ»ΠΈΡΡΡΡΠΈΠΌΠΈ ΠΎΡΠ³Π°Π½Π°ΠΌΠΈ, Π½Π΅ Π·Π°ΡΡΠ°Π³ΠΈΠ²Π°ΡΡ Π½Π΅ΡΡΡΠΈΠ΅ ΡΡΠ΅Π½Ρ.
ΠΡΠ΅ ΠΎΡΡΠ°Π»ΡΠ½ΡΠ΅ ΠΏΠ΅ΡΠ΅Π΄Π΅Π»ΠΊΠΈ, Π΄Π°ΠΆΠ΅ ΠΏΠΎΠ»Π½ΠΎΡΡΡΡ ΠΌΠ΅Π½ΡΡΡΠΈΠ΅ ΠΎΠ±Π»ΠΈΠΊ ΠΊΠ²Π°ΡΡΠΈΡΡ, Π·Π°Π²ΠΈΡΡΡ ΠΎΡ ΠΆΠ΅Π»Π°Π½ΠΈΡ Ρ ΠΎΠ·ΡΠΈΠ½Π°.
ΠΡΠ°ΠΊΡΠΈΡΠ΅ΡΠΊΠΈ Π²ΡΠ΅ ΠΎΠ΄Π½ΠΎΠΊΠΎΠΌΠ½Π°ΡΠ½ΡΠ΅ ΠΎΠ΄Π½ΠΎΠΊΠΎΠΌΠ½Π°ΡΠ½ΡΠ΅ ΠΊΠ²Π°ΡΡΠΈΡΡ Π²ΠΊΠ»ΡΡΠ°ΡΡ ΡΠΎΠ»ΡΠΊΠΎ ΠΎΠ΄Π½Ρ ΡΡΠ΅Π½Ρ, Π³Π΄Π΅ Π½Π°Ρ ΠΎΠ΄ΠΈΡΡΡ ΠΎΠΊΠ½ΠΎ. Π ΡΠ΅Π·ΡΠ»ΡΡΠ°ΡΠ΅, ΠΊΠΎΠ³Π΄Π° ΠΏΠ΅ΡΠ΅ΠΏΠ»Π°Π½ΠΈΡΠΎΠ²ΠΊΠ° Π·Π°ΠΊΠΎΠ½ΡΠΈΡΡΡ, ΡΠΎΠ»ΡΠΊΠΎ ΠΎΠ΄Π½Π° ΠΊΠΎΠΌΠ½Π°ΡΠ° Π±ΡΠ΄Π΅Ρ ΠΈΠΌΠ΅ΡΡ Π΅ΡΡΠ΅ΡΡΠ²Π΅Π½Π½ΠΎΠ΅ ΠΎΡΠ²Π΅ΡΠ΅Π½ΠΈΠ΅.
ΠΡΡΡΠ°Ρ ΠΊΠΎΠΌΠ½Π°ΡΠ° Π΄Π»Ρ ΡΠΎΠ²ΠΌΠ΅ΡΡΠ½ΠΎΠ³ΠΎ ΠΏΡΠΎΠΆΠΈΠ²Π°Π½ΠΈΡ, ΡΠ°ΠΊ ΠΊΠ°ΠΊ Π΅ΡΠ»ΠΈ Π²Ρ ΡΠ°Π·Π΄Π΅Π»ΠΈΡΠ΅ Π΅Π΅, ΠΏΠΎΠ»ΡΡΠΈΡΡΡ ΠΊΠΎΠΌΠ½Π°ΡΠ° Ρ ΠΏΠΎΠ»ΠΎΠ²ΠΈΠ½ΠΎΠΉ ΠΎΠΊΠ½Π°, ΡΠ»ΠΈΡΠΊΠΎΠΌ ΡΠ·ΠΊΠ°Ρ Π΄Π»Ρ ΠΊΠΎΠΌΡΠΎΡΡΠ½ΠΎΠ³ΠΎ ΠΏΡΠΎΠΆΠΈΠ²Π°Π½ΠΈΡ.ΠΠ°ΠΆΠ΅ ΡΡΡΠ°Π½ΠΎΠ²ΠΊΠ° Π»ΡΠ±ΠΎΠΉ ΠΌΠ΅Π±Π΅Π»ΠΈ Π±ΡΠ΄Π΅Ρ ΠΏΡΠΎΠ±Π»Π΅ΠΌΠΎΠΉ.
ΠΠ΄Π½Π°ΠΊΠΎ Π½ΡΠ°Π½ΡΡ Π΅ΡΡΡ Π²ΡΠ΅Π³Π΄Π°. Π’ΠΎΠ»ΡΠΊΠΎ ΠΎΠΏΡΡΠ½ΡΠΉ Π΄ΠΈΠ·Π°ΠΉΠ½Π΅Ρ, ΡΠ²ΠΈΠ΄Π΅Π² ΠΊΠΎΠ½ΠΊΡΠ΅ΡΠ½ΡΡ ΠΊΠ²Π°ΡΡΠΈΡΡ, ΡΠΌΠΎΠΆΠ΅Ρ ΡΠΎΡΡΠ°Π²ΠΈΡΡ ΠΏΠ»Π°Π½ ΠΎΠΏΡΠΈΠΌΠ°Π»ΡΠ½ΠΎΠΉ ΠΏΠ΅ΡΠ΅ΠΏΠ»Π°Π½ΠΈΡΠΎΠ²ΠΊΠΈ, ΠΏΠΎΠ·Π²ΠΎΠ»ΡΡΡΠ΅ΠΉ Π΄ΠΎΠ±ΠΈΡΡΡΡ ΠΌΠ°ΠΊΡΠΈΠΌΠ°Π»ΡΠ½ΠΎΠ³ΠΎ ΡΡΡΠ΅ΠΊΡΠ°.
ΠΠ΅ΡΠ΅Π³ΠΎΡΠΎΠ΄ΠΊΠΈ ΠΈΠ· Π³ΠΈΠΏΡΠΎΠΊΠ°ΡΡΠΎΠ½Π° Π½Π΅ ΡΠ»ΡΡΠ°ΠΉΠ½ΠΎ ΡΠΈΡΠΎΠΊΠΎ ΠΏΡΠΈΠΌΠ΅Π½ΡΡΡΡΡ ΠΏΡΠΈ ΠΏΠ΅ΡΠ΅ΠΏΠ»Π°Π½ΠΈΡΠΎΠ²ΠΊΠ΅. ΠΠ΅Π΄Ρ ΠΎΠ½ΠΈ ΡΠ²Π»ΡΡΡΡΡ Π½Π°ΠΈΠ±ΠΎΠ»Π΅Π΅ ΠΏΡΠΎΡΡΡΠΌ ΠΈ Π΄ΠΎΡΡΡΠΏΠ½ΡΠΌ ΡΡΠ΅Π΄ΡΡΠ²ΠΎΠΌ ΡΠ°Π·Π΄Π΅Π»Π΅Π½ΠΈΡ ΠΏΡΠΎΡΡΡΠ°Π½ΡΡΠ²Π°. Π£ΡΡΠ°Π½Π°Π²Π»ΠΈΠ²Π°Π΅ΠΌ ΠΈΡ ΠΏΠΎ Π²ΡΠ΅ΠΉ ΠΊΠΎΠΌΠ½Π°ΡΠ΅. ΠΠ°ΡΠ΅ΠΌ Π΄Π²Π΅ΡΠ½ΠΎΠΉ ΠΏΡΠΎΠ΅ΠΌ ΠΏΠΎΡΡΠ±ΠΈΡΡΡ Π³ΠΈΠΏΡΠΎΠΊΠ°ΡΡΠΎΠ½ΠΎΠΌ.
ΠΠΎΠ½Π΅ΡΠ½ΡΠΌ ΡΠ΅Π·ΡΠ»ΡΡΠ°ΡΠΎΠΌ ΡΠ²Π»ΡΡΡΡΡ Π΄Π²Π΅ ΠΊΠΎΠΌΠ½Π°ΡΡ Π½Π΅Π±ΠΎΠ»ΡΡΠΎΠ³ΠΎ ΡΠ°Π·ΠΌΠ΅ΡΠ°, ΠΊΠΎΡΠΎΡΡΠ΅ Π²Ρ ΠΌΠΎΠΆΠ΅ΡΠ΅ ΠΎΠ±ΡΡΠ°Π²ΠΈΡΡ ΠΈ ΠΈΡΠΏΠΎΠ»ΡΠ·ΠΎΠ²Π°ΡΡ ΠΏΠΎ ΡΠ²ΠΎΠ΅ΠΌΡ Π²ΠΊΡΡΡ. Π ΠΏΡΠΎΡΠ΅ΡΡΠ΅ ΡΡΡΠ°Π½ΠΎΠ²ΠΊΠΈ ΠΏΠ΅ΡΠ΅Π³ΠΎΡΠΎΠ΄ΠΊΠΈ Π² ΡΠΎΠ»ΠΈ Π½Π΅ΡΡΡΠ΅ΠΉ ΠΊΠΎΠ½ΡΡΡΡΠΊΡΠΈΠΈ Π²ΡΡΡΡΠΏΠ°Π΅Ρ ΠΌΠ΅ΡΠ°Π»Π»ΠΈΡΠ΅ΡΠΊΠΈΠΉ ΠΏΡΠΎΡΠΈΠ»Ρ. Π ΠΏΡΠΎΡΠΈΠ»ΡΠ½ΠΎΠΌΡ ΠΊΠ°ΡΠΊΠ°ΡΡ ΠΈΠ΄Π΅Ρ ΠΏΡΠΈΡΡΠ°Π²ΠΊΠ° ΠΈΠ· Π³ΠΈΠΏΡΠΎΠΊΠ°ΡΡΠΎΠ½Π°.
ΠΡΠΈ Π½Π΅ΠΎΠ±Ρ ΠΎΠ΄ΠΈΠΌΠΎΡΡΠΈ Π² ΠΏΡΠΎΠΌΠ΅ΠΆΡΡΠΊΠ΅ ΠΌΠ΅ΠΆΠ΄Ρ Π»ΠΈΡΡΠ°ΠΌΠΈ Π³ΠΈΠΏΡΠΎΠ²ΠΎΠ³ΠΎ ΠΌΠ°ΡΠ΅ΡΠΈΠ°Π»Π° ΡΠΊΠ»Π°Π΄ΡΠ²Π°Π΅ΡΡΡ ΡΡΠ΅ΠΏΠ»ΠΈΡΠ΅Π»Ρ. Π ΡΡΠΎΠΌ ΡΠ»ΡΡΠ°Π΅ ΠΆΠΈΡΠ΅Π»ΠΈ ΠΊΠΎΠΌΠ½Π°ΡΡ Π½Π΅ Π±ΡΠ΄ΡΡ Π±Π΅ΡΠΏΠΎΠΊΠΎΠΈΡΡ Π΄ΡΡΠ³ Π΄ΡΡΠ³Π° Π·Π²ΡΠΊΠ°ΠΌΠΈ, Π»Π΅Π³ΠΊΠΎ ΠΏΡΠΎΠ½ΠΈΠΊΠ°Ρ ΡΠ΅ΡΠ΅Π· ΠΏΡΡΡΡΠ΅ ΠΏΠ΅ΡΠ΅Π³ΠΎΡΠΎΠ΄ΠΊΠΈ.
ΠΠΎ Π΅ΡΡΡ ΡΠ°ΠΊΠΎΠΉ Π²Π°ΡΠΈΠ°Π½Ρ ΠΈ Π½Π΅Π΄ΠΎΡΡΠ°ΡΠΊΠΈ. ΠΡΠ²Π΅ΡΠ΅Π½ΠΈΠ΅ Π±ΡΠ΄Π΅Ρ ΡΠΎΠ»ΡΠΊΠΎ Π² ΡΠΎΠΉ ΠΆΠ΅ ΠΊΠΎΠΌΠ½Π°ΡΠ΅. Π£Π²Π΅Π»ΠΈΡΡΡΠ΅ ΡΡΠ΅Π±ΠΎΠ²Π°Π½ΠΈΡ ΠΊ ΠΈΡΠΊΡΡΡΡΠ²Π΅Π½Π½ΠΎΠΌΡ ΠΎΡΠ²Π΅ΡΠ΅Π½ΠΈΡ. Π‘Π²Π΅ΡΠΈΠ»ΡΠ½ΠΈΠΊΠΈ Π΄ΠΎΠ»ΠΆΠ½Ρ ΠΏΠΎΠ»Π½ΠΎΡΡΡΡ ΠΎΡΠ²Π΅ΡΠ°ΡΡ ΠΊΠΎΠΌΠ½Π°ΡΡ.
Π§ΡΠΎΠ±Ρ Π΅ΡΡΠ΅ΡΡΠ²Π΅Π½Π½ΡΠΉ ΡΠ²Π΅Ρ Π²ΡΠ΅ ΠΆΠ΅ ΠΏΡΠΎΠ½ΠΈΠΊΠ°Π» Π² ΠΊΠΎΠΌΠ½Π°ΡΡ Π±Π΅Π· ΠΎΠΊΠ½Π°, ΡΡΠΎΠ³ΠΎ ΠΌΠΎΠΆΠ½ΠΎ Π΄ΠΎΠ±ΠΈΡΡΡΡ Π·Π° ΡΡΠ΅Ρ ΡΡΠ»ΠΎΠΆΠ½Π΅Π½ΠΈΡ ΠΏΠ΅ΡΠ΅Π³ΠΎΡΠΎΠ΄ΠΊΠΈ. Π ΠΏΠ΅ΡΠ΅Π³ΠΎΡΠΎΠ΄ΠΊΠ΅ ΡΡΡΡΠ°ΠΈΠ²Π°Π΅ΡΡΡ Π½Π΅ ΡΠΎΠ»ΡΠΊΠΎ Π΄Π²Π΅ΡΠ½ΠΎΠΉ, Π½ΠΎ ΠΈ ΠΎΠΊΠΎΠ½Π½ΡΠΉ ΠΏΡΠΎΠ΅ΠΌ. Π§ΡΠΎΠ±Ρ Π΄ΠΎΠ±ΠΈΡΡΡΡ Ρ ΠΎΡΠΎΡΠ΅ΠΉ Π·Π²ΡΠΊΠΎΠΈΠ·ΠΎΠ»ΡΡΠΈΠΈ, ΠΆΠ΅Π»Π°ΡΠ΅Π»ΡΠ½ΠΎ Π²ΡΡΠ°Π²ΠΈΡΡ Π² ΠΎΠΊΠΎΠ½Π½ΠΎΠ΅ ΡΡΠ΅ΠΊΠ»ΠΎ. Π’Π°ΠΊΠ°Ρ ΠΏΠ΅ΡΠ΅Π³ΠΎΡΠΎΠ΄ΠΊΠ° Π±ΡΠ΄Π΅Ρ Π΄ΠΎΡΠΎΠΆΠ΅, Π½ΠΎ ΡΠ΅ΠΏΠ΅ΡΡ ΠΎΠ±Π΅ ΠΊΠΎΠΌΠ½Π°ΡΡ Π±ΡΠ΄ΡΡ ΠΎΡΠΊΡΡΡΡ Π΄Π»Ρ ΡΠΎΠ»Π½Π΅ΡΠ½ΠΎΠ³ΠΎ ΡΠ²Π΅ΡΠ°.
Π ΠΏΠΎΠΌΠ΅ΡΠ΅Π½ΠΈΡΡ , ΡΠΎΠ·Π΄Π°Π½Π½ΡΡ ΠΏΠ΅ΡΠ΅ΠΏΠ»Π°Π½ΠΈΡΠΎΠ²ΠΊΠΎΠΉ, Π²ΡΠ΅Π³Π΄Π° Π΄ΠΎΡΡΠ°ΡΠΎΡΠ½ΠΎ ΠΌΠ½ΠΎΠ³ΠΎΠ»ΡΠ΄Π½ΠΎ. ΠΠ΅ΠΎΠ±Ρ ΠΎΠ΄ΠΈΠΌΠ°Ρ ΡΠΊΠΎΠ½ΠΎΠΌΠΈΡ Π½Π° ΠΊΠ°ΠΆΠ΄ΡΠΉ ΠΊΠ²Π°Π΄ΡΠ°ΡΠ½ΡΠΉ ΠΌΠ΅ΡΡ. Π ΡΠ΅Π·ΡΠ»ΡΡΠ°ΡΠ΅ ΠΎΠΏΡΡΠ½ΡΠ΅ Π΄ΠΈΠ·Π°ΠΉΠ½Π΅ΡΡ ΡΠΎΠ²Π΅ΡΡΡΡ ΠΏΡΠΈΠΌΠ΅Π½ΡΡΡ ΠΎΡΠΈΠ³ΠΈΠ½Π°Π»ΡΠ½ΡΠ΅ ΡΠ΅ΡΠ΅Π½ΠΈΡ Π² Π²ΠΈΠ΄Π΅ ΡΠ°Π·Π΄Π²ΠΈΠΆΠ½ΡΡ Π΄Π²Π΅ΡΠ΅ΠΉ Π²ΠΌΠ΅ΡΡΠΎ ΡΠ°ΡΠΏΠ°ΡΠ½ΡΡ . ΠΡΠΎ Π΄Π°Π΅Ρ Π²ΠΎΠ·ΠΌΠΎΠΆΠ½ΠΎΡΡΡ ΡΡΠΊΠΎΠ½ΠΎΠΌΠΈΡΡ ΠΎΠΊΠΎΠ»ΠΎ ΠΊΠ²Π°Π΄ΡΠ°ΡΠ½ΠΎΠ³ΠΎ ΠΌΠ΅ΡΡΠ°. ΠΡΠ° Π·ΠΎΠ½Π° ΠΌΠΎΠΆΠ΅Ρ Π·Π°Π½ΡΡΡ ΠΊΠΎΠΌΠΏΠ°ΠΊΡΠ½ΡΡ ΠΌΠ΅Π±Π΅Π»Ρ.
Π¨ΠΊΠ°ΡΡ-ΠΊΡΠΏΠ΅, ΠΊΠΎΡΠΎΡΡΠ΅ ΠΈΠ·Π³ΠΎΡΠ°Π²Π»ΠΈΠ²Π°ΡΡΡΡ Π½Π° Π·Π°ΠΊΠ°Π·, ΠΈΠΌΠ΅ΡΡ ΠΌΠ½ΠΎΠΆΠ΅ΡΡΠ²ΠΎ ΠΊΠΎΠ½ΡΠΈΠ³ΡΡΠ°ΡΠΈΠΉ, ΡΡΠΎ ΠΏΠΎΠ·Π²ΠΎΠ»ΡΠ΅Ρ ΠΏΡΠΈΠΌΠ΅Π½ΠΈΡΡ ΠΈΡ ΠΊ ΠΎΡΠΈΠ³ΠΈΠ½Π°Π»ΡΠ½ΠΎΠΉ ΠΏΠ΅ΡΠ΅ΠΏΠ»Π°Π½ΠΈΡΠΎΠ²ΠΊΠ΅ ΠΊΠ²Π°ΡΡΠΈΡΡ-ΡΡΡΠ΄ΠΈΠΈ.ΠΡ Π³ΠΈΠΏΡΠΎΠΊΠ°ΡΡΠΎΠ½Π° Π³Π°ΡΠ΄Π΅ΡΠΎΠ±Ρ ΠΎΡΠ»ΠΈΡΠ°ΡΡΡΡ ΡΠ΅ΠΌ, ΡΡΠΎ ΡΠΏΠΎΡΠΎΠ±Π½Ρ Π²ΡΠΏΠΎΠ»Π½ΡΡΡ ΠΎΡΠ²Π΅ΡΡΡΠ²Π΅Π½Π½ΡΠ΅ Π·Π°Π΄Π°ΡΠΈ. ΠΠ½ΠΈ Π½Π΅ ΡΠΎΠ»ΡΠΊΠΎ Π΄Π΅Π»ΡΡ ΠΏΡΠΎΡΡΡΠ°Π½ΡΡΠ²ΠΎ Π½Π° Π·ΠΎΠ½Ρ, Π½ΠΎ ΠΈ ΡΠ²Π»ΡΡΡΡΡ ΠΌΠ΅ΡΡΠΎΠΌ Π΄Π»Ρ Ρ ΡΠ°Π½Π΅Π½ΠΈΡ Π»ΠΈΡΠ½ΡΡ Π²Π΅ΡΠ΅ΠΉ. ΠΡΠΎΠΌΠ΅ ΡΠΎΠ³ΠΎ, ΡΠΊΠ°Ρ ΠΌΠΎΠΆΠ½ΠΎ ΡΠΏΡΠΎΠ΅ΠΊΡΠΈΡΠΎΠ²Π°ΡΡ ΡΠ°ΠΊ, ΡΡΠΎΠ±Ρ Π΅Π³ΠΎ ΠΌΠΎΠΆΠ½ΠΎ Π±ΡΠ»ΠΎ ΠΈΡΠΏΠΎΠ»ΡΠ·ΠΎΠ²Π°ΡΡ Ρ Π΄Π²ΡΡ ΡΡΠΎΡΠΎΠ½ ΠΎΠ΄Π½ΠΎΠ²ΡΠ΅ΠΌΠ΅Π½Π½ΠΎ. ΠΠ°Π΄Π½ΡΡ ΡΠ°ΡΡΡ ΡΠΊΠ°ΡΠ° Π΄ΠΎΠ»ΠΆΠ½Π° Π±ΡΡΡ Π½Π΅ ΡΡΠ΅Π½ΠΎΠΉ, Π° Π΄Π²Π΅ΡΡΡ.
ΠΠ²Π΅ΡΡ ΠΏΡΠΎΡ ΠΎΠ΄Π° ΡΡΡΠ°Π½Π°Π²Π»ΠΈΠ²Π°Π΅ΡΡΡ Π½Π΅ΠΏΠΎΡΡΠ΅Π΄ΡΡΠ²Π΅Π½Π½ΠΎ Π² ΡΠΊΠ°Ρ. ΠΠ΅ΡΠ΅Π³ΠΎΡΠΎΠ΄ΠΊΡ ΡΠΊΠ°ΡΠ°-ΠΊΡΠΏΠ΅ ΠΌΠΎΠΆΠ½ΠΎ ΡΠ΄Π΅Π»Π°ΡΡ ΠΏΡΠΎΠ·ΡΠ°ΡΠ½ΠΎΠΉ, ΡΡΠΎΠ±Ρ Π²ΠΎ Π²ΡΠΎΡΡΡ ΠΊΠΎΠΌΠ½Π°ΡΡ ΠΏΠΎΠΏΠ°Π΄Π°Π» ΡΠΎΠ»Π½Π΅ΡΠ½ΡΠΉ ΡΠ²Π΅Ρ.ΠΠΎΠ½Π΅ΡΠ½ΠΎ, ΠΏΠΎΠ΄ΠΎΠ±Π½ΡΡ Π³Π°ΡΠ΄Π΅ΡΠΎΠ±Ρ Π΅ΡΡΡ Π² ΠΎΠ΄Π½ΠΎΠΊΠΎΠΌΠ½Π°ΡΠ½ΠΎΠΉ ΠΊΠ²Π°ΡΡΠΈΡΠ΅ ΠΌΠ½ΠΎΠ³ΠΎ ΠΌΠ΅ΡΡΠ°. ΠΠ°ΠΌΠ½ΠΎΠ³ΠΎ Π±ΠΎΠ»ΡΡΠ΅, ΡΠ΅ΠΌ Π³ΠΈΠΏΡΠΎΠΊΠ°ΡΡΠΎΠ½. ΠΠΎ Π³Π°ΡΠ΄Π΅ΡΠΎΠ± Π΅ΡΠ΅ Π½ΡΠΆΠ΅Π½.
Π¨ΠΊΠ°Ρ ΠΏΡΠ°ΠΊΡΠΈΡΠ½Π΅Π΅ ΠΎΠ±ΡΡΠ½ΠΎΠ³ΠΎ Π³Π°ΡΠ½ΠΈΡΡΡΠ°, ΡΠ°ΠΊ ΠΊΠ°ΠΊ ΠΌΠΎΠΆΠ΅Ρ Π·Π°Π½ΠΈΠΌΠ°ΡΡ ΠΏΡΠΎΡΡΡΠ°Π½ΡΡΠ²ΠΎ Π΄ΠΎ ΠΏΠΎΡΠΎΠ»ΠΊΠ°. ΠΡΠ»ΠΈ ΠΏΡΠ°Π²ΠΈΠ»ΡΠ½ΠΎ ΠΏΠΎΠ΄ΠΎΠΉΡΠΈ ΠΊ ΠΏΡΠΎΠ±Π»Π΅ΠΌΠ΅, ΡΠΊΠ°Ρ ΠΌΠΎΠΆΠ½ΠΎ ΠΈΡΠΏΠΎΠ»ΡΠ·ΠΎΠ²Π°ΡΡ Π΄Π»Ρ Ρ ΡΠ°Π½Π΅Π½ΠΈΡ Π»ΡΠ±ΡΡ ΠΏΡΠ΅Π΄ΠΌΠ΅ΡΠΎΠ². ΠΠ΅ΡΡ Π½ΡΡ ΡΠ°ΡΡΡ ΡΠΊΠ°ΡΠ° ΠΏΡΠ΅Π΄Π½Π°Π·Π½Π°ΡΠ΅Π½Π° Π΄Π»Ρ Ρ ΡΠ°Π½Π΅Π½ΠΈΡ ΡΠ΅Π΄ΠΊΠΎ ΠΈΡΠΏΠΎΠ»ΡΠ·ΡΠ΅ΠΌΡΡ Π²Π΅ΡΠ΅ΠΉ, Π° Π½ΠΈΠΆΠ½ΡΡ — Π΄Π»Ρ Ρ ΡΠ°Π½Π΅Π½ΠΈΡ ΠΎΠ΄Π΅ΠΆΠ΄Ρ ΠΈ ΠΎΠ±ΡΠ²ΠΈ. Π ΡΠΊΠ°ΡΡ Π½Π°ΠΉΡΠΈ ΠΌΠ΅ΡΡΠΎ Π΄Π»Ρ ΠΏΠΎΡΡΠ΅Π»ΡΠ½ΡΡ ΠΏΡΠΈΠ½Π°Π΄Π»Π΅ΠΆΠ½ΠΎΡΡΠ΅ΠΉ. ΠΠΈΠ·Π°ΠΉΠ½ ΡΡΠΎΠ΅ΠΊ ΡΠΊΠ°ΡΠ°-ΠΊΡΠΏΠ΅ ΠΌΠΎΠΆΠ΅Ρ ΡΡΠ°ΡΡ Ρ ΠΎΡΠΎΡΠΈΠΌ Π΄ΠΈΠ·Π°ΠΉΠ½Π΅ΡΡΠΊΠΈΠΌ ΡΠΊΡΠ°ΡΠ΅Π½ΠΈΠ΅ΠΌ ΠΊΠ²Π°ΡΡΠΈΡΡ.ΠΡΠΏΠΎΠ»ΡΠ·ΠΎΠ²Π°Π½ΠΈΠ΅ Π΄Π²Π΅ΡΠ΅ΠΉ Ρ Π²ΠΈΡΡΠ°ΠΆΠ°ΠΌΠΈ Π΄ΠΎΠ±Π°Π²ΠΈΡ Π΄ΠΈΠ·Π°ΠΉΠ½Ρ ΠΈΠ·ΡΠΌΠΈΠ½ΠΊΠΈ, ΠΏΡΠΈΠ΄Π°ΡΡ ΡΡΡΠ°. ΠΠ°ΠΉΠ΄ΠΈΡΠ΅ ΠΌΠ΅ΡΡΠΎ Π΄Π»Ρ ΠΎΡΠ΄ΡΡ Π° ΠΈ ΡΠ½Π°.
ΠΡΠ΅Π΄Π»ΠΎΠΆΠ΅Π½ΠΈΠ΅ ΡΡΠ»ΡΠ³ ΠΏΠΎ ΠΈΠ·Π³ΠΎΡΠΎΠ²Π»Π΅Π½ΠΈΡ ΡΠΊΠ°ΡΠΎΠ²-ΠΊΡΠΏΠ΅ ΡΠΈΡΠΎΠΊΠΎ Π΄ΠΎΡΡΡΠΏΠ½ΠΎ Π½Π° ΡΡΠ½ΠΊΠ΅ ΡΠ΅ΠΌΠΎΠ½ΡΠ°.
ΠΠ°ΠΊ ΠΈ Π² ΡΠ»ΡΡΠ°Π΅ Ρ Π³ΠΈΠΏΡΠΎΠΊΠ°ΡΡΠΎΠ½ΠΎΠΌ, ΡΠΎΠ»Π½Π΅ΡΠ½ΠΎΠ΅ ΠΎΡΠ²Π΅ΡΠ΅Π½ΠΈΠ΅ Π±ΡΠ΄Π΅Ρ ΠΎΡΡΡΡΡΡΠ²ΠΎΠ²Π°ΡΡ. Π’Π°ΠΊ ΡΡΠΎ Π²Π°ΠΌ ΠΏΠΎΠ½Π°Π΄ΠΎΠ±ΡΡΡΡ Π΄ΠΎΠΏΠΎΠ»Π½ΠΈΡΠ΅Π»ΡΠ½ΡΠ΅ ΠΈΡΡΠΎΡΠ½ΠΈΠΊΠΈ ΡΠ²Π΅ΡΠ°.
ΠΠ΅ΡΠΈ Π΄ΠΎΠ»ΠΆΠ½Ρ ΠΈΡΠΏΠΎΠ»ΡΠ·ΠΎΠ²Π°ΡΡ ΠΊΠΎΠΌΠ½Π°ΡΡ Ρ ΠΎΠΊΠ½ΠΎΠΌ. ΠΠ»Ρ ΠΌΠ°Π»ΡΡΠ΅ΠΉ Π΅ΡΡΠ΅ΡΡΠ²Π΅Π½Π½ΠΎΠ΅ ΠΎΡΠ²Π΅ΡΠ΅Π½ΠΈΠ΅ ΠΈΠ³ΡΠ°Π΅Ρ ΠΎΡΠ΅Π½Ρ Π²Π°ΠΆΠ½ΡΡ ΡΠΎΠ»Ρ.
ΠΡΠΎΡΠ°Ρ ΠΊΠΎΠΌΠ½Π°ΡΠ° ΠΌΠΎΠΆΠ΅Ρ ΠΈΡΠΏΠΎΠ»ΡΠ·ΠΎΠ²Π°ΡΡΡΡ ΠΎΠ΄Π½ΠΎΠ²ΡΠ΅ΠΌΠ΅Π½Π½ΠΎ ΠΊΠ°ΠΊ Π³ΠΎΡΡΠΈΠ½Π°Ρ ΠΈ ΡΠΏΠ°Π»ΡΠ½Ρ.
ΠΡΠ»ΠΈ ΠΎΠ΄Π½ΠΎΠΊΠΎΠΌΠ½Π°ΡΠ½Π°Ρ ΠΊΠ²Π°ΡΡΠΈΡΠ° ΠΌΠ°Π»ΠΎΠ½Π°ΡΠ΅Π»Π΅Π½Π½Π°Ρ, Π΄ΠΎΠ±ΠΈΡΡΡΡ ΡΠΎΠ·Π΄Π°Π½ΠΈΡ Π΄Π²ΡΡ Π½Π΅ΡΠΊΠΎΠ»ΡΠΊΠΎ ΠΏΡΠΎΡΠ΅, ΡΠ΅ΠΌ ΡΡΡΡΠΎΠΉΡΡΠ²ΠΎ Π³Π»ΡΡ ΠΈΡ ΡΡΠ΅Π½.
ΠΠ΅ΠΎΠ±ΡΠ·Π°ΡΠ΅Π»ΡΠ½ΠΎ Π² ΡΡΠΎΠΌ ΡΠ»ΡΡΠ°Π΅ ΠΈΡΠΏΠΎΠ»ΡΠ·ΠΎΠ²Π°ΡΡ Π²ΡΡΠΎΠΊΡΡ Π·Π²ΡΠΊΠΎΠΈΠ·ΠΎΠ»ΡΡΠΈΡ ΡΠ°Π·Π½ΡΡ Π·ΠΎΠ½ ΠΊΠ²Π°ΡΡΠΈΡΡ. ΠΠ»Ρ ΡΡΠΈΡ ΠΊΠ²Π°ΡΡΠΈΡ Π΄ΠΎΡΡΠ°ΡΠΎΡΠ½ΠΎ ΠΎΠ±ΡΡΠ½ΠΎΠ³ΠΎ ΡΡΠ΅Π»Π»Π°ΠΆΠ°.
ΠΡΠΎΡ ΡΡΠ΅Π»Π»Π°ΠΆ Π½Π΅ ΡΠΎΠ»ΡΠΊΠΎ ΡΠ°Π·Π΄Π΅Π»ΡΠ΅Ρ ΠΊΠΎΠΌΠ½Π°ΡΡ, Π½ΠΎ ΠΈ ΡΠΊΡΠ°ΡΠ°Π΅Ρ Π΅Π΅.
ΠΠΎΠ»ΠΊΠΈ ΠΌΠΎΠ³ΡΡ ΠΏΡΠΈΠ΄Π°ΡΡ ΡΠ»Π΅Π³Π°Π½ΡΠ½ΡΠΉ Π²ΠΈΠ΄ Π΄Π²Π΅ΡΡΠ΅ Ρ ΠΊΡΠ°ΡΠΈΠ²ΡΠΌ ΡΡΠ΅ΠΊΠ»ΠΎΠΌ, Π·Π΅ΡΠΊΠ°Π»Π°ΠΌΠΈ ΠΈΠ»ΠΈ Π²ΠΈΡΡΠ°ΠΆΠ°ΠΌΠΈ. ΠΠ½ΠΈΠΆΠ½ΡΠΉ ΡΠΊΠ°Ρ ΠΈΠΌΠ΅Π΅Ρ ΠΌΠ½ΠΎΠΆΠ΅ΡΡΠ²ΠΎ ΠΏΠΎΠ»ΠΎΠΊ ΠΈΠ»ΠΈ ΠΈΡΠΏΠΎΠ»ΡΠ·ΡΠ΅ΡΡΡ Π΄Π»Ρ Ρ ΡΠ°Π½Π΅Π½ΠΈΡ ΠΏΠΎΡΡΠ΄Ρ.
Π§Π°ΡΡΠΎ ΡΠ»ΡΡΠ½Ρ Π²ΠΎΠΏΡΠΎΡΡ ΠΎ Π΅Π΄Π΅. ΠΠ° Π΅Π³ΠΎ ΠΏΠ΅ΡΠ΅Π΄Π΅Π»ΠΊΡ ΡΡΠΎ Π½Π΅ Π²Π»ΠΈΡΠ΅Ρ. Π‘ΡΡΠ΅ΡΡΠ²ΡΠ΅Ρ ΡΡΠ΄ Π²Π°ΡΠΈΠ°Π½ΡΠΎΠ² ΠΏΠ΅ΡΠ΅ΠΏΠ»Π°Π½ΠΈΡΠΎΠ²ΠΊΠΈ ΠΊΡΡ Π½ΠΈ.
ΠΠ»Ρ ΠΆΠ΅Π»Π°ΡΡΠΈΡ ΡΠ²Π΅Π»ΠΈΡΠΈΡΡ ΠΏΠΎΠ»Π΅Π·Π½ΡΡ ΠΏΠ»ΠΎΡΠ°Π΄Ρ ΠΊΠΎΠΌΠ½Π°Ρ ΠΎΠ΄Π½ΠΎΠΊΠΎΠΌΠ½Π°ΡΠ½Π°Ρ ΠΊΠ²Π°ΡΡΠΈΡΠ° Ρ ΠΊΡΡ Π½Π΅ΠΉ Π² Π΄Π°Ρ. ΠΠ΅ ΡΠ»ΡΡΠ°ΠΉΠ½ΠΎ ΡΠΎΠ²ΠΌΠ΅ΡΠ΅Π½Π½Π°Ρ Ρ Π³ΠΎΡΡΠΈΠ½ΠΎΠΉ ΠΊΡΡ Π½Ρ ΡΡΠ°Π»Π° Π΅Π²ΡΠΎΠΏΠ΅ΠΉΡΠΊΠΎΠΉ Π½ΠΎΡΠΌΠΎΠΉ Π΄Π»Ρ ΠΌΠ°Π»ΠΎΠ³Π°Π±Π°ΡΠΈΡΠ½ΡΡ ΠΊΠ²Π°ΡΡΠΈΡ.
ΠΠ»Ρ ΡΠ²Π΅Π»ΠΈΡΠ΅Π½ΠΈΡ ΠΊΠΎΠΌΠ½Π°ΡΡ, ΡΡΠ΅Π½Π°, ΡΠ°Π·Π΄Π΅Π»ΡΡΡΠ°Ρ ΡΠ°Π½ΡΠ·Π΅Π» ΠΈ ΠΊΡΡ Π½Ρ, ΡΠ½Π΅ΡΠ΅Π½Π°. ΠΡΠ»ΠΈ ΡΡΠ° ΡΡΠ΅Π½Π° Π½Π΅ΡΡΡΠ°Ρ, Π·Π½Π°ΡΠΈΡ, Π΅Π΅ ΠΏΡΠΎΡΡΠΎ Π½Π΅ Π½Π΅ΡΡΡ.ΠΠ΅ΠΎΠ±Ρ ΠΎΠ΄ΠΈΠΌΠΎ Π΄ΠΎΠ±ΠΈΡΡΡΡ ΠΆΠ΅Π»Π°Π΅ΠΌΠΎΠ³ΠΎ ΡΠ°Π·ΡΠ΅ΡΠ΅Π½ΠΈΡ ΠΈ ΡΠΊΡΠ΅ΠΏΠΈΡΡ ΡΡΠ΅Π½Ρ Π½Π° Π±Π°Π»ΠΊΠΈ. Π Π³ΠΎΡΠΎΠ²ΠΎΠΌ Π²ΠΈΠ΄Π΅ Π³ΠΎΡΠΎΠ²ΠΎΠ΅ ΠΏΡΠΎΡΡΡΠ°Π½ΡΡΠ²ΠΎ ΡΠΎΡΡΠΎΠΈΡ ΠΈΠ· Π΄Π²ΡΡ ΠΊΠΎΠΌΠ½Π°Ρ: ΡΠΏΠ°Π»ΡΠ½ΠΈ ΠΈ Π³ΠΎΡΡΠΈΠ½ΠΎΠΉ, ΡΠΎΠ²ΠΌΠ΅ΡΠ΅Π½Π½ΠΎΠΉ Ρ ΠΊΡΡ Π½Π΅ΠΉ.
Π’Π°ΠΊΠΎΠΉ ΠΏΡΠΈΠ±ΠΎΡ Π² ΠΏΠΎΠΌΠ΅ΡΠ΅Π½ΠΈΠΈ ΠΎΡΠ΅Π½Ρ ΡΠ΄ΠΎΠ±Π΅Π½. ΠΠΎ Π½ΡΠΆΠ½ΠΎ ΠΎΡΠ΅Π½Ρ ΡΠ΅ΡΡΠ΅Π·Π½ΠΎ ΠΏΠΎΠ΄ΡΠΌΠ°ΡΡ ΠΎΠ± ΡΡΡΠ°Π½ΠΎΠ²ΠΊΠ΅, ΠΏΠΎΡΡΠ΅Π±Π»ΡΡΡΠ΅ΠΉ Π±ΠΎΠ»ΡΡΡΡ ΠΌΠΎΡΠ½ΠΎΡΡΡ. ΠΡΠΎ Π½Π΅ΠΎΠ±Ρ ΠΎΠ΄ΠΈΠΌΠΎ, ΡΡΠΎΠ±Ρ ΠΈΠ·Π±Π΅ΠΆΠ°ΡΡ ΠΏΡΠΎΠ½ΠΈΠΊΠ½ΠΎΠ²Π΅Π½ΠΈΡ Π·Π°ΠΏΠ°Ρ ΠΎΠ² ΠΏΡΠΈΠ³ΠΎΡΠΎΠ²Π»Π΅Π½ΠΈΡ ΠΏΠΈΡΠΈ Π² ΠΏΠΎΠΌΠ΅ΡΠ΅Π½ΠΈΠ΅.
ΠΠΎΠ΄ΠΆΠΈΡ, ΡΠ°ΡΠΏΠΎΠ»ΠΎΠΆΠ΅Π½Π½ΡΡ Π½Π° ΠΊΡΡ Π½Π΅, ΠΌΠΎΠΆΠ½ΠΎ ΠΈΡΠΏΠΎΠ»ΡΠ·ΠΎΠ²Π°ΡΡ Π΄Π»Ρ Π΄Π°Π»ΡΠ½Π΅ΠΉΡΠ΅Π³ΠΎ ΡΠ²Π΅Π»ΠΈΡΠ΅Π½ΠΈΡ ΠΏΠ»ΠΎΡΠ°Π΄ΠΈ ΠΏΠΎΠΌΠ΅ΡΠ΅Π½ΠΈΡ ΠΏΡΠΈ ΠΏΠ΅ΡΠ΅ΠΏΠ»Π°Π½ΠΈΡΠΎΠ²ΠΊΠ΅.Π§ΡΠΎΠ±Ρ Π² ΡΡΠΎΠΌ ΡΠ»ΡΡΠ°Π΅ Π½Π΅ ΡΠ΅ΡΡΡΡ ΡΠ΅ΠΏΠ»ΠΎ, Π½ΡΠΆΠ½ΠΎ ΠΈΡΠΏΠΎΠ»ΡΠ·ΠΎΠ²Π°ΡΡ ΠΊΠ°ΡΠ΅ΡΡΠ²Π΅Π½Π½ΡΠ΅ ΠΎΠΊΠ½Π°, Π΄ΠΎΠ±Π°Π²ΠΈΡΡ Π² ΠΊΠΎΠ½ΡΡΡΡΠΊΡΠΈΡ ΡΠ΅ΠΏΠ»ΡΠΉ ΠΏΠΎΠ» ΠΈ ΠΊΠ°ΡΠ΅ΡΡΠ²Π΅Π½Π½ΡΠΉ ΡΡΠ΅ΠΏΠ»ΠΈΡΠ΅Π»Ρ.
ΠΠ»Ρ ΡΠ΅Ρ , ΠΊΡΠΎ ΠΊ ΡΠ°ΠΊΠΎΠΌΡ ΡΠ°Π΄ΠΈΠΊΠ°Π»ΠΈΠ·ΠΌΡ Π΅ΡΠ΅ Π½Π΅ Π³ΠΎΡΠΎΠ², Π½ΡΠΆΠ½ΠΎ ΡΠ΄Π΅Π»Π°ΡΡ ΠΏΠ΅ΡΠ΅Π³ΠΎΡΠΎΠ΄ΠΊΡ, ΡΠ°Π·Π΄Π΅Π»ΡΡΡΡΡ ΠΊΡΡ Π½Ρ ΠΈ Π²Π°Π½Π½ΡΡ. ΠΠΏΡΡΡ ΠΆΠ΅, Π½Π°Π»ΠΈΡΠΈΠ΅ Π½Π΅ΡΡΡΠ΅ΠΉ ΡΡΠ΅Π½Ρ ΠΌΠΎΠΆΠ΅Ρ ΡΠΈΠ»ΡΠ½ΠΎ ΡΡΠ»ΠΎΠΆΠ½ΠΈΡΡ ΠΏΡΠΎΡΠ΅ΡΡ ΠΏΠ΅ΡΠ΅ΠΏΠ»Π°Π½ΠΈΡΠΎΠ²ΠΊΠΈ. ΠΠΎ, ΠΊΠ°ΠΊ ΠΏΡΠ°Π²ΠΈΠ»ΠΎ, Π΅ΡΠ»ΠΈ ΠΌΡ Π³ΠΎΠ²ΠΎΡΠΈΠΌ ΠΎ Β«Ρ ΡΡΡΠ΅Π²ΠΊΠ°Ρ Β», ΠΊΠΎΠΌΠ½Π°ΡΠ° ΠΎΠ΄Π½ΠΎΠΊΠΎΠΌΠ½Π°ΡΠ½ΠΎΠΉ ΠΊΠ²Π°ΡΡΠΈΡΡ ΠΎΡΠ΄Π΅Π»Π΅Π½Π° ΠΎΡ ΠΊΡΡ Π½ΠΈ ΡΠ²Π΅ΡΠΎΠ²ΡΠΌ Π±Π°ΡΡΠ΅ΡΠΎΠΌ, ΠΊΠΎΡΠΎΡΠΎΠ³ΠΎ Ρ ΠΏΠ΅ΡΠ΅Π²ΠΎΠ·ΡΠΈΠΊΠ° Π½Π΅Ρ.Π Π°Π·ΡΠ΅ΡΠ΅Π½ΠΈΠ΅ Π½Π° ΡΠ½ΠΎΡ ΡΠ°ΠΊΠΈΡ ΡΡΠ΅Π½ Π½Π΅ ΡΡΠ΅Π±ΡΠ΅ΡΡΡ. ΠΠ΄Π½Π°ΠΊΠΎ ΠΈ Π±Π΅Π· ΡΠΎΠ³ΠΎ ΠΌΠ°Π»Π΅Π½ΡΠΊΠ°Ρ ΠΊΡΡ Π½Ρ ΠΏΠΎΡΠ»Π΅ ΠΏΠ΅ΡΠ΅ΠΏΠ»Π°Π½ΠΈΡΠΎΠ²ΠΊΠΈ ΠΏΡΠ΅Π²ΡΠ°ΡΠΈΡΡΡ Π² ΠΌΠΈΠ½ΠΈΠ°ΡΡΡΠ½ΡΡ. ΠΡΠΈ ΡΡΠΎΠΌ Π²ΡΠΈΠ³ΡΡΡ ΠΏΠ°ΡΡ ΠΊΠ²Π°Π΄ΡΠ°ΡΠ½ΡΡ ΠΌΠ΅ΡΡΠΎΠ² ΡΠ΄Π΅Π»Π°Π΅Ρ Π½Π°ΡΡ Π³ΠΎΡΡΠΈΠ½ΡΡ ΠΏΡΠΎΡΡΠΎΡΠ½Π΅Π΅. ΠΠ° ΠΌΠ°Π»Π΅Π½ΡΠΊΠΎΠΉ ΠΊΡΡ Π½Π΅ Π½Π΅ ΠΏΠΎΠΌΠ΅ΡΡΠΈΡΡΡ ΡΡΠΈΡΠ°Π»ΡΠ½Π°Ρ ΠΌΠ°ΡΠΈΠ½Π° ΠΈ Ρ ΠΎΠ»ΠΎΠ΄ΠΈΠ»ΡΠ½ΠΈΠΊ. ΠΠΌ ΠΏΡΠΈΠ΄Π΅ΡΡΡ ΠΏΠ΅ΡΠ΅Π±ΡΠ°ΡΡΡΡ Π² Π²Π°Π½Π½ΡΡ ΠΈ ΠΊΠΎΡΠΈΠ΄ΠΎΡ.
ΠΠ»Ρ ΡΠΎΠ·Π΄Π°Π½ΠΈΡ ΡΠ°Π΄ΡΠΆΠ½ΠΎΠ³ΠΎ Π³Π»Π°Π·Ρ Π΄ΠΈΠ·Π°ΠΉΠ½Π° ΠΎΠ±Π½ΠΎΠ²Π»Π΅Π½Π½ΡΡ ΡΡΠ°ΡΡΠΊΠΎΠ², Π΄Π»Ρ Π²ΡΠΏΠΎΠ»Π½Π΅Π½ΠΈΡ ΡΠ°Π±ΠΎΡ ΠΏΠΎ ΠΏΠ΅ΡΠ΅Π΄Π΅Π»ΠΊΠ°ΠΌ Π½ΡΠΆΠ½ΠΎ ΠΎΠ±ΡΠ°ΡΠΈΡΡΡΡ ΠΊ ΠΎΠΏΡΡΠ½ΡΠΌ ΠΏΡΠΎΡΠ΅ΡΡΠΈΠΎΠ½Π°Π»Π°ΠΌ. ΠΡΠΎ ΠΊΠΎΠ½Π΅ΡΠ½ΠΎ ΠΏΠΎΡΡΠ΅Π±ΡΠ΅Ρ Π΄Π΅Π½Π΅Π³, Π½ΠΎ ΡΠ°Π·ΠΎΡΠ°ΡΠΎΠ²Π°Π½ΠΈΡ ΡΠ΅Π·ΡΠ»ΡΡΠ°ΡΠΎΠΌ ΡΠ°Π±ΠΎΡΡ Π½Π΅ Π±ΡΠ΄Π΅Ρ.
Π§Π°ΡΡΠΎ Π² ΠΊΠ²Π°ΡΡΠΈΡΠ΅ ΡΡΡΡΠ°Π½ΡΡΡΡΡ ΠΊΠ»Π°Π΄ΠΎΠ²ΡΠ΅, ΠΏΡΠΈΠΌΡΠΊΠ°ΡΡΠΈΠ΅ ΠΊ ΠΎΠ΄Π½ΠΎΠΉ ΠΈΠ· ΠΊΠΎΠΌΠ½Π°Ρ
ΠΡΠ»ΠΈ ΠΏΠΎΡΠΎΠ»ΠΊΠΈ ΠΈΠΌΠ΅ΡΡ Π±ΠΎΠ»ΡΡΡΡ Π²ΡΡΠΎΡΡ, Π΅ΡΡΡ ΡΠΌΡΡΠ» ΠΏΠΎΠ΄ΡΠΌΠ°ΡΡ ΠΎ Π²ΡΠΎΡΠΎΠΌ ΡΡΠ°ΠΆΠ΅ Π² ΠΊΠ²Π°ΡΡΠΈΡΠ΅. ΠΠ½ΠΎΠ³ΠΈΠ΅ ΠΈΠ· ΡΡΠ°ΡΡΡ ΠΆΠΈΠ»ΡΡ ΠΌΠ°ΡΡΠΈΠ²ΠΎΠ² Π³ΠΎΡΠΎΠ΄ΠΎΠ² ΠΈΠΌΠ΅ΡΡ ΡΠ΅Π½ΠΎΠΌΠ΅Π½Π°Π»ΡΠ½ΠΎ Π²ΡΡΠΎΠΊΠΈΠ΅ ΠΏΠΎΡΠΎΠ»ΠΊΠΈ, Π΄ΠΎΡΡΠΈΠ³Π°ΡΡΠΈΠ΅ 3,5-4 ΠΌΠ΅ΡΡΠΎΠ². Π Π°Π½ΡΡΠ΅ Π½Π° Π²ΡΡΠΎΡΠ΅ ΠΊΠΎΠΌΠ½Π°Ρ ΡΠΊΠΎΠ½ΠΎΠΌΠΈΡΡ Π±ΡΠ»ΠΎ Π½Π΅ ΠΌΠΎΠ΄Π½ΠΎ.
ΠΡΠ»ΠΈ Π²Π°ΠΌ ΠΏΠΎΡΡΠ°ΡΡΠ»ΠΈΠ²ΠΈΠ»ΠΎΡΡ Π±ΡΡΡ Π²Π»Π°Π΄Π΅Π»ΡΡΠ΅ΠΌ Π΄Π°Π½Π½ΠΎΠΉ ΠΊΠ²Π°ΡΡΠΈΡΡ, Ρ Π²Π°Ρ Π΅ΡΡΡ Π²ΠΎΠ·ΠΌΠΎΠΆΠ½ΠΎΡΡΡ Π² ΠΏΡΠΎΡΠ΅ΡΡΠ΅ ΠΏΠ΅ΡΠ΅ΠΏΠ»Π°Π½ΠΈΡΠΎΠ²ΠΊΠΈ ΠΏΠΎΡΡΡΠΎΠΈΡΡ Π½Π΅ ΡΠΎΠ»ΡΠΊΠΎ Π΄Π²ΡΡ , Π½ΠΎ ΠΈ Π΄Π²ΡΡ ΡΡΠ°ΠΆΠ½ΡΡ ΠΊΠ²Π°ΡΡΠΈΡΡ.
ΠΡΠΈ ΡΠ°Π±ΠΎΡΡ ΡΡΠ΅Π±ΡΡΡ Π΄ΠΎΠ²ΠΎΠ»ΡΠ½ΠΎ ΡΠ»ΠΎΠΆΠ½ΡΡ ΡΠ΅Ρ Π½ΠΈΡΠ΅ΡΠΊΠΈΡ ΡΠ°ΡΡΠ΅ΡΠΎΠ², ΡΡΠΎΠ±Ρ Π²ΡΠΎΡΠΎΠΉ ΡΡΠ°ΠΆ Π²ΡΠ΄Π΅ΡΠΆΠΈΠ²Π°Π» ΡΠ°ΠΌΡΠ΅ ΡΠ°Π·Π½ΡΠ΅ Π½Π°Π³ΡΡΠ·ΠΊΠΈ.
ΠΠ΅ΡΡΡΠ°Ρ ΠΊΠΎΠ½ΡΡΡΡΠΊΡΠΈΡ ΡΠ°ΡΡΠΎ ΠΏΡΠ΅Π΄ΡΡΠ°Π²Π»ΡΠ΅Ρ ΡΠΎΠ±ΠΎΠΉ ΠΌΠ΅ΡΠ°Π»Π»ΠΈΡΠ΅ΡΠΊΠΈΠΉ ΠΏΡΠΎΡΠΈΠ»Ρ, ΠΊΠΎΡΠΎΡΡΠΉ ΠΊΡΠ΅ΠΏΠΈΡΡΡ ΠΊ ΡΡΠ΅Π½Π°ΠΌ ΠΏΠΎΠΌΠ΅ΡΠ΅Π½ΠΈΡ. ΠΠ° Π²ΡΠΎΡΠΎΠΌ ΡΡΠ°ΠΆΠ΅ ΡΡΠΎΡΡ Π΄ΠΎΡΠΊΠΈ. ΠΠ»Ρ Π²ΡΠΎΡΠΎΠ³ΠΎ ΡΡΠ°ΠΆΠ° ΠΏΠΎΠ΄ΠΎΠΉΠ΄Π΅Ρ Π΄Π΅ΡΡΠΊΠ°Ρ ΠΈΠ»ΠΈ ΡΠΏΠ°Π»ΡΠ½Ρ. Π ΠΏΠ΅ΡΠ²ΠΎΠΌΡ ΡΡΠ°ΠΆΡ ΠΏΡΠΈ ΠΏΠ΅ΡΠ΅ΠΏΠ»Π°Π½ΠΈΡΠΎΠ²ΠΊΠ΅ ΠΎΡΠ²ΠΎΠ΄ΠΈΡΡΡ ΡΠΎΠ»Ρ Π³ΠΎΡΡΠΈΠ½ΠΎΠΉ ΠΈΠ»ΠΈ ΠΊΠ°Π±ΠΈΠ½Π΅ΡΠ°. ΠΠ»Ρ ΡΠ°ΠΊΠΎΠΉ ΠΏΠ΅ΡΠ΅ΠΏΠ»Π°Π½ΠΈΡΠΎΠ²ΠΊΠΈ ΠΏΡΠΈΠ΄Π΅ΡΡΡ ΠΏΠΎΠ·Π°Π±ΠΎΡΠΈΡΡΡΡ ΠΎΠ± ΡΠ»ΡΡΡΠ΅Π½ΠΈΠΈ Π²Π΅Π½ΡΠΈΠ»ΡΡΠΈΠΈ.
Π£ΠΌΠ½Π°Ρ ΠΏΠ΅ΡΠ΅ΠΏΠ»Π°Π½ΠΈΡΠΎΠ²ΠΊΠ° ΠΏΠΎΠΌΠΎΠΆΠ΅Ρ Π½Π°ΠΉΡΠΈ ΠΊΡΠ°ΡΠΈΠ²ΡΡ Π΄Π²ΡΡ ΠΊΠΎΠΌΠ½Π°ΡΠ½ΡΡ ΠΊΠ²Π°ΡΡΠΈΡΡ Π±Π΅Π· ΡΠΎΠ³Π»Π°ΡΠΎΠ²Π°Π½ΠΈΡ Ρ Π²Π»Π°ΡΡΡΠΌΠΈ.
Π‘Π²ΡΠ·Π°Π½Π½ΡΠ΅ Ρ ΠΊΠΎΠ½ΡΠ΅Π½ΡΠΎΠΌ
ΠΠ΅ΡΠ΅ΠΏΠ»Π°Π½ΠΈΡΠΎΠ²ΠΊΠ° ΠΎΠ΄Π½ΠΎΠΊΠΎΠΌΠ½Π°ΡΠ½ΠΎΠΉ ΠΊΠ²Π°ΡΡΠΈΡΡ. ΠΠ°ΡΠΈΠ°Π½ΡΡ ΠΈ ΠΈΡ ΡΠ΅Π°Π»ΠΈΠ·Π°ΡΠΈΡ
ΠΠ²ΡΡ ΠΊΠΎΠΌΠ½Π°ΡΠ½Π°Ρ ΠΊΠ²Π°ΡΡΠΈΡΠ° — ΡΠ°ΠΌΠΎΠ΅ Π΄ΠΎΡΡΡΠΏΠ½ΠΎΠ΅ ΠΆΠΈΠ»ΡΠ΅ Π½Π° Π½Π°ΡΠ΅ΠΌ ΡΡΠ½ΠΊΠ΅, ΠΏΠΎΡΡΠΎΠΌΡ ΠΏΠΎΠ»ΡΠ·ΡΠ΅ΡΡΡ Π±ΠΎΠ»ΡΡΠΈΠΌ ΡΠΏΡΠΎΡΠΎΠΌ. ΠΠΎΠ»ΡΡΠΈΠ² Π½Π΅Π΄Π²ΠΈΠΆΠΈΠΌΠΎΡΡΡ Β«ΠΎΠ΄Π½ΡΡΠΊΡΒ», Π»ΡΠ΄ΠΈ ΡΠ°ΡΡΠΎ Π·Π°Π΄ΡΠΌΡΠ²Π°ΡΡΡΡ Π½Π°Π΄ Π²Π°ΡΠΈΠ°Π½ΡΠ°ΠΌΠΈ Π΅Π΅ ΠΏΠ΅ΡΠ΅ΠΏΠ»Π°Π½ΠΈΡΠΎΠ²ΠΊΠΈ.
Π Π²ΡΠ΅Π³ΠΎ Π΄Π²Π° Π²Π°ΡΠΈΠ°Π½ΡΠ° — ΡΠ΄Π΅Π»Π°ΡΡ ΠΎΠ΄Π½ΠΎΠΊΠΎΠΌΠ½Π°ΡΠ½ΡΡ ΡΡΡΠ΄ΠΈΡ ΠΈΠ»ΠΈ ΡΠ°Π·Π΄Π΅Π»ΠΈΡΡ Π΅Π΅ Π½Π° Π΄Π²Π΅ Π½Π΅Π±ΠΎΠ»ΡΡΠΈΠ΅ ΠΊΠΎΠΌΠ½Π°ΡΡ. ΠΡΠ±ΠΎΡ Π·Π°Π²ΠΈΡΠΈΡ ΠΎΡ ΡΠΎΡΡΠ°Π²Π° ΡΠ΅ΠΌΡΠΈ. ΠΠΎΠ½Π΅ΡΠ½ΠΎ, ΡΡΡΠ΄ΠΈΡ Π±ΠΎΠ»ΡΡΠ΅ ΠΏΠΎΠ΄ΠΎΠΉΠ΄Π΅Ρ Π΄Π»Ρ ΠΌΠΎΠ»ΠΎΠ΄ΡΡ ΠΎΠ΄ΠΈΠ½ΠΎΠΊΠΈΡ Π»ΡΠ΄Π΅ΠΉ ΠΈΠ»ΠΈ Π±Π΅Π·Π΄Π΅ΡΠ½ΡΡ ΠΏΠ°Ρ.Π’Π°ΠΊΠ°Ρ ΠΏΠ΅ΡΠ΅ΠΏΠ»Π°Π½ΠΈΡΠΎΠ²ΠΊΠ° ΠΎΠ΄Π½ΠΎΠΊΠΎΠΌΠ½Π°ΡΠ½ΠΎΠΉ ΠΊΠ²Π°ΡΡΠΈΡΡ Π΄Π°Π΅Ρ Π½Π΅Π΄ΠΎΡΡΠ°ΡΡΠ΅Π΅ ΠΏΡΠΎΡΡΡΠ°Π½ΡΡΠ²ΠΎ ΠΈ ΡΠ²ΠΎΠ±ΠΎΠ΄Ρ Π΄Π΅ΠΉΡΡΠ²ΠΈΠΉ. ΠΠΎ ΡΠ΅ΠΌΡΠΈ Ρ Π΄Π΅ΡΡΠΌΠΈ ΠΏΡΠ΅Π΄ΠΏΠΎΡΡΡΡ, ΡΠΊΠΎΡΠ΅Π΅, Π΄Π²ΡΡ ΠΊΠΎΠΌΠ½Π°ΡΠ½ΡΡ ΠΊΠ²Π°ΡΡΠΈΡΡ, ΡΡΠΎΠ±Ρ ΠΈ Ρ ΡΠ΅Π±Π΅Π½ΠΊΠ°, ΠΈ Ρ Π²Π·ΡΠΎΡΠ»ΡΡ Π±ΡΠ» ΡΠ²ΠΎΠΉ ΡΠ³ΠΎΠ»ΠΎΠΊ.
ΠΠ°Π²Π°ΠΉΡΠ΅ ΠΏΠΎΠ΄ΡΠΎΠ±Π½Π΅Π΅ ΠΏΠΎΠ³ΠΎΠ²ΠΎΡΠΈΠΌ ΠΎ ΠΊΠ°ΠΆΠ΄ΠΎΠΌ Π²Π°ΡΠΈΠ°Π½ΡΠ΅. ΠΡΠ°ΠΊ, ΠΊΠ°ΠΊΠ°Ρ ΠΏΠ΅ΡΠ΅ΠΏΠ»Π°Π½ΠΈΡΠΎΠ²ΠΊΠ° ΠΊΠ²Π°ΡΡΠΈΡΡ Π² ΡΡΡΠ΄ΠΈΡ? ΠΡΠΎ ΠΈΠ·Π±Π°Π²Π»Π΅Π½ΠΈΠ΅ ΠΎΡ ΠΏΡΠ°ΠΊΡΠΈΡΠ΅ΡΠΊΠΈ Π²ΡΠ΅Ρ ΠΌΠ΅ΠΆΠΊΠΎΠΌΠ½Π°ΡΠ½ΡΡ ΠΏΠ΅ΡΠ΅Π³ΠΎΡΠΎΠ΄ΠΎΠΊ, ΠΊΡΠΎΠΌΠ΅, ΠΊΠΎΠ½Π΅ΡΠ½ΠΎ ΠΆΠ΅, ΡΡΠ΅Π½ Π²Π°Π½Π½ΠΎΠΉ ΠΊΠΎΠΌΠ½Π°ΡΡ. ΠΡΠΈ ΡΡΠΎΠΌ ΠΊΠΎΠΌΠ½Π°ΡΠ° Π΄Π΅Π»ΠΈΡΡΡ Π½Π° ΡΠ°Π·Π»ΠΈΡΠ½ΡΠ΅ ΡΡΠ½ΠΊΡΠΈΠΎΠ½Π°Π»ΡΠ½ΡΠ΅ Π·ΠΎΠ½Ρ: Π΄Π»Ρ ΡΠ½Π°, ΡΠ°Π±ΠΎΡΡ, ΠΎΡΠ΄ΡΡ Π° ΠΈ ΠΏΡΠΈΠ³ΠΎΡΠΎΠ²Π»Π΅Π½ΠΈΡ ΠΏΠΈΡΠΈ.Π‘ΠΏΠΎΡΠΎΠ±Ρ Π·ΠΎΠ½ΠΈΡΠΎΠ²Π°Π½ΠΈΡ ΠΎΠ³ΡΠΎΠΌΠ½Ρ. ΠΠΎΠΆΠ°Π»ΡΠΉ, ΡΠ°ΠΌΡΠΉ Π΄ΠΎΡΡΡΠΏΠ½ΡΠΉ ΠΈΠ· Π½ΠΈΡ — ΠΎΠΊΠ»Π΅ΠΉΠΊΠ° ΡΡΠ΅Π½ ΡΠ°Π·Π½ΡΠΌΠΈ ΠΎΠ±ΠΎΡΠΌΠΈ ΠΈ ΠΈΡΠΏΠΎΠ»ΡΠ·ΠΎΠ²Π°Π½ΠΈΠ΅ ΡΠ°Π·Π½ΡΡ ΠΏΠΎΠΊΡΡΡΠΈΠΉ Π΄Π»Ρ ΠΏΠΎΠ»Π°. ΠΡΠ°ΠΊ, ΠΊΠ²Π°ΡΡΠΈΡΠ° ΠΏΡΠ΅Π²ΡΠ°ΡΠΈΡΡΡ Π² ΠΎΡΠ΄Π΅Π»ΡΠ½ΡΠ΅ ΠΎΡΡΡΠΎΠ²ΠΊΠΈ, Π½Π° ΠΊΠΎΡΠΎΡΡΡ Π²Ρ Π±ΡΠ΄Π΅ΡΠ΅ Π³ΠΎΡΠΎΠ²ΠΈΡΡ Π΅Π΄Ρ, ΡΠ°Π±ΠΎΡΠ°ΡΡ, ΡΠΏΠ°ΡΡ, ΡΠΌΠΎΡΡΠ΅ΡΡ ΡΠ΅Π»Π΅Π²ΠΈΠ·ΠΎΡ.
ΠΠ΅ΡΠ΅ΠΏΠ»Π°Π½ΠΈΡΠΎΠ²ΠΊΠ° ΠΎΠ΄Π½ΠΎΠΊΠΎΠΌΠ½Π°ΡΠ½ΠΎΠΉ ΠΊΠ²Π°ΡΡΠΈΡΡ Ρ Π²ΡΡΠΎΠΊΠΈΠΌ ΠΏΠΎΡΠΎΠ»ΠΊΠΎΠΌ ΠΏΠΎΠ·Π²ΠΎΠ»ΡΠ΅Ρ Π·Π°Π΄ΡΠΌΠ°ΡΡΡΡ ΠΎΠ± ΠΈΡΠΏΠΎΠ»ΡΠ·ΠΎΠ²Π°Π½ΠΈΠΈ ΡΡΠΎΠ²Π½Π΅ΠΉ Π΄Π»Ρ Π·ΠΎΠ½ΠΈΡΠΎΠ²Π°Π½ΠΈΡ. Π’Π°ΠΊ, ΠΊΡΠΎΠ²Π°ΡΡ ΠΌΠΎΠΆΠ½ΠΎ ΠΏΠΎΡΡΠ°Π²ΠΈΡΡ Π½Π° ΠΏΠΎΠ΄ΠΈΡΠΌ, ΠΎΡΠ΄Π΅Π»ΠΈΠ² ΡΠΏΠ°Π»ΡΠ½ΡΡ Π·ΠΎΠ½Ρ ΠΎΡ ΠΎΡΡΠ°Π»ΡΠ½ΠΎΠ³ΠΎ ΠΏΡΠΎΡΡΡΠ°Π½ΡΡΠ²Π°. ΠΡΡΠ³ΠΎΠΉ Π²Π°ΡΠΈΠ°Π½Ρ — ΠΎΡΠ³Π°Π½ΠΈΠ·Π°ΡΠΈΡ ΡΠ°Π±ΠΎΡΠ΅Π³ΠΎ ΠΌΠ΅ΡΡΠ° ΠΈΠ»ΠΈ ΡΠ°ΠΊΠΎΠΉ ΠΆΠ΅ Π·ΠΎΠ½Ρ ΡΠ½Π° Π½Π° Π²Π΅ΡΡ Π½Π΅ΠΌ Π²ΡΠΎΡΠΎΠΌ ΡΡΠ°ΠΆΠ΅.ΠΡΠ»ΠΈΡΠ½ΡΠΉ ΡΠΏΠΎΡΠΎΠ± ΠΎΡΠ΄Π΅Π»ΠΈΡΡ ΡΡΠ½ΠΊΡΠΈΠΎΠ½Π°Π»ΡΠ½ΡΠ΅ Π·ΠΎΠ½Ρ Π΄ΡΡΠ³ ΠΎΡ Π΄ΡΡΠ³Π° — ΠΈΡΠΏΠΎΠ»ΡΠ·ΠΎΠ²Π°Π½ΠΈΠ΅ ΠΏΠ΅ΡΠ΅Π³ΠΎΡΠΎΠ΄ΠΎΠΊ. ΠΠ°ΠΏΡΠΈΠΌΠ΅Ρ, ΠΊΡΡ ΠΎΠ½Π½ΡΡ ΡΠ°ΡΡΡ ΠΌΠΎΠΆΠ½ΠΎ ΠΎΡΠ΄Π΅Π»ΠΈΡΡ Ρ ΠΏΠΎΠΌΠΎΡΡΡ Π±Π°ΡΠ½ΠΎΠΉ ΡΡΠΎΠΉΠΊΠΈ, ΠΊΠΎΡΠΎΡΠ°Ρ ΠΊ ΡΠΎΠΌΡ ΠΆΠ΅ ΠΌΠΎΠΆΠ΅Ρ ΡΠ»ΡΠΆΠΈΡΡ Ρ ΠΎΡΠΎΡΠΈΠΌ ΡΡΠΎΠ»ΠΎΠΌ Π΄Π»Ρ ΡΠ΅ΠΌΠ΅ΠΉΠ½ΡΡ Π·Π°Π²ΡΡΠ°ΠΊΠΎΠ² ΠΈ ΡΠΆΠΈΠ½ΠΎΠ². Π‘ΠΏΠ°Π»ΡΠ½Π°Ρ Π·ΠΎΠ½Π° ΠΎΡΠ΅Π½Ρ ΡΠ΄ΠΎΠ±Π½ΠΎ ΠΎΡΠ³ΠΎΡΠΎΠΆΠ΅Π½Π° ΠΏΠΎΠ΄Π²ΠΈΠΆΠ½ΡΠΌΠΈ ΠΏΠ΅ΡΠ΅Π³ΠΎΡΠΎΠ΄ΠΊΠ°ΠΌΠΈ. ΠΡΠΈ Π½Π΅ΠΎΠ±Ρ ΠΎΠ΄ΠΈΠΌΠΎΡΡΠΈ ΡΠ°ΠΊΠΎΠΉ ΠΆΠ΅ ΠΏΠ΅ΡΠ΅Π³ΠΎΡΠΎΠ΄ΠΊΠΎΠΉ ΠΌΠΎΠΆΠ½ΠΎ ΠΎΡΠ΄Π΅Π»ΠΈΡΡ ΠΈ Π»ΡΠ±ΡΡ Π΄ΡΡΠ³ΡΡ Π·ΠΎΠ½Ρ.
ΠΠ±ΡΠ°ΡΠ°Π΅ΠΌ Π²Π°ΡΠ΅ Π²Π½ΠΈΠΌΠ°Π½ΠΈΠ΅, ΡΡΠΎ Π²ΡΠ΅ Π·Π°ΠΊΠΎΠ½Ρ ΡΠ΅Π³ΡΠ»ΠΈΡΡΡΡ Π²ΡΠ΅ ΠΌΠΎΠΌΠ΅Π½ΡΡ, ΠΊΠ°ΡΠ°ΡΡΠΈΠ΅ΡΡ ΡΠ°ΠΊΠΎΠ³ΠΎ Π²ΠΎΠΏΡΠΎΡΠ°, ΠΊΠ°ΠΊ ΠΏΠ΅ΡΠ΅ΠΏΠ»Π°Π½ΠΈΡΠΎΠ²ΠΊΠ° ΠΊΠ²Π°ΡΡΠΈΡΡ.ΠΠ°ΠΊΠΎΠ½, Π½Π°ΠΏΡΠΈΠΌΠ΅Ρ, Π½Π΅ ΡΠ°Π·ΡΠ΅ΡΠ°Π΅Ρ ΡΠ½Π΅ΡΡΠΈ ΡΡΠ΅Π½Ρ ΠΌΠ΅ΠΆΠ΄Ρ ΠΊΡΡ Π½Π΅ΠΉ ΠΈ ΠΎΡΡΠ°Π»ΡΠ½ΡΠΌ ΠΏΡΠΎΡΡΡΠ°Π½ΡΡΠ²ΠΎΠΌ, Π΅ΡΠ»ΠΈ Π½Π° Π½Π΅ΠΉ Π΅ΡΡΡ Π³Π°Π·ΠΎΠ²Π°Ρ ΠΏΠ»ΠΈΡΠ°. ΠΠΎΡΡΠΎΠΌΡ ΠΏΠ΅ΡΠ΅Π΄ ΡΠ΅ΠΌ, ΠΊΠ°ΠΊ Π²Π½ΠΎΡΠΈΡΡ ΠΈΠ·ΠΌΠ΅Π½Π΅Π½ΠΈΡ Π² ΡΠ²ΠΎΡ ΠΊΠ²Π°ΡΡΠΈΡΡ, Π²Π½ΠΈΠΌΠ°ΡΠ΅Π»ΡΠ½ΠΎ ΠΈΠ·ΡΡΠΈΡΠ΅ ΡΠΎΠΎΡΠ²Π΅ΡΡΡΠ²ΡΡΡΠΈΠ΅ ΠΏΠΎΠ»ΠΎΠΆΠ΅Π½ΠΈΡ ΠΈΠ»ΠΈ ΠΏΡΠΎΠΊΠΎΠ½ΡΡΠ»ΡΡΠΈΡΡΠΉΡΠ΅ΡΡ ΡΠΎ ΡΠΏΠ΅ΡΠΈΠ°Π»ΠΈΡΡΠΎΠΌ.ΠΠ΅ΡΠ΅ΠΏΠ»Π°Π½ΠΈΡΠΎΠ²ΠΊΠ° ΠΎΠ΄Π½ΠΎΠΊΠΎΠΌΠ½Π°ΡΠ½ΠΎΠΉ ΠΊΠ²Π°ΡΡΠΈΡΡ Π² Π΄Π²ΡΡ ΠΊΠΎΠΌΠ½Π°ΡΠ½ΡΡ Π²ΠΎΠ·ΠΌΠΎΠΆΠ½Π° Π΄Π²ΡΠΌΡ ΡΠΏΠΎΡΠΎΠ±Π°ΠΌΠΈ: ΡΡΠ΅Π½ΠΎΠΉ ΠΈΠ»ΠΈ ΠΌΠ΅Π±Π΅Π»ΡΡ. ΠΠ΅ΡΠ²ΡΠΉ Π²Π°ΡΠΈΠ°Π½Ρ ΠΏΠΎΠ΄Ρ ΠΎΠ΄ΠΈΡ ΡΠΎΠ»ΡΠΊΠΎ Π² ΡΠΎΠΌ ΡΠ»ΡΡΠ°Π΅, ΠΊΠΎΠ³Π΄Π° ΠΏΠΎΠ·Π²ΠΎΠ»ΡΠ΅Ρ ΠΏΠ»ΠΎΡΠ°Π΄Ρ ΠΏΠΎΠΌΠ΅ΡΠ΅Π½ΠΈΡ. ΠΡΠΎΡΠΎΠΉ Π²Π°ΡΠΈΠ°Π½Ρ ΡΠ½ΠΈΠ²Π΅ΡΡΠ°Π»Π΅Π½. ΠΠ½ ΠΏΡΠΈΠΌΠ΅Π½ΠΈΠΌ ΠΊΠ°ΠΊ Π² ΠΌΠ°Π»Π΅Π½ΡΠΊΠΈΡ , ΡΠ°ΠΊ ΠΈ Π² Π±ΠΎΠ»ΡΡΠΈΡ ΠΏΠΎΠΌΠ΅ΡΠ΅Π½ΠΈΡΡ .ΠΡΠ΄Π΅Π»ΠΈΡΡ Π½Π΅Π±ΠΎΠ»ΡΡΡΡ ΠΊΠΎΠΌΠ½Π°ΡΡ ΠΌΠΎΠΆΠ½ΠΎ Ρ ΠΏΠΎΠΌΠΎΡΡΡ ΡΡΠ΅Π»Π»Π°ΠΆΠ° ΠΈΠ»ΠΈ ΠΊΠ½ΠΈΠΆΠ½ΠΎΠ³ΠΎ ΡΠΊΠ°ΡΠ°. Π ΡΡΠΎΠΌ ΡΠ»ΡΡΠ°Π΅ ΠΏΡΠ΅Π΄ΠΌΠ΅Ρ ΠΌΠ΅Π±Π΅Π»ΠΈ Π±ΡΠ΄Π΅Ρ Π½Π΅ ΡΠΎΠ»ΡΠΊΠΎ ΠΈΠ³ΡΠ°ΡΡ ΡΠΎΠ»Ρ ΡΡΠ΅Π½Ρ, Π½ΠΎ ΠΈ Π²ΡΠΏΠΎΠ»Π½ΡΡΡ ΡΠ²ΠΎΡ ΠΏΠ΅ΡΠ²ΠΎΠ½Π°ΡΠ°Π»ΡΠ½ΡΡ ΡΡΠ½ΠΊΡΠΈΡ — Ρ ΡΠ°Π½ΠΈΡΡ ΠΊΠ½ΠΈΠ³ΠΈ, Π΄Π΅ΡΡΠΊΠΈΠ΅ ΠΈΠ³ΡΡΡΠΊΠΈ ΠΈ Ρ. Π.
Π‘ΡΠ΄Ρ ΠΏΠΎ Π²ΡΠ΅ΠΌΡ, ΠΏΠ΅ΡΠ΅ΠΏΠ»Π°Π½ΠΈΡΠΎΠ²ΠΊΠ° ΠΎΠ΄Π½ΠΎΠΊΠΎΠΌΠ½Π°ΡΠ½ΠΎΠΉ ΠΊΠ²Π°ΡΡΠΈΡΡ Π΄Π°Π΅Ρ ΠΎΠ³ΡΠΎΠΌΠ½ΠΎΠ΅ ΠΏΠΎΠ»Π΅ Π΄Π»Ρ Π²ΠΎΠΎΠ±ΡΠ°ΠΆΠ΅Π½ΠΈΠ΅. Π₯ΠΎΡΡ, ΠΊΠ°Π·Π°Π»ΠΎΡΡ Π±Ρ, ΡΠ°ΠΊΠ°Ρ ΠΌΠ°Π»Π΅Π½ΡΠΊΠ°Ρ ΠΊΠΎΠΌΠ½Π°ΡΠ°, Π½ΠΎ Π΅ΡΡΡ Π³Π΄Π΅ ΡΠ°Π·Π²Π΅ΡΠ½ΡΡΡΡΡ ΠΈ Π²ΠΎΠΏΠ»ΠΎΡΠΈΡΡ Π² ΠΆΠΈΠ·Π½Ρ ΡΠ²ΠΎΠΈ ΠΌΠ΅ΡΡΡ. ΠΠ΅ΡΠ·Π°ΠΉ! Π’Ρ Π΄ΠΎΡΡΠΈΠ³Π½Π΅ΡΡ ΡΡΠΏΠ΅Ρ Π°!
ΠΠ΄Π°Π½ΠΈΠ΅ Butler Brothers ΠΏΠΎΠ΄Π²Π΅ΡΠ³Π½Π΅ΡΡΡ ΠΌΠ°ΡΡΡΠ°Π±Π½ΠΎΠΉ ΡΠ΅ΠΊΠΎΠ½ΡΡΡΡΠΊΡΠΈΠΈ
ΠΠ΄Π½ΠΎ ΠΈΠ· ΡΠ°ΠΌΡΡ Π±ΠΎΠ»ΡΡΠΈΡ ΠΏΡΡΡΡΡΡΠΈΡ Π·Π΄Π°Π½ΠΈΠΉ Π² ΡΠ΅Π½ΡΡΠ΅ Π³ΠΎΡΠΎΠ΄Π° Π²ΡΠΊΠΎΡΠ΅ ΠΏΠΎΠ΄Π²Π΅ΡΠ³Π½Π΅ΡΡΡ ΡΡΠ°ΡΠ΅Π»ΡΠ½ΠΎΠΉ ΠΈ ΠΌΠ°ΡΡΡΠ°Π±Π½ΠΎΠΉ ΡΠ΅ΠΊΠΎΠ½ΡΡΡΡΠΊΡΠΈΠΈ, ΠΊΠΎΡΠΎΡΠ°Ρ Π² ΡΠ»ΡΡΠ°Π΅ ΡΡΠΏΠ΅Ρ Π° ΠΌΠΎΠΆΠ΅Ρ ΡΡΠΈΠΌΡΠ»ΠΈΡΠΎΠ²Π°ΡΡ Π΄Π°Π»ΡΠ½Π΅ΠΉΡΠ΅Π΅ ΡΠ°Π·Π²ΠΈΡΠΈΠ΅ Π² ΡΠ΅Π½ΡΡΠ΅ Π³ΠΎΡΠΎΠ΄Π°.
ΠΠΎΡΠ»Π΅ ΡΠΎΠ³ΠΎ, ΠΊΠ°ΠΊ ΡΡΠ°Π»ΠΎ ΠΈΠ·Π²Π΅ΡΡΠ½ΠΎ, ΡΡΠΎ Development Services Group, ΠΊΠΎΠΌΠΏΠ°Π½ΠΈΡ ΠΈΠ· ΠΠ΅ΠΌΡΠΈΡΠ°, Π’Π΅Π½Π½Π΅ΡΡΠΈ, ΠΏΡΠΈΠΎΠ±ΡΠ΅Π»Π° Π·Π΄Π°Π½ΠΈΠ΅, Π·Π°Π½ΠΈΠΌΠ°ΡΡΠ΅Π΅ ΡΠ΅Π»ΡΠΉ ΠΊΠ²Π°ΡΡΠ°Π» Π² ΠΠ°ΠΏΠ°Π΄Π½ΠΎΠΌ ΠΠ°ΡΠ½ΡΠ°ΡΠ½Π΅, Π½Π°ΡΠ°Π»ΠΈΡΡ ΡΠ»ΡΡ ΠΈ ΠΎ ΡΠΎΠΌ, ΡΡΠΎ ΠΌΡ ΠΌΠΎΠΆΠ΅ΠΌ Π·Π΄Π΅ΡΡ ΡΠ²ΠΈΠ΄Π΅ΡΡ. ΠΠ΅ΠΊΠΎΡΠΎΡΡΠ΅ ΠΏΡΠ΅Π΄ΡΡΠ°Π²Π»ΡΠ»ΠΈ ΠΊΠΎΠΌΠ±ΠΎ-ΠΎΡΠ΅Π»Ρ Ρ Π°ΠΏΠ°ΡΡΠ°ΠΌΠ΅Π½ΡΠ°ΠΌΠΈ ΠΈΠ·-Π·Π° ΠΎΠ³ΡΠΎΠΌΠ½ΡΡ ΡΠ°Π·ΠΌΠ΅ΡΠΎΠ² Π·Π΄Π°Π½ΠΈΡ. Π’Π΅ΠΏΠ΅ΡΡ ΠΌΡ Π·Π½Π°Π΅ΠΌ ΠΌΠ°ΡΡΡΠ°Π± Π±Π»Π°Π³ΠΎΠ΄Π°ΡΡ ΠΏΠ»Π°Π½Π°ΠΌ, ΠΏΡΠ΅Π΄ΡΡΠ°Π²Π»Π΅Π½Π½ΡΠΌ Paric Π² SLDC Planroom: 384 ΠΊΠ²Π°ΡΡΠΈΡΡ, Π΄Π²Π° ΡΠΎΡΠ³ΠΎΠ²ΡΡ ΠΏΠΎΠΌΠ΅ΡΠ΅Π½ΠΈΡ (Π²ΡΠ΅Π³ΠΎ 15 000 ΠΊΠ²Π°Π΄ΡΠ°ΡΠ½ΡΡ ΡΡΡΠΎΠ² ΡΠΎΡΠ³ΠΎΠ²ΡΡ ΠΏΠ»ΠΎΡΠ°Π΄Π΅ΠΉ) ΠΈ 406 ΠΏΠ°ΡΠΊΠΎΠ²ΠΎΡΠ½ΡΡ ΠΌΠ΅ΡΡ. Π Π°ΡΠΏΡΠ΅Π΄Π΅Π»Π΅Π½ΠΈΠ΅ ΠΊΠ²Π°ΡΡΠΈΡ Π² Π½Π°ΡΡΠΎΡΡΠ΅Π΅ Π²ΡΠ΅ΠΌΡ ΡΡΡΠ°Π½ΠΎΠ²Π»Π΅Π½ΠΎ Π½Π° 24 ΡΡΡΠ΄ΠΈΠΈ, 295 ΠΊΠ²Π°ΡΡΠΈΡ Ρ ΠΎΠ΄Π½ΠΎΠΉ ΡΠΏΠ°Π»ΡΠ½Π΅ΠΉ ΠΈ 65 ΠΊΠ²Π°ΡΡΠΈΡ Ρ Π΄Π²ΡΠΌΡ ΡΠΏΠ°Π»ΡΠ½ΡΠΌΠΈ.Π‘ΠΈΠ»ΡΠ½Π°Ρ Π·Π°Π²ΠΈΡΠΈΠΌΠΎΡΡΡ ΠΎΡ ΠΊΠ²Π°ΡΡΠΈΡ Ρ ΠΎΠ΄Π½ΠΎΠΉ ΡΠΏΠ°Π»ΡΠ½Π΅ΠΉ ΡΡΠ°Π»Π° Π±ΠΎΠ»Π΅Π΅ ΡΠ°ΡΠΏΡΠΎΡΡΡΠ°Π½Π΅Π½Π½ΠΎΠΉ Π² ΠΏΠΎΡΠ»Π΅Π΄Π½Π΅Π΅ Π²ΡΠ΅ΠΌΡ Π² ΠΌΠ½ΠΎΠ³ΠΎΠΊΠ²Π°ΡΡΠΈΡΠ½ΡΡ Π΄ΠΎΠΌΠ°Ρ Π² Π‘Π΅Π½Ρ-ΠΡΠΈΡΠ΅, ΠΈ ΠΎΠ΄ΠΈΠ½ Π·Π½Π°ΠΊΠΎΠΌΡΠΉ Π·Π°ΡΡΡΠΎΠΉΡΠΈΠΊ ΡΠΊΠ°Π·Π°Π» ΠΌΠ½Π΅, ΡΡΠΎ ΡΡΠΈ ΠΊΠ²Π°ΡΡΠΈΡΡ, ΠΊΠ°ΠΊ ΠΏΡΠ°Π²ΠΈΠ»ΠΎ, Π·Π°ΠΏΠΎΠ»Π½ΡΡΡΡΡ Π±ΡΡΡΡΠ΅Π΅ Π²ΡΠ΅Ρ .
ΠΠ»Π°Π½ΠΈΡΡΠ΅ΡΡΡ, ΡΡΠΎ Π°ΡΡΠΈΡΠΌ Π·Π΄Π°Π½ΠΈΡ Π±ΡΠ΄Π΅Ρ ΡΠ°ΡΡΠΈΡΠ΅Π½, ΡΡΠΎ ΠΏΠΎΠ·Π²ΠΎΠ»ΠΈΡ Π²ΡΠ΄Π΅Π»ΠΈΡΡ ΡΠ΅Π½ΡΡΠ°Π»ΡΠ½ΠΎΠ΅ ΠΏΡΠΎΡΡΡΠ°Π½ΡΡΠ²ΠΎ Π²Π½ΡΡΡΠ΅Π½Π½Π΅Π³ΠΎ Π΄Π²ΠΎΡΠ°, ΡΠ°Π·ΡΠ΅ΡΠΈΡΡ ΡΠ°Π·ΠΌΠ΅ΡΠ΅Π½ΠΈΠ΅ ΠΊΠ²Π°ΡΡΠΈΡ ΠΈ ΡΠΎΠΊΡΠ°ΡΠΈΡΡ ΠΊΠΎΠ»ΠΈΡΠ΅ΡΡΠ²ΠΎ ΠΌΠ΅ΡΡΠ²ΡΡ ΠΏΡΠΎΡΡΡΠ°Π½ΡΡΠ². ΠΠ»Π°Π½Ρ ΡΡΠ°ΠΆΠ΅ΠΉ, ΠΎΠΊΡΡΠΆΠ°ΡΡΠΈΡ ΡΡΠΎΡ Π²Π½ΡΡΡΠ΅Π½Π½ΠΈΠΉ Π΄Π²ΠΎΡ, ΠΏΠΎΠΊΠ°Π·ΡΠ²Π°ΡΡ ΡΡΠ΄ ΡΠ΄ΠΎΠ±ΡΡΠ², Π²ΠΊΠ»ΡΡΠ°Ρ Π³ΠΎΡΡΠΈΠ½ΡΡ, ΡΠΈΡΠ½Π΅Ρ-ΡΠ΅Π½ΡΡ, Π±Π°Ρ Ρ ΡΠΎΠΊΠ°ΠΌΠΈ, Ρ ΡΠ°Π½ΠΈΠ»ΠΈΡΠ΅ Π΄Π»Ρ Π²Π΅Π»ΠΎΡΠΈΠΏΠ΅Π΄ΠΎΠ², ΡΠΏΠ° Π΄Π»Ρ ΡΠΎΠ±Π°ΠΊ, ΠΈΠ³ΡΠΎΠ²ΡΡ ΠΊΠΎΠΌΠ½Π°ΡΡ ΠΈ ΡΠΊΡΠ°Π½Π½ΡΡ ΠΊΠΎΠΌΠ½Π°ΡΡ.ΠΠ°ΡΠΊΠΎΠ²ΠΊΠ° Π±ΡΠ΄Π΅Ρ ΠΎΠΊΡΡΠΆΠ°ΡΡ ΠΌΠ΅ΡΡΠ° Ρ ΡΠ΄ΠΎΠ±ΡΡΠ²Π°ΠΌΠΈ ΠΈ Π·Π°ΠΉΠΌΠ΅Ρ ΠΎΡΡΠ°Π²ΡΡΡΡΡ ΡΠ°ΡΡΡ Π²ΡΠΎΡΠΎΠ³ΠΎ ΡΡΠ°ΠΆΠ°. ΠΠ° ΠΏΠ΅ΡΠ²ΠΎΠΌ ΡΡΠ°ΠΆΠ΅ ΡΠΎΡΠ³ΠΎΠ²ΡΠ΅ ΠΏΠ»ΠΎΡΠ°Π΄ΠΈ Π±ΡΠ΄ΡΡ Π²ΡΡ ΠΎΠ΄ΠΈΡΡ Π½Π° 18-Ρ ΡΠ»ΠΈΡΡ, Π° ΠΎΠ΄Π½ΠΎ ΠΏΡΠΎΡΡΡΠ°Π½ΡΡΠ²ΠΎ Π±ΡΠ΄Π΅Ρ Π²ΡΡ ΠΎΠ΄ΠΈΡΡ Π½Π° ΡΠ»ΠΈΡΡ ΠΠ»ΠΈΠ²-ΡΡΡΠΈΡ. ΠΠ»Π°Π²Π½ΡΠΉ Π²Ρ ΠΎΠ΄ Π² Π·Π΄Π°Π½ΠΈΠ΅ ΡΠ°ΠΊΠΆΠ΅ Π±ΡΠ΄Π΅Ρ ΡΠΎ ΡΡΠΎΡΠΎΠ½Ρ 18-ΠΉ ΡΠ»ΠΈΡΡ. ΠΡΠΎΠΌΠ΅ ΡΠΎΠ³ΠΎ, ΠΏΠ΅ΡΠ²ΡΠΉ ΡΡΠ°ΠΆ Π±ΡΠ΄Π΅Ρ Π²ΠΊΠ»ΡΡΠ°ΡΡ Π² ΡΠ΅Π±Ρ ΠΊΠΎΠ²ΠΎΡΠΊΠΈΠ½Π³, ΠΊΠΎΠΌΠ½Π°ΡΡ Π΄Π»Ρ ΠΏΠ°ΠΊΠ΅ΡΠΎΠ², ΠΏΠΎΡΡΠΎΠ²ΡΡ ΠΊΠΎΠΌΠ½Π°ΡΡ ΠΈ, ΠΊΠ°ΠΊ ΠΏΡΠ΅Π΄ΠΏΠΎΠ»Π°Π³Π°Π΅ΡΡΡ, ΠΎΡΠΈΡΡ ΡΠΏΡΠ°Π²Π»Π΅Π½ΠΈΡ Π·Π΄Π°Π½ΠΈΠ΅ΠΌ ΠΈ Π°ΡΠ΅Π½Π΄Ρ, Π° ΡΠ°ΠΊΠΆΠ΅ Π΄ΠΎΠΏΠΎΠ»Π½ΠΈΡΠ΅Π»ΡΠ½ΡΠ΅ ΠΏΠ°ΡΠΊΠΎΠ²ΠΎΡΠ½ΡΠ΅ ΠΌΠ΅ΡΡΠ°. Π Π·Π°ΠΏΠ°Π΄Π½ΠΎΠΉ ΠΏΠΎΠ»ΠΎΠ²ΠΈΠ½Π΅ ΡΠΎΠΊΠΎΠ»ΡΠ½ΠΎΠ³ΠΎ ΡΡΠ°ΠΆΠ° Π±ΡΠ΄Π΅Ρ ΠΏΠ°ΡΠΊΠΎΠ²ΠΊΠ°.
ΠΠΎΡΡΠ°ΠΆΠ½ΡΠ΅ ΠΏΠ»Π°Π½Ρ ΠΏΡΠ΅Π΄ΡΡΠ°Π²Π»Π΅Π½Ρ Π½ΠΈΠΆΠ΅. ΠΠ°ΠΆΠΌΠΈΡΠ΅ Π½Π° Π»ΡΠ±ΠΎΠΉ ΠΈΠ· Π½ΠΈΡ , ΡΡΠΎΠ±Ρ ΡΠ²ΠΈΠ΄Π΅ΡΡ Π΅Π³ΠΎ Π² ΡΠ²Π΅Π»ΠΈΡΠ΅Π½Π½ΠΎΠΌ Π²ΠΈΠ΄Π΅.
ΠΠ° ΠΊΡΡΡΠ΅, ΡΠΎΠ³Π»Π°ΡΠ½ΠΎ ΠΏΠ»Π°Π½Π°ΠΌ, ΡΡΠ΅Π±ΡΠ΅ΡΡΡ Π±ΠΎΠ»ΡΡΠΎΠ΅ ΠΎΡΠΊΡΡΡΠΎΠ΅ ΠΏΡΠΎΡΡΡΠ°Π½ΡΡΠ²ΠΎ. ΠΠ°ΡΡΠΎΠ»ΡΠΊΠΎ Π±ΠΎΠ»ΡΡΠΎΠΉ, ΡΡΠΎ ΡΠ°ΠΌ Π±ΡΠ»Π° Π±Ρ ΠΏΡΠΎΠ³ΡΠ»ΠΎΡΠ½Π°Ρ / Π±Π΅Π³ΠΎΠ²Π°Ρ Π΄ΠΎΡΠΎΠΆΠΊΠ°, Π±Π°ΡΡΠ΅ΠΉΠ½ ΠΈ ΡΠΎΠ»ΡΡΠΈΠΉ. ΠΡΠΎΡΡΡΠ°Π½ΡΡΠ²ΠΎ Π±ΡΠ΄Π΅Ρ Π²ΡΡ ΠΎΠ΄ΠΈΡΡ Π½Π° Π·Π°ΠΏΠ°Π΄, Π° ΡΡΠΎ ΠΎΠ·Π½Π°ΡΠ°Π΅Ρ, ΡΡΠΎ ΠΆΠΈΡΠ΅Π»ΠΈ, ΠΈΡΠΏΠΎΠ»ΡΠ·ΡΡΡΠΈΠ΅ ΡΠ΅ΡΡΠ°ΡΡ Π½Π° ΠΊΡΡΡΠ΅, ΡΠΌΠΎΠ³ΡΡ ΡΠ²ΠΈΠ΄Π΅ΡΡ ΡΡΠ°Π΄ΠΈΠΎΠ½ St. Louis City SC, Π²Ρ ΠΎΠ΄ Π² ΠΊΠΎΡΠΎΡΡΠΉ Π±ΡΠ΄Π΅Ρ ΡΠ°ΡΠΏΠΎΠ»ΠΎΠΆΠ΅Π½ Π²ΡΠ΅Π³ΠΎ Π² 2 ΠΊΠ²Π°ΡΡΠ°Π»Π°Ρ ΠΎΡ Butler Brothers.
ΠΠΎΡΡΠ°ΠΆΠ½ΡΠ΅ ΠΏΠ»Π°Π½Ρ ΠΏΠΎΠΊΠ°Π·ΡΠ²Π°ΡΡ ΠΊΠ²Π°ΡΡΠΈΡΡ, ΠΊΠΎΡΠΎΡΡΠ΅ ΡΡΡΠΎΡΡΡΡ Π½Π° 3-8 ΡΡΠ°ΠΆΠ°Ρ , ΠΏΡΠΈΡΠ΅ΠΌ ΠΊΠ°ΠΆΠ΄Π°Ρ ΠΊΠ²Π°ΡΡΠΈΡΠ°, Π²ΡΡ ΠΎΠ΄ΡΡΠ°Ρ Π½Π° ΡΠ»ΠΈΡΡ, ΠΈΠΌΠ΅Π΅Ρ ΠΊΠ°ΠΊ ΠΌΠΈΠ½ΠΈΠΌΡΠΌ 2 Π±ΠΎΠ»ΡΡΠΈΡ ΠΎΠΊΠ½Π°.Π ΠΊΠ²Π°ΡΡΠΈΡΠ°Ρ Ρ Π²Π½ΡΡΡΠ΅Π½Π½Π΅ΠΉ ΠΎΠ±Π»ΠΈΡΠΎΠ²ΠΊΠΎΠΉ Π±ΡΠ΄Π΅Ρ Π½Π΅ΡΠΊΠΎΠ»ΡΠΊΠΎ ΠΎΠΊΠΎΠ½ ΠΈΠ»ΠΈ, Π² ΡΠ»ΡΡΠ°Π΅ ΡΠ°ΡΡΠΈΡΠ΅Π½ΠΈΡ Π°ΡΡΠΈΡΠΌΠ°, ΡΠ°ΡΡΠ½ΡΠ΅ ΡΠ΅ΡΡΠ°ΡΡ / Π±Π°Π»ΠΊΠΎΠ½Ρ. Π₯ΠΎΡΡ ΡΡΠΎ Π½Π΅ ΡΠΊΠ°Π·Π°Π½ΠΎ Π² ΠΏΠ»Π°Π½Π°Ρ , ΠΏΡΠ΅Π΄ΠΏΠΎΠ»Π°Π³Π°Π΅ΡΡΡ, ΡΡΠΎ ΡΡΠΈ Π°ΠΏΠ°ΡΡΠ°ΠΌΠ΅Π½ΡΡ Π±ΡΠ΄ΡΡ ΡΡΠΈΡΠ°ΡΡΡΡ ΡΠΎΡΠΊΠΎΡΠ½ΡΠΌΠΈ ΠΈ ΠΏΠΎΡΡΡΠΎΠ΅Π½Ρ ΠΊΠ°ΠΊ ΡΠ°ΠΊΠΎΠ²ΡΠ΅. ΠΡΡΠ°Π»ΡΠ½ΡΠ΅ ΠΆΠΈΠ»ΡΠ΅ ΡΡΠ°ΠΆΠΈ Π²ΠΊΠ»ΡΡΠ°ΡΡ ΠΎΠ±ΡΠΈΠ΅ ΡΠ°Π±ΠΎΡΠΈΠ΅ ΠΌΠ΅ΡΡΠ° ΠΈ ΡΠΊΠ»Π°Π΄ΡΠΊΠΈΠ΅ ΠΏΠΎΠΌΠ΅ΡΠ΅Π½ΠΈΡ Π΄Π»Ρ Π°ΡΠ΅Π½Π΄Π°ΡΠΎΡΠΎΠ².
ΠΠΎΡΡΠ°ΠΆΠ½ΡΠ΅ ΠΏΠ»Π°Π½Ρ ΠΏΡΠ΅Π΄ΡΡΠ°Π²Π»Π΅Π½Ρ Π½ΠΈΠΆΠ΅. ΠΠ°ΠΆΠΌΠΈΡΠ΅ Π½Π° Π»ΡΠ±ΠΎΠΉ ΠΈΠ· Π½ΠΈΡ , ΡΡΠΎΠ±Ρ ΡΠ²ΠΈΠ΄Π΅ΡΡ Π΅Π³ΠΎ Π² ΡΠ²Π΅Π»ΠΈΡΠ΅Π½Π½ΠΎΠΌ Π²ΠΈΠ΄Π΅.
ΠΠ»Π°Π½Ρ Π±ΡΠ»ΠΈ ΡΠΎΡΡΠ°Π²Π»Π΅Π½Ρ Trivers, ΠΈ ΠΠ°ΡΠΈΠΊ ΡΠΊΠ°Π·Π°Π½ Π² ΠΊΠ°ΡΠ΅ΡΡΠ²Π΅ Π³Π΅Π½Π΅ΡΠ°Π»ΡΠ½ΠΎΠ³ΠΎ ΠΏΠΎΠ΄ΡΡΠ΄ΡΠΈΠΊΠ°.Π Π½Π°ΡΡΠΎΡΡΠ΅Π΅ Π²ΡΠ΅ΠΌΡ Π½Π΅ΡΡΠ½ΠΎ, Π½Π°ΠΌΠ΅ΡΠ΅Π²Π°Π΅ΡΡΡ Π»ΠΈ Development Services Group Π΄ΠΎΠ±ΠΈΠ²Π°ΡΡΡΡ ΠΊΠ°ΠΊΠΈΡ -Π»ΠΈΠ±ΠΎ ΡΡΠΈΠΌΡΠ»ΠΎΠ² ΠΎΡ Π³ΠΎΡΠΎΠ΄Π°, Π½ΠΎ Ρ ΠΏΡΠ΅Π΄ΠΏΠΎΠ»Π°Π³Π°Ρ, ΡΡΠΎ ΠΎΠ½ΠΈ Π±ΡΠ΄ΡΡ ΠΈΡΠΊΠ°ΡΡ ΠΈΡΡΠΎΡΠΈΡΠ΅ΡΠΊΠΈΠ΅ Π½Π°Π»ΠΎΠ³ΠΎΠ²ΡΠ΅ Π»ΡΠ³ΠΎΡΡ.
ΠΡΠ΅Π΄Π²Π°ΡΠΈΡΠ΅Π»ΡΠ½ΡΠΉ Π³ΡΠ°ΡΠΈΠΊ ΠΏΡΠΎΠ΅ΠΊΡΠ° ΠΏΡΠ΅Π΄ΡΡΠΌΠ°ΡΡΠΈΠ²Π°Π΅Ρ Π½Π°ΡΠ°Π»ΠΎ ΡΡΡΠΎΠΈΡΠ΅Π»ΡΡΡΠ²Π° Π² Π½ΠΎΡΠ±ΡΠ΅ 2021 Π³ΠΎΠ΄Π° ΠΈ Π·Π°Π²Π΅ΡΡΠ΅Π½ΠΈΠ΅ ΠΏΡΠΈΠΌΠ΅ΡΠ½ΠΎ ΡΠ΅ΡΠ΅Π· 18-19 ΠΌΠ΅ΡΡΡΠ΅Π² (Π°ΠΏΡΠ΅Π»Ρ / ΠΌΠ°ΠΉ 2023 Π³ΠΎΠ΄Π°).
Π Π΅ΠΊΠΎΠ½ΡΡΡΡΠΊΡΠΈΡ Π·Π΄Π°Π½ΠΈΡ Butler Brothers Π΄ΠΎ ΡΠΈΡ ΠΏΠΎΡ Π±ΡΠ»Π° ΠΊΡΡΠΏΠ½Π΅ΠΉΡΠΈΠΌ Π΄Π΅Π²Π΅Π»ΠΎΠΏΠ΅ΡΡΠΊΠΈΠΌ ΠΏΡΠΎΠ΅ΠΊΡΠΎΠΌ, Π·Π°ΡΠ²Π»Π΅Π½Π½ΡΠΌ Π² Π½Π΅ΠΏΠΎΡΡΠ΅Π΄ΡΡΠ²Π΅Π½Π½ΠΎΠΉ Π±Π»ΠΈΠ·ΠΎΡΡΠΈ ΠΎΡ ΡΡΠ°Π΄ΠΈΠΎΠ½Π° City SC. ΠΠ΅Π΄Π°Π²Π½ΠΎ Π»ΠΎΡΡΡ Π² Π₯Π°ΠΏΠΏΠ΅ (Π·Π΄Π°Π½ΠΈΠ΅ Tyre Mart, 1815 Locust) Π½Π°ΡΠ°Π»ΠΈ ΡΠ΄Π°Π²Π°ΡΡ Π² Π°ΡΠ΅Π½Π΄Ρ ΠΏΠΎΡΠ»Π΅ ΡΠ΅ΠΌΠΎΠ½ΡΠ°, ΠΊΠΎΡΠΎΡΡΠΉ ΠΏΡΠ΅ΠΎΠ±ΡΠ°Π·ΠΎΠ²Π°Π» ΠΊΠ²Π°ΡΡΠ°Π» 1800 Π½Π° Locust Street.ΠΠ° ΠΠ°ΡΠΈΠ½Π³ΡΠΎΠ½-Π°Π²Π΅Π½Ρ ΠΊ Π·Π΄Π°Π½ΠΈΡ Mulligan Printing, 1800 ΠΠ°ΡΠΈΠ½Π³ΡΠΎΠ½, ΡΠ°Π½Π΅Π΅ Π±ΡΠ» ΠΏΡΠΈΠΊΡΠ΅ΠΏΠ»Π΅Π½ ΠΏΠ»Π°Π½ ΠΏΠ΅ΡΠ΅ΠΏΠ»Π°Π½ΠΈΡΠΎΠ²ΠΊΠΈ Π΄Π»Ρ ΠΏΡΠ΅ΠΎΠ±ΡΠ°Π·ΠΎΠ²Π°Π½ΠΈΡ Π² 72 ΠΊΠ²Π°ΡΡΠΈΡΡ, Π½ΠΎ ΠΈΠΎΠ½Π½Π°Ρ ΡΠ°Ρ ΡΠ° ΡΠΊΠ°Π·ΡΠ²Π°Π΅Ρ Π½Π° ΡΠΎ, ΡΡΠΎ ΠΏΡΠΎΠ΅ΠΊΡ ΠΈΠ΄Π΅Ρ ΠΏΠΎ ΡΠΎΠ½ΠΊΠΎΠΉ Π»ΠΈΠ½ΠΈΠΈ ΠΏΡΡΠΌΠΎ ΡΠ΅ΠΉΡΠ°Ρ ΠΈ ΠΌΠΎΠΆΠ΅Ρ Π±ΡΡΡ ΠΎΡΠΌΠ΅Π½Π΅Π½ ΠΈΠ·-Π·Π° ΠΏΠΎ Π²ΠΎΠΏΡΠΎΡΠ°ΠΌ ΡΠ°Π·ΡΠ°Π±ΠΎΡΡΠΈΠΊΠ°. Π§Π΅ΡΠ΅Π· ΠΠ°ΡΠΈΠ½Π³ΡΠΎΠ½-Π°Π²Π΅Π½Ρ, 1801, King Realty Advisors ΠΏΡΠ΅Π΄Π»ΠΎΠΆΠΈΠ»ΠΈ Π·ΠΈΠΌΠΎΠΉ 7-ΡΡΠ°ΠΆΠ½ΡΠΉ 184-ΠΊΠ²Π°ΡΡΠΈΡΠ½ΡΠΉ ΠΆΠΈΠ»ΠΎΠΉ Π΄ΠΎΠΌ , ΡΡΠ°Π² ΠΏΠ΅ΡΠ²ΡΠΌ Π·Π° ΠΏΠΎΡΠ»Π΅Π΄Π½ΠΈΠ΅ Π΄Π΅ΡΡΡΠΈΠ»Π΅ΡΠΈΡ ΠΆΠΈΠ»ΡΠΌ Π΄ΠΎΠΌΠΎΠΌ Π½ΠΎΠ²ΠΎΠΉ ΠΏΠΎΡΡΡΠΎΠΉΠΊΠΈ Π² ΠΠ°ΡΠ½ΡΠ°ΡΠ½-Π£ΡΡΡ.
ΠΠΌΠ΅ΡΡΠ΅ ΡΡΠΈ ΡΠ΅ΡΡΡΠ΅ ΠΏΡΠΎΠ΅ΠΊΡΠ° ΠΏΡΠ΅ΠΎΠ±ΡΠ°Π·ΡΡ ΠΊΠΎΡΠΈΠ΄ΠΎΡ 18-ΠΉ ΡΠ»ΠΈΡΡ ΠΌΠ΅ΠΆΠ΄Ρ ΠΠ»ΠΈΠ²ΠΎΠΌ ΠΈ ΠΡΠΊΠ°ΡΠΎΠΌ, Π΄ΠΎΠ±Π°Π²ΠΈΠ² ΠΏΡΠΈΠΌΠ΅ΡΠ½ΠΎ 707 ΠΊΠ²Π°ΡΡΠΈΡ, Π° ΠΌΠ΅ΠΆΠ΄Ρ Butler Brothers ΠΈ ΠΠ°ΡΠΈΠ½Π³ΡΠΎΠ½ΠΎΠΌ 1801 Π³ΠΎΠ΄Π° — ΠΏΡΠΈΠΌΠ΅ΡΠ½ΠΎ 20 085 ΠΊΠ²Π°Π΄ΡΠ°ΡΠ½ΡΡ ΡΡΡΠΎΠ² ΡΠΎΡΠ³ΠΎΠ²ΡΡ ΠΏΠ»ΠΎΡΠ°Π΄Π΅ΠΉ ΠΈ ΡΠ΅ΡΡΠΎΡΠ°Π½ΠΎΠ².
Π― Π±ΡΠ΄Ρ ΡΠ»Π΅Π΄ΠΈΡΡ Π·Π° Π²ΡΠ΅ΠΌΠΈ ΡΡΠΈΠΌΠΈ ΡΠΎΠ±ΡΡΠΈΡΠΌΠΈ, ΠΏΠΎΡΠΊΠΎΠ»ΡΠΊΡ Π²ΡΠ΅ ΠΎΠ½ΠΈ ΠΈΠ³ΡΠ°ΡΡ ΠΎΠ³ΡΠΎΠΌΠ½ΡΡ ΡΠΎΠ»Ρ Π² Π°ΠΊΡΠΈΠ²Π°ΡΠΈΠΈ ΡΡΠΎΠΉ ΡΠ°ΡΡΠΈ Downtown West, ΠΊΠΎΡΠΎΡΠ°Ρ ΡΠΆΠ΅ Π±ΡΠ»Π° Π½Π°ΡΡΡΠΎΠ΅Π½Π° Π΄Π»Ρ ΠΏΠΎΠ²ΡΡΠ΅Π½ΠΈΡ Π°ΠΊΡΠΈΠ²Π½ΠΎΡΡΠΈ Π·Π° ΡΡΠ΅Ρ ΠΈΠ³Ρ ΠΈ ΠΊΠΎΠ½ΡΠ΅ΡΡΠΎΠ² Π½Π° ΡΡΠ°Π΄ΠΈΠΎΠ½Π΅ City SC. ΠΠΎΠ±Π°Π²Π»Π΅Π½ΠΈΠ΅ ΡΠΎΡΠ΅Π½ Π½ΠΎΠ²ΡΡ ΠΆΠΈΡΠ΅Π»Π΅ΠΉ ΠΈ Π½ΠΎΠ²ΡΡ ΠΏΡΠ΅Π΄ΠΏΡΠΈΡΡΠΈΠΉ, ΡΡΠΎΠ±Ρ ΡΠ±ΠΈΡΡ Π»ΡΠ΄Π΅ΠΉ Ρ ΡΠΎΠ»ΠΊΡ Π² Π΄Π½ΠΈ Π±Π΅Π· ΠΌΠ΅ΡΠΎΠΏΡΠΈΡΡΠΈΠΉ, ΡΠ²Π»ΡΠ΅ΡΡΡ ΠΎΠ±ΡΠΈΠΌ ΠΏΠΎΠ»ΠΎΠΆΠΈΡΠ΅Π»ΡΠ½ΡΠΌ ΠΌΠΎΠΌΠ΅Π½ΡΠΎΠΌ Π΄Π»Ρ Downtown West ΠΈ ΡΡΡΠ΅ΡΡΠ²ΡΡΡΠΈΡ ΠΏΡΠ΅Π΄ΠΏΡΠΈΡΡΠΈΠΉ.ΠΠ°ΠΆΠ΅ Ρ ΡΡΠ΅ΡΠΎΠΌ ΡΡΠΈΡ ΠΌΠ°ΡΡΡΠ°Π±Π½ΡΡ ΡΠ°Π·ΡΠ°Π±ΠΎΡΠΎΠΊ, Π² Π½Π΅ΠΏΠΎΡΡΠ΅Π΄ΡΡΠ²Π΅Π½Π½ΠΎΠΉ Π±Π»ΠΈΠ·ΠΎΡΡΠΈ ΠΎΡ ΡΡΠ°Π΄ΠΈΠΎΠ½Π° City SC ΠΈ ΠΊΠΎΡΠΈΠ΄ΠΎΡΠ° 18-ΠΉ ΡΠ»ΠΈΡΡ ΠΎΡΡΠ°ΡΡΡΡ ΠΌΠ½ΠΎΠ³ΠΎΡΠΈΡΠ»Π΅Π½Π½ΡΠ΅ Π²ΠΎΠ·ΠΌΠΎΠΆΠ½ΠΎΡΡΠΈ Π΄Π»Ρ ΡΠ°Π·Π²ΠΈΡΠΈΡ.
ΠΠΎΠΏΠΎΠ»Π½ΠΈΡΠ΅Π»ΡΠ½ΡΠ΅ ΡΠ°ΡΠ°Π΄Ρ, ΠΏΠΎΠΏΠ΅ΡΠ΅ΡΠ½ΡΠΉ ΡΠ°Π·ΡΠ΅Π· Π·Π΄Π°Π½ΠΈΡ Π±ΡΠ°ΡΡΠ΅Π² ΠΠ°ΡΠ»Π΅Ρ ΠΈ ΡΡΠ΅Ρ ΠΌΠ΅ΡΠ½ΡΠ΅ ΡΠ΅ΡΡΠ΅ΠΆΠΈ Π²Π½ΡΡΡΠ΅Π½Π½Π΅Π³ΠΎ Π΄Π²ΠΎΡΠ°, Π°ΡΡΠΈΡΠΌΠ° ΠΈ ΠΌΠΎΠ½ΡΠΌΠ΅Π½ΡΠ°Π»ΡΠ½ΠΎΠΉ Π»Π΅ΡΡΠ½ΠΈΡΡ Π²ΠΊΠ»ΡΡΠ΅Π½Ρ Π½ΠΈΠΆΠ΅.
Π‘ΠΎΠ²ΡΠ΅ΠΌΠ΅Π½Π½ΡΠΉ Π΄ΠΈΠ·Π°ΠΉΠ½ ΠΎΠ΄Π½ΠΎΠΊΠΎΠΌΠ½Π°ΡΠ½ΠΎΠΉ ΠΊΠ²Π°ΡΡΠΈΡΡ Ρ ΠΏΠ΅ΡΠ΅ΠΏΠ»Π°Π½ΠΈΡΠΎΠ²ΠΊΠΎΠΉ. Π‘ΠΎΠ²ΡΠ΅ΠΌΠ΅Π½Π½ΡΠΉ Π΄ΠΈΠ·Π°ΠΉΠ½ ΠΎΠ΄Π½ΠΎΠΊΠΎΠΌΠ½Π°ΡΠ½ΠΎΠΉ ΠΊΠ²Π°ΡΡΠΈΡΡ Ρ ΠΏΠ΅ΡΠ΅ΠΏΠ»Π°Π½ΠΈΡΠΎΠ²ΠΊΠΎΠΉ ΠΡΠΎΠ΅ΠΊΡΡ Ρ ΡΠΎΡΠΎ
.ΠΡΠΎΠ΄ΡΠΌΠ°Π½Π½Π°Ρ ΠΏΠ»Π°Π½ΠΈΡΠΎΠ²ΠΊΠ° ΠΎΠ΄Π½ΠΎΠΊΠΎΠΌΠ½Π°ΡΠ½ΠΎΠΉ ΠΊΠ²Π°ΡΡΠΈΡΡ 40 ΠΊΠ².ΡΠΏΠΎΡΠΎΠ±Π½Ρ ΡΠ΄Π΅Π»Π°ΡΡ ΠΆΠΈΠ»ΠΎΠ΅ ΠΏΡΠΎΡΡΡΠ°Π½ΡΡΠ²ΠΎ ΠΌΠ°ΠΊΡΠΈΠΌΠ°Π»ΡΠ½ΠΎ ΡΡΠ½ΠΊΡΠΈΠΎΠ½Π°Π»ΡΠ½ΡΠΌ ΠΈ ΠΊΠΎΠΌΡΠΎΡΡΠ½ΡΠΌ. Π ΠΎΡΠ»ΠΈΡΠΈΠ΅ ΠΎΡ ΡΠΊΡΠΎΠΌΠ½ΡΡ Ρ ΡΡΡΠ΅Π²ΠΎΠΊ, ΡΠ°ΠΊΠΈΠ΅ ΠΎΠ΄Π½ΡΡΠΊΠΈ ΠΏΠΎΠ΄Π»Π΅ΠΆΠ°Ρ ΠΏΠ΅ΡΠ΅ΠΎΠ±ΠΎΡΡΠ΄ΠΎΠ²Π°Π½ΠΈΡ, ΡΡΠΎ ΠΏΠΎΠ·Π²ΠΎΠ»ΡΠ΅Ρ ΡΠΎΠ·Π΄Π°ΡΡ Ρ ΠΎΡΠΎΡΠΈΠ΅ ΠΆΠΈΠ»ΡΠ΅ Π·ΠΎΠ½Ρ ΠΈ Π΄Π°ΠΆΠ΅ ΡΠ΄Π΅Π»Π°ΡΡ ΠΈΠ· ΠΎΠ΄Π½ΠΎΠΉ Π΄Π²Π΅ ΠΊΠΎΠΌΠ½Π°ΡΡ (Π½Π°ΠΏΡΠΈΠΌΠ΅Ρ, Π³ΠΎΡΡΠΈΠ½ΡΡ ΠΈ Π΄Π΅ΡΡΠΊΡΡ ΠΈΠ»ΠΈ ΡΠΏΠ°Π»ΡΠ½Ρ ΠΈ Π½Π΅Π±ΠΎΠ»ΡΡΠΎΠΉ ΠΊΠ°Π±ΠΈΠ½Π΅Ρ). Π ΡΡΠΎΠΌ ΠΎΠ±Π·ΠΎΡΠ΅ ΠΌΡ Ρ ΠΎΡΠΈΠΌ ΡΠ°ΡΡΠΊΠ°Π·Π°ΡΡ ΠΎ ΡΠΎΠΌ, ΠΊΠ°ΠΊΠΎΠΉ ΠΌΠΎΠΆΠ΅Ρ Π±ΡΡΡ ΠΏΠ»Π°Π½ΠΈΡΠΎΠ²ΠΊΠ° ΠΎΠ΄Π½ΠΎΠΉ ΠΊΠ²Π°ΡΡΠΈΡΡ ΡΠΎΠΎΡΠ²Π΅ΡΡΡΠ²ΡΡΡΠ΅ΠΉ ΠΏΠ»ΠΎΡΠ°Π΄ΠΈ. Π§ΠΈΡΠ°ΠΉΡΠ΅ Π΄Π°Π»ΡΡΠ΅ — ΠΈΠ΄Π΅Π°Π»ΡΠ½Π°Ρ ΠΏΠ»Π°Π½ΠΈΡΠΎΠ²ΠΊΠ° ΠΎΠ΄Π½ΠΎΠΊΠΎΠΌΠ½Π°ΡΠ½ΠΎΠΉ ΠΊΠ²Π°ΡΡΠΈΡΡ 45 ΠΊΠ²., 43 ΠΈΠ»ΠΈ 40 ΠΊΠ².
ΠΠ°Π΄Π°ΡΠΈ ΡΠ΅Π°Π»ΠΈΠ·Π°ΡΠΈΠΈ ΠΏΠ»Π°Π½ΠΈΡΠΎΠ²ΠΊΠΈ ΠΎΠ΄Π½ΠΎΠΊΠΎΠΌΠ½Π°ΡΠ½ΡΡ ΠΊΠ²Π°ΡΡΠΈΡ ΠΏΠ»ΠΎΡΠ°Π΄ΡΡ 40 ΠΊΠ².
ΠΠΎΠ³Π΄Π° ΡΠ΅ΡΡ ΠΈΠ΄Π΅Ρ ΠΎ Π½Π΅Π±ΠΎΠ»ΡΡΠΎΠΉ ΠΎΠ΄Π½ΠΎΠΊΠΎΠΌΠ½Π°ΡΠ½ΠΎΠΉ ΠΊΠ²Π°ΡΡΠΈΡΠ΅, ΠΎΡΠΎΠ±Π΅Π½Π½ΠΎ ΠΎΡΡΡΠΎ ΡΡΠΎΠΈΡ Π²ΠΎΠΏΡΠΎΡ ΡΠ°Π·ΡΠ°Π±ΠΎΡΠΊΠΈ Π΅Π΅ Π΄ΠΈΠ·Π°ΠΉΠ½Π°. ΠΠΎΡΠ΅ΠΌΡ? ΠΠ΅Π΄Ρ Π΅Π³ΠΎ ΡΠΎΠ·Π΄Π°Π½ΠΈΠ΅ — ΡΡΠΎ Π½Π΅ ΠΏΡΡΡΠΎΠΉ Π·Π²ΡΠΊ ΠΈΠ»ΠΈ Π΄Π°Π½Ρ ΠΌΠΎΠ΄Π΅, Π° Π·Π°Π»ΠΎΠ³ Π²Π°ΡΠ΅ΠΉ ΠΊΠΎΠΌΡΠΎΡΡΠ½ΠΎΠΉ ΠΆΠΈΠ·Π½ΠΈ Π² Π±ΡΠ΄ΡΡΠ΅ΠΌ. ΠΡΠΈΡΡΠ½Π°Ρ, ΠΏΡΠΎΠ΄ΡΠΌΠ°Π½Π½Π°Ρ Π΄ΠΎ ΠΌΠ΅Π»ΠΎΡΠ΅ΠΉ ΠΏΠ»Π°Π½ΠΈΡΠΎΠ²ΠΊΠ° ΠΎΠ΄Π½ΠΎΠΊΠΎΠΌΠ½Π°ΡΠ½ΠΎΠΉ ΠΊΠ²Π°ΡΡΠΈΡΡ 40 ΠΊΠ². Π‘Π΄Π΅Π»Π°Π΅Ρ Π΄ΠΎΠΌ ΡΡΡΠ½ΡΠΌ ΠΈ ΠΏΡΠΎΡΡΠΎΡΠ½ΡΠΌ ΠΈ, Π½Π°ΠΎΠ±ΠΎΡΠΎΡ, Ρ Π°ΠΎΡΠΈΡΠ½ΡΠΉ Π΄ΠΈΠ·Π°ΠΉΠ½ Π½Π΅ Π΄Π°ΡΡ Π²ΠΎΠ·ΠΌΠΎΠΆΠ½ΠΎΡΡΠΈ ΠΈΡΠΏΠΎΠ»ΡΠ·ΠΎΠ²Π°ΡΡ ΠΈΠΌΠ΅ΡΡΠ΅Π΅ΡΡ ΠΏΡΠΎΡΡΡΠ°Π½ΡΡΠ²ΠΎ Ρ ΠΏΠΎΠ»ΡΠ·ΠΎΠΉ, Π° Π·Π½Π°ΡΠΈΡ ΡΡΠΎ ΠΌΠ΅ΡΡΠ° Π±ΡΠ΄Π΅Ρ ΠΊΠ°ΡΠ°ΡΡΡΠΎΡΠΈΡΠ΅ΡΠΊΠΈ Π½Π΅ Ρ Π²Π°ΡΠ°ΡΡ.
Π₯ΠΎΡΠΎΡΠΈΠ΅ Π΄ΠΈΠ·Π°ΠΉΠ½Π΅ΡΡ ΠΈΠ½ΡΠ΅ΡΡΠ΅ΡΠΎΠ² Π·Π½Π°ΡΡ ΠΌΠ½ΠΎΠΆΠ΅ΡΡΠ²ΠΎ ΡΠΏΠΎΡΠΎΠ±ΠΎΠ² ΡΠΊΡΡΡΡ Π½Π΅Π΄ΠΎΡΡΠ°ΡΠΊΠΈ ΠΈ ΡΠ°Π·Π΄Π²ΠΈΠ½ΡΡΡ Π³ΡΠ°Π½ΠΈΡΡ, Π΄Π°ΠΆΠ΅ Π΅ΡΠ»ΠΈ ΡΡΠΎ ΡΠΈΡΡΠΎ Π²ΠΈΠ·ΡΠ°Π»ΡΠ½ΠΎ. ΠΠ»Π°Π³ΠΎΠ΄Π°ΡΡ ΠΏΡΠΎΡΠ΅ΡΡΠΈΠΎΠ½Π°Π»ΡΠ½ΠΎΠΉ ΠΏΠ»Π°Π½ΠΈΡΠΎΠ²ΠΊΠ΅ ΠΎΠ΄Π½ΠΎΠΊΠΎΠΌΠ½Π°ΡΠ½ΠΎΠΉ ΠΊΠ²Π°ΡΡΠΈΡΡ 40 ΠΊΠ²Π°Π΄ΡΠ°ΡΠ½ΡΡ ΠΌΠ΅ΡΡΠΎΠ² Π²Ρ Π½Π΅ ΡΡΠΎΠ»ΠΊΠ½Π΅ΡΠ΅ΡΡ Ρ ΠΏΡΠΎΠ±Π»Π΅ΠΌΠΎΠΉ Π½Π΅ΡΠ΄ΠΎΠ±Π½ΠΎΠ³ΠΎ ΠΎΡΠΊΡΡΠ²Π°Π½ΠΈΡ Π΄Π²Π΅ΡΠ΅ΠΉ, Π½Π΅ Π±ΡΠ΄Π΅ΡΠ΅ ΠΏΠΎΡΡΠΎΡΠ½Π½ΠΎ ΡΠΏΠΎΡΡΠΊΠ°ΡΡΡΡ ΠΎ ΠΏΡΠΈΠΊΡΠΎΠ²Π°ΡΠ½ΡΠ΅ ΡΡΠΌΠ±ΠΎΡΠΊΠΈ, ΠΊΠΎΡΠΎΡΡΠ΅ Π½Π°Ρ ΠΎΠ΄ΡΡΡΡ Π²ΠΎ Π²ΡΠ΅Ρ ΡΠ³Π»Π°Ρ , ΠΈΠ»ΠΈ ΠΏΡΠΎΡΡΠΎ Π·Π°ΠΏΠΈΡ ΠΈΠ²Π°ΡΡ Π²Π΅ΡΠΈ Π² ΡΠΊΠ°ΡΡ-ΠΊΡΠΏΠ΅. Ρ Π°ΠΎΡΠΈΡΠ½ΠΎ, ΠΏΠΎΡΠΎΠΌΡ ΡΡΠΎ ΠΏΠΎΡΡΠ°Π²ΠΈΡΡ ΠΈΡ ΠΏΡΠΎΡΡΠΎ Π½Π΅ΠΊΡΠ΄Π°. ΠΠΎΡΠΊΠΎΠ»ΡΠΊΡ ΠΏΡΠΎΠ΄ΡΠΌΠ°Π½Π½Π°Ρ ΠΏΠ»Π°Π½ΠΈΡΠΎΠ²ΠΊΠ° 1-ΠΊΠΎΠΌΠ½Π°ΡΠ½ΠΎΠΉ ΠΊΠ²Π°ΡΡΠΈΡΡ 40 ΠΊΠ².ΠΌ. ΡΠΏΠΎΡΠΎΠ±ΡΡΠ²ΡΠ΅Ρ ΠΏΡΠ°Π²ΠΈΠ»ΡΠ½ΠΎΠΌΡ Π·ΠΎΠ½ΠΈΡΠΎΠ²Π°Π½ΠΈΡ ΠΏΡΠΎΡΡΡΠ°Π½ΡΡΠ²Π°, ΠΏΡΠ΅Π΄ΠΏΠΎΠ»Π°Π³Π°Π΅Ρ ΠΈΡΠΏΠΎΠ»ΡΠ·ΠΎΠ²Π°Π½ΠΈΠ΅ ΡΡΠ³ΠΎΠ½ΠΎΠΌΠΈΡΠ½ΠΎΠΉ ΠΌΠ΅Π±Π΅Π»ΠΈ ΠΈ ΠΌΠ°ΠΊΡΠΈΠΌΠ°Π»ΡΠ½ΠΎΠ΅ ΠΈΡΠΏΠΎΠ»ΡΠ·ΠΎΠ²Π°Π½ΠΈΠ΅ Π½ΠΈΡ, Π²ΡΠ΅ Π±ΡΠ΄Π΅Ρ Π½Π° ΡΠ²ΠΎΠΈΡ ΠΌΠ΅ΡΡΠ°Ρ , ΠΏΡΠΈ ΡΡΠΎΠΌ ΡΠ²ΠΎΠ±ΠΎΠ΄Π½ΠΎΠ³ΠΎ ΠΌΠ΅ΡΡΠ° Π±ΡΠ΄Π΅Ρ Π΄ΠΎΡΡΠ°ΡΠΎΡΠ½ΠΎ Π΄Π»Ρ ΠΊΠΎΠΌΡΠΎΡΡΠ½ΠΎΠΉ ΠΆΠΈΠ·Π½ΠΈ.
ΠΡΠ½ΠΎΠ²Π½ΡΠ΅ ΠΏΡΠΈΠ½ΡΠΈΠΏΡ ΠΏΡΠΎΠ΅ΠΊΡΠΈΡΠΎΠ²Π°Π½ΠΈΡ
ΠΡΠ°ΠΌΠΎΡΠ½Π°Ρ ΠΏΠ»Π°Π½ΠΈΡΠΎΠ²ΠΊΠ° ΠΎΠ΄Π½ΠΎΠΊΠΎΠΌΠ½Π°ΡΠ½ΠΎΠΉ ΠΊΠ²Π°ΡΡΠΈΡΡ 40 ΠΊΠ². Π Π΅ΡΠ°Π΅Ρ ΡΡΠ°Π·Ρ ΠΌΠ½ΠΎΠ³ΠΎ Π·Π°Π΄Π°Ρ ΠΈ ΠΏΡΠΎΠ±Π»Π΅ΠΌ. ΠΠΎΡΠ΅ΠΌΡ? ΠΠΎΡΠΎΠΌΡ ΡΡΠΎ 40 ΠΊΠ²Π°Π΄ΡΠ°ΡΠΎΠ² — ΡΡΠΎ Π½Π΅ ΠΌΠ°Π»Π΅Π½ΡΠΊΠ°Ρ ΠΏΠ»ΠΎΡΠ°Π΄Ρ, ΠΈ Ρ Π½Π΅ΠΉ ΠΌΠΎΠΆΠ½ΠΎ Β«ΠΏΠΎΠΈΠ³ΡΠ°ΡΡΒ». ΠΠ±ΡΡΠ½ΠΎ Π² ΡΠ°ΠΊΠΈΡ ΠΊΠΎΠΌΠ½Π°ΡΠ°Ρ ΠΏΡΠ΅Π΄ΡΡΠΌΠΎΡΡΠ΅Π½Ρ ΠΏΡΠΎΡΡΠΎΡΠ½ΡΠ΅ ΠΊΡΡ Π½ΠΈ ΠΈ ΠΎΡΠ΄Π΅Π»ΡΠ½ΡΠ΅ ΡΠ°Π½ΡΠ·Π»Ρ.Π§ΡΠΎ ΠΊΠ°ΡΠ°Π΅ΡΡΡ ΡΡΠΈΠ»Ρ ΠΎΡΠΎΡΠΌΠ»Π΅Π½ΠΈΡ, ΡΠΎ ΡΡΠΎ ΠΌΠΎΠΆΠ΅Ρ Π±ΡΡΡ ΡΡΠΎ ΡΠ³ΠΎΠ΄Π½ΠΎ — ΠΎΡ ΠΊΠ»Π°ΡΡΠΈΠΊΠΈ ΠΈΠ»ΠΈ ΠΌΠΈΠ½ΠΈΠΌΠ°Π»ΠΈΠ·ΠΌΠ° Π΄ΠΎ ΠΌΠΎΠ΄Π½ΠΎΠ³ΠΎ ΡΠ΅Π³ΠΎΠ΄Π½Ρ ΡΠ΅ΡΡΠΎ ΠΈΠ»ΠΈ Π΄Π°ΠΆΠ΅ Π±ΡΠΎΡΠΊΠΎΠ³ΠΎ ΠΏΠΎΠΏ-Π°ΡΡΠ°.
Π‘ΠΏΠ°Π»ΡΠ½Ρ ΠΈΠ»ΠΈ Π³ΠΎΡΡΠΈΠ½Π°Ρ?
ΠΠ»Π°Π½ΠΈΡΠΎΠ²ΠΊΠΈ ΠΎΠ΄Π½ΠΎΠΊΠΎΠΌΠ½Π°ΡΠ½ΡΡ ΠΊΠ²Π°ΡΡΠΈΡ 40 ΠΊΠ². ΠΡΠΏΠΎΠ»Π½ΡΡΡΡΡ ΡΠ°Π·Π½ΡΠΌΠΈ ΡΠΏΠΎΡΠΎΠ±Π°ΠΌΠΈ. ΠΠΎΠ΄ ΠΊΠ°ΠΊΡΡ ΠΊΠΎΠΌΠ½Π°ΡΡ Π²Ρ Π±Ρ Ρ ΠΎΡΠ΅Π»ΠΈ Π²ΡΠ΄Π΅Π»ΠΈΡΡ Π±ΠΎΠ»ΡΡΡΡ ΡΠ°ΡΡΡ ΠΆΠΈΠ»ΠΎΠ³ΠΎ ΠΏΡΠΎΡΡΡΠ°Π½ΡΡΠ²Π°, Π½ΡΠΆΠ½ΠΎ ΡΠ΅ΡΠ°ΡΡ ΡΡΠ°Π·Ρ. ΠΡΠ»ΠΈ Π²Ρ Π»ΡΠ±ΠΈΡΠ΅ Π³ΠΎΡΡΠ΅ΠΉ ΠΈ ΠΏΡΠ΅Π΄ΠΏΠΎΡΠΈΡΠ°Π΅ΡΠ΅ Π°ΠΊΡΠΈΠ²Π½ΡΠΉ ΠΎΠ±ΡΠ°Π· ΠΆΠΈΠ·Π½ΠΈ, ΠΎΡΡΠ°Π½ΠΎΠ²ΠΈΡΠ΅ΡΡ Π² Π³ΠΎΡΡΠΈΠ½ΠΎΠΉ. ΠΠ½ΡΠ΅ΡΠ΅ΡΠ½ΡΠ΅ ΠΏΠ»Π°Π½ΠΈΡΠΎΠ²ΠΊΠΈ ΠΎΠ΄Π½ΠΎΠΊΠΎΠΌΠ½Π°ΡΠ½ΡΡ ΠΊΠ²Π°ΡΡΠΈΡ ΠΏΠΎΠ»ΡΡΠ°ΡΡΡΡ ΡΠΎ ΡΠΏΠ°Π»ΡΠ½ΡΠΌΠΈ Π·ΠΎΠ½Π°ΠΌΠΈ — ΡΡΠΎ ΠΎΡΠ»ΠΈΡΠ½ΡΠΉ Π²Π°ΡΠΈΠ°Π½Ρ Π΄Π»Ρ Π»ΡΠ΄Π΅ΠΉ, ΠΏΡΠ΅Π΄ΠΏΠΎΡΠΈΡΠ°ΡΡΠΈΡ ΡΠ°Π·ΠΌΠ΅ΡΠ΅Π½Π½ΡΠΉ ΠΎΡΠ΄ΡΡ .Π Π»ΡΠ±ΠΎΠΌ ΡΠ»ΡΡΠ°Π΅ Π²ΠΎΠ·ΡΠΌΠΈΡΠ΅ ΡΠ³ΠΎΠ»ΠΎΠΊ ΠΏΠΎΠ΄ ΡΡΠΎΠ». ΠΠ»Π°Π½ΠΈΡΠΎΠ²ΠΊΠ° 1-ΠΊΠΎΠΌΠ½Π°ΡΠ½ΠΎΠΉ ΠΊΠ²Π°ΡΡΠΈΡΡ 40 ΠΊΠ².ΠΌ. ΡΠ°ΡΡΠΎ ΠΏΡΠ΅Π΄ΠΏΠΎΠ»Π°Π³Π°Π΅Ρ Π½Π°Π»ΠΈΡΠΈΠ΅ ΠΎΡΠΈΡΠ° — Π΅ΡΠ»ΠΈ Π²Ρ ΠΌΠΎΠΆΠ΅ΡΠ΅ Π²ΡΠ΄Π΅Π»ΠΈΡΡ Π΅ΠΌΡ Ρ ΠΎΡΡ Π±Ρ ΠΏΡΡΡ ΠΊΠ²Π°Π΄ΡΠ°ΡΠΎΠ², Ρ Π²Π°Ρ Π±ΡΠ΄Π΅Ρ ΡΠΎ, ΡΡΠΎ Π²Π°ΠΌ Π½ΡΠΆΠ½ΠΎ.
Π’Π°ΠΊΠΈΠ΅ ΡΠ°Π·Π½ΡΠ΅ ΠΊΡΡ Π½ΠΈ
ΠΡΠΏΠΎΠ»Π½ΡΡ ΠΏΠ»Π°Π½ΠΈΡΠΎΠ²ΠΊΠΈ ΠΎΠ΄Π½ΠΎΠΊΠΎΠΌΠ½Π°ΡΠ½ΡΡ ΠΊΠ²Π°ΡΡΠΈΡ 40 ΠΊΠ²., ΠΡΠΎΠ±ΠΎΠ΅ Π²Π½ΠΈΠΌΠ°Π½ΠΈΠ΅ Π΄ΠΈΠ·Π°ΠΉΠ½Π΅ΡΡ ΡΠ΄Π΅Π»ΡΡΡ ΠΎΠ±ΡΡΡΡΠΎΠΉΡΡΠ²Ρ ΠΊΡΡ ΠΎΠ½Π½ΠΎΠ³ΠΎ ΠΏΡΠΎΡΡΡΠ°Π½ΡΡΠ²Π°. ΠΡΡ Π½Ρ ΠΌΠΎΠΆΠ΅Ρ Π±ΡΡΡ ΠΎΡΠ΄Π΅Π»ΡΠ½ΠΎΠΉ ΠΈΠ»ΠΈ ΠΎΡΠΎΡΠΌΠ»Π΅Π½Π° ΠΊΠ°ΠΊ ΡΡΡΠ΄ΠΈΡ — ΡΠΎΠ²ΠΌΠ΅ΡΠ΅Π½Π° Ρ Π³ΠΎΡΡΠΈΠ½ΠΎΠΉ ΠΈΠ»ΠΈ ΡΠΏΠ°Π»ΡΠ½ΠΎΠΉ Π·ΠΎΠ½ΠΎΠΉ. ΠΡΠ»ΠΈ Ρ Π²Π°Ρ ΡΠ°ΡΡΠΎ Π±ΡΠ²Π°ΡΡ Π³ΠΎΡΡΠΈ ΠΈ Π²Ρ ΠΎΡΡΠ°Π΅ΡΠ΅ΡΡ Π½Π° Π½ΠΎΡΡ, ΡΠ΄Π΅Π»Π°ΠΉΡΠ΅ ΠΊΡΡ Π½Ρ-ΡΡΡΠ΄ΠΈΡ Ρ Π΄ΠΈΠ²Π°Π½ΠΎΠΌ ΠΈ ΠΎΡΠΎΡΠΌΡΡΠ΅ ΡΠ²ΠΎΡ ΠΊΠΎΠΌΠ½Π°ΡΡ ΠΊΠ°ΠΊ ΡΠΏΠ°Π»ΡΠ½Ρ.
ΠΡΠΎΠ±Π΅Π½Π½ΠΎΡΡΠΈ ΠΏΠ»Π°Π½ΠΈΡΠΎΠ²ΠΊΠΈ ΠΎΠ΄Π½ΠΎΠΊΠΎΠΌΠ½Π°ΡΠ½ΠΎΠΉ ΠΊΠ²Π°ΡΡΠΈΡΡ Π΄Π»Ρ ΡΠ΅ΠΌΡΠΈ, ΠΈΠ»ΠΈ ΠΠ²Π΅ ΠΊΠΎΠΌΠ½Π°ΡΡ Π²ΠΌΠ΅ΡΡΠΎ ΠΎΠ΄Π½ΠΎΠΉ
ΠΠ΄Π΅Π°Π»ΡΠ½Π°Ρ ΠΏΠ»Π°Π½ΠΈΡΠΎΠ²ΠΊΠ° ΠΎΠ΄Π½ΠΎΠΊΠΎΠΌΠ½Π°ΡΠ½ΠΎΠΉ ΠΊΠ²Π°ΡΡΠΈΡΡ Π΄Π»Ρ ΡΠ΅ΠΌΡΠΈ ΠΏΡΠ΅Π΄ΠΏΠΎΠ»Π°Π³Π°Π΅Ρ Π΄Π²Π΅ ΠΊΠΎΠΌΠ½Π°ΡΡ — Π½Π°ΠΏΡΠΈΠΌΠ΅Ρ, Π΄Π΅ΡΡΠΊΡΡ ΠΈ ΡΠΏΠ°Π»ΡΠ½Ρ Π΄Π»Ρ Π²Π·ΡΠΎΡΠ»ΡΡ . Π ΠΈΡΠΏΠΎΠ»Π½Π΅Π½ΠΈΠΈ ΠΎΠ½ Π½Π΅ ΡΠ°ΠΌΡΠΉ ΡΠ΄ΠΎΠ±Π½ΡΠΉ, Π½ΠΎ ΠΏΠΎΠ·Π²ΠΎΠ»ΡΠ΅Ρ ΠΎΠ±Π΅ΡΠΏΠ΅ΡΠΈΡΡ ΠΊΠ°ΠΆΠ΄ΠΎΠΌΡ Π΄ΠΎΠΌΠΎΠ²Π»Π°Π΄Π΅Π½ΠΈΡ ΡΠ²ΠΎΠΉ Β«ΡΠ³ΠΎΠ»ΠΎΠΊΒ».
ΠΠ»Π°Π½ΠΈΡΠΎΠ²ΠΊΠ° ΠΎΠ΄Π½ΠΎΠΊΠΎΠΌΠ½Π°ΡΠ½ΠΎΠΉ ΠΊΠ²Π°ΡΡΠΈΡΡ Π΄Π»Ρ ΡΠ΅ΠΌΡΠΈ Π² Π΄Π°Π½Π½ΠΎΠΌ ΡΠ»ΡΡΠ°Π΅ ΠΏΡΠ΅Π΄ΠΏΠΎΠ»Π°Π³Π°Π΅Ρ ΡΠ½ΠΎΡ ΡΡΠ΅Π½ — ΠΊΡΠΎΡ ΠΎΡΠ½ΡΡ ΠΊΠ²Π°ΡΡΠΈΡΡ, ΡΠ°Π·Π΄Π΅Π»Π΅Π½Π½ΡΡ Π½Π° ΠΌΠ°Π»Π΅Π½ΡΠΊΠΈΠ΅ ΠΊΠΎΠΌΠ½Π°ΡΡ, ΠΌΠΎΠΆΠ½ΠΎ ΠΏΡΠ΅Π²ΡΠ°ΡΠΈΡΡ Π² ΡΡΡΠ΄ΠΈΡ.ΠΡΠΎΡ Π²Π°ΡΠΈΠ°Π½Ρ ΠΏΠΎΠ΄ΠΎΠΉΠ΄Π΅Ρ ΡΠ΅ΠΌΡΡΠΌ Ρ ΠΎΠ΄Π½ΠΈΠΌ ΠΌΠ°Π»Π΅Π½ΡΠΊΠΈΠΌ ΡΠ΅Π±Π΅Π½ΠΊΠΎΠΌ. ΠΡΠ΅ ΠΎΠ΄Π½ΠΎ ΡΠ΅ΡΠ΅Π½ΠΈΠ΅ — ΠΎΠ±ΡΠ΅Π΄ΠΈΠ½ΠΈΡΡ ΠΊΡΡ Π½Ρ ΡΠΎ ΡΠΏΠ°Π»ΡΠ½Π΅ΠΉ, Π° Π΄Π»Ρ Π΄Π΅ΡΡΠΊΠΎΠΉ Π²ΡΠ΄Π΅Π»ΠΈΡΡ ΠΏΡΠΎΡΡΡΠ°Π½ΡΡΠ²ΠΎ 5-6 ΠΌΠ΅ΡΡΠΎΠ².
ΠΠ»Π°Π½ΠΈΡΠΎΠ²ΠΊΠ° ΠΎΠ΄Π½ΠΎΠΊΠΎΠΌΠ½Π°ΡΠ½ΠΎΠΉ ΠΊΠ²Π°ΡΡΠΈΡΡ Π΄Π»Ρ ΡΠ΅ΠΌΡΠΈ Ρ ΡΠ΅Π±Π΅Π½ΠΊΠΎΠΌ
ΠΠ»Π°Π½ΠΈΡΠΎΠ²ΠΊΠ° ΠΎΠ΄Π½ΠΎΠΊΠΎΠΌΠ½Π°ΡΠ½ΠΎΠΉ ΠΊΠ²Π°ΡΡΠΈΡΡ Π΄Π»Ρ ΡΠ΅ΠΌΡΠΈ Ρ ΡΠ΅Π±Π΅Π½ΠΊΠΎΠΌ Π² ΠΈΠ΄Π΅Π°Π»Π΅ Π΄ΠΎΠ»ΠΆΠ½Π° ΠΏΡΠ΅Π΄ΠΏΠΎΠ»Π°Π³Π°ΡΡ Π½Π°Π»ΠΈΡΠΈΠ΅ Π΄Π²ΡΡ ΠΆΠΈΠ»ΡΡ Π·ΠΎΠ½ — Π΄Π»Ρ ΡΠΎΠ΄ΠΈΡΠ΅Π»Π΅ΠΉ ΠΈ Π΄Π»Ρ ΡΠ΅Π±Π΅Π½ΠΊΠ°. ΠΠ»Ρ ΡΡΠΎΠ³ΠΎ:
- Π‘Π΄Π΅Π»Π°Π½Π° ΠΌΠΈΠ½ΠΈΠ°ΡΡΡΠ½Π°Ρ, Π½ΠΎ ΠΎΡΠ΄Π΅Π»ΡΠ½Π°Ρ Π΄Π΅ΡΡΠΊΠ°Ρ.
- Π ΠΎΠ±ΡΠ΅ΠΉ ΠΊΠΎΠΌΠ½Π°ΡΠ΅ Π΅ΡΡΡ ΠΌΠ΅ΡΡΠΎ Π΄Π»Ρ ΠΌΠ»Π°Π΄Π΅Π½ΡΠ°.
- ΠΡΡ Π½Ρ ΠΎΡΠ΄Π΅Π»Π΅Π½Π° ΠΎΡ ΠΆΠΈΠ»ΠΎΠ³ΠΎ ΠΏΠΎΠΌΠ΅ΡΠ΅Π½ΠΈΡ, Π° ΡΠΎΠ΄ΠΈΡΠ΅Π»ΠΈ ΠΈ ΡΠ΅Π±Π΅Π½ΠΎΠΊ ΠΆΠΈΠ²ΡΡ Π² ΠΎΠ΄Π½ΠΎΠΉ ΠΏΡΠΎΡΡΠΎΡΠ½ΠΎΠΉ ΠΊΠΎΠΌΠ½Π°ΡΠ΅.
ΠΠ»Π°Π½ΠΈΡΠΎΠ²ΠΊΠ° ΠΎΠ΄Π½ΠΎΠΊΠΎΠΌΠ½Π°ΡΠ½ΠΎΠΉ ΠΊΠ²Π°ΡΡΠΈΡΡ Π΄Π»Ρ ΡΠ΅ΠΌΡΠΈ Ρ ΡΠ΅Π±Π΅Π½ΠΊΠΎΠΌ, ΠΏΡΠ΅Π΄ΠΏΠΎΠ»Π°Π³Π°ΡΡΠ°Ρ ΠΎΠ±ΡΡΡΡΠΎΠΉΡΡΠ²ΠΎ ΠΎΡΠ΄Π΅Π»ΡΠ½ΠΎΠΉ Π΄Π΅ΡΡΠΊΠΎΠΉ, ΠΊΠ°ΠΊ Π½Π΅Π»ΡΠ·Ρ Π»ΡΡΡΠ΅ ΠΏΠΎΠ΄Ρ ΠΎΠ΄ΠΈΡ … ΠΠ°ΠΆΠ΅ Π½Π΅Π±ΠΎΠ»ΡΡΡΡ ΠΊΠΎΠΌΠ½Π°ΡΡ ΠΌΠΎΠΆΠ½ΠΎ ΡΡΠ½ΠΊΡΠΈΠΎΠ½Π°Π»ΡΠ½ΠΎ ΠΎΠ±ΡΡΠ°Π²ΠΈΡΡ ΡΡΠ³ΠΎΠ½ΠΎΠΌΠΈΡΠ½ΠΎΠΉ ΠΌΠ΅Π±Π΅Π»ΡΡ, Π° ΠΊΠΎΠ³Π΄Π° ΠΌΠ°Π»ΡΡ ΠΏΠΎΠ΄ΡΠ°ΡΡΠ°Π΅Ρ, Π½Π΅ Π±ΡΠ΄Π΅Ρ ΠΌΠ΅ΡΠ°ΡΡ ΡΠΎΠ΄ΠΈΡΠ΅Π»ΡΠΌ, ΠΈ Π½Π°ΠΎΠ±ΠΎΡΠΎΡ. ΠΡΠΈ ΠΏΠ»Π°Π½ΠΈΡΠΎΠ²ΠΊΠ΅ ΠΎΠ΄Π½ΠΎΠΊΠΎΠΌΠ½Π°ΡΠ½ΠΎΠΉ ΠΊΠ²Π°ΡΡΠΈΡΡ Π΄Π»Ρ ΡΠ΅ΠΌΡΠΈ Ρ ΠΎΠ΄Π½ΠΈΠΌ ΡΠ΅Π±Π΅Π½ΠΊΠΎΠΌ ΠΏΡΠ΅Π΄ΠΏΠΎΠ»Π°Π³Π°Π΅ΡΡΡ ΠΈΡΠΏΠΎΠ»ΡΠ·ΠΎΠ²Π°Π½ΠΈΠ΅ Π΄Π²ΡΡ ΡΡΠ°ΠΆΠ½ΡΡ Π΄Π΅ΡΡΠΊΠΈΡ ΠΌΠ΅Π±Π΅Π»ΡΠ½ΡΡ ΠΊΠΎΠΌΠΏΠ»Π΅ΠΊΡΠΎΠ² (Π½Π° ΠΏΠ΅ΡΠ²ΠΎΠΌ ΡΡΠΎΠ»Π΅ ΠΈΠ»ΠΈ ΠΈΠ³ΡΠΎΠ²ΠΎΠΌ ΠΊΠΎΠΌΠΏΠ»Π΅ΠΊΡΠ΅, Π½Π° Π²ΡΠΎΡΠΎΠΉ ΠΊΡΠΎΠ²Π°ΡΠΈ), ΡΠ³Π»ΠΎΠ²ΡΠ΅ ΡΠΊΠ°ΡΡ.
ΠΡΠΆΠ½Π° Ρ ΠΎΡΠΎΡΠ°Ρ ΠΏΠ»Π°Π½ΠΈΡΠΎΠ²ΠΊΠ° ΠΎΠ΄Π½ΠΎΠΊΠΎΠΌΠ½Π°ΡΠ½ΠΎΠΉ ΠΊΠ²Π°ΡΡΠΈΡΡ Π΄Π»Ρ ΡΠ΅ΠΌΡΠΈ Ρ ΡΠ΅Π±Π΅Π½ΠΊΠΎΠΌ? ΠΠΎΡΠΌΠΎΡΡΠΈΡΠ΅ ΠΏΡΠΈΠΌΠ΅ΡΡ Π³ΠΎΡΠΎΠ²ΡΡ ΠΏΡΠΎΠ΅ΠΊΡΠΎΠ² Π² ΠΠ½ΡΠ΅ΡΠ½Π΅ΡΠ΅, ΡΡΠΎΠ±Ρ ΠΏΠΎΡΠ΅ΡΠΏΠ½ΡΡΡ ΠΈΠ½ΡΠ΅ΡΠ΅ΡΠ½ΡΠ΅ ΠΈΠ΄Π΅ΠΈ, Π° Π΅ΡΠ΅ Π»ΡΡΡΠ΅ ΠΎΠ±ΡΠ°ΡΠΈΡΠ΅ΡΡ ΠΊ ΠΏΡΠΎΡΠ΅ΡΡΠΈΠΎΠ½Π°Π»ΡΠ½ΠΎΠΌΡ Π΄ΠΈΠ·Π°ΠΉΠ½Π΅ΡΡ.
ΠΠ»Π°Π½ΠΈΡΠΎΠ²ΠΊΠ° ΠΎΠ΄Π½ΠΎΠΊΠΎΠΌΠ½Π°ΡΠ½ΠΎΠΉ ΠΊΠ²Π°ΡΡΠΈΡΡ Ρ Π΄Π²ΡΠΌΡ Π΄Π΅ΡΡΠΌΠΈ
ΠΠ»Π°Π½ΠΈΡΠΎΠ²ΠΊΠ° ΠΎΠ΄Π½ΠΎΠΊΠΎΠΌΠ½Π°ΡΠ½ΠΎΠΉ ΠΊΠ²Π°ΡΡΠΈΡΡ Ρ Π΄Π²ΡΠΌΡ Π΄Π΅ΡΡΠΌΠΈ Π²ΡΠΏΠΎΠ»Π½ΡΠ΅ΡΡΡ ΠΏΡΠ°ΠΊΡΠΈΡΠ΅ΡΠΊΠΈ ΡΠ°ΠΊ ΠΆΠ΅, ΠΊΠ°ΠΊ ΠΏΠ»Π°Π½ΠΈΡΠΎΠ²ΠΊΠ° ΠΎΠ΄Π½ΠΎΠΊΠΎΠΌΠ½Π°ΡΠ½ΠΎΠΉ ΠΊΠ²Π°ΡΡΠΈΡΡ Ρ ΡΠ΅Π±Π΅Π½ΠΊΠΎΠΌ. Π Π°Π·Π½ΠΈΡΠ° Π² ΡΠΎΠΌ, ΡΡΠΎ ΠΌΠ°Π»ΡΡΠ΅ΠΉ Π΄Π²ΠΎΠ΅, Π° Π² Π΄Π΅ΡΡΠΊΠΎΠΉ Π·ΠΎΠ½Π΅ Π΄ΠΎΠ»ΠΆΠ½ΠΎ Π±ΡΡΡ Π±ΠΎΠ»ΡΡΠ΅ ΠΌΠ΅ΡΡΠ°.ΠΠ° ΠΏΠΎΠΌΠΎΡΡ ΠΏΡΠΈΡ ΠΎΠ΄ΠΈΡ ΡΠ°ΠΊΠ°Ρ ΠΆΠ΅ ΡΡΠ³ΠΎΠ½ΠΎΠΌΠΈΡΠ½Π°Ρ ΡΡΠ½ΠΊΡΠΈΠΎΠ½Π°Π»ΡΠ½Π°Ρ ΠΌΠ΅Π±Π΅Π»Ρ, ΠΊΠ°ΠΊ ΠΊΠΎΠΌΠ±ΠΈΠ½ΠΈΡΠΎΠ²Π°Π½Π½ΡΠ΅ ΡΡΠΎΠ»Ρ ΠΈ Π³Π°ΡΠ΄Π΅ΡΠΎΠ±Ρ, Π΄Π²ΡΡ ΡΡΡΡΡΠ½ΡΠ΅ ΠΊΡΠΎΠ²Π°ΡΠΈ. ΠΠ»Π°Π½ΠΈΡΠΎΠ²ΠΊΡ ΠΎΠ΄Π½ΠΎΠΊΠΎΠΌΠ½Π°ΡΠ½ΠΎΠΉ ΠΊΠ²Π°ΡΡΠΈΡΡ Ρ Π΄Π²ΡΠΌΡ Π΄Π΅ΡΡΠΌΠΈ ΠΎΠ±ΡΠ·Π°ΡΠ΅Π»ΡΠ½ΠΎ Π½ΡΠΆΠ½ΠΎ ΠΏΡΠΎΠ²ΠΎΠ΄ΠΈΡΡ Ρ ΡΡΠ΅ΡΠΎΠΌ ΡΠ°Π·Π½ΠΈΡΡ Π² Π²ΠΎΠ·ΡΠ°ΡΡΠ΅ — Π²Π΅Π΄Ρ ΠΎΠ΄Π½ΠΎ Π΄Π΅Π»ΠΎ ΠΎΠ±ΠΎΡΡΠ΄ΠΎΠ²Π°ΡΡ Π³ΠΎΡΡΠΈΠ½ΡΡ Π΄Π»Ρ ΠΏΠΎΠ³ΠΎΠ΄Π½ΡΡ Π΄Π΅Π²ΠΎΡΠ΅ΠΊ ΠΈΠ»ΠΈ Π΄Π΅ΡΠ΅ΠΉ Ρ Π½Π΅Π±ΠΎΠ»ΡΡΠΎΠΉ ΡΠ°Π·Π½ΠΈΡΠ΅ΠΉ, Π° Π΄ΡΡΠ³ΠΎΠ΅ — Π΄Π»Ρ ΠΏΠΎΠ΄ΡΠΎΡΡΠΊΠ°. ΠΈ ΠΌΠ°Π»Π΅Π½ΡΠΊΠΈΠΉ ΡΠ΅Π±Π΅Π½ΠΎΠΊ. Π ΡΡΠΎΠΌ ΡΠ»ΡΡΠ°Π΅ ΡΠΎΠ΄ΠΈΡΠ΅Π»ΡΠΌ ΠΈΠΌΠ΅Π΅Ρ ΡΠΌΡΡΠ» Π²ΡΠ΄Π΅Π»ΠΈΡΡ ΠΏΠΎΠ΄ΡΠΎΡΡΠΊΡ ΠΎΡΠ΄Π΅Π»ΡΠ½ΡΠΉ ΡΠ³ΠΎΠ»ΠΎΠΊ, Π° ΠΌΠ°Π»ΡΡΠ° ΠΎΡΠ²Π΅ΡΡΠΈ ΠΊ ΡΠ΅Π±Π΅.
ΠΡΠΎΠ΅ΠΊΡΡ Ρ ΡΠΎΡΠΎ
ΠΠ»Π°Π½ΠΈΡΠΎΠ²ΠΊΠ° ΠΎΠ΄Π½ΠΎΠΊΠΎΠΌΠ½Π°ΡΠ½ΠΎΠΉ ΠΊΠ²Π°ΡΡΠΈΡΡ Π΄Π»Ρ ΡΠ΅ΠΌΡΠΈ Ρ ΡΠ΅Π±Π΅Π½ΠΊΠΎΠΌ ΠΌΠΎΠΆΠ΅Ρ Π±ΡΡΡ ΠΏΡΠ°ΠΊΡΠΈΡΠ΅ΡΠΊΠΈ ΠΈΠ΄Π΅Π°Π»ΡΠ½ΠΎΠΉ ΠΈ ΠΏΠΎΠ·Π²ΠΎΠ»ΠΈΡ ΠΏΡΠ΅Π²ΡΠ°ΡΠΈΡΡ Π΄Π°ΠΆΠ΅ ΠΎΡΠ΅Π½Ρ ΠΎΠ³ΡΠ°Π½ΠΈΡΠ΅Π½Π½ΠΎΠ΅ ΠΆΠΈΠ»ΠΎΠ΅ ΠΏΡΠΎΡΡΡΠ°Π½ΡΡΠ²ΠΎ Π² ΠΏΡΠΎΡΡΠΎΡΠ½ΡΡ ΠΊΠ²Π°ΡΡΠΈΡΡ.ΠΠ΅ Π·Π½Π°Ρ ΠΊΠ°ΠΊ? ΠΠΎΡΡΠ°ΡΠΎΡΠ½ΠΎ Π²Π·Π³Π»ΡΠ½ΡΡΡ Π½Π° ΠΏΠ»Π°Π½ΠΈΡΠΎΠ²ΠΊΠΈ ΠΎΠ΄Π½ΠΎΠΊΠΎΠΌΠ½Π°ΡΠ½ΡΡ ΠΊΠ²Π°ΡΡΠΈΡ Π½Π° ΡΠΎΡΠΎ, ΡΡΠΎΠ±Ρ ΠΏΠΎΡΠ΅ΡΠΏΠ½ΡΡΡ ΠΈΠ½ΡΠ΅ΡΠ΅ΡΠ½ΡΠ΅ ΠΈΠ΄Π΅ΠΈ. ΠΠ»Π°Π½ΠΈΡΠΎΠ²ΠΊΠ° ΠΎΠ΄Π½ΠΎΠΊΠΎΠΌΠ½Π°ΡΠ½ΠΎΠΉ ΠΊΠ²Π°ΡΡΠΈΡΡ Ρ ΡΠ΅Π±Π΅Π½ΠΊΠΎΠΌ, Π΄Π²ΡΠΌΡ Π΄Π΅ΡΡΠΌΠΈ ΠΈ Π΄Π»Ρ ΡΠ΅ΠΌΡΠΈ Π±Π΅Π· Π΄Π΅ΡΠ΅ΠΉ, ΠΎΠ΄Π½ΠΎΠ³ΠΎ ΡΠ΅Π»ΠΎΠ²Π΅ΠΊΠ°, ΡΡΡΠ΄Π΅Π½ΡΠ°, ΠΆΠ΅Π½ΡΠΈΠ½Ρ ΠΈΠ»ΠΈ Π²Π·ΡΠΎΡΠ»ΠΎΠ³ΠΎ ΠΌΡΠΆΡΠΈΠ½Ρ ΠΌΠΎΠΆΠ΅Ρ Π±ΡΡΡ Π²ΡΠΏΠΎΠ»Π½Π΅Π½Π° Π² Π»ΡΠ±ΠΎΠΌ ΡΡΠΈΠ»Π΅ ΠΈ ΠΏΡΠ΅Π΄ΠΏΠΎΠ»Π°Π³Π°ΡΡ ΠΈΡΠΏΠΎΠ»ΡΠ·ΠΎΠ²Π°Π½ΠΈΠ΅ ΡΠ°Π·Π»ΠΈΡΠ½ΡΡ ΡΠ»Π΅ΠΌΠ΅Π½ΡΠΎΠ² Π΄ΠΈΠ·Π°ΠΉΠ½Π°.
Π§ΡΠΎ Π΄Π΅Π»Π°ΡΡ Ρ Π²Π°Π½Π½ΠΎΠΉ?
ΠΠ»Π°Π½ΠΈΡΠΎΠ²ΠΊΠ° ΠΎΠ΄Π½ΠΎΠΊΠΎΠΌΠ½Π°ΡΠ½ΠΎΠΉ ΠΊΠ²Π°ΡΡΠΈΡΡ 40 ΠΊΠ². ΠΠΎΠΆΠ΅Ρ ΠΏΡΠ΅Π΄ΠΏΠΎΠ»Π°Π³Π°ΡΡ ΠΊΠ°ΠΊ Π΄ΠΎΡΡΠ°ΡΠΎΡΠ½ΠΎ ΠΏΡΠΎΡΡΠΎΡΠ½ΡΡ, ΡΠ°ΠΊ ΠΈ ΠΌΠΈΠ½ΠΈΠΌΠ°Π»ΠΈΡΡΠΈΡΠ½ΡΡ Π²Π°Π½Π½ΡΡ ΠΊΠΎΠΌΠ½Π°ΡΡ. Π ΡΠ΅Π»ΠΎΠΌ ΠΏΡΠΈ ΠΏΠ»Π°Π½ΠΈΡΠΎΠ²ΠΊΠ΅ ΠΎΠ΄Π½ΠΎΠΊΠΎΠΌΠ½Π°ΡΠ½ΡΡ ΠΊΠ²Π°ΡΡΠΈΡ ΠΏΠ»ΠΎΡΠ°Π΄ΡΡ 40 ΠΊΠ².Π° ΡΠ°Π½ΡΠ·Π»Ρ Π² Π½ΠΈΡ ΠΌΠΎΠΆΠ½ΠΎ ΠΎΡΠΈΠ΅Π½ΡΠΈΡΠΎΠ²Π°ΡΡΡΡ ΠΏΠΎ Π΄Π²ΡΠΌ ΡΡ Π΅ΠΌΠ°ΠΌ:
- ΠΠ΅ΡΠ²ΡΠΉ ΡΠ°Π½ΡΠ·Π΅Π» ΡΠ°Π·Π΄Π΅Π»ΡΠ½ΡΠΉ. Π ΡΡΠΎΠΌ ΡΠ»ΡΡΠ°Π΅ ΡΡΠ°Π»Π΅Ρ ΠΈ Π²Π°Π½Π½Π°Ρ ΡΠ°Π·Π΄Π΅Π»Π΅Π½Ρ ΡΡΠ΅Π½ΠΎΠΉ ΠΈ ΠΏΡΠ΅Π΄ΡΡΠ°Π²Π»ΡΡΡ ΡΠΎΠ±ΠΎΠΉ ΠΎΡΠ΄Π΅Π»ΡΠ½ΡΠ΅ ΠΊΠΎΠΌΠ½Π°ΡΡ. ΠΠ»ΡΡΡ ΠΎΡΠ΄Π΅Π»ΡΠ½ΠΎΠ³ΠΎ ΡΠ°Π½ΡΠ·Π»Π° ΠΎΠΏΠΈΡΡΠ²Π°ΡΡ Π½Π΅ Π½ΡΠΆΠ½ΠΎ, ΡΡΠΎΡ Π²Π°ΡΠΈΠ°Π½Ρ ΠΏΡΠ΅Π΄ΠΏΠΎΡΡΠΈΡΠ΅Π»Π΅Π½ Π΄Π»Ρ ΡΠ΅ΠΌΠ΅ΠΉ ΠΈΠ· Π½Π΅ΡΠΊΠΎΠ»ΡΠΊΠΈΡ ΡΠ΅Π»ΠΎΠ²Π΅ΠΊ. Π§ΡΠΎ ΠΏΠΎΠ΄Π΅Π»Π°Π΅ΡΡ ΠΏΡΠΈ ΠΏΠ»Π°Π½ΠΈΡΠΎΠ²ΠΊΠ΅ ΡΠ°Π½ΡΠ·Π»Π° Π² ΠΎΠ΄Π½ΠΎΠΊΠΎΠΌΠ½Π°ΡΠ½ΠΎΠΉ ΠΊΠ²Π°ΡΡΠΈΡΠ΅ 40 ΠΊΠ². Π Π΄Π°Π½Π½ΠΎΠΌ ΡΠ»ΡΡΠ°Π΅ ΡΡΠΎ ΠΌΠ°ΠΊΡΠΈΠΌΠ°Π»ΡΠ½ΠΎ ΡΡΡΠ΅ΠΊΡΠΈΠ²Π½ΠΎΠ΅ ΠΈΡΠΏΠΎΠ»ΡΠ·ΠΎΠ²Π°Π½ΠΈΠ΅ ΠΏΠ»ΠΎΡΠ°Π΄ΠΈ ΡΠ°Π½ΡΠ·Π»Π°. ΠΠ°ΠΊ? ΠΡΠΏΠΎΠ»ΡΠ·ΡΡ ΠΌΠΈΠ½ΠΈΠΌΡΠΌ ΠΌΠ΅Π±Π΅Π»ΠΈ, ΠΏΠΎΠ²Π΅ΡΠΈΠ² Π½Π° ΡΡΠ΅Π½Ρ ΠΏΡΠΎΡΡΠΎΡΠ½ΡΠ΅ ΡΠΊΠ°ΡΡ, Π·Π°ΠΌΠ΅Π½ΠΈΠ² Π²Π°Π½Π½Ρ Π΄ΡΡΠ΅Π²ΠΎΠΉ ΠΊΠ°Π±ΠΈΠ½ΠΎΠΉ (Π΅ΡΠ»ΠΈ ΠΊΠΎΠΌΠ½Π°ΡΠ° Π½Π΅Π±ΠΎΠ»ΡΡΠ°Ρ ΠΈ Π² Π½Π΅ΠΉ ΡΡΠΎΠΈΡ ΡΡΠΈΡΠ°Π»ΡΠ½Π°Ρ ΠΌΠ°ΡΠΈΠ½Π°, Π΄Π»Ρ ΠΎΠ±ΡΡΠ½ΠΎΠΉ Π²Π°Π½Π½Ρ ΠΌΠΎΠΆΠ΅Ρ ΠΏΡΠΎΡΡΠΎ Π½Π΅ ΠΎΡΡΠ°ΡΡΡΡ ΠΌΠ΅ΡΡΠ°).
- ΠΡΠΎΡΠ°Ρ ΡΡ Π΅ΠΌΠ° — ΡΠΎΠ²ΠΌΠ΅ΡΠ΅Π½Π½ΡΠΉ ΡΠ°Π½ΡΠ·Π΅Π». ΠΡΠΈ ΠΏΠ»Π°Π½ΠΈΡΠΎΠ²ΠΊΠ΅ ΡΡΠ°Π½Π΄Π°ΡΡΠ½ΠΎΠΉ ΠΎΠ΄Π½ΠΎΠΊΠΎΠΌΠ½Π°ΡΠ½ΠΎΠΉ ΠΊΠ²Π°ΡΡΠΈΡΡ 40 ΠΊΠ². ΠΠ³ΠΎ ΠΈΡΠΏΠΎΠ»ΡΠ·ΡΡΡ ΡΠ°ΡΠ΅, ΠΏΠΎΡΠΎΠΌΡ ΡΡΠΎ ΡΡΠΎ ΡΠΊΠΎΠ½ΠΎΠΌΠΈΡ ΠΌΠ΅ΡΡΠΎ. Π ΠΌΠΎΠ½ΠΎΠ±Π»ΠΎΡΠ½ΠΎΠΉ Π²Π°Π½Π½ΠΎΠΉ ΠΌΠΎΠΆΠ½ΠΎ ΡΡΡΠ°Π½ΠΎΠ²ΠΈΡΡ ΠΈ ΠΊΡΠ°ΡΠΈΠ²ΡΡ Π²Π°Π½Π½Ρ, ΠΈ Π½Π΅ΠΎΠ±Ρ ΠΎΠ΄ΠΈΠΌΡΡ ΠΌΠ΅Π±Π΅Π»Ρ, ΠΈ ΡΡΠΈΡΠ°Π»ΡΠ½ΡΡ ΠΌΠ°ΡΠΈΠ½Ρ, ΠΏΠΎΡΡΠΎΠΌΡ ΠΌΠ½ΠΎΠ³ΠΈΠ΅ ΠΎΠ±Π»Π°Π΄Π°ΡΠ΅Π»ΠΈ ΠΏΡΠΎΡΡΠΎΡΠ½ΠΎΠΉ ΠΎΠ΄Π½ΡΡΠΊΠΈ ΠΎΡΠ΄Π°ΡΡ ΠΏΡΠ΅Π΄ΠΏΠΎΡΡΠ΅Π½ΠΈΠ΅ ΠΈΠΌΠ΅Π½Π½ΠΎ ΡΡΠΎΠΌΡ Π²Π°ΡΠΈΠ°Π½ΡΡ.
ΠΠ±Π΅ ΠΏΠ»Π°Π½ΠΈΡΠΎΠ²ΠΊΠΈ ΠΎΠ΄Π½ΠΎΠΊΠΎΠΌΠ½Π°ΡΠ½ΡΡ ΠΊΠ²Π°ΡΡΠΈΡ ΠΏΠΎ 40 ΠΊΠ².ΠΌ ΠΎΠ΄ΠΈΠ½Π°ΠΊΠΎΠ²ΠΎ ΡΡΠ½ΠΊΡΠΈΠΎΠ½Π°Π»ΡΠ½Ρ. Π§ΡΠΎ Π²ΡΠ±ΡΠ°ΡΡ — ΡΠ΅ΡΠ°ΠΉΡΠ΅ ΡΠ°ΠΌΠΈ, ΡΡΠΈΡΡΠ²Π°Ρ ΡΠ΅ΠΊΡΡΠΈΠ΅ Π·Π°ΠΏΡΠΎΡΡ ΠΈ Π»ΠΈΡΠ½ΡΠ΅ ΠΏΡΠ΅Π΄ΠΏΠΎΡΡΠ΅Π½ΠΈΡ.
ΠΡΠΎΠ±Π΅Π½Π½ΠΎΡΡΠΈ ΠΏΠ»Π°Π½ΠΈΡΠΎΠ²ΠΊΠΈ ΠΎΠ΄Π½ΠΎΠΊΠΎΠΌΠ½Π°ΡΠ½ΠΎΠΉ ΠΊΠ²Π°ΡΡΠΈΡΡ 41 ΠΊΠ².
ΠΠ»Π°Π½ΠΈΡΠΎΠ²ΠΊΠ° ΠΎΠ΄Π½ΠΎΠΊΠΎΠΌΠ½Π°ΡΠ½ΠΎΠΉ ΠΊΠ²Π°ΡΡΠΈΡΡ 41 ΠΊΠ². Π. ΠΡΠΏΠΎΠ»Π½Π΅Π½Π° ΡΠ°ΠΊ ΠΆΠ΅, ΠΊΠ°ΠΊ ΠΈ ΠΏΠ»Π°Π½ΠΈΡΠΎΠ²ΠΊΠ° ΠΎΠ΄Π½ΠΎΠΊΠΎΠΌΠ½Π°ΡΠ½ΠΎΠΉ ΠΊΠ²Π°ΡΡΠΈΡΡ 40 ΠΊΠ². ΠΡΡΡ ΠΊΠ°ΠΊΠΈΠ΅-Π½ΠΈΠ±ΡΠ΄Ρ ΠΎΡΠΎΠ±Π΅Π½Π½ΠΎΡΡΠΈ? ΠΠ½ΠΈ Π±ΡΠ΄ΡΡ ΡΠ°ΠΊΠΈΠΌΠΈ ΠΆΠ΅, ΠΊΠ°ΠΊ ΠΈ Π΄Π»Ρ Π²ΡΠ΅Ρ ΠΎΠ΄Π½ΡΡΠ΅ΠΊ ΡΠ°ΡΡΠΌΠ°ΡΡΠΈΠ²Π°Π΅ΠΌΠΎΠΉ ΠΎΠ±Π»Π°ΡΡΠΈ. Π§ΡΠΎΠ±Ρ ΠΏΠ»Π°Π½ΠΈΡΠΎΠ²ΠΊΠ° ΠΎΠ΄Π½ΠΎΠΊΠΎΠΌΠ½Π°ΡΠ½ΠΎΠΉ ΠΊΠ²Π°ΡΡΠΈΡΡ 41 ΠΊΠ². ΠΡΠ»Π° ΡΡΠ½ΠΊΡΠΈΠΎΠ½Π°Π»ΡΠ½ΠΎΠΉ ΠΈ Π²Π°Ρ ΡΡΡΡΠ°ΠΈΠ²Π°Π»Π° Π½Π° 100%, ΡΠ°ΡΡΠΌΠΎΡΡΠΈΡΠ΅ Π²ΠΎΠ·ΠΌΠΎΠΆΠ½ΠΎΡΡΡ ΡΠ½ΠΎΡΠ° ΡΡΠ΅Π½, Π²ΡΠ΄Π΅Π»Π΅Π½ΠΈΡ ΠΎΡΠ΄Π΅Π»ΡΠ½ΡΡ ΡΡΠ½ΠΊΡΠΈΠΎΠ½Π°Π»ΡΠ½ΡΡ Π·ΠΎΠ½, ΠΎΠ±ΡΠ΅Π΄ΠΈΠ½Π΅Π½ΠΈΡ ΠΈΠ»ΠΈ, Π½Π°ΠΎΠ±ΠΎΡΠΎΡ, ΡΠ°Π·Π΄Π΅Π»Π΅Π½ΠΈΡ ΡΠ°Π½ΡΠ·Π»Π°.
ΠΠ»Π°Π½Ρ ΠΎΠ΄Π½ΠΎΠΊΠΎΠΌΠ½Π°ΡΠ½ΡΡ ΠΊΠ²Π°ΡΡΠΈΡ 42 ΠΊΠ².
ΠΠ»Π°Π½ΠΈΡΠΎΠ²ΠΊΠ° ΠΎΠ΄Π½ΠΎΠΊΠΎΠΌΠ½Π°ΡΠ½ΠΎΠΉ ΠΊΠ²Π°ΡΡΠΈΡΡ 42 ΠΊΠ². ΠΡΠΏΠΎΠ»Π½ΡΠ΅ΡΡΡ ΡΠ°ΠΊ ΠΆΠ΅, ΠΊΠ°ΠΊ ΠΏΠ»Π°Π½ΠΈΡΠΎΠ²ΠΊΠ° ΠΎΠ΄Π½ΠΎΠΊΠΎΠΌΠ½Π°ΡΠ½ΠΎΠΉ ΠΊΠ²Π°ΡΡΠΈΡΡ 40 ΠΊΠ². ΠΡΠ±Π΅ΡΠΈΡΠ΅ ΠΊΠ°Π±ΠΈΠ½Π΅Ρ ΠΈΠ»ΠΈ ΠΌΠ°Π»Π΅Π½ΡΠΊΡΡ Π΄Π΅ΡΡΠΊΡΡ, ΡΠΏΠ°Π»ΡΠ½Ρ ΠΈΠ»ΠΈ Π³ΠΎΡΡΠΈΠ½ΡΡ ΡΠ΄Π΅Π»Π°ΠΉΡΠ΅ Π³Π»Π°Π²Π½ΠΎΠΉ ΠΊΠΎΠΌΠ½Π°ΡΠΎΠΉ — ΠΊΠ°ΠΊ Π²Π°ΠΌ Π±ΠΎΠ»ΡΡΠ΅ Π½ΡΠ°Π²ΠΈΡΡΡ. ΠΠ²Π° ΠΌΠ΅ΡΡΠ° — ΠΏΡΡΡΡ ΠΈ Π½Π΅Π±ΠΎΠ»ΡΡΠΎΠΉ, Π½ΠΎ Π²ΡΠ΅ ΠΆΠ΅ Π²ΡΠΈΠ³ΡΡΡ, ΠΏΠΎΡΡΠΎΠΌΡ ΠΏΠ»Π°Π½ΠΈΡΠΎΠ²ΠΊΠ° ΠΎΠ΄Π½ΠΎΠΊΠΎΠΌΠ½Π°ΡΠ½ΠΎΠΉ ΠΊΠ²Π°ΡΡΠΈΡΡ Π² 42 ΠΊΠ². ΠΠ°Π΅Ρ ΠΎΠΏΡΠ΅Π΄Π΅Π»Π΅Π½Π½ΡΠΉ ΠΏΡΠΎΡΡΠΎΡ Π΄Π»Ρ ΡΠ²ΠΎΡΡΠ΅ΡΡΠ²Π°.
ΠΡΠ½ΠΎΠ²Π½ΡΠ΅ Π²Π°ΡΠΈΠ°Π½ΡΡ ΠΏΠ»Π°Π½ΠΈΡΠΎΠ²ΠΊΠΈ ΠΎΠ΄Π½ΠΎΠΊΠΎΠΌΠ½Π°ΡΠ½ΠΎΠΉ ΠΊΠ²Π°ΡΡΠΈΡΡ 42 ΠΊΠ².ΠΌ .:
- Π‘ΡΡΠ΄ΠΈΡ — ΡΡΠΎ ΠΎΡΠ΄Π΅Π»ΡΠ½Π°Ρ Π·ΠΎΠ½Π° ΠΈΠ»ΠΈ ΠΎΡΠΊΡΡΡΠΎΠ΅ ΠΏΡΠΎΡΡΡΠ°Π½ΡΡΠ²ΠΎ.
- ΠΠ±ΡΠ΅Π΄ΠΈΠ½Π΅Π½ΠΈΠ΅ ΡΠΏΠ°Π»ΡΠ½ΠΈ ΠΈΠ»ΠΈ Π³ΠΎΡΡΠΈΠ½ΠΎΠΉ Ρ ΠΊΡΡ Π½Π΅ΠΉ ΠΈ ΡΡΡΡΠΎΠΉΡΡΠ²ΠΎ ΠΎΡΠ΄Π΅Π»ΡΠ½ΠΎΠΉ Π½Π΅Π±ΠΎΠ»ΡΡΠΎΠΉ ΠΊΠΎΠΌΠ½Π°ΡΡ (ΡΠΏΠ°Π»ΡΠ½Ρ, ΠΊΠ°Π±ΠΈΠ½Π΅Ρ, Π΄Π΅ΡΡΠΊΠ°Ρ ΠΈΠ»ΠΈ Π³Π°ΡΠ΄Π΅ΡΠΎΠ±Π½Π°Ρ).
- Π‘ΠΎΠ·Π΄Π°Π½ΠΈΠ΅ Π½Π΅Π±ΠΎΠ»ΡΡΠΎΠΉ ΠΎΡΠ΄Π΅Π»ΡΠ½ΠΎΠΉ ΠΊΡΡ ΠΎΠ½ΡΠΊΠΈ ΠΈ ΠΏΠΎΠ»Π½ΠΎΡΠ΅Π½Π½ΠΎΠΉ Π³ΠΎΡΡΠΈΠ½ΠΎΠΉ.
Π Π°ΡΡΠΌΠΎΡΡΠ΅Π½Π½ΡΠ΅ Π²Π°ΡΠΈΠ°Π½ΡΡ ΠΏΠ»Π°Π½ΠΈΡΠΎΠ²ΠΊΠΈ ΠΎΠ΄Π½ΠΎΠΊΠΎΠΌΠ½Π°ΡΠ½ΠΎΠΉ ΠΊΠ²Π°ΡΡΠΈΡΡ ΠΏΠ»ΠΎΡΠ°Π΄ΡΡ 42 ΠΊΠ².ΠΌ ΠΏΠΎΠ΄Ρ ΠΎΠ΄ΡΡ Π΄Π»Ρ ΡΠ΅ΠΌΠ΅ΠΉΠ½ΡΡ ΠΏΠ°Ρ, ΡΠ΅ΠΌΠ΅ΠΉ Ρ Π΄Π΅ΡΡΠΌΠΈ ΠΈ ΡΠ΅Ρ , ΠΊΡΠΎ ΠΆΠΈΠ²Π΅Ρ ΡΠ°ΠΌΠΎΡΡΠΎΡΡΠ΅Π»ΡΠ½ΠΎ.
ΠΠ»Π°Π½Ρ ΠΎΠ΄Π½ΠΎΠΊΠΎΠΌΠ½Π°ΡΠ½ΡΡ ΠΊΠ²Π°ΡΡΠΈΡ 43 ΠΊΠ².ΠΌ. ΡΠ°ΠΊΠΆΠ΅ ΠΎΠ±Π΅ΡΠΏΠ΅ΡΠΈΠ²Π°ΡΡ ΠΎΠΏΡΠ΅Π΄Π΅Π»Π΅Π½Π½ΡΠΉ ΠΏΠΎΠ»Π΅Ρ Π΄Π»Ρ ΡΠ²ΠΎΡΡΠ΅ΡΡΠ²Π°. ΠΠ»Π°Π½ΠΈΡΠΎΠ²ΠΊΠ° ΠΎΠ΄Π½ΠΎΠΊΠΎΠΌΠ½Π°ΡΠ½ΠΎΠΉ ΠΊΠ²Π°ΡΡΠΈΡΡ 43 ΠΊΠ². ΠΠΎΠΆΠ΅Ρ ΠΏΡΠ΅Π΄ΠΏΠΎΠ»Π°Π³Π°ΡΡ ΡΠΎΠ·Π΄Π°Π½ΠΈΠ΅ ΠΎΠ΄Π½ΠΎΠΉ ΠΈΠ»ΠΈ Π΄Π²ΡΡ ΠΊΠΎΠΌΠ½Π°Ρ, ΡΠ°Π·Π΄Π΅Π»Π΅Π½ΠΈΠ΅ ΠΈΠ»ΠΈ ΠΎΠ±ΡΠ΅Π΄ΠΈΠ½Π΅Π½ΠΈΠ΅ ΡΠ°Π½ΡΠ·Π»Π°, ΠΏΡΠΎΡΡΠΎΡΠ½ΠΎΠΉ ΠΈΠ»ΠΈ ΠΎΡΠ΅Π½Ρ ΡΠΊΡΠΎΠΌΠ½ΠΎΠΉ ΠΊΡΡ ΠΎΠ½Π½ΠΎΠΉ Π·ΠΎΠ½Ρ. ΠΠ»Π°Π²Π½ΠΎΠ΅ ΠΏΠΎΠΌΠ½ΠΈΡΡ, ΡΡΠΎ ΠΎΠΏΡΠΈΠΌΠ°Π»ΡΠ½Π°Ρ ΠΏΠ»Π°Π½ΠΈΡΠΎΠ²ΠΊΠ° ΠΎΠ΄Π½ΠΎΠΊΠΎΠΌΠ½Π°ΡΠ½ΠΎΠΉ ΠΊΠ²Π°ΡΡΠΈΡΡ — 43 ΠΊΠ². ΠΡΠΎ ΡΠ°, ΠΊΠΎΡΠΎΡΠ°Ρ ΡΠΎΠΎΡΠ²Π΅ΡΡΡΠ²ΡΠ΅Ρ ΠΏΠΎΡΡΠ΅Π±Π½ΠΎΡΡΡΠΌ Π²Π°ΡΠ΅ΠΉ ΡΠ΅ΠΌΡΠΈ.
ΠΠΈΠ·Π°ΠΉΠ½-ΠΏΠ»Π°Π½ΠΈΡΠΎΠ²ΠΊΠ° ΠΎΠ΄Π½ΠΎΠΊΠΎΠΌΠ½Π°ΡΠ½ΠΎΠΉ ΠΊΠ²Π°ΡΡΠΈΡΡ 44 ΠΊΠ².
ΠΠ»Π°Π½ΠΈΡΠΎΠ²ΠΊΠ° ΠΎΠ΄Π½ΠΎΠΊΠΎΠΌΠ½Π°ΡΠ½ΠΎΠΉ ΠΊΠ²Π°ΡΡΠΈΡΡ 44 ΠΊΠ². ΠΠΎΠΆΠ΅Ρ ΠΎΡΡΡΠ΅ΡΡΠ²Π»ΡΡΡΡΡ Ρ ΡΠ½ΠΎΡΠΎΠΌ ΡΡΠ΅Π½ ΠΈΠ»ΠΈ Π±Π΅Π· ΡΠ½ΠΎΡΠ°.ΠΠ°ΠΊΠΎΠ²Ρ Π΅Π³ΠΎ ΠΎΡΠ½ΠΎΠ²Π½ΡΠ΅ ΠΎΡΠΎΠ±Π΅Π½Π½ΠΎΡΡΠΈ? ΠΠ»Π°Π½ΠΈΡΠΎΠ²ΠΊΠ° ΠΎΠ΄Π½ΠΎΠΊΠΎΠΌΠ½Π°ΡΠ½ΠΎΠΉ ΠΊΠ²Π°ΡΡΠΈΡΡ 44 ΠΊΠ². ΠΠΎΠΆΠ΅Ρ ΠΏΡΠ΅Π΄ΠΏΠΎΠ»Π°Π³Π°ΡΡ ΡΠΎΠ·Π΄Π°Π½ΠΈΠ΅ ΠΎΡΠ΄Π΅Π»ΡΠ½ΡΡ ΡΡΠ½ΠΊΡΠΈΠΎΠ½Π°Π»ΡΠ½ΡΡ Π·ΠΎΠ½ ΠΈΠ»ΠΈ Π΅Π΄ΠΈΠ½ΠΎΠ³ΠΎ ΠΆΠΈΠ»ΠΎΠ³ΠΎ ΠΏΡΠΎΡΡΡΠ°Π½ΡΡΠ²Π°. ΠΠ΅ΡΠ²ΡΠΉ Π²Π°ΡΠΈΠ°Π½Ρ ΡΠ΄ΠΎΠ±Π΅Π½ Π΄Π»Ρ ΡΠ΅ΠΌΠ΅ΠΉ, Π³Π΄Π΅ ΠΊΠ°ΠΆΠ΄ΠΎΠΌΡ Π½ΡΠΆΠ΅Π½ ΡΠ²ΠΎΠΉ ΡΠ³ΠΎΠ»ΠΎΠΊ, Π° Π²ΡΠΎΡΠΎΠΉ — Π΄Π»Ρ Π»ΡΠ΄Π΅ΠΉ, ΠΆΠΈΠ²ΡΡΠΈΡ ΠΎΡΠ΄Π΅Π»ΡΠ½ΠΎ.
ΠΠ»Π°Π½ΠΈΡΠΎΠ²ΠΊΠ° ΠΎΠ΄Π½ΠΎΠΊΠΎΠΌΠ½Π°ΡΠ½ΠΎΠΉ ΠΊΠ²Π°ΡΡΠΈΡΡ 45 ΠΊΠ².
5 Π΄ΠΎΠΏΠΎΠ»Π½ΠΈΡΠ΅Π»ΡΠ½ΡΡ ΠΊΠ²Π°Π΄ΡΠ°ΡΠΎΠ² ΠΏΠΎ ΡΡΠ°Π²Π½Π΅Π½ΠΈΡ ΡΠΎ ΡΡΠ°Π½Π΄Π°ΡΡΠ½ΠΎΠΉ ΠΏΠ»ΠΎΡΠ°Π΄ΡΡ 40 ΠΌ. — Π²Π°ΡΠ° Π²ΠΎΠ·ΠΌΠΎΠΆΠ½ΠΎΡΡΡ ΡΠ΄Π΅Π»Π°ΡΡ Π΄ΠΎΠΏΠΎΠ»Π½ΠΈΡΠ΅Π»ΡΠ½ΡΡ ΠΊΠΎΠΌΠ½Π°ΡΡ (ΠΏΡΡΡΡ ΠΈ Π½Π΅Π±ΠΎΠ»ΡΡΡΡ), Π³Π°ΡΠ΄Π΅ΡΠΎΠ±Π½ΡΡ ΠΈΠ»ΠΈ ΠΊΠ»Π°Π΄ΠΎΠ²ΡΡ Π΄Π»Ρ Ρ ΡΠ°Π½Π΅Π½ΠΈΡ Π²Π΅ΡΠ΅ΠΉ.ΠΠ°ΠΊ ΠΈ ΠΏΠ»Π°Π½ΠΈΡΠΎΠ²ΠΊΠ° ΠΎΠ΄Π½ΠΎΠΊΠΎΠΌΠ½Π°ΡΠ½ΠΎΠΉ ΠΊΠ²Π°ΡΡΠΈΡΡ 40 ΠΊΠ².ΠΌ, ΠΏΠ»Π°Π½ΠΈΡΠΎΠ²ΠΊΠ° ΠΏΠ»ΠΎΡΠ°Π΄ΠΈ 45 ΠΊΠ².ΠΌ Π΄ΠΎΠ»ΠΆΠ½Π° Π±ΡΡΡ Π²ΡΠΏΠΎΠ»Π½Π΅Π½Π° ΠΏΡΠ°Π²ΠΈΠ»ΡΠ½ΠΎ.
ΠΡΠΏΠΈΡΡ Π΄ΠΈΠ·Π°ΠΉΠ½
ΠΡΠ°ΡΠΈΠ²Π°Ρ ΠΏΠ»Π°Π½ΠΈΡΠΎΠ²ΠΊΠ° ΠΎΠ΄Π½ΠΎΠΊΠΎΠΌΠ½Π°ΡΠ½ΠΎΠΉ ΠΊΠ²Π°ΡΡΠΈΡΡ 40 ΠΊΠ².ΠΌ. (ΠΏΠ»Π°Π½ΠΈΡΠΎΠ²Π°Π½ΠΈΠ΅ Π² Π΄Π°Π½Π½ΠΎΠΌ ΡΠ»ΡΡΠ°Π΅ ΠΎΡΡΡΠ΅ΡΡΠ²Π»ΡΠ΅ΡΡΡ Ρ ΡΡΠ΅ΡΠΎΠΌ ΠΏΠΎΠΆΠ΅Π»Π°Π½ΠΈΠΉ Π·Π°ΠΊΠ°Π·ΡΠΈΠΊΠ°, Π°ΠΊΡΡΠ°Π»ΡΠ½ΡΡ ΡΠ΅Π½Π΄Π΅Π½ΡΠΈΠΉ Π² ΠΌΠΈΡΠ΅ Π΄ΠΈΠ·Π°ΠΉΠ½Π° ΠΈ ΠΎΡΠΎΠ±Π΅Π½Π½ΠΎΡΡΠ΅ΠΉ ΠΊΠΎΠ½ΠΊΡΠ΅ΡΠ½ΠΎΠ³ΠΎ ΠΎΠ±ΡΠ΅ΠΊΡΠ°) — ΡΡΠΎ ΠΏΡΠ°Π²ΠΈΠ»ΡΠ½ΠΎΠ΅ Π²Π»ΠΎΠΆΠ΅Π½ΠΈΠ΅. ΠΠΊΠΎΠ½ΠΎΠΌΡ ΡΠ΅Π³ΠΎΠ΄Π½Ρ Π½Π° ΠΊΠΎΠΌΡΠΎΡΡΠ΅, Π²Ρ ΠΈΠ΄Π΅ΡΠ΅ Π½Π° ΡΠΎΠΌΠ½ΠΈΡΠ΅Π»ΡΠ½ΡΠΉ ΠΊΠΎΠΌΠΏΡΠΎΠΌΠΈΡΡ — Π΄Π°, Ρ ΠΎΡΠΎΡΠΈΠΉ ΠΏΡΠΎΠ΅ΠΊΡ ΡΡΠΎΠΈΡ Π½Π΅Π΄Π΅ΡΠ΅Π²ΠΎ, Π½ΠΎ ΠΎΠ½ Π±ΡΠ΄Π΅Ρ ΡΠ°Π΄ΠΎΠ²Π°ΡΡ Π²Π°Ρ Π΄ΠΎΠ»Π³ΠΎΠ΅ Π²ΡΠ΅ΠΌΡ.
ΠΠ½ΡΠ΅ΡΠ΅ΡΠ½ΡΠ΅ ΠΏΠ»Π°Π½ΠΈΡΠΎΠ²ΠΊΠΈ ΠΎΠ΄Π½ΠΎΠΊΠΎΠΌΠ½Π°ΡΠ½ΡΡ ΠΊΠ²Π°ΡΡΠΈΡ ΠΌΠΎΠΆΠ½ΠΎ Π½Π°ΠΉΡΠΈ Π² Π»ΡΠ±ΠΎΠΌ ΡΠΏΠ΅ΡΠΈΠ°Π»ΠΈΠ·ΠΈΡΠΎΠ²Π°Π½Π½ΠΎΠΌ ΠΊΠ°ΡΠ°Π»ΠΎΠ³Π΅ ΡΠΏΠ΅ΡΠΈΠ°Π»ΠΈΠ·ΠΈΡΠΎΠ²Π°Π½Π½ΠΎΠ³ΠΎ ΡΠ°ΠΉΡΠ° ΠΈΠ»ΠΈ Π·Π°ΠΊΠ°Π·Π°ΡΡ ΠΈΡ ΡΠΎΠ·Π΄Π°Π½ΠΈΠ΅ Π² ΠΈΠ½Π΄ΠΈΠ²ΠΈΠ΄ΡΠ°Π»ΡΠ½ΠΎΠΌ ΠΏΠΎΡΡΠ΄ΠΊΠ΅. ΠΠΎΡΠΎΠ²ΡΠΉ ΠΏΡΠΎΠ΅ΠΊΡ Π΄ΠΎΠ»ΠΆΠ΅Π½ Π²ΠΊΠ»ΡΡΠ°ΡΡ ΡΠ΅ΡΡΠ΅ΠΆΠΈ Ρ ΠΌΠ°ΠΊΠ΅ΡΠΎΠΌ, ΡΠ°ΠΉΠ» ΡΠΎ ΡΠΏΠΈΡΠΊΠΎΠΌ ΠΌΠ΅Π±Π΅Π»ΠΈ, ΠΌΠ°ΡΠ΅ΡΠΈΠ°Π»ΠΎΠ², Π³Π°Π»Π΅ΡΠ΅Ρ ΠΈΠ·ΠΎΠ±ΡΠ°ΠΆΠ΅Π½ΠΈΠΉ ΠΊΠΎΠ½Π΅ΡΠ½ΠΎΠ³ΠΎ ΡΠ΅Π·ΡΠ»ΡΡΠ°ΡΠ° (Π² ΡΠΎΡΠΌΠ°ΡΠ΅ 3D). ΠΡΡΡΠΈΠ΅ ΠΏΠ»Π°Π½ΠΈΡΠΎΠ²ΠΊΠΈ ΠΎΠ΄Π½ΠΎΠΊΠΎΠΌΠ½Π°ΡΠ½ΡΡ ΠΊΠ²Π°ΡΡΠΈΡ ΠΌΠΎΠΆΠ½ΠΎ ΠΏΡΠΎΡΡΠΎ ΠΏΠΎΠ·Π°ΠΈΠΌΡΡΠ²ΠΎΠ²Π°ΡΡ Π² ΡΠΎΠΌ Π²ΠΈΠ΄Π΅, Π² ΠΊΠ°ΠΊΠΎΠΌ ΠΎΠ½ΠΈ Π΅ΡΡΡ, ΠΈΠ»ΠΈ ΠΈΠ·ΠΌΠ΅Π½ΠΈΡΡ ΠΏΠΎ ΡΠΎΠ±ΡΡΠ²Π΅Π½Π½ΠΎΠΌΡ ΠΆΠ΅Π»Π°Π½ΠΈΡ. ΠΠ΅Π»Π°ΡΠ΅Π»ΡΠ½ΠΎ ΠΏΠΎΠ΄Π±ΠΈΡΠ°ΡΡ Π΄Π»Ρ ΠΊΠ°ΠΆΠ΄ΠΎΠΉ ΠΊΠΎΠΌΠ½Π°ΡΡ ΠΎΡΠ΄Π΅Π»ΡΠ½ΡΠΉ Π΄ΠΈΠ·Π°ΠΉΠ½ — Π±Π»Π°Π³ΠΎ, ΠΈΠ΄Π΅ΠΉ ΠΌΠ½ΠΎΠ³ΠΎ, Π΄Π° ΠΈ Π²ΠΎΠ·ΠΌΠΎΠΆΠ½ΠΎΡΡΠ΅ΠΉ Π΄Π»Ρ ΠΈΡ Π²ΠΎΠΏΠ»ΠΎΡΠ΅Π½ΠΈΡ ΡΠΎΠΆΠ΅.ΠΠ΅Π»Π°ΡΠ΅Π»ΡΠ½ΠΎ ΠΏΠΎΠΊΡΠΏΠ°ΡΡ ΠΏΡΠΎΠ΅ΠΊΡ Ρ ΠΏΡΠΎΠ²Π΅ΡΠ΅Π½Π½ΡΡ ΠΊΠΎΠΌΠΏΠ°Π½ΠΈΠΉ, ΠΊΠΎΡΠΎΡΡΠ΅ Π³ΠΎΡΠΎΠ²Ρ Π³Π°ΡΠ°Π½ΡΠΈΡΠΎΠ²Π°ΡΡ ΡΠ΅Ρ Π½ΠΈΡΠ΅ΡΠΊΡΡ Β«Π²ΠΎΠ·ΠΌΠΎΠΆΠ½ΠΎΡΡΡΒ» ΠΊΠ°ΠΆΠ΄ΠΎΠ³ΠΎ ΠΏΡΠ΅Π΄Π»ΠΎΠΆΠ΅Π½Π½ΠΎΠ³ΠΎ ΡΠ΅ΡΠ΅Π½ΠΈΡ.
Π₯ΠΎΡΠΈΡΠ΅, ΡΡΠΎΠ±Ρ ΠΏΠ»Π°Π½ΠΈΡΠΎΠ²ΠΊΠ° ΠΎΠ΄Π½ΠΎΠΊΠΎΠΌΠ½Π°ΡΠ½ΠΎΠΉ ΠΊΠ²Π°ΡΡΠΈΡΡ Π±ΡΠ»Π° 45 ΠΊΠ². ΠΠ»ΠΈ ΡΠ°Π·Π΄Π΅Π»ΡΠ½Π°Ρ ΠΏΠ»Π°Π½ΠΈΡΠΎΠ²ΠΊΠ° ΠΊΠΎΠΌΠ½Π°ΡΡ Π² ΠΎΠ΄Π½ΠΎΠΊΠΎΠΌΠ½Π°ΡΠ½ΠΎΠΉ ΠΊΠ²Π°ΡΡΠΈΡΠ΅ Π±ΡΠ»Π° ΠΈΠ΄Π΅Π°Π»ΡΠ½ΠΎΠΉ? Π‘Π²ΡΠΆΠΈΡΠ΅ΡΡ ΡΠΎ ΡΠΏΠ΅ΡΠΈΠ°Π»ΠΈΡΡΠ°ΠΌΠΈ. Π ΠΎΠ±ΡΠ·Π°ΡΠ΅Π»ΡΠ½ΠΎ ΠΎΠ·Π½Π°ΠΊΠΎΠΌΡΡΠ΅ΡΡ Ρ Π»ΡΡΡΠΈΠΌΠΈ ΠΏΠ»Π°Π½ΠΈΡΠΎΠ²ΠΊΠ°ΠΌΠΈ ΠΎΠ΄Π½ΠΎΠΊΠΎΠΌΠ½Π°ΡΠ½ΡΡ ΠΊΠ²Π°ΡΡΠΈΡ — Π² ΠΠ½ΡΠ΅ΡΠ½Π΅ΡΠ΅ ΠΈΠ»ΠΈ Π² ΡΠΏΠ΅ΡΠΈΠ°Π»ΠΈΠ·ΠΈΡΠΎΠ²Π°Π½Π½ΡΡ ΠΈΠ·Π΄Π°Π½ΠΈΡΡ .
ΠΠΎΠ½ΡΠ°Π²ΠΈΠ»ΡΡ ΡΠΎΡ ΠΈΠ»ΠΈ ΠΈΠ½ΠΎΠΉ ΠΏΡΠΎΠ΅ΠΊΡ? Π‘ΠΎΠ³Π»Π°ΡΡΠΉΡΠ΅ Π²ΠΎΠ·ΠΌΠΎΠΆΠ½ΠΎΡΡΡ Π΅Π³ΠΎ ΡΠ΅Π°Π»ΠΈΠ·Π°ΡΠΈΠΈ ΠΊΠΎΠ½ΠΊΡΠ΅ΡΠ½ΠΎ Π² Π²Π°ΡΠ΅ΠΌ ΡΠ»ΡΡΠ°Π΅ ΠΈ ΡΠ΅Π°Π»ΠΈΠ·ΡΠΉΡΠ΅.ΠΠ°Ρ ΠΊΠΎΠΌΡΠΎΡΡ Π² Π²Π°ΡΠΈΡ ΡΡΠΊΠ°Ρ .
Π Π΄ΠΈΠ·Π°ΠΉΠ½Π΅ ΠΎΠ΄Π½ΠΎΠΊΠΎΠΌΠ½Π°ΡΠ½ΠΎΠΉ ΠΊΠ²Π°ΡΡΠΈΡΡ ΡΠ΄Π°ΡΠ½ΠΎ ΠΈΡΠΏΠΎΠ»ΡΠ·ΠΎΠ²Π°Π½Π° ΡΠΎΠ²ΡΠ΅ΠΌΠ΅Π½Π½Π°Ρ ΠΊΠΎΠ½ΡΠ΅ΠΏΡΠΈΡ ΡΠ°Π·Π΄Π΅Π»Π΅Π½ΠΈΡ Π΅Π΄ΠΈΠ½ΠΎΠ³ΠΎ ΠΏΡΠΎΡΡΡΠ°Π½ΡΡΠ²Π° Π½Π° ΡΠ΅Π»Π΅Π²ΡΠ΅ Π·ΠΎΠ½Ρ … ΠΡΠΎΡ ΡΡΠ΅Π½Π΄ Π΄Π°Π΅Ρ Π²ΠΎΠ·ΠΌΠΎΠΆΠ½ΠΎΡΡΡ ΡΠ°ΡΠΈΠΎΠ½Π°Π»ΡΠ½ΠΎ, Π±Π΅Π· ΠΏΠΎΡΠ΅ΡΠΈ ΠΏΠ»ΠΎΡΠ°Π΄ΠΈ, ΡΠ°ΡΠΏΡΠ΅Π΄Π΅Π»ΠΈΡΡ ΡΡΠ½ΠΊΡΠΈΠΎΠ½Π°Π»ΡΠ½ΡΠ΅ Π·ΠΎΠ½Ρ ΠΊΠ²Π°ΡΡΠΈΡΡ, ΡΠΎΠ·Π΄Π°Π²Π°Ρ ΠΏΡΠΈ ΡΡΠΎΠΌ Π΅Π΄ΠΈΠ½ΡΠΉ Π°Π½ΡΠ°ΠΌΠ±Π»Ρ ΠΈΠ· Π²ΡΠ΅Ρ ΡΠΎΡΡΠ°Π²Π½ΡΡ ΡΠ°ΡΡΠ΅ΠΉ.
ΠΡΠΈΡ ΠΎΠΆΠ°Ρ ΠΎΠ΄Π½ΠΎΠΊΠΎΠΌΠ½Π°ΡΠ½ΠΎΠΉ ΠΊΠ²Π°ΡΡΠΈΡΡ Π²ΡΠΏΠΎΠ»Π½Π΅Π½Π° Π² ΡΠ²Π΅ΡΠ»ΡΡ ΠΊΡΠ΅ΠΌΠΎΠ²ΡΡ ΡΠΎΠ½Π°Ρ , ΠΎΡΠ½Π°ΡΠ΅Π½Π° ΡΠΎΠ²ΡΠ΅ΠΌΠ΅Π½Π½ΠΎΠΉ ΠΏΠΎΡΠΎΠ»ΠΎΡΠ½ΠΎΠΉ ΠΏΠΎΠ΄ΡΠ²Π΅ΡΠΊΠΎΠΉ Ρ ΡΠ΅ΡΡΡΡΠΌΡ ΡΠΎΠ·Π΅ΡΠΊΠ°ΠΌΠΈ.ΠΡΠΈΡ ΠΎΠΆΠ°Ρ ΠΎΠ±ΠΎΡΡΠ΄ΠΎΠ²Π°Π½Π° Π±ΠΎΠ»ΡΡΠΈΠΌ Π²ΠΌΠ΅ΡΡΠΈΡΠ΅Π»ΡΠ½ΡΠΌ ΡΠΊΠ°ΡΠΎΠΌ-ΠΊΡΠΏΠ΅, ΡΠ°Π·ΠΌΠ΅ΡΡ ΠΊΠΎΡΠΎΡΠΎΠ³ΠΎ ΠΏΠΎΠ»Π½ΠΎΡΡΡΡ Π·Π°ΠΊΡΡΠ²Π°ΡΡ ΠΏΡΠ°Π²ΡΡ ΡΡΠ΅Π½Ρ. ΠΠ²Π΅ΡΠΈ ΡΠΊΠ°ΡΠ°-ΠΊΡΠΏΠ΅ ΠΈΠ·Π³ΠΎΡΠΎΠ²Π»Π΅Π½Ρ ΠΈΠ· ΠΊΠ°ΡΠ΅ΡΡΠ²Π΅Π½Π½ΡΡ Π·Π΅ΡΠΊΠ°Π», ΠΈΡΠΊΠ»ΡΡΠ°ΡΡΠΈΡ ΠΈΡΠΊΠ°ΠΆΠ΅Π½ΠΈΠ΅ ΠΎΡΡΠ°ΠΆΠ΅Π½ΠΈΡ.
Π‘Π°Π½ΡΠ·Π΅Π» Π² ΠΊΠ²Π°ΡΡΠΈΡΠ΅ Π²ΡΠΏΠΎΠ»Π½Π΅Π½ Π² ΡΠ²Π΅ΡΠ»ΡΡ Π±Π΅Π»ΠΎ-ΠΊΡΠ΅ΠΌΠΎΠ²ΡΡ ΡΠΎΠ½Π°Ρ Ρ ΠΈΡΠΏΠΎΠ»ΡΠ·ΠΎΠ²Π°Π½ΠΈΠ΅ΠΌ Π΄Π΅ΠΊΠΎΡΠ°ΡΠΈΠ²Π½ΡΡ ΡΠ»Π΅ΠΌΠ΅Π½ΡΠΎΠ². Π’ΡΠ°Π»Π΅ΡΠ½Π°Ρ ΠΊΠΎΠΌΠ½Π°ΡΠ° ΠΎΠ±ΠΎΡΡΠ΄ΠΎΠ²Π°Π½Π° ΡΠΎΠ²ΡΠ΅ΠΌΠ΅Π½Π½ΠΎΠΉ ΡΠ°Π½ΡΠ΅Ρ Π½ΠΈΠΊΠΎΠΉ, ΠΊΠΎΡΠΎΡΠ°Ρ ΠΈΠΌΠ΅Π΅Ρ ΠΈΡΠΊΠ»ΡΡΠΈΡΠ΅Π»ΡΠ½ΡΠΉ Π±Π΅Π»ΡΠΉ ΡΠ²Π΅Ρ, ΠΊΠΎΡΠΎΡΡΠΉ Π³Π°ΡΠΌΠΎΠ½ΠΈΡΠ½ΠΎ ΡΠΎΡΠ΅ΡΠ°Π΅ΡΡΡ Ρ ΡΠ²Π΅ΡΠΎΠ²ΡΠΌ ΡΠ΅ΡΠ΅Π½ΠΈΠ΅ΠΌ ΠΏΠ»ΠΈΡΠΊΠΈ.Π§Π΅ΡΡΡΠ΅ ΡΠΎΡΠΊΠΈ ΠΏΠΎΡΠΎΠ»ΠΎΡΠ½ΠΎΠ³ΠΎ ΠΎΡΠ²Π΅ΡΠ΅Π½ΠΈΡ ΠΎΠ±Π΅ΡΠΏΠ΅ΡΠΈΠ²Π°ΡΡ Π΄ΠΎΡΡΠ°ΡΠΎΡΠ½ΡΠ΅ ΡΠ²Π΅ΡΠΎΠ²ΡΠ΅ ΡΡΠ»ΠΎΠ²ΠΈΡ Π΄Π»Ρ Π²Π°Π½Π½ΠΎΠΉ ΠΊΠΎΠΌΠ½Π°ΡΡ. ΠΡΡΠ΅ΠΊ Π΄Π»Ρ Π²Π°Π½Π½ΠΎΠΉ ΠΎΡΠ΄Π΅Π»Π΅Π½ ΠΎΡ ΠΎΠ±ΡΠ΅Π³ΠΎ ΠΏΡΠΎΡΡΡΠ°Π½ΡΡΠ²Π° Π²ΡΡΠΎΠΊΠΎΠΏΡΠΎΡΠ½ΡΠΌ ΠΏΡΠΎΠ·ΡΠ°ΡΠ½ΡΠΌ ΠΏΠ»Π°ΡΡΠΈΠΊΠΎΠΌ, ΠΊΠΎΡΠΎΡΡΠΉ ΠΏΠΎΠ»Π½ΠΎΡΡΡΡ ΠΈΡΠΊΠ»ΡΡΠ°Π΅Ρ ΠΏΠΎΠΏΠ°Π΄Π°Π½ΠΈΠ΅ Π²ΠΎΠ΄Ρ Π½Π° ΠΏΠ»ΠΎΡΠΊΠΎΡΡΡ ΠΏΠΎΠ»Π° ΠΏΡΠΈ ΠΈΡΠΏΠΎΠ»ΡΠ·ΠΎΠ²Π°Π½ΠΈΠΈ Π΄ΡΡΠ°. Π‘Π°Π½ΡΠ·Π΅Π» ΠΎΠ±ΠΎΡΡΠ΄ΠΎΠ²Π°Π½ ΡΠΌΠ΅ΡΠΈΡΠ΅Π»ΡΠΌΠΈ ΠΏΠΎΡΠ»Π΅Π΄Π½ΠΈΡ ΠΌΠΎΠ΄Π΅Π»Π΅ΠΉ, ΠΏΡΠΎΡΡ Π² ΠΈΡΠΏΠΎΠ»ΡΠ·ΠΎΠ²Π°Π½ΠΈΠΈ ΠΈ ΠΎΠ±ΡΠ»ΡΠΆΠΈΠ²Π°Π½ΠΈΠΈ.
Π Π°ΡΠΈΠΎΠ½Π°Π»ΡΠ½ΠΎ ΡΠ°ΡΠΏΡΠ΅Π΄Π΅Π»Π΅Π½Π½ΠΎΠ΅ ΠΏΡΠΎΡΡΡΠ°Π½ΡΡΠ²ΠΎ Π²Π°Π½Π½ΠΎΠΉ ΠΈ ΡΡΠ°Π»Π΅ΡΠ½ΠΎΠΉ ΠΊΠΎΠΌΠ½Π°ΡΡ ΠΏΠΎΠ·Π²ΠΎΠ»ΠΈΠ»ΠΎ ΡΡΡΠ°Π½ΠΎΠ²ΠΈΡΡ Π² Π½Π΅ΠΉ ΡΡΠΈΡΠ°Π»ΡΠ½ΡΡ ΠΌΠ°ΡΠΈΠ½Ρ, ΠΎΡΠ³Π°Π½ΠΈΡΠ½ΠΎ ΠΏΠΎΠΌΠ΅ΡΡΠΈΠ²ΡΡΡΡΡ ΠΏΠΎΠ΄ ΡΡΠ°Π»Π΅ΡΠ½ΡΠΌ ΡΡΠΎΠ»ΠΈΠΊΠΎΠΌ.
ΠΠ»Π°Π½ΠΈΡΠΎΠ²ΠΊΠ° ΠΊΠΎΠΌΠ½Π°ΡΡ. ΠΠ΅Π»Π΅Π½ΠΈΠ΅ Π½Π° Π·ΠΎΠ½Ρ
- Π‘ΠΏΠ°Π»ΡΠ½Π°Ρ Π½ΠΈΡΠ°;
- ΠΠΎΡΡΠΈΠ½ΡΠΉ ΠΎΡΡΠ΅ΠΊ;
- Π Π°Π±ΠΎΡΠ°Ρ Π·ΠΎΠ½Π°;
- ΠΡΡ ΠΎΠ½Π½ΡΠΉ Π±Π»ΠΎΠΊ.
Π¦Π²Π΅ΡΠΎΠ²ΠΎΠ΅ ΡΠ΅ΡΠ΅Π½ΠΈΠ΅ ΠΈΠ½ΡΠ΅ΡΡΠ΅ΡΠ° ΠΊΠΎΠΌΠ½Π°ΡΡ Π²ΡΠΏΠΎΠ»Π½Π΅Π½ΠΎ Π² ΡΠ΅ΠΏΠ»ΡΡ ΠΊΡΠ΅ΠΌΠΎΠ²ΡΡ ΡΠΎΠ½Π°Ρ Ρ Π΄ΠΎΠ±Π°Π²Π»Π΅Π½ΠΈΠ΅ΠΌ ΡΠ΅ΠΌΠ½ΠΎ-ΠΊΠΎΡΠΈΡΠ½Π΅Π²ΠΎΠ³ΠΎ. Π‘ΠΎΡΠ΅ΡΠ°Π½ΠΈΠ΅ Π²ΡΠ±ΡΠ°Π½Π½ΡΡ ΡΠ²Π΅ΡΠΎΠ² ΠΎΡΠ΅Π½Ρ ΠΎΡΠ³Π°Π½ΠΈΡΠ½ΠΎ ΠΈ ΡΠΎΠ·Π΄Π°Π΅Ρ Π°ΡΠΌΠΎΡΡΠ΅ΡΡ ΡΡΡΠ°, ΡΠ΅ΠΏΠ»Π° ΠΈ ΠΏΠΎΠΊΠΎΡ.
Π‘ΠΏΠ°Π»ΡΠ½ΡΠΉ Π°Π»ΡΠΊΠΎΠ² ΡΡΡΡΠΎΠ΅Π½ Π² ΠΎΡΠ½ΠΎΠ²Π½ΠΎΠΉ Π·ΠΎΠ½Π΅ ΠΊΠΎΠΌΠ½Π°ΡΡ, ΠΎΡΠ΄Π΅Π»Π΅Π½ ΠΊΠΎΡΠΎΡΠΊΠΎΠΉ ΠΏΠ΅ΡΠ΅Π³ΠΎΡΠΎΠ΄ΠΊΠΎΠΉ, ΠΏΠΎ ΡΠΈΡΠΈΠ½Π΅ ΠΊΡΠΎΠ²Π°ΡΠΈ, ΠΈΠΌΠ΅Π΅Ρ Π²ΡΡΡΠΎΠ΅Π½Π½ΡΡ ΠΊΠ°ΡΠ½ΠΈΠ·Π½ΡΡ ΡΠΈΡΡΠ΅ΠΌΡ, Π½Π° ΠΊΠΎΡΠΎΡΠΎΠΉ Π·Π°ΠΊΡΠ΅ΠΏΠ»Π΅Π½Ρ Π»Π΅Π³ΠΊΠΈΠ΅, ΠΏΠΎΠ»ΡΠΏΡΠΎΠ·ΡΠ°ΡΠ½ΡΠ΅ Π·Π°Π½Π°Π²Π΅ΡΠΊΠΈ, ΡΠ°Π·Π΄Π΅Π»ΡΡΡΠΈΠ΅ ΡΠΏΠ°Π»ΡΠ½ΡΡ Π½ΠΈΡΡ. ΠΎΡ ΠΎΡΠ½ΠΎΠ²Π½ΠΎΠΉ ΠΏΠ»ΠΎΡΠ°Π΄ΠΈ ΠΊΠΎΠΌΠ½Π°ΡΡ.Π ΡΠΏΠ°Π»ΡΠ½ΠΎΠΉ Π·ΠΎΠ½Π΅ Π΅ΡΡΡ ΠΎΡΠ΄Π΅Π»ΡΠ½ΡΠΉ ΠΏΠΎΡΠΎΠ»ΠΎΡΠ½ΡΠΉ ΡΠ²Π΅ΡΠΈΠ»ΡΠ½ΠΈΠΊ Π½Π° ΡΠ΅ΡΡΡ ΡΠΎΠ·Π΅ΡΠΎΠΊ, Π° ΡΠ°ΠΊΠΆΠ΅ Π΄ΠΎΠΏΠΎΠ»Π½ΠΈΡΠ΅Π»ΡΠ½ΡΠΉ Π½ΠΎΡΠ½ΠΈΠΊ, ΡΡΡΠ°Π½ΠΎΠ²Π»Π΅Π½Π½ΡΠΉ Π² Π½Π΅Π±ΠΎΠ»ΡΡΠΎΠΉ Π΄Π΅ΠΊΠΎΡΠ°ΡΠΈΠ²Π½ΠΎΠΉ Π½ΠΈΡΠ΅ Π² ΡΡΠ΅Π½Π΅.
ΠΡΠΎΡΡΡΠ°Π½ΡΡΠ²ΠΎ ΠΊΡΡ ΠΎΠ½Π½ΠΎΠ³ΠΎ Π±Π»ΠΎΠΊΠ° Π·Π° ΡΡΠ΅Ρ ΠΊΠΎΠΌΠΏΠ°ΠΊΡΠ½ΠΎΠΉ ΠΌΠ΅Π±Π΅Π»ΠΈ, ΡΠ΄ΠΎΠ±Π½ΠΎ ΡΠ°ΡΠΏΠΎΠ»ΠΎΠΆΠ΅Π½Π½ΠΎΠΉ Π² ΡΡΠ½ΠΊΡΠΈΠΎΠ½Π°Π»ΡΠ½ΠΎΠΌ ΠΎΡΡΠ΅ΠΊΠ΅, Π²ΠΌΠ΅ΡΠ°Π΅Ρ Π²ΡΡ Π½Π΅ΠΎΠ±Ρ ΠΎΠ΄ΠΈΠΌΡΡ ΡΠ΅Ρ Π½ΠΈΠΊΡ. Π ΡΠ΄ΠΎΠ±Π½ΡΡ ΡΠΊΠ°ΡΠ°Ρ , ΠΊΠ°ΠΊ Π½Π°ΠΏΠΎΠ»ΡΠ½ΡΡ , ΡΠ°ΠΊ ΠΈ ΠΏΠΎΠ΄Π²Π΅ΡΠ½ΡΡ , ΡΠΌΠ΅ΡΠ°Π΅ΡΡΡ Π²ΡΡ Π½Π΅ΠΎΠ±Ρ ΠΎΠ΄ΠΈΠΌΠ°Ρ ΠΊΡΡ ΠΎΠ½Π½Π°Ρ ΡΡΠ²Π°ΡΡ, ΡΡΠΎ ΠΏΠΎΠ·Π²ΠΎΠ»ΡΠ΅Ρ ΠΌΠ°ΠΊΡΠΈΠΌΠ°Π»ΡΠ½ΠΎ ΡΠ°Π·Π³ΡΡΠ·ΠΈΡΡ ΡΠ°Π±ΠΎΡΠΈΠ΅ ΠΏΠΎΠ²Π΅ΡΡ Π½ΠΎΡΡΠΈ.
ΠΠ±Π΅Π΄Π΅Π½Π½ΡΠΉ ΡΡΠΎΠ», ΡΠ°ΡΠΏΠΎΠ»ΠΎΠΆΠ΅Π½Π½ΡΠΉ ΠΌΠ΅ΠΆΠ΄Ρ ΠΏΡΠΎΡΡΡΠ°Π½ΡΡΠ²Π°ΠΌΠΈ ΠΊΡΡ ΠΎΠ½Π½ΠΎΠ³ΠΎ Π±Π»ΠΎΠΊΠ° ΠΈ Π³ΠΎΡΡΠΈΠ½ΠΎΠΉ, ΠΎΡΠ³Π°Π½ΠΈΡΠ½ΠΎ ΠΎΠ±ΡΠ΅Π΄ΠΈΠ½ΡΠ΅Ρ ΠΎΠ±Π΅ ΡΠ°ΡΡΠΈ ΠΊΠΎΠΌΠ½Π°ΡΡ, ΡΠΎΠ·Π΄Π°Π²Π°Ρ Π΅Π΄ΠΈΠ½ΡΡΠ²ΠΎ ΠΎΠ±ΡΠ΅Π³ΠΎ ΠΏΡΠΎΡΡΡΠ°Π½ΡΡΠ²Π°.
Π£Π΄ΠΎΠ±Π½ΡΠΉ ΡΡΠ½ΠΊΡΠΈΠΎΠ½Π°Π»ΡΠ½ΡΠΉ ΡΠ³Π»ΠΎΠ²ΠΎΠΉ Π΄ΠΈΠ²Π°Π½-ΡΡΠ°Π½ΡΡΠΎΡΠΌΠ΅Ρ ΠΏΠΎΠ·Π²ΠΎΠ»ΡΠ΅Ρ ΠΌΠ°ΠΊΡΠΈΠΌΠ°Π»ΡΠ½ΠΎ ΠΎΡΠ²ΠΎΠ±ΠΎΠ΄ΠΈΡΡ ΠΏΡΠΎΡΡΡΠ°Π½ΡΡΠ²ΠΎ Π³ΠΎΡΡΠΈΠ½ΠΎΠΉ, Π½Π΅ΠΎΠ±Ρ ΠΎΠ΄ΠΈΠΌΠΎΠ΅ Π΄Π»Ρ ΠΏΡΠΈΠ΅ΠΌΠ° Π³ΠΎΡΡΠ΅ΠΉ. ΠΠ΅Π±ΠΎΠ»ΡΡΠ°Ρ ΠΊΠΎΠΌΠΏΠ°ΠΊΡΠ½Π°Ρ ΠΌΠ΅Π±Π΅Π»Ρ Π΄Π»Ρ Π³ΠΎΡΡΠΈΠ½ΠΎΠΉ ΡΠ°ΡΡΡΠ°Π²Π»Π΅Π½Π° ββΡΠ°ΠΊΠΈΠΌ ΠΎΠ±ΡΠ°Π·ΠΎΠΌ, ΡΡΠΎΠ±Ρ ΡΠ΅Π½ΡΡΠ°Π»ΡΠ½Π°Ρ ΡΠ°ΡΡΡ ΠΊΠΎΠΌΠ½Π°ΡΡ Π±ΡΠ»Π° ΡΠ²ΠΎΠ±ΠΎΠ΄Π½Π° ΠΎΡ Π»ΠΈΡΠ½Π΅Π³ΠΎ Π·Π°Π³ΡΠΎΠΌΠΎΠΆΠ΄Π΅Π½ΠΈΡ. Π£Π³Π»ΠΎΠ²Π°Ρ ΠΊΠΎΠ½ΡΡΡΡΠΊΡΠΈΡ Π΄ΠΈΠ²Π°Π½Π° ΠΏΠΎΠ·Π²ΠΎΠ»ΠΈΠ»Π° ΡΠΎΠ·Π΄Π°ΡΡ Π² ΠΊΠΎΠΌΠ½Π°ΡΠ΅ Π΄ΠΎΠΏΠΎΠ»Π½ΠΈΡΠ΅Π»ΡΠ½ΠΎΠ΅ ΡΠ°Π±ΠΎΡΠ΅Π΅ ΠΎΡΠ΄Π΅Π»Π΅Π½ΠΈΠ΅, ΡΠ°ΡΠΏΠΎΠ»ΠΎΠΆΠ΅Π½Π½ΠΎΠ΅ Π±Π»ΠΈΠΆΠ΅ ΠΊ ΠΎΠΊΠ½Ρ.
ΠΡΠ²Π΅ΡΠ΅Π½ΠΈΠ΅ ΠΊΡΡ ΠΎΠ½Π½ΠΎΠ³ΠΎ Π±Π»ΠΎΠΊΠ° ΠΈ Π·ΠΎΠ½Ρ Π³ΠΎΡΡΠΈΠ½ΠΎΠΉ ΡΠ΅ΡΠ΅Π½ΠΎ Π·Π° ΡΡΠ΅Ρ ΡΠΎΠ²ΡΠ΅ΠΌΠ΅Π½Π½ΡΡ ΡΠ²Π΅ΡΠΎΠ΄ΠΈΠΎΠ΄Π½ΡΡ Π»ΡΡΡΡ ΡΠ°ΠΊΠΎΠ³ΠΎ ΠΆΠ΅ Π΄ΠΈΠ·Π°ΠΉΠ½Π°, Π° ΡΠ°ΠΊΠΆΠ΅ Π΄ΠΎΠΏΠΎΠ»Π½ΠΈΡΠ΅Π»ΡΠ½ΠΎΠ³ΠΎ ΠΏΠΎΠ΄Π²Π΅ΡΠ½ΠΎΠ³ΠΎ ΠΎΡΠ²Π΅ΡΠ΅Π½ΠΈΡ Π² ΡΠ°Π±ΠΎΡΠ΅ΠΉ Π·ΠΎΠ½Π΅.
ΠΠ½ΡΠ΅ΡΡΠ΅Ρ ΡΡΠΎΠΉ ΠΎΠ΄Π½ΠΎΠΊΠΎΠΌΠ½Π°ΡΠ½ΠΎΠΉ ΠΊΠ²Π°ΡΡΠΈΡΡ ΠΏΠΎΠ΄ΠΎΠΉΠ΄Π΅Ρ ΠΊΠ°ΠΊ ΠΌΠΎΠ»ΠΎΠ΄ΠΎΠΉ ΡΠ΅ΠΌΡΠ΅, ΡΠ°ΠΊ ΠΈ ΠΏΡΠΎΠ³ΡΠ΅ΡΡΠΈΠ²Π½ΡΠΌ ΠΏΡΠ΅Π΄ΡΡΠ°Π²ΠΈΡΠ΅Π»ΡΠΌ ΡΠΎΠ²ΡΠ΅ΠΌΠ΅Π½Π½ΠΎΠΉ ΠΌΠΎΠ»ΠΎΠ΄Π΅ΠΆΠΈ (ΠΊΠ°ΠΊ ΠΌΠ°Π»ΡΡΠΈΠΊΠ°ΠΌ, ΡΠ°ΠΊ ΠΈ Π΄Π΅Π²ΠΎΡΠΊΠ°ΠΌ), ΠΆΠΈΠ²ΡΡΠΈΠΌ ΡΠ°ΠΌΠΎΡΡΠΎΡΡΠ΅Π»ΡΠ½ΠΎ.
ΠΠΎ Ρ ΠΎΠ·ΡΠ΅Π²Π° Ρ ΠΎΡΠ΅Π»ΠΈ ΠΈΠΌΠ΅ΡΡ ΠΎΡΠ΄Π΅Π»ΡΠ½ΡΡ ΡΠΏΠ°Π»ΡΠ½Ρ, ΠΊΠΎΡΠΎΡΡΡ Π±Ρ Π½Π΅ Π±ΡΠ»ΠΎ ΡΠ»ΡΡΠ½ΠΎ ΠΎΡ ΡΡΠΌΠ° ΠΈΠ· Π³ΠΎΡΡΠΈΠ½ΠΎΠΉ. ΠΠΎΡΡΠΎΠΌΡ ΡΠ°ΡΡΡ, Π² ΠΊΠΎΡΠΎΡΠΎΠΉ ΡΠ°Π·ΠΌΠ΅ΡΠ°Π»Π°ΡΡ ΠΊΡΠΎΠ²Π°ΡΡ, Π±ΡΠ»Π° ΠΎΡΠ΄Π΅Π»Π΅Π½Π° ΠΎΡ ΠΎΡΡΠ°Π»ΡΠ½ΠΎΠΉ ΠΊΠΎΠΌΠ½Π°ΡΡ ΡΡΠ΅ΠΊΠ»ΡΠ½Π½ΠΎΠΉ ΠΏΠ°Π½Π΅Π»ΡΡ. ΠΠΎΡΠΊΠΎΠ»ΡΠΊΡ Ρ ΠΎΠ·ΡΠ΅Π²Π° — ΠΌΠΎΠ»ΠΎΠ΄ΡΠ΅ Π»ΡΠ΄ΠΈ, Π΄ΠΈΠ·Π°ΠΉΠ½Π΅Ρ ΠΏΠΎΡΡΠ°ΡΠ°Π»ΡΡ Π±Π΅Π· Π½Π°Π΄ΠΎΠ±Π½ΠΎΡΡΠΈ Π½Π΅ ΠΎΠ±ΡΠ΅ΠΌΠ΅Π½ΡΡΡ Π±ΡΠ΄ΠΆΠ΅Ρ.
Π‘ΡΠΈΠ»Ρ
ΠΠΈΠ·Π°ΠΉΠ½ ΡΠΎΠ²ΡΠ΅ΠΌΠ΅Π½Π½ΠΎΠΉ ΠΌΠ°Π»ΠΎΠ³Π°Π±Π°ΡΠΈΡΠ½ΠΎΠΉ ΠΊΠ²Π°ΡΡΠΈΡΡ Π²ΡΠΏΠΎΠ»Π½Π΅Π½ Π² Π»Π°ΠΊΠΎΠ½ΠΈΡΠ½ΠΎΠΌ ΡΡΠΈΠ»Π΅ ΠΈ ΡΠΎΡΠ΅ΡΠ°Π΅Ρ Π² ΡΠ΅Π±Π΅ ΡΠ»Π΅ΠΌΠ΅Π½ΡΡ ΠΌΠΈΠ½ΠΈΠΌΠ°Π»ΠΈΠ·ΠΌΠ° ΠΈ Ρ Π°ΠΉ-ΡΠ΅ΠΊ. ΠΠ°Π»Π°Π½ΡΠΈΡΡΡ Π½Π° ΡΠΎΠ½ΠΊΠΎΠΉ Π³ΡΠ°Π½ΠΈ ΠΌΠ΅ΠΆΠ΄Ρ ΡΡΠΈΠΌΠΈ Π΄Π²ΡΠΌΡ ΠΏΠΎΠΏΡΠ»ΡΡΠ½ΡΠΌΠΈ ΡΡΠΈΠ»ΡΠΌΠΈ, Π½Π°ΠΌ ΡΠ΄Π°Π»ΠΎΡΡ ΠΏΠΎΠ»ΡΡΠΈΡΡ ΡΠ²Π΅ΠΆΠΈΠΉ, ΠΏΡΠΎΠ·ΡΠ°ΡΠ½ΡΠΉ ΠΈΠ½ΡΠ΅ΡΡΠ΅Ρ, Π½Π΅ ΠΏΠ΅ΡΠ΅Π³ΡΡΠΆΠ΅Π½Π½ΡΠΉ Π΄Π΅ΠΊΠΎΡΠ°ΡΠΈΠ²Π½ΡΠΌΠΈ Π΄Π΅ΡΠ°Π»ΡΠΌΠΈ, Π½ΠΎ Π² ΡΠΎ ΠΆΠ΅ Π²ΡΠ΅ΠΌΡ Π»ΠΈΡΠ΅Π½Π½ΡΠΉ ΠΏΡΠΈΡΡΡΠ΅ΠΉ ΡΠΎΠ²ΡΠ΅ΠΌΠ΅Π½Π½ΡΠΌ ΡΡΠΈΠ»ΡΠΌ Ρ ΠΎΠ»ΠΎΠ΄Π½ΠΎΡΡΠΈ. Π ΠΊΠ°ΡΠ΅ΡΡΠ²Π΅ ΠΎΡΠ½ΠΎΠ²Π½ΠΎΠΉ ΠΏΠ°Π»ΠΈΡΡΡ Π΄ΠΈΠ·Π°ΠΉΠ½Π΅Ρ ΠΎΡΡΠ°Π½ΠΎΠ²ΠΈΠ»ΡΡ Π½Π° ΠΎΡΡΠ΅Π½ΠΊΠ°Ρ Π³ΡΠΎΠ·ΠΎΠ²ΠΎΠ³ΠΎ Π½Π΅Π±Π°, Π΄ΠΎΠ±Π°Π²ΠΈΠ² ΠΊ Π½ΠΈΠΌ ΡΠΈΠ½ΠΈΠ΅ ΠΈ ΠΆΠ΅Π»ΡΡΠ΅ ΡΠΎΠ½Π° Π² ΠΊΠ°ΡΠ΅ΡΡΠ²Π΅ ΡΠ²Π΅ΡΠΎΠ²ΡΡ Π°ΠΊΡΠ΅Π½ΡΠΎΠ².
ΠΡΠ΄Π΅Π»ΠΎΡΠ½ΡΠ΅ ΠΌΠ°ΡΠ΅ΡΠΈΠ°Π»Ρ
ΠΠΎΠΊΡΠ°ΡΠΊΠ° ΡΡΠ΅Π½ — Π½Π°ΠΈΠ±ΠΎΠ»Π΅Π΅ ΡΠΊΠΎΠ½ΠΎΠΌΠΈΡΠ½ΡΠΉ Π²Π°ΡΠΈΠ°Π½Ρ ΠΎΡΠ΄Π΅Π»ΠΊΠΈ, ΠΊΠΎΡΠΎΡΡΠΉ Ρ ΠΎΡΠΎΡΠΎ Π²ΠΏΠΈΡΡΠ²Π°Π΅ΡΡΡ Π² ΠΎΠ±ΡΡΡ Π΄ΠΈΠ·Π°ΠΉΠ½Π΅ΡΡΠΊΡΡ ΠΊΠΎΠ½ΡΠ΅ΠΏΡΠΈΡ ΠΊΠ²Π°ΡΡΠΈΡΡ ΠΏΠ»ΠΎΡΠ°Π΄ΡΡ 41 ΠΊΠ². Π ΠΆΠΈΠ»ΠΎΠΉ ΡΠ°ΡΡΠΈ ΠΊΠ²Π°ΡΡΠΈΡΡ ΠΈΡΠΏΠΎΠ»ΡΠ·ΠΎΠ²Π°Π½ ΠΏΠ°ΡΠΊΠ΅ΡΠ½Π°Ρ Π΄ΠΎΡΠΊΠ°, ΡΠ΅ΠΏΠ»Π°Ρ ΡΠ°ΠΊΡΡΡΠ° Π΄Π΅ΡΠ΅Π²Π° ΠΈ Π±Π΅ΠΆΠ΅Π²ΡΠ΅ ΠΎΡΡΠ΅Π½ΠΊΠΈ, ΡΠΌΡΠ³ΡΠ°ΡΡΠΈΠ΅ Ρ ΠΎΠ»ΠΎΠ΄ ΡΠ΅ΡΠΎ-Π³ΠΎΠ»ΡΠ±ΠΎΠΉ Π³Π°ΠΌΠΌΡ.
Π£ΡΠ°ΡΡΠΎΠΊ Ρ ΡΠ°Π±ΠΎΡΠ΅ΠΉ ΠΏΠΎΠ²Π΅ΡΡ Π½ΠΎΡΡΠΈ ΠΊΡΡ Π½ΠΈ Π½Π΅ ΠΎΠ±Π»ΠΈΡΠΎΠ²Π°Π½ ΠΏΠ»ΠΈΡΠΊΠΎΠΉ, Π° ΠΎΡΡΠ°Π²Π»Π΅Π½ Π±Π΅ΡΠΎΠ½ΠΎΠΌ — ΡΠ°ΠΊ Π² ΠΈΠ½ΡΠ΅ΡΡΠ΅ΡΠ΅ ΠΏΡΠΈΡΡΡΡΡΠ²ΡΠ΅Ρ ΠΌΠΎΠ΄Π½Π°Ρ ΡΠ΅Π³ΠΎΠ΄Π½Ρ Π½ΠΎΡΠ° Π»ΠΎΡΡΠ°.Π‘Π²Π΅ΡΡ Ρ Π±Π΅ΡΠΎΠ½ ΠΏΠΎΠΊΡΡΡ ΡΡΠ΅ΠΊΠ»ΡΠ½Π½ΠΎΠΉ ΠΏΠ°Π½Π΅Π»ΡΡ, ΡΠ°ΠΊ ΡΡΠΎ ΠΏΡΠΈ ΡΡ ΠΎΠ΄Π΅ Π·Π° ΡΡΠΈΠΌ ΡΠ²ΠΎΠ΅ΠΎΠ±ΡΠ°Π·Π½ΡΠΌ Β«ΡΠ°ΡΡΡΠΊΠΎΠΌΒ» ΠΏΡΠΎΠ±Π»Π΅ΠΌ Π½Π΅ Π²ΠΎΠ·Π½ΠΈΠΊΠ½Π΅Ρ. Π¦Π²Π΅Ρ Π±Π΅ΡΠΎΠ½Π° ΠΎΡΠ»ΠΈΡΠ½ΠΎ Π²ΠΏΠΈΡΡΠ²Π°Π΅ΡΡΡ Π² ΡΠ²Π΅ΡΠΎΠ²ΡΡ Π³Π°ΠΌΠΌΡ Π΄ΠΈΠ·Π°ΠΉΠ½Π° ΡΠΎΠ²ΡΠ΅ΠΌΠ΅Π½Π½ΠΎΠΉ Π½Π΅Π±ΠΎΠ»ΡΡΠΎΠΉ ΠΊΠ²Π°ΡΡΠΈΡΡ.
ΠΠ΅Π±Π΅Π»Ρ
ΠΡΠΎΡΡΠΎΡΠ°, ΠΊΠΎΠΌΡΠΎΡΡ, ΡΡΠ½ΠΊΡΠΈΠΎΠ½Π°Π»ΡΠ½ΠΎΡΡΡ — Π²ΠΎΡ ΡΡΠΈ ΠΎΡΠ»ΠΈΡΠΈΡΠ΅Π»ΡΠ½ΡΡ ΡΠ΅ΡΡΡ ΠΌΠ΅Π±Π΅Π»ΠΈ, Π²ΡΠ±ΡΠ°Π½Π½ΠΎΠΉ Π΄ΠΈΠ·Π°ΠΉΠ½Π΅ΡΠΎΠΌ Π΄Π»Ρ ΡΡΠΎΠ³ΠΎ ΠΏΡΠΎΠ΅ΠΊΡΠ°. Π Π΅Π³ΠΎ ΠΎΡΠ½ΠΎΠ²Π΅ Π±ΡΠ΄ΠΆΠ΅ΡΠ½ΡΠ΅ ΠΌΠΎΠ΄Π΅Π»ΠΈ ΠΎΡ ΠΏΠΎΠΏΡΠ»ΡΡΠ½ΠΎΠΉ ΡΠ²Π΅Π΄ΡΠΊΠΎΠΉ ΡΠ΅ΡΠΈ ΠΌΠ°Π³Π°Π·ΠΈΠ½ΠΎΠ².ΠΡΠΈΡ ΠΎΠΆΠ΅ΠΉ Π² ΠΊΠ²Π°ΡΡΠΈΡΠ΅ Π½Π΅Ρ, ΠΏΠΎΡΡΠΎΠΌΡ ΠΏΡΡΠΌΠΎ Ρ Π²Ρ ΠΎΠ΄Π° ΡΡΡΠ°Π½ΠΎΠ²ΠΈΠ»ΠΈ Π½Π΅Π±ΠΎΠ»ΡΡΠΎΠΉ ΡΠΊΠ°Ρ Π΄Π»Ρ ΠΎΠ΄Π΅ΠΆΠ΄Ρ, Π² ΠΊΠΎΡΠΎΡΡΠΉ ΡΠ±ΠΈΡΠ°ΡΡ Π²Π΅ΡΡ Π½ΡΡ ΠΎΠ΄Π΅ΠΆΠ΄Ρ, Π° ΡΠ°ΠΊΠΆΠ΅ ΡΠΊΠ°Ρ Π΄Π»Ρ Ρ ΡΠ°Π½Π΅Π½ΠΈΡ ΠΎΠ±ΡΠ²ΠΈ.
ΠΡΠ½ΠΎΠ²Π½Π°Ρ ΡΠΈΡΡΠ΅ΠΌΠ° Ρ ΡΠ°Π½Π΅Π½ΠΈΡ Π½Π°Ρ ΠΎΠ΄ΠΈΡΡΡ Π² ΡΠΏΠ°Π»ΡΠ½Π΅ — ΠΎΠ½Π° ββΠ·Π°Π½ΠΈΠΌΠ°Π΅Ρ ΠΏΡΠΎΡΡΡΠ°Π½ΡΡΠ²ΠΎ ΠΎΡ ΠΏΠΎΠ»Π° Π΄ΠΎ ΠΏΠΎΡΠΎΠ»ΠΊΠ° ΠΈ Ρ ΡΠ°Π½ΠΈΡ Π½Π΅ ΡΠΎΠ»ΡΠΊΠΎ Π±Π΅Π»ΡΠ΅ ΠΈ ΠΎΠ΄Π΅ΠΆΠ΄Ρ, Π½ΠΎ ΡΠ°ΠΊΠΆΠ΅ ΡΠΏΠΎΡΡΠΈΠ²Π½ΡΠΉ ΠΈΠ½Π²Π΅Π½ΡΠ°ΡΡ ΠΈ ΡΠ΅ Π²Π΅ΡΠΈ, ΠΊΠΎΡΠΎΡΡΠ΅ Π²ΡΠ΅ΠΌΡ ΠΎΡ Π²ΡΠ΅ΠΌΠ΅Π½ΠΈ ΠΈΡΠΏΠΎΠ»ΡΠ·ΡΡΡΡΡ. Π Π·ΠΎΠ½Π΅ Π³ΠΎΡΡΠΈΠ½ΠΎΠΉ ΠΏΠΎΡΠ²ΠΈΠ»ΠΈΡΡ ΠΏΠΎΠ»ΠΊΠΈ, Π³Π΄Π΅ ΠΌΠΎΠΆΠ½ΠΎ Ρ ΡΠ°Π½ΠΈΡΡ ΠΊΠ½ΠΈΠ³ΠΈ ΠΈ ΠΏΡΠ΅Π΄ΠΌΠ΅ΡΡ Π΄Π΅ΠΊΠΎΡΠ°, Π° ΡΠ°ΠΊΠΆΠ΅ ΡΡΠ±ΡΡ Π΄Π»Ρ Π±Π΅Π»ΡΡ.Π‘ΠΈΡΡΠ΅ΠΌΡ ΡΡΠ΅Π»Π»Π°ΠΆΠ΅ΠΉ Π΄ΠΈΠ·Π°ΠΉΠ½Π΅Ρ ΡΠ°Π·ΠΌΠ΅ΡΡΠΈΠ» Π½Π° Π±Π°Π»ΠΊΠΎΠ½Π΅ ΠΊΠ°ΠΊ Π΄ΠΎΠΏΠΎΠ»Π½ΠΈΡΠ΅Π»ΡΠ½ΠΎΠ΅ ΠΌΠ΅ΡΡΠΎ Π΄Π»Ρ Ρ ΡΠ°Π½Π΅Π½ΠΈΡ Π²Π΅ΡΠ΅ΠΉ.
ΠΡΠ²Π΅ΡΠ΅Π½ΠΈΠ΅
Π Π°Π²Π½ΠΎΠΌΠ΅ΡΠ½ΡΠΉ ΡΠ²Π΅Ρ Π·Π°Π»ΠΈΠ²Π°Π΅Ρ ΠΊΠ²Π°ΡΡΠΈΡΡ ΠΎΡ ΠΏΡΠΎΠΆΠ΅ΠΊΡΠΎΡΠΎΠ², Π²ΡΡΡΠΎΠ΅Π½Π½ΡΡ Π² ΠΏΠΎΡΠΎΠ»ΠΎΠΊ. ΠΠ±Π΅Π΄Π΅Π½Π½Π°Ρ Π·ΠΎΠ½Π° Π² Π΄ΠΈΠ·Π°ΠΉΠ½Π΅ ΠΊΠ²Π°ΡΡΠΈΡΡ 41 ΠΊΠ². Π²ΡΠ΄Π΅Π»ΡΠ΅ΡΡΡ ΡΡΠ΅ΠΌΡ Π΄Π΅ΠΊΠΎΡΠ°ΡΠΈΠ²Π½ΡΠΌΠΈ ΡΡΠ΅ΠΊΠ»ΡΠ½Π½ΡΠΌΠΈ ΠΏΠ»Π°ΡΠΎΠ½Π°ΠΌΠΈ, ΡΠ²ΠΈΡΠ°ΡΡΠΈΠΌΠΈ Ρ ΠΏΠΎΡΠΎΠ»ΠΊΠ° ΡΠ°Π·Π½ΠΎΠ³ΠΎ ΡΠ²Π΅ΡΠ°, Π³Π°ΡΠΌΠΎΠ½ΠΈΡΡΡΡΠΈΠΌΠΈ Ρ ΠΎΠ±ΡΠ΅ΠΉ ΠΏΠ°Π»ΠΈΡΡΠΎΠΉ ΠΈΠ½ΡΠ΅ΡΡΠ΅ΡΠ°. ΠΠ½ΠΈ ΡΠΎΠ·Π΄Π°Π½Ρ ΠΏΠΎ Π΄ΠΈΠ·Π°ΠΉΠ½Π΅ΡΡΠΊΠΈΠΌ ΡΡΠΊΠΈΠ·Π°ΠΌ ΠΈ ΡΠ²Π»ΡΡΡΡΡ ΠΎΠ΄Π½ΠΈΠΌ ΠΈΠ· ΠΎΡΠ½ΠΎΠ²Π½ΡΡ ΡΠ»Π΅ΠΌΠ΅Π½ΡΠΎΠ² Π΄Π΅ΠΊΠΎΡΠ°… ΠΡΠΎΠΌΠ΅ ΡΠΎΠ³ΠΎ, ΡΠΎΡΡΠ΅Ρ, Π±ΡΠ° ΠΈ ΠΏΡΠΈΠΊΡΠΎΠ²Π°ΡΠ½ΡΠ΅ Π»Π°ΠΌΠΏΡ Π² ΡΠΏΠ°Π»ΡΠ½Π΅ ΠΎΠ±Π΅ΡΠΏΠ΅ΡΠΈΠ²Π°ΡΡ ΡΠ°ΡΠΈΠΎΠ½Π°Π»ΡΠ½ΠΎΠ΅ ΠΎΡΠ²Π΅ΡΠ΅Π½ΠΈΠ΅ ΡΠ°Π·Π»ΠΈΡΠ½ΡΡ ΡΡΠ½ΠΊΡΠΈΠΎΠ½Π°Π»ΡΠ½ΡΡ Π·ΠΎΠ½.
ΠΠ΅ΠΊΠΎΡ
ΠΠΎΠΌΠΈΠΌΠΎ Π΄ΠΈΠ·Π°ΠΉΠ½Π΅ΡΡΠΊΠΈΡ ΠΏΠΎΠ΄Π²Π΅ΡΠΎΠΊ, ΡΠ΅ΠΊΡΡΠΈΠ»Ρ ΡΠ°ΠΊΠΆΠ΅ ΠΈΠ³ΡΠ°Π΅Ρ ΡΠΎΠ»Ρ Π΄Π΅ΠΊΠΎΡΠ° Π² Π΄ΠΈΠ·Π°ΠΉΠ½Π΅ Π½Π΅Π±ΠΎΠ»ΡΡΠΎΠΉ ΡΠΎΠ²ΡΠ΅ΠΌΠ΅Π½Π½ΠΎΠΉ ΠΊΠ²Π°ΡΡΠΈΡΡ. ΠΡΠΎ ΡΠ·ΠΎΡΡΠ°ΡΡΠ΅ ΠΏΠΎΠ΄ΡΡΠΊΠΈ, ΠΏΡΠΎΠ·ΡΠ°ΡΠ½ΡΠ΅ ΠΎΠΊΠΎΠ½Π½ΡΠ΅ ΡΡΠΎΡΡ, ΠΏΠΎΠΊΡΡΠ²Π°Π»ΠΎ Π½Π° ΠΊΡΠΎΠ²Π°ΡΡ. ΠΡΠ΅ ΠΊΠΎΠΌΠ½Π°ΡΡ, Π²ΠΊΠ»ΡΡΠ°Ρ Π²Π°Π½Π½ΡΡ ΠΊΠΎΠΌΠ½Π°ΡΡ, ΡΠΊΡΠ°ΡΠ΅Π½Ρ Ρ ΡΠ΄ΠΎΠΆΠ΅ΡΡΠ²Π΅Π½Π½ΡΠΌΠΈ ΠΏΠΎΡΡΠ΅ΡΠ°ΠΌΠΈ Π² Π°ΠΊΡΠ΅Π½ΡΠ½ΡΡ ΡΠΎΠ½Π°Ρ . ΠΠ΅Π±ΠΎΠ»ΡΡΠΎΠΉ Π΄ΠΎΠΌΠ°ΡΠ½ΠΈΠΉ ΠΎΡΠΈΡ ΠΎΠΆΠΈΠ²Π»ΡΠ΅Ρ ΠΌΠ°ΡΠ»ΡΠ½Π°Ρ ΠΆΠΈΠ²ΠΎΠΏΠΈΡΡ.
ΠΡΠΈΡΡΠ½ΠΎΠ³ΠΎ ΠΏΡΠΎΡΠΌΠΎΡΡΠ°!
ΠΠΈΠ·Π°ΠΉΠ½ Π½Π΅Π±ΠΎΠ»ΡΡΠΎΠΉ ΠΎΠ΄Π½ΠΎΠΊΠΎΠΌΠ½Π°ΡΠ½ΠΎΠΉ ΠΊΠ²Π°ΡΡΠΈΡΡ
ΠΡΡ ΠΊΠ²Π°ΡΡΠΈΡΡ ΡΠΏΡΠΎΠ΅ΠΊΡΠΈΡΠΎΠ²Π°Π» ΠΠ΅Π½ΠΈΡ ΠΡΠ°ΡΠΈΠΊΠΎΠ², Ρ ΡΠ°Π±ΠΎΡΠ°ΠΌΠΈ ΠΊΠΎΡΠΎΡΠΎΠ³ΠΎ ΠΌΡ ΠΎΠ±ΡΠ·Π°ΡΠ΅Π»ΡΠ½ΠΎ ΠΏΠΎΠ·Π½Π°ΠΊΠΎΠΌΠΈΠΌΡΡ. ΠΠ΅Π½ΠΈΡΡ ΡΠ΄Π°Π»ΠΎΡΡ ΡΠΏΡΠΎΠ΅ΠΊΡΠΈΡΠΎΠ²Π°ΡΡ ΡΡΡΠ½ΡΠΉ ΠΈΠ½ΡΠ΅ΡΡΠ΅Ρ Π² Π½Π΅Π±ΠΎΠ»ΡΡΠΎΠΉ ΠΊΠ²Π°ΡΡΠΈΡΠ΅ ΠΏΠ»ΠΎΡΠ°Π΄ΡΡ 41 ΠΊΠ². ΠΠ°ΠΉΠ΄Ρ Π² ΠΊΠ²Π°ΡΡΠΈΡΡ, Π²Ρ ΠΏΠΎΠΏΠ°Π΄Π°Π΅ΡΠ΅ Π² ΠΏΡΠΈΡ ΠΎΠΆΡΡ Ρ ΠΊΠΎΡΠΈΠ΄ΠΎΡΠΎΠΌ, ΡΠΏΡΠ°Π²Π° ΠΎΡ ΠΊΠΎΡΠΎΡΠΎΠ³ΠΎ Π½Π°Ρ ΠΎΠ΄ΠΈΡΡΡ ΡΠ°Π½ΡΠ·Π΅Π». ΠΡΡ Π½Ρ Π½Π°Ρ ΠΎΠ΄ΠΈΡΡΡ ΠΏΡΡΠΌΠΎ Π½Π° ΠΏΠΎΠ»Π΅.
Π ΡΡΠΎΠΉ ΠΎΠ΄Π½ΠΎΠΊΠΎΠΌΠ½Π°ΡΠ½ΠΎΠΉ ΠΊΠ²Π°ΡΡΠΈΡΠ΅ ΡΠΎΠ»Ρ Π³ΠΎΡΡΠΈΠ½ΠΎΠΉ ΠΈ ΡΠΏΠ°Π»ΡΠ½ΠΈ ΠΈΠ³ΡΠ°Π΅Ρ ΠΎΠ΄Π½Π° ΠΊΠΎΠΌΠ½Π°ΡΠ°, Π½ΠΎ ΡΡΠΎ Π½ΠΈΡΠΊΠΎΠ»ΡΠΊΠΎ Π½Π΅ Π½Π°ΡΡΡΠ°Π΅Ρ ΠΏΡΠΈΠ²Π»Π΅ΠΊΠ°ΡΠ΅Π»ΡΠ½ΠΎΡΡΠΈ ΠΈΠ½ΡΠ΅ΡΡΠ΅ΡΠ°. Π’Π°ΠΊΠΆΠ΅ Π² ΡΡΠΎΠΉ ΠΊΠΎΠΌΠ½Π°ΡΠ΅ Π΅ΡΡΡ ΡΠ°Π±ΠΎΡΠ΅Π΅ ΠΌΠ΅ΡΡΠΎ … ΠΠ΅Π½ΠΈΡ ΠΈΡΠΏΠΎΠ»ΡΠ·ΠΎΠ²Π°Π» ΠΏΠΎΡΡΠΈ Π²ΡΡ ΠΌΠ΅Π±Π΅Π»Ρ ΠΎΡ IKEA.
ΠΠ΅ΡΠΌΠΎΡΡΡ Π½Π° ΡΠΊΡΠΎΠΌΠ½ΠΎΠ΅ ΠΏΡΠΎΡΡΡΠ°Π½ΡΡΠ²ΠΎ, ΠΈΠ½ΡΠ΅ΡΡΠ΅Ρ Π½Π΅Π±ΠΎΠ»ΡΡΠΎΠΉ ΠΎΠ΄Π½ΠΎΠΊΠΎΠΌΠ½Π°ΡΠ½ΠΎΠΉ ΠΊΠ²Π°ΡΡΠΈΡΡ ΠΊΠ°ΠΆΠ΅ΡΡΡ ΡΠ°ΠΊΠΈΠΌ ΡΡΡΠ½ΡΠΌ.
ΠΡΠ°ΡΠΈΡΠΎΠ²ΠΎΠ΅ ΠΏΠΎΠΊΡΡΡΠΈΠ΅ ΠΌΠΎΠΆΠ½ΠΎ ΠΏΠΎΠ»ΡΡΠΈΡΡ ΡΠΏΠ΅ΡΠΈΠ°Π»ΡΠ½ΡΠΌΠΈ ΠΎΠ±ΠΎΡΠΌΠΈ ΠΈΠ»ΠΈ ΠΊΡΠ°ΡΠΊΠΎΠΉ. Π‘ΠΎΠ³Π»Π°ΡΠΈΡΠ΅ΡΡ, ΠΌΠ΅Π»ΠΎΠ²Π°Ρ Π΄ΠΎΡΠΊΠ° Π² ΡΠΎΠ²ΡΠ΅ΠΌΠ΅Π½Π½ΡΡ ΠΈΠ½ΡΠ΅ΡΡΠ΅ΡΠ°Ρ Π²ΡΠ΅Π³Π΄Π° ΡΠΌΠΎΡΡΠΈΡΡΡ ΡΡΡΠ΅ΠΊΡΠ½ΠΎ.
ΠΠ»Π°ΡΡΠΈΡΠ΅ΡΠΊΠ°Ρ Π΄Π΅ΡΠ΅Π²ΡΠ½Π½Π°Ρ ΠΊΡΡ Π½Ρ Π² ΡΠΊΠ°Π½Π΄ΠΈΠ½Π°Π²ΡΠΊΠΎΠΌ ΡΡΠΈΠ»Π΅
Π€Π°ΡΡΡΠΊ Π΄ΠΎΠ±Π°Π²Π»ΡΠ΅Ρ Π΄ΠΈΠ½Π°ΠΌΠΈΠΊΠΈ ΡΡΠΊΠΎΠΉ ΠΊΡΡ Π½Π΅.
Π‘ΠΊΠ»Π°Π΄Π½ΡΠ΅ Π΄Π²Π΅ΡΠΈ ΠΏΠΎΠΌΠΎΠ³Π°ΡΡ ΡΡΠΊΠΎΠ½ΠΎΠΌΠΈΡΡ ΠΌΠ΅ΡΡΠΎ Π½Π° ΠΏΠΎΠ»Ρ.
ΠΠ»Ρ ΡΠ°Π·Π΄Π΅Π»Π΅Π½ΠΈΡ Π·ΠΎΠ½Ρ Π³ΠΎΡΠΎΠ²ΠΊΠΈ ΠΈ ΠΎΠ±Π΅Π΄Π΅Π½Π½ΠΎΠΉ Π·ΠΎΠ½Ρ Π΄ΠΈΠ·Π°ΠΉΠ½Π΅Ρ ΠΈΡΠΏΠΎΠ»ΡΠ·ΠΎΠ²Π°Π» ΡΠ°Π·Π½ΡΠ΅ Π²Π΅ΡΠΈ. Π½Π°ΠΏΠΎΠ»ΡΠ½ΠΎΠ΅ ΠΏΠΎΠΊΡΡΡΠΈΠ΅: Π΄Π»Ρ ΠΊΡΡ Π½ΠΈ — ΠΏΠ»ΠΈΡΠΊΠ°, Π° Π΄Π»Ρ ΡΡΠΎΠ»ΠΎΠ²ΠΎΠΉ — ΠΏΠ°ΡΠΊΠ΅Ρ. ΠΡΡΡΠ΄Π° ΡΠ°ΠΊΠΆΠ΅ Π΅ΡΡΡ Π²ΡΡ ΠΎΠ΄ Π½Π° Π»ΠΎΠ΄ΠΆΠΈΡ.
ΠΠ΅ΡΠ΅Π²ΡΠ½Π½ΡΠ΅ ΡΡΠΎΠ»Π΅ΡΠ½ΠΈΡΡ Π½Π°ΡΡΡΠ°Π»ΡΠ½ΠΎΠ³ΠΎ ΡΠ²Π΅ΡΠ° Π΄ΠΎΠ±Π°Π²Π»ΡΡΡ ΠΈΠ½ΡΠ΅ΡΡΠ΅ΡΡ ΡΠ΅ΠΏΠ»Π°.
ΠΠΈΠ·Π°ΠΉΠ½ Π²Π°Π½Π½ΠΎΠΉ ΠΊΠΎΠΌΠ½Π°ΡΡ Π²ΡΠΏΠΎΠ»Π½Π΅Π½ Π² ΡΡΠΈΠ»Π΅ ΡΠ΅ΡΡΠΎ. ΠΡΠ» Π²ΡΠ±ΡΠ°Π½ ΡΠ½ΠΈΡΠ°Π· Ρ Π²ΡΡΠΎΠΊΠΈΠΌ ΡΠ»ΠΈΠ²ΠΎΠΌ Π±ΠΎΡΠΊΠΈ, ΡΠ°ΠΌΠ° Π²Π°Π½Π½Π°Ρ Π½Π° ΠΈΠ·ΠΎΠ³Π½ΡΡΡΡ Π½ΠΎΠΆΠΊΠ°Ρ , ΡΠ°Π½ΡΠ΅Ρ Π½ΠΈΠΊΠ° ΠΈ Π΄Π°ΠΆΠ΅ ΡΠ°ΠΊΠΈΠ΅ Π²Π΅ΡΠΈ, ΠΊΠ°ΠΊ ΡΠΎΠ·Π΅ΡΠΊΠΈ.
ΠΠΎΠ» Π² ΡΡΠΈΠ»Π΅ ΠΏΡΡΠ²ΠΎΡΠΊ ΠΈΠ΄Π΅Π°Π»ΡΠ½ΠΎ ΠΏΠΎΠ΄Ρ ΠΎΠ΄ΠΈΠ» Π΄Π»Ρ ΡΡΠΎΠΉ Π²Π°Π½Π½ΠΎΠΉ ΠΊΠΎΠΌΠ½Π°ΡΡ. ΠΡΡΠ°ΡΠΈ, ΠΊΠΎΡΠΈΠΊΠΈ Π½Π° ΡΡΠ΅Π½Π΅ Π²ΡΠΏΠΎΠ»Π½Π΅Π½Ρ Ρ ΠΏΠΎΠΌΠΎΡΡΡ Π²Π»Π°Π³ΠΎΡΡΠΎΠΉΠΊΠΎΠΉ ΠΊΡΠ°ΡΠΊΠΈ.
ΠΠΈΠΆΠ½ΡΡ ΡΠ°ΡΡΡ ΡΡΠ΅Π½ ΠΎΡΠ΄Π΅Π»Π°Π½Π° ΡΠΎΠΉ ΠΆΠ΅ ΠΏΠ»ΠΈΡΠΊΠΎΠΉ, ΡΡΠΎ ΠΈ Π½Π° ΠΊΡΡ Π½Π΅.
ΠΠ»Π°Π½ΠΈΡΠΎΠ²ΠΊΠ° ΠΌΠ°Π»ΠΎΠ³Π°Π±Π°ΡΠΈΡΠ½ΠΎΠΉ ΠΎΠ΄Π½ΠΎΠΊΠΎΠΌΠ½Π°ΡΠ½ΠΎΠΉ ΠΊΠ²Π°ΡΡΠΈΡΡ
ΠΠ²Π°ΡΡΠΈΡΠ° Π² ΡΠΊΠ°Π½Π΄ΠΈΠ½Π°Π²ΡΠΊΠΎΠΌ ΡΡΠΈΠ»Π΅ 41 ΠΊΠ².ΠΌ ΡΠΌΠ΅Π»ΠΎ ΠΌΠ°ΡΠΊΠΈΡΡΠ΅Ρ ΡΠ²ΠΎΠΈ Π½Π΅Π΄ΠΎΡΡΠ°ΡΠΊΠΈ, Π° Π΄ΠΎΡΡΠΎΠΈΠ½ΡΡΠ²Π° ΠΈΠ·ΡΡΠ½ΠΎ ΠΏΠΎΠ΄ΡΠ΅ΡΠΊΠΈΠ²Π°Π΅Ρ.
ΠΠ° ΡΠΎΡΠΎ:
ΠΡΠ° Π½Π΅Π±ΠΎΠ»ΡΡΠ°Ρ ΠΊΠ²Π°ΡΡΠΈΡΠ° Π½Π΅ ΠΌΠΎΠΆΠ΅Ρ ΠΏΠΎΡ Π²Π°ΡΡΠ°ΡΡΡΡ ΠΌΠ΅ΡΡΠ°ΠΆΠΎΠΌ, Π½ΠΎ ΡΡΠΎ Π½Π΅ ΡΠ±ΠΈΠ²Π°Π΅Ρ ΠΎΡΡΡΠ΅Π½ΠΈΠ΅ ΠΏΡΠΎΡΡΠΎΡΠ° Π² Π½Π΅ΠΉ. ΠΠ³ΠΎ Π³Π»Π°Π²Π½ΡΠΉ ΠΊΠΎΠ·ΡΡΡ — ΠΎΠΊΠ½Π°, Π²ΡΡ ΠΎΠ΄ΡΡΠΈΠ΅ Π½Π° Π΄Π²Π° Π½Π°ΠΏΡΠ°Π²Π»Π΅Π½ΠΈΡ ΡΠ²Π΅ΡΠ°, ΠΈ Π±ΠΎΠ»ΡΡΠ°Ρ Π³Π»ΡΠ±ΠΈΠ½Π°. ΠΠ½ ΠΏΡΠΎΡΠ²Π΅ΡΠΈΠ²Π°Π΅Ρ ΠΈ Π²ΡΠ³Π»ΡΠ΄ΠΈΡ ΡΠ²ΠΎΠ±ΠΎΠ΄Π½ΡΠΌ ΠΈ Π½Π°ΠΏΠΎΠ»Π½Π΅Π½Π½ΡΠΌ Π²ΠΎΠ·Π΄ΡΡ ΠΎΠΌ.
ΠΠ½ΡΠΎΡΠΌΠ°ΡΠΈΡ ΠΎΠ± ΠΎΠ±ΡΠ΅ΠΊΡΠ΅:
Π Π°ΡΠΏΠΎΠ»ΠΎΠΆΠ΅Π½ΠΈΠ΅: ΠΠ΅ΡΠ΅ΡΠ±ΠΎΡΠ³, Π¨Π²Π΅ΡΠΈΡ
ΠΠΎΠ΄: 2012
ΠΠ»ΠΎΡΠ°Π΄Ρ: 41 ΠΊΠ².ΠΌ
ΠΡΡ
ΠΈΡΠ΅ΠΊΡΠΎΡΡ: Alvhem MΓ€kleri & InteriΓΆr
ΠΡΠ° ΠΊΠ²Π°ΡΡΠΈΡΠ° ΠΊΠ°ΠΊ Π·Π°ΡΠΏΠ»Π°ΡΠ° Π² ΠΈΠ·Π²Π΅ΡΡΠ½ΠΎΠΉ ΠΏΠΎΠ³ΠΎΠ²ΠΎΡΠΊΠ΅ Β«ΠΌΠ°Π»Π΅Π½ΡΠΊΠ°Ρ, Π½ΠΎ Ρ ΠΎΡΠΎΡΠ°ΡΒ».ΠΠΈΠ·Π°ΠΉΠ½ ΠΈΠ½ΡΠ΅ΡΡΠ΅ΡΠ° ΠΌΠ°Π»ΠΎΠ³Π°Π±Π°ΡΠΈΡΠ½ΡΡ ΠΊΠ²Π°ΡΡΠΈΡ Π²ΠΎ ΠΌΠ½ΠΎΠ³ΠΎΠΌ Π·Π°Π²ΠΈΡΠΈΡ ΠΎΡ ΠΏΡΠΎΠΏΠΎΡΡΠΈΠΉ ΠΏΠΎΠΌΠ΅ΡΠ΅Π½ΠΈΡ ΠΈ ΠΎΡ ΠΎΡΠ²Π΅ΡΠ΅Π½Π½ΠΎΡΡΠΈ. ΠΠΎΡ 41 ΠΊΠ². ΠΠ΅ΡΡ ΠΌΠΎΠΆΠ½ΠΎ Π²ΠΎΡΠΏΡΠΈΠ½ΠΈΠΌΠ°ΡΡ ΡΠΎΠ²Π΅ΡΡΠ΅Π½Π½ΠΎ ΠΏΠΎ-ΡΠ°Π·Π½ΠΎΠΌΡ Π² Π·Π°Π²ΠΈΡΠΈΠΌΠΎΡΡΠΈ ΠΎΡ ΡΡΠΈΡ ΠΏΠ°ΡΠ°ΠΌΠ΅ΡΡΠΎΠ². ΠΠ΄Π΅ΡΡ ΠΎΠ½ΠΈ ΠΈΠ΄Π΅Π°Π»ΡΠ½Ρ: Π² ΠΊΠ²Π°ΡΡΠΈΡΠ΅ 3 ΠΎΠΊΠ½Π°, Π²ΡΡ ΠΎΠ΄ΡΡΠΈΠ΅ Π½Π° 2 ΡΡΠΎΡΠΎΠ½Ρ ΡΠ²Π΅ΡΠ°, ΠΈ Π΅Π΅ ΠΎΡΠ΅Π½Ρ ΡΠ΄ΠΎΠ±Π½ΡΠ΅ ΠΏΡΠΎΠΏΠΎΡΡΠΈΠΈ. ΠΠ° ΡΠ°ΠΌΠΎΠΌ Π΄Π΅Π»Π΅ Π΄ΠΈΠ·Π°ΠΉΠ½Π΅ΡΠ°ΠΌ, Π° ΠΈΠ½ΡΠ΅ΡΡΠ΅Ρ ΠΏΡΠΎΠ΅ΠΊΡΠΈΡΠΎΠ²Π°Π»Π° ΡΠ²Π΅Π΄ΡΠΊΠ°Ρ ΠΎΡΠ΄Π΅Π»ΠΎΡΠ½ΠΎ-Π±ΡΠΎΠΊΠ΅ΡΡΠΊΠ°Ρ ΠΊΠΎΠΌΠΏΠ°Π½ΠΈΡ Alvhem MΓ€kleri & InteriΓΆr, ΠΎΡΡΠ°Π²Π°Π»ΠΎΡΡ ΡΠΎΠ»ΡΠΊΠΎ Π³ΡΠ°ΠΌΠΎΡΠ½ΠΎ ΡΠΏΡΠΎΠ΅ΠΊΡΠΈΡΠΎΠ²Π°ΡΡ ΡΠ΄Π°ΡΠ½ΡΠΉ ΠΎΠ±ΡΠ΅ΠΊΡ, ΡΡΠΎΠ±Ρ ΠΏΠΎΠ΄ΡΠ΅ΡΠΊΠ½ΡΡΡ Π΄ΠΎΡΡΠΎΠΈΠ½ΡΡΠ²Π° ΠΈ Π²ΠΈΠ·ΡΠ°Π»ΡΠ½ΠΎ ΠΈΡΠΏΡΠ°Π²ΠΈΡΡ Π½Π΅Π΄ΠΎΡΡΠ°ΡΠΊΠΈ, Π² ΡΠ°ΡΡΠ½ΠΎΡΡΠΈ, Π΅ΡΠ΅ ΡΠΊΡΠΎΠΌΠ½ΡΠ΅ ΠΌΠ΅ΡΡΠ°ΠΆΠΈ. .ΠΠ²Π°ΡΡΠΈΡΠ° ΠΎΡΠΎΡΠΌΠ»Π΅Π½Π° Π² ΠΊΠ»Π°ΡΡΠΈΡΠ΅ΡΠΊΠΎΠΌ ΡΠΊΠ°Π½Π΄ΠΈΠ½Π°Π²ΡΠΊΠΎΠΌ ΡΡΠΈΠ»Π΅: ΠΏΠΎΡΡΠΈ Π²ΡΠ΅ ΠΏΠΎΠ²Π΅ΡΡ Π½ΠΎΡΡΠΈ ΠΈ ΠΌΠ΅Π±Π΅Π»Ρ ΡΡΠΊΠΎ-Π±Π΅Π»ΠΎΠ³ΠΎ ΡΠ²Π΅ΡΠ°, Π²ΡΡ ΡΠ΅Ρ Π½ΠΈΠΊΠ° ΠΈ ΠΌΠ΅Π±Π΅Π»Ρ ΠΏΡΠΎΡΡΡ ΠΈ ΡΡΠ½ΠΊΡΠΈΠΎΠ½Π°Π»ΡΠ½Ρ, Π½ΠΎ ΡΠ΄ΠΈΠ²ΠΈΡΠ΅Π»ΡΠ½ΠΎ ΡΡΡΠ½Ρ Π±Π»Π°Π³ΠΎΠ΄Π°ΡΡ ΠΌΠ΅Π»ΠΊΠΈΠΌ Π΄Π΅ΡΠ°Π»ΡΠΌ ΠΈ Π½Π΅ΠΆΠ½ΡΠΌ ΡΠ²Π΅ΡΠΎΠ²ΡΠΌ Π°ΠΊΡΠ΅Π½ΡΠ°ΠΌ.
ΠΠΈΠ·Π°ΠΉΠ½Π΅ΡΡ ΡΠ΅ΡΠΈΠ»ΠΈ Π²ΡΠ΄Π΅Π»ΠΈΡΡ Π±ΠΎΠ»ΡΡΡΡ ΠΊΠΎΠΌΠ½Π°ΡΡ ΠΏΠΎΠ΄ ΡΠΏΠ°Π»ΡΠ½Ρ, ΡΠΎΠ²ΠΌΠ΅ΡΠ΅Π½Π½ΡΡ Ρ Π³ΠΎΡΡΠΈΠ½ΠΎΠΉ, ΠΈ ΠΌΠ°Π»Π΅Π½ΡΠΊΡΡ ΠΏΠΎΠ΄ ΠΊΡΡ Π½Ρ. ΠΠΎΠΆΠ½ΠΎ Π±ΡΠ»ΠΎ Π±Ρ ΠΎΠ±ΡΠ΅Π΄ΠΈΠ½ΠΈΡΡ ΠΊΡΡ Π½Ρ Ρ Π³ΠΎΡΡΠΈΠ½ΠΎΠΉ ΠΈ ΡΠ΄Π΅Π»Π°ΡΡ ΡΠΏΠ°Π»ΡΠ½Ρ Π±ΠΎΠ»Π΅Π΅ ΠΏΡΠΈΠ²Π°ΡΠ½ΠΎΠΉ, Π½ΠΎ ΡΡΠΎ ΠΏΠΎΡΠ΅ΡΡΠ»ΠΎ Π±Ρ ΠΏΡΠΎΠ·ΡΠ°ΡΠ½ΠΎΡΡΡ ΠΊΠ²Π°ΡΡΠΈΡΡ — ΠΎΡΠΊΡΡΡΡΡ Ρ ΠΎΠ±Π΅ΠΈΡ ΡΡΠΎΡΠΎΠ½.ΠΠ° ΠΏΠ»Π°Π½Π΅ Π½Π°ΡΠΈΡΠΎΠ²Π°Π½ Π±Π°Π»ΠΊΠΎΠ½, Π½ΠΎ Π½Π° ΡΠ°ΠΌΠΎΠΌ Π΄Π΅Π»Π΅ ΡΡΠΎ Π½Π΅ ΡΠ°ΠΊ.
ΠΡΠΈΡΡΠ½ΠΎΠΉ ΠΎΡΠΎΠ±Π΅Π½Π½ΠΎΡΡΡΡ ΠΊΠ²Π°ΡΡΠΈΡΡ ΡΠ²Π»ΡΠ΅ΡΡΡ ΡΠΎ, ΡΡΠΎ Π²Ρ ΠΎΠ΄ Π² Π½Π΅Π΅ Π½Π°Ρ ΠΎΠ΄ΠΈΡΡΡ ΠΏΠΎ ΡΠ΅Π½ΡΡΡ ΠΈ ΠΏΡΡΠΌΠΎ Π½Π°ΠΏΡΠΎΡΠΈΠ² ΡΠ°Π½ΡΠ·Π»Π°, ΡΡΠΎ ΠΎΡΠ΅Π½Ρ ΡΠ΄ΠΎΠ±Π½ΠΎ. Π‘ΠΏΡΠ°Π²Π° ΠΊΡΡ Π½Ρ …
… ΡΠ»Π΅Π²Π° Π³ΠΎΡΡΠΈΠ½Π°Ρ ΠΈ ΡΠΏΠ°Π»ΡΠ½Ρ Π·Π°Π»ΠΈΡΡ ΡΠ²Π΅ΡΠΎΠΌ ΠΈΠ· Π΄Π²ΡΡ Π±ΠΎΠ»ΡΡΠΈΡ ΠΎΠΊΠΎΠ½. ΠΠ΄Π½Π° ΠΈΠ· ΡΡΠ΅Π½ ΠΏΡΠΈΡ ΠΎΠΆΠ΅ΠΉ ΠΎΠΊΡΠ°ΡΠ΅Π½Π° Π² ΠΊΠΎΠ½ΡΡΠ°ΡΡΠ½ΡΠΉ ΡΠ΅ΡΡΠΉ ΡΠ²Π΅Ρ, ΠΊ Π½Π΅ΠΉ ΠΏΠΎΠ΄ΠΎΠ±ΡΠ°Π½Ρ ΠΊΠΎΠ²ΡΠΈΠΊ ΠΈ ΠΏΠΎΠ΄ΡΡΠΊΠ°. Π ΡΡΠΎ ΠΎΡΠ»ΠΈΡΠ½ΡΠΉ Ρ ΠΎΠ΄: ΠΈ ΡΡΡΠΎΠ³ΠΈΠΉ, ΠΈ ΠΏΡΠ°ΠΊΡΠΈΡΠ½ΡΠΉ, ΠΈ Π½Π΅ ΠΎΠ΄Π½ΠΎΠΎΠ±ΡΠ°Π·Π½ΡΠΉ — Π²Π΅Π΄Ρ Π²Ρ ΠΎΠ΄Π½Π°Ρ Π·ΠΎΠ½Π° Π½Π΅ ΠΈΠΌΠ΅Π΅Ρ ΠΏΡΠ°Π²Π° Π±ΡΡΡ ΡΠΎΠ²ΡΠ΅ΠΌ ΡΠΊΡΡΠ½ΠΎΠΉ, Π²Π΅Π΄Ρ ΠΎΠ½Π° ΠΏΡΠΎΠΈΠ·Π²ΠΎΠ΄ΠΈΡ ΠΏΠ΅ΡΠ²ΠΎΠ΅ Π²ΠΏΠ΅ΡΠ°ΡΠ»Π΅Π½ΠΈΠ΅ Π½Π° ΠΏΠΎΡΠ΅ΡΠΈΡΠ΅Π»Π΅ΠΉ.
ΠΠΎΡΡΠΈΠ½Π°Ρ, ΡΠΎΠ²ΠΌΠ΅ΡΠ΅Π½Π½Π°Ρ ΡΠΎ ΡΠΏΠ°Π»ΡΠ½Π΅ΠΉ, ΠΈΠΌΠ΅Π΅Ρ Π½Π΅Π±ΠΎΠ»ΡΡΠΈΠ΅ ΡΠ°Π·ΠΌΠ΅ΡΡ, Π½ΠΎ ΠΎΡΡΡΡΡΡΠ²ΠΈΠ΅ Π»ΠΈΡΠ½ΠΈΡ ΠΌΠ΅ΡΡΠΎΠ² ΠΊΠΎΠΌΠΏΠ΅Π½ΡΠΈΡΡΠ΅ΡΡΡ ΠΎΠ±ΠΈΠ»ΠΈΠ΅ΠΌ ΡΠ²Π΅ΡΠ°, ΠΎΡΠΎΠ±Π΅Π½Π½ΠΎ Π·Π°ΠΌΠ΅ΡΠ½ΠΎΠ³ΠΎ Π² Π±Π΅Π»ΠΎΡΠ½Π΅ΠΆΠ½ΠΎΠΌ ΡΠΊΠ°Π½Π΄ΠΈΠ½Π°Π²ΡΠΊΠΎΠΌ ΠΈΠ½ΡΠ΅ΡΡΠ΅ΡΠ΅.
ΠΡΡΡΠ΅Π΅ ΠΌΠ΅ΡΡΠΎ Π² ΠΊΠ²Π°ΡΡΠΈΡΠ΅ — Ρ ΠΎΠΊΠ½Π° Ρ Π²ΠΈΠ΄ΠΎΠΌ Π½Π° Π³ΠΎΡΠΎΠ΄: ΡΠ°ΠΌ Π΄ΠΈΠ²Π°Π½ Π΄Π»Ρ ΠΎΡΠ΄ΡΡ Π° ΠΈ ΠΏΡΠΈΠ΅ΠΌΠ° Π³ΠΎΡΡΠ΅ΠΉ. ΠΠ°ΠΏΡΠΎΡΠΈΠ² Π½Π΅Π³ΠΎ Ρ ΠΎΡΠΎΡΠΎ Π²ΠΏΠΈΡΡΠ²Π°ΡΡΡΡ ΡΠ΅Π»Π΅Π²ΠΈΠ·ΠΎΡ ΠΈ ΠΊΠ½ΠΈΠΆΠ½ΡΠ΅ ΠΏΠΎΠ»ΠΊΠΈ.
ΠΠΈΠ»Π°Ρ ΠΏΠ»ΠΎΡΠ°Π΄Ρ ΠΎΡ 8 ΠΊΠ². ΠΠ΅ΡΡΠΎΠ², Π½ΠΎ ΠΈΠ·-Π·Π° ΡΠΎΠ³ΠΎ, ΡΡΠΎ ΡΠΏΠ°Π»ΡΠ½Ρ ΠΎΡΠ΄Π΅Π»ΡΠ΅Ρ ΡΠΎΠ»ΡΠΊΠΎ Π½Π΅Π²ΡΡΠΎΠΊΠ°Ρ ΠΏΠ΅ΡΠ΅Π³ΠΎΡΠΎΠ΄ΠΊΠ°, ΠΎΠ½Π° Π²ΡΠ³Π»ΡΠ΄ΠΈΡ Π½Π°ΠΌΠ½ΠΎΠ³ΠΎ ΠΏΡΠΎΡΡΠΎΡΠ½Π΅Π΅.
Π‘ΠΏΠ°Π»ΡΠ½Π°Ρ Π·ΠΎΠ½Π° ΡΠΎΠΆΠ΅ Π½Π΅ ΠΌΠΎΠΆΠ΅Ρ ΠΏΠΎΡ Π²Π°ΡΡΠ°ΡΡΡΡ ΡΠ²ΠΎΠΈΠΌΠΈ ΡΠ°Π·ΠΌΠ΅ΡΠ°ΠΌΠΈ, Π½ΠΎ Π·Π΄Π΅ΡΡ Π΅ΡΡΡ ΠΊΡΠΎΠ²Π°ΡΡ ΠΈ ΡΡΠΌΠ±ΠΎΡΠΊΠ°, ΠΌΠΎΡΠ΅ ΡΠ²Π΅ΡΠ° ΠΈ ΠΏΡΠΎΡΡΠΎΡΠ°, ΡΡΠΎ ΡΠ²Π»ΡΠ΅ΡΡΡ ΠΈΠ΄Π΅Π°Π»ΡΠ½ΡΠΌ ΡΠΎΡΠ΅ΡΠ°Π½ΠΈΠ΅ΠΌ. ΠΡΠΎΠΌΠ΅ ΡΠΎΠ³ΠΎ, Π΄Π²Π΅ΡΡ Π²Π΅Π΄Π΅Ρ ΠΏΡΡΠΌΠΎ ΠΈΠ· ΡΠΏΠ°Π»ΡΠ½ΠΈ Π² ΡΠΎΡΠΊΠΎΡΠ½ΡΡ Π³Π°ΡΠ΄Π΅ΡΠΎΠ±Π½ΡΡ, Π·Π°ΠΌΠ΅Π½ΡΡΡΡΡ Π²ΡΠ΅ ΡΠΈΡΡΠ΅ΠΌΡ Ρ ΡΠ°Π½Π΅Π½ΠΈΡ — ΠΎΡ Π³Π°ΡΠ΄Π΅ΡΠΎΠ±Π° Π΄ΠΎ ΠΊΠΎΠΌΠΎΠ΄Π°.
ΠΠ°ΡΠ΄Π΅ΡΠΎΠ±Π½Π°Ρ ΠΎΠ³ΡΠΎΠΌΠ½Π° ΠΏΠΎ ΠΌΠ΅ΡΠΊΠ°ΠΌ ΡΠ°ΠΊΠΎΠΉ ΠΌΠ°Π»Π΅Π½ΡΠΊΠΎΠΉ ΠΊΠ²Π°ΡΡΠΈΡΡ, ΡΠΎ Π²ΡΠ΅ΠΌΠΈ ΠΏΡΠ΅ΠΈΠΌΡΡΠ΅ΡΡΠ²Π°ΠΌΠΈ: ΠΎΡ Π²Π΅ΡΠ°Π»ΠΎΠΊ ΠΈ ΠΏΠΎΠ»ΠΎΠΊ Π΄ΠΎ ΡΠ΄ΠΎΠ±Π½ΠΎΠ³ΠΎ ΡΡΠ°Π»Π΅ΡΠ½ΠΎΠ³ΠΎ ΡΡΠΎΠ»ΠΈΠΊΠ°.
ΠΡΡ Π½Ρ — Π΅Π΄ΠΈΠ½ΡΡΠ²Π΅Π½Π½ΠΎΠ΅ ΠΌΠ΅ΡΡΠΎ, Π³Π΄Π΅ Π΄ΠΈΠ·Π°ΠΉΠ½Π΅ΡΡ ΠΈΠ·ΠΌΠ΅Π½ΠΈΠ»ΠΈ ΡΡΠ°Π΄ΠΈΡΠΈΠΎΠ½Π½ΡΠΉ Π±Π΅Π»ΡΠΉ ΡΠ²Π΅Ρ ΡΡΠ΅Π½. ΠΠ° ΡΠΌΠ΅Π½Ρ ΠΈΠΌ ΠΏΡΠΈΡΠ»ΠΈ ΡΠΈΠ½ΠΈΠ΅ ΠΎΠ±ΠΎΠΈ Ρ ΡΠΎΠ½ΠΊΠΈΠΌ Π³ΡΠ°ΡΠΈΡΠ΅ΡΠΊΠΈΠΌ ΡΠ²Π΅ΡΠΎΡΠ½ΡΠΌ ΡΠ·ΠΎΡΠΎΠΌ.
ΠΡΡ ΠΎΠ½Π½Π°Ρ ΠΌΠ΅Π±Π΅Π»Ρ ΠΏΡΠ΅Π΄Π΅Π»ΡΠ½ΠΎ ΠΏΡΠΎΡΡΠ°: Π±Π΅Π»Π°Ρ ΠΈ ΡΡΠ½ΠΊΡΠΈΠΎΠ½Π°Π»ΡΠ½Π°Ρ. ΠΠ°ΡΠ΄Π΅ΡΠΎΠ±Ρ Π²ΡΡΡΡΠΎΠΈΠ»ΠΈΡΡ Π²Π΄ΠΎΠ»Ρ Π΄Π»ΠΈΠ½Π½ΠΎΠΉ ΡΡΠ΅Π½Ρ
ΠΠ° ΠΊΠΎΡΠΎΡΠΊΠΎΠΉ ΡΡΠ΅Π½Π΅ Π½Π°Π΄ ΡΠ΅ΠΆΡΡΠΈΠΌΠΈ ΠΏΠΎΠ²Π΅ΡΡ Π½ΠΎΡΡΡΠΌΠΈ Π΅ΡΡΡ ΠΎΡΠΊΡΡΡΡΠ΅ ΠΏΠΎΠ»ΠΊΠΈ, ΠΊΠΎΡΠΎΡΡΠ΅ Π²ΠΈΠ·ΡΠ°Π»ΡΠ½ΠΎ Π²ΡΠ΅Π³Π΄Π° Π΄Π΅Π»Π°ΡΡ Π²ΡΡ ΠΊΡΡ ΠΎΠ½Π½ΡΡ ΠΌΠ΅Π±Π΅Π»Ρ ΡΠ²Π΅ΡΠ»Π΅Π΅.
Π£ ΡΡΠ΅Π½Ρ ΡΡΠΎΠ» ΡΠΎ ΡΡΡΠ»ΡΡΠΌΠΈ, Π° Π·Π° Π½ΠΈΠΌ ΠΏΡΠΈΡΠΌΠΎΡΡΠΈΡΠ΅ΡΡ — ΠΊΡΠΎΡ ΠΎΡΠ½ΡΠΉ ΡΡΠ΅ΡΠ³ΠΎΠ»ΡΠ½ΡΠΉ ΡΠ³ΠΎΠ»ΠΎΠΊ, Π΄ΠΎΡΡΠ°Π²ΡΠΈΠΉΡΡ Π΄ΠΈΠ·Π°ΠΉΠ½Π΅ΡΠ°ΠΌ Π² Π½Π°ΡΠ»Π΅Π΄ΡΡΠ²ΠΎ ΠΎΡ ΠΏΡΠΎΠ΅ΠΊΡΠΈΡΠΎΠ²ΡΠΈΠΊΠΎΠ².ΠΠ³ΠΎ ΠΏΠ΅ΡΠ²ΠΎΠ½Π°ΡΠ°Π»ΡΠ½ΠΎΠ΅ ΠΏΡΠ΅Π΄Π½Π°Π·Π½Π°ΡΠ΅Π½ΠΈΠ΅ Π½Π΅ΠΈΠ·Π²Π΅ΡΡΠ½ΠΎ, Π½ΠΎ ΡΠ΅ΠΏΠ΅ΡΡ Π½Π΅Π±ΠΎΠ»ΡΡΠΎΠΉ ΠΏΠΈΡΡΠΌΠ΅Π½Π½ΡΠΉ ΡΡΠΎΠ»ΠΈΠΊ Π·Π΄Π΅ΡΡ ΠΎΡΠ»ΠΈΡΠ½ΠΎ Π²ΠΏΠΈΡΡΠ²Π°Π΅ΡΡΡ.
Π‘ΠΈΠΌΠΏΠ°ΡΠΈΡΠ½Π°Ρ ΠΈ ΡΠ΄ΠΎΠ±Π½Π°Ρ Π΄Π΅ΡΠ°Π»Ρ: ΡΠ΅ΡΠΈΠ²Π° Ρ ΠΏΡΠΈΡΠ΅ΠΏΠΊΠ°ΠΌΠΈ. ΠΡ ΠΌΠΎΠΆΠ΅ΡΠ΅ Π²Π΅ΡΠ°ΡΡ Π·Π°ΠΌΠ΅ΡΠΊΠΈ, Π½Π°ΠΏΠΎΠΌΠΈΠ½Π°Π½ΠΈΡ, ΡΠΎΡΠΎΠ³ΡΠ°ΡΠΈΠΈ ΠΈ Π±Π΅Π·Π΄Π΅Π»ΡΡΠΊΠΈ. ΠΠ΅ ΡΠ°ΠΊΠ°Ρ Π³ΡΠΎΠΌΠΎΠ·Π΄ΠΊΠ°Ρ, ΠΊΠ°ΠΊ ΠΏΡΠΎΠ±ΠΊΠΎΠ²Π°Ρ Π΄ΠΎΡΠΊΠ°, ΠΊΠΎΡΠΎΡΡΡ ΡΠ°ΡΡΠΎ Π²Π΅ΡΠ°ΡΡ Π½Π°Π΄ ΡΡΠΎΠ»ΠΎΠΌ, Π½ΠΎ ΡΠ°ΠΊΠ°Ρ ΠΆΠ΅ ΡΡΠ½ΠΊΡΠΈΠΎΠ½Π°Π»ΡΠ½Π°Ρ.
Π‘Π°Π½ΡΠ·Π΅Π» ΠΎΡΠ΅Π½Ρ ΠΊΠΎΠΌΠΏΠ°ΠΊΡΠ΅Π½, Π½ΠΎ Π½Π΅ ΠΏΠΎΡΡΠ°ΡΠ΅Π½ Π·ΡΡ: ΠΏΠΎΠ»ΠΎΡΠΊΠΈ Π΄Π»Ρ ΠΏΠΎΠ»ΠΎΡΠ΅Π½Π΅Ρ ΠΈ Π±ΡΡΠΎΠ²ΠΎΠΉ Ρ ΠΈΠΌΠΈΠΈ ΡΠ°ΡΠΏΠΎΠ»ΠΎΠΆΠ΅Π½Ρ Π½Π°Π΄ ΡΠ½ΠΈΡΠ°Π·ΠΎΠΌ.
ΠΡΡΠ΅Π²Π°Ρ ΠΊΠ°Π±ΠΈΠ½Π° Π±Π΅Π· ΠΏΠΎΠ΄Π΄ΠΎΠ½Π°, ΡΠΎ ΡΠ»ΠΈΠ²ΠΎΠΌ Π² ΠΏΠΎΠ»Ρ, ΡΠΎΠ²Π΅ΡΡΠ΅Π½Π½ΠΎ Π½Π΅ Π·Π°Π½ΠΈΠΌΠ°Π΅Ρ ΠΌΠ΅ΡΡΠ°.Π‘ΡΠ΅Π½Ρ ΡΠ΅ΡΠΎ-ΡΠΈΡΠ΅Π½Π΅Π²ΡΠ΅, ΡΡΠΎΠ±Ρ ΡΠΎΠΎΡΠ²Π΅ΡΡΡΠ²ΠΎΠ²Π°ΡΡ Π²ΡΠ±ΡΠ°Π½Π½ΠΎΠΌΡ Π² ΠΊΠ²Π°ΡΡΠΈΡΠ΅ Π³Π»Π°Π²Π½ΠΎΠΌΡ Π°ΠΊΡΠ΅Π½ΡΡ — ΡΡΠΎΠΌΡ ΡΠ²Π΅ΡΡ ΠΈ Π΄ΠΈΠ²Π°Π½Ρ Π² Π³ΠΎΡΡΠΈΠ½ΠΎΠΉ, ΠΈ ΠΌΠΎΠ·Π°ΠΈΠΊΠ΅ Π½Π° ΠΊΡΡ Π½Π΅. ΠΡΠ΅ Π·Π°Π²Π΅Π»ΠΎΡΡ.
ΠΠΎΠΌΠΌΠ΅Π½ΡΠ°ΡΠΈΠΉ Π² Π€Π ΠΠΎΠΌΠΌΠ΅Π½ΡΠ°ΡΠΈΠΉ Π² ΠΠ
Π’Π°ΠΊΠΆΠ΅ Π² ΡΡΠΎΠΌ ΡΠ°Π·Π΄Π΅Π»Π΅
ΠΠ½ΡΠ΅ΡΡΠ΅Ρ ΠΊΠ²Π°ΡΡΠΈΡΡ ΠΏΠ»ΠΎΡΠ°Π΄ΡΡ 21 ΠΊΠ².ΠΌ Π²ΡΠΏΠΎΠ»Π½Π΅Π½ Π² ΡΠΊΠ°Π½Π΄ΠΈΠ½Π°Π²ΡΠΊΠΎΠΌ ΡΡΠΈΠ»Π΅. ΠΠΎ ΠΏΡΠΎΡΡΠ±Π΅ Π²Π»Π°Π΄Π΅Π»ΡΡΠ΅Π² ΠΠΈΠΊΡΠΎΡΠΈΡ ΠΠΎΠ½Π΄Π°ΡΡΡΠΊ ΡΠ°Π±ΠΎΡΠ°Π»Π° Ρ ΡΡΡΠ΅ΡΡΠ²ΡΡΡΠ΅ΠΉ ΠΏΠ»Π°Π½ΠΈΡΠΎΠ²ΠΊΠΎΠΉ, ΡΡΠ°ΡΠ°ΡΡΡ ΠΌΠ°ΠΊΡΠΈΠΌΠ°Π»ΡΠ½ΠΎ ΠΎΠΏΡΠΈΠΌΠΈΠ·ΠΈΡΠΎΠ²Π°ΡΡ ΠΏΡΠΎΡΡΡΠ°Π½ΡΡΠ²ΠΎ.
ΠΠ»ΠΈΠ΅Π½ΡΡ ΠΠΈΡΠ΅Π»Ρ ΠΈ ΠΠ½Π΄ΠΈ ΠΏΡΠΈΡΠ»ΠΈ Π² Π΄ΠΈΠ·Π°ΠΉΠ½Π΅ΡΡΠΊΠΎΠ΅ Π±ΡΡΠΎ LAAB Ρ Π΄Π»ΠΈΠ½Π½ΡΠΌ ΡΠΏΠΈΡΠΊΠΎΠΌ ΠΏΠΎΠΆΠ΅Π»Π°Π½ΠΈΠΉ ΠΈ ΠΌΠ½ΠΎΠΆΠ΅ΡΡΠ²ΠΎΠΌ ΠΏΠ»Π°Π½ΠΎΠ² Π΄Π»Ρ ΠΈΡ ΠΊΡΠΎΡΠ΅ΡΠ½ΠΎΠΉ ΠΊΠ²Π°ΡΡΠΈΡΡ Π² ΡΠ΅Π½ΡΡΠ΅ ΠΠΎΠ½ΠΊΠΎΠ½Π³Π°.
Π Π°Π±ΠΎΡΠ°Ρ Π½Π°Π΄ Π΄ΠΈΠ·Π°ΠΉΠ½ΠΎΠΌ ΠΌΠ°Π»Π΅Π½ΡΠΊΠΎΠΉ ΠΊΠ²Π°ΡΡΠΈΡΡ Π² ΡΠ΅Π½ΡΡΠ΅ ΠΠΎΠ½Π΄ΠΎΠ½Π°, Π΄ΠΈΠ·Π°ΠΉΠ½Π΅ΡΡ ΠΏΠΎΡΠ»ΠΈ ΠΏΠΎ Π½Π΅ΡΡΠ°Π½Π΄Π°ΡΡΠ½ΠΎΠΌΡ ΠΏΡΡΠΈ — ΠΎΠ½ΠΈ ΡΠ΅ΡΠΈΠ»ΠΈ ΠΏΠΎΠΈΠ³ΡΠ°ΡΡ Ρ Π΅Π΅ Π½Π΅Π±ΠΎΠ»ΡΡΠΈΠΌΠΈ ΡΠ°Π·ΠΌΠ΅ΡΠ°ΠΌΠΈ. Π ΡΠ΅Π·ΡΠ»ΡΡΠ°ΡΠ΅ ΠΏΠΎΠ»ΡΡΠΈΠ»ΠΎΡΡ ΠΊΠΎΠΌΡΠΎΡΡΠ½ΠΎΠ΅ ΠΏΡΠΎΡΡΡΠ°Π½ΡΡΠ²ΠΎ Π² ΡΡΠ±Π°Π½ΠΈΡΡΠΈΡΠ΅ΡΠΊΠΎΠΌ ΡΡΠΈΠ»Π΅.
Π ΠΊΠ²Π°ΡΡΠΈΡΠ΅, ΠΊΠ°Π·Π°Π»ΠΎΡΡ Π±Ρ, Π½Π΅Π»Π΅ΠΏΡΡ ΡΠ°Π·ΠΌΠ΅ΡΠΎΠ² — Π²ΡΠ΅Π³ΠΎ 13 ΠΊΠ²Π°Π΄ΡΠ°ΡΠΎΠ² — ΠΌΠΎΠΆΠ½ΠΎ ΡΠ°Π·ΠΌΠ΅ΡΡΠΈΡΡ Π²ΡΠ΅, ΡΡΠΎ Π½ΡΠΆΠ½ΠΎ Π°ΠΊΡΠΈΠ²Π½ΠΎΠΌΡ Π³ΠΎΡΠΎΠΆΠ°Π½ΠΈΠ½Ρ.Π ΠΏΡΠΈ ΡΡΠΎΠΌ ΠΎΡΡΠ°Π²Π°ΡΡΡ ΡΠ΄ΠΈΠ²ΠΈΡΠ΅Π»ΡΠ½ΠΎ ΠΏΡΠΎΡΡΠΎΡΠ½ΡΠΌ ΠΈ ΡΡΠ½ΠΊΡΠΈΠΎΠ½Π°Π»ΡΠ½ΡΠΌ.
ΠΠ°ΠΊ ΠΎΠ±ΠΎΠΉΡΠΈΡΡ Π±Π΅Π· Π½Π°Π΄ΠΎΠ΅Π΄Π»ΠΈΠ²ΠΎΠ³ΠΎ Π΄ΠΈΠ²Π°Π½Π°-ΠΊΡΠΎΠ²Π°ΡΠΈ Π² ΠΎΠ΄Π½ΠΎΠΊΠΎΠΌΠ½Π°ΡΠ½ΠΎΠΉ ΠΊΠ²Π°ΡΡΠΈΡΠ΅, ΠΎΡΡΠ°Π²ΠΈΡΡ ΠΏΡΠΎΡΡΡΠ°Π½ΡΡΠ²ΠΎ Π½Π΅Π·Π°Π³ΡΠΎΠΌΠΎΠΆΠ΄Π΅Π½Π½ΡΠΌ ΠΈ ΠΏΡΠΈ ΡΡΠΎΠΌ ΠΈΠΌΠ΅ΡΡ ΠΌΠ½ΠΎΠ³ΠΎ ΠΌΠ΅ΡΡ Π΄Π»Ρ Ρ ΡΠ°Π½Π΅Π½ΠΈΡ Π²Π΅ΡΠ΅ΠΉ?
Π’ΡΠΈ Π·ΠΎΠ»ΠΎΡΡΡ ΠΏΡΠ°Π²ΠΈΠ»Π°, ΠΊΠΎΡΠΎΡΡΠ΅ ΠΏΠΎΠΌΠΎΠ³ΡΡ ΠΈΠ·Π±Π΅ΠΆΠ°ΡΡ ΠΎΡΠΈΠ±ΠΎΠΊ ΠΏΡΠΈ ΠΎΡΠΎΡΠΌΠ»Π΅Π½ΠΈΠΈ ΠΌΠ°Π»ΠΎΠ³Π°Π±Π°ΡΠΈΡΠ½ΡΡ ΠΊΠ²Π°ΡΡΠΈΡ Π² ΡΠΎΠ²ΡΠ΅ΠΌΠ΅Π½Π½ΠΎΠΌ ΡΡΠΈΠ»Π΅ … ΠΡΡΡΡΠΏΠ°Π΅Ρ Π°ΡΡ ΠΈΡΠ΅ΠΊΡΠΎΡ ΠΠ΅ΡΡ Π€Π΅Π΄ΠΎΡΠ΅Π΅Π½ΠΊΠΎ.
ΠΠ²Π°ΡΡΠΈΡΡ Π½Π° ΠΏΠ΅ΡΠ²ΠΎΠΌ ΡΡΠ°ΠΆΠ΅ ΠΏΡΠΎΠ΄Π°ΡΡΡΡ Π½Π° 10-15 ΠΏΡΠΎΡΠ΅Π½ΡΠΎΠ² Π΄Π΅ΡΠ΅Π²Π»Π΅, ΡΠ΅ΠΌ ΠΈΡ Π°Π½Π°Π»ΠΎΠ³ΠΈ Π½Π° Π²Π΅ΡΡ Π½ΠΈΡ ΡΡΠ°ΠΆΠ°Ρ . ΠΠ°ΠΊ ΠΏΠ»ΠΎΡ ΠΎΠ΅ ΡΠ°ΡΠΏΠΎΠ»ΠΎΠΆΠ΅Π½ΠΈΠ΅ ΠΏΡΠ΅Π²ΡΠ°ΡΠΈΡΡ Π² Π΄ΠΎΡΡΠΎΠΈΠ½ΡΡΠ²ΠΎ? Π Π°Π·Π±ΠΈΡΠ°Π΅ΠΌ ΠΈΠ½ΡΠ΅ΡΠ΅ΡΠ½Π΅ΠΉΡΠΈΠΉ ΠΏΡΠΎΠ΅ΠΊΡ ΠΠ°ΡΠ°Π»ΡΠΈ ΠΠ»Π΅ΠΊΡΠΈΠ΅Π½ΠΊΠΎ.
ΠΠ° ΡΡΠ΅Ρ ΠΎΠ±ΡΠ΅Π΄ΠΈΠ½Π΅Π½ΠΈΡ Π½Π΅ΡΠΊΠΎΠ»ΡΠΊΠΈΡ Π·ΠΎΠ½ ΠΈ ΠΈΡΠΏΠΎΠ»ΡΠ·ΠΎΠ²Π°Π½ΠΈΡ ΡΠ²Π΅ΡΠ»ΠΎΠΉ ΠΎΡΠ΄Π΅Π»ΠΊΠΈ Π½Π° Π½Π΅Π±ΠΎΠ»ΡΡΠΎΠΉ ΠΏΠ»ΠΎΡΠ°Π΄ΠΈ Π±ΡΠ²ΡΠ΅ΠΉ Β«Π΄Π²ΡΡΠΊΠΈΒ» Π±ΡΠ»Π° ΡΠΎΠ·Π΄Π°Π½Π° ΠΏΡΠΎΡΡΠΎΡΠ½Π°Ρ ΡΡΡΠ΄ΠΈΡ Ρ ΠΆΠΈΠ²ΠΎΠΏΠΈΡΠ½ΡΠΌ ΡΡΠ΅Π΄ΠΈΠ·Π΅ΠΌΠ½ΠΎΠΌΠΎΡΡΠΊΠΈΠΌ Π΄Π΅ΠΊΠΎΡΠΎΠΌ ΠΈ Π½Π΅ΠΎΠ±ΡΡΠ½ΡΠΌΠΈ Π΄Π΅ΡΠ°Π»ΡΠΌΠΈ ΠΎΡΠ΄Π΅Π»ΠΊΠΈ.
Π‘Π΄Π΅Π»Π°ΡΡ ΠΌΠ°Π»Π΅Π½ΡΠΊΡΡ ΡΡΡΠ½ΡΡ ΠΊΠ²Π°ΡΡΠΈΡΡ Π±ΠΎΠ»ΡΡΠΎΠΉ, Π½Π΅ΠΌΠ½ΠΎΠ³ΠΎ ΡΠ±ΡΠ°ΡΡ ΠΏΠ΅ΡΠ΅Π³ΠΎΡΠΎΠ΄ΠΊΠΈ. ΠΠ°ΠΊ ΡΠ²Π΅Π»ΠΈΡΠΈΡΡ ΠΏΡΠΎΡΡΡΠ°Π½ΡΡΠ²ΠΎ, Π½Π΅ ΠΏΠΎΡΠ΅ΡΡΠ² Π΄ΡΡΠ΅Π²Π½ΠΎΡΡΠΈ — Π² ΠΏΡΠΎΠ΅ΠΊΡΠ΅ ΠΡΠ΄ΡΠΎΠ½Π΅ ΠΠ±ΡΠ°Π·Π΅Π½Π΅ Β«ΠΠ΅ΠΆΠ΄Ρ Π΄Π΅ΡΠ΅Π²ΡΡΠΌΠΈΒ».
ΠΠΈΠ·Π°ΠΉΠ½Π΅Ρ ΠΠ°ΡΠΈΠ½Π° Π‘Π°ΡΠ³ΡΡΠ½ ΠΈΠ³ΡΠ°Π΅Ρ Π½Π΅ ΡΠΎΠ»ΡΠΊΠΎ Ρ ΠΏΡΠΎΡΡΡΠ°Π½ΡΡΠ²ΠΎΠΌ, Π½ΠΎ ΠΈ ΡΠΎ Π²ΡΠ΅ΠΌΠ΅Π½Π΅ΠΌ: Π½Π΅ΡΠΌΠΎΡΡΡ Π½Π° ΡΠΎ, ΡΡΠΎ Π² ΠΊΠΎΠΌΠΏΠ°ΠΊΡΠ½ΠΎΠΉ Π΄Π²ΡΡ ΠΊΠΎΠΌΠ½Π°ΡΠ½ΠΎΠΉ ΠΊΠ²Π°ΡΡΠΈΡΠ΅ Π²ΡΠ΅ ΠΊΠΎΠΌΠ½Π°ΡΡ Π²ΡΠΏΠΎΠ»Π½Π΅Π½Ρ Π² ΠΊΠ»Π°ΡΡΠΈΡΠ΅ΡΠΊΠΎΠΌ ΡΡΠΈΠ»Π΅, Π²ΡΠ΅ΠΌΡ Π²Π΅Π·Π΄Π΅ ΡΠ΅ΡΠ΅Ρ ΠΏΠΎ-ΡΠ°Π·Π½ΠΎΠΌΡ.
Π§ΡΠΎΠ±Ρ ΠΏΡΠ΅Π²ΡΠ°ΡΠΈΡΡ ΠΎΠ΄Π½ΠΎΠΊΠΎΠΌΠ½Π°ΡΠ½ΡΡ ΠΊΠ²Π°ΡΡΠΈΡΡ Π² Π΄Π²ΡΡ ΠΊΠΎΠΌΠ½Π°ΡΠ½ΡΡ, Π½ΡΠΆΠ½ΠΎ ΡΠ½Π°ΡΠ°Π»Π° ΡΠ΄Π΅Π»Π°ΡΡ ΠΈΠ· Π½Π΅Π΅ ΡΡΡΠ΄ΠΈΡ. ΠΠΈΠ½ΠΈΠΌΠ°Π»ΠΈΡΡΠΈΡΠ½ΡΠΉ Π»ΠΎΡΡ Π² ΠΏΠ΅ΡΠ΅ΡΠ±ΡΡΠ³ΡΠΊΠΎΠΌ ΡΡΠΈΠ»Π΅ — Π² ΠΏΡΠΎΠ΅ΠΊΡΠ΅ Π΄ΠΈΠ·Π°ΠΉΠ½Π΅ΡΠ° ΠΠ°ΡΠΈΠΈ ΠΠ°ΡΠΈΠ»Π΅Π½ΠΊΠΎ.
ΠΠΎΠ»ΠΎΠ΄ΠΎΠΆΠ΅Π½Π°ΠΌ Π½Π΅ ΠΏΠΎΠ·Π°Π²ΠΈΠ΄ΡΠ΅ΡΡ — ΠΎΠ½ΠΈ Π²ΡΠ΅ ΡΠ°Π²Π½ΠΎ ΡΡΡΡΡΡ Π΄ΡΡΠ³ ΠΎ Π΄ΡΡΠ³Π° Π² ΡΡΠ»ΠΎΠ²ΠΈΡΡ Π½Π°ΡΠ΅ΠΉ ΠΊΠ²Π°ΡΡΠΈΡΡ: Π²ΡΠ΅ ΡΠ³Π»Ρ ΠΈ ΡΠ΅ΡΠ½ΠΎΠ²Π°ΡΠΎ. Π§ΡΠΎΠ±Ρ Π±ΡΠ»ΠΎ ΠΏΡΠΈΡΡΠ½Π΅Π΅ Π²ΡΠΈΡΠ°ΡΡΡΡ, Π»ΡΡΡΠ΅ ΡΠ±ΡΠ°ΡΡ ΡΠ³ΠΎΠ»ΠΊΠΈ ΠΈ ΡΠ²Π΅Π»ΠΈΡΠΈΡΡ ΠΏΡΠΎΡΡΡΠ°Π½ΡΡΠ²ΠΎ.
ΠΠ°ΠΊ ΡΠ½ΡΡΡ Π½Π΅ΡΡΡΡΡ ΠΊΠΎΠ»ΠΎΠ½Π½Ρ Π² ΠΊΠ²Π°ΡΡΠΈΡΠ΅, Π½Π΅ ΠΊΠ°ΡΠ°ΡΡΡ Π΅Π΅, ΠΈ ΠΎΡΠΎΡΠΌΠΈΡΡ ΠΈΠ·ΠΎΠ»ΠΈΡΠΎΠ²Π°Π½Π½ΡΡ ΡΠΏΠ°Π»ΡΠ½Ρ Π² ΡΡΡΠ΄ΠΈΠΈ — Π² ΠΏΡΠΎΠ΅ΠΊΡΠ΅ ΠΠ°ΡΠΈΡΡ ΠΠΈΠΊΠΈΡΠ΅Π½ΠΊΠΎ Β«ΠΠ΅Π½ΡΠΊΠΈΠΉ Π²Π·Π³Π»ΡΠ΄ Π½Π° ΠΌΡΠΆΡΠΊΠΎΠΉ ΠΈΠ½ΡΠ΅ΡΡΠ΅ΡΒ».
ΠΡΠ±ΠΈΡΠ΅Π»ΠΈ ΠΏΡΠΈΡΠΎΠ΄Ρ ΠΏΠΎΠ»ΠΎΠΆΠΈΠ»ΠΈ ΡΠ²ΠΎΠΈ ΠΆΠΈΠ·Π½ΠΈ Π½Π° ΡΠΎ, ΡΡΠΎΠ±Ρ Π²ΡΡΠ°ΡΡΠΈΡΡ ΡΠΈΠΊΡΡ Ρ ΡΡΠ°Π΄Π΅ΡΠΊΠ°Π½ΡΠΈΠ΅ΠΉ Π½Π° ΠΏΠΎΠ΄ΠΎΠΊΠΎΠ½Π½ΠΈΠΊΠ΅, Π½ΠΎ ΠΌΠΎΠ³Π»ΠΈ Π·Π° Π΄Π΅Π½Ρ ΠΎΠ·Π΅Π»Π΅Π½ΠΈΡΡ Π΄ΠΎΠΌ ΠΈ Π½Π° Π΄ΠΎΠ»Π³ΠΈΠ΅ Π³ΠΎΠ΄Ρ Π·Π°Π±ΡΡΡ ΠΎ ΠΏΠΎΠ»ΠΈΠ²Π΅ Ρ ΠΏΠΎΠ΄ΠΊΠΎΡΠΌΠΊΠΎΠΉ.
Π Π΅ΡΠ΅ΠΏΡ ΠΎΠ±ΡΠ΅ΠΌΠ½ΠΎΠΉ ΠΊΠ²Π°ΡΡΠΈΡΡ Π½Π° ΠΈΡΠΏΠ°Π½ΡΠΊΠΎΠΌ ΡΠ·ΡΠΊΠ΅: Π½ΡΠΆΠ½ΠΎ ΡΠ΄Π°Π»ΠΈΡΡ ΠΈΠ· ΠΈΠ½ΡΠ΅ΡΡΠ΅ΡΠ° ΠΏΠ»ΠΎΡΠΊΠΎΡΡΠΈ, Π±ΠΎΡΠ΄ΡΡΡ, ΡΡΠ°ΠΌΠΏΡ ΠΈ ΡΡΠ΅ΡΠ΅ΠΎΡΠΈΠΏΡ, Π° Π·Π°ΡΠ΅ΠΌ Π²ΡΠ»ΠΎΠΆΠΈΡΡ ΠΏΠΎΠ», ΡΡΠ΅Π½Ρ, ΠΏΠΎΡΠΎΠ»ΠΎΠΊ ΠΈ Π΄Π°ΠΆΠ΅ ΠΌΠ΅Π±Π΅Π»Ρ ΠΊΠ΅ΡΠ°ΠΌΠΈΡΠ΅ΡΠΊΠΎΠΉ ΠΏΠ»ΠΈΡΠΊΠΎΠΉ.
ΠΠ°ΠΊ ΠΈΠ·Π²Π΅ΡΡΠ½ΠΎ, ΡΠ²Π΅Ρ ΠΏΡΠΈΠ΄Π°Π΅Ρ ΠΈΠ½ΡΠ΅ΡΡΠ΅ΡΡ ΠΆΠΈΠ²ΠΎΡΡΡ ΠΈ ΡΡΠΊΠΎΡΡΡ.Π‘ ΡΡΠΈΠΌ ΡΠΎΠ³Π»Π°ΡΠ΅Π½ Π΄ΠΈΠ·Π°ΠΉΠ½Π΅Ρ ΠΠ»Π΅ΠΊΡΠ°Π½Π΄Ρ ΠΠΎΡΠ΅Π². Π’ΠΎΠ»ΡΠΊΠΎ ΡΠ²ΠΎΠΈ ΠΏΡΠΎΠ΅ΠΊΡΡ ΠΎΠ½ ΡΠ°ΡΠΊΡΠ°ΡΠΈΠ²Π°Π΅Ρ ΡΡΠΊΠΈΠΌΠΈ ΠΊΡΠ°ΡΠΊΠ°ΠΌΠΈ Π½Π΅ ΠΊΡΠ°ΡΠΊΠ°ΠΌΠΈ, Π° ΡΠ²Π΅ΡΠΎΠΌ.
ΠΠΎΠ»ΠΎΠ΄Π°Ρ ΠΏΠ°ΡΠ° ΡΠ΅ΡΠΈΠ»Π° ΠΏΠΎΡΠ΅Π»ΠΈΡΡΡΡ Π² ΠΈΡΡΠΎΡΠΈΡΠ΅ΡΠΊΠΎΠΌ ΡΠ΅Π½ΡΡΠ΅ Π³ΠΎΡΠΎΠ΄Π°, Π½ΠΎ Π΄Π΅Π½Π΅Π³ Ρ Π²Π°ΡΠΈΠ»ΠΎ ΡΠΎΠ»ΡΠΊΠΎ Π½Π° ΠΌΠΈΠ½ΠΈΠ°ΡΡΡΠ½ΡΡ ΠΊΠ²Π°ΡΡΠΈΡΡ Π±Π΅Π· Π²Π°Π½Π½ΠΎΠΉ: Π½Π°ΡΡΠΎΡΡΠΈΠΉ ΠΏΡΠΎΡΠ΅ΡΡΠΈΠΎΠ½Π°Π»ΡΠ½ΡΠΉ Π²ΡΠ·ΠΎΠ² Π΄Π»Ρ Π°ΡΡ ΠΈΡΠ΅ΠΊΡΠΎΡΠ° ΠΈ Π΄ΠΈΠ·Π°ΠΉΠ½Π΅ΡΠ°.
Π ΡΡΠΎΠΌ ΠΆΠΈΠ»ΠΈΡΠ΅ ΠΏΡΠΎΡΠ΅ΡΡΠΈΠΎΠ½Π°Π»ΡΠ½ΠΎΠ³ΠΎ Π΄ΠΆΠ°Π·ΠΎΠ²ΠΎΠ³ΠΎ ΠΌΡΠ·ΡΠΊΠ°Π½ΡΠ° Π½Π°ΡΠ»ΠΎΡΡ ΠΌΠ΅ΡΡΠΎ Π½Π΅ ΡΠΎΠ»ΡΠΊΠΎ Π²ΡΠ΅ΠΌ Π·ΠΎΠ½Π°ΠΌ ΠΈ Π²Π΅ΡΠ°ΠΌ, Π½Π΅ΠΎΠ±Ρ ΠΎΠ΄ΠΈΠΌΡΠΌ Π² ΠΏΠΎΠ²ΡΠ΅Π΄Π½Π΅Π²Π½ΠΎΠΉ ΠΆΠΈΠ·Π½ΠΈ, Π½ΠΎ ΠΈ Β«ΠΈΠ·Π»ΠΈΡΠ΅ΡΡΠ²Π°ΠΌΒ»: Π½Π°ΡΡΠΎΡΡΠ΅ΠΌΡ ΠΊΠ°ΠΌΠΈΠ½Ρ, ΡΠΎΡΠ»Ρ ΠΈ Π΄Π°ΠΆΠ΅ Π·ΡΠΈΡΠ΅Π»ΡΡΠΊΠΎΠΉ Β«ΡΡΠΈΠ±ΡΠ½Π΅Β».
ΠΡΠΈΠ³ΠΈΠ½Π°Π»ΡΠ½Π°Ρ ΠΏΠ»Π°Π½ΠΈΡΠΎΠ²ΠΊΠ° ΠΈΠ½ΠΎΠ³Π΄Π° Π±ΡΠ²Π°Π΅Ρ Π½Π°ΡΡΠΎΠ»ΡΠΊΠΎ Π½Π΅ΡΠ΄Π°ΡΠ½ΠΎΠΉ, ΡΡΠΎ Π°ΡΡ ΠΈΡΠ΅ΠΊΡΠΎΡΡ Π½ΡΠΆΠ½ΠΎ ΠΏΡΠΎΡΠ²ΠΈΡΡ Π½Π΅Π΄ΡΠΆΠΈΠ½Π½ΡΡ ΡΠΌΠ΅ΠΊΠ°Π»ΠΊΡ, ΡΡΠΎΠ±Ρ Π½ΠΈΠΊΡΠΎ Π½Π΅ Π²ΡΠΏΠΎΠΌΠ½ΠΈΠ» ΠΎ Π·Π»ΠΎΠΏΠΎΠ»ΡΡΠ½ΡΡ ΠΏΡΠΎΠΏΠΎΡΡΠΈΡΡ ΠΈ ΡΠΊΡΠΎΠΌΠ½ΡΡ ΠΌΠ°ΡΡΡΠ°Π±Π°Ρ .
ΠΡΠΎ Π±Ρ ΠΌΠΎΠ³ ΠΏΠΎΠ΄ΡΠΌΠ°ΡΡ, ΡΡΠΎ ΠΏΠΎΡΡΠΈ Π±Π΅Π· ΠΈΠ·ΠΌΠ΅Π½Π΅Π½ΠΈΡ ΠΏΠ»Π°Π½ΠΈΡΠΎΠ²ΠΊΠΈ ΡΡΠ° ΡΡΠ΅Ρ ΠΊΠΎΠΌΠ½Π°ΡΠ½Π°Ρ Ρ ΡΡΡΠ΅Π²ΠΊΠ° Π±ΡΠ΄Π΅Ρ Π²ΡΠ³Π»ΡΠ΄Π΅ΡΡ Π½Π°ΡΡΠΎΠ»ΡΠΊΠΎ ΠΏΡΠΎΡΡΠΎΡΠ½ΠΎΠΉ, ΡΡΠΎ ΠΏΠΎΠ·Π°Π²ΠΈΠ΄ΡΠ΅Ρ Π»ΡΠ±ΠΎΠΉ ΠΆΠΈΡΠ΅Π»Ρ Β«ΠΊΡΡΠΏΠ½ΠΎΠ³Π°Π±Π°ΡΠΈΡΠ½ΠΎΠ³ΠΎΒ» Π΄ΠΎΠΌΠ°.
ΠΠΏΠ°ΡΡΠ°ΠΌΠ΅Π½ΡΡ Π£ΠΈΠ»ΡΡΠΌΠ° ΠΠ΅Π½Π½Π° | Π£ΠΏΡΠ°Π²Π»Π΅Π½ΠΈΠ΅ ΠΆΠΈΠ»ΠΈΡΠ½ΠΎΠ³ΠΎ ΡΡΡΠΎΠΈΡΠ΅Π»ΡΡΡΠ²Π° ΠΈ ΡΠ΅ΠΊΠΎΠ½ΡΡΡΡΠΊΡΠΈΠΈ ΠΎΠΊΡΡΠ³Π° Π‘Π°ΡΠΊΡΡΡ Π°Π½Π½Π°
ΠΠΏΠ°ΡΡΠ°ΠΌΠ΅Π½ΡΡ William Penn ΡΠ°ΡΠΏΠΎΠ»ΠΎΠΆΠ΅Π½Ρ ΠΏΠΎ Π°Π΄ΡΠ΅ΡΡ 331 Main Street, Forest City, PA.ΠΡΠΎ ΠΆΠΈΠ»ΠΎΠΉ ΠΊΠΎΠΌΠΏΠ»Π΅ΠΊΡ Π½Π° 50 ΠΊΠ²Π°ΡΡΠΈΡ (50 Ρ ΠΎΠ΄Π½ΠΎΠΉ ΡΠΏΠ°Π»ΡΠ½Π΅ΠΉ) Π΄Π»Ρ ΠΏΠΎΠΆΠΈΠ»ΡΡ Π»ΡΠ΄Π΅ΠΉ 62 ΠΈ ΡΡΠ°ΡΡΠ΅ ΠΈ Π½Π΅ΡΠΎΠ²Π΅ΡΡΠ΅Π½Π½ΠΎΠ»Π΅ΡΠ½ΠΈΡ ΠΈΠ½Π²Π°Π»ΠΈΠ΄ΠΎΠ².
ΠΡΠΈΠΌΠ΅ΡΠ½ΡΠΉ ΡΠ΅ΡΡΠΈΠΌΠ΅ΡΡΡΠ½ΡΠΉ Π»ΠΈΡΡ ΠΎΠΆΠΈΠ΄Π°Π½ΠΈΡ. ΠΠ»Ρ ΠΏΠΎΠ»ΡΡΠ΅Π½ΠΈΡ Π΄ΠΎΠΏΠΎΠ»Π½ΠΈΡΠ΅Π»ΡΠ½ΠΎΠΉ ΠΈΠ½ΡΠΎΡΠΌΠ°ΡΠΈΠΈ ΠΏΠΎΠ·Π²ΠΎΠ½ΠΈΡΠ΅ Π² ΠΎΡΠΈΡ Π°ΡΠ΅Π½Π΄Ρ ΠΏΠΎ ΡΠ΅Π»Π΅ΡΠΎΠ½Ρ 570-785-5990. ΠΡΠΎ Π½Π΅Π΄Π²ΠΈΠΆΠΈΠΌΠΎΡΡΡ Π½ΠΎΠ²ΠΎΠ³ΠΎ ΡΡΡΠΎΠΈΡΠ΅Π»ΡΡΡΠ²Π°, ΡΡΠ±ΡΠΈΠ΄ΠΈΡΡΠ΅ΠΌΠ°Ρ HUD.
ΠΡΠ΅Π΄ΡΡΠ°Π²Π»ΡΠ΅ΠΌ William Penn Apartments
ΠΠΏΠ°ΡΡΠ°ΠΌΠ΅Π½ΡΡ William Penn, ΡΠ°ΡΠΏΠΎΠ»ΠΎΠΆΠ΅Π½Π½ΡΠ΅ Π½Π° ΠΠ΅ΠΉΠ½-ΡΡΡΠΈΡ, ΠΏΡΠ΅Π΄Π»Π°Π³Π°ΡΡ ΠΏΠΎΠΆΠΈΠ»ΡΠΌ Π»ΡΠ΄ΡΠΌ ΠΊΠΎΠΌΡΠΎΡΡΠ½ΠΎΠ΅ ΠΏΡΠΎΠΆΠΈΠ²Π°Π½ΠΈΠ΅ ΠΏΠΎ Π΄ΠΎΡΡΡΠΏΠ½ΠΎΠΉ ΡΠ΅Π½Π΅. Π Π°Π·ΡΠ°Π±ΠΎΡΠ°Π½Π½ΡΠΉ ΡΠΏΠ΅ΡΠΈΠ°Π»ΡΠ½ΠΎ Π΄Π»Ρ ΠΏΠΎΠΆΠΈΠ»ΡΡ Π»ΡΠ΄Π΅ΠΉ Ρ ΡΠΈΠΊΡΠΈΡΠΎΠ²Π°Π½Π½ΡΠΌ Π΄ΠΎΡ ΠΎΠ΄ΠΎΠΌ, ΠΊΠΎΡΠΎΡΡΠ΅ ΡΠΈΠ·ΠΈΡΠ΅ΡΠΊΠΈ ΡΠ°ΠΌΠΎΠ΄ΠΎΡΡΠ°ΡΠΎΡΠ½Ρ, William Penn — ΡΡΠΎ ΡΠ΄ΠΎΠ±Π½ΠΎΠ΅ ΠΈ Π±Π΅Π·ΠΎΠΏΠ°ΡΠ½ΠΎΠ΅ ΠΌΠ΅ΡΡΠΎ Π΄Π»Ρ ΠΆΠΈΠ·Π½ΠΈ.
ΠΡΠΈΡΠ΅ΡΠΈΠΈ ΠΎΡΠ±ΠΎΡΠ°:
- ΠΠ°Π»ΠΎΠ²ΠΎΠΉ Π³ΠΎΠ΄ΠΎΠ²ΠΎΠΉ Π΄ΠΎΡ
ΠΎΠ΄ Π·Π°ΡΠ²ΠΈΡΠ΅Π»Ρ Π½Π΅ ΠΌΠΎΠΆΠ΅Ρ ΠΏΡΠ΅Π²ΡΡΠ°ΡΡ ΡΠ»Π΅Π΄ΡΡΡΠΈΡ
Π»ΠΈΠΌΠΈΡΠΎΠ², ΡΡΡΠ°Π½ΠΎΠ²Π»Π΅Π½Π½ΡΡ
ΡΠ΅Π΄Π΅ΡΠ°Π»ΡΠ½ΡΠΌ ΠΏΡΠ°Π²ΠΈΡΠ΅Π»ΡΡΡΠ²ΠΎΠΌ:
- ΠΠ΄ΠΈΠ½ ΡΠ΅Π»ΠΎΠ²Π΅ΠΊ: 13450 (ΠΎΡΠ΅Π½Ρ Π½ΠΈΠ·ΠΊΠΈΠΉ), 22 400 (ΠΎΡΠ΅Π½Ρ Π½ΠΈΠ·ΠΊΠΈΠΉ) ΠΈΠ»ΠΈ 35 800 (Π½ΠΈΠ·ΠΊΠΈΠΉ)
- ΠΠ²Π° ΡΠ΅Π»ΠΎΠ²Π΅ΠΊΠ°: 16 910 (ΠΎΡΠ΅Π½Ρ Π½ΠΈΠ·ΠΊΠΈΠΉ), 25 600 (ΠΎΡΠ΅Π½Ρ Π½ΠΈΠ·ΠΊΠΈΠΉ) ΠΈΠ»ΠΈ 40 900 Π΄ΠΎΠ»Π»Π°ΡΠΎΠ² (Π½ΠΈΠ·ΠΊΠΈΠΉ)
- ΠΠΆΠ΅ΠΌΠ΅ΡΡΡΠ½Π°Ρ Π°ΡΠ΅Π½Π΄Π½Π°Ρ ΠΏΠ»Π°ΡΠ° ΡΠ°Π²Π½Π° ΠΏΡΠΈΠΌΠ΅ΡΠ½ΠΎ 30% Π΅ΠΆΠ΅ΠΌΠ΅ΡΡΡΠ½ΠΎΠ³ΠΎ Π΄ΠΎΡ ΠΎΠ΄Π° ΡΠ΅Π·ΠΈΠ΄Π΅Π½ΡΠ° ΠΏΠΎΡΠ»Π΅ ΠΌΠ΅Π΄ΠΈΡΠΈΠ½ΡΠΊΠΈΡ ΠΎΡΡΠΈΡΠ»Π΅Π½ΠΈΠΉ.
- Π Π°ΡΠ΅Π½Π΄Π½ΡΡ ΠΏΠ»Π°ΡΡ Π²ΠΊΠ»ΡΡΠ΅Π½Ρ Π²ΡΠ΅ ΠΊΠΎΠΌΠΌΡΠ½Π°Π»ΡΠ½ΡΠ΅ ΡΡΠ»ΡΠ³ΠΈ, ΠΊΡΠΎΠΌΠ΅ ΡΠ΅Π»Π΅ΡΠΎΠ½Π½ΠΎΠΉ ΠΈ Π΅ΠΆΠ΅ΠΌΠ΅ΡΡΡΠ½ΠΎΠΉ ΠΊΠ°Π±Π΅Π»ΡΠ½ΠΎΠΉ ΠΎΠΏΠ»Π°ΡΡ.
Π ΠΊΠ°ΠΆΠ΄ΠΎΠΉ ΠΊΠ²Π°ΡΡΠΈΡΠ΅:
- ΠΠΎΠ»Π½ΠΎΡΡΡΡ ΠΎΠ±ΠΎΡΡΠ΄ΠΎΠ²Π°Π½Π½Π°Ρ ΠΊΡΡ Π½Ρ, Π²ΠΊΠ»ΡΡΠ°Ρ ΡΠ»Π΅ΠΊΡΡΠΈΡΠ΅ΡΠΊΡΡ ΠΏΠ»ΠΈΡΡ ΠΈ Ρ ΠΎΠ»ΠΎΠ΄ΠΈΠ»ΡΠ½ΠΈΠΊ
- ΠΠΎΠ΄ΠΊΠ»ΡΡΠ΅Π½ΠΈΠ΅ ΠΊΠ°Π±Π΅Π»ΡΠ½ΠΎΠ³ΠΎ ΡΠ΅Π»Π΅Π²ΠΈΠ΄Π΅Π½ΠΈΡ
- ΠΠ½Π΄ΠΈΠ²ΠΈΠ΄ΡΠ°Π»ΡΠ½ΡΠΉ Π΄Π΅ΡΠ΅ΠΊΡΠΎΡ Π΄ΡΠΌΠ°, ΡΠΈΡΡΠ΅ΠΌΠ° ΡΠΊΡΡΡΠ΅Π½Π½ΠΎΠ³ΠΎ Π²ΡΠ·ΠΎΠ²Π°
- ΠΠ½Π΄ΠΈΠ²ΠΈΠ΄ΡΠ°Π»ΡΠ½Π°Ρ ΡΠΈΡΡΠ΅ΠΌΠ° Π±Π΅Π·ΠΎΠΏΠ°ΡΠ½ΠΎΡΡΠΈ ΠΊΠ²Π°ΡΡΠΈΡΡ
Π₯Π°ΡΠ°ΠΊΡΠ΅ΡΠΈΡΡΠΈΠΊΠΈ Π·Π΄Π°Π½ΠΈΡ:
- 50 ΠΎΠ΄Π½ΠΎΠΊΠΎΠΌΠ½Π°ΡΠ½ΡΡ ΠΊΠ²Π°ΡΡΠΈΡ
- ΠΠ΅Π±Π»ΠΈΡΠΎΠ²Π°Π½Π½Π°Ρ Π³ΠΎΡΡΠΈΠ½Π°Ρ Ρ ΡΠ΅Π»Π΅Π²ΠΈΠ·ΠΎΡΠΎΠΌ
- ΠΠ±ΡΠ°Ρ ΠΊΠΎΠΌΠ½Π°ΡΠ°
- ΠΡΠ°ΡΠ΅ΡΠ½Π°Ρ Ρ ΠΎΠΏΠ»Π°ΡΠΎΠΉ ΠΌΠΎΠ½Π΅ΡΠ°ΠΌΠΈ
- ΠΠΈΡΡ
- ΠΡΠΎΡΡΠΎΡΠ½Π°Ρ ΠΏΠ°ΡΠΊΠΎΠ²ΠΊΠ°
- ΠΠ°Π±ΠΈΠ½Π΅Ρ ΠΌΠ΅Π½Π΅Π΄ΠΆΠ΅ΡΠ° Π½Π° ΠΎΠ±ΡΠ΅ΠΊΡΠ΅
- Π£Π΄ΠΎΠ±Π½ΠΎΠ΅ ΡΠ°ΡΠΏΠΎΠ»ΠΎΠΆΠ΅Π½ΠΈΠ΅ ΠΏΠΎ ΠΎΡΠ½ΠΎΡΠ΅Π½ΠΈΡ ΠΊΠΎ Π²ΡΠ΅ΠΌ ΠΏΡΠ΅Π΄ΠΏΡΠΈΡΡΠΈΡΠΌ ΠΈ ΡΠ»ΡΠΆΠ±Π°ΠΌ ΡΠ΅Π½ΡΡΠ° Π€ΠΎΡΠ΅ΡΡ-Π‘ΠΈΡΠΈ
ΠΠΏΠ°ΡΡΠ°ΠΌΠ΅Π½ΡΡ William Penn — ΡΡΠΎ ΡΠ΅Π·ΡΠ»ΡΡΠ°Ρ ΡΠΎΠ²ΠΌΠ΅ΡΡΠ½ΡΡ ΡΡΠΈΠ»ΠΈΠΉ Π°Π΄ΠΌΠΈΠ½ΠΈΡΡΡΠ°ΡΠΈΠΈ ΠΎΠΊΡΡΠ³Π° Π€ΠΎΡΠ΅ΡΡ-Π‘ΠΈΡΠΈ, ΠΊΠΎΠΌΠΈΡΡΠ°ΡΠΎΠ² ΠΎΠΊΡΡΠ³Π° Π‘Π°ΡΠΊΡΡΡ Π°Π½Π½Π° ΠΈ Π£ΠΏΡΠ°Π²Π»Π΅Π½ΠΈΡ ΠΆΠΈΠ»ΠΈΡΠ½ΠΎΠ³ΠΎ ΡΡΡΠΎΠΈΡΠ΅Π»ΡΡΡΠ²Π° ΠΈ ΡΠ΅ΠΊΠΎΠ½ΡΡΡΡΠΊΡΠΈΠΈ ΠΎΠΊΡΡΠ³Π° Π‘Π°ΡΠΊΡΡΡ Π°Π½Π½Π°.ΠΠ½Π°ΡΠΈΡΠ΅Π»ΡΠ½Π°Ρ ΡΠΈΠ½Π°Π½ΡΠΎΠ²Π°Ρ ΠΏΠΎΠΌΠΎΡΡ Π±ΡΠ»Π° ΠΏΡΠ΅Π΄ΠΎΡΡΠ°Π²Π»Π΅Π½Π° ββΠΡΠΎΠ³ΡΠ°ΠΌΠΌΠΎΠΉ ΡΠ°Π·Π²ΠΈΡΠΈΡ ΡΠΎΠΎΠ±ΡΠ΅ΡΡΠ²Π° Π€ΠΎΡΠ΅ΡΡ-Π‘ΠΈΡΠΈ, ΠΠ΅ΠΏΠ°ΡΡΠ°ΠΌΠ΅Π½ΡΠΎΠΌ ΠΏΠΎ Π΄Π΅Π»Π°ΠΌ ΡΠΎΠΎΠ±ΡΠ΅ΡΡΠ² ΠΠ΅Π½ΡΠΈΠ»ΡΠ²Π°Π½ΠΈΠΈ ΠΈ ΠΠΏΠΏΠ°Π»Π°ΡΡΠΊΠΎΠΉ ΡΠ΅Π³ΠΈΠΎΠ½Π°Π»ΡΠ½ΠΎΠΉ ΠΊΠΎΠΌΠΈΡΡΠΈΠ΅ΠΉ. ΠΠΏΠΎΡΠ΅ΡΠ½ΠΎΠ΅ ΡΠΈΠ½Π°Π½ΡΠΈΡΠΎΠ²Π°Π½ΠΈΠ΅ Π±ΡΠ»ΠΎ ΠΎΠ±Π΅ΡΠΏΠ΅ΡΠ΅Π½ΠΎ Π£ΠΏΡΠ°Π²Π»Π΅Π½ΠΈΠ΅ΠΌ ΠΆΠΈΠ»ΠΈΡΠ½ΠΎΠ³ΠΎ ΡΡΡΠΎΠΈΡΠ΅Π»ΡΡΡΠ²Π° ΡΠ΅ΡΠΌΠ΅ΡΠΎΠ² Π‘Π¨Π, Π° ΡΡΠ΅Π΄ΡΡΠ²Π° Π½Π° ΡΡΡΠΎΠΈΡΠ΅Π»ΡΡΡΠ²ΠΎ Π±ΡΠ»ΠΈ ΠΏΠΎΠ»ΡΡΠ΅Π½Ρ ΡΠ΅ΡΠ΅Π· Community Bank of Forest City.
ΠΡΠ΅Π½Π΄Π° ΠΆΠΈΠ»ΡΡ ΡΡΠ±ΡΠΈΠ΄ΠΈΡΡΠ΅ΡΡΡ Π² ΡΠ°ΠΌΠΊΠ°Ρ ΠΡΠΎΠ³ΡΠ°ΠΌΠΌΡ ΠΏΠΎΠΌΠΎΡΠΈ Π² Π°ΡΠ΅Π½Π΄Π΅ ΠΆΠΈΠ»ΡΡ ΠΏΠΎ ΡΠ°Π·Π΄Π΅Π»Ρ 8 ΠΠΈΠ½ΠΈΡΡΠ΅ΡΡΡΠ²Π° ΠΆΠΈΠ»ΠΈΡΠ½ΠΎΠ³ΠΎ ΡΡΡΠΎΠΈΡΠ΅Π»ΡΡΡΠ²Π° ΠΈ Π³ΠΎΡΠΎΠ΄ΡΠΊΠΎΠ³ΠΎ ΡΠ°Π·Π²ΠΈΡΠΈΡ Π‘Π¨Π.
ΠΠ»Π°Π΄Π΅Π»Π΅Ρ ΠΈ ΡΠΏΠΎΠ½ΡΠΎΡ: ΠΠΈΠ»ΠΈΡΠ½ΠΎΠ΅ ΡΠΏΡΠ°Π²Π»Π΅Π½ΠΈΠ΅ ΠΎΠΊΡΡΠ³Π° Π‘Π°ΡΠΊΡΡΡ Π°Π½Π½Π°
Π£ΠΏΡΠ°Π²Π»Π΅Π½ΠΈΠ΅: ΠΠΈΠ»ΠΈΡΠ½ΠΎΠ΅ ΡΠΏΡΠ°Π²Π»Π΅Π½ΠΈΠ΅ ΠΎΠΊΡΡΠ³Π° Π‘Π°ΡΠΊΡΡΡ Π°Π½Π½Π°
ΠΠ»Ρ ΠΏΠΎΠ»ΡΡΠ΅Π½ΠΈΡ Π΄ΠΎΠΏΠΎΠ»Π½ΠΈΡΠ΅Π»ΡΠ½ΠΎΠΉ ΠΈΠ½ΡΠΎΡΠΌΠ°ΡΠΈΠΈ ΠΎΠ± Π°ΠΏΠ°ΡΡΠ°ΠΌΠ΅Π½ΡΠ°Ρ William Penn ΠΎΠ±ΡΠ°ΡΠΈΡΠ΅ΡΡ Π² ΠΏΡΠ½ΠΊΡ Π°ΡΠ΅Π½Π΄Ρ, ΡΠ°ΡΠΏΠΎΠ»ΠΎΠΆΠ΅Π½Π½ΡΠΉ ΠΏΠΎ Π°Π΄ΡΠ΅ΡΡ: 331 Main St., Forest City, PA, 18421, ΠΏΠΎ ΡΠ΅Π»Π΅ΡΠΎΠ½Ρ (570) 785-5990 ΠΈΠ»ΠΈ (800) 654-5984.
ΠΡΠ»ΠΈ Π²Π°Ρ ΠΈΠ½ΡΠ΅ΡΠ΅ΡΡΡΡ ΡΡΠΈ ΠΎΠ±ΡΠ΅ΠΊΡΡ, Π·Π°Π³ΡΡΠ·ΠΈΡΠ΅ ΠΈ Π·Π°ΠΏΠΎΠ»Π½ΠΈΡΠ΅ Π·Π°ΡΠ²ΠΊΡ Π½Π° Π°ΡΠ΅Π½Π΄Ρ ΡΠ΅Π³ΠΎΠ΄Π½Ρ. ΠΠ°ΠΌ ΡΠ°ΠΊΠΆΠ΅ Π½ΡΠΆΠ½ΠΎ Π±ΡΠ΄Π΅Ρ Π·Π°ΠΏΠΎΠ»Π½ΠΈΡΡ ΠΡΠΈΠ»ΠΎΠΆΠ΅Π½ΠΈΠ΅ ΠΊ Π·Π°ΡΠ²Π»Π΅Π½ΠΈΡ Π½Π° ΠΏΠΎΠ»ΡΡΠ΅Π½ΠΈΠ΅ ΠΆΠΈΠ»ΡΡ Ρ ΡΠ΅Π΄Π΅ΡΠ°Π»ΡΠ½ΠΎΠΉ ΠΏΠΎΠΌΠΎΡΡΡ. Π’Π°ΠΊΠΆΠ΅ ΠΏΡΠΎΡΡΠΈΡΠ΅ ΠΏΠΈΡΡΠΌΠΎ ΠΎΡ Π½Π°ΡΠ΅Π³ΠΎ ΡΡΠΊΠΎΠ²ΠΎΠ΄ΡΡΠ²Π°.
Harford Village Apartments | Π£ΠΏΡΠ°Π²Π»Π΅Π½ΠΈΠ΅ ΠΆΠΈΠ»ΠΈΡΠ½ΠΎΠ³ΠΎ ΡΡΡΠΎΠΈΡΠ΅Π»ΡΡΡΠ²Π° ΠΈ ΡΠ΅ΠΊΠΎΠ½ΡΡΡΡΠΊΡΠΈΠΈ ΠΎΠΊΡΡΠ³Π° Π‘Π°ΡΠΊΡΡΡ Π°Π½Π½Π°
Harford Village Apartments — ΡΡΠΎ ΠΊΠΎΠΌΠΏΠ»Π΅ΠΊΡ ΠΈΠ· 20 ΠΊΠ²Π°ΡΡΠΈΡ (20 Π°ΠΏΠ°ΡΡΠ°ΠΌΠ΅Π½ΡΠΎΠ² Ρ ΠΎΠ΄Π½ΠΎΠΉ ΡΠΏΠ°Π»ΡΠ½Π΅ΠΉ) ΡΠΎΠ»ΡΠΊΠΎ Π΄Π»Ρ ΠΏΠΎΠΆΠΈΠ»ΡΡ Π»ΡΠ΄Π΅ΠΉ.ΠΠ»Ρ ΠΏΠΎΠ΄Π°ΡΠΈ Π·Π°ΡΠ²Π»Π΅Π½ΠΈΡ Π²Π°ΠΌ Π΄ΠΎΠ»ΠΆΠ½ΠΎ Π±ΡΡΡ 62 Π³ΠΎΠ΄Π°. ΠΠ½ ΡΠ°ΡΠΏΠΎΠ»ΠΎΠΆΠ΅Π½ ΠΏΠΎ Π°Π΄ΡΠ΅ΡΡ 201 School Street, Harford PA.
HVA ΡΡΠ±ΡΠΈΠ΄ΠΈΡΡΠ΅ΡΡΡ ΠΏΡΠΎΠ³ΡΠ°ΠΌΠΌΠΎΠΉ HUD 202. ΠΡΡΡ Π½Π΅ΠΌΠ΅Π΄Π»Π΅Π½Π½ΡΠ΅ ΠΎΡΠΊΡΡΡΠΈΡ. ΠΠ»Ρ ΠΏΠΎΠ»ΡΡΠ΅Π½ΠΈΡ Π΄ΠΎΠΏΠΎΠ»Π½ΠΈΡΠ΅Π»ΡΠ½ΠΎΠΉ ΠΈΠ½ΡΠΎΡΠΌΠ°ΡΠΈΠΈ Π·Π²ΠΎΠ½ΠΈΡΠ΅ Π² ΠΎΡΠΈΡ Π°ΡΠ΅Π½Π΄Ρ ΠΏΠΎ ΡΠ΅Π»Π΅ΡΠΎΠ½Ρ 570-434-2836.
ΠΡΠ΅Π΄ΡΡΠ°Π²Π»ΡΠ΅ΠΌ Π°ΠΏΠ°ΡΡΠ°ΠΌΠ΅Π½ΡΡ Harford Village
ΠΠΏΠ°ΡΡΠ°ΠΌΠ΅Π½ΡΡ Harford Village, ΡΠ°ΡΠΏΠΎΠ»ΠΎΠΆΠ΅Π½Π½ΡΠ΅ Π½Π° Π¨ΠΊΠΎΠ»ΡΠ½ΠΎΠΉ ΡΠ»ΠΈΡΠ΅, ΠΏΡΠ΅Π΄Π»Π°Π³Π°ΡΡ ΠΏΠΎΠΆΠΈΠ»ΡΠΌ Π»ΡΠ΄ΡΠΌ ΠΊΠΎΠΌΡΠΎΡΡΠ½ΠΎΠ΅ ΠΏΡΠΎΠΆΠΈΠ²Π°Π½ΠΈΠ΅ ΠΏΠΎ Π΄ΠΎΡΡΡΠΏΠ½ΠΎΠΉ ΡΠ΅Π½Π΅. ΠΠΎΠΌΡΠΎΡΡΠ°Π±Π΅Π»ΡΠ½ΡΠ΅ ΠΈ Π±Π΅Π·ΠΎΠΏΠ°ΡΠ½ΡΠ΅ Π°ΠΏΠ°ΡΡΠ°ΠΌΠ΅Π½ΡΡ Harford Village ΡΠ°Π·ΡΠ°Π±ΠΎΡΠ°Π½Ρ ΡΠΏΠ΅ΡΠΈΠ°Π»ΡΠ½ΠΎ Π΄Π»Ρ ΠΏΠΎΠΆΠΈΠ»ΡΡ ΠΆΠΈΡΠ΅Π»Π΅ΠΉ Ρ ΡΠΈΠΊΡΠΈΡΠΎΠ²Π°Π½Π½ΡΠΌ Π΄ΠΎΡ ΠΎΠ΄ΠΎΠΌ.
ΠΠ°ΠΊ ΠΏΡΠΎΠΉΡΠΈ ΠΊΠ²Π°Π»ΠΈΡΠΈΠΊΠ°ΡΠΈΡ:
- ΠΠ°Π½Π΄ΠΈΠ΄Π°ΡΠ°ΠΌ Π΄ΠΎΠ»ΠΆΠ½ΠΎ Π±ΡΡΡ 62 Π³ΠΎΠ΄Π°, ΠΈ ΠΎΠ½ΠΈ Π΄ΠΎΠ»ΠΆΠ½Ρ Π±ΡΡΡ ΡΠΈΠ·ΠΈΡΠ΅ΡΠΊΠΈ ΡΠ°ΠΌΠΎΠ΄ΠΎΡΡΠ°ΡΠΎΡΠ½ΡΠΌΠΈ
- ΠΠ°Π»ΠΎΠ²ΠΎΠΉ Π³ΠΎΠ΄ΠΎΠ²ΠΎΠΉ Π΄ΠΎΡ ΠΎΠ΄ Π·Π°ΡΠ²ΠΈΡΠ΅Π»Ρ Π½Π΅ ΠΌΠΎΠΆΠ΅Ρ ΠΏΡΠ΅Π²ΡΡΠ°ΡΡ ΠΏΡΠ΅Π΄Π΅Π»ΠΎΠ², ΡΡΡΠ°Π½ΠΎΠ²Π»Π΅Π½Π½ΡΡ ΡΠ΅Π΄Π΅ΡΠ°Π»ΡΠ½ΡΠΌ ΠΏΡΠ°Π²ΠΈΡΠ΅Π»ΡΡΡΠ²ΠΎΠΌ.
- ΠΠΆΠ΅ΠΌΠ΅ΡΡΡΠ½Π°Ρ Π°ΡΠ΅Π½Π΄Π½Π°Ρ ΠΏΠ»Π°ΡΠ° ΡΠΎΡΡΠ°Π²Π»ΡΠ΅Ρ ΠΏΡΠΈΠΌΠ΅ΡΠ½ΠΎ 30% ΠΎΡ Π΅ΠΆΠ΅ΠΌΠ΅ΡΡΡΠ½ΠΎΠ³ΠΎ Π΄ΠΎΡ ΠΎΠ΄Π° ΡΠ΅Π·ΠΈΠ΄Π΅Π½ΡΠ° ΠΏΠΎΡΠ»Π΅ ΠΌΠ΅Π΄ΠΈΡΠΈΠ½ΡΠΊΠΈΡ ΠΎΡΡΠΈΡΠ»Π΅Π½ΠΈΠΉ
- Π Π°ΡΠ΅Π½Π΄Π½ΡΡ ΠΏΠ»Π°ΡΡ Π²ΠΊΠ»ΡΡΠ΅Π½Ρ Π²ΡΠ΅ ΠΊΠΎΠΌΠΌΡΠ½Π°Π»ΡΠ½ΡΠ΅ ΡΡΠ»ΡΠ³ΠΈ, ΠΊΡΠΎΠΌΠ΅ ΡΠ΅Π»Π΅ΡΠΎΠ½Π½ΠΎΠΉ ΠΈ Π΅ΠΆΠ΅ΠΌΠ΅ΡΡΡΠ½ΠΎΠΉ ΠΏΠ»Π°ΡΡ Π·Π° ΠΊΠ°Π±Π΅Π»ΡΠ½ΠΎΠ΅ ΡΠ΅Π»Π΅Π²ΠΈΠ΄Π΅Π½ΠΈΠ΅
Π ΠΊΠ°ΠΆΠ΄ΠΎΠΉ ΠΊΠ²Π°ΡΡΠΈΡΠ΅:
- ΠΠΎΠ»Π½ΠΎΡΡΡΡ ΠΎΠ±ΠΎΡΡΠ΄ΠΎΠ²Π°Π½Π½Π°Ρ ΠΊΡΡ Π½Ρ Ρ ΡΠ»Π΅ΠΊΡΡΠΈΡΠ΅ΡΠΊΠΎΠΉ ΠΏΠ»ΠΈΡΠΎΠΉ ΠΈ Ρ ΠΎΠ»ΠΎΠ΄ΠΈΠ»ΡΠ½ΠΈΠΊΠΎΠΌ
- ΠΠΎΠ΄ΠΊΠ»ΡΡΠ΅Π½ΠΈΠ΅ ΠΊΠ°Π±Π΅Π»ΡΠ½ΠΎΠ³ΠΎ ΡΠ΅Π»Π΅Π²ΠΈΠ΄Π΅Π½ΠΈΡ
- ΠΠ½Π΄ΠΈΠ²ΠΈΠ΄ΡΠ°Π»ΡΠ½ΡΠΉ Π΄Π΅ΡΠ΅ΠΊΡΠΎΡ Π΄ΡΠΌΠ°, ΡΠΈΡΡΠ΅ΠΌΠ° ΡΠΊΡΡΡΠ΅Π½Π½ΠΎΠ³ΠΎ Π²ΡΠ·ΠΎΠ²Π°
- ΠΠ½Π΄ΠΈΠ²ΠΈΠ΄ΡΠ°Π»ΡΠ½Π°Ρ ΡΠΈΡΡΠ΅ΠΌΠ° Π±Π΅Π·ΠΎΠΏΠ°ΡΠ½ΠΎΡΡΠΈ ΠΊΠ²Π°ΡΡΠΈΡΡ
Π₯Π°ΡΠ°ΠΊΡΠ΅ΡΠΈΡΡΠΈΠΊΠΈ Π·Π΄Π°Π½ΠΈΡ:
- 20 ΠΎΠ΄Π½ΠΎΠΊΠΎΠΌΠ½Π°ΡΠ½ΡΡ ΠΊΠ²Π°ΡΡΠΈΡ
- ΠΠ΅Π±Π»ΠΈΡΠΎΠ²Π°Π½Π½Π°Ρ Π³ΠΎΡΡΠΈΠ½Π°Ρ Ρ ΡΠ΅Π»Π΅Π²ΠΈΠ·ΠΎΡΠΎΠΌ
- ΠΠ±ΡΠ°Ρ ΠΊΠΎΠΌΠ½Π°ΡΠ°
- ΠΡΠ°ΡΠ΅ΡΠ½Π°Ρ Ρ ΠΎΠΏΠ»Π°ΡΠΎΠΉ ΠΌΠΎΠ½Π΅ΡΠ°ΠΌΠΈ
- ΠΠΈΡΡ
- ΠΡΠΎΡΡΠΎΡΠ½Π°Ρ ΠΏΠ°ΡΠΊΠΎΠ²ΠΊΠ°
- ΠΠ°Π±ΠΈΠ½Π΅Ρ ΠΌΠ΅Π½Π΅Π΄ΠΆΠ΅ΡΠ° Π½Π° ΠΎΠ±ΡΠ΅ΠΊΡΠ΅
- Π£Π΄ΠΎΠ±Π½ΠΎΠ΅ ΡΠ°ΡΠΏΠΎΠ»ΠΎΠΆΠ΅Π½ΠΈΠ΅ ΠΏΠΎ ΠΎΡΠ½ΠΎΡΠ΅Π½ΠΈΡ ΠΊΠΎ Π²ΡΠ΅ΠΌ ΠΏΡΠ΅Π΄ΠΏΡΠΈΡΡΠΈΡΠΌ ΠΈ ΡΡΠ»ΡΠ³Π°ΠΌ Π₯Π°ΡΡΠΎΡΠ΄Π°
Harford Village Apartments — ΡΠ΅Π·ΡΠ»ΡΡΠ°Ρ ΡΠΎΠ²ΠΌΠ΅ΡΡΠ½ΡΡ ΡΡΠΈΠ»ΠΈΠΉ Ecumenical Enterprises Inc., ΠΠΎΡΠΏΠΎΡΠ°ΡΠΈΡ ΠΆΠΈΠ»ΠΈΡΠ½ΠΎΠ³ΠΎ ΡΡΡΠΎΠΈΡΠ΅Π»ΡΡΡΠ²Π° ΠΎΠΊΡΡΠ³Π° Π‘Π°ΡΠΊΡΡΡ Π°Π½Π½Π° ΠΈ Π£ΠΏΡΠ°Π²Π»Π΅Π½ΠΈΠ΅ ΠΆΠΈΠ»ΠΈΡΠ½ΠΎΠ³ΠΎ ΡΡΡΠΎΠΈΡΠ΅Π»ΡΡΡΠ²Π° ΠΈ ΡΠ΅ΠΊΠΎΠ½ΡΡΡΡΠΊΡΠΈΠΈ ΠΎΠΊΡΡΠ³Π° Π‘Π°ΡΠΊΡΡΡ Π°Π½Π½Π°. ΠΠ½Π°ΡΠΈΡΠ΅Π»ΡΠ½ΡΡ ΡΠΈΠ½Π°Π½ΡΠΎΠ²ΡΡ ΠΏΠΎΠΌΠΎΡΡ Π½Π° ΡΡΡΠΎΠΈΡΠ΅Π»ΡΡΡΠ²ΠΎ ΠΎΠΊΠ°Π·ΡΠ²Π°Π΅Ρ ΠΠΈΠ½ΠΈΡΡΠ΅ΡΡΡΠ²ΠΎ ΠΆΠΈΠ»ΠΈΡΠ½ΠΎΠ³ΠΎ ΡΡΡΠΎΠΈΡΠ΅Π»ΡΡΡΠ²Π° ΠΈ Π³ΠΎΡΠΎΠ΄ΡΠΊΠΎΠ³ΠΎ ΡΠ°Π·Π²ΠΈΡΠΈΡ Π‘Π¨Π.
ΠΡΠ΅Π½Π΄Π° ΠΆΠΈΠ»ΡΡ ΡΡΠ±ΡΠΈΠ΄ΠΈΡΡΠ΅ΡΡΡ Π² ΡΠ°ΠΌΠΊΠ°Ρ ΠΡΠΎΠ³ΡΠ°ΠΌΠΌΡ ΠΏΠΎΠΌΠΎΡΠΈ Π² Π°ΡΠ΅Π½Π΄Π΅ ΠΆΠΈΠ»ΡΡ ΠΏΠΎ ΡΠ°Π·Π΄Π΅Π»Ρ 8 ΠΠΈΠ½ΠΈΡΡΠ΅ΡΡΡΠ²Π° ΠΆΠΈΠ»ΠΈΡΠ½ΠΎΠ³ΠΎ ΡΡΡΠΎΠΈΡΠ΅Π»ΡΡΡΠ²Π° ΠΈ Π³ΠΎΡΠΎΠ΄ΡΠΊΠΎΠ³ΠΎ ΡΠ°Π·Π²ΠΈΡΠΈΡ Π‘Π¨Π.
ΠΠ»Π°Π΄Π΅Π»Π΅Ρ ΠΈ ΡΠΏΠΎΠ½ΡΠΎΡ: Harford Elderly Housing, Inc.
Π£ΠΏΡΠ°Π²Π»Π΅Π½ΠΈΠ΅: ΠΠΈΠ»ΠΈΡΠ½ΠΎΠ΅ ΡΠΏΡΠ°Π²Π»Π΅Π½ΠΈΠ΅ ΠΎΠΊΡΡΠ³Π° Π‘Π°ΡΠΊΡΡΡ Π°Π½Π½Π°
ΠΠ° Π΄ΠΎΠΏΠΎΠ»Π½ΠΈΡΠ΅Π»ΡΠ½ΠΎΠΉ ΠΈΠ½ΡΠΎΡΠΌΠ°ΡΠΈΠ΅ΠΉ ΠΎ Harford Village Apartments ΠΎΠ±ΡΠ°ΡΠ°ΠΉΡΠ΅ΡΡ Π² ΠΆΠΈΠ»ΠΈΡΠ½ΠΎΠ΅ ΡΠΏΡΠ°Π²Π»Π΅Π½ΠΈΠ΅ ΠΎΠΊΡΡΠ³Π° Π‘Π°ΡΠΊΡΡΡ Π°Π½Π½Π°, ΡΠ°ΡΠΏΠΎΠ»ΠΎΠΆΠ΅Π½Π½ΠΎΠ΅ ΠΏΠΎ Π°Π΄ΡΠ΅ΡΡ: 33 Public Ave., ΠΠΎΠ½ΡΡΠΎΡΠ·, ΠΠ΅Π½ΡΠΈΠ»ΡΠ²Π°Π½ΠΈΡ, 18801, ΠΏΠΎ ΡΠ΅Π»Π΅ΡΠΎΠ½Ρ (570) 278-4096. ΠΠ»ΠΈ ΡΠ²ΡΠΆΠΈΡΠ΅ΡΡ Π½Π°ΠΏΡΡΠΌΡΡ Ρ Π°Π΄ΠΌΠΈΠ½ΠΈΡΡΡΠ°ΡΠΈΠ΅ΠΉ Π°ΠΏΠ°ΡΡΠ°ΠΌΠ΅Π½ΡΠΎΠ² Harford Village ΠΏΠΎ ΡΠ΅Π»Π΅ΡΠΎΠ½Ρ (570) 434-2836.
ΠΡΠ»ΠΈ Π²Π°Ρ ΠΈΠ½ΡΠ΅ΡΠ΅ΡΡΡΡ ΡΡΠΈ ΠΎΠ±ΡΠ΅ΠΊΡΡ, Π·Π°Π³ΡΡΠ·ΠΈΡΠ΅ ΠΈ Π·Π°ΠΏΠΎΠ»Π½ΠΈΡΠ΅ Π·Π°ΡΠ²ΠΊΡ Π½Π° Π°ΡΠ΅Π½Π΄Ρ ΡΠ΅Π³ΠΎΠ΄Π½Ρ. ΠΠ°ΠΌ ΡΠ°ΠΊΠΆΠ΅ Π½Π΅ΠΎΠ±Ρ ΠΎΠ΄ΠΈΠΌΠΎ Π±ΡΠ΄Π΅Ρ Π·Π°ΠΏΠΎΠ»Π½ΠΈΡΡ ΠΏΡΠΈΠ»ΠΎΠΆΠ΅Π½ΠΈΠ΅ ΠΊ Π·Π°ΡΠ²Π»Π΅Π½ΠΈΡ Π½Π° ΠΏΠΎΠ»ΡΡΠ΅Π½ΠΈΠ΅ ΠΆΠΈΠ»ΡΡ Ρ ΡΠ΅Π΄Π΅ΡΠ°Π»ΡΠ½ΠΎΠΉ ΠΏΠΎΠΌΠΎΡΡΡ.
